LIFULL HOME'Sは物件鮮度No.1!※評価について
シルエラ御所南 9階
55万円/管理費等-
2時間前 更新
画像一覧
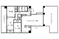
1/30間取り
2/30外観
3/30外観
4/30リビング/ダイニング
リビング
5/30リビング/ダイニング
リビング
6/30リビング/ダイニング
リビング
7/30室内
洋室
8/30寝室
洋室
9/30寝室
洋室
10/30寝室
洋室
11/30子供部屋
洋室
12/30キッチン
キッチン
13/30キッチン
キッチン
14/30キッチン
3口コンロ
15/30浴室
風呂
16/30トイレ
トイレ
17/30洗面
洗面所
18/30収納
収納
19/30設備
下駄箱
20/30設備
冷蔵庫置場
21/30設備
洗濯機置場
22/30設備
下駄箱
23/30玄関
玄関
24/30バルコニー
ベランダ
25/30エントランス
エントランス
26/30その他
廊下
27/30その他
眺望
28/30その他
屋上テラス
29/30周辺
フレスコ 御池店まで250メートル
30/30周辺
ファミリーマート 柳馬場押小路店まで210メートル
間取り
外観
外観
リビング/ダイニング
リビング/ダイニング
リビング/ダイニング
室内
寝室
寝室
寝室
子供部屋
キッチン
キッチン
キッチン
浴室
トイレ
洗面
収納
設備
設備
設備
設備
玄関
バルコニー
エントランス
その他
その他
その他
周辺
周辺
お問合せ先 :株式会社エリッツ 二条駅前店
住まい探し特典内容
電気・ガス・インターネットの手続き代行のご案内します。
- 利用条件
- 株式会社エリッツ 二条駅前店で利用可
- 他特典との併用可
利用方法
来店時に本特典の画面をスマートフォンやタブレットでスタッフに提示、または画面印刷した用紙を提示ください。
有効期限 なし
屋上テラスがついてます。--パノラマ掲載--
基本情報
不動産用語- 賃料
- 55万円
- 管理費等
- -
初期費用などお気軽にお問合せください
- 敷金/礼金
- 1ヶ月/2ヶ月
- 保証金/敷引・償却金
- -/-
- 交通
京都地下鉄東西線 京都市役所前駅 徒歩5分
京都市営烏丸線 丸太町駅 徒歩13分
京都地下鉄烏丸線 烏丸御池駅 徒歩8分
- 所在地
京都府京都市中京区麩屋町通御池上る上白山町
地図を見る- 築年月
- 2017年8月(築9年)
- 主要採光面
- 東
- 専有面積
- 85.4㎡
- バルコニー面積
- -
- 所在階/階数
- 9階/9階建
- 現況
- 空家
- 入居可能時期
- 即時

人気物件はすぐに埋まってしまいます。
気になったらお早めにお問合せください。
- 情報公開日
2025/03/03
264日前 公開
- 情報更新日
2025/11/22
2時間前 更新
- 次回更新
予定日 - 2025/11/28
物件のこだわり/設備・条件
新築(非該当)
2階以上の物件(該当)
南向き(非該当)
駐車場(非該当)
オートロック(該当)
エアコン(該当)
バス・トイレ別(該当)
追焚機能(非該当)
フローリング(該当)
ペット相談可(該当)
位置
角部屋入居条件
二人入居可、ペット相談、即入居可キッチン/バス・トイレ
設備・サービス
オートロック、防犯カメラ、TVモニタ付インターホン、エアコン、床暖房、クローゼット、シューズボックス、BS対応、インターネット対応、インターネット使用料無料、公営水道、都市ガス、下水、フローリング、バルコニー、室内洗濯機置場、エレベーター、宅配ボックス、駐輪場ありその他
住まい探し特典あり備考
【2017年築・85.4平米・3LDK】眺望・日当たり良好な最上階9階、広々とした屋上テラスで十分な洗濯物スペース、子どもやワンちゃんとの家族団らんタイム。人気の御所南小学校エリア。 ペット相談条件:小型犬二匹まで・インターネット無料 ハウスクリーニング52800円(退去時)
物件周辺の生活情報
学校
- 御所南小学校(600m)
- 御池中学校(200m)
買い物
- コンビニ(210m)
- スーパー(250m)
その他施設
- 総合病院(1,560m)
交通
- 京都地下鉄東西線 京都市役所前駅 徒歩5分
- 普通(停車)
- 京都市営烏丸線 丸太町駅 徒歩13分
- 普通(停車)
- 急行(停車)
※急行等の停車駅情報について
急行等の停車駅に関するデータは、随時更新をしておりますが、最新の内容であることを保証するものではありません。
最新かつ正確な情報につきましては、各鉄道会社のウェブサイトにてご確認ください
物件周辺の口コミ
- 京都府京都市中京区御池通麩屋町東入に住む人の口コミ50代女性
夫の会社に歩いて5分。地下鉄の駅も近く、バス路線も多い。少し南になると観光客でいっぱいだが、このあたりは静か。医者や買い物の便もいい。
口コミを見る
この物件周辺に住む人の口コミ
口コミは、LIFULL HOME'Sが実際にこの物件の周辺に住む18歳~69歳の男女を対象に、WEBアンケート調査を実施しています。内容には回答者の主観的な表現が含まれる場合があるほか、事実と異なる場合もございます。ご了承ください。
- 京都府京都市中京区御池通麩屋町東入に住む人の口コミ50代女性
- 夫の会社に歩いて5分。地下鉄の駅も近く、バス路線も多い。少し南になると観光客でいっぱいだが、このあたりは静か。医者や買い物の便もいい。
- 京都府京都市中京区御池通麩屋町東入に住む人の口コミ30代女性
- 職場に近く、ショッピングや映画などの娯楽施設も近いので利便性が良い。治安も良いので住みやすい。
- 京都府京都市中京区御幸町通押小路上るに住む人の口コミ60代女性
- 生活をする為には買い物も交通も学校も充実しているので便利だけど、観光客など住民以外の人が多すぎて、ちょっと出るにも身なりを整えないといけないし 夜遅くまでうるさい 今は、コロナ禍で多少ましではありますが…
- 京都府京都市上京区中町通丸太町上るに住む人の口コミ50代女性
- 近くに大きな川があり、整備された散歩道もあり、学区的にも評判よく、子育てがしやすかったから。また、交通の便もよく、通勤、通学しやすいから。
- 京都府京都市中京区堺町通三条上るに住む人の口コミ50代男性
- 通勤が便利。徒歩圏内に商業施設、公共施設、医療機関などが揃っている。
- 京都府京都市左京区吉田河原町に住む人の口コミ50代女性
- 大きくて遊歩道が整えられた河川と桜並木があり、四季を感じられる。有名な大学が3つ近隣にあり、病院も充実している。古い歴史を誇る名所も数多くあり、静かで落ち着いた街である。
- 京都府京都市中京区堺町通二条下るに住む人の口コミ60代女性
- 交通の便が 良いし 医療機関も沢山身近にあるし 静かで治安も良いから
- 京都府京都市中京区新烏丸通二条上るに住む人の口コミ30代女性
- 県庁所在地の中心部で、賑わっている。買い物や外食で困ることはほとんどない。住宅地はわりと静か
- 京都府京都市中京区御池通高倉西入に住む人の口コミ40代女性
- 市役所に近いことから街並みの整備が他地域より優先されている気がする。
- 京都府京都市中京区堺町通二条下るに住む人の口コミ60代男性
- 京都市の中心部で、歴史が有り、町内の人達とも仲良く暮らしている。
物件概要
- 建物構造
- RC(鉄筋コンクリート)
- 駐車場
- 近隣 25,000円(税無) 物件からの距離200m
- 総戸数
- 28戸
- 契約形態
- -
- 契約期間
- 2年間
- 更新料
- 新賃料の1ヶ月分
- その他費用
- 駐輪代(原付(月額):2,200円、ごみ処理代(月額):880円、駐輪ステッカー(初回):1,100円
- 保証会社
加入要
保証会社利用料:220、352円
- 住宅保険
- 要
- 管理
- -
- LIFULL HOME'S
物件番号 - 0110590-0340966
- 自社管理番号
- 91104-0901
- 取引態様
- 仲介
- 会社名
- 株式会社エリッツ 二条駅前店
営業スタッフコメント

株式会社エリッツ 二条駅前店
松原龍斗
お部屋探しはエリッツ二条駅前店にお任せ下さい。
業界経験4年
- スタッフ情報
- エリッツ二条駅前店です。情熱のある応対でお客様の希望に合った物件をご提案致します。 二条駅エリアを中心におすすめの物件をご紹介します。是非、一度お越し下さい。スタッフ一同、お待ちしております。
エリッツ二条駅前店です。情熱のある応対でお客様の希望に合った物件をご提案致します。 二条駅エリアを中心におすすめの物件をご紹介します。是非、一度お越し下さい。スタッフ一同、お待ちしております。
- 電話でお問合せ(通話無料)
お問合せ先 :株式会社エリッツ 二条駅前店
不動産会社情報
株式会社エリッツ 二条駅前店賃貸のエリッツ二条駅前店

京都府京都市中京区西ノ京職司町18−1 KOTO二条1F
JR山陰本線 二条駅 徒歩3分
- 営業時間
- 10:00~19:00
- 定休日
- 年中無休(年末年始を除く)
優良店認定
二条駅前店スタッフ一同、納得、満足を頂けるお部屋探しのサポート致します。お客様にピッタリの物件をセレクト。是非、二条付近でお探しの方は賃貸のエリッツ二条駅前店までご来店下さい。
- 店舗の特徴
- 賃貸管理業務
- 引越し業者紹介可
- 年中無休
- 社宅・寮物件取扱い
- オンライン相談可
- 保証人不要な物件あり
- 法人契約取扱い
- 駅から歩いて3分以内
電話でお問合せお客様の電話番号は不動産会社には通知されません
- 不動産会社に
つながります
お客様の電話番号は不動産会社に通知されません
- ※光IP電話、及びIP電話からはご利用になれません
- ※お電話によるお問合せは、店舗営業時間内にお願いします。つながらない場合は、お問合せフォームよりお問合せください
- ※不動産会社がお電話に出られなかった場合、お問合せいただいた後に不動産会社より折り返しのお電話がある場合がございます(お客様が非通知設定した場合は対象外です)
- ※株式会社LIFULLは電話会社が提供するサービスを介してお客様の発信者番号を受領後、折り返し専用の電話番号を発番してお問合せの不動産会社に通知します(お客様の発信者番号がお問合せの不動産会社に通知されることはございません)
- ※携帯電話からお問合せいただいた方に対し、株式会社LIFULLは電話会社が提供するメッセ―ジサービスを介してお客様の発信者番号を受領後、ショートメッセージ(SMS)またはLINE通知メッセージによるお問合せ内容に関する通知をお届けする場合があります
- ※お客様が通話中に不動産会社にお伝えになったお客様の個人情報及び、電話会社が発番する折り返し専用の電話番号は、お問合せ先不動産会社が資料送付・電子メール送信・電話連絡などの目的で保管する可能性があります。お問合せ先不動産会社が保管する個人情報の取扱いについては、各不動産会社に直接お問合せください
- ※株式会社LIFULLでは本サービスを円滑に運用するために、お客様の発信者番号をサービスご利用の控えとして一定期間保管いたします
- ※上記および株式会社LIFULLの個人情報の取扱い方針に同意のうえ、お電話ください
【LIFULL HOME'S物件番号】0110590-0340966【自社管理番号】91104-0901
オンライン対応
オンライン内見・オンライン相談・IT重説に対応している物件です

「オンライン内見」「オンライン相談」「IT重説」とは?
物件の内見や不動産会社スタッフとの相談、契約前の重要事項説明をオンライン(ビデオ通話)で行うことができるサービスです。
オンライン内見
ビデオ通話で現地(物件)にいる不動産会社スタッフと映像・音声を使ってリアルタイムで会話しながら内見ができます。
オンライン相談
「物件について聞きたいことがある」など不動産会社スタッフへの相談もビデオ通話で行うことができます。
IT重説
契約前の重要事項説明(重説)をビデオ通話で行うことができます。
利用時の注意事項
- ビデオ通話については各不動産会社指定のものとなります。
- ビデオ通話利用時には通信が発生します。従量課金制通信サービスや通信量に上限があるネット回線・プランを利用する場合は、通信量にご注意ください。
- 通信速度やアプリの設定によってはビデオ通話の画質が低下することがあります。安定した画質で利用するためにも、Wi-Fi環境下での利用を推奨します。
- ご利用のビデオ通話アプリによっては、対象のOSやブラウザに制限がある場合があります。詳しくはお問合せ先不動産会社にご確認ください。
初期費用・月額費用をあわせて確認!この物件に住んだときの費用めやす
めやすを見るこの物件に住んだときの費用めやす
- 初期費用
- 月額費用
- 追加費用※ご確認ください
追加で費用が
かかる場合があります
必ずご確認ください
初期費用めやす約0円
追加で費用がかかります(※)敷金
550,000
- 礼金
1,100,000
賃料+共益費・管理費の1ヶ月分として換算
賃料の1ヶ月分+税として換算。不動産会社によって金額が異なるため正確な金額は不動産会社にお問合せください
※追加費用もチェック!
これらの項目以外にも費用がかかる場合があります。正確な金額は不動産会社にお問合せください。
- 初期費用
- 鍵交換費:不動産会社に要確認
- 室内清掃費:不動産会社に要確認
- 火災保険費:不動産会社に要確認
- 月額費用
- 駐車場費:25,000円※近隣
- その他
- 駐輪代(原付(月額):2200円
- ごみ処理代(月額):880円
- 駐輪ステッカー(初回):1100円
- 保証会社
- 220、352円
不動産会社より
屋上テラスがついてます。--パノラマ掲載--
【2017年築・85.4平米・3LDK】眺望・日当たり良好な最上階9階、広々とした屋上テラスで十分な洗濯物スペース、子どもやワンちゃんとの家族団らんタイム。人気の御所南小学校エリア。 ペット相談条件:小型犬二匹まで・インターネット無料 ハウスクリーニング52800円(退去時)
- 保存する
- 共有する
- ※各種情報と現状に差異がある場合は、現状優先となります
- ※不動産会社が入力した情報を基に物件の位置を表示しています。詳しくは不動産会社までお問合せください
- ※不動産会社の方からの上記電話番号によるお問合せはお断りしております。こちら不動産会社詳細からお問合せください
- ※LIFULL HOME'Sは物件鮮度No.1を目指していきます。閲覧中の物件が「成約済である」「実際の物件情報と異なる点がある」などの場合、「掲載110番」からお問合せください
- ※QRコードは株式会社デンソーウェーブの登録商標です
この物件を取扱う他の会社
LIFULL HOME'Sでは、主要項目が同一の物件をまとめて表示しています。所在地や営業時間、掲載画像等から不動産会社を選んでお問合せください。
最近見た賃貸物件
LIFULL HOME'S 地図・周辺情報
買い物
- セブンイレブン 京都御幸町御池店
- Seriaゼスト御池店
- サンドラッグゼスト御池店
- セブンイレブン 京都市役所西店
- フレスコ 御池店
グルメ
- 上島珈琲店京都寺町店
- 松屋 ホテルユニゾ京都烏丸御池店
- 丸亀製麺京都市役所前店
- カフェコロラドゼスト御池店
- かに道楽 京都本店
育児・教育
- 京都市御池保育所
- 京都市立御所南小学校
- 京都市立京都御池中学校
- 御所の杜ほいくえん
- 京都市立高倉小学校
医療
- 医療法人財団足立病院
- 医療法人知音会京都新町病院
- 京都第二赤十字病院
- 医療法人毛利病院
- 京都大学医学部附属病院
公共施設・郵便局
- 京都ゼスト御池内郵便局
- 京都市こどもみらい館子育て図書館
- 京都市役所
- 京都御池柳馬場郵便局
- 京都府立図書館
公園
- 梅屋広場公園
- 京都御苑
- 岡崎公園
- 円山公園
- 円山公園
利用可能な駅
- 徒歩10分以内
京都地下鉄東西線
- 京都市役所前駅徒歩5分
- すべての駅
京都市営烏丸線
- 丸太町駅徒歩13分
- その他交通
- 京都地下鉄烏丸線 烏丸御池駅 徒歩8分
- 周辺情報は2023年07月21日時点のものになります。
- 周辺情報は、参考情報としてのみご利用ください(周辺情報は、株式会社LIFULLが地図情報の提供事業者から提供を受けた情報とLIFULL HOME'Sの物件情報に基づき、独自の方法で抽出し提供しているものです。周辺情報は、移転や閉鎖等により情報が最新ではない、または正しくない場合がありますが、地図情報の提供事業者から提供された情報をそのまま周辺情報として表示しているため、正確かつ最新の情報へ修正することができないことがあります。)
- 周辺情報は、株式会社LIFULLが掲載するものであり、不動産物件情報を掲載している不動産会社が掲載するものではありません
- 交通情報の一部については、株式会社LIFULLが掲載するものであり、不動産物件情報を掲載している不動産会社が掲載するものではない場合があります。交通情報に関する質問などは株式会社LIFULLにお問合せください

















































