LIFULL HOME'Sは物件鮮度No.1!※評価について
平和荘 2階/17
2万円/管理費等2,000円
12時間前 更新
画像一覧
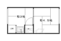
1/27間取り
間取
2/27外観
3/27外観
4/27外観
5/27エントランス
6/27その他
7/27その他
8/27その他
9/27周辺
10/27周辺
11/27周辺
12/27周辺
サンドラッグ 太秦店まで65m 梅津段町と太秦広隆寺の間にございます。
13/27周辺
京都太秦朱雀郵便局まで114m 梅津段町の交差点を北に上がって頂くとございます。
14/27周辺
ローソン太秦荒木町店まで304m 梅津段町の交差点を上がって東側にございます。
15/27周辺
京都双岡病院まで1533m 高齢者の総合医療と看護・介護に従事された病院です。
16/27周辺
京都外国語大学まで1100m
17/27周辺
京都外国語短期大学まで1100m
18/27周辺
京都先端科学大学(太秦)まで1481m
19/27周辺
花園大学まで1700m
20/27周辺
京都光華女子大学まで1700m
21/27周辺
太秦天神川駅まで622m
22/27周辺
太秦駅まで1133m
23/27周辺
花園駅まで1368m
24/27周辺
西大路御池駅まで2091m
25/27周辺
太秦広隆寺駅まで400m
26/27周辺
嵐電天神川駅まで985m
27/27周辺
帷子ノ辻駅まで997m
間取り
外観
外観
外観
エントランス
その他
その他
その他
周辺
周辺
周辺
周辺
周辺
周辺
周辺
周辺
周辺
周辺
周辺
周辺
周辺
周辺
周辺
周辺
周辺
周辺
周辺
仲介手数料割引
仲介手数料が家賃の半月分(税別)です。
- 利用条件
- 株式会社京都ライフ 桂店で利用可
- 他特典との併用可
- ・法人契約、事業用物件は除く。 ・積水ハウス、大東建託の管理物件は除く。
利用方法
来店時に本特典の画面をスマートフォンやタブレットでスタッフに提示、または画面印刷した用紙を提示ください。
有効期限 2026年06月30日まで
太秦 賃貸 ワンルーム 地下鉄太秦天神川駅徒歩圏内
物件のこだわり/設備・条件
新築(非該当)
2階以上の物件(該当)
南向き(該当)
駐車場(非該当)
オートロック(非該当)
エアコン(非該当)
バス・トイレ別(非該当)
追焚機能(非該当)
フローリング(該当)
ペット相談(非該当)
入居条件
即入居可キッチン/バス・トイレ
専用バス、専用トイレ設備・サービス
BS対応、公営水道、都市ガス、フローリング、駐輪場ありその他
住まい探し特典あり備考
地下鉄太秦天神川駅が徒歩10分圏内の距離にあり、コンビニやスーパー、ドラッグストアなども徒歩10分圏内にございます。 物件情報はもちろん京都のエリア情報まで幅広く対応させていただきます!
物件周辺の生活情報
買い物
- コンビニ(304m)
- スーパー(259m)
- ドラッグストア(65m)
その他施設
- 総合病院(1,533m)
- 京都太秦朱雀郵便局(114m)
交通
- 京都地下鉄東西線 太秦天神川駅 徒歩8分
- 普通(停車)
- JR山陰本線 太秦駅 徒歩13分
- 普通(停車)
- 快速とっとりライナー(通過)
- 快速通勤ライナー(通過)
- 快速(通過)
※急行等の停車駅情報について
急行等の停車駅に関するデータは、随時更新をしておりますが、最新の内容であることを保証するものではありません。
最新かつ正確な情報につきましては、各鉄道会社のウェブサイトにてご確認ください
物件周辺の口コミ
- 京都府京都市右京区梅津南上田町に住む人の口コミ30代男性
静かな街が好きなので、その条件を満たしているため。ただ駅から遠いのが難点で、京都市内なら問題ないですが、大阪に行くときに不便。生活するために必要最低限の店は揃っているので、その点はありがたい。
口コミを見る
この物件周辺に住む人の口コミ
口コミは、LIFULL HOME'Sが実際にこの物件の周辺に住む18歳~69歳の男女を対象に、WEBアンケート調査を実施しています。内容には回答者の主観的な表現が含まれる場合があるほか、事実と異なる場合もございます。ご了承ください。
- 京都府京都市右京区梅津南上田町に住む人の口コミ30代男性
- 静かな街が好きなので、その条件を満たしているため。ただ駅から遠いのが難点で、京都市内なら問題ないですが、大阪に行くときに不便。生活するために必要最低限の店は揃っているので、その点はありがたい。
- 京都府京都市右京区太秦桂木町に住む人の口コミ20代女性
- 交通機関が発達しているので、京都駅にも河原町にも大阪にもどこにでも行きやすい。
- 京都府京都市右京区梅津南広町に住む人の口コミ30代女性
- 近くにスーパーやコンビニがあり、生活はしやすい。子供が大きくなったら行きたい大きい公園が近くにある。
- 京都府京都市右京区西院西貝川町に住む人の口コミ30代女性
- 子育て環境を考えると、公園や遊具、スーパーや病院など充実していて交通の便も比較的良く満足している。が、盆地のため夏は暑く冬は寒いのがマイナスポイント。
- 京都府京都市右京区太秦安井馬塚町に住む人の口コミ30代男性
- スーパーやドラッグストアなどのお店が徒歩圏内にあるので楽。車の交通量も多くはない。遠景に山々が開けて見えるので自然感がある。道路の歩道がかなり狭いため、自転車での移動に関して危なさを感じる。
- 京都府京都市右京区太秦安井柳通町に住む人の口コミ20代女性
- 子育て層が多いため公園が近くにあり見守りをしてくれる地域の方もいる。また時々子供を対象にしたイベントも開催されている
- 京都府京都市右京区太秦森ケ前町に住む人の口コミ20代女性
- 市内まで近くて、バスや地下鉄、市電など、交通手段も充実している。市役所や図書館、病院、コンビニや大型スーパーなどが近く、市内から少し離れていて人が少なく静かで生活しやすい。
- 京都府京都市右京区太秦下角田町に住む人の口コミ20代女性
- 駅(地下鉄・路面)、バスターミナルが近くにあり、スーパー・コンビニも2軒、駅前に区役所もあるので大変満足しています。
- 京都府京都市右京区西京極午塚町に住む人の口コミ20代女性
- スーパーが沢山あり、買いわけしやすく、品質のいいものばかりで、公園が沢山あり、季節の花を楽しめ、広々と気兼ねなく遊べ、気が休まり、農家直送売場があり、新鮮で、低価格の高品質な野菜が食べられるからです。
- 京都府京都市右京区太秦棚森町に住む人の口コミ20代女性
- 住宅街が密集しているのでいつでも誰かの目がありあまり落ち着かない。がファミリーが多い街なので安心して外に出かけられる。
物件概要
- 建物構造
- 木造
- 駐車場
- 近隣 14,300円(税込) 物件からの距離200m
- 総戸数
- 10戸
- 契約形態
- -
- 契約期間
- 1年間
- 更新料
- 新賃料の1ヶ月分
- その他費用
- -
- 保証会社
- -
- 住宅保険
- 要
- 管理
- 管理員:巡回
- LIFULL HOME'S
物件番号 - 0110342-0199785
- 自社管理番号
- 08211-17-06
- 取引態様
- 仲介
- 会社名
- 株式会社京都ライフ 桂店
営業スタッフコメント

株式会社京都ライフ 桂店営業
高木晨矢
笑いあり、感動ありのお部屋探しをお手伝いさせて頂きます。
業界経験6年
資格少額短期保険募集人
- スタッフ情報
- 創業40年の長い年月の中で蓄積された情報と交渉力をお客様にお届け。自信を持って物件のご紹介をさせて頂きます。お部屋探しは京都ライフまで。お問い合わせお待ちしております。
創業40年の長い年月の中で蓄積された情報と交渉力をお客様にお届け。自信を持って物件のご紹介をさせて頂きます。お部屋探しは京都ライフまで。お問い合わせお待ちしております。
- 電話でお問合せ(通話無料)
お問合せ先 :株式会社京都ライフ 桂店
不動産会社情報
桂エリアのお部屋探しは京都ライフ桂店へどうぞ。単身用〜新婚・ファミリー物件まで経験豊富なスタッフが全力でサポート!京大・経短大の新入生の皆様、初めてのシングルライフ!京都ライフへおまかせ下さい!
- 店舗の特徴
- 24時間管理物件取扱い
- 引越し業者紹介可
- 年中無休
- 駐車場あり
- 系列店舗での対応可
- オンライン相談可
- 保証人不要な物件あり
- 法人契約取扱い
- 女性スタッフ対応可
- 駅から歩いて3分以内
電話でお問合せお客様の電話番号は不動産会社には通知されません
- 不動産会社に
つながります
お客様の電話番号は不動産会社に通知されません
- ※光IP電話、及びIP電話からはご利用になれません
- ※お電話によるお問合せは、店舗営業時間内にお願いします。つながらない場合は、お問合せフォームよりお問合せください
- ※不動産会社がお電話に出られなかった場合、お問合せいただいた後に不動産会社より折り返しのお電話がある場合がございます(お客様が非通知設定した場合は対象外です)
- ※株式会社LIFULLは電話会社が提供するサービスを介してお客様の発信者番号を受領後、折り返し専用の電話番号を発番してお問合せの不動産会社に通知します(お客様の発信者番号がお問合せの不動産会社に通知されることはございません)
- ※携帯電話からお問合せいただいた方に対し、株式会社LIFULLは電話会社が提供するメッセ―ジサービスを介してお客様の発信者番号を受領後、ショートメッセージ(SMS)またはLINE通知メッセージによるお問合せ内容に関する通知をお届けする場合があります
- ※お客様が通話中に不動産会社にお伝えになったお客様の個人情報及び、電話会社が発番する折り返し専用の電話番号は、お問合せ先不動産会社が資料送付・電子メール送信・電話連絡などの目的で保管する可能性があります。お問合せ先不動産会社が保管する個人情報の取扱いについては、各不動産会社に直接お問合せください
- ※株式会社LIFULLでは本サービスを円滑に運用するために、お客様の発信者番号をサービスご利用の控えとして一定期間保管いたします
- ※上記および株式会社LIFULLの個人情報の取扱い方針に同意のうえ、お電話ください
【LIFULL HOME'S物件番号】0110342-0199785【自社管理番号】08211-17-06
オンライン対応
オンライン相談に対応している物件です

「オンライン内見」「オンライン相談」「IT重説」とは?
物件の内見や不動産会社スタッフとの相談、契約前の重要事項説明をオンライン(ビデオ通話)で行うことができるサービスです。
オンライン内見
ビデオ通話で現地(物件)にいる不動産会社スタッフと映像・音声を使ってリアルタイムで会話しながら内見ができます。
オンライン相談
「物件について聞きたいことがある」など不動産会社スタッフへの相談もビデオ通話で行うことができます。
IT重説
契約前の重要事項説明(重説)をビデオ通話で行うことができます。
利用時の注意事項
- ビデオ通話については各不動産会社指定のものとなります。
- ビデオ通話利用時には通信が発生します。従量課金制通信サービスや通信量に上限があるネット回線・プランを利用する場合は、通信量にご注意ください。
- 通信速度やアプリの設定によってはビデオ通話の画質が低下することがあります。安定した画質で利用するためにも、Wi-Fi環境下での利用を推奨します。
- ご利用のビデオ通話アプリによっては、対象のOSやブラウザに制限がある場合があります。詳しくはお問合せ先不動産会社にご確認ください。
初期費用・月額費用をあわせて確認!この物件に住んだときの費用めやす
めやすを見るこの物件に住んだときの費用めやす
- 初期費用
- 月額費用
- 追加費用※ご確認ください
追加で費用が
かかる場合があります
必ずご確認ください
初期費用めやす約0円
追加で費用がかかります(※)敷金
20,000
- 礼金
0
賃料+共益費・管理費の1ヶ月分として換算
賃料の1ヶ月分+税として換算。不動産会社によって金額が異なるため正確な金額は不動産会社にお問合せください
※追加費用もチェック!
これらの項目以外にも費用がかかる場合があります。正確な金額は不動産会社にお問合せください。
- 初期費用
- 鍵交換費:不動産会社に要確認
- 室内清掃費:不動産会社に要確認
- 火災保険費:不動産会社に要確認
- 月額費用
- 駐車場費:14,300円(税込)※近隣
- 保証会社
- 不動産会社に要確認
不動産会社より
太秦 賃貸 ワンルーム 地下鉄太秦天神川駅徒歩圏内
地下鉄太秦天神川駅が徒歩10分圏内の距離にあり、コンビニやスーパー、ドラッグストアなども徒歩10分圏内にございます。 物件情報はもちろん京都のエリア情報まで幅広く対応させていただきます!
- 保存する
- 共有する
- ※各種情報と現状に差異がある場合は、現状優先となります
- ※不動産会社が入力した情報を基に物件の位置を表示しています。詳しくは不動産会社までお問合せください
- ※不動産会社の方からの上記電話番号によるお問合せはお断りしております。こちら不動産会社詳細からお問合せください
- ※LIFULL HOME'Sは物件鮮度No.1を目指していきます。閲覧中の物件が「成約済である」「実際の物件情報と異なる点がある」などの場合、「掲載110番」からお問合せください
- ※QRコードは株式会社デンソーウェーブの登録商標です
したい暮らしのタグから探す
この物件を取扱う他の会社
LIFULL HOME'Sでは、主要項目が同一の物件をまとめて表示しています。所在地や営業時間、掲載画像等から不動産会社を選んでお問合せください。
LIFULL HOME'S 地図・周辺情報
買い物
- ファミリーマート 太秦小学校前店
- フレスコ 太秦店
- サンドラッグ太秦店
- ローソン 太秦荒木町店
- サンディ太秦天神川店
グルメ
- 天下一品太秦店
- CoCo壱番屋 右京梅津段町店
- すき家 四条梅津店
- なか卯 三条帷子ノ辻店
- マクドナルド 太秦ライフ店
育児・教育
- 聖徳保育園
- 京都市立太秦小学校
- 京都市立太秦中学校
- 太秦保育園分園さくら
- 京都市立南太秦小学校
医療
- 公益社団法人京都保健会京都民医連中央病院
- 社会医療法人太秦病院
- 医療法人河端病院
- 医療法人新生十全会京都ならびがおか病院
- (財)泉谷病院
公共施設・郵便局
- 京都太秦朱雀郵便局
- 京都市右京中央図書館
- 右京警察署
- 京都太秦一ノ井郵便局
- 京都市中央図書館
公園
- 西院公園
- 土堂公園
- 広沢池公園
- 東大丸公園
- 嵐山モンキーパークいわたやま
利用可能な駅
- 徒歩10分以内
京福電気鉄道嵐山本線
- 太秦広隆寺駅徒歩7分
- 嵐電天神川駅徒歩10分
- 蚕ノ社駅徒歩10分
京都地下鉄東西線
- 太秦天神川駅徒歩8分
- すべての駅
JR山陰本線
- 太秦駅徒歩13分
- 花園駅徒歩20分
- 円町駅徒歩37分
- 嵯峨嵐山駅3.2km
京福電気鉄道北野線
- 撮影所前駅徒歩13分
- 常盤駅徒歩20分
- 鳴滝駅徒歩23分
- 宇多野駅徒歩29分
- 御室仁和寺駅徒歩30分
- 妙心寺駅徒歩32分
- 龍安寺駅徒歩36分
- 等持院・立命館大学衣笠キャンパス前駅3.2km
京福電気鉄道嵐山本線
- 帷子ノ辻駅徒歩15分
- 山ノ内駅徒歩19分
- 有栖川駅徒歩22分
- 車折神社駅徒歩29分
- 西大路三条駅徒歩30分
- 鹿王院駅徒歩32分
- 嵐電嵯峨駅3.1km
- 西院駅3.1km
京都地下鉄東西線
- 西大路御池駅徒歩29分
阪急嵐山線
- 松尾大社駅徒歩34分
- 上桂駅3.1km
- 嵐山駅3.9km
阪急京都本線
- 西院駅徒歩36分
- 西京極駅徒歩36分
- 周辺情報は2023年07月21日時点のものになります。
- 周辺情報は、参考情報としてのみご利用ください(周辺情報は、株式会社LIFULLが地図情報の提供事業者から提供を受けた情報とLIFULL HOME'Sの物件情報に基づき、独自の方法で抽出し提供しているものです。周辺情報は、移転や閉鎖等により情報が最新ではない、または正しくない場合がありますが、地図情報の提供事業者から提供された情報をそのまま周辺情報として表示しているため、正確かつ最新の情報へ修正することができないことがあります。)
- 周辺情報は、株式会社LIFULLが掲載するものであり、不動産物件情報を掲載している不動産会社が掲載するものではありません
- 交通情報の一部については、株式会社LIFULLが掲載するものであり、不動産物件情報を掲載している不動産会社が掲載するものではない場合があります。交通情報に関する質問などは株式会社LIFULLにお問合せください














