LIFULL HOME'Sは物件鮮度No.1!※評価について
平和荘 2階/17
2万円/管理費等-
13時間前 更新
画像一覧
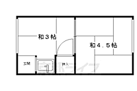
1/28間取り
間取
2/28外観
3/28外観
4/28エントランス
5/28エントランス
6/28その他
7/28その他
8/28その他
9/28その他
10/28その他
11/28周辺
12/28周辺
13/28周辺
ファミリーマート太秦小学校前店まで64m
14/28周辺
ローソン太秦荒木町店まで400m
15/28周辺
フレスコ太秦店まで350m
16/28周辺
フレスコ 天神川店まで800m
17/28周辺
サンドラッグ 太秦店まで38m
18/28周辺
京都太秦朱雀郵便局まで140m
19/28周辺
京都銀行 帷子ノ辻支店まで1100m
20/28周辺
京都民医連中央病院まで550m
21/28周辺
京都外国語大学まで1200m
22/28周辺
京都光華女子大学まで2600m
23/28周辺
京都先端科学大学(太秦)まで1000m
24/28周辺
花園大学まで2200m
25/28周辺
太秦天神川駅まで760m
26/28周辺
太秦駅まで1000m
27/28周辺
花園駅まで1251m
28/28周辺
太秦広隆寺駅まで400m
間取り
外観
外観
エントランス
エントランス
その他
その他
その他
その他
その他
周辺
周辺
周辺
周辺
周辺
周辺
周辺
周辺
周辺
周辺
周辺
周辺
周辺
周辺
周辺
周辺
周辺
周辺
仲介手数料割引
仲介手数料は賃料の半月分と消費税となります。(個人契約に限る)
- 利用条件
- ウインズリンク株式会社 アパマンショップ西院店 で利用可
- 他特典との併用可
- ※積水ハウス、大東建託の管理物件は家賃1か月分が仲介手数料としてかかります。
利用方法
来店時に本特典の画面をスマートフォンやタブレットでスタッフに提示、または画面印刷した用紙を提示ください。
有効期限 2026年05月05日まで
水道代無料です。 最寄りの駅が地下鉄の始発駅。近くには右京区役所もあります
物件のこだわり/設備・条件
新築(非該当)
2階以上の物件(該当)
南向き(非該当)
駐車場あり(該当)
オートロック(非該当)
エアコン(非該当)
バス・トイレ別(非該当)
追焚機能(非該当)
フローリング(非該当)
ペット相談(非該当)
入居条件
即入居可キッチン/バス・トイレ
バスなし、トイレなし設備・サービス
インターネット対応、公営水道、都市ガス、駐車場あり、駐輪場ありその他
住まい探し特典あり備考
ランドリーは無料・コインシャワーあり・銭湯にも歩いて約2分。安さが大事。そんな方におススメです。 京都の賃貸ならアパマンショップ京都、西院店へお任せ下さい。
物件周辺の生活情報
買い物
- コンビニ(64m)
- スーパー(350m)
- ドラッグストア(38m)
その他施設
- 総合病院(550m)
- 銀行(1,100m)
- 京都太秦朱雀郵便局(140m)
交通
- 京都地下鉄東西線 太秦天神川駅 徒歩10分
- 普通(停車)
- JR山陰本線 太秦駅 徒歩13分
- 普通(停車)
- 快速とっとりライナー(通過)
- 快速通勤ライナー(通過)
- 快速(通過)
※急行等の停車駅情報について
急行等の停車駅に関するデータは、随時更新をしておりますが、最新の内容であることを保証するものではありません。
最新かつ正確な情報につきましては、各鉄道会社のウェブサイトにてご確認ください
物件周辺の口コミ
- 京都府京都市右京区西院西貝川町に住む人の口コミ30代女性
子育て環境を考えると、公園や遊具、スーパーや病院など充実していて交通の便も比較的良く満足している。が、盆地のため夏は暑く冬は寒いのがマイナスポイント。
口コミを見る
この物件周辺に住む人の口コミ
口コミは、LIFULL HOME'Sが実際にこの物件の周辺に住む18歳~69歳の男女を対象に、WEBアンケート調査を実施しています。内容には回答者の主観的な表現が含まれる場合があるほか、事実と異なる場合もございます。ご了承ください。
- 京都府京都市右京区西院西貝川町に住む人の口コミ30代女性
- 子育て環境を考えると、公園や遊具、スーパーや病院など充実していて交通の便も比較的良く満足している。が、盆地のため夏は暑く冬は寒いのがマイナスポイント。
- 京都府京都市右京区太秦奥殿町に住む人の口コミ20代女性
- 都会過ぎず田舎過ぎず古きよき商店街があり、スーパーやコンビニ、病院も全て徒歩圏にあり、地下鉄、JR、京福電車等あり生活しやすい。ただ、お店等に駐車場が少なく車での移動はしづらい時がある。
- 京都府京都市右京区西院西貝川町に住む人の口コミ20代女性
- 立地もよくほぼ満足、もう少し電車がエキチカだといいなと。最寄り駅と言われてる駅は最寄りになっておらず徒歩15?20分かかる、せめて5分位だと楽。バスは始発駅で楽だけど、京都の市バスは時間がズレやすい。
- 京都府京都市右京区山ノ内苗町に住む人の口コミ30代女性
- 生活する上で徒歩圏内にある程度揃ってるので、特に不便もないため
- 京都府京都市右京区梅津東構口町に住む人の口コミ30代女性
- 昼間は程よく人気があり、夜になると静かになる。ただ少し静かすぎて物騒に思うこともある。バスが多く通っているので、駅が遠くても便利である。
- 京都府京都市右京区太秦多藪町に住む人の口コミ30代女性
- 近くに小中学校があるので、ファミリー世帯は住みやすい環境にあると思う
- 京都府京都市右京区太秦棚森町に住む人の口コミ20代女性
- 住宅街が密集しているのでいつでも誰かの目がありあまり落ち着かない。がファミリーが多い街なので安心して外に出かけられる。
- 京都府京都市右京区太秦桂木町に住む人の口コミ20代女性
- 交通機関が発達しているので、京都駅にも河原町にも大阪にもどこにでも行きやすい。
- 京都府京都市右京区山ノ内苗町に住む人の口コミ30代女性
- 日常生活に必要な施設は一通り揃っているので家具家電等も直ぐに買えますし、徒歩圏内で完結出来るところ。
- 京都府京都市右京区太秦野元町に住む人の口コミ20代女性
- 子育てする環境がとても良い。役所も近いし綺麗な公園や児童館でも交流しやすい。病院も近いから何かあっても安心出来る。
物件概要
- 建物構造
- 木造
- 駐車場
- 空有 11,000円(税込)
- 総戸数
- 19戸
- 契約形態
- -
- 契約期間
- 2年間
- 更新料
- 新賃料の1ヶ月分
- その他費用
- -
- 保証会社
- -
- 住宅保険
- 要
- 管理
- -
- LIFULL HOME'S
物件番号 - 0113627-0082985
- 自社管理番号
- 85480-17
- 取引態様
- 仲介
- 会社名
- ウインズリンク株式会社 アパマンショップ西院店
営業スタッフコメント

ウインズリンク株式会社 アパマンショップ西院店 営業
宮地聡太郎
誠実な応対を心掛けます。
業界経験2年
資格少額短期保険募集人
- 会社実績や特徴・サービス情報
- 2018年度アパマンショップ全国ランキング 契約数第一位。(4人店舗) アパマンショップ西院店の掲載物件をご覧いただき、ありがとう御座います。 当店は右京区・中京区・下京区・西京区を中心に阪急沿線、地下鉄沿線、JR沿線と 京都市内全域の物件を取り扱い、幅広い物件のご提案・ご紹介が可能です。 社会人様・カップル様・ファミリー様をはじめ、京都外国語大学・立命館大学・ 京都先端科学大学・大和学園などの学生様・留学生様まで当店のスタッフが 貴方のお部屋探しに最大限、尽力させていただきます。 ちょっとしたご相談や1件の見学からでもお気軽にお問い合わせ下さいませ。
2018年度アパマンショップ全国ランキング 契約数第一位。(4人店舗) アパマンショップ西院店の掲載物件をご覧いただき、ありがとう御座います。 当店は右京区・中京区・下京区・西京区を中心に阪急沿線、地下鉄沿線、JR沿線と 京都市内全域の物件を取り扱い、幅広い物件のご提案・ご紹介が可能です。 社会人様・カップル様・ファミリー様をはじめ、京都外国語大学・立命館大学・ 京都先端科学大学・大和学園などの学生様・留学生様まで当店のスタッフが 貴方のお部屋探しに最大限、尽力させていただきます。 ちょっとしたご相談や1件の見学からでもお気軽にお問い合わせ下さいませ。
- 電話でお問合せ(通話無料)
お問合せ先 :ウインズリンク株式会社 アパマンショップ西院店
不動産会社情報
ウインズリンク株式会社 アパマンショップ西院店 アパマンショップ西院店

京都府京都市右京区西院巽町41
阪急京都本線 西院駅 徒歩1分
- 営業時間
- 09:30~19:00
- 定休日
- なし(盆休み8/13〜8/16・年末年始12/27〜1/4)
優良店認定
右京区・中京区を中心に市内全域ご対応可能。シャーメゾンSHOPであり他社様では取り扱えない物件も多数あり、ご厚意にして頂いている家主様も多く様々なご相談が可能。お部屋探しは当店へお気軽にご相談下さい。
- 店舗の特徴
- 賃貸管理業務
- リフォーム対応
- 引越し業者紹介可
- 年中無休
- 保証人不要な物件あり
- 法人契約取扱い
- 女性スタッフ対応可
- 駅から歩いて3分以内
電話でお問合せお客様の電話番号は不動産会社には通知されません
- 不動産会社に
つながります
お客様の電話番号は不動産会社に通知されません
- ※光IP電話、及びIP電話からはご利用になれません
- ※お電話によるお問合せは、店舗営業時間内にお願いします。つながらない場合は、お問合せフォームよりお問合せください
- ※不動産会社がお電話に出られなかった場合、お問合せいただいた後に不動産会社より折り返しのお電話がある場合がございます(お客様が非通知設定した場合は対象外です)
- ※株式会社LIFULLは電話会社が提供するサービスを介してお客様の発信者番号を受領後、折り返し専用の電話番号を発番してお問合せの不動産会社に通知します(お客様の発信者番号がお問合せの不動産会社に通知されることはございません)
- ※携帯電話からお問合せいただいた方に対し、株式会社LIFULLは電話会社が提供するメッセ―ジサービスを介してお客様の発信者番号を受領後、ショートメッセージ(SMS)またはLINE通知メッセージによるお問合せ内容に関する通知をお届けする場合があります
- ※お客様が通話中に不動産会社にお伝えになったお客様の個人情報及び、電話会社が発番する折り返し専用の電話番号は、お問合せ先不動産会社が資料送付・電子メール送信・電話連絡などの目的で保管する可能性があります。お問合せ先不動産会社が保管する個人情報の取扱いについては、各不動産会社に直接お問合せください
- ※株式会社LIFULLでは本サービスを円滑に運用するために、お客様の発信者番号をサービスご利用の控えとして一定期間保管いたします
- ※上記および株式会社LIFULLの個人情報の取扱い方針に同意のうえ、お電話ください
【LIFULL HOME'S物件番号】0113627-0082985【自社管理番号】85480-17
初期費用・月額費用をあわせて確認!この物件に住んだときの費用めやす
めやすを見るこの物件に住んだときの費用めやす
- 初期費用
- 月額費用
- 追加費用※ご確認ください
追加で費用が
かかる場合があります
必ずご確認ください
初期費用めやす約0円
追加で費用がかかります(※)敷金
20,000
- 礼金
0
賃料+共益費・管理費の1ヶ月分として換算
賃料の1ヶ月分+税として換算。不動産会社によって金額が異なるため正確な金額は不動産会社にお問合せください
※追加費用もチェック!
これらの項目以外にも費用がかかる場合があります。正確な金額は不動産会社にお問合せください。
- 初期費用
- 鍵交換費:不動産会社に要確認
- 室内清掃費:不動産会社に要確認
- 火災保険費:不動産会社に要確認
- 月額費用
- 駐車場費:11,000円(税込)※契約任意
- 保証会社
- 不動産会社に要確認
不動産会社より
水道代無料です。 最寄りの駅が地下鉄の始発駅。近くには右京区役所もあります
ランドリーは無料・コインシャワーあり・銭湯にも歩いて約2分。安さが大事。そんな方におススメです。 京都の賃貸ならアパマンショップ京都、西院店へお任せ下さい。
- 保存する
- 共有する
- ※各種情報と現状に差異がある場合は、現状優先となります
- ※不動産会社が入力した情報を基に物件の位置を表示しています。詳しくは不動産会社までお問合せください
- ※不動産会社の方からの上記電話番号によるお問合せはお断りしております。こちら不動産会社詳細からお問合せください
- ※LIFULL HOME'Sは物件鮮度No.1を目指していきます。閲覧中の物件が「成約済である」「実際の物件情報と異なる点がある」などの場合、「掲載110番」からお問合せください
- ※QRコードは株式会社デンソーウェーブの登録商標です
したい暮らしのタグから探す
最近見た賃貸物件
LIFULL HOME'S 地図・周辺情報
買い物
- ファミリーマート 太秦小学校前店
- フレスコ 太秦店
- サンドラッグ太秦店
- ローソン 太秦荒木町店
- サンディ太秦天神川店
グルメ
- 天下一品太秦店
- CoCo壱番屋 右京梅津段町店
- すき家 四条梅津店
- なか卯 三条帷子ノ辻店
- マクドナルド 太秦ライフ店
育児・教育
- 聖徳保育園
- 京都市立太秦小学校
- 京都市立太秦中学校
- 太秦保育園分園さくら
- 京都市立南太秦小学校
医療
- 公益社団法人京都保健会京都民医連中央病院
- 社会医療法人太秦病院
- 医療法人河端病院
- 医療法人新生十全会京都ならびがおか病院
- (財)泉谷病院
公共施設・郵便局
- 京都太秦朱雀郵便局
- 京都市右京中央図書館
- 右京警察署
- 京都太秦一ノ井郵便局
- 京都市中央図書館
公園
- 西院公園
- 土堂公園
- 広沢池公園
- 東大丸公園
- 嵐山モンキーパークいわたやま
利用可能な駅
- 徒歩10分以内
京福電気鉄道嵐山本線
- 太秦広隆寺駅徒歩7分
- 嵐電天神川駅徒歩10分
- 蚕ノ社駅徒歩10分
京都地下鉄東西線
- 太秦天神川駅徒歩10分
- すべての駅
JR山陰本線
- 太秦駅徒歩13分
- 花園駅徒歩20分
- 円町駅徒歩37分
- 嵯峨嵐山駅3.2km
京福電気鉄道北野線
- 撮影所前駅徒歩13分
- 常盤駅徒歩20分
- 鳴滝駅徒歩23分
- 宇多野駅徒歩29分
- 御室仁和寺駅徒歩30分
- 妙心寺駅徒歩32分
- 龍安寺駅徒歩36分
- 等持院・立命館大学衣笠キャンパス前駅3.2km
京福電気鉄道嵐山本線
- 帷子ノ辻駅徒歩15分
- 山ノ内駅徒歩19分
- 有栖川駅徒歩22分
- 車折神社駅徒歩29分
- 西大路三条駅徒歩30分
- 鹿王院駅徒歩32分
- 嵐電嵯峨駅3.1km
- 西院駅3.1km
京都地下鉄東西線
- 西大路御池駅徒歩29分
阪急嵐山線
- 松尾大社駅徒歩34分
- 上桂駅3.1km
- 嵐山駅3.9km
阪急京都本線
- 西院駅徒歩36分
- 西京極駅徒歩36分
- 周辺情報は2023年07月21日時点のものになります。
- 周辺情報は、参考情報としてのみご利用ください(周辺情報は、株式会社LIFULLが地図情報の提供事業者から提供を受けた情報とLIFULL HOME'Sの物件情報に基づき、独自の方法で抽出し提供しているものです。周辺情報は、移転や閉鎖等により情報が最新ではない、または正しくない場合がありますが、地図情報の提供事業者から提供された情報をそのまま周辺情報として表示しているため、正確かつ最新の情報へ修正することができないことがあります。)
- 周辺情報は、株式会社LIFULLが掲載するものであり、不動産物件情報を掲載している不動産会社が掲載するものではありません
- 交通情報の一部については、株式会社LIFULLが掲載するものであり、不動産物件情報を掲載している不動産会社が掲載するものではない場合があります。交通情報に関する質問などは株式会社LIFULLにお問合せください










































