LIFULL HOME'Sは物件鮮度No.1!※評価について
京都市営烏丸線 四条駅 徒歩8分(3LDK/69.68㎡)
京都市営烏丸線 四条駅 徒歩8分(3LDK/69.68㎡)
15.5万円/管理費等9,000円
20時間前 更新
画像一覧
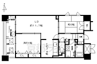
1/30間取り
間取
2/30外観
3/30外観
4/30リビング/ダイニング
5/30リビング/ダイニング
6/30リビング/ダイニング
7/30リビング/ダイニング
8/30リビング/ダイニング
9/30リビング/ダイニング
10/30リビング/ダイニング
11/30リビング/ダイニング
12/30リビング/ダイニング
13/30室内
14/30キッチン
15/30キッチン
16/30キッチン
17/30キッチン
18/30浴室
19/30浴室
20/30トイレ
21/30洗面
22/30収納
23/30収納
24/30収納
25/30設備
26/30設備
27/30設備
28/30玄関
29/30バルコニー
30/30周辺
ファミリーマートまで131m
間取り
外観
外観
リビング/ダイニング
リビング/ダイニング
リビング/ダイニング
リビング/ダイニング
リビング/ダイニング
リビング/ダイニング
リビング/ダイニング
リビング/ダイニング
リビング/ダイニング
室内
キッチン
キッチン
キッチン
キッチン
浴室
浴室
トイレ
洗面
収納
収納
収納
設備
設備
設備
玄関
バルコニー
周辺
仲介手数料割引
当店の仲介手数料は家賃の50%(外税)になります。(居住用物件に限ります)
- 利用条件
- アパマンショップ今出川店 ウインズリンク株式会社で利用可
- 他特典との併用可
利用方法
来店時に本特典の画面をスマートフォンやタブレットでスタッフに提示、または画面印刷した用紙を提示ください。
有効期限 2026年11月14日まで
とくゆうちん 更新料・仲介手数料不要。特優賃。資格審査基準はお問い合わせを
基本情報
不動産用語- 賃料
- 15.5万円
- 管理費等
- 9,000円
初期費用などお気軽にお問合せください
- 敷金/礼金
- 無/15.5万円
- 保証金/敷引・償却金
- -/-
- 交通
京都市営烏丸線 四条駅 徒歩8分
阪急京都本線 烏丸駅 徒歩9分
- 所在地
京都府京都市下京区油小路通四条下ル石井筒町
地図を見る- 築年月
- 2004年12月(築22年)
- 主要採光面
- 東
- 専有面積
- 69.68㎡
- バルコニー面積
- -
- 所在階/階数
- 3階/10階建
見学可能な物件です。希望日時を予約できます(無料)
- 現況
- 空家
- 入居可能時期
- 即時

人気物件はすぐに埋まってしまいます。
気になったらお早めにお問合せください。
- 情報公開日
2025/06/12
185日前 公開
- 情報更新日
2025/12/13
20時間前 更新
- 次回更新
予定日 - 2025/12/26
物件のこだわり/設備・条件
新築(非該当)
2階以上の物件(該当)
南向き(非該当)
駐車場あり(該当)
オートロック(非該当)
エアコン(非該当)
バス・トイレ別(該当)
追焚機能(該当)
フローリング(該当)
ペット相談(非該当)
位置
角部屋入居条件
二人入居可、保証人不要、即入居可キッチン/バス・トイレ
設備・サービス
TVモニタ付インターホン、シューズボックス、CATV、光ファイバー、公営水道、都市ガス、下水、フローリング、バルコニー、室内洗濯機置場、エレベーター、宅配ボックス、駐車場あり、駐輪場ありその他
住まい探し特典あり備考
京都市住宅供給公社の物件。更新料・仲介手数料不要。資格審査基準はスタッフまでお問い合わせ下さい。京都市ファミリー物件、とくゆうちん選びはアパマンショップにお任せくださいね
物件周辺の生活情報
買い物
- コンビニ(131m)
- スーパー(153m)
その他施設
- 総合病院(105m)
交通
- 京都市営烏丸線 四条駅 徒歩8分
- 普通(停車)
- 急行(停車)
- 阪急京都本線 烏丸駅 徒歩9分
- 普通(停車)
- 準急(停車)
- 堺筋準急(停車)
- 通勤特急(停車)
- 特急(停車)
- 急行(停車)
- 準特急(停車)
※急行等の停車駅情報について
急行等の停車駅に関するデータは、随時更新をしておりますが、最新の内容であることを保証するものではありません。
最新かつ正確な情報につきましては、各鉄道会社のウェブサイトにてご確認ください
物件周辺の口コミ
- 京都府京都市中京区油小路通四条上る東入に住む人の口コミ60代男性
日常生活を送っていくにあたって、何の不便も感じたことがないから
口コミを見る
この物件周辺に住む人の口コミ
口コミは、LIFULL HOME'Sが実際にこの物件の周辺に住む18歳~69歳の男女を対象に、WEBアンケート調査を実施しています。内容には回答者の主観的な表現が含まれる場合があるほか、事実と異なる場合もございます。ご了承ください。
- 京都府京都市中京区油小路通四条上る東入に住む人の口コミ60代男性
- 日常生活を送っていくにあたって、何の不便も感じたことがないから
- 京都府京都市下京区新町通松原下るに住む人の口コミ50代男性
- 町中なので自然は少ないかもしれませんが それ以外では何も不便 不満 もありません。
- 京都府京都市下京区堀川通綾小路上るに住む人の口コミ50代女性
- 交通機関が整っている。医院や病院がすぐ近くにある。スーパーやデパートに近い。
- 京都府京都市中京区三条通小川東入に住む人の口コミ40代男性
- 歴史ある街並み、神社仏閣があり、生活面でもすべて揃って便利である。
- 京都府京都市下京区東中筋通松原上る東入に住む人の口コミ30代女性
- 周りは同じ年代のファミリー層が住んでいるので、お互い助け合いながら住んでいる
- 京都府京都市下京区松原通油小路東入に住む人の口コミ30代女性
- 治安がよく、遅くまで仕事をしても、複数の交通機関が使用できる。
- 京都府京都市中京区衣棚通御池上るに住む人の口コミ30代女性
- 暮らしやすいが立地が良いため家賃が高い。家賃以外は満足しています。
- 京都府京都市中京区岩上通三条上るに住む人の口コミ60代女性
- 二条城が近くにあり、散歩には最高! 三条商店街は凄く活気があり、若者にも地元の生活者にもとってもありがたい存在、正に奇跡の商店街です。
- 京都府京都市下京区西洞院通松原下るに住む人の口コミ40代男性
- ビジネス街や繁華街に徒歩10分で行けるにも関わらず、住居エリアは静か。近くに何でもあって利便性が高い。30分ほど地下鉄にのれば自然豊かな場所に行ける。
物件概要
- 建物構造
- RC(鉄筋コンクリート)
- 駐車場
- 空有 24,200円(税込) 駐車料金:24200円〜29700円
- 総戸数
- 24戸
- 契約形態
- -
- 契約期間
- 1年間
- 更新料
- 15,000円
- その他費用
- 鍵交換費用:22,000円、室内清掃費用:55,000円、入居者サポート:1,100円
- 保証会社
加入要
保証会社:エポス
保証会社利用料:初回:月額賃料等の60%、月額:保証料として月額賃料等の1%
- 住宅保険
- 要
- 管理
- 管理員:巡回
- LIFULL HOME'S
物件番号 - 0113628-0249533
- 自社管理番号
- 08867-303-66
- 取引態様
- 仲介
- 会社名
- アパマンショップ今出川店 ウインズリンク株式会社
営業スタッフコメント

アパマンショップ今出川店 ウインズリンク株式会社営業
河崎圭汰
ありがとうの言葉を大切にしています。
業界経験1年
資格少額短期保険募集人
- 会社実績や特徴・サービス情報
- アパマンショップ今出川店は、地下鉄 今出川駅 4番出口より北へ徒歩1分のところにあります。店舗の目の前には同志社大学(今出川キャンパス)があります。毎年同志社大学、同志社女子大学生さんのお部屋探しをサポートさせていただいています。ファミリーの方に好まれる室町小学校、新町小学校、西陣小学、御所南小学校等の校区の賃貸物件も紹介させていただきます。地下鉄鞍馬口駅、今出川駅、丸太町駅等、通勤のためお部屋を探される方もサポートもさせていただきます。ぜひ信頼のアパマンブランド、アパマンショップ今出川店にご来店ください
アパマンショップ今出川店は、地下鉄 今出川駅 4番出口より北へ徒歩1分のところにあります。店舗の目の前には同志社大学(今出川キャンパス)があります。毎年同志社大学、同志社女子大学生さんのお部屋探しをサポートさせていただいています。ファミリーの方に好まれる室町小学校、新町小学校、西陣小学、御所南小学校等の校区の賃貸物件も紹介させていただきます。地下鉄鞍馬口駅、今出川駅、丸太町駅等、通勤のためお部屋を探される方もサポートもさせていただきます。ぜひ信頼のアパマンブランド、アパマンショップ今出川店にご来店ください
- 電話でお問合せ(通話無料)
お問合せ先 :アパマンショップ今出川店 ウインズリンク株式会社
不動産会社情報
アパマンショップ今出川店 ウインズリンク株式会社アパマンショップ今出川店
京都府京都市上京区烏丸通今出川上る岡松町272 クローバービル1階
京都市営烏丸線 今出川駅 徒歩1分
- 営業時間
- 09:30~19:00
- 定休日
- なし(盆休み8/13〜8/16・年末年始12/27〜1/4)
京都市上京区・中京区・北区・左京区・右京区等、地下鉄烏丸線今出川・鞍馬口・丸太町駅等地下鉄沿線、同志社大学・京都大学・立命館大学等でのお部屋探しはアパマンショップ今出川店にお任せ下さい!
- 店舗の特徴
- 賃貸管理業務
- 24時間管理物件取扱い
- リフォーム対応
- 引越し業者紹介可
- 年中無休
- 保証人不要な物件あり
- 法人契約取扱い
- 女性スタッフ対応可
- 駅から歩いて3分以内
電話でお問合せお客様の電話番号は不動産会社には通知されません
- 不動産会社に
つながります
お客様の電話番号は不動産会社に通知されません
- ※光IP電話、及びIP電話からはご利用になれません
- ※お電話によるお問合せは、店舗営業時間内にお願いします。つながらない場合は、お問合せフォームよりお問合せください
- ※不動産会社がお電話に出られなかった場合、お問合せいただいた後に不動産会社より折り返しのお電話がある場合がございます(お客様が非通知設定した場合は対象外です)
- ※株式会社LIFULLは電話会社が提供するサービスを介してお客様の発信者番号を受領後、折り返し専用の電話番号を発番してお問合せの不動産会社に通知します(お客様の発信者番号がお問合せの不動産会社に通知されることはございません)
- ※携帯電話からお問合せいただいた方に対し、株式会社LIFULLは電話会社が提供するメッセ―ジサービスを介してお客様の発信者番号を受領後、ショートメッセージ(SMS)またはLINE通知メッセージによるお問合せ内容に関する通知をお届けする場合があります
- ※お客様が通話中に不動産会社にお伝えになったお客様の個人情報及び、電話会社が発番する折り返し専用の電話番号は、お問合せ先不動産会社が資料送付・電子メール送信・電話連絡などの目的で保管する可能性があります。お問合せ先不動産会社が保管する個人情報の取扱いについては、各不動産会社に直接お問合せください
- ※株式会社LIFULLでは本サービスを円滑に運用するために、お客様の発信者番号をサービスご利用の控えとして一定期間保管いたします
- ※上記および株式会社LIFULLの個人情報の取扱い方針に同意のうえ、お電話ください
【LIFULL HOME'S物件番号】0113628-0249533【自社管理番号】08867-303-66
初期費用・月額費用をあわせて確認!この物件に住んだときの費用めやす
めやすを見るこの物件に住んだときの費用めやす
- 初期費用
- 月額費用
- 追加費用※ご確認ください
追加で費用が
かかる場合があります
必ずご確認ください
初期費用めやす約0円
追加で費用がかかります(※)敷金
0
- 礼金
155,000
賃料+共益費・管理費の1ヶ月分として換算
賃料の1ヶ月分+税として換算。不動産会社によって金額が異なるため正確な金額は不動産会社にお問合せください
※追加費用もチェック!
これらの項目以外にも費用がかかる場合があります。正確な金額は不動産会社にお問合せください。
- 初期費用
- 鍵交換費:22,000円
- 室内清掃費:55,000円
- 火災保険費:不動産会社に要確認
- 月額費用
- 駐車場費:24,200円(税込)※契約任意
- その他
- 入居者サポート:1100円
- 保証会社
- 初回:月額賃料等の60%、月額:保証料として月額賃料等の1%
不動産会社より
とくゆうちん 更新料・仲介手数料不要。特優賃。資格審査基準はお問い合わせを
京都市住宅供給公社の物件。更新料・仲介手数料不要。資格審査基準はスタッフまでお問い合わせ下さい。京都市ファミリー物件、とくゆうちん選びはアパマンショップにお任せくださいね
- 保存する
- 共有する
- ※各種情報と現状に差異がある場合は、現状優先となります
- ※不動産会社が入力した情報を基に物件の位置を表示しています。詳しくは不動産会社までお問合せください
- ※不動産会社の方からの上記電話番号によるお問合せはお断りしております。こちら不動産会社詳細からお問合せください
- ※LIFULL HOME'Sは物件鮮度No.1を目指していきます。閲覧中の物件が「成約済である」「実際の物件情報と異なる点がある」などの場合、「掲載110番」からお問合せください
- ※QRコードは株式会社デンソーウェーブの登録商標です
LIFULL HOME'S 地図・周辺情報
買い物
- ファミリーマート 四条西洞院店
- ライフ 四条烏丸店
- ドラッグひかり四条堀川店
- ファミリーマート 堀川綾小路店
- フレスコ 四条店
グルメ
- タリーズコーヒー京都四条烏丸店
- まいどおおきに食堂 四条西洞院食堂
- やよい軒 四条烏丸店
- すき家 四条堀川店
- タリーズコーヒー四条大宮店
育児・教育
- 池坊保育園
- 京都市立下京雅小学校
- 京都市立下京中学校成徳学舎
- 光林保育園
- 京都市立洛中小学校
医療
- 山元病院
- 医療法人知音会京都新町病院
- 医療法人毛利病院
- 医療法人財団足立病院
- 医療法人令寿会しまばら病院
公共施設・郵便局
- 京都西洞院綾小路郵便局
- 京都市下京図書館
- 京都府下京警察署
- 京都堀川仏光寺郵便局
- 京都市こどもみらい館子育て図書館
公園
- 光徳公園
- 梅屋広場公園
- 梅小路公園
- 梅小路公園
- 京都御苑
利用可能な駅
- 徒歩10分以内
京都市営烏丸線
- 四条駅徒歩8分
阪急京都本線
- 烏丸駅徒歩9分
- 周辺情報は2023年07月21日時点のものになります。
- 周辺情報は、参考情報としてのみご利用ください(周辺情報は、株式会社LIFULLが地図情報の提供事業者から提供を受けた情報とLIFULL HOME'Sの物件情報に基づき、独自の方法で抽出し提供しているものです。周辺情報は、移転や閉鎖等により情報が最新ではない、または正しくない場合がありますが、地図情報の提供事業者から提供された情報をそのまま周辺情報として表示しているため、正確かつ最新の情報へ修正することができないことがあります。)
- 周辺情報は、株式会社LIFULLが掲載するものであり、不動産物件情報を掲載している不動産会社が掲載するものではありません
- 交通情報の一部については、株式会社LIFULLが掲載するものであり、不動産物件情報を掲載している不動産会社が掲載するものではない場合があります。交通情報に関する質問などは株式会社LIFULLにお問合せください










