LIFULL HOME'Sは物件鮮度No.1!※評価について
京都市営烏丸線 四条駅 徒歩8分
14.5万円/管理費等9,000円
1日前 更新
画像一覧
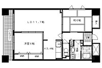
1/30間取り
間取
2/30外観
3/30外観
4/30リビング/ダイニング
5/30リビング/ダイニング
6/30リビング/ダイニング
7/30リビング/ダイニング
8/30リビング/ダイニング
9/30リビング/ダイニング
10/30リビング/ダイニング
11/30リビング/ダイニング
12/30キッチン
13/30キッチン
14/30キッチン
15/30浴室
16/30浴室
17/30トイレ
18/30洗面
19/30洗面
20/30収納
21/30収納
22/30収納
23/30収納
24/30設備
25/30設備
26/30玄関
27/30バルコニー
28/30その他
29/30その他
30/30周辺
フレスコ四条店まで128m 四条通に面した24時間のスーパー
間取り
外観
外観
リビング/ダイニング
リビング/ダイニング
リビング/ダイニング
リビング/ダイニング
リビング/ダイニング
リビング/ダイニング
リビング/ダイニング
リビング/ダイニング
キッチン
キッチン
キッチン
浴室
浴室
トイレ
洗面
洗面
収納
収納
収納
収納
設備
設備
玄関
バルコニー
その他
その他
周辺
仲介手数料割引
ご成約時、仲介手数料は賃料50%(外税)です。
- 利用条件
- 株式会社京都ライフ 二条駅前店で利用可
- 他特典との併用可
- ・法人契約、事業用物件は除きます。 ・積水ハウス、大東建託の管理物件は除きます。
利用方法
来店時に本特典の画面をスマートフォンやタブレットでスタッフに提示、または画面印刷した用紙を提示ください。
有効期限 2026年07月23日まで
ファミリー賃貸。 地下鉄四条駅まで徒歩8分のファミリーマンションです。阪急、地下鉄のダブルアクセス。
物件のこだわり/設備・条件
新築(非該当)
2階以上の物件(該当)
南向き(非該当)
駐車場(非該当)
オートロック(非該当)
エアコン(非該当)
バス・トイレ別(該当)
追焚機能(非該当)
フローリング(該当)
ペット相談(非該当)
位置
角部屋入居条件
二人入居可、保証人不要、即入居可キッチン/バス・トイレ
設備・サービス
TVモニタ付インターホン、シューズボックス、CATV、BS対応、光ファイバー、公営水道、都市ガス、下水、フローリング、バルコニー、室内洗濯機置場、エレベーター、宅配ボックス、駐輪場ありその他
住まい探し特典あり備考
敷金ナシです。嬉しい3点セパレートなど充実の設備。TVホンでセキュリティも安心です。コンビニ、スーパーなど近くにあって便利ですよ。光ファイバー対応しています。 物件情報はもちろん京都のエリア情報まで幅広く対応させていただきます!
物件周辺の生活情報
学校
- 洛央小学校(748m)
- 下京中学校(928m)
買い物
- コンビニ(239m)
- スーパー(128m)
その他施設
- 総合病院(1,700m)
- 銀行(135m)
- 京都西洞院綾小路郵便局(166m)
交通
- 京都市営烏丸線 四条駅 徒歩8分
- 普通(停車)
- 急行(停車)
- 阪急京都本線 大宮駅 徒歩6分
- 普通(停車)
- 準急(停車)
- 堺筋準急(停車)
- 通勤特急(停車)
- 特急(通過)
- 急行(停車)
- 準特急(停車)
※急行等の停車駅情報について
急行等の停車駅に関するデータは、随時更新をしておりますが、最新の内容であることを保証するものではありません。
最新かつ正確な情報につきましては、各鉄道会社のウェブサイトにてご確認ください
物件周辺の口コミ
- 京都府京都市下京区西洞院通高辻下るに住む人の口コミ40代女性
建物の高さ規制があるため圧迫感がない街だと思う。中心地を少し離れただけでとても静かで住みやすいしなんでも手に入る。治安も良いと思う
口コミを見る
この物件周辺に住む人の口コミ
口コミは、LIFULL HOME'Sが実際にこの物件の周辺に住む18歳~69歳の男女を対象に、WEBアンケート調査を実施しています。内容には回答者の主観的な表現が含まれる場合があるほか、事実と異なる場合もございます。ご了承ください。
- 京都府京都市下京区西洞院通高辻下るに住む人の口コミ40代女性
- 建物の高さ規制があるため圧迫感がない街だと思う。中心地を少し離れただけでとても静かで住みやすいしなんでも手に入る。治安も良いと思う
- 京都府京都市中京区衣棚通二条下るに住む人の口コミ60代女性
- 歴史のある町なので、歴史の残る街並みで、歩いていても多くの発見があり、楽しい。交通も便利。繁華街にもすぐに行けるし、鴨川や御所など落ち着く場所も近くにある。買い物も便利。
- 京都府京都市中京区壬生馬場町に住む人の口コミ30代女性
- 都会でも田舎でもなく、車がなくても十分生活できる範囲にいろいろなものがあるから。とても便利。
- 京都府京都市中京区三条通大宮西入上るに住む人の口コミ50代女性
- 商店街で便利だし、商店街にアーケードがあるので、雨の日でも大丈夫だからです。
- 京都府京都市中京区壬生下溝町に住む人の口コミ30代男性
- 病院やスーパーが近くにあって便利。自然がもっと身近にあるともっと良い。
- 京都府京都市中京区西ノ京池ノ内町に住む人の口コミ50代男性
- 日常生活を送るのに、取り立てて不便に感じることもなく、たまの遠出が必要な程度であるため。繁華街から適度に離れているため、不特定多数の人が町内を歩くことは少ない。
- 京都府京都市中京区堀川通錦小路下るに住む人の口コミ40代男性
- 交通の利便性がよく、買い物もしやすい。公園など子供の遊び場が少ないのがマイナス
- 京都府京都市下京区西洞院通六条下るに住む人の口コミ40代男性
- 交通網が発達している。他府県への移動がしやすく、終電も遅くまであり便利。
- 京都府京都市下京区西洞院通松原下るに住む人の口コミ40代男性
- ビジネス街や繁華街に徒歩10分で行けるにも関わらず、住居エリアは静か。近くに何でもあって利便性が高い。30分ほど地下鉄にのれば自然豊かな場所に行ける。
- 京都府京都市中京区壬生坊城町に住む人の口コミ40代女性
- 近くに商店街があり、ちょっと頑張って歩いたら神社やお寺の観光もできるから
物件概要
- 建物構造
- RC(鉄筋コンクリート)
- 駐車場
- 近隣 35,000円(税無) 物件からの距離250m
- 総戸数
- 24戸
- 契約形態
- -
- 契約期間
- 1年間
- 更新料
- 15,000円
- その他費用
- 鍵交換費用:22,000円、室内清掃費用:55,000円、LIFE SUPPORT:1,100円
- 保証会社
加入要
保証会社:エポスカード
保証会社利用料:初回:月額賃料等の60%、月額:保証料として月額賃料等の1%
- 住宅保険
- 要
- 管理
- 管理員:巡回
- LIFULL HOME'S
物件番号 - 0142941-0176330
- 自社管理番号
- 09253-702-27
- 取引態様
- 仲介
- 会社名
- 株式会社京都ライフ 二条駅前店
営業スタッフコメント

株式会社京都ライフ 二条駅前店
酒井栞
素晴らしいお部屋に出会えるまで全力でサポート致します!
業界経験2年
資格少額短期保険募集人
- 会社実績や特徴・サービス情報
- 京都市内部屋付け数3年連続1位。(株式会社全国賃貸住宅新聞調べ) 当店はJR山陰線、地下鉄東西線の二条駅から3分に立地し、通勤・通学のアクセスの良さ、近隣施設の充実から近年住みたい街と言われる二条駅すぐの所に店舗を構えております。 各エリア専門のスタッフが揃っておりますので、二条駅周辺だけでなく、京都市全域、向日市・長岡京市・宇治市など幅広くご紹介させて頂きます。 社会人のご単身・ファミリー様をはじめ、先端科学大学・同志社大学・立命館大学・京都大学など大学生のお部屋探しも全力でサポートさせて頂きます。 創業40年、地域密着に拘らせて頂いた京都最大級の物件情報をもとに、 誠心誠意、ご満足頂けるお部屋をご紹介させて頂きます。 お部屋を探しは京都ライフ 二条駅前店へ、お気軽にお立ち寄りください
京都市内部屋付け数3年連続1位。(株式会社全国賃貸住宅新聞調べ) 当店はJR山陰線、地下鉄東西線の二条駅から3分に立地し、通勤・通学のアクセスの良さ、近隣施設の充実から近年住みたい街と言われる二条駅すぐの所に店舗を構えております。 各エリア専門のスタッフが揃っておりますので、二条駅周辺だけでなく、京都市全域、向日市・長岡京市・宇治市など幅広くご紹介させて頂きます。 社会人のご単身・ファミリー様をはじめ、先端科学大学・同志社大学・立命館大学・京都大学など大学生のお部屋探しも全力でサポートさせて頂きます。 創業40年、地域密着に拘らせて頂いた京都最大級の物件情報をもとに、 誠心誠意、ご満足頂けるお部屋をご紹介させて頂きます。 お部屋を探しは京都ライフ 二条駅前店へ、お気軽にお立ち寄りください
- 電話でお問合せ(通話無料)
お問合せ先 :株式会社京都ライフ 二条駅前店
不動産会社情報
株式会社京都ライフ 二条駅前店
京都府京都市中京区西ノ京職司町72 ウエストフィールド1階
京都地下鉄東西線 二条駅 徒歩3分
- 営業時間
- 09:30~19:00
- 定休日
- 年中無休(盆正月を除く)
JR、地下鉄とアクセスの良さで人気の二条エリアはもちろん、京都中心地エリア、大宮エリア、西院エリア、円町エリア、北野白梅町エリアなど幅広いエリアでのお部屋探しをサポートいたします。
- 店舗の特徴
- 賃貸管理業務
- 24時間管理物件取扱い
- リフォーム対応
- 引越し業者紹介可
- バリアフリー
- 系列店舗での対応可
- 保証人不要な物件あり
- 法人契約取扱い
- 駅から歩いて3分以内
電話でお問合せお客様の電話番号は不動産会社には通知されません
- 不動産会社に
つながります
お客様の電話番号は不動産会社に通知されません
- ※光IP電話、及びIP電話からはご利用になれません
- ※お電話によるお問合せは、店舗営業時間内にお願いします。つながらない場合は、お問合せフォームよりお問合せください
- ※不動産会社がお電話に出られなかった場合、お問合せいただいた後に不動産会社より折り返しのお電話がある場合がございます(お客様が非通知設定した場合は対象外です)
- ※株式会社LIFULLは電話会社が提供するサービスを介してお客様の発信者番号を受領後、折り返し専用の電話番号を発番してお問合せの不動産会社に通知します(お客様の発信者番号がお問合せの不動産会社に通知されることはございません)
- ※携帯電話からお問合せいただいた方に対し、株式会社LIFULLは電話会社が提供するメッセ―ジサービスを介してお客様の発信者番号を受領後、ショートメッセージ(SMS)またはLINE通知メッセージによるお問合せ内容に関する通知をお届けする場合があります
- ※お客様が通話中に不動産会社にお伝えになったお客様の個人情報及び、電話会社が発番する折り返し専用の電話番号は、お問合せ先不動産会社が資料送付・電子メール送信・電話連絡などの目的で保管する可能性があります。お問合せ先不動産会社が保管する個人情報の取扱いについては、各不動産会社に直接お問合せください
- ※株式会社LIFULLでは本サービスを円滑に運用するために、お客様の発信者番号をサービスご利用の控えとして一定期間保管いたします
- ※上記および株式会社LIFULLの個人情報の取扱い方針に同意のうえ、お電話ください
【LIFULL HOME'S物件番号】0142941-0176330【自社管理番号】09253-702-27
初期費用・月額費用をあわせて確認!この物件に住んだときの費用めやす
めやすを見るこの物件に住んだときの費用めやす
- 初期費用
- 月額費用
- 追加費用※ご確認ください
追加で費用が
かかる場合があります
必ずご確認ください
初期費用めやす約0円
追加で費用がかかります(※)敷金
0
- 礼金
145,000
賃料+共益費・管理費の1ヶ月分として換算
賃料の1ヶ月分+税として換算。不動産会社によって金額が異なるため正確な金額は不動産会社にお問合せください
※追加費用もチェック!
これらの項目以外にも費用がかかる場合があります。正確な金額は不動産会社にお問合せください。
- 初期費用
- 鍵交換費:22,000円
- 室内清掃費:55,000円
- 火災保険費:不動産会社に要確認
- 月額費用
- 駐車場費:35,000円※近隣
- その他
- LIFE SUPPORT:1100円
- 保証会社
- 初回:月額賃料等の60%、月額:保証料として月額賃料等の1%
不動産会社より
ファミリー賃貸。 地下鉄四条駅まで徒歩8分のファミリーマンションです。阪急、地下鉄のダブルアクセス。
敷金ナシです。嬉しい3点セパレートなど充実の設備。TVホンでセキュリティも安心です。コンビニ、スーパーなど近くにあって便利ですよ。光ファイバー対応しています。 物件情報はもちろん京都のエリア情報まで幅広く対応させていただきます!
- 保存する
- 共有する
- ※各種情報と現状に差異がある場合は、現状優先となります
- ※不動産会社が入力した情報を基に物件の位置を表示しています。詳しくは不動産会社までお問合せください
- ※不動産会社の方からの上記電話番号によるお問合せはお断りしております。こちら不動産会社詳細からお問合せください
- ※LIFULL HOME'Sは物件鮮度No.1を目指していきます。閲覧中の物件が「成約済である」「実際の物件情報と異なる点がある」などの場合、「掲載110番」からお問合せください
- ※QRコードは株式会社デンソーウェーブの登録商標です
この物件を取扱う他の会社
LIFULL HOME'Sでは、主要項目が同一の物件をまとめて表示しています。所在地や営業時間、掲載画像等から不動産会社を選んでお問合せください。
株式会社京都ライフ 三条烏丸店
優良店認定
京都府京都市中京区三条通烏丸東入梅忠町24 三条COHJUBLDG 1階
京都市営烏丸線 烏丸御池駅 徒歩3分
- 営業時間
- 09:30~19:00
- 定休日
- 年中無休(夏期・年末年始を除く)
ウインズリンク株式会社 アパマンショップ二条駅前店
京都府京都市中京区西ノ京南聖町12-6 ダイエー第七ビル1階
JR山陰本線 二条駅 徒歩2分
- 営業時間
- 09:30~19:00
- 定休日
- なし(盆休み8/13〜8/16・年末年始12/27〜1/4)
LIFULL HOME'S 地図・周辺情報
買い物
- ファミリーマート 四条西洞院店
- ライフ 四条烏丸店
- ドラッグひかり四条堀川店
- ファミリーマート 堀川綾小路店
- フレスコ 四条店
グルメ
- タリーズコーヒー京都四条烏丸店
- まいどおおきに食堂 四条西洞院食堂
- やよい軒 四条烏丸店
- すき家 四条堀川店
- タリーズコーヒー四条大宮店
育児・教育
- 池坊保育園
- 京都市立下京雅小学校
- 京都市立下京中学校成徳学舎
- 光林保育園
- 京都市立洛中小学校
医療
- 山元病院
- 医療法人知音会京都新町病院
- 医療法人毛利病院
- 医療法人財団足立病院
- 医療法人令寿会しまばら病院
公共施設・郵便局
- 京都西洞院綾小路郵便局
- 京都市下京図書館
- 京都府下京警察署
- 京都堀川仏光寺郵便局
- 京都市こどもみらい館子育て図書館
公園
- 光徳公園
- 梅屋広場公園
- 梅小路公園
- 梅小路公園
- 京都御苑
利用可能な駅
- 徒歩10分以内
阪急京都本線
- 大宮駅徒歩6分
- 烏丸駅徒歩9分
京都市営烏丸線
- 四条駅徒歩8分
京福電気鉄道嵐山本線
- 四条大宮駅徒歩8分
- すべての駅
京都地下鉄東西線
- 二条城前駅徒歩17分
- 烏丸御池駅徒歩18分
- 京都市役所前駅徒歩30分
- 三条京阪駅徒歩33分
- 西大路御池駅徒歩33分
- 東山駅3.2km
京都市営烏丸線
- 五条駅徒歩17分
- 烏丸御池駅徒歩19分
- 丸太町駅徒歩25分
- 九条駅3.3km
阪急京都本線
- 京都河原町駅徒歩19分
- 西院駅徒歩26分
JR山陰本線
- 二条駅徒歩21分
- 丹波口駅徒歩24分
- 梅小路京都西駅徒歩34分
- 円町駅3.5km
京阪本線
- 祇園四条駅徒歩23分
- 清水五条駅徒歩29分
- 三条駅徒歩33分
- 七条駅徒歩35分
- 神宮丸太町駅3.5km
京福電気鉄道嵐山本線
- 西院駅徒歩24分
- 西大路三条駅徒歩29分
JR東海道・山陽本線
- 京都駅徒歩32分
近鉄京都線
- 東寺駅徒歩36分
JR奈良線
- 東福寺駅4km
- 周辺情報は2023年07月21日時点のものになります。
- 周辺情報は、参考情報としてのみご利用ください(周辺情報は、株式会社LIFULLが地図情報の提供事業者から提供を受けた情報とLIFULL HOME'Sの物件情報に基づき、独自の方法で抽出し提供しているものです。周辺情報は、移転や閉鎖等により情報が最新ではない、または正しくない場合がありますが、地図情報の提供事業者から提供された情報をそのまま周辺情報として表示しているため、正確かつ最新の情報へ修正することができないことがあります。)
- 周辺情報は、株式会社LIFULLが掲載するものであり、不動産物件情報を掲載している不動産会社が掲載するものではありません
- 交通情報の一部については、株式会社LIFULLが掲載するものであり、不動産物件情報を掲載している不動産会社が掲載するものではない場合があります。交通情報に関する質問などは株式会社LIFULLにお問合せください














