LIFULL HOME'Sは物件鮮度No.1!※評価について
京都市営烏丸線 四条駅 徒歩7分
6.9万円/管理費等8,000円
1時間前 更新
画像一覧
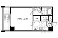
1/30間取り
2/30外観
3/30外観
4/30リビング/ダイニング
洋室
5/30室内
洋室
6/30子供部屋
洋室
7/30キッチン
キッチン
8/30キッチン
流し台
9/30キッチン
コンロ
10/30浴室
風呂
11/30浴室
浴槽
12/30トイレ
トイレ
13/30洗面
給湯パネル
14/30洗面
洗面台
15/30収納
収納
16/30収納
上段
17/30設備
冷蔵庫置場
18/30設備
洗濯機置場
19/30玄関
玄関
20/30バルコニー
ベランダ
21/30バルコニー
ベランダ
22/30駐車場
駐車場
23/30その他
廊下
24/30その他
眺望
25/30その他
エアコン
26/30その他
給湯器リモコン
27/30その他
インターフォン
28/30周辺
フレスコ 四条店まで150メートル
29/30周辺
ファミリーマート 四条西洞院店まで220メートル
30/30周辺
大丸 京都店まで600メートル
間取り
外観
外観
リビング/ダイニング
室内
子供部屋
キッチン
キッチン
キッチン
浴室
浴室
トイレ
洗面
洗面
収納
収納
設備
設備
玄関
バルコニー
バルコニー
駐車場
その他
その他
その他
その他
その他
周辺
周辺
周辺
お問合せ先 :株式会社エリッツ 京都駅前店
住まい探し特典内容
電気・ガス・インターネットの手続き代行のご案内します。
- 利用条件
- 株式会社エリッツ 京都駅前店で利用可
- 他特典との併用可
利用方法
来店時に本特典の画面をスマートフォンやタブレットでスタッフに提示、または画面印刷した用紙を提示ください。
有効期限 なし
スーパーまで徒歩2分。四条烏丸すぐの便利な立地。--パノラマ掲載--
基本情報
不動産用語- 賃料
- 6.9万円
- 管理費等
- 8,000円
初期費用などお気軽にお問合せください
- 敷金/礼金
- 無/1ヶ月
- 保証金/敷引・償却金
- -/-
- 交通
京都市営烏丸線 四条駅 徒歩7分
阪急京都本線 烏丸駅 徒歩7分
京都地下鉄東西線 二条城前駅 徒歩12分
- 所在地
京都府京都市中京区錦小路通油小路東入空也町
地図を見る- 築年月
- 2000年3月(築26年)
- 主要採光面
- 東
- 専有面積
- 26.82㎡
- バルコニー面積
- -
- 所在階/階数
- 4階/7階建
見学可能な物件です。希望日時を予約できます(無料)
- 現況
- 空家
- 入居可能時期
- 即時

人気物件はすぐに埋まってしまいます。
気になったらお早めにお問合せください。
- 情報公開日
2025/07/26
121日前 公開
- 情報更新日
2025/11/24
1時間前 更新
- 次回更新
予定日 - 2025/11/30
物件のこだわり/設備・条件
新築(非該当)
2階以上の物件(該当)
南向き(非該当)
駐車場(非該当)
オートロック(該当)
エアコン(該当)
バス・トイレ別(該当)
追焚機能(非該当)
フローリング(該当)
ペット相談(非該当)
入居条件
二人入居不可、単身者限定、即入居可キッチン/バス・トイレ
設備・サービス
オートロック、エアコン、クローゼット、CATV、BS対応、光ファイバー、公営水道、都市ガス、下水、フローリング、バルコニー、室内洗濯機置場、照明器具付き、エレベーター、駐輪場ありその他
初期費用カード決済可、住まい探し特典あり備考
独立洗面台ついてます。四条烏丸で3点セパでお探しの方におすすめです。コンビニ・スーパーもあり買物に便利。住宅街の中にありますので便利な場所ですが静かな環境でもあります。お部屋も広く使いやすい間取りです・光ファイバーインターネット接続可
物件周辺の生活情報
買い物
- コンビニ(220m)
- スーパー(150m)
交通
- 京都市営烏丸線 四条駅 徒歩7分
- 普通(停車)
- 急行(停車)
- 阪急京都本線 烏丸駅 徒歩7分
- 普通(停車)
- 準急(停車)
- 堺筋準急(停車)
- 通勤特急(停車)
- 特急(停車)
- 急行(停車)
- 準特急(停車)
※急行等の停車駅情報について
急行等の停車駅に関するデータは、随時更新をしておりますが、最新の内容であることを保証するものではありません。
最新かつ正確な情報につきましては、各鉄道会社のウェブサイトにてご確認ください
物件周辺の口コミ
- 京都府京都市下京区堀川通高辻下るに住む人の口コミ20代女性
交通のべんがいいし、交通機関を使わなくても自転車があれば行動できる
口コミを見る
この物件周辺に住む人の口コミ
口コミは、LIFULL HOME'Sが実際にこの物件の周辺に住む18歳~69歳の男女を対象に、WEBアンケート調査を実施しています。内容には回答者の主観的な表現が含まれる場合があるほか、事実と異なる場合もございます。ご了承ください。
- 京都府京都市下京区堀川通高辻下るに住む人の口コミ20代女性
- 交通のべんがいいし、交通機関を使わなくても自転車があれば行動できる
- 京都府京都市中京区西洞院通錦小路下るに住む人の口コミ30代女性
- 教育に熱心な家庭が多い。小中一貫教育で教育に対し期待できる。交通の便がいい。デパート、普段使いできるスーパーも充実。飲食店も多い。
- 京都府京都市中京区錦小路通堀川東入に住む人の口コミ20代女性
- 交通の便が良いのと仕事する際に近場で見つけやすい。また、疲れた時に遅くまであいてるマッサージ屋さんがあったり飲食店や娯楽施設もあり休みの日も時間を気にせずゆっくりできる。
- 京都府京都市下京区西洞院通四条下る西入に住む人の口コミ20代女性
- 交通の弁の良さと、買い物の便利な良さです。子どもが産まれたらもっと自然のあるところに住みたいと思うと思います。
- 京都府京都市下京区四条通岩上東入に住む人の口コミ30代男性
- 交通の便がよく、夜に買い物にも行けるが、救急車の出動や、車の通りが多いため、寝る時間に騒がしい。
- 京都府京都市下京区松原通油小路東入に住む人の口コミ30代女性
- 治安がよく、遅くまで仕事をしても、複数の交通機関が使用できる。
- 京都府京都市下京区東堀川通高辻上るに住む人の口コミ30代女性
- 治安が良く、夜遅くに仕事から帰ってきても安心して歩ける。大通りがある割には騒がしくない。高齢者や若い人、ファミリーなど様々な層の方がいるが、品が良く、安心できる。
- 京都府京都市下京区綾小路通新町東入に住む人の口コミ20代女性
- 一人暮らしをするには、充分に買い物ができる場所があり、治安がいい。しかし、観光客が多い、路線が地下鉄のため階段が多い、人気が少ないところがないことは少し不満に思う、
- 京都府京都市中京区姉小路通烏丸西入に住む人の口コミ20代男性
- 身近な環境でなんでも手に入りますが、その代わり家賃が比較的に高いです。
- 京都府京都市下京区仏光寺通高倉東入に住む人の口コミ20代男性
- 交通利便性がよく、店舗なども充実しているが、夜遅くまで人の行きかう声や自動車の騒音が鳴り響くため快眠できない。
物件概要
- 建物構造
- RC(鉄筋コンクリート)
- 駐車場
- 近隣 27,500円(税込) 物件からの距離264m
- 総戸数
- 30戸
- 契約形態
- -
- 契約期間
- 2年間
- 更新料
- -
- その他費用
- 室内清掃費用:38,500円、安心入居サポート(初回):16,500円、町費(月額):300円
- 保証会社
加入要
保証会社利用料:38、500円
- 住宅保険
- 要
- 管理
- -
- LIFULL HOME'S
物件番号 - 0110591-0347776
- 自社管理番号
- 3125-406
- 取引態様
- 仲介
- 会社名
- 株式会社エリッツ 京都駅前店
営業スタッフコメント

株式会社エリッツ 京都駅前店
廣部和希
親切丁寧なお部屋探し
業界経験4年
資格少額短期保険募集人
- 会社実績や特徴・サービス情報
- 新築に住みたい、やっぱりデザイナーズロフト付、ペットと一緒に暮らしたい、初期費用は抑えたい、駐車場は必要など、お部屋探しのご希望をぜひお聞かせください。エリッツは京都を中心に大阪、滋賀に45店舗のネットワークであなたのお部屋探しをサポートします。法人契約やまだ探し始めたばかりの方もぜひお問い合わせ下さい。京都の賃貸ならエリッツ京都駅前店。
新築に住みたい、やっぱりデザイナーズロフト付、ペットと一緒に暮らしたい、初期費用は抑えたい、駐車場は必要など、お部屋探しのご希望をぜひお聞かせください。エリッツは京都を中心に大阪、滋賀に45店舗のネットワークであなたのお部屋探しをサポートします。法人契約やまだ探し始めたばかりの方もぜひお問い合わせ下さい。京都の賃貸ならエリッツ京都駅前店。
- 電話でお問合せ(通話無料)
お問合せ先 :株式会社エリッツ 京都駅前店
不動産会社情報
株式会社エリッツ 京都駅前店賃貸のエリッツ京都駅前店

京都府京都市下京区塩小路通東洞院東入東塩小路町547番地 ステーションコートヤード1階
JR東海道・山陽本線 京都駅 徒歩2分
- 営業時間
- 10:00~19:00
- 定休日
- 年中無休(年末年始を除く)
優良店認定
京都でお部屋探しなら、取り扱い物件数No.1「エリッツ」の京都駅前店へ!学生様・社会人様・ご家族様、法人様などなど、すべてのお客様の「夢」を叶えます!
- 店舗の特徴
- リフォーム対応
- 引越し業者紹介可
- 年中無休
- オンライン相談可
- 保証人不要な物件あり
- 法人契約取扱い
- 駅から歩いて3分以内
電話でお問合せお客様の電話番号は不動産会社には通知されません
- 不動産会社に
つながります
お客様の電話番号は不動産会社に通知されません
- ※光IP電話、及びIP電話からはご利用になれません
- ※お電話によるお問合せは、店舗営業時間内にお願いします。つながらない場合は、お問合せフォームよりお問合せください
- ※不動産会社がお電話に出られなかった場合、お問合せいただいた後に不動産会社より折り返しのお電話がある場合がございます(お客様が非通知設定した場合は対象外です)
- ※株式会社LIFULLは電話会社が提供するサービスを介してお客様の発信者番号を受領後、折り返し専用の電話番号を発番してお問合せの不動産会社に通知します(お客様の発信者番号がお問合せの不動産会社に通知されることはございません)
- ※携帯電話からお問合せいただいた方に対し、株式会社LIFULLは電話会社が提供するメッセ―ジサービスを介してお客様の発信者番号を受領後、ショートメッセージ(SMS)またはLINE通知メッセージによるお問合せ内容に関する通知をお届けする場合があります
- ※お客様が通話中に不動産会社にお伝えになったお客様の個人情報及び、電話会社が発番する折り返し専用の電話番号は、お問合せ先不動産会社が資料送付・電子メール送信・電話連絡などの目的で保管する可能性があります。お問合せ先不動産会社が保管する個人情報の取扱いについては、各不動産会社に直接お問合せください
- ※株式会社LIFULLでは本サービスを円滑に運用するために、お客様の発信者番号をサービスご利用の控えとして一定期間保管いたします
- ※上記および株式会社LIFULLの個人情報の取扱い方針に同意のうえ、お電話ください
【LIFULL HOME'S物件番号】0110591-0347776【自社管理番号】3125-406
オンライン対応
オンライン内見・オンライン相談・IT重説に対応している物件です

「オンライン内見」「オンライン相談」「IT重説」とは?
物件の内見や不動産会社スタッフとの相談、契約前の重要事項説明をオンライン(ビデオ通話)で行うことができるサービスです。
オンライン内見
ビデオ通話で現地(物件)にいる不動産会社スタッフと映像・音声を使ってリアルタイムで会話しながら内見ができます。
オンライン相談
「物件について聞きたいことがある」など不動産会社スタッフへの相談もビデオ通話で行うことができます。
IT重説
契約前の重要事項説明(重説)をビデオ通話で行うことができます。
利用時の注意事項
- ビデオ通話については各不動産会社指定のものとなります。
- ビデオ通話利用時には通信が発生します。従量課金制通信サービスや通信量に上限があるネット回線・プランを利用する場合は、通信量にご注意ください。
- 通信速度やアプリの設定によってはビデオ通話の画質が低下することがあります。安定した画質で利用するためにも、Wi-Fi環境下での利用を推奨します。
- ご利用のビデオ通話アプリによっては、対象のOSやブラウザに制限がある場合があります。詳しくはお問合せ先不動産会社にご確認ください。
初期費用・月額費用をあわせて確認!この物件に住んだときの費用めやす
めやすを見るこの物件に住んだときの費用めやす
- 初期費用
- 月額費用
- 追加費用※ご確認ください
追加で費用が
かかる場合があります
必ずご確認ください
初期費用めやす約0円
追加で費用がかかります(※)敷金
0
- 礼金
69,000
賃料+共益費・管理費の1ヶ月分として換算
賃料の1ヶ月分+税として換算。不動産会社によって金額が異なるため正確な金額は不動産会社にお問合せください
※追加費用もチェック!
これらの項目以外にも費用がかかる場合があります。正確な金額は不動産会社にお問合せください。
- 初期費用
- 鍵交換費:不動産会社に要確認
- 室内清掃費:38,500円
- 火災保険費:不動産会社に要確認
- 月額費用
- 駐車場費:27,500円(税込)※近隣
- その他
- 安心入居サポート(初回):16500円
- 町費(月額):300円
- 保証会社
- 38、500円
不動産会社より
スーパーまで徒歩2分。四条烏丸すぐの便利な立地。--パノラマ掲載--
独立洗面台ついてます。四条烏丸で3点セパでお探しの方におすすめです。コンビニ・スーパーもあり買物に便利。住宅街の中にありますので便利な場所ですが静かな環境でもあります。お部屋も広く使いやすい間取りです・光ファイバーインターネット接続可
- 保存する
- 共有する
- ※各種情報と現状に差異がある場合は、現状優先となります
- ※不動産会社が入力した情報を基に物件の位置を表示しています。詳しくは不動産会社までお問合せください
- ※不動産会社の方からの上記電話番号によるお問合せはお断りしております。こちら不動産会社詳細からお問合せください
- ※LIFULL HOME'Sは物件鮮度No.1を目指していきます。閲覧中の物件が「成約済である」「実際の物件情報と異なる点がある」などの場合、「掲載110番」からお問合せください
- ※QRコードは株式会社デンソーウェーブの登録商標です
したい暮らしのタグから探す
最近見た賃貸物件
LIFULL HOME'S 地図・周辺情報
買い物
- セブンイレブン 京都四条西洞院通り店
- ライフ 四条烏丸店
- ドラッグひかり四条堀川店
- ファミリーマート 四条西洞院店
- フレスコ 四条店
グルメ
- まいどおおきに食堂 四条西洞院食堂
- タリーズコーヒー京都四条烏丸店
- やよい軒 四条烏丸店
- すき家 四条堀川店
- タリーズコーヒー四条大宮店
育児・教育
- 池坊保育園
- 京都市立洛中小学校
- 京都市立下京中学校成徳学舎
- 光林保育園
- 京都市立高倉小学校
医療
- 医療法人知音会京都新町病院
- 山元病院
- 医療法人毛利病院
- 医療法人財団足立病院
- 医療法人令寿会しまばら病院
公共施設・郵便局
- 京都新町蛸薬師郵便局
- 京都市下京図書館
- 京都市中京区役所
- 京都西洞院綾小路郵便局
- 京都市こどもみらい館子育て図書館
公園
- 光徳公園
- 梅屋広場公園
- 京都御苑
- 梅小路公園
- 梅小路公園
利用可能な駅
- 徒歩10分以内
京都市営烏丸線
- 四条駅徒歩7分
阪急京都本線
- 烏丸駅徒歩7分
- その他交通
- 京都地下鉄東西線 二条城前駅 徒歩12分
- 周辺情報は2023年07月21日時点のものになります。
- 周辺情報は、参考情報としてのみご利用ください(周辺情報は、株式会社LIFULLが地図情報の提供事業者から提供を受けた情報とLIFULL HOME'Sの物件情報に基づき、独自の方法で抽出し提供しているものです。周辺情報は、移転や閉鎖等により情報が最新ではない、または正しくない場合がありますが、地図情報の提供事業者から提供された情報をそのまま周辺情報として表示しているため、正確かつ最新の情報へ修正することができないことがあります。)
- 周辺情報は、株式会社LIFULLが掲載するものであり、不動産物件情報を掲載している不動産会社が掲載するものではありません
- 交通情報の一部については、株式会社LIFULLが掲載するものであり、不動産物件情報を掲載している不動産会社が掲載するものではない場合があります。交通情報に関する質問などは株式会社LIFULLにお問合せください










































