LIFULL HOME'Sは物件鮮度No.1!※評価について
京都市営烏丸線 四条駅 徒歩5分(1LDK/41.07㎡)
京都市営烏丸線 四条駅 徒歩5分(1LDK/41.07㎡)
9万円/管理費等9,000円
1日前 更新
画像一覧
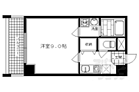
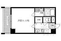
1/30間取り
間取
2/30外観
3/30外観
4/30リビング/ダイニング
5/30リビング/ダイニング
6/30リビング/ダイニング
7/30リビング/ダイニング
8/30リビング/ダイニング
9/30リビング/ダイニング
10/30リビング/ダイニング
11/30キッチン
12/30キッチン
13/30キッチン
14/30浴室
15/30浴室
16/30浴室
17/30トイレ
18/30トイレ
19/30洗面
20/30洗面
21/30収納
22/30収納
23/30収納
24/30設備
25/30設備
26/30玄関
27/30バルコニー
28/30バルコニー
29/30その他
30/30周辺
京都逓信病院まで405m
間取り
外観
外観
リビング/ダイニング
リビング/ダイニング
リビング/ダイニング
リビング/ダイニング
リビング/ダイニング
リビング/ダイニング
リビング/ダイニング
キッチン
キッチン
キッチン
浴室
浴室
浴室
トイレ
トイレ
洗面
洗面
収納
収納
収納
設備
設備
玄関
バルコニー
バルコニー
その他
周辺
LINEチャットでも 相談できます
お問合せ先 :ウインズリンク株式会社 アパマンショップ京都駅前店
仲介手数料割引
京都タワーまでお迎えサービスございます。
- 利用条件
- ウインズリンク株式会社 アパマンショップ京都駅前店 で利用可
- 他特典との併用可
- 事前にご予約下さいませ。
利用方法
来店時に本特典の画面をスマートフォンやタブレットでスタッフに提示、または画面印刷した用紙を提示ください。
有効期限 なし
四条烏丸徒歩7分 独立洗面台完備。デザイン性豊かな外観に注目
基本情報
不動産用語- 賃料
- 9万円
- 管理費等
- 9,000円
初期費用などお気軽にお問合せください
- 敷金/礼金
- 無/9万円
- 保証金/敷引・償却金
- -/-
- 交通
京都市営烏丸線 四条駅 徒歩5分
阪急京都本線 烏丸駅 徒歩5分
- 所在地
京都府京都市中京区錦小路通油小路東入ル空也町
地図を見る- 築年月
- 2000年3月(築26年)
- 主要採光面
- 南
- 専有面積
- 41.07㎡
- バルコニー面積
- -
- 所在階/階数
- 3階/7階建
入居可能日などお気軽にお問合せください
- 現況
- 賃貸中
- 入居可能時期
- 2026年01月 下旬

人気物件はすぐに埋まってしまいます。
気になったらお早めにお問合せください。
- 情報公開日
2025/11/27
5日前 公開
- 情報更新日
2025/12/01
1日前 更新
- 次回更新
予定日 - 2025/12/14
物件のこだわり/設備・条件
新築(非該当)
2階以上の物件(該当)
南向き(該当)
駐車場(非該当)
オートロック(該当)
エアコン(該当)
バス・トイレ別(該当)
追焚機能(非該当)
フローリング(該当)
ペット相談(非該当)
位置
角部屋入居条件
二人入居可キッチン/バス・トイレ
設備・サービス
オートロック、防犯カメラ、エアコン、シューズボックス、CATV、光ファイバー、インターネット使用料無料、公営水道、都市ガス、下水、フローリング、バルコニー、室内洗濯機置場、南面バルコニー、エレベーター、ゴミ出し24時間OK、バイク置き場あり、駐輪場ありその他
住まい探し特典あり備考
地下鉄、阪急電車ご利用可能、交通アクセス良好エリアながらも大通りから少しはいりますので閑静な住宅街。法人契約でお探しの方にも好評です。アパマンショップまでお問い合わせお待ちしております
物件周辺の生活情報
買い物
- コンビニ(75m)
- スーパー(210m)
- 商店街(650m)
- ドラッグストア(270m)
その他施設
- 総合病院(405m)
- 銀行(600m)
- 京都市中京区役所(780m)
交通
- 京都市営烏丸線 四条駅 徒歩5分
- 普通(停車)
- 急行(停車)
- 阪急京都本線 烏丸駅 徒歩5分
- 普通(停車)
- 準急(停車)
- 堺筋準急(停車)
- 通勤特急(停車)
- 特急(停車)
- 急行(停車)
- 準特急(停車)
※急行等の停車駅情報について
急行等の停車駅に関するデータは、随時更新をしておりますが、最新の内容であることを保証するものではありません。
最新かつ正確な情報につきましては、各鉄道会社のウェブサイトにてご確認ください
物件周辺の口コミ
- 京都府京都市中京区錦小路通西洞院西入に住む人の口コミ40代女性
商業地なので、飲食店、コンビニ、百貨店、何でもあるし、交通の便も良い。だが観光地でもあるため、通勤時間に観光者とはちあわすことも多く、とても混雑している。
口コミを見る
この物件周辺に住む人の口コミ
口コミは、LIFULL HOME'Sが実際にこの物件の周辺に住む18歳~69歳の男女を対象に、WEBアンケート調査を実施しています。内容には回答者の主観的な表現が含まれる場合があるほか、事実と異なる場合もございます。ご了承ください。
- 京都府京都市中京区錦小路通西洞院西入に住む人の口コミ40代女性
- 商業地なので、飲食店、コンビニ、百貨店、何でもあるし、交通の便も良い。だが観光地でもあるため、通勤時間に観光者とはちあわすことも多く、とても混雑している。
- 京都府京都市中京区錦小路通西洞院西入に住む人の口コミ50代女性
- 飲食店が充実していて、食事に困らない。電車やバスが充実しているので、移動しやすい。百貨店やファッションの店も近く、買い物に便利。
- 京都府京都市中京区堀川通錦小路下るに住む人の口コミ50代女性
- バス、地下鉄、電車が徒歩圏内で利用しやすいです。幹線道路から1本それた住宅地では騒音、排気ガスが減り掃除も楽になります。百貨店、有名ブランド店が徒歩圏内で歩いてかいにいけるのも非常に良い点です。
- 京都府京都市中京区岩上通三条上るに住む人の口コミ60代女性
- 交通も便利、治安も良い! 近くに三条商店街があるので凄く楽しいし便利。避難場所が二条城と言うこの土地柄。 世界が憧れる京都のしかもど真ん中に住まいしているのは誇りに思います。
- 京都府京都市下京区高辻通室町西入に住む人の口コミ60代男性
- 歴史があり、町歩きすると至る所に旧跡がある。寺や神社も多く、散歩が楽しい。飲食店も多く、バラエティーに富んでいて、おいしい店もたくさんある。交通も便利、病院や買い物も便利でいうことがない。
- 京都府京都市下京区堀川通仏光寺下るに住む人の口コミ30代女性
- 街中で買い物等とても便利ですが、ガヤガヤしていて落ち着きがないから
- 京都府京都市下京区西洞院通松原下るに住む人の口コミ40代女性
- 24時間スーパーとコンビニがあり、バス停が真ん前。病院が隣。という面は、便利。
- 京都府京都市中京区釜座通二条上るに住む人の口コミ40代女性
- 世界遺産が多く、教育熱心な家庭が多く、治安が良くて街に活気があるから。
- 京都府京都市下京区仏光寺通烏丸東入下るに住む人の口コミ50代男性
- 住環境はあまり良いとは言えないが、それを上回る利便性があるから。
- 京都府京都市中京区油小路通四条上る東入に住む人の口コミ60代男性
- 十秒でコンビニエンスストアに行けて、自宅の隣はコインパーキングになっているので、急な来客にも困らない。
物件概要
- 建物構造
- RC(鉄筋コンクリート)
- 駐車場
- 空無
- 総戸数
- 28戸
- 契約形態
- -
- 契約期間
- 2年間
- 更新料
- -
- その他費用
- 室内清掃費用:44,000円、くらしーど24:16,500円、町会費:300円
- 保証会社
加入要
保証会社:オリコフォレント
保証会社利用料:初回:月額賃料等の50%、月額:システム利用料330円、更新時:1万円/1年
- 住宅保険
- 要
- 管理
- 管理員:巡回
- LIFULL HOME'S
物件番号 - 0113625-0309582
- 自社管理番号
- 08804-301-61
- 取引態様
- 仲介
- 会社名
- ウインズリンク株式会社 アパマンショップ京都駅前店
営業スタッフコメント

ウインズリンク株式会社 アパマンショップ京都駅前店 係長
石田凛太郎
どのような条件でもお任せください!全力でお探しいたします!
業界経験7年
- 会社実績や特徴・サービス情報
- 「京都駅前店のこだわり…室内写真は広角レンズ等を使わずに出来る限り現状のお部屋をお伝え出来るよう撮影してます。」お問い合わせはアパマンショップ京都駅前店までお待ちしております。
「京都駅前店のこだわり…室内写真は広角レンズ等を使わずに出来る限り現状のお部屋をお伝え出来るよう撮影してます。」お問い合わせはアパマンショップ京都駅前店までお待ちしております。
- 電話でお問合せ(通話無料)
お問合せ先 :ウインズリンク株式会社 アパマンショップ京都駅前店
不動産会社情報
ウインズリンク株式会社 アパマンショップ京都駅前店 アパマンショップ京都駅前店

京都府京都市下京区東洞院通七条下る東塩小路町541−1
JR東海道・山陽本線 京都駅 徒歩3分
- 営業時間
- 09:30~19:00
- 定休日
- なし(盆休み8/13〜8/16・年末年始12/27〜1/4)
優良店認定
お部屋探しは全国ネットで安心の「アパマンショップ」へ!オンラインでのご相談・ご内見もお任せ下さい!京都駅から歩いてスグ、他府県からお越しのお客様、地理に自信の無い方は京都タワーまでお迎えに上がります!
- 店舗の特徴
- 賃貸管理業務
- 引越し業者紹介可
- 年中無休
- 駐車場あり
- 送迎あり
- オンライン相談可
- 保証人不要な物件あり
- 法人契約取扱い
- 19時以降も営業
- 駅から歩いて3分以内
電話でお問合せお客様の電話番号は不動産会社には通知されません
- 不動産会社に
つながります
お客様の電話番号は不動産会社に通知されません
- ※光IP電話、及びIP電話からはご利用になれません
- ※お電話によるお問合せは、店舗営業時間内にお願いします。つながらない場合は、お問合せフォームよりお問合せください
- ※不動産会社がお電話に出られなかった場合、お問合せいただいた後に不動産会社より折り返しのお電話がある場合がございます(お客様が非通知設定した場合は対象外です)
- ※株式会社LIFULLは電話会社が提供するサービスを介してお客様の発信者番号を受領後、折り返し専用の電話番号を発番してお問合せの不動産会社に通知します(お客様の発信者番号がお問合せの不動産会社に通知されることはございません)
- ※携帯電話からお問合せいただいた方に対し、株式会社LIFULLは電話会社が提供するメッセ―ジサービスを介してお客様の発信者番号を受領後、ショートメッセージ(SMS)またはLINE通知メッセージによるお問合せ内容に関する通知をお届けする場合があります
- ※お客様が通話中に不動産会社にお伝えになったお客様の個人情報及び、電話会社が発番する折り返し専用の電話番号は、お問合せ先不動産会社が資料送付・電子メール送信・電話連絡などの目的で保管する可能性があります。お問合せ先不動産会社が保管する個人情報の取扱いについては、各不動産会社に直接お問合せください
- ※株式会社LIFULLでは本サービスを円滑に運用するために、お客様の発信者番号をサービスご利用の控えとして一定期間保管いたします
- ※上記および株式会社LIFULLの個人情報の取扱い方針に同意のうえ、お電話ください
【LIFULL HOME'S物件番号】0113625-0309582【自社管理番号】08804-301-61
初期費用・月額費用をあわせて確認!この物件に住んだときの費用めやす
めやすを見るこの物件に住んだときの費用めやす
- 初期費用
- 月額費用
- 追加費用※ご確認ください
追加で費用が
かかる場合があります
必ずご確認ください
初期費用めやす約0円
追加で費用がかかります(※)敷金
0
- 礼金
90,000
賃料+共益費・管理費の1ヶ月分として換算
賃料の1ヶ月分+税として換算。不動産会社によって金額が異なるため正確な金額は不動産会社にお問合せください
※追加費用もチェック!
これらの項目以外にも費用がかかる場合があります。正確な金額は不動産会社にお問合せください。
- 初期費用
- 鍵交換費:不動産会社に要確認
- 室内清掃費:44,000円
- 火災保険費:不動産会社に要確認
- その他
- くらしーど24:16500円
- 町会費:300円
- 保証会社
- 初回:月額賃料等の50%、月額:システム利用料330円、更新時:1万円/1年
不動産会社より
四条烏丸徒歩7分 独立洗面台完備。デザイン性豊かな外観に注目
地下鉄、阪急電車ご利用可能、交通アクセス良好エリアながらも大通りから少しはいりますので閑静な住宅街。法人契約でお探しの方にも好評です。アパマンショップまでお問い合わせお待ちしております
- 保存する
- 共有する
- ※各種情報と現状に差異がある場合は、現状優先となります
- ※不動産会社が入力した情報を基に物件の位置を表示しています。詳しくは不動産会社までお問合せください
- ※不動産会社の方からの上記電話番号によるお問合せはお断りしております。こちら不動産会社詳細からお問合せください
- ※LIFULL HOME'Sは物件鮮度No.1を目指していきます。閲覧中の物件が「成約済である」「実際の物件情報と異なる点がある」などの場合、「掲載110番」からお問合せください
- ※QRコードは株式会社デンソーウェーブの登録商標です
この物件を取扱う他の会社
LIFULL HOME'Sでは、主要項目が同一の物件をまとめて表示しています。所在地や営業時間、掲載画像等から不動産会社を選んでお問合せください。
LIFULL HOME'S 地図・周辺情報
買い物
- セブンイレブン 京都四条西洞院通り店
- ライフ 四条烏丸店
- ドラッグひかり四条堀川店
- ファミリーマート 四条西洞院店
- フレスコ 四条店
グルメ
- まいどおおきに食堂 四条西洞院食堂
- タリーズコーヒー京都四条烏丸店
- やよい軒 四条烏丸店
- すき家 四条堀川店
- タリーズコーヒー四条大宮店
育児・教育
- 池坊保育園
- 京都市立洛中小学校
- 京都市立洛友中学校
- 六満こども園
- 京都市立高倉小学校
医療
- 医療法人知音会京都新町病院
- 山元病院
- 医療法人毛利病院
- 医療法人財団足立病院
- 医療法人令寿会しまばら病院
公共施設・郵便局
- 京都新町蛸薬師郵便局
- 京都市下京図書館
- 京都市中京区役所
- 京都西洞院綾小路郵便局
- 京都市こどもみらい館子育て図書館
公園
- 光徳公園
- 梅屋広場公園
- 京都御苑
- 梅小路公園
- 梅小路公園
利用可能な駅
- 徒歩10分以内
京都市営烏丸線
- 四条駅徒歩5分
阪急京都本線
- 烏丸駅徒歩5分
- 周辺情報は2023年07月21日時点のものになります。
- 周辺情報は、参考情報としてのみご利用ください(周辺情報は、株式会社LIFULLが地図情報の提供事業者から提供を受けた情報とLIFULL HOME'Sの物件情報に基づき、独自の方法で抽出し提供しているものです。周辺情報は、移転や閉鎖等により情報が最新ではない、または正しくない場合がありますが、地図情報の提供事業者から提供された情報をそのまま周辺情報として表示しているため、正確かつ最新の情報へ修正することができないことがあります。)
- 周辺情報は、株式会社LIFULLが掲載するものであり、不動産物件情報を掲載している不動産会社が掲載するものではありません
- 交通情報の一部については、株式会社LIFULLが掲載するものであり、不動産物件情報を掲載している不動産会社が掲載するものではない場合があります。交通情報に関する質問などは株式会社LIFULLにお問合せください


















