LIFULL HOME'Sは物件鮮度No.1!※評価について
レオパレスビューヒルズテン(4階/403/1K/26.08m²)
レオパレスビューヒルズテン(4階/403/1K/26.08m²)
5.3万円/管理費等7,000円
15時間前 更新
画像一覧
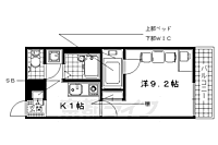
1/30間取り
間取
2/30外観
3/30外観
4/30リビング/ダイニング
5/30リビング/ダイニング
6/30リビング/ダイニング
7/30キッチン
8/30キッチン
9/30キッチン
10/30キッチン
11/30浴室
12/30浴室
13/30浴室
14/30トイレ
15/30トイレ
16/30洗面
17/30洗面
18/30収納
19/30収納
20/30設備
21/30設備
22/30設備
23/30設備
24/30玄関
25/30玄関
26/30バルコニー
27/30その他
28/30その他
29/30その他
30/30周辺
中村屋梅美台店まで344m
間取り
外観
外観
リビング/ダイニング
リビング/ダイニング
リビング/ダイニング
キッチン
キッチン
キッチン
キッチン
浴室
浴室
浴室
トイレ
トイレ
洗面
洗面
収納
収納
設備
設備
設備
設備
玄関
玄関
バルコニー
その他
その他
その他
周辺
LINEチャットでも
相談できます
お問合せ先 :株式会社京都ライフ 四条烏丸店
1〜4月は引越しシーズンのピークです。お問合せはお早めに!
仲介手数料割引
仲介手数料 賃料50%(税別)でご紹介可能です。
- 利用条件
- 株式会社京都ライフ 四条烏丸店で利用可
- 他特典との併用可
- 法人契約・事業用は除きます。
利用方法
来店時に本特典の画面をスマートフォンやタブレットでスタッフに提示、または画面印刷した用紙を提示ください。
有効期限 なし
仲介手数料不要です。 木津川市のお部屋探しは京都ライフ0774−68−5300まで
基本情報
不動産用語- 賃料
- 5.3万円
- 管理費等
- 7,000円
初期費用などお気軽にお問合せください
- 敷金/礼金
- 無/5.3万円
- 保証金/敷引・償却金
- -/-
- 交通
JR関西本線 平城山駅 3.4km
JR奈良線 木津駅 3.5km
- 所在地
京都府木津川市梅美台1丁目
地図を見る- 築年月
- 2008年7月(築18年)
- 主要採光面
- 北西
- 専有面積
- 26.08㎡
- バルコニー面積
- -
- 所在階/階数
- 4階/4階建
入居可能日などお気軽にお問合せください
- 現況
- 賃貸中
- 入居可能時期
- 2026年04月 上旬

人気物件はすぐに埋まってしまいます。
気になったらお早めにお問合せください。
- 情報公開日
2026/03/10
17日前 公開
- 情報更新日
2026/03/27
15時間前 更新
- 次回更新
予定日 - 2026/04/06
物件のこだわり/設備・条件
新築(非該当)
2階以上の物件(該当)
南向き(非該当)
駐車場あり(該当)
オートロック(該当)
エアコン(該当)
バス・トイレ別(該当)
追焚機能(非該当)
フローリング(非該当)
ペット相談(非該当)
入居条件
-- 入居条件の詳細は
お問合せください キッチン/バス・トイレ
設備・サービス
オートロック、TVモニタ付インターホン、エアコン、シューズボックス、公営水道、プロパンガス、下水、バルコニー、室内洗濯機置場、家具・家電付き、駐車場ありその他
住まい探し特典あり備考
オートロック、TVホンでセキュリティも安心です。木津川市でのお部屋探しは京都ライフ京田辺店0774−68−5300まで。 物件情報はもちろん京都のエリア情報まで幅広く対応させていただきます!
物件周辺の生活情報
買い物
- コンビニ(867m)
- スーパー(344m)
その他施設
- 総合病院(2,600m)
- 銀行(2,000m)
- 木津梅美台郵便局(399m)
交通
- JR関西本線 平城山駅 3.4km
- 普通(停車)
- 区間快速(名古屋-亀山)(通過)
- 快速(名古屋-亀山)(通過)
- 快速みえ(通過)
- 区間快速(加茂-難波)(停車)
- 快速(加茂-難波)(停車)
- 直通快速(通過)
- 大和路快速(停車)
- JR奈良線 木津駅 3.5km
- 普通(停車)
- 区間快速(停車)
- 快速(停車)
- みやこ路快速(停車)
※急行等の停車駅情報について
急行等の停車駅に関するデータは、随時更新をしておりますが、最新の内容であることを保証するものではありません。
最新かつ正確な情報につきましては、各鉄道会社のウェブサイトにてご確認ください
物件周辺の口コミ
- 京都府木津川市梅美台に住む人の口コミ30代男性
治安が良く、静かであることと、周りにもアットホームな飲食店がほどほどにあり住みやすい。
口コミを見る
この物件周辺に住む人の口コミ
口コミは、LIFULL HOME'Sが実際にこの物件の周辺に住む18歳~69歳の男女を対象に、WEBアンケート調査を実施しています。内容には回答者の主観的な表現が含まれる場合があるほか、事実と異なる場合もございます。ご了承ください。
- 京都府木津川市梅美台に住む人の口コミ30代男性
- 治安が良く、静かであることと、周りにもアットホームな飲食店がほどほどにあり住みやすい。
- 京都府木津川市梅美台に住む人の口コミ30代男性
- バスでないと駅までは遠いのがなんてん。他は不便じゃないと思うの。
- 京都府木津川市梅美台に住む人の口コミ20代女性
- 新興住宅地なので日々開発が進み住みやすさが増しているので。まだまだ不便な点はあるがとても快適な環境であるから
- 京都府木津川市梅美台に住む人の口コミ30代女性
- 道が広くて、道路の死角が少ないから、みやすい。子育て医療が充実している
- 京都府木津川市梅美台に住む人の口コミ30代女性
- 子供も医療負担額が、月200円の支払いだけでいいのと、子供が夜中などに体調が悪くなった時の救急対応病院か近くにある、道幅が広い。
- 京都府木津川市梅美台に住む人の口コミ30代女性
- 周りに子供が多く子育世代が多いので、色んな相談などもできるが、子供が多いのにもかかわらず子供の遊び場施設が少ない
- 京都府木津川市梅美台に住む人の口コミ30代男性
- 喧騒な環境とは程遠く閑静な住宅地が多くて住みやすい。スーパーセンターも多くあり、買い物にも困らない。人も多すぎず、混雑にも合わなくてストレスが溜まらない。道も広くて道路環境も良いため。
- 京都府木津川市梅美台に住む人の口コミ30代男性
- 公共交通機関はあまり発達してはいないが、静かなところで住みやすいから。
- 京都府木津川市梅美台に住む人の口コミ30代女性
- 同世代が近所に多い新興住宅地。徒歩圏内にスーパーや100均一、郵便局がある。少し車で行けば、ホームセンターや大きいスーパーもあるし、困らない。
- 京都府木津川市梅美台に住む人の口コミ30代女性
- 子育てもしやすく、すぐ近くにだいたいなんでも揃うし公園もたくさんあるから老後も過ごしやすい
物件概要
- 建物構造
- 鉄骨造
- 駐車場
- 空有 5,500円(税込)
- 総戸数
- 32戸
- 契約形態
- -
- 契約期間
- 2年間
- 更新料
- 16,500円
- その他費用
- 鍵交換費用:16,500円、室内清掃費用:41,800円、環境維持費:550円
- 保証会社
- -
- 住宅保険
- 要
- 管理
- -
- LIFULL HOME'S
物件番号 - 0106225-0339865
- 自社管理番号
- 050BE-403-03
- 取引態様
- 仲介
- 会社名
- 株式会社京都ライフ 四条烏丸店
営業スタッフコメント

株式会社京都ライフ 四条烏丸店店長
豊原勇介
丁寧な応対を心がけております。
業界経験10年
資格少額短期保険募集人
- スタッフ情報
- 創業40年以上にわたり京都市の中心にて賃貸仲介業をさせていただいております。 当店四条烏丸店は、京都市内のビジネス街である四条烏丸に店舗を構えており、 社会人のお客様、転勤等の法人契約などのお客様と多く関わらせていただいております。
創業40年以上にわたり京都市の中心にて賃貸仲介業をさせていただいております。 当店四条烏丸店は、京都市内のビジネス街である四条烏丸に店舗を構えており、 社会人のお客様、転勤等の法人契約などのお客様と多く関わらせていただいております。
- 電話でお問合せ(通話無料)
お問合せ先 :株式会社京都ライフ 四条烏丸店
不動産会社情報
株式会社京都ライフ 四条烏丸店京都ライフ四条烏丸店

京都府京都市下京区四条通新町東入月鉾町47-15
京都市営烏丸線 四条駅 徒歩3分
- 営業時間
- 09:30~19:00
- 定休日
- 年中無休(盆正月を除く)
優良店認定
京都に生まれて四十年かんたんお部屋探しでおなじみの京都ライフ「四条烏丸店」。
- 店舗の特徴
- 賃貸管理業務
- 引越し業者紹介可
- 年中無休
- 送迎あり
- オンライン相談可
- 保証人不要な物件あり
- 法人契約取扱い
- 女性スタッフ対応可
- 19時以降も営業
- 駅から歩いて3分以内
電話でお問合せお客様の電話番号は不動産会社には通知されません
- 不動産会社に
つながります
お客様の電話番号は不動産会社に通知されません
- ※光IP電話、及びIP電話からはご利用になれません
- ※お電話によるお問合せは、店舗営業時間内にお願いします。つながらない場合は、お問合せフォームよりお問合せください
- ※不動産会社がお電話に出られなかった場合、お問合せいただいた後に不動産会社より折り返しのお電話がある場合がございます(お客様が非通知設定した場合は対象外です)
- ※株式会社LIFULLは電話会社が提供するサービスを介してお客様の発信者番号を受領後、折り返し専用の電話番号を発番してお問合せの不動産会社に通知します(お客様の発信者番号がお問合せの不動産会社に通知されることはございません)
- ※携帯電話からお問合せいただいた方に対し、株式会社LIFULLは電話会社が提供するメッセ―ジサービスを介してお客様の発信者番号を受領後、ショートメッセージ(SMS)またはLINE通知メッセージによるお問合せ内容に関する通知をお届けする場合があります
- ※お客様が通話中に不動産会社にお伝えになったお客様の個人情報及び、電話会社が発番する折り返し専用の電話番号は、お問合せ先不動産会社が資料送付・電子メール送信・電話連絡などの目的で保管する可能性があります。お問合せ先不動産会社が保管する個人情報の取扱いについては、各不動産会社に直接お問合せください
- ※株式会社LIFULLでは本サービスを円滑に運用するために、お客様の発信者番号をサービスご利用の控えとして一定期間保管いたします
- ※上記および株式会社LIFULLの個人情報の取扱い方針に同意のうえ、お電話ください
【LIFULL HOME'S物件番号】0106225-0339865【自社管理番号】050BE-403-03
オンライン対応
オンライン相談に対応している物件です

「オンライン内見」「オンライン相談」「IT重説」とは?
物件の内見や不動産会社スタッフとの相談、契約前の重要事項説明をオンライン(ビデオ通話)で行うことができるサービスです。
オンライン内見
ビデオ通話で現地(物件)にいる不動産会社スタッフと映像・音声を使ってリアルタイムで会話しながら内見ができます。
オンライン相談
「物件について聞きたいことがある」など不動産会社スタッフへの相談もビデオ通話で行うことができます。
IT重説
契約前の重要事項説明(重説)をビデオ通話で行うことができます。
利用時の注意事項
- ビデオ通話については各不動産会社指定のものとなります。
- ビデオ通話利用時には通信が発生します。従量課金制通信サービスや通信量に上限があるネット回線・プランを利用する場合は、通信量にご注意ください。
- 通信速度やアプリの設定によってはビデオ通話の画質が低下することがあります。安定した画質で利用するためにも、Wi-Fi環境下での利用を推奨します。
- ご利用のビデオ通話アプリによっては、対象のOSやブラウザに制限がある場合があります。詳しくはお問合せ先不動産会社にご確認ください。
初期費用・月額費用をあわせて確認!この物件に住んだときの費用めやす
めやすを見るこの物件に住んだときの費用めやす
- 初期費用
- 月額費用
- 追加費用※ご確認ください
追加で費用が
かかる場合があります
必ずご確認ください
初期費用めやす約0円
追加で費用がかかります(※)敷金
0
- 礼金
53,000
賃料+共益費・管理費の1ヶ月分として換算
賃料の1ヶ月分+税として換算。不動産会社によって金額が異なるため正確な金額は不動産会社にお問合せください
※追加費用もチェック!
これらの項目以外にも費用がかかる場合があります。正確な金額は不動産会社にお問合せください。
- 初期費用
- 鍵交換費:16,500円
- 室内清掃費:41,800円
- 火災保険費:不動産会社に要確認
- 月額費用
- 駐車場費:5,500円(税込)※契約任意
- その他
- 環境維持費:550円
- 保証会社
- 不動産会社に要確認
不動産会社より
仲介手数料不要です。 木津川市のお部屋探しは京都ライフ0774−68−5300まで
オートロック、TVホンでセキュリティも安心です。木津川市でのお部屋探しは京都ライフ京田辺店0774−68−5300まで。 物件情報はもちろん京都のエリア情報まで幅広く対応させていただきます!
- 保存する
- 共有する
- ※各種情報と現状に差異がある場合は、現状優先となります
- ※不動産会社が入力した情報を基に物件の位置を表示しています。詳しくは不動産会社までお問合せください
- ※不動産会社の方からの上記電話番号によるお問合せはお断りしております。こちら不動産会社詳細からお問合せください
- ※LIFULL HOME'Sは物件鮮度No.1を目指していきます。閲覧中の物件が「成約済である」「実際の物件情報と異なる点がある」などの場合、「掲載110番」からお問合せください
- ※QRコードは株式会社デンソーウェーブの登録商標です
したい暮らしのタグから探す
LIFULL HOME'S 地図・周辺情報
買い物
- ファミリーマート 木津梅美台店
- バロー 木津川店
- サンドラッグ木津川店
- ローソン 木津川州見台店
- ダイソー中村屋梅美台店
グルメ
- なか卯 フォレストモール木津川店
- はま寿司フォレストモール木津川店
- バーミヤン 京都木津川店
- サガミ 木津川城山台店
- 無添くら寿司 木津川店
育児・教育
- 幼保連携型認定こども園梅美台こども園
- 木津川市立梅美台小学校
- 木津川市立木津南中学校
- 幼保連携型認定こども園なごみこども園
- 奈良市立鼓阪北小学校
医療
- 京都山城総合医療センター
公共施設・郵便局
- 木津梅美台郵便局
- 木津川市役所
- 奈良青山郵便局
- 平城山駅前郵便局
- 奈良法蓮郵便局
公園
- 青山近隣公園
- ロート奈良鴻ノ池パーク
- 上人ケ平遺跡公園
- 佐保山近隣公園
利用可能な駅
- すべての駅
JR関西本線
- 平城山駅3.4km
JR奈良線
- 木津駅3.5km
- 周辺情報は2023年07月21日時点のものになります。
- 周辺情報は、参考情報としてのみご利用ください(周辺情報は、株式会社LIFULLが地図情報の提供事業者から提供を受けた情報とLIFULL HOME'Sの物件情報に基づき、独自の方法で抽出し提供しているものです。周辺情報は、移転や閉鎖等により情報が最新ではない、または正しくない場合がありますが、地図情報の提供事業者から提供された情報をそのまま周辺情報として表示しているため、正確かつ最新の情報へ修正することができないことがあります。)
- 周辺情報は、株式会社LIFULLが掲載するものであり、不動産物件情報を掲載している不動産会社が掲載するものではありません
- 交通情報の一部については、株式会社LIFULLが掲載するものであり、不動産物件情報を掲載している不動産会社が掲載するものではない場合があります。交通情報に関する質問などは株式会社LIFULLにお問合せください
















