LIFULL HOME'Sは物件鮮度No.1!※評価について
レオパレスビューヒルズテン 3階
5.3万円/管理費等7,000円
1時間前 更新
画像一覧
1/26リビング/ダイニング
洋室
2/26室内
洋室
3/26子供部屋
洋室
4/26キッチン
キッチン
5/26キッチン
コンロ
6/26キッチン
シンク
7/26浴室
風呂
8/26浴室
風呂
9/26トイレ
トイレ
10/26洗面
洗面所
11/26収納
収納
12/26収納
収納
13/26設備
冷蔵庫置場
14/26設備
洗濯機置場
15/26玄関
玄関
16/26玄関
玄関
17/26バルコニー
ベランダ
18/26その他
眺望
19/26その他
エアコン
20/26その他
浴室乾燥機
21/26その他
TVモニターフォン
22/26その他
電子レンジ
23/26周辺
バロー木津川店まで400メートル
24/26周辺
ファミリーマート 木津梅美台店まで500メートル
25/26周辺
フォレストモール木津川まで450メートル
26/26周辺
サンドラッグ 木津川店まで450メートル
リビング/ダイニング
室内
子供部屋
キッチン
キッチン
キッチン
浴室
浴室
トイレ
洗面
収納
収納
設備
設備
玄関
玄関
バルコニー
その他
その他
その他
その他
その他
周辺
周辺
周辺
周辺
お問合せ先 :株式会社エリッツ 新田辺店
住まい探し特典内容
電気・ガス・インターネットの手続き代行のご案内します。
- 利用条件
- 株式会社エリッツ 新田辺店で利用可
- 他特典との併用可
利用方法
来店時に本特典の画面をスマートフォンやタブレットでスタッフに提示、または画面印刷した用紙を提示ください。
有効期限 なし
家具家電付きレオパレスの物件です--パノラマ掲載--
基本情報
不動産用語- 賃料
- 5.3万円
- 管理費等
- 7,000円
初期費用などお気軽にお問合せください
- 敷金/礼金
- 無/1ヶ月
- 保証金/敷引・償却金
- -/-
- 交通
JR関西本線 平城山駅 3.6km
JR片町線(学研都市線) 木津駅 バス13分 関西光科学研究所下車 徒歩3分
近鉄奈良線 近鉄奈良駅 バス13分 関西光科学研究所下車 徒歩3分
近鉄京都線 高の原駅 バス11分 関西光科学研究所下車 徒歩3分
- 所在地
京都府木津川市梅美台1丁目
地図を見る- 築年月
- 2008年7月(築18年)
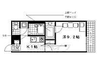
- 間取り
- 1K ( 洋室 9.4帖 )
- 主要採光面
- 西
- 専有面積
- 26.08㎡
- バルコニー面積
- -
- 所在階/階数
- 3階/4階建
入居可能日などお気軽にお問合せください
- 現況
- 居住中
- 入居可能時期
- 2026年01月 下旬

人気物件はすぐに埋まってしまいます。
気になったらお早めにお問合せください。
- 情報公開日
2025/11/23
1日前 公開
- 情報更新日
2025/11/24
1時間前 更新
- 次回更新
予定日 - 2025/12/01
物件のこだわり/設備・条件
新築(非該当)
2階以上の物件(該当)
南向き(非該当)
駐車場あり(該当)
オートロック(該当)
エアコン(該当)
バス・トイレ別(該当)
追焚機能(非該当)
フローリング(非該当)
ペット相談(非該当)
位置
角部屋入居条件
二人入居可キッチン/バス・トイレ
設備・サービス
オートロック、TVモニタ付インターホン、エアコン、クローゼット、シューズボックス、インターネット対応、公営水道、プロパンガス、下水、バルコニー、室内洗濯機置場、家具・家電付き、照明器具付き、駐車場あり、駐輪場ありその他
住まい探し特典あり備考
お部屋は角部屋で隣室の騒音の影響を受けにくい傾向にあり、収納としてクローゼットを備えております。周辺にはファミリーマート 木津梅美台店があり便利です。・インターネット接続可
物件周辺の生活情報
学校
- 梅美台小学校(350m)
- 木津南中学校(1,100m)
買い物
- コンビニ(500m)
- スーパー(400m)
- ドラッグストア(450m)
その他施設
- 総合病院(3,300m)
交通
- JR片町線(学研都市線) 木津駅 バス13分 関西光科学研究所下車 徒歩3分
- 普通(停車)
- 区間快速(停車)
- 快速(停車)
- 近鉄奈良線 近鉄奈良駅 バス13分 関西光科学研究所下車 徒歩3分
- 普通(停車)
- 区間準急(停車)
- 準急(停車)
- 急行(停車)
- 快速急行(停車)
※急行等の停車駅情報について
急行等の停車駅に関するデータは、随時更新をしておりますが、最新の内容であることを保証するものではありません。
最新かつ正確な情報につきましては、各鉄道会社のウェブサイトにてご確認ください
物件周辺の口コミ
- 京都府木津川市梅美台に住む人の口コミ30代男性
公共交通機関はあまり発達してはいないが、静かなところで住みやすいから。
口コミを見る
この物件周辺に住む人の口コミ
口コミは、LIFULL HOME'Sが実際にこの物件の周辺に住む18歳~69歳の男女を対象に、WEBアンケート調査を実施しています。内容には回答者の主観的な表現が含まれる場合があるほか、事実と異なる場合もございます。ご了承ください。
- 京都府木津川市梅美台に住む人の口コミ30代男性
- 公共交通機関はあまり発達してはいないが、静かなところで住みやすいから。
- 京都府木津川市梅美台に住む人の口コミ20代女性
- 都会すぎず田舎すぎず、中間のような街で道も混まないし人もそこまで多くないし、かといって不便でもないのでとても気に入っています。
- 京都府木津川市梅美台に住む人の口コミ30代女性
- 子供も医療負担額が、月200円の支払いだけでいいのと、子供が夜中などに体調が悪くなった時の救急対応病院か近くにある、道幅が広い。
- 京都府木津川市梅美台に住む人の口コミ30代女性
- 道が広くて、道路の死角が少ないから、みやすい。子育て医療が充実している
- 京都府木津川市梅美台に住む人の口コミ30代女性
- 同世代が近所に多い新興住宅地。徒歩圏内にスーパーや100均一、郵便局がある。少し車で行けば、ホームセンターや大きいスーパーもあるし、困らない。
- 京都府木津川市梅美台に住む人の口コミ30代女性
- 徒歩では遠い距離にスーパーなどがあるし、遠くにいく場合、バスも少なく最寄駅も遠い。ほとんどが坂道だから車が無いと不便。外から来た移住者が多いのでどんな人がいるかわからないところは不安なところ。
- 京都府木津川市梅美台に住む人の口コミ30代男性
- バスでないと駅までは遠いのがなんてん。他は不便じゃないと思うの。
- 京都府木津川市梅美台に住む人の口コミ30代男性
- 都会では無いので住宅費が抑えられる。でも車で少し走れば、奈良、大阪、京都、滋賀と遊びに出やすい。(ユニバに一時間で行ける)
- 京都府木津川市梅美台に住む人の口コミ30代女性
- 周りに子供が多く子育世代が多いので、色んな相談などもできるが、子供が多いのにもかかわらず子供の遊び場施設が少ない
- 京都府木津川市梅美台に住む人の口コミ20代女性
- 今のところ特にないかなと感じてます。出たらその都度いうよくきしようかとすはははそにだだな
物件概要
- 建物構造
- 鉄骨造
- 駐車場
- 空有 5,500円(税込)
- 総戸数
- 32戸
- 契約形態
- -
- 契約期間
- 2年間
- 更新料
- -
- その他費用
- 鍵交換費用:16,500円、室内清掃費用:41,800円、抗菌施工代(初回):23,760円、設備維持費(月額):550円、インターネット使用料(月額):3,630円
- 保証会社
加入要
保証会社利用料:60、550円
- 住宅保険
- 要
- 管理
- -
- LIFULL HOME'S
物件番号 - 0138024-0091842
- 自社管理番号
- 55181-0308
- 取引態様
- 仲介
- 会社名
- 株式会社エリッツ 新田辺店
営業スタッフコメント

株式会社エリッツ 新田辺店
岸本
京田辺市、精華町、城陽市、宇治市のお部屋探しはお任せください!
業界経験2年
- 会社実績や特徴・サービス情報
- はじめまして。賃貸のエリッツ新田辺店の渡邉です。京田辺市を中心に、八幡市、精華町、木津川市や京都市内全域まで幅広く取り扱っております。お部屋探しの際はぜひ、「賃貸のエリッツ新田辺店」までお問い合わせください。全力でお客様のお部屋探しのサポートをさせていただきます。ご来店心よりお待ちしております。
はじめまして。賃貸のエリッツ新田辺店の渡邉です。京田辺市を中心に、八幡市、精華町、木津川市や京都市内全域まで幅広く取り扱っております。お部屋探しの際はぜひ、「賃貸のエリッツ新田辺店」までお問い合わせください。全力でお客様のお部屋探しのサポートをさせていただきます。ご来店心よりお待ちしております。
- 電話でお問合せ(通話無料)
お問合せ先 :株式会社エリッツ 新田辺店
不動産会社情報
株式会社エリッツ 新田辺店
京都府京田辺市田辺中央1丁目3番地1 新田辺ステーションパーク南館
近鉄京都線 新田辺駅 徒歩2分
- 営業時間
- 10:00~19:00
- 定休日
- 火・水曜日(祝日を除く)、年末年始 ※部屋探しのお問い合わせは無休
京田辺市(京田辺、新田辺、興戸、同志社前、三山木)でお部屋探しはお任せください!!同志社大学の学生さんの一人暮らし等、様々なニーズのお客様の希望にあったの賃貸物件を数多く取り扱っております。
- 店舗の特徴
- 賃貸管理業務
- 24時間管理物件取扱い
- リフォーム対応
- 引越し業者紹介可
- 系列店舗での対応可
- 社宅・寮物件取扱い
- オンライン相談可
- 保証人不要な物件あり
- 法人契約取扱い
- 駅から歩いて3分以内
電話でお問合せお客様の電話番号は不動産会社には通知されません
- 不動産会社に
つながります
お客様の電話番号は不動産会社に通知されません
- ※光IP電話、及びIP電話からはご利用になれません
- ※お電話によるお問合せは、店舗営業時間内にお願いします。つながらない場合は、お問合せフォームよりお問合せください
- ※不動産会社がお電話に出られなかった場合、お問合せいただいた後に不動産会社より折り返しのお電話がある場合がございます(お客様が非通知設定した場合は対象外です)
- ※株式会社LIFULLは電話会社が提供するサービスを介してお客様の発信者番号を受領後、折り返し専用の電話番号を発番してお問合せの不動産会社に通知します(お客様の発信者番号がお問合せの不動産会社に通知されることはございません)
- ※携帯電話からお問合せいただいた方に対し、株式会社LIFULLは電話会社が提供するメッセ―ジサービスを介してお客様の発信者番号を受領後、ショートメッセージ(SMS)またはLINE通知メッセージによるお問合せ内容に関する通知をお届けする場合があります
- ※お客様が通話中に不動産会社にお伝えになったお客様の個人情報及び、電話会社が発番する折り返し専用の電話番号は、お問合せ先不動産会社が資料送付・電子メール送信・電話連絡などの目的で保管する可能性があります。お問合せ先不動産会社が保管する個人情報の取扱いについては、各不動産会社に直接お問合せください
- ※株式会社LIFULLでは本サービスを円滑に運用するために、お客様の発信者番号をサービスご利用の控えとして一定期間保管いたします
- ※上記および株式会社LIFULLの個人情報の取扱い方針に同意のうえ、お電話ください
【LIFULL HOME'S物件番号】0138024-0091842【自社管理番号】55181-0308
オンライン対応
オンライン相談・IT重説に対応している物件です

「オンライン内見」「オンライン相談」「IT重説」とは?
物件の内見や不動産会社スタッフとの相談、契約前の重要事項説明をオンライン(ビデオ通話)で行うことができるサービスです。
オンライン内見
ビデオ通話で現地(物件)にいる不動産会社スタッフと映像・音声を使ってリアルタイムで会話しながら内見ができます。
オンライン相談
「物件について聞きたいことがある」など不動産会社スタッフへの相談もビデオ通話で行うことができます。
IT重説
契約前の重要事項説明(重説)をビデオ通話で行うことができます。
利用時の注意事項
- ビデオ通話については各不動産会社指定のものとなります。
- ビデオ通話利用時には通信が発生します。従量課金制通信サービスや通信量に上限があるネット回線・プランを利用する場合は、通信量にご注意ください。
- 通信速度やアプリの設定によってはビデオ通話の画質が低下することがあります。安定した画質で利用するためにも、Wi-Fi環境下での利用を推奨します。
- ご利用のビデオ通話アプリによっては、対象のOSやブラウザに制限がある場合があります。詳しくはお問合せ先不動産会社にご確認ください。
初期費用・月額費用をあわせて確認!この物件に住んだときの費用めやす
めやすを見るこの物件に住んだときの費用めやす
- 初期費用
- 月額費用
- 追加費用※ご確認ください
追加で費用が
かかる場合があります
必ずご確認ください
初期費用めやす約0円
追加で費用がかかります(※)敷金
0
- 礼金
53,000
賃料+共益費・管理費の1ヶ月分として換算
賃料の1ヶ月分+税として換算。不動産会社によって金額が異なるため正確な金額は不動産会社にお問合せください
※追加費用もチェック!
これらの項目以外にも費用がかかる場合があります。正確な金額は不動産会社にお問合せください。
- 初期費用
- 鍵交換費:16,500円
- 室内清掃費:41,800円
- 火災保険費:不動産会社に要確認
- 月額費用
- 駐車場費:5,500円(税込)※契約任意
- その他
- 抗菌施工代(初回):23760円
- 設備維持費(月額):550円
- インターネット使用料(月額):3630円
- 保証会社
- 60、550円
不動産会社より
家具家電付きレオパレスの物件です--パノラマ掲載--
お部屋は角部屋で隣室の騒音の影響を受けにくい傾向にあり、収納としてクローゼットを備えております。周辺にはファミリーマート 木津梅美台店があり便利です。・インターネット接続可
- 保存する
- 共有する
- ※各種情報と現状に差異がある場合は、現状優先となります
- ※不動産会社が入力した情報を基に物件の位置を表示しています。詳しくは不動産会社までお問合せください
- ※不動産会社の方からの上記電話番号によるお問合せはお断りしております。こちら不動産会社詳細からお問合せください
- ※LIFULL HOME'Sは物件鮮度No.1を目指していきます。閲覧中の物件が「成約済である」「実際の物件情報と異なる点がある」などの場合、「掲載110番」からお問合せください
- ※QRコードは株式会社デンソーウェーブの登録商標です
LIFULL HOME'S 地図・周辺情報
買い物
- ファミリーマート 木津梅美台店
- バロー 木津川店
- サンドラッグ木津川店
- ローソン 木津川州見台店
- ダイソー中村屋梅美台店
グルメ
- なか卯 フォレストモール木津川店
- はま寿司フォレストモール木津川店
- バーミヤン 京都木津川店
- サガミ 木津川城山台店
- 無添くら寿司 木津川店
育児・教育
- 幼保連携型認定こども園梅美台こども園
- 木津川市立梅美台小学校
- 木津川市立木津南中学校
- 幼保連携型認定こども園なごみこども園
- 奈良市立鼓阪北小学校
医療
- 京都山城総合医療センター
公共施設・郵便局
- 木津梅美台郵便局
- 木津川市役所
- 奈良青山郵便局
- 平城山駅前郵便局
- 奈良法蓮郵便局
公園
- 青山近隣公園
- ロート奈良鴻ノ池パーク
- 上人ケ平遺跡公園
- 佐保山近隣公園
利用可能な駅
- 徒歩10分以内
JR片町線(学研都市線)
- 木津駅 バス13分 関西光科学研究所下車徒歩3分
近鉄奈良線
- 近鉄奈良駅 バス13分 関西光科学研究所下車徒歩3分
- すべての駅
JR関西本線
- 平城山駅3.6km
- その他交通
- 近鉄京都線 高の原駅 バス11分 関西光科学研究所下車 徒歩3分
- 周辺情報は2023年07月21日時点のものになります。
- 周辺情報は、参考情報としてのみご利用ください(周辺情報は、株式会社LIFULLが地図情報の提供事業者から提供を受けた情報とLIFULL HOME'Sの物件情報に基づき、独自の方法で抽出し提供しているものです。周辺情報は、移転や閉鎖等により情報が最新ではない、または正しくない場合がありますが、地図情報の提供事業者から提供された情報をそのまま周辺情報として表示しているため、正確かつ最新の情報へ修正することができないことがあります。)
- 周辺情報は、株式会社LIFULLが掲載するものであり、不動産物件情報を掲載している不動産会社が掲載するものではありません
- 交通情報の一部については、株式会社LIFULLが掲載するものであり、不動産物件情報を掲載している不動産会社が掲載するものではない場合があります。交通情報に関する質問などは株式会社LIFULLにお問合せください













