このページは物件の広告情報ではありません。
過去にLIFULL HOME'Sへ掲載された不動産情報と提携先の地図情報を元に生成した参考情報です。また、一般から投稿された情報など主観的な情報も含みます。
情報更新日: 2026/03/27
プライムメイツ伏見丹波橋
スポンサーリンク
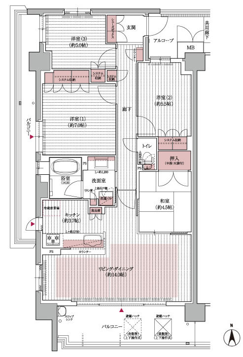
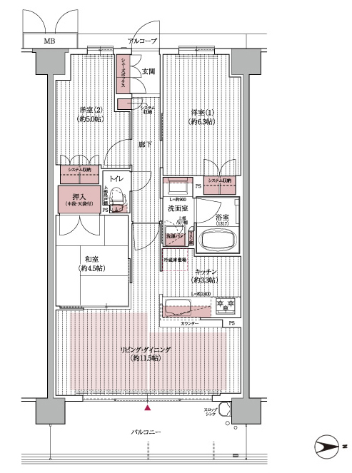
プライムメイツ伏見丹波橋の建物情報
物件概要
| 物件種別 | マンション |
|---|---|
| 築年月(築年数) | 2014年3月 (築13年) |
| 建物構造 | 鉄筋コンクリート造地上7階建て |
| 総戸数/総区画数 | 75戸 |
| 敷地全体面積 | 2,768.63m2 |
| 用途地域 | 準工業 |
| 地目 | 宅地 |
| 土地権利 | 所有権 |
| 建築確認番号 | 第H24確認建築CIAS 01992号(平成25年1月29日付) |
| 施工会社 | 株式会社長谷工コーポレーション |
| 売主 | 名鉄不動産株式会社[国土交通大臣(14) 第337号] (社)不動産協会会員、首都圏不動産公正取引協議会加盟 |
| 販売会社 | 株式会社長谷工アーベスト(代理)[国土交通大臣(8) 第3175号](社)不動産協会会員 (社)首都圏不動産公正取引協議会加盟 |
設備・条件
- 追い焚き
- 浴室乾燥機
- コンロ三口以上
- システムキッチン
- 食器洗い乾燥機
- 浄水器・活水器
- 床暖房
- ブロードバンド
- シングル&DINKS向け
- 4LDK以上
- 複層ガラス採用(二重サッシ・防犯サッシ等)
- オートロック
- 防犯カメラ
- セキュリティ充実
- 住宅性能評価書
- 子育てに優しい環境
- スーパー800m以内
- コンビニ400m以内
- 小学校800m以内
- 公園400m以内
※最新の状態と異なる場合があります
売りたい不動産をお持ちの方へ
このエリアの所有不動産を査定する
売却査定手続きの流れ、費用相場や注意点など不動産売却について詳しく知りたい方はLIFULL HOME'S 不動産査定へ
プライムメイツ伏見丹波橋の周辺施設
-
買い物
日用品 -
- ファミリーマート 伏見西丹波橋店
- 新鮮激安市場!伏見丹波橋店
- ワッツウィズ伏見丹波橋新鮮激安市場店
- ワッツ新堀川店
- 買い物
大型店 -
- マックハウス 新堀川店
- ホームセンターコーナン 伏見大手筋店
- エディオン タニヤマ大手筋店
- ミキハウスキンイチヤ
- グルメ
-
- ザめしや 京都伏見店
- ステーキ宮 京都伏見店
- ケンタッキーフライドチキン 新堀川伏見下鳥羽店
- かつや 京都新堀川店
- 娯楽施設
-
- 快活CLUB新堀川店
- 三栖公園テニスコート
- 三栖公園
- 三栖公園野球場
- 役所
公共施設 -
- 伏見警察署
- 京都御駕篭郵便局
- 京都市伏見区役所
- 京都市伏見中央図書館
- 医療
-
- 社会福祉法人浩照会伏見桃山総合病院
- 医療法人社団蘇生会総合病院
- 医療法人社団蘇生会蘇生会総合病院介護医療院
- 保育施設
-
- 住吉西保育園
- みどり保育園
- 板橋保育園
- 第二あけぼの保育園
- 学校
-
- 京都市立伏見中学校
- 京都市立伏見板橋小学校
- 京都市立伏見住吉小学校
- 京都市立下鳥羽小学校
※学区外の学校が含まれる場合があります。実際の学区は必ず各自治体へご確認ください。
プライムメイツ伏見丹波橋周辺の物件情報
周辺の問合せ可能な物件
京都府京都市伏見区の問合せ可能な物件のうち、この物件の周辺にあるものから表示しています
賃貸
-
募集中
- 松屋町貸家
- 13.5万円
- 京阪本線 丹波橋駅 徒歩14分
- 京都府京都市伏見区松屋町
- 81.42m² / 3LDK
-
募集中
- 京阪本線 丹波橋駅 徒歩14分
- 9.7万円
- 京阪本線 丹波橋駅 徒歩14分
- 京都府京都市伏見区川東町
- 57.47m² / 2LDK
-
募集中
- シェーンブルンII
- 9.7万円
- 京阪本線 丹波橋駅 徒歩14分
- 京都府京都市伏見区川東町
- 57.47m² / 2LDK
-
募集中
- 京阪本線 丹波橋駅 徒歩15分
- 3万円
- 京阪本線 丹波橋駅 徒歩15分
- 京都府京都市伏見区松屋町
- 18.92m² / 1K
-
募集中
- ハイデンス豊幸
- 3万円
- 京阪本線 丹波橋駅 徒歩13分
- 京都府京都市伏見区松屋町
- 13.0m² / ワンルーム
-
募集中
- 京阪本線 丹波橋駅 徒歩14分
- 8.7万円
- 京阪本線 丹波橋駅 徒歩14分
- 京都府京都市伏見区松屋町
- 47.53m² / 1LDK
-
募集中
- ShaMaisonLesBois
- 8.7万円
- 京阪本線 丹波橋駅 徒歩14分
- 京都府京都市伏見区松屋町
- 47.53m² / 1LDK
-
募集中
- ヴィラパーシモン
- 5.9万円
- 京阪本線 丹波橋駅 徒歩12分
- 京都府京都市伏見区成町
- 29.95m² / 1DK
-
募集中
- 京阪本線 丹波橋駅 徒歩12分
- 5.9万円
- 京阪本線 丹波橋駅 徒歩12分
- 京都府京都市伏見区成町
- 29.95m² / 1DK
-
募集中
- パレトール
- 9万円
- 京阪本線 丹波橋駅 徒歩13分
- 京都府京都市伏見区大津町
- 52.8m² / 2LDK
中古マンション
-
売出し中
- 丹波橋日光ハイツ 中古マンション
- 2065万円
- 京阪本線 丹波橋駅 徒歩11分
- 京都府京都市伏見区川東町
- 64.68m² / 3LDK
-
売出し中
- ネバーランド伏見丹波橋
- 4480万円
- 近鉄京都線 伏見駅 徒歩15分
- 京都府京都市伏見区舞台町
- 101.56m² / 4SLDK
-
売出し中
- ディオ・フェルティ丹波橋右芳館
- 2150万円
- 近鉄京都線 伏見駅 徒歩14分
- 京都府京都市伏見区舞台町
- 63.72m² / 3LDK
-
売出し中
- ディオ・フェルティ丹波橋右芳館
- 2980万円
- 近鉄京都線 伏見駅 徒歩14分
- 京都府京都市伏見区舞台町
- 81.24m² / 4LDK
-
売出し中
- ディオ・フェルティ丹波橋右芳館
- 2299万円
- 近鉄京都線 伏見駅 徒歩14分
- 京都府京都市伏見区舞台町
- 61.56m² / 3LDK
-
売出し中
- グランデール桃山
- 780万円
- 京阪本線 丹波橋駅 徒歩9分
- 京都府京都市伏見区東朱雀町933番2
- 36.49m² / 1DK
-
売出し中
- グラン・ドムール伏見桃山
- 3599万円
- 京阪本線 伏見桃山駅 徒歩9分
- 京都府京都市伏見区東町
- 80.44m² / 3LDK
-
売出し中
- エスリード伏見桃山壱番館
- 4980万円
- 京阪本線 伏見桃山駅 徒歩8分
- 京都府京都市伏見区東組町
- 82.38m² / 3LDK
-
売出し中
- クレアガーデン伏見桃山
- 3430万円
- 京阪本線 伏見桃山駅 徒歩14分
- 京都府京都市伏見区横大路三栖山城屋敷町
- 65.56m² / 3LDK
-
売出し中
- ライオンズマンション伏見
- 4380万円
- 近鉄京都線 近鉄丹波橋駅 徒歩8分
- 京都府京都市伏見区新町11丁目
- 71.35m² / 3LDK
一戸建て
-
売出し中
- 京阪本線 丹波橋駅 徒歩17分
- 3180万円
- 京阪本線 丹波橋駅 徒歩17分
- 京都府京都市伏見区川東町
- 89.48m² / 3SLDK
-
売出し中
- 収益物件 中古戸建 京都市伏見区西大文字町
- 880万円
- 近鉄京都線 近鉄丹波橋駅 徒歩22分
- 京都府京都市伏見区西大文字町
- 73.71m² / 3LDK
-
売出し中
- 伏見区西大文字町
- 1780万円
- 京阪本線 伏見桃山駅 徒歩16分
- 京都府京都市伏見区西大文字町
- 117.37m² / 4DK
-
売出し中
- 景勝町
- 1080万円
- 近鉄京都線 伏見駅 徒歩14分
- 京都府京都市伏見区景勝町3-13
- 46.64m² / 4SK
-
売出し中
- 伏見区御駕篭町
- 1780万円
- 京阪本線 丹波橋駅 徒歩8分
- 京都府京都市伏見区御駕籠町110-9
- 61.13m² / 3DK
-
売出し中
- 京都市伏見区革屋町 中古一戸建て
- 3599万円
- 京阪本線 伏見桃山駅 徒歩11分
- 京都府京都市伏見区革屋町
- 81.13m² / 3LDK
-
売出し中
- 伏見区西朱雀町 店舗付き中古戸建
- 3280万円
- 近鉄京都線 伏見駅 徒歩9分
- 京都府京都市伏見区西朱雀町
- 119.68m² / 1LDK
-
売出し中
- 近鉄京都線 伏見駅 徒歩10分
- 990万円
- 近鉄京都線 伏見駅 徒歩10分
- 京都府京都市伏見区景勝町
- 47.69m² / 4DK
-
売出し中
- 京阪本線 丹波橋駅 徒歩9分
- 8780万円
- 京阪本線 丹波橋駅 徒歩9分
- 京都府京都市伏見区小豆屋町
- 121.06m² / 2LDK
-
売出し中
- 京阪本線 中書島駅 徒歩10分
- 680万円
- 京阪本線 中書島駅 徒歩10分
- 京都府京都市伏見区村上町
- 43.63m² / 2DK
注文住宅
※表示価格は延べ床面積約132m²の場合の建物価格の参考値です
-
資料請求受付中
- 3000万円〜
- セキスイハイム
- 【セキスイハイム】総合カタログ(heimism)
-
資料請求受付中
- 3400万円〜
- へーベルハウス
- 【ヘーベルハウス】:ヘーベルハウス総合カタログ
-
資料請求受付中
- 2432万円〜
- ヤマト住建株式会社
- 【LEGANTIA】邸宅の頂点がここにある。受け継がれる価値、未来へ続く邸宅
-
資料請求受付中
- 3200万円〜
- 大和ハウス
- 【大和ハウス】 xevoΣ<ジーヴォシグマ> ~天井高2m72cmの高さというゆとり空間~
-
資料請求受付中
- 2000万円〜
- 一条工務店
- 【一条工務店】 建築実例集3冊セット(HOME’S限定)
-
資料請求受付中
- -
- 積水ハウス
- BRAND BOOK
エリア・駅で絞り込んで探す
物件の種類から探す
京都市伏見区で募集中の物件のみを検索できます
掲載情報に誤りや問題がある場合
LIFULL HOME'Sは「不動産会社」ではなく「情報掲載サイト」です
- ※管理会社の情報はLIFULL HOME'Sでは保持していないためお答えできません。お問合せはお控えください
- ※最新の募集状況は掲載中の不動産会社があれば、不動産会社へ直接お問合せください
掲載情報の訂正依頼 専用ダイヤル
0120-987-243
- 専用ダイヤル受付時間:10:00〜18:00
- ※土日・祝日、臨時休業日は除く
不動産データのご利用について
不動産事業におけるDX、サービスの改善、新規事業開発等をご検討中の方へ不動産データの活用をご提案します。LIFULL HOME'Sで集約した不動産情報や外部データは、不動産事業DX、不正決済防止、ローン審査、事業開発、研究等さまざまな事業でご活用いただいています。詳しくは以下よりご確認ください。
不動産アーカイブご利用アンケートにご協力ください
不動産アーカイブの掲載情報は、LIFULL HOME'S掲載の不動産情報および提携先の不動産情報を統計情報として集積したものであり、その存在や信憑性を保証するものではありません。