このページは物件の広告情報ではありません。
過去にLIFULL HOME'Sへ掲載された不動産情報と提携先の地図情報を元に生成した参考情報です。また、一般から投稿された情報など主観的な情報も含みます。
情報更新日: 2025/11/25
オープンレジデンシア表参道est
| 所在地 | 東京都港区西麻布2丁目98-4他 |
|---|---|
| 交通 |
|
スポンサーリンク
オープンレジデンシア表参道estの建物情報
物件概要
| 物件種別 | マンション |
|---|---|
| 築年月(築年数) | 2014年8月 (築12年) |
| 建物構造 | 鉄筋コンクリート造地上5階地下1階 |
| 総戸数/総区画数 | 58戸 |
| 敷地全体面積 | 1598.18m2 |
| 管理人 | 巡回 |
| 用途地域 | 第一種中高層住居専用 |
| 土地権利 | 所有権 |
| 建築確認番号 | 13SGS-A-03-0004号(平成25年2月1日)計画変更建築確認番号:13SGS-A-03-0017号(平成25年5月31日)計画変更建築確認番号:13SGS-A-03-0022号(平成25年7月26日) |
| 施工会社 | 株式会社ナカノフドー建設 |
| 売主 | 株式会社オープンハウス・ディベロップメント |
| 販売会社 | 株式会社オープンハウス(代理) |
設備・条件
- 追い焚き
- システムキッチン
- シングル&DINKS向け
- オートロック
※最新の状態と異なる場合があります
売りたい不動産をお持ちの方へ
このエリアの所有不動産を査定する
売却査定手続きの流れ、費用相場や注意点など不動産売却について詳しく知りたい方はLIFULL HOME'S 不動産査定へ
オープンレジデンシア表参道estの周辺施設
-
買い物
日用品 -
- ファミリーマート 西麻布霞町店
- ローソン 西麻布一丁目店
- ミニストップ 南青山4丁目店
- セブンイレブン 西麻布4丁目店
- 買い物
大型店 -
- COS青山店
- H BEAUTY&YOUTH
- ユナイテッドアローズ六本木ヒルズ店
- タビオ六本木ヒルズ店
- グルメ
-
- 焼肉トラジ西麻布店
- 游玄亭 西麻布本館店
- 威風南青山店
- スターバックスコーヒー南青山骨董通り店
- 娯楽施設
-
- 都立青山公園
- セントラルフィットネスクラブ南青山
- 高陵中学校屋内プール
- TOHOシネマズ六本木ヒルズ
- 文化施設
-
- 根津美術館
- 国立美術館国立新美術館
- ヨックモックミュージアム
- 森美術館
- 役所
公共施設 -
- 西麻布郵便局
- 渋谷広尾四郵便局
- 六本木ヒルズ郵便局
- 乃木坂駅前郵便局
- 医療
-
- 公益財団法人心臓血管研究所付属病院
- 日本赤十字社医療センター
- 保育施設
-
- 港区立西麻布保育園
- コスモス西麻布保育園
- 港区立青南幼稚園
- 小学館アカデミー南青山保育園
- 学校
-
- 港区立青南小学校
- 港区立高陵中学校
- 国立大学法人政策研究大学院大学
- 私立東京女学館高校
オープンレジデンシア表参道est周辺の物件情報
周辺の問合せ可能な物件
東京都港区の問合せ可能な物件のうち、この物件の周辺にあるものから表示しています
賃貸
-
募集中
- 東京メトロ銀座線 表参道駅 徒歩10分
- 12万円
- 東京メトロ銀座線 表参道駅 徒歩10分
- 東京都港区西麻布2丁目8-12
- 24.99m² / ワンルーム
-
募集中
- エアータワー西麻布
- 12万円
- 東京メトロ銀座線 表参道駅 徒歩10分
- 東京都港区西麻布2丁目8-12
- 24.99m² / ワンルーム
-
募集中
- コモド西麻布
- 11.7万円
- 東京メトロ銀座線 表参道駅 徒歩15分
- 東京都港区西麻布2丁目22-14
- 23.2m² / ワンルーム
-
募集中
- 東京メトロ日比谷線 六本木駅 徒歩13分
- 11.7万円
- 東京メトロ日比谷線 六本木駅 徒歩13分
- 東京都港区西麻布2丁目22-14
- 23.2m² / ワンルーム
-
募集中
- 東京メトロ千代田線 乃木坂駅 徒歩10分
- 40.9万円
- 東京メトロ千代田線 乃木坂駅 徒歩10分
- 東京都港区西麻布2丁目7-4
- 58.34m² / 2LDK
-
募集中
- グランパセオ西麻布II(GRANPASEO西麻布II)
- 40.9万円
- 東京メトロ千代田線 乃木坂駅 徒歩10分
- 東京都港区西麻布2丁目7-4
- 58.34m² / 2LDK
-
募集中
- SKY TERRACE NISHIAZABU
- 13.3万円
- 東京メトロ銀座線 表参道駅 徒歩11分
- 東京都港区西麻布2丁目
- 30.99m² / 1K
-
募集中
- SKY TERRACE NISHIAZABU
- 13.3万円
- 東京メトロ銀座線 表参道駅 徒歩11分
- 東京都港区西麻布2丁目
- 30.99m² / 1K
-
募集中
- 東京メトロ銀座線 表参道駅 徒歩11分
- 13.3万円
- 東京メトロ銀座線 表参道駅 徒歩11分
- 東京都港区西麻布2丁目21-19
- 30.99m² / 1K
-
募集中
- スカイテラス西麻布(SKY TERRACE NISHIAZA
- 13.3万円
- 東京メトロ銀座線 表参道駅 徒歩11分
- 東京都港区西麻布2丁目21-19
- 30.99m² / 1K
新築マンション
※完成後1年以上経過した未入居の物件が含まれている場合があります
-
売出し中
- 東京メトロ南北線「麻布十番」駅 徒歩6分
- 未定
- 東京メトロ南北線「麻布十番」駅 徒歩6分
- 東京都港区南麻布二丁目4-51(地名地番)
- 60.17m² / 1LDK・2LDK
-
売出し中
- 東京メトロ南北線「白金高輪」駅 徒歩7分
- 未定
- 東京メトロ南北線「白金高輪」駅 徒歩7分
- 東京都港区三田五丁目11番3
- 62.08m² / 1K・1LDK・2LDK
-
売出し中
- 都営三田線「三田」駅 徒歩8分
- 未定
- 都営三田線「三田」駅 徒歩8分
- 東京都港区三田二丁目8番3(地番)
- 80.62m² / 2LDK~3LDK
-
売出し中
- 三田ガーデンヒルズ ウエストヒル
- 5億円
- 東京メトロ南北線 麻布十番駅 徒歩5分
- 東京都港区三田1丁目4-60
- 70.68m² / 2LDK
-
売出し中
- ジオグランデ白金台
- 5億9800万円
- 東京メトロ南北線 白金台駅 徒歩4分
- 東京都港区白金台3丁目
- 107.69m² / 3LDK
-
売出し中
- 三田ガーデンヒルズ EASTHILL
- 5億5000万円
- 東京メトロ南北線 麻布十番駅 徒歩7分
- 東京都港区三田1丁目
- 72.51m² / 2LDK
-
売出し中
- アトラス麻布十番
- 3億8000万円
- 東京メトロ南北線 麻布十番駅 徒歩4分
- 東京都港区三田1丁目
- 63.95m² / 2LDK
-
売出し中
- 東京メトロ銀座線「表参道」駅 徒歩8分 【B1出口(6:00-22:00)利用】/ 徒歩9分【B3・A5出口利用】
- 一般販売住戸:未定
- 東京メトロ銀座線「表参道」駅 徒歩8分 【B1出口(6:00-22:00)利用】/ 徒歩9分【B3・A5出口利用】
- 東京都港区南青山6丁目255番、256番1
- 70.43m² / 一般販売住戸:2LDK
-
売出し中
- JR山手線「品川」駅 徒歩13分 (港南口)
- 未定
- JR山手線「品川」駅 徒歩13分 (港南口)
- 東京都港区港南3丁目7-2(地番)
- 103.39m² / 1LDK~3LDK
-
売出し中
- 東京メトロ日比谷線「神谷町」駅 徒歩2分
- 24,000万円~39,000万円
- 東京メトロ日比谷線「神谷町」駅 徒歩2分
- 東京都港区虎ノ門三丁目209-1他(地番)
- 75.13m² / 2LD・K
中古マンション
-
売出し中
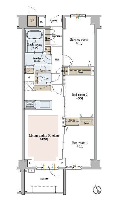
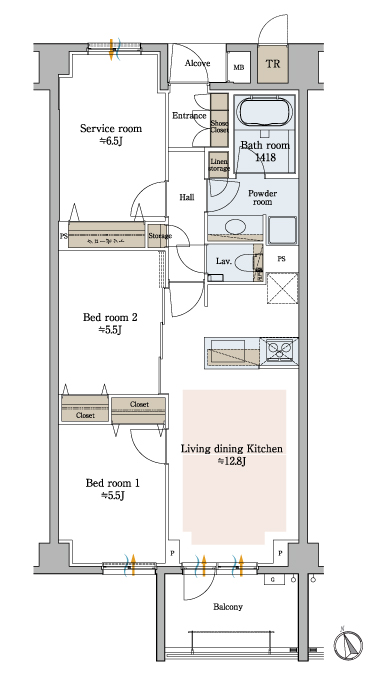
- オープンレジデンシア表参道est
- 1億8500万円
- 東京メトロ千代田線 表参道駅 徒歩12分
- 東京都港区西麻布2丁目24
- 68.58m² / 2SLDK
-
売出し中
- 東京メトロ日比谷線 六本木駅 徒歩11分
- 6499万円
- 東京メトロ日比谷線 六本木駅 徒歩11分
- 東京都港区西麻布2丁目
- 41.35m² / 1LDK
-
売出し中
- 秀和麻布笄町レジデンス
- 6499万円
- 東京メトロ日比谷線 六本木駅 徒歩11分
- 東京都港区西麻布2丁目24-25
- 41.35m² / 1LDK
-
売出し中
- メゾン松方
- 7199万円
- 東京メトロ銀座線 表参道駅 徒歩9分
- 東京都港区南青山4丁目26-19
- 45.94m² / 2SDK
-
売出し中
- 東京メトロ銀座線 表参道駅 徒歩9分
- 7199万円
- 東京メトロ銀座線 表参道駅 徒歩9分
- 東京都港区南青山4丁目
- 45.94m² / 1LDK
-
売出し中
- メゾン松方
- 7199万円
- 東京メトロ千代田線 表参道駅 徒歩9分
- 東京都港区南青山4丁目26
- 45.94m² / 2DK
-
売出し中
- 東京メトロ日比谷線 六本木駅 徒歩10分
- 4980万円
- 東京メトロ日比谷線 六本木駅 徒歩10分
- 東京都港区西麻布4丁目
- 28.67m² / 1K
-
売出し中
- 日神パレステージ西麻布 リノベ済
- 4980万円
- 都営大江戸線 六本木駅 徒歩10分
- 東京都港区西麻布4丁目11-2
- 28.67m² / 1K
一戸建て
-
売出し中
- A HOUSE TOKYO
- 3億6000万円
- 東京メトロ千代田線 乃木坂駅 徒歩12分
- 東京都港区西麻布2丁目
- 136.35m² / 3SLDK
-
売出し中
- 西麻布4丁目中古戸建
- 2億9500万円
- 東京メトロ日比谷線 広尾駅 徒歩7分
- 東京都港区西麻布4丁目
- 101.85m² / 3LDK
-
売出し中
- 赤坂 3階建てTERRACE付き 一戸建て
- 2億円
- 東京メトロ千代田線 赤坂駅 徒歩6分
- 東京都港区赤坂6丁目
- 124.22m² / 2SLDK
-
売出し中
- 港区南麻布4丁目中古戸建
- 1億6750万円
- 東京メトロ日比谷線 広尾駅 徒歩8分
- 東京都港区南麻布4丁目
- 119.65m² / 3SLDK
-
売出し中
- 港区麻布台三丁目 RC造戸建
- 6億5800万円
- 都営大江戸線 麻布十番駅 徒歩8分
- 東京都港区麻布台3丁目
- 209.94m² / 5LDK
-
売出し中
- 港区赤坂4丁目
- 2億9000万円
- 東京メトロ千代田線 赤坂駅 徒歩6分
- 東京都港区赤坂4丁目
- 120.46m² / 3LDK
-
売出し中
- 東麻布2丁目 戸建
- 6億円
- 都営大江戸線 赤羽橋駅 徒歩4分
- 東京都港区東麻布2丁目31-3
- 148.32m² / 2LDK
-
売出し中
- 港区白金6丁目 一戸建て
- 1億6980万円
- 東京メトロ南北線 白金台駅 徒歩10分
- 東京都港区白金6丁目12
- 123.62m² / 3LDK
-
売出し中
- 港区三田二丁目
- 7900万円
- 都営三田線 三田駅 徒歩8分
- 東京都港区三田2丁目
- 100.59m² / 2LDK
エリア・駅で絞り込んで探す
賃貸
東京都のオープンレジデンシアが含まれるマンション
周辺の建物情報
物件の種類から探す
港区で募集中の物件のみを検索できます
掲載情報に誤りや問題がある場合
LIFULL HOME'Sは「不動産会社」ではなく「情報掲載サイト」です
- ※管理会社の情報はLIFULL HOME'Sでは保持していないためお答えできません。お問合せはお控えください
- ※最新の募集状況は掲載中の不動産会社があれば、不動産会社へ直接お問合せください
掲載情報の訂正依頼 専用ダイヤル
0120-987-243
- 専用ダイヤル受付時間:10:00〜18:00
- ※土日・祝日、臨時休業日は除く
不動産データのご利用について
不動産事業におけるDX、サービスの改善、新規事業開発等をご検討中の方へ不動産データの活用をご提案します。LIFULL HOME'Sで集約した不動産情報や外部データは、不動産事業DX、不正決済防止、ローン審査、事業開発、研究等さまざまな事業でご活用いただいています。詳しくは以下よりご確認ください。
不動産アーカイブご利用アンケートにご協力ください
不動産アーカイブの掲載情報は、LIFULL HOME'S掲載の不動産情報および提携先の不動産情報を統計情報として集積したものであり、その存在や信憑性を保証するものではありません。