このページは物件の広告情報ではありません。
過去にLIFULL HOME'Sへ掲載された不動産情報と提携先の地図情報を元に生成した参考情報です。また、一般から投稿された情報など主観的な情報も含みます。
情報更新日: 2025/11/28
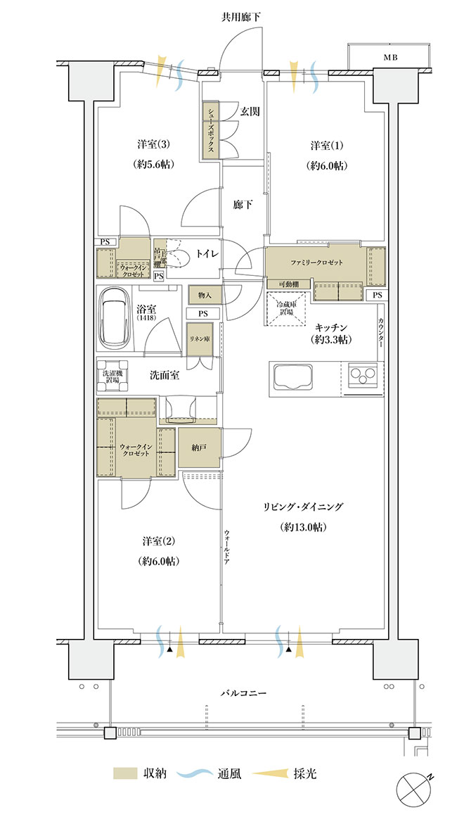
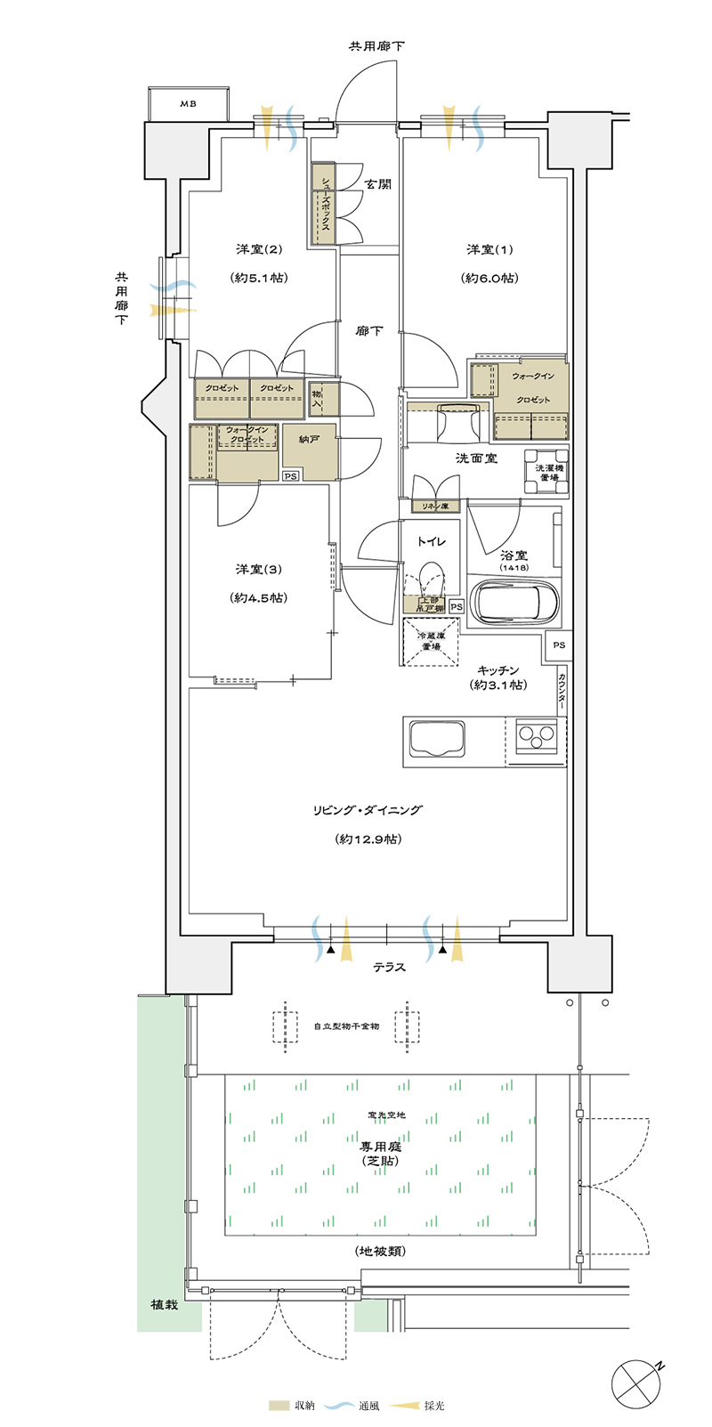
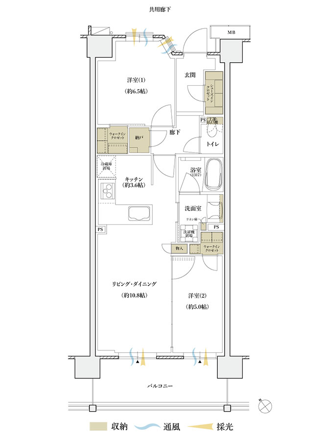
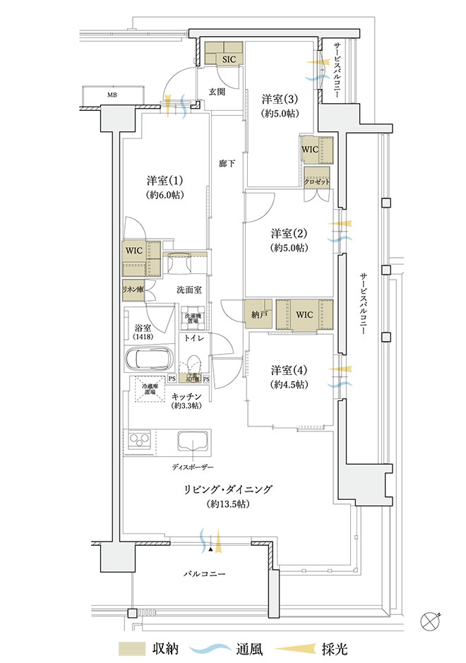
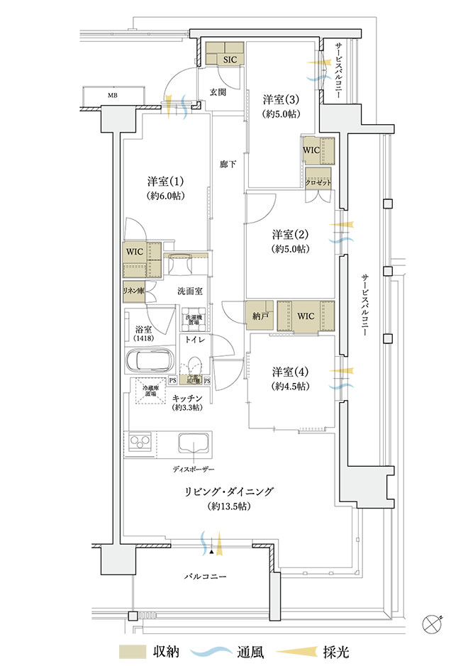
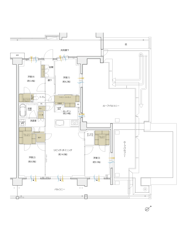
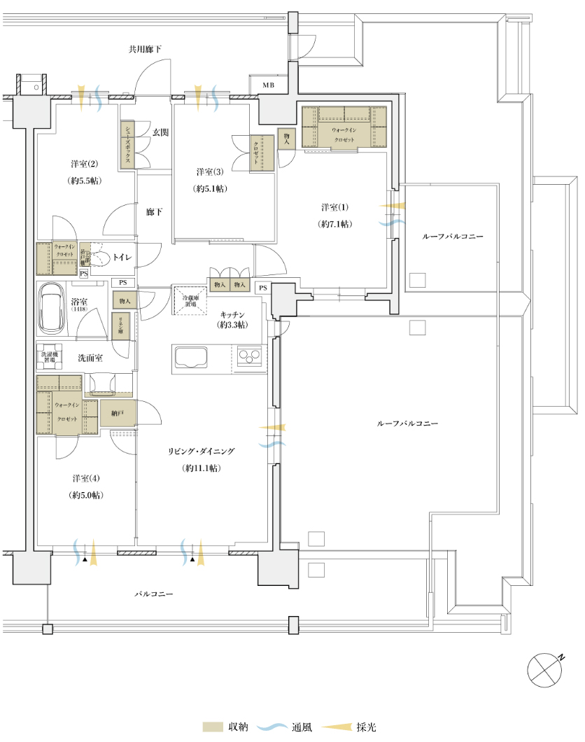
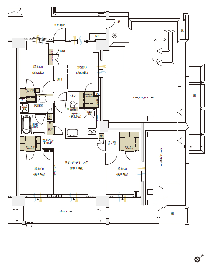
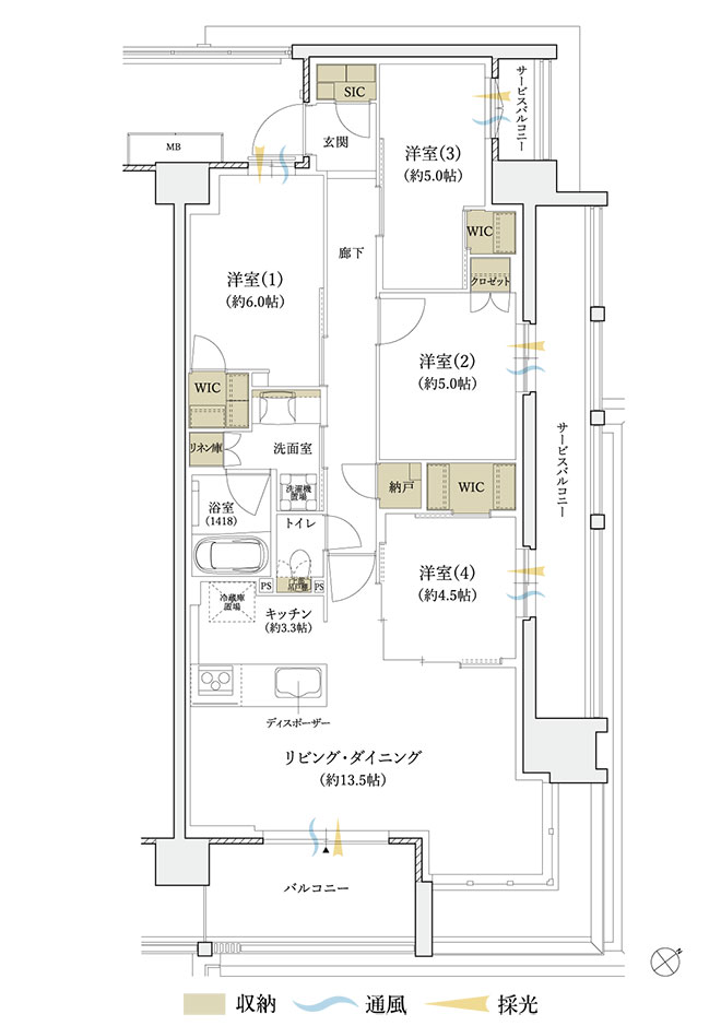
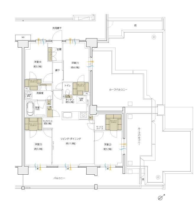
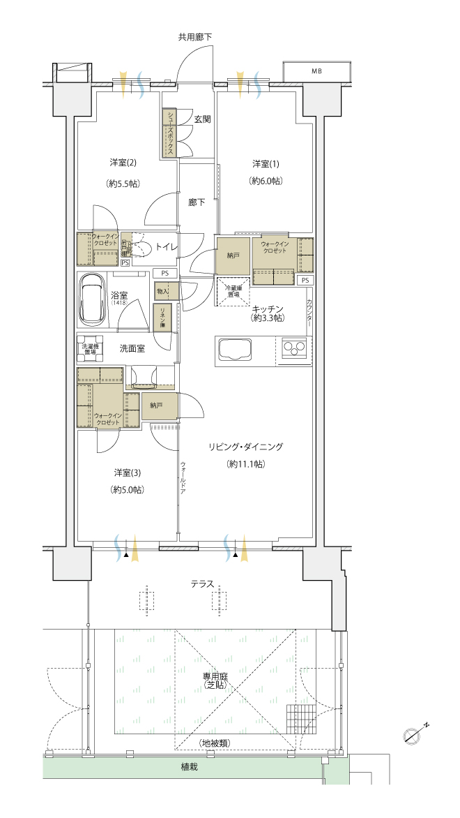
シエリアシティ横浜東戸塚
| 所在地 | 神奈川県横浜市戸塚区前田町字阿らす100番2他(地番) |
|---|---|
| 交通 |
|
| 価格 | 5,400万円台~9,500万円台(予定) |
| 管理費等 | 14,400円~21,100円(月額) |
| 修繕積立金 | 6,050円~8,860円(月額) |
スポンサーリンク
シエリアシティ横浜東戸塚の建物情報
物件概要
| 物件種別 | マンション |
|---|---|
| 築年月(築年数) | 2027年2月 (完成予定) |
| 建物構造 | 鉄筋コンクリート造、地上7階建 |
| 販売個数(区画数) | 未定 |
| 総戸数/総区画数 | 482戸 |
| 敷地全体面積 | 18,652.93m2(建築確認対象面積:17,489.30m2、建築確認対象に含まない越境面積:0.25m2、セットバック面積:44.20m2、提供公園面積:1,119.18m2) |
| 用途地域 | 準工業 |
| 土地権利 | 所有権 |
| 建築確認番号 | 第UHEC建確R050916号(令和6年3月26日) |
| 施工会社 | 株式会社長谷工コーポレーション |
| 売主 | 関電不動産開発株式会社 首都圏事業本部、株式会社ジェイアール東日本都市開発(国土交通大臣(7)第5270号)、パナソニック ホームズ株式会社 都市開発首都圏支社(国土交通大臣(15)第982号)、神奈川中央交通株式会社(神奈川県知事(16)第1996号) |
| 販売会社 | 株式会社長谷工アーベスト(代理) |
設備・条件
- 追い焚き
- システムキッチン
- シングル&DINKS向け
- 4LDK以上
- オートロック
※最新の状態と異なる場合があります
売りたい不動産をお持ちの方へ
このエリアの所有不動産を査定する
売却査定手続きの流れ、費用相場や注意点など不動産売却について詳しく知りたい方はLIFULL HOME'S 不動産査定へ
シエリアシティ横浜東戸塚の周辺施設
-
買い物
日用品 -
- デイリーヤマザキ 戸塚上柏尾店
- ローソン 戸塚品濃町店
- ハックドラッグ東戸塚前田町店
- Olympic おりーぶ東戸塚店
- 買い物
大型店 -
- 島忠東戸塚店
- 紳士服コナカ 東戸塚総本店
- 西武東戸塚S.C.
- ハニーズ 西武東戸塚SC店
- グルメ
-
- 安楽亭 東戸塚店
- 無添くら寿司 東戸塚駅東口店
- ドトールコーヒーショップ東戸塚店
- 中華食堂日高屋東戸塚東口店
- 娯楽施設
-
- 秋葉台公園
- 快活CLUB東戸塚駅前店
- セントラルフィットネスクラブ東戸塚駅前
- 川上公園
- 役所
公共施設 -
- 横浜柏尾郵便局
- 東戸塚駅東口郵便局
- 保育施設
-
- 横浜東戸塚雲母保育園
- 明日葉保育園東戸塚園
- ちゃいれっく前田町保育園
- ことは保育園
- 学校
-
- 横浜市立品濃小学校
- 横浜市立川上北小学校
- 横浜市立柏尾小学校
- 横浜市立秋葉中学校
シエリアシティ横浜東戸塚周辺の物件情報
周辺の問合せ可能な物件
神奈川県横浜市戸塚区の問合せ可能な物件のうち、この物件の周辺にあるものから表示しています
賃貸
-
募集中
- リバーサイド中山 II
- 6.3万円
- JR横須賀線 東戸塚駅 徒歩15分
- 神奈川県横浜市戸塚区上柏尾町
- 40.0m² / 2DK
-
募集中
- JR横須賀線 東戸塚駅 徒歩15分
- 6.3万円
- JR横須賀線 東戸塚駅 徒歩15分
- 神奈川県横浜市戸塚区上柏尾町538-1
- 40.0m² / 2DK
-
募集中
- ピュアハウス
- 6.5万円
- JR横須賀線 東戸塚駅 徒歩10分
- 神奈川県横浜市戸塚区品濃町
- 33.77m² / 2DK
-
募集中
- JR横須賀線 東戸塚駅 徒歩12分
- 28万円
- JR横須賀線 東戸塚駅 徒歩12分
- 神奈川県横浜市戸塚区品濃町
- 137.35m² / 4LDK
-
募集中
- コートヴェルデ
- 5.6万円
- JR横須賀線 東戸塚駅 徒歩10分
- 神奈川県横浜市戸塚区品濃町48-48
- 22.35m² / ワンルーム
-
募集中
- リオグランデ東戸塚
- 9.58万円
- JR横須賀線 東戸塚駅 徒歩17分
- 神奈川県横浜市戸塚区平戸町82-5
- 37.45m² / 1LDK
-
募集中
- グランドメゾン東戸塚4番館
- 22万円
- JR横須賀線 東戸塚駅 徒歩10分
- 神奈川県横浜市戸塚区前田町
- 85.54m² / 3LDK
-
募集中
- JR横須賀線 東戸塚駅 徒歩10分
- 22万円
- JR横須賀線 東戸塚駅 徒歩10分
- 神奈川県横浜市戸塚区前田町
- 85.54m² / 3LDK
-
募集中
- グランドメゾン東戸塚2番館
- 18万円
- 湘南新宿ライン宇須 東戸塚駅 徒歩10分
- 神奈川県横浜市戸塚区前田町214-1
- 81.54m² / 3LDK
-
募集中
- 東戸塚ヒルズ
- 5.9万円
- JR横須賀線 東戸塚駅 徒歩15分
- 神奈川県横浜市戸塚区前田町
- 22.35m² / ワンルーム
新築マンション
※完成後1年以上経過した未入居の物件が含まれている場合があります
中古マンション
-
売出し中
- 藤和東戸塚ハイタウン
- 560万円
- JR横須賀線 東戸塚駅 徒歩17分
- 神奈川県横浜市戸塚区前田町56-1
- 29.88m² / 2K
-
売出し中
- スカイヴィレッジ戸塚
- 1299万円
- JR横須賀線 東戸塚駅 徒歩17分
- 神奈川県横浜市戸塚区上柏尾町500-12
- 48.82m² / 3DK
-
売出し中
- ヴェレーナグラン東戸塚
- 6980万円
- JR横須賀線 東戸塚駅 徒歩10分
- 神奈川県横浜市戸塚区品濃町
- 67.8m² / 3LDK
-
売出し中
- 東戸塚グリーンハイツ
- 2180万円
- JR横須賀線 東戸塚駅 徒歩19分
- 神奈川県横浜市戸塚区上柏尾町
- 72.79m² / 3LDK
-
売出し中
- 東戸塚グリーンハイツ#角住戸#専用庭#エアコン付
- 2180万円
- 湘南新宿ライン宇須 東戸塚駅 徒歩19分
- 神奈川県横浜市戸塚区上柏尾町
- 72.79m² / 3LDK
-
売出し中
- 前田プラザ
- 1780万円
- JR横須賀線 東戸塚駅 徒歩12分
- 神奈川県横浜市戸塚区前田町
- 60.3m² / 3LDK
-
売出し中
- ロイヤルシャトー東戸塚
- 3980万円
- JR横須賀線 東戸塚駅 徒歩15分
- 神奈川県横浜市戸塚区平戸町
- 102.54m² / 3LDK
-
売出し中
- シティウインズ東戸塚エアステージ
- 5580万円
- JR横須賀線 東戸塚駅 徒歩14分
- 神奈川県横浜市戸塚区平戸町
- 88.77m² / 4LDK
-
売出し中
- 秋葉ハイツ1号棟
- 1499万円
- JR横須賀線 東戸塚駅 徒歩20分
- 神奈川県横浜市戸塚区秋葉町
- 70.82m² / 3LDK
-
売出し中
- 東戸塚前田町パーク・ホームズ
- 4080万円
- JR横須賀線 東戸塚駅 徒歩13分
- 神奈川県横浜市戸塚区前田町
- 73.63m² / 3LDK
一戸建て
-
売出し中
- 中古戸建 東戸塚
- 4480万円
- JR横須賀線 東戸塚駅 徒歩14分
- 神奈川県横浜市戸塚区前田町
- 97.07m² / 4LDK
-
売出し中
- 戸塚区中古戸建 お庭 リビング階段 リフォーム済
- 4480万円
- 湘南新宿ライン宇須 東戸塚駅 徒歩14分
- 神奈川県横浜市戸塚区前田町
- 97.07m² / 4LDK
-
売出し中
- 横浜市戸塚区前田町中古戸建
- 4080万円
- JR横須賀線 東戸塚駅 徒歩17分
- 神奈川県横浜市戸塚区前田町
- 86.94m² / 4LDK
-
売出し中
- 横浜市戸塚区前田町 戸建
- 3980万円
- JR横須賀線 東戸塚駅 徒歩17分
- 神奈川県横浜市戸塚区前田町
- 86.94m² / 4LDK
-
売出し中
- JR横須賀線「東戸塚」駅 徒歩18分~18分
- 5,480万円
- JR横須賀線「東戸塚」駅 徒歩18分~18分
- 神奈川県横浜市戸塚区前田町523
- 82.38m² / 3LDK+S(納戸)
-
売出し中
- 戸塚区平戸町 中古一戸建て
- 3450万円
- JR横須賀線 東戸塚駅 徒歩15分
- 神奈川県横浜市戸塚区平戸町205-22
- 67.89m² / 3LDK
-
売出し中
- ラシット横浜 前田町 全1棟
- 5480万円
- JR横須賀線 東戸塚駅 徒歩18分
- 神奈川県横浜市戸塚区前田町523-32付近
- 82.38m² / 3LDK
-
売出し中
- 戸塚区上柏尾町
- 6500万円
- JR横須賀線 東戸塚駅 徒歩23分
- 神奈川県横浜市戸塚区上柏尾町
- 199.41m² / 2LDK
-
売出し中
- 戸塚区平戸町 中古戸建
- 5890万円
- JR横須賀線 東戸塚駅 徒歩17分
- 神奈川県横浜市戸塚区平戸町
- 99.77m² / 2LDK
-
売出し中
- 横浜市戸塚区前田町 新築一戸建て
- 6980万円
- JR横須賀線 戸塚駅 徒歩18分
- 神奈川県横浜市戸塚区前田町
- 111.33m² / 4LDK
注文住宅
※表示価格は延べ床面積約132m²の場合の建物価格の参考値です
-
資料請求受付中
- 2324万円〜
- ヤマト住建株式会社
- 【エネージュLCCM】脱炭素社会へ!住まいのすべての過程でCO2排出量を抑える住宅
-
資料請求受付中
- -
- へーベルハウス
- 【ヘーベルハウス】:ヘーベルハウス総合カタログ
-
資料請求受付中
- 3000万円〜
- 株式会社スウェーデンハウス
- 【スウェーデンハウス】お客様満足度総合第1位の声「No.1 Sweden House News」
-
資料請求受付中
- 3200万円〜
- ダイワハウス
- 【ダイワハウス】 xevoΣ<ジーヴォシグマ> ~天井高2m72cmの高さというゆとり空間~
-
資料請求受付中
- 2000万円〜
- 一条工務店
- 【一条工務店】 建築実例集3冊セット(HOME’S限定)
-
資料請求受付中
- 1868万円〜
- タマホーム株式会社
- 大安心の家シリーズ
-
資料請求受付中
- 3000万円〜
- セキスイハイム
- 【セキスイハイム|平屋】ザ・デザイナーズハイムD1
エリア・駅で絞り込んで探す
周辺の建物情報
物件の種類から探す
横浜市戸塚区で募集中の物件のみを検索できます
掲載情報に誤りや問題がある場合
LIFULL HOME'Sは「不動産会社」ではなく「情報掲載サイト」です
- ※管理会社の情報はLIFULL HOME'Sでは保持していないためお答えできません。お問合せはお控えください
- ※最新の募集状況は掲載中の不動産会社があれば、不動産会社へ直接お問合せください
掲載情報の訂正依頼 専用ダイヤル
0120-987-243
- 専用ダイヤル受付時間:10:00〜18:00
- ※土日・祝日、臨時休業日は除く
不動産データのご利用について
不動産事業におけるDX、サービスの改善、新規事業開発等をご検討中の方へ不動産データの活用をご提案します。LIFULL HOME'Sで集約した不動産情報や外部データは、不動産事業DX、不正決済防止、ローン審査、事業開発、研究等さまざまな事業でご活用いただいています。詳しくは以下よりご確認ください。
不動産アーカイブご利用アンケートにご協力ください
不動産アーカイブの掲載情報は、LIFULL HOME'S掲載の不動産情報および提携先の不動産情報を統計情報として集積したものであり、その存在や信憑性を保証するものではありません。