1. 不動産・住宅情報サイトLIFULL HOME'S
  2. マンション
  3. 新築マンション
  4. 関東
  5. 神奈川県
  6. 横浜市
  7. 戸塚区
  8. 東戸塚駅
  9. シエリアシティ横浜東戸塚
新築マンション 分譲中

シエリアシティ横浜東戸塚

  • 更新日:2026/05/12
  • 次回更新予定日:2026/05/26

物件の特徴

  • 先着順
  • 5,998万円~8,998万円
  • 所在地
    神奈川県横浜市戸塚区前田町字阿らす100番2他(地番) 地図を見る
    • ※不動産会社が入力した情報を基に物件の位置を表示しています
    • ※詳しくは不動産会社までお問合せください

    閉じる

  • 交通
    JR横須賀線「東戸塚」駅 徒歩13分
    湘南新宿ライン宇須「東戸塚」駅 徒歩13分
  • 引き渡し
    2027年4月中旬予定
  • 大規模マンション
  • 4LDK以上

販売概要

予告広告
この広告は予告広告を含みます。販売を開始するまでは、契約または予約(仮予約を含む)の申込および申込順位の確保には一切応じられませんのでご了承ください。価格または販売方法が未定の場合は、本広告にて確定情報をお知らせします。

ポイント

  • 総戸数482邸宅の大規模レジデンス。大型商業施設と公園隣接。
  • 60m2~91m2台、全144タイプ。南東向き中心。
  • 「横濱」駅直通8分と都心直通を可能にするマルチアクセス

お問合せ(無料)

モデルルーム見学する

5/23
5/24
5/25
5/26
5/27
×
5/28
×
5/29
5/30
5/31
6/1
6/2
6/3
×
6/4
×
6/5
資料請求する
シエリアシティ横浜東戸塚 シエリアシティ横浜東戸塚

詳しいパンフレットや図面集、リーフレット等がお手元に届きます。
質問・相談もできます


かんたん1分で
資料をもらう
無料

電話する

0037-618-64988 無料

QRコードを読み込むとすぐに電話できます。

お問合せ先
シエリアサロン横浜東戸塚
登録する
LINEで更新情報を受取る(無料)
価格・間取りなどの更新情報がLIFULL HOME'S公式のLINEから届きます

QRコードを読み込むと登録画面が表示されます
プライバシーポリシー
に同意の上ご登録ください

オリジナルムービー

掲載中の動画に関するご注意

  • ※掲載の動画はモデルルームタイプの間取り・眺望等を撮影したもので、階数や各住戸により設備・仕様、眺望等は異なる場合があります
  • ※モデルルームの仕様等は施工上の都合・改良等により変更になる場合があります。また周辺環境・眺望は将来変わる場合があります
  • ※動画内の家具・調度品等には一部オプション(有償)が含まれる場合があります

閉じる

コンセプト

東戸塚の街の魅力と、ここで叶う暮らしを描く

  • シエリアシティ横浜東戸塚 都市生活を彩る充実した住環境

    都市生活を彩る充実した住環境
    シエリアシティ横浜東戸塚は、横浜市戸塚区に誕生する総戸数482の大規模レジデンスです。この開発は、日常生活に便利な大型商業施設や緑豊かな公園に隣接しており、安心で快適な空間提供を目指し、都市と自然が調和する住環境を実現しています。東戸塚駅まで徒歩13分というアクセスの良さも特筆すべき点で、都心部への通勤やショッピングが非常に便利です。横浜駅までわずか8分(日中平常時7分)でアクセスでき、都心直通の交通の利便性が、快適なライフスタイルを支えています。このエリアは、特に子育て世代にとって魅力的な環境が整っており、教育機関や医療施設も充実しています。住まう人々の心安らぐ空間を創出し、日常に彩りを添える街づくりを大切にしています。
    ※掲載の完成予想CGは計画中の図面を基に描き起こしたもので、施工上の都合または行政官庁の指導などにより、外観、外構、仕上、形状、植栽などを変更する場合があります。植栽は特定の季節や入居時の状態を想定して描かれたものではありません。植栽計画については変更になる場合があります。また周辺の建物等一部省略しており、実際とは異なります。
    ※徒歩分数は80mを1分として算出し、端数は切り上げております。
    ※東戸塚駅 徒歩13分/約980m
    ローソン 戸塚品濃町 徒歩6分/約450m
    生活クラブ 東戸塚デポー 徒歩9分/約700m
    西武東戸塚S.C. 徒歩12分/約950m
    モレラ東戸塚 徒歩14分/約1,070m
    明日葉保育園 東戸塚園 徒歩4分/約290m
    横浜市立品濃小学校 徒歩8分/約590m
    横浜市立平戸中学校 徒歩17分/約1,340m
    平戸歯科医院 徒歩5分/約350m
    修行内科麻酔科クリニック 徒歩5分/約400m
    岩村耳鼻咽喉科医院 徒歩8分/約600m
    木下眼科 徒歩8分/約600m
    天王山公園 徒歩6分/約410m
    上柏尾第一公園 徒歩6分/約470m
    平戸台第二公園 徒歩5分/約380m
    もっと見る

間取り

公開中:11

間取り表記例:
Rルーフバルコニー
TRトランクルーム
Sサービスルーム(納戸)
DEN書斎(納戸)
WTCウォークスルークロゼット(クローク)
N納戸
MCマルチクロゼット(クローク)
Wウォークインクロゼット(クローク)
SCシューズクロゼット(クローク)
WICウォークインクロゼット(クローク)
SICシューズインクロゼット(クローク)

LINEで更新情報を受け取る(無料)

価格・間取りなどの更新情報がLIFULL HOME'S公式のLINEから届きます
プライバシーポリシーに同意の上ご登録ください

QRコードを読み込むと登録画面が表示されます

周辺環境・アクセス

現地案内図

シエリアシティ横浜東戸塚:案内図

所在地
神奈川県横浜市戸塚区前田町字阿らす100番2他(地番)
お問合せ先
シエリアサロン横浜東戸塚
0037-618-64988

交通アクセス図

シエリアシティ横浜東戸塚:交通図

シエリアシティ横浜東戸塚:交通図

シエリアシティ横浜東戸塚:交通図

※地図は概略図ですので省略されている道路・施設等があります。
※掲載の情報は2024年11月時点のものであり、今後変更になる場合がございます。

周辺スポット

  • 西武東戸塚S.C.
    約950m(徒歩12分)

  • ザ・ガーデン自由が丘 東戸塚店
    約950m(徒歩12分)

  • 東戸塚西口プラザ
    約1,330m(徒歩17分)

  • モレラ東戸塚
    約1,070m(徒歩14分)

  • オリンピック おりーぶ東戸塚店
    約690m(徒歩9分)

  • イオンスタイル東戸塚
    約1,180m(徒歩15分)

  • 柏尾川遊歩道
    約2,900m(徒歩37分)

  • 平戸永谷川遊水地広場
    約650m(徒歩9分)

  • 平戸みはらし公園
    約1,120m(徒歩14分)

  • ローソン 戸塚品濃町
    約450m(徒歩6分)
  • セブン-イレブン 横浜平戸町
    約640m(徒歩8分)
  • 生活クラブ 東戸塚デポー
    約700m(徒歩9分)
  • 明日葉保育園 東戸塚園
    約290m(徒歩4分)
  • びすけっと東戸塚
    約680m(徒歩9分)
  • 横浜市立品濃小学校
    約590m(徒歩8分)
  • 平戸歯科医院
    約350m(徒歩5分)
  • JA横浜 川上支店
    約240m(徒歩3分)
  • 東戸塚駅東口郵便局
    約980m(徒歩13分)
  • カーブス 横浜東戸塚
    約700m(徒歩9分)
  • 極楽湯 横浜芹が谷店
    約1,270m(徒歩16分)
  • 天王山公園
    約410m(徒歩6分)

※掲載の環境写真は2024年10月に撮影したものです。

周辺地図

周辺情報

※半径4kmを超えると、周辺情報のアイコンは表示されません。

  • ※地図上に表示される各種アイコンなどの情報は、おおよその所在地を表すものであり、物件・施設などの地点を保証するものではありません
  • ※地図の表示領域が広域になると周辺のお店・施設は表示できなくなります
  • ※地図、航空写真情報および地形ならびに周辺のお店・施設は、必ずしも現況を表すものではありません
  • ※物件から周辺のお店・施設までの距離は、利用が想定される道路を通行した場合の距離です。なお、必ずしも最短距離を保証するものではありません

LINEで更新情報を受け取る(無料)

価格・間取りなどの更新情報がLIFULL HOME'S公式のLINEから届きます
プライバシーポリシーに同意の上ご登録ください

QRコードを読み込むと登録画面が表示されます

モデルルーム

モデルルーム案内図

シエリアシティ横浜東戸塚:モデルルーム地図

モデルルーム情報

インフォメーション 来場予約受付中<完全予約制>
所在地 神奈川県横浜市戸塚区品濃町546
営業時間 10:00~18:00
定休日 水曜日・木曜日(祝日除く)
開催期間 2025/03/15 ~ 2029/03/28
お問合せ先

シエリアサロン横浜東戸塚

電話:0037-618-64988【通話無料】

  • 携帯可 光IP電話、及びIP電話からはご利用いただけません
  • ※営業時間外は電話がつながらないことがございますのでご了承ください。
  • ※お客様の電話番号は不動産会社に通知されません
  • ※携帯電話はご利用いただけます
  • ※光IP電話、及びIP電話をご利用のお客様は以下へご連絡ください
    シエリアサロン横浜東戸塚 TEL:0120-194-482
  • ※携帯電話からお問合せいただいた方には、ショートメッセージ(SMS)またはLINE通知メッセージによるお問合せ内容に関する通知をお届けする場合があり、お客様の電話番号は株式会社LIFULLで一定期間保管されます
  • ※株式会社LIFULLの個人情報の取扱い方針に同意のうえ、お電話ください

お問合せ(無料)

モデルルーム見学する
5/23
5/24
5/25
5/26
5/27
×
5/28
×
5/29
5/30
5/31
6/1
6/2
6/3
×
6/4
×
6/5


モデルルーム
見学予約する
無料

資料請求する
シエリアシティ横浜東戸塚 シエリアシティ横浜東戸塚

詳しいパンフレットや図面集、リーフレット等がお手元に届きます。
質問・相談もできます


かんたん1分で
資料をもらう
無料

電話する

0037-618-64988無料

QRコードを読み込むとすぐに電話できます。

登録する

LINEで更新情報を受け取る(無料)

価格・間取りなどの更新情報がLIFULL HOME'S公式のLINEから届きます
プライバシーポリシーに同意の上ご登録ください

QRコードを読み込むと登録画面が表示されます

建物・部屋

建物・共用部

  • シエリアシティ横浜東戸塚 外観完成予想CG

    外観完成予想CG
    規則的なリズムを奏でるマリオンの連続性や開放感を醸すコーナーサッシの立体感が、重なり、溶け合い「共生」を表現。空が映り込むバルコニーのガラス手摺のモダンな印象と、赤煉瓦調タイルの石積みの重厚感という2つの「横浜らしさ」が調和を奏でます。
  • シエリアシティ横浜東戸塚 外観完成予想CG

    外観完成予想CG
  • シエリアシティ横浜東戸塚 外観完成予想CG

    外観完成予想CG
    本物件に隣接して、子育てや家族の寛ぎの場として利用できる「提供公園」と、大型商業施設「ヤオコー」がオープン。毎日の生活を心地よく便利に支えてくれます。
  • シエリアシティ横浜東戸塚 グランドアプローチ完成予想CG

    グランドアプローチ完成予想CG
    ゆったりとしたスペースに、ホテルのように優雅に迎える「車寄せ」のあるグランドアプローチ
  • シエリアシティ横浜東戸塚 グランドエントランスホール完成予想CG

    グランドエントランスホール完成予想CG
    「渓流を抜けて、邸宅へ誘う」空間をイメージした2層吹き抜けの大空間。パブリックからプライベートへと“つなげる”アプローチを創出しました。
  • シエリアシティ横浜東戸塚 敷地配置イラスト

    敷地配置イラスト
    本物件に隣接し、街の人たちとの交流の場ともなる「提供公園」をはじめ、広大な敷地を存分に活かして、家族が寛ぎの時間を過ごせる潤い豊かな緑地や庭、広場をふんだんに配しました。共用空間は、「自然」をテーマに一つひとつの空間をデザイン。

※掲載の完成予想CGは計画中の図面を基に描き起こしたもので、施工上の都合または行政官庁の指導などにより、外観、外構、仕上、形状、植栽などを変更する場合があります。植栽は特定の季節や入居時の状態を想定して描かれたものではありません。植栽計画については変更になる場合があります。また周辺の建物等一部省略しており、実際とは異なります。
※本物件の共用施設の家具・照明器具・調度品等は、実際に設置されるものと異なる場合があります。共用部分の使用については管理規約に従っていただきます。また、一部共用施設は有償となる場合があります。

LINEで更新情報を受け取る(無料)

価格・間取りなどの更新情報がLIFULL HOME'S公式のLINEから届きます
プライバシーポリシーに同意の上ご登録ください

QRコードを読み込むと登録画面が表示されます

室内・専有部

  • シエリアシティ横浜東戸塚 リビング・ダイニング(A10type)

    リビング・ダイニング(A10type)
  • シエリアシティ横浜東戸塚 リビング・ダイニング(E1type)

    リビング・ダイニング(E1type)
  • シエリアシティ横浜東戸塚 リビング・ダイニング(E1type)

    リビング・ダイニング(E1type)
  • シエリアシティ横浜東戸塚 キッチン(A10type)

    キッチン(A10type)
  • シエリアシティ横浜東戸塚 洋室(1)(A10type)

    洋室(1)(A10type)

※掲載のモデルルーム写真は、モデルルーム (A10タイプ・E1タイプ)2025年2月に撮影したもので一部有償オプションが含まれております。 オプション等のお申込みには期限がございます。全てのタイプに該当するものではありません。 家具・調度品等は販売価格に含まれておりません。予めご了承ください。

LINEで更新情報を受け取る(無料)

価格・間取りなどの更新情報がLIFULL HOME'S公式のLINEから届きます
プライバシーポリシーに同意の上ご登録ください

QRコードを読み込むと登録画面が表示されます

設備・構造

  • シエリアシティ横浜東戸塚 人造大理石天板

    人造大理石天板

    キッチンの天板には、高級感漂う人造大理石を採用。お手入れがしやすく、美しさが長持ちします。

  • シエリアシティ横浜東戸塚 ディスポーザ

    ディスポーザ

    生ごみを粉砕し、水と一緒に流す専用の排水処理装置。生ごみ処理の手間が省け、シンクを衛生的にお使いいただけます。※生ゴミの種類によっては処理できないものがあります。

  • シエリアシティ横浜東戸塚 浄水器一体型シャワー水栓

    浄水器一体型シャワー水栓

    手元のダイヤルを回すだけで水形の切り替え可能。シンクの掃除に便利なホース引き出し式タイプです。

  • シエリアシティ横浜東戸塚 レンジフード

    レンジフード

    薄型でスタイリッシュなデザイン。サッと拭くだけで汚れが落ちる、お手入れのしやすいホーロー製の整流板付き。

  • シエリアシティ横浜東戸塚 静音シンク

    静音シンク

    シンク制振材を採用したことで、シンクの水ハネの音を軽減。スプーンなどを落とした時の音も抑えます。

  • シエリアシティ横浜東戸塚 ライニングカウンター

    ライニングカウンター

    キッチンの奥に配した調味料や食材などを置くのに便利なスペース。調理中、作業をサポートしてくれます。※一部住戸を除く。

  • シエリアシティ横浜東戸塚 魔法びん浴槽

    魔法びん浴槽

    浴槽の周囲を断熱材でしっかり覆いました。従来品と比べ保温効果が高く、光熱費の節約にもつながります。

  • シエリアシティ横浜東戸塚 ゆるリラ浴槽

    ゆるリラ浴槽

    人を優しく包み込む浴槽。ヘッドレスト部分を高くして首あたりを気持ちよく、身も心もリラックスできます。

  • シエリアシティ横浜東戸塚 HQパネル

    HQパネル

    カビやさび、汚れに対して優れた耐久性を発揮。汚れが付きにくく、落ちやすいためお手入れがラクです。

  • シエリアシティ横浜東戸塚 またぎ高さ

    またぎ高さ

    お子様もお年寄りも安全にご入浴できるよう、洗い場から浴槽をまたぐ高さを約42cmに設定しました。

  • シエリアシティ横浜東戸塚 コンフォートウエーブクリックシャワー

    コンフォートウエーブクリックシャワー

    水玉が左右にスイングしながら吐水するウエーブ吐水。浴び心地はそのままに節水効果があります。

  • シエリアシティ横浜東戸塚 カウンター一体型洗面ボウル

    カウンター一体型洗面ボウル

    継ぎ目がないのでお掃除もしやすい仕様です。ボウルを偏芯させ、作業スペースを有効活用できます。※一部タイプ偏芯なし

  • シエリアシティ横浜東戸塚 シングルレバー混合水栓

    シングルレバー混合水栓

    片手で湯温調節可能なシングルレバー混合水栓。ヘッドを引き出せ、洗面ボウルも隅々まで洗えます。

  • シエリアシティ横浜東戸塚 三面鏡下部チャイルドミラー貼り

    三面鏡下部チャイルドミラー貼り

    洗面台の三面鏡の下に、お子様の目線に合わせた高さに設定された「チャイルドミラー」を。

  • シエリアシティ横浜東戸塚 ヘルスメータースペース

    ヘルスメータースペース

    洗面室をより広く使っていただけるよう、洗面台下のスペースを有効活用し、体重計等の収納場所を確保。

  • シエリアシティ横浜東戸塚 トイレ吊戸棚

    トイレ吊戸棚

    洗剤やトイレットペーパーなどの収納に便利な扉付き吊戸棚。

  • シエリアシティ横浜東戸塚 CIELIA ZEH

    CIELIA ZEH

    これからのスタンダードマンション。エネルギーを無駄にしない、快適でエコロジーな暮らし。

  • シエリアシティ横浜東戸塚 オール電化

    オール電化

    「エネルギーと暮らしのベストパートナー」関西電力グループだからできる安心・快適・便利な暮らし。

  • IHクッキングヒーター 火を使わないため、お子様のいるご家庭でも安全安心に調理できます。便利な機能でお手入れのしやすさも魅力。
  • ホーローキッチンパネル サッと拭くだけでお手入れが可能な高品位ホーローを採用。収納スペースを自在にアレンジする事も可能です。
  • スライド式収納 大きな調理器具も入る、大容量のスライド式収納です。軽々と引き出せるため、出し入れもラクラクです。
  • ランドリーパイプ 室内で洗濯物を干す際に便利なランドリーパイプ。雨天時や夜間、花粉の季節などに嬉しい設備です。
  • フルオートバス お湯張り・保温・追い焚きがスイッチひとつでできる便利なフルオートバスを標準装備。
  • らくポイヘヤキャッチャー すり鉢形状で髪の毛を中心に誘導。水の流れで髪の毛を浮かせてまとめます。抗菌・防カビ効果も。
  • 浴室換気暖房乾燥機 雨の日に洗濯物を乾燥させたり、入浴前に浴室を暖めておくことができる浴室換気暖房乾燥機です。
  • フランジレス排水栓 汚れや水垢がたまりやすい浴槽排水口からフランジ(金具)をなくして、お手入れを容易に。
  • リネン庫 バスタオルや石鹸などの収納に便利。雑然となりがちな洗面室を、すっきりと整理できます。
  • 三面鏡裏収納 三面鏡裏には、化粧品やヘアケア用品などがすっきり整理できる収納スペースを設けています。
  • 手洗い付きシャワートイレ 表面にキズがつきにくく、細菌の繁殖も抑えられる「ハイパーキラミック」使用の汚れに強いトイレです。
  • タオルハンガーと小物置き トイレットペーパーホルダー横に、小物置きが付いており、便利に使えます。

※掲載のモデルルーム写真は、モデルルーム (A10タイプ・E1タイプ)2025年2月に撮影したもので一部有償オプションが含まれております。 オプション等のお申込みには期限がございます。全てのタイプに該当するものではありません。 家具・調度品等は販売価格に含まれておりません。予めご了承ください。

LINEで更新情報を受け取る(無料)

価格・間取りなどの更新情報がLIFULL HOME'S公式のLINEから届きます
プライバシーポリシーに同意の上ご登録ください

QRコードを読み込むと登録画面が表示されます

物件概要

販売概要

先着順

販売スケジュール 先着順申込受付中
販売価格 5,998万円~8,998万円 ローンシミュレーター
最多価格帯 6,800万円台(3戸)
販売戸数 22戸
間取り 2LDK ~ 4LDK
専有面積 60.50㎡ ~ 86.30㎡
バルコニー面積 9.69㎡ ~ 11.78㎡
その他面積 ●専用庭面積/18.56㎡ ~ 20.08㎡※月額使用料: 560円 ~ 610円●テラス面積/11.02㎡ ~ 11.75㎡●サービスバルコニー面積/2.08㎡ ~ 9.04㎡
管理費 14,400円~20,600円(月額)
修繕積立金 6,050円~8,630円(月額)
修繕積立基金 484,000円~691,000円(一括)
その他費用 ●管理準備金(一括)/37,000円~52,000円 ●インターネット利用料(月額)/1,210円
販売概要備考 ※受付時間/10:00AM~6:00PM ※受付場所/シエリアサロン横浜東戸塚 ※申込の際には、身分証明書・お認印・収入証明資料をお持ちください。※販売価格には消費税が含まれています。※先着順につき、売却済の場合がございます。予めご了承くださいませ。
取引条件有効期限 2026/05/31

第2期11次

販売スケジュール 2026年5月16日10時より登録受付開始
登録受付期間:2026年5月16日~2026年5月17日 10時~18時(最終日は16時まで)
抽選日:2026年5月17日16時
販売価格 6,598万円~6,898万円 ローンシミュレーター
最多価格帯 -
販売戸数 5戸
間取り 3LDK
専有面積 71.30㎡
バルコニー面積 11.78㎡
その他面積 ●専用庭面積/21.39㎡※月額使用料: 650円 ●テラス面積/11.78㎡
管理費 17,000円(月額)
修繕積立金 7,130円(月額)
修繕積立基金 571,000円(一括)
その他費用 ●管理準備金(一括)/43,000円●インターネット利用料(月額)/1,210円
販売概要備考 ※登録抽選場所/シエリアサロン横浜東戸塚※販売価格には消費税が含まれています。※登録受付は完全予約制にて承っております。お席に限りがあるため、満席の場合は受付いたしかねます。※契約時の手付金は10%相当額です。
取引条件有効期限 2026/05/17

予告広告 第2期12次 予告広告

販売スケジュール 販売予定時期/2026年5月下旬
販売価格 5,400万円台~9,500万円台(予定) ローンシミュレーター
予定最多価格帯 7,400万円台(32戸)
販売戸数 未定
本販売期以降の総販売戸数 369戸
間取り 2LDK ~ 4LDK
専有面積 60.50㎡ ~ 88.60㎡
バルコニー面積 7.28㎡ ~ 21.47㎡
その他面積 ●専用庭面積/16.19㎡ ~ 21.23㎡※月額使用料: 490円 ~ 640円●テラス面積/9.69㎡ ~ 13.01㎡●サービスバルコニー面積/2.08㎡ ~ 13.54㎡●ルーフバルコニー面積/37.73㎡ ~ 39.51㎡※月額使用料: 1, 140円 ~ 1, 190円
管理費 14,400円~21,100円 (月額)
修繕積立金 6,050円~8,860円 (月額)
修繕積立基金 484,000円~709,000円(一括)
その他費用 ●インターネット利用料(月額)/1,210円 ●管理準備金(一括)/37,000円~54,000円
販売概要備考 ※全体で販売するか数期に分けて販売するかは確定しておらず、販売住戸が未確定のため、物件データは第2期12次以降の全販売対象住戸(369戸)のものを表記しています。確定情報は本広告において明示します。販売を開始するまでの間は、契約または予約のお申し込みには一切応じられませんのでご了承ください。本広告を行い取引を開始するまでは、ご予約・ご契約には応じられません。また、申込みの順位の確保に関する措置は講じられません。予めご了承ください。
取引条件有効期限 -

※販売戸数は未定です。物件の取引内容及び取引条件は、本販売期以降の総販売戸数を基に表示しています。確定情報については本広告時に明示します

LINEで更新情報を受け取る(無料)

価格・間取りなどの更新情報がLIFULL HOME'S公式のLINEから届きます
プライバシーポリシーに同意の上ご登録ください

QRコードを読み込むと登録画面が表示されます

全体概要

所在地 神奈川県横浜市戸塚区前田町字阿らす100番2他(地番)
交通
JR横須賀線「東戸塚」駅 徒歩13分
湘南新宿ライン宇須「東戸塚」駅 徒歩13分
総戸数 482戸
構造および階数 鉄筋コンクリート造、地上7階建
駐車場 -
その他、共有施設等 ■駐車場:平面式駐車場:67台(来客用駐車場:2台、福祉対応駐車場:1台を含む)、機械式駐車場:152台 ※月額利用料:15,000円~24,000円
■自転車置場:820台 ( 2段ラック式上段:297台・2段ラック式下段:418台・平置き105台)、※月額利用料:100円~500円
■バイク置場:14台 ※月額使用料:5,000円
■ミニバイク置場:13台 ※月額使用料:3,000円
完成時期 2027年2月下旬予定
引き渡し可能年月 2027年4月中旬予定
分譲後の権利形態 敷地:専有面積持分割合による所有権の共有、建物:専有部分は区分所有権、共用部は専有面積持分割合による所有権の共有
管理形態 区分所有者全員により管理組合を結成し、管理会社に委託していただきます
管理員の勤務形態 日勤
敷地面積 18,652.93㎡(建築確認対象面積:17,489.30㎡、建築確認対象に含まない越境面積:0.25㎡、セットバック面積:44.20㎡、提供公園面積:1,119.18㎡)
用途地域 準工業地域
建築確認番号 第UHEC建確R050916号(令和6年3月26日)
売主 関電不動産開発株式会社 首都圏事業本部、JR東日本不動産株式会社(東京都知事(1)第111425号)、パナソニック ホームズ株式会社 都市開発首都圏支社(国土交通大臣(15)第982号)、神奈川中央交通株式会社(神奈川県知事(16)第1996号)
販売会社 株式会社長谷工アーベスト(代理)
施工会社 株式会社長谷工コーポレーション
管理会社 株式会社長谷工コミュニティ
備考 【TOP画像】
※1.本物件の共用施設の家具・照明器具・調度品等は、実際に設置されるものと異なる場合があります。共用部分の使用については管理規約に従っていただきます。また、一部共用施設は有償となる場合があります。
バルコニー面積: 9.69㎡~11.78㎡
その他面積: ●専用庭面積/18.56㎡~20.08㎡※月額使用料: 560円~610円●テラス面積/11.02㎡~11.75㎡●サービスバルコニー面積/2.08㎡~9.04㎡
建築確認番号: 第UHEC建確R050916号(令和6年3月26日)
加盟団体: (公社)全日本不動産協会青森県本部
情報更新日 2026/05/12
次回更新予定日 2026/05/26

LINEで更新情報を受け取る(無料)

価格・間取りなどの更新情報がLIFULL HOME'S公式のLINEから届きます
プライバシーポリシーに同意の上ご登録ください

QRコードを読み込むと登録画面が表示されます

会社・ブランド

ブランド情報

この物件の不動産会社が保持しているマンションブランドの特徴です。

シエリア

ブランド画像

Designing Your Life 幸せをデザインするシエリア

フランス語の“天空”“頂点”をあらわす「CIEL」と、 ラテン語の“土地”“場所”をあらわす「IA」を組み合わせた「理想の住まい」をイメージしたシエリアのブランド名。
そのロゴマークは、シエリアが約束する「4つのC」と円で形づくられるとともに、 地球の姿、そして、この住まいでの暮らしが未来や環境に配慮したものであることを表現しています。

フランス語の“天空”“頂点”をあらわす「CIEL」と、 ラテン語の“土地”“場所”をあらわす「IA」を組み合わせた「理想の住まい」をイメージしたシエリアのブランド名。
そのロゴマークは、シエリアが約束する「4つのC」と円で形づくられるとともに、 地球の姿、そして、この住まいでの暮らしが未来や環境に配慮したものであることを表現しています。

情報提供元

関電不動産開発株式会社

免許番号
[国土交通大臣(5)第6379号]
所在地
〒104-0031 東京都中央区京橋1丁目11番1号 関電不動産八重洲ビル13階
加盟団体
(公社)全日本不動産協会青森県本部

お問合せ(無料)

モデルルーム見学する
5/23
5/24
5/25
5/26
5/27
×
5/28
×
5/29
5/30
5/31
6/1
6/2
6/3
×
6/4
×
6/5


モデルルーム
見学予約する
無料

資料請求する
シエリアシティ横浜東戸塚 シエリアシティ横浜東戸塚

詳しいパンフレットや図面集、リーフレット等がお手元に届きます。
質問・相談もできます


かんたん1分で
資料をもらう
無料

電話する

0037-618-64988無料

QRコードを読み込むとすぐに電話できます。

お問合せ先

シエリアサロン横浜東戸塚

電話:0037-618-64988【通話無料】

受付時間:10:00~18:00 定休日/水曜日・木曜日(祝日除く)

  • ※お問合せの際は、「ライフルホームズを見て」とお伝えいただくとスムーズです
  • ※営業時間外は下記の「資料をもらう(無料)」よりお問合せください
【お電話の際の注意事項】
※お客様の電話番号は不動産会社に通知されません
※携帯電話はご利用いただけます
※光IP電話、及びIP電話をご利用のお客様は以下へご連絡ください
TEL:シエリアサロン横浜東戸塚0120-194-482
※携帯電話からお問合せいただいた方には、ショートメッセージ(SMS)またはLINE通知メッセージによるお問合せ内容に関する通知をお届けする場合があり、お客様の電話番号は株式会社LIFULLで一定期間保管されます
登録する
お気に入り一覧を見る

LINEで更新情報を受け取る(無料)

価格・間取りなどの更新情報がLIFULL HOME'S公式のLINEから届きます
プライバシーポリシーに同意の上ご登録ください

QRコードを読み込むと登録画面が表示されます

シェアする

【物件番号】 1602132-0000001

  • ※完成予想図やCG合成画像は、門塀・植栽・庭・外観等、実際とは多少異なる場合があります。 また、掲載の図面は、多少変更になる場合があります
  • ※掲載の写真や動画には、一部オプション(有償)が含まれる場合があります。また、家具・調度品等は販売価格に含まれておりません
  • ※完成後1年未満で未入居の物件を「新築」と表示しております

その他の新築分譲マンションを探す

横浜市戸塚区の詳細町域から新築分譲マンションを探す

  • シエリアシティ横浜東戸塚 外観

    外観完成予想CG ※掲載の完成予想CGは計画中の図面を基に描き起こしたもので、施工上の都合または行政官庁の指導などにより、外観、外構、仕上、形状、植栽などを変更する場合があります。

  • シエリアシティ横浜東戸塚 その他

    航空写真 ※掲載の航空写真は、2024年10月に撮影したものに一部CG加工を施しております。計画地の光は現地の位置を示すものであり、建物の規模・高さなどを表現したものではありません。

  • シエリアシティ横浜東戸塚 その他

    グランドエントランス(ホール)完成予想CG ※計画中の図面を基に描き起こしたもので、施工上の都合または行政官庁の指導などにより、外観、外構、仕上、形状、植栽などを変更する場合があります。※1

  • シエリアシティ横浜東戸塚 その他

    ロビーラウンジ完成予想CG ※計画中の図面を基に描き起こしたもので、施工上の都合または行政官庁の指導などにより、外観、外構、仕上、形状、植栽などを変更する場合があります。※1

  • シエリアシティ横浜東戸塚 その他

    ライブラリーラウンジ完成予想CG ※計画中の図面を基に描き起こしたもので、施工上の都合または行政官庁の指導などにより、外観、外構、仕上、形状、植栽などを変更する場合があります。※1

  • シエリアシティ横浜東戸塚 その他

    キッズスタジオ完成予想CG ※計画中の図面を基に描き起こしたもので、施工上の都合または行政官庁の指導などにより、外観、外構、仕上、形状、植栽などを変更する場合があります。※1

  • シエリアシティ横浜東戸塚 コンセプト

    シエリアシティ横浜東戸塚は、横浜市戸塚区に誕生する総戸数482の大規模レジデンスです。この開発は、日常生活に便利な大型商業施設や緑豊かな公園に隣接しており、安心で快適な空間提供を目指し、都市と自然が調和する住環境を実現しています。東戸塚駅まで徒歩13分というアクセスの良さも特筆すべき点で、都心部への通勤やショッピングが非常に便利です。横浜駅までわずか8分(日中平常時7分)でアクセスでき、都心直通の交通の利便性が、快適なライフスタイルを支えています。このエリアは、特に子育て世代にとって魅力的な環境が整っており、教育機関や医療施設も充実しています。住まう人々の心安らぐ空間を創出し、日常に彩りを添える街づくりを大切にしています。

  • シエリアシティ横浜東戸塚 コンセプト

    シエリアシティ横浜東戸塚は、大型商業施設や公園が隣接する利便性の高い立地に位置し、横浜駅へ直通8分という優れたアクセスを提供しています。生活に必要な施設が徒歩圏内に位置し、日々の生活を豊かにしてくれる環境が整っています。計画段階から空間デザインにこだわり、家族を包み込むような心地よさを意識した住宅プロジェクトとなっています。この地域は子育てにも優しい環境が整っており、教育施設や緑豊かな公園が豊富に揃っています。将来を見据えた暮らしの基盤として安心できる要素が多数あります。また、温かみのあるコミュニティが形成されており、新しい暮らしのスタートを支援する仕組みもあります。広がる景色と共に、新しい日常を始めてみませんか。横浜の都市の魅力を享受しながら、自分だけの静かなライフスタイルを築けるこの場所は、忙しい中にも癒しを提供してくれる特徴を持っています。シエリアシティ横浜東戸塚では、居住者ひとりひとりが自然と共に心地よく暮らせるよう、多様なニーズに応える設計が施されています。こうした環境は、家族との絆を深め、心豊かな日常を可能にします。

  • シエリアシティ横浜東戸塚 コンセプト

    建築デザインの中心にエコシンクロニシティの概念を取り入れ、持続可能な未来の実現を目指すプロジェクトとして、「シエリアシティ横浜東戸塚」では、重なり合い連続する空間を創り出し、共生住宅を目指しています。このプロジェクトは、街と自然環境との調和を図り、居住者に豊かで快適な暮らしを提供することを目的としています。外観デザインは「連なり」と「重なり合う」というテーマに基づき、規則的なリズムを持ったマリオンや、開放感あふれるコーナーサッシが特徴で、これらが調和し共生を象徴しています。また、ガラス手摺のバルコニーと赤煉瓦調タイルの融合による、モダンでありながら重厚感のあるデザインも特徴の一つです。さらに、街とつながる共用空間では、自然をテーマにしたデザインが施されており、緑豊かな庭や広場が配置されています。植栽計画は、生物多様性を意識し、四季折々の風景を楽しめるようデザインされており、この実施により「ABINC認証」を取得しています。このようなデザインと自然環境への配慮が調和し、居住の体験を高める住まいの在り方を提示しています。

  • シエリアシティ横浜東戸塚 共用部

    規則的なリズムを奏でるマリオンの連続性や開放感を醸すコーナーサッシの立体感が、重なり、溶け合い「共生」を表現。空が映り込むバルコニーのガラス手摺のモダンな印象と、赤煉瓦調タイルの石積みの重厚感という2つの「横浜らしさ」が調和を奏でます。

  • シエリアシティ横浜東戸塚 共用部

  • シエリアシティ横浜東戸塚 共用部

    本物件に隣接して、子育てや家族の寛ぎの場として利用できる「提供公園」と、大型商業施設「ヤオコー」がオープン。毎日の生活を心地よく便利に支えてくれます。

  • シエリアシティ横浜東戸塚 共用部

    ゆったりとしたスペースに、ホテルのように優雅に迎える「車寄せ」のあるグランドアプローチ

  • シエリアシティ横浜東戸塚 共用部

    「渓流を抜けて、邸宅へ誘う」空間をイメージした2層吹き抜けの大空間。パブリックからプライベートへと“つなげる”アプローチを創出しました。

  • シエリアシティ横浜東戸塚 共用部

    本物件に隣接し、街の人たちとの交流の場ともなる「提供公園」をはじめ、広大な敷地を存分に活かして、家族が寛ぎの時間を過ごせる潤い豊かな緑地や庭、広場をふんだんに配しました。共用空間は、「自然」をテーマに一つひとつの空間をデザイン。

  • シエリアシティ横浜東戸塚 専有部

  • シエリアシティ横浜東戸塚 専有部

  • シエリアシティ横浜東戸塚 専有部

  • シエリアシティ横浜東戸塚 専有部

  • シエリアシティ横浜東戸塚 専有部

  • シエリアシティ横浜東戸塚 設備

    人造大理石天板

  • シエリアシティ横浜東戸塚 設備

    ディスポーザ

  • シエリアシティ横浜東戸塚 設備

    浄水器一体型シャワー水栓

  • シエリアシティ横浜東戸塚 設備

    レンジフード

  • シエリアシティ横浜東戸塚 設備

    静音シンク

  • シエリアシティ横浜東戸塚 設備

    ライニングカウンター

  • シエリアシティ横浜東戸塚 設備

    魔法びん浴槽

  • シエリアシティ横浜東戸塚 設備

    ゆるリラ浴槽

  • シエリアシティ横浜東戸塚 設備

    HQパネル

  • シエリアシティ横浜東戸塚 設備

    またぎ高さ

  • シエリアシティ横浜東戸塚 設備

    コンフォートウエーブクリックシャワー

  • シエリアシティ横浜東戸塚 設備

    カウンター一体型洗面ボウル

  • シエリアシティ横浜東戸塚 設備

    シングルレバー混合水栓

  • シエリアシティ横浜東戸塚 設備

    三面鏡下部チャイルドミラー貼り

  • シエリアシティ横浜東戸塚 設備

    ヘルスメータースペース

  • シエリアシティ横浜東戸塚 設備

    トイレ吊戸棚

  • シエリアシティ横浜東戸塚 設備

    CIELIA ZEH

  • シエリアシティ横浜東戸塚 設備

    オール電化

  • 周辺環境

    西武東戸塚S.C. 約950m(徒歩12分)

  • 周辺環境

    ザ・ガーデン自由が丘 東戸塚店 約950m(徒歩12分)

  • 周辺環境

    東戸塚西口プラザ 約1,330m(徒歩17分)

  • 周辺環境

    モレラ東戸塚 約1,070m(徒歩14分)

  • 周辺環境

    オリンピック おりーぶ東戸塚店 約690m(徒歩9分)

  • 周辺環境

    イオンスタイル東戸塚 約1,180m(徒歩15分)

  • 周辺環境

    柏尾川遊歩道 約2,900m(徒歩37分)

  • 周辺環境

    平戸永谷川遊水地広場 約650m(徒歩9分)

  • 周辺環境

    平戸みはらし公園 約1,120m(徒歩14分)

  • シエリアシティ横浜東戸塚 現地案内図

  • シエリアシティ横浜東戸塚 アクセス図

  • シエリアシティ横浜東戸塚 アクセス図

  • シエリアシティ横浜東戸塚 アクセス図

  • シエリアシティ横浜東戸塚 モデルルーム案内図

  • シエリアシティ横浜東戸塚 外観

    外観完成予想CG ※掲載の完成予想CGは計画中の図面を基に描き起こしたもので、施工上の都合または行政官庁の指導などにより、外観、外構、仕上、形状、植栽などを変更する場合があります。

  • シエリアシティ横浜東戸塚 その他

    航空写真 ※掲載の航空写真は、2024年10月に撮影したものに一部CG加工を施しております。計画地の光は現地の位置を示すものであり、建物の規模・高さなどを表現したものではありません。

  • シエリアシティ横浜東戸塚 その他

    グランドエントランス(ホール)完成予想CG ※計画中の図面を基に描き起こしたもので、施工上の都合または行政官庁の指導などにより、外観、外構、仕上、形状、植栽などを変更する場合があります。※1

  • シエリアシティ横浜東戸塚 その他

    ロビーラウンジ完成予想CG ※計画中の図面を基に描き起こしたもので、施工上の都合または行政官庁の指導などにより、外観、外構、仕上、形状、植栽などを変更する場合があります。※1

  • シエリアシティ横浜東戸塚 その他

    ライブラリーラウンジ完成予想CG ※計画中の図面を基に描き起こしたもので、施工上の都合または行政官庁の指導などにより、外観、外構、仕上、形状、植栽などを変更する場合があります。※1

  • シエリアシティ横浜東戸塚 その他

    キッズスタジオ完成予想CG ※計画中の図面を基に描き起こしたもので、施工上の都合または行政官庁の指導などにより、外観、外構、仕上、形状、植栽などを変更する場合があります。※1

  • シエリアシティ横浜東戸塚 コンセプト

    シエリアシティ横浜東戸塚は、横浜市戸塚区に誕生する総戸数482の大規模レジデンスです。この開発は、日常生活に便利な大型商業施設や緑豊かな公園に隣接しており、安心で快適な空間提供を目指し、都市と自然が調和する住環境を実現しています。東戸塚駅まで徒歩13分というアクセスの良さも特筆すべき点で、都心部への通勤やショッピングが非常に便利です。横浜駅までわずか8分(日中平常時7分)でアクセスでき、都心直通の交通の利便性が、快適なライフスタイルを支えています。このエリアは、特に子育て世代にとって魅力的な環境が整っており、教育機関や医療施設も充実しています。住まう人々の心安らぐ空間を創出し、日常に彩りを添える街づくりを大切にしています。

  • シエリアシティ横浜東戸塚 コンセプト

    シエリアシティ横浜東戸塚は、大型商業施設や公園が隣接する利便性の高い立地に位置し、横浜駅へ直通8分という優れたアクセスを提供しています。生活に必要な施設が徒歩圏内に位置し、日々の生活を豊かにしてくれる環境が整っています。計画段階から空間デザインにこだわり、家族を包み込むような心地よさを意識した住宅プロジェクトとなっています。この地域は子育てにも優しい環境が整っており、教育施設や緑豊かな公園が豊富に揃っています。将来を見据えた暮らしの基盤として安心できる要素が多数あります。また、温かみのあるコミュニティが形成されており、新しい暮らしのスタートを支援する仕組みもあります。広がる景色と共に、新しい日常を始めてみませんか。横浜の都市の魅力を享受しながら、自分だけの静かなライフスタイルを築けるこの場所は、忙しい中にも癒しを提供してくれる特徴を持っています。シエリアシティ横浜東戸塚では、居住者ひとりひとりが自然と共に心地よく暮らせるよう、多様なニーズに応える設計が施されています。こうした環境は、家族との絆を深め、心豊かな日常を可能にします。

  • シエリアシティ横浜東戸塚 コンセプト

    建築デザインの中心にエコシンクロニシティの概念を取り入れ、持続可能な未来の実現を目指すプロジェクトとして、「シエリアシティ横浜東戸塚」では、重なり合い連続する空間を創り出し、共生住宅を目指しています。このプロジェクトは、街と自然環境との調和を図り、居住者に豊かで快適な暮らしを提供することを目的としています。外観デザインは「連なり」と「重なり合う」というテーマに基づき、規則的なリズムを持ったマリオンや、開放感あふれるコーナーサッシが特徴で、これらが調和し共生を象徴しています。また、ガラス手摺のバルコニーと赤煉瓦調タイルの融合による、モダンでありながら重厚感のあるデザインも特徴の一つです。さらに、街とつながる共用空間では、自然をテーマにしたデザインが施されており、緑豊かな庭や広場が配置されています。植栽計画は、生物多様性を意識し、四季折々の風景を楽しめるようデザインされており、この実施により「ABINC認証」を取得しています。このようなデザインと自然環境への配慮が調和し、居住の体験を高める住まいの在り方を提示しています。

  • シエリアシティ横浜東戸塚 共用部

    規則的なリズムを奏でるマリオンの連続性や開放感を醸すコーナーサッシの立体感が、重なり、溶け合い「共生」を表現。空が映り込むバルコニーのガラス手摺のモダンな印象と、赤煉瓦調タイルの石積みの重厚感という2つの「横浜らしさ」が調和を奏でます。

  • シエリアシティ横浜東戸塚 共用部

  • シエリアシティ横浜東戸塚 共用部

    本物件に隣接して、子育てや家族の寛ぎの場として利用できる「提供公園」と、大型商業施設「ヤオコー」がオープン。毎日の生活を心地よく便利に支えてくれます。

  • シエリアシティ横浜東戸塚 共用部

    ゆったりとしたスペースに、ホテルのように優雅に迎える「車寄せ」のあるグランドアプローチ

  • シエリアシティ横浜東戸塚 共用部

    「渓流を抜けて、邸宅へ誘う」空間をイメージした2層吹き抜けの大空間。パブリックからプライベートへと“つなげる”アプローチを創出しました。

  • シエリアシティ横浜東戸塚 共用部

    本物件に隣接し、街の人たちとの交流の場ともなる「提供公園」をはじめ、広大な敷地を存分に活かして、家族が寛ぎの時間を過ごせる潤い豊かな緑地や庭、広場をふんだんに配しました。共用空間は、「自然」をテーマに一つひとつの空間をデザイン。

  • シエリアシティ横浜東戸塚 専有部

  • シエリアシティ横浜東戸塚 専有部

  • シエリアシティ横浜東戸塚 専有部

  • シエリアシティ横浜東戸塚 専有部

  • シエリアシティ横浜東戸塚 専有部

  • シエリアシティ横浜東戸塚 設備

    人造大理石天板

  • シエリアシティ横浜東戸塚 設備

    ディスポーザ

  • シエリアシティ横浜東戸塚 設備

    浄水器一体型シャワー水栓

  • シエリアシティ横浜東戸塚 設備

    レンジフード

  • シエリアシティ横浜東戸塚 設備

    静音シンク

  • シエリアシティ横浜東戸塚 設備

    ライニングカウンター

  • シエリアシティ横浜東戸塚 設備

    魔法びん浴槽

  • シエリアシティ横浜東戸塚 設備

    ゆるリラ浴槽

  • シエリアシティ横浜東戸塚 設備

    HQパネル

  • シエリアシティ横浜東戸塚 設備

    またぎ高さ

  • シエリアシティ横浜東戸塚 設備

    コンフォートウエーブクリックシャワー

  • シエリアシティ横浜東戸塚 設備

    カウンター一体型洗面ボウル

  • シエリアシティ横浜東戸塚 設備

    シングルレバー混合水栓

  • シエリアシティ横浜東戸塚 設備

    三面鏡下部チャイルドミラー貼り

  • シエリアシティ横浜東戸塚 設備

    ヘルスメータースペース

  • シエリアシティ横浜東戸塚 設備

    トイレ吊戸棚

  • シエリアシティ横浜東戸塚 設備

    CIELIA ZEH

  • シエリアシティ横浜東戸塚 設備

    オール電化

  • 周辺環境

    西武東戸塚S.C. 約950m(徒歩12分)

  • 周辺環境

    ザ・ガーデン自由が丘 東戸塚店 約950m(徒歩12分)

  • 周辺環境

    東戸塚西口プラザ 約1,330m(徒歩17分)

  • 周辺環境

    モレラ東戸塚 約1,070m(徒歩14分)

  • 周辺環境

    オリンピック おりーぶ東戸塚店 約690m(徒歩9分)

  • 周辺環境

    イオンスタイル東戸塚 約1,180m(徒歩15分)

  • 周辺環境

    柏尾川遊歩道 約2,900m(徒歩37分)

  • 周辺環境

    平戸永谷川遊水地広場 約650m(徒歩9分)

  • 周辺環境

    平戸みはらし公園 約1,120m(徒歩14分)

  • シエリアシティ横浜東戸塚 現地案内図

  • シエリアシティ横浜東戸塚 アクセス図

  • シエリアシティ横浜東戸塚 アクセス図

  • シエリアシティ横浜東戸塚 アクセス図

  • シエリアシティ横浜東戸塚 モデルルーム案内図

  • シエリアシティ横浜東戸塚 間取り E2

    E2

    間取り
    2LDK+N+SIC+2WIC
    専有面積
    60.50㎡
    バルコニー
    面積
    9.69㎡
    その他面積
    -
    所在階
    -
    向き
    -
    備考
    -
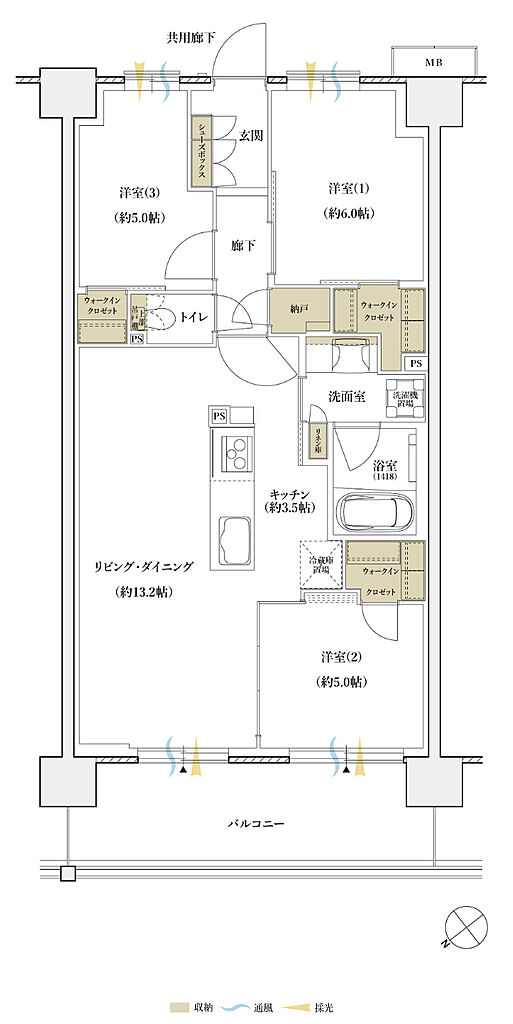
  • シエリアシティ横浜東戸塚 間取り A10

    A10

    間取り
    3LDK+3WIC+マルチスペース
    専有面積
    72.00㎡
    バルコニー
    面積
    11.40㎡
    その他面積
    -
    所在階
    -
    向き
    -
    備考
    ■リビング・ダイニングと洋室(3)の間のウォールドアを開放すれば約17.0帖の大空間に。
    ■3つの居室すべてにウォークインクロゼットを設置するなど収納充実。
    ■テレワークにも対応する約0.8帖のマルチスペース。
  • シエリアシティ横浜東戸塚 間取り A7

    A7

    間取り
    3LDK+N+3WIC
    専有面積
    74.40㎡
    バルコニー
    面積
    11.78㎡
    その他面積
    -
    所在階
    -
    向き
    -
    備考
    -
  • シエリアシティ横浜東戸塚 間取り D5

    D5

    間取り
    3LDK+N+3WIC
    専有面積
    71.30㎡
    バルコニー
    面積
    11.78㎡
    その他面積
    -
    所在階
    -
    向き
    -
    備考
    -
  • シエリアシティ横浜東戸塚 間取り 【第2期12次】A2

    【第2期12次】A2

    間取り
    3LDK+N+2WIC+FC
    専有面積
    76.82㎡
    バルコニー
    面積
    -
    その他面積
    バルコニー面積/12.06㎡(2階)、12.16㎡(3~5階)
    所在階
    -
    向き
    -
    備考
    FC:ファミリークロゼット
  • シエリアシティ横浜東戸塚 間取り 【第2期12次】C10

    【第2期12次】C10

    間取り
    3LDK+2WIC
    専有面積
    66.70㎡
    バルコニー
    面積
    11.02㎡
    その他面積
    -
    所在階
    -
    向き
    -
    備考
    -
  • シエリアシティ横浜東戸塚 間取り 【第2期12次】C6g

    【第2期12次】C6g

    間取り
    3LDK+3WIC+M
    専有面積
    69.00㎡
    バルコニー
    面積
    -
    その他面積
    テラス面積/11.40㎡、専用庭面積/19.20㎡
    所在階
    -
    向き
    -
    備考
    M=マルチスペース
  • シエリアシティ横浜東戸塚 間取り 【第2期12次】E11g

    【第2期12次】E11g

    間取り
    3LDK+N+2WIC
    専有面積
    72.00㎡
    バルコニー
    面積
    -
    その他面積
    テラス面積/10.54㎡、専用庭面積/19.21㎡
    所在階
    -
    向き
    -
    備考
    -
  • シエリアシティ横浜東戸塚 間取り 【第2期12次】A1

    【第2期12次】A1

    間取り
    4LDK+N+SIC+3WIC
    専有面積
    83.58㎡
    バルコニー
    面積
    7.28㎡
    その他面積
    サービスバルコニー面積/13.54㎡
    所在階
    -
    向き
    -
    備考
    ■光溢れる南東向き、2面採光の4LDK角住戸。
    ■洋室(1)(2)(3)は、リビング・ダイニングから離して、静かなプライベート空間に。
    ■3つのウォークインクロゼット、大容量のシューズインクロゼットなど収納充実。
  • シエリアシティ横浜東戸塚 間取り 【第2期12次】B2r

    【第2期12次】B2r

    間取り
    4LDK+N+4WIC+M+SS
    専有面積
    86.54㎡
    バルコニー
    面積
    18.90㎡
    その他面積
    ルーフバルコニー面積/37.87㎡
    所在階
    -
    向き
    -
    備考
    -
  • シエリアシティ横浜東戸塚 間取り 【第2期12次】E1

    【第2期12次】E1

    間取り
    4LDK+SIC+2WIC
    専有面積
    80.41㎡
    バルコニー
    面積
    11.59㎡
    その他面積
    サービスバルコニー面積/2.08㎡
    所在階
    -
    向き
    -
    備考
    ■光溢れる南西向き、2面採光の4LDK角住戸。
    ■リビング・ダイニングと洋室(3)の間のウォールドアを開放すれば約16.7帖の大空間に。
    ■大容量のシューズインクロゼット、2つのウォークインクロゼットなど収納充実。
  • シエリアシティ横浜東戸塚 間取り E2

    E2

    間取り
    2LDK+N+SIC+2WIC
    専有面積
    60.50㎡
    バルコニー
    面積
    9.69㎡
    その他面積
    -
    所在階
    -
    向き
    -
    備考
    -
  • シエリアシティ横浜東戸塚 間取り A10

    A10

    間取り
    3LDK+3WIC+マルチスペース
    専有面積
    72.00㎡
    バルコニー
    面積
    11.40㎡
    その他面積
    -
    所在階
    -
    向き
    -
    備考
    ■リビング・ダイニングと洋室(3)の間のウォールドアを開放すれば約17.0帖の大空間に。
    ■3つの居室すべてにウォークインクロゼットを設置するなど収納充実。
    ■テレワークにも対応する約0.8帖のマルチスペース。
  • シエリアシティ横浜東戸塚 間取り A7

    A7

    間取り
    3LDK+N+3WIC
    専有面積
    74.40㎡
    バルコニー
    面積
    11.78㎡
    その他面積
    -
    所在階
    -
    向き
    -
    備考
    -
  • シエリアシティ横浜東戸塚 間取り D5

    D5

    間取り
    3LDK+N+3WIC
    専有面積
    71.30㎡
    バルコニー
    面積
    11.78㎡
    その他面積
    -
    所在階
    -
    向き
    -
    備考
    -
  • シエリアシティ横浜東戸塚 間取り 【第2期12次】A2

    【第2期12次】A2

    間取り
    3LDK+N+2WIC+FC
    専有面積
    76.82㎡
    バルコニー
    面積
    -
    その他面積
    バルコニー面積/12.06㎡(2階)、12.16㎡(3~5階)
    所在階
    -
    向き
    -
    備考
    FC:ファミリークロゼット
  • シエリアシティ横浜東戸塚 間取り 【第2期12次】C10

    【第2期12次】C10

    間取り
    3LDK+2WIC
    専有面積
    66.70㎡
    バルコニー
    面積
    11.02㎡
    その他面積
    -
    所在階
    -
    向き
    -
    備考
    -
  • シエリアシティ横浜東戸塚 間取り 【第2期12次】C6g

    【第2期12次】C6g

    間取り
    3LDK+3WIC+M
    専有面積
    69.00㎡
    バルコニー
    面積
    -
    その他面積
    テラス面積/11.40㎡、専用庭面積/19.20㎡
    所在階
    -
    向き
    -
    備考
    M=マルチスペース
  • シエリアシティ横浜東戸塚 間取り 【第2期12次】E11g

    【第2期12次】E11g

    間取り
    3LDK+N+2WIC
    専有面積
    72.00㎡
    バルコニー
    面積
    -
    その他面積
    テラス面積/10.54㎡、専用庭面積/19.21㎡
    所在階
    -
    向き
    -
    備考
    -
  • シエリアシティ横浜東戸塚 間取り 【第2期12次】A1

    【第2期12次】A1

    間取り
    4LDK+N+SIC+3WIC
    専有面積
    83.58㎡
    バルコニー
    面積
    7.28㎡
    その他面積
    サービスバルコニー面積/13.54㎡
    所在階
    -
    向き
    -
    備考
    ■光溢れる南東向き、2面採光の4LDK角住戸。
    ■洋室(1)(2)(3)は、リビング・ダイニングから離して、静かなプライベート空間に。
    ■3つのウォークインクロゼット、大容量のシューズインクロゼットなど収納充実。
  • シエリアシティ横浜東戸塚 間取り 【第2期12次】B2r

    【第2期12次】B2r

    間取り
    4LDK+N+4WIC+M+SS
    専有面積
    86.54㎡
    バルコニー
    面積
    18.90㎡
    その他面積
    ルーフバルコニー面積/37.87㎡
    所在階
    -
    向き
    -
    備考
    -
  • シエリアシティ横浜東戸塚 間取り 【第2期12次】E1

    【第2期12次】E1

    間取り
    4LDK+SIC+2WIC
    専有面積
    80.41㎡
    バルコニー
    面積
    11.59㎡
    その他面積
    サービスバルコニー面積/2.08㎡
    所在階
    -
    向き
    -
    備考
    ■光溢れる南西向き、2面採光の4LDK角住戸。
    ■リビング・ダイニングと洋室(3)の間のウォールドアを開放すれば約16.7帖の大空間に。
    ■大容量のシューズインクロゼット、2つのウォークインクロゼットなど収納充実。

オンライン相談とは

モデルルームや現地に行くことなく、自宅からビデオ通話で不動産会社スタッフと物件の相談をすることができます。
  1. 不動産会社へ問合せ

    「オンライン相談」ボタンまたは「見学予約」ボタンを押してフォーム内の「オンライン相談」を選択し送信します。

  2. 不動産会社と日程・接続方法を調整

    不動産会社から連絡が来たらオンライン相談の日時を調整して、予約完了。

  3. 相談方法がメールで届く

    メールにてオンライン相談の利用方法が届きますので、ご確認ください。

  4. 指定場所にアクセス

    当日、予約時刻になったら指定のビデオ通話につなぎ、ご相談ください。

利用時の注意事項
  • ビデオ通話については各不動産会社指定のものとなります。
  • ビデオ通話利用時には通信が発生します。従量課金制通信サービスや通信料に上限があるネット回線・プランを利用する場合は、通信量に注意してください。
  • 通信速度やアプリの設定によってはビデオ通話の画質が低下することがあります。安定した画質で利用するためにも、Wi-Fi環境下での利用を推奨します。
  • ご利用のビデオ通話アプリによっては、対象のOSやブラウザに制限がある場合があります。詳しくはお問合せ先不動産会社にご確認ください。

閉じる

条件を削除すると新着お知らせメールの
配信が停止されますがよろしいですか?