このページは物件の広告情報ではありません。
過去にLIFULL HOME'Sへ掲載された不動産情報と提携先の地図情報を元に生成した参考情報です。また、一般から投稿された情報など主観的な情報も含みます。
情報更新日: 2026/02/18
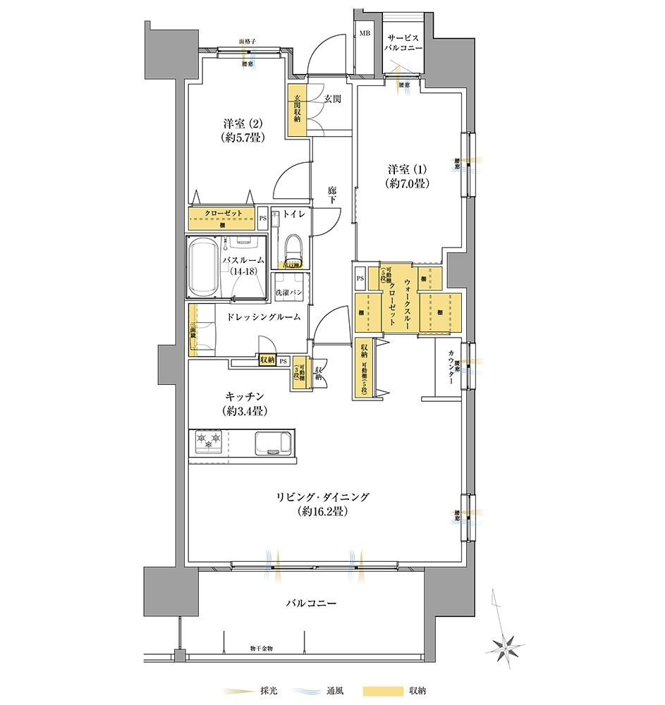
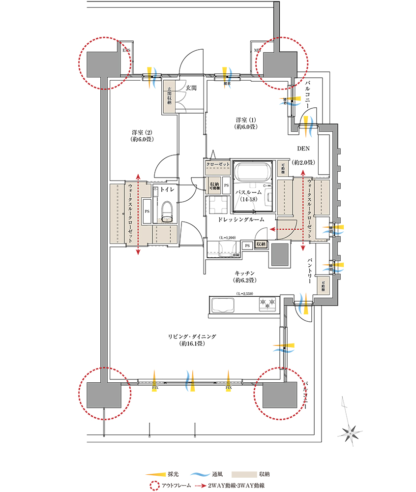
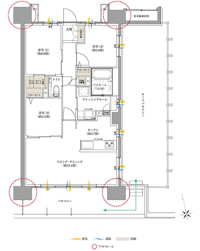
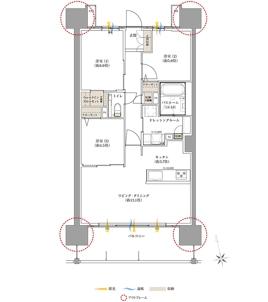
サーパス伏石中央公園南
| 所在地 | 香川県高松市伏石町2089-4(地番) |
|---|---|
| 交通 |
|
| 価格 | 3,598万円~3,998万円 |
| 最多価格帯 | - |
| 管理費等 | 月額 14,295円~14,795円(インターネットサービス保守管理費などを含む) |
| 修繕積立金 | 月額 10,400円~10,900円 |
スポンサーリンク
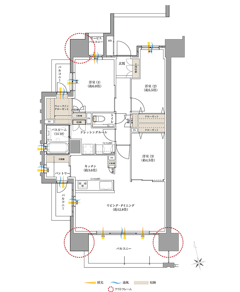
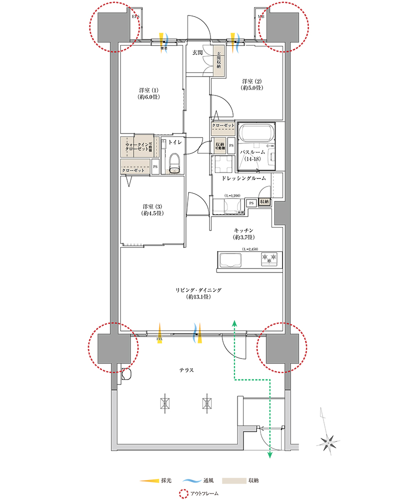
サーパス伏石中央公園南の建物情報
物件概要
| 物件種別 | マンション |
|---|---|
| 築年月(築年数) | 2026年1月 (築1年) |
| 建物構造 | 鉄筋コンクリート造、地上15階建 |
| 販売個数(区画数) | 7戸 |
| 総戸数/総区画数 | 51戸 |
| 敷地全体面積 | 2,006.11m2 |
| 延べ床面積 | 546.55m2 |
| 用途地域 | 第二種中高層住居専用 |
| 地目 | 宅地 |
| 土地権利 | 所有権 |
| 建築確認番号 | 第ERI-24000557号(2024年3月8日) |
| 施工会社 | 穴吹工務店・谷口建設興業共同企業体 |
| 売主 | 株式会社穴吹工務店 四国支店 |
| 販売会社 | 株式会社大京(販売提携・媒介) |
設備・条件
- 追い焚き
- 浴室乾燥機
- コンロ三口以上
- システムキッチン
- 食器洗い乾燥機
- 高効率給湯器
- 浄水器・活水器
- ウォークインクローゼット
- ブロードバンド
- シングル&DINKS向け
- 複層ガラス採用(二重サッシ・防犯サッシ等)
- オートロック
- 防犯カメラ
- エレベーター
- 駐車場完備
- 宅配ボックス
- 住宅性能評価書
- 南向き
- 環境にやさしい
- 子育てに優しい環境
- スーパー800m以内
- コンビニ400m以内
- 小学校800m以内
- 公園400m以内
※最新の状態と異なる場合があります
売りたい不動産をお持ちの方へ
このエリアの所有不動産を査定する
売却査定手続きの流れ、費用相場や注意点など不動産売却について詳しく知りたい方はLIFULL HOME'S 不動産査定へ
サーパス伏石中央公園南の周辺施設
-
買い物
日用品 -
- ローソン 高松伏石店
- ファミリーマート 高松伏石町店
- デイリーヤマザキ 高松伏石町南店
- コープ 太田
- 買い物
大型店 -
- ヤマダデンキテックランドNew高松レインボー通り店
- ヤマダデンキヤマダアウトレット館高松店
- スポーツデポ 高松伏石店
- 西松屋 高松レインボー通店
- グルメ
-
- 焼肉カルビ屋大福 高松東バイパス店
- スターバックスコーヒー高松レインボーロード店
- しゃぶ葉高松レインボーロード店
- マクドナルド 高松サン・フラワー通り店
- 娯楽施設
-
- 伏石中央公園
- アミュージアム 高松店
- アミュージアム高松店ボウリング
- 太田中央公園
- 役所
公共施設 -
- 高松伏石郵便局
- 保育施設
-
- 高松市立太田保育所
- さくら伏石保育園
- あい保育園太田
- こぶし中央保育園
- 学校
-
- 高松市立太田小学校
- 高松市立中央小学校
サーパス伏石中央公園南周辺の物件情報
周辺の問合せ可能な物件
香川県高松市の問合せ可能な物件のうち、この物件の周辺にあるものから表示しています
賃貸
-
募集中
- 高松琴平電気鉄道琴平線 伏石駅 徒歩12分
- 3.7万円
- 高松琴平電気鉄道琴平線 伏石駅 徒歩12分
- 香川県高松市伏石町
- 24.5m² / 1K
-
募集中
- 高松琴平電気鉄道琴平線 三条駅 徒歩15分
- 4.4万円
- 高松琴平電気鉄道琴平線 三条駅 徒歩15分
- 香川県高松市伏石町
- 49.68m² / 2DK
-
募集中
- レオパレス蓮池
- 5.6万円
- 高松琴平電気鉄道琴平線 三条駅 徒歩15分
- 香川県高松市伏石町
- 49.68m² / 2DK
-
募集中
- 高松琴平電気鉄道琴平線 三条駅 徒歩19分
- 2.9万円
- 高松琴平電気鉄道琴平線 三条駅 徒歩19分
- 香川県高松市伏石町2108-1
- 17.82m² / 1K
-
募集中
- Fu9
- 2.9万円
- 高松琴平電気鉄道琴平線 伏石駅 徒歩11分
- 香川県高松市伏石町
- 17.82m² / 1K
-
募集中
- 高松琴平電気鉄道琴平線 三条駅 徒歩14分
- 3.5万円
- 高松琴平電気鉄道琴平線 三条駅 徒歩14分
- 香川県高松市伏石町
- 24.5m² / 1K
-
募集中
- プレステージ伏石
- 3.5万円
- 高松琴平電気鉄道琴平線 三条駅 徒歩14分
- 香川県高松市伏石町
- 24.5m² / 1K
-
募集中
- 高松琴平電気鉄道琴平線 三条駅 徒歩15分
- 5.5万円
- 高松琴平電気鉄道琴平線 三条駅 徒歩15分
- 香川県高松市伏石町
- 33.39m² / 1LDK
-
募集中
- リビングタウン伏石 A
- 5.5万円
- 高松琴平電気鉄道琴平線 三条駅 徒歩15分
- 香川県高松市伏石町
- 33.39m² / 1LDK
-
募集中
- 高松琴平電気鉄道琴平線 伏石駅 徒歩8分
- 5.8万円
- 高松琴平電気鉄道琴平線 伏石駅 徒歩8分
- 香川県高松市伏石町
- 45.0m² / 1LDK
新築マンション
※完成後1年以上経過した未入居の物件が含まれている場合があります
-
売出し中
- JR予讃線「高松」駅 徒歩7分 (約540m)
- 3,430万円~5,560万円
- JR予讃線「高松」駅 徒歩7分 (約540m)
- 香川県高松市錦町1丁目261-1
- 93.01m² / 2LDK+WIC+FC+SIC~3LDK+3WIC+FC+P+SIC
-
売出し中
- JR高徳線「栗林公園北口」駅 徒歩8分 、ことでんバス八本松バス停 徒歩1分
- 未定
- JR高徳線「栗林公園北口」駅 徒歩8分 、ことでんバス八本松バス停 徒歩1分
- 香川県高松市番町5丁目10-15
- 96.19m² / 2LDK+WTC+FC+P+SIC~3LDK+2WIC+2FC+P+SIC
-
売出し中
- JR予讃線「高松」駅 徒歩11分
- 2,780万円(2戸)~4,100万円(1戸)
- JR予讃線「高松」駅 徒歩11分
- 香川県高松市浜ノ町313-23
- 81.28m² / 2LDK、3LDK
-
売出し中
- 高松琴平電気鉄道琴平線「伏石」駅 徒歩7分 南口
- 2,980万円(1戸)~3,200万円(1戸)
- 高松琴平電気鉄道琴平線「伏石」駅 徒歩7分 南口
- 香川県高松市三条町字悪所21番4、22番1、23番1、24番1、25番1(合筆予定)
- 68.86m² / 2LDK、3LDK
-
売出し中
- 高松琴平電気鉄道琴平線「瓦町」駅 徒歩9分
- 3,640万円~4,960万円
- 高松琴平電気鉄道琴平線「瓦町」駅 徒歩9分
- 香川県高松市藤塚町二丁目10-1(地番)
- 82.87m² / 2LDK・3LDK
-
売出し中
- JR予讃線「高松」駅 徒歩9分
- 未定
- JR予讃線「高松」駅 徒歩9分
- 香川県高松市錦町一丁目253-1(地番)
- 148.81m² / 1LDK~4LDK
-
売出し中
- JR高徳線「栗林」駅 徒歩8分
- 2,890万円~4,220万円
- JR高徳線「栗林」駅 徒歩8分
- 香川県高松市藤塚町1丁目13-19(地番)
- 80.13m² / 2LDK・3LDK
中古マンション
-
売出し中
- サーパス伏石駅前
- 3990万円
- 高松琴平電気鉄道琴平線 伏石駅 徒歩2分
- 香川県高松市太田下町2449-3
- 90.16m² / 3LDK
-
売出し中
- ダイアパレス太田第3
- 1190万円
- 高松琴平電気鉄道琴平線 伏石駅 徒歩3分
- 香川県高松市太田下町2431-1
- 70.08m² / 3LDK
-
売出し中
- ジェイシティレインボー通り
- 2200万円
- バス レインボーロード伏石下車 徒歩6分
- 香川県高松市木太町
- 78.43m² / 3LDK
-
売出し中
- ロイヤルガーデン三条
- 2080万円
- 高松琴平電気鉄道琴平線 三条駅 徒歩11分
- 香川県高松市三条町
- 72.09m² / 3LDK
-
売出し中
- ロイヤルガーデン三条
- 1950万円
- 高松琴平電気鉄道琴平線 三条駅 徒歩10分
- 香川県高松市三条町60-3
- 86.62m² / 4LDK
-
売出し中
- サーパス伏石町レジデンス
- 2590万円
- 高松琴平電気鉄道琴平線 三条駅 徒歩3分
- 香川県高松市伏石町
- 71.4m² / 2LDK
-
売出し中
- サーパス木太公園
- 1280万円
- 高松琴平電気鉄道琴平線 三条駅 徒歩29分
- 香川県高松市木太町
- 71.35m² / 3LDK
-
売出し中
- オータニマンション
- 890万円
- 高松琴平電気鉄道琴平線 三条駅 徒歩6分
- 香川県高松市上之町3丁目6-8
- 100.65m² / 2LDK
-
売出し中
- サーパスサンフラワー通り東
- 3620万円
- 高松琴平電気鉄道琴平線 太田駅 徒歩11分
- 香川県高松市多肥下町
- 85.26m² / 2LDK
-
売出し中
- アルファステイツ木太中央公園
- 2150万円
- 高松琴平電気鉄道長尾線 元山駅 徒歩20分
- 香川県高松市木太町
- 71.94m² / 3LDK
一戸建て
-
売出し中
- 高松琴平電気鉄道琴平線「伏石」駅 徒歩10分~10分
- 4,500万円
- 高松琴平電気鉄道琴平線「伏石」駅 徒歩10分~10分
- 香川県高松市伏石町2089番7
- 92.73m² / 3LDK(2号地)
-
売出し中
- 高松市伏石町 中古戸建
- 950万円
- 高松琴平電気鉄道琴平線 伏石駅 徒歩10分
- 香川県高松市伏石町
- 148.86m² / 4DK
-
売出し中
- 高松琴平電気鉄道琴平線「三条」駅 徒歩6分
- 3298万円
- 高松琴平電気鉄道琴平線「三条」駅 徒歩6分
- 香川県高松市三条町字下所
- 95.9m² / 4LDK
-
売出し中
- オール電化デザイナーズハウス高松市三条町
- 3298万円
- 高松琴平電気鉄道琴平線 三条駅 徒歩6分
- 香川県高松市三条町
- 95.9m² / 4LDK
-
売出し中
- 高松市三条町 一戸建
- 120万円
- 高松琴平電気鉄道琴平線 三条駅 徒歩6分
- 香川県高松市三条町391-15
- 45.53m² / 3K
-
売出し中
- 高松琴平電気鉄道琴平線「伏石」駅 徒歩6分
- 2498万円
- 高松琴平電気鉄道琴平線「伏石」駅 徒歩6分
- 香川県高松市太田下町
- 96.88m² / 3LDK
-
売出し中
- オール電化デザイナーズハウス高松市太田下町
- 2498万円
- 高松琴平電気鉄道琴平線 伏石駅 徒歩6分
- 香川県高松市太田下町
- 96.88m² / 3LDK
-
売出し中
- 高松市三条町 新築戸建
- 3598万円
- 高松琴平電気鉄道琴平線 伏石駅 徒歩8分
- 香川県高松市三条町
- 108.06m² / 4LDK
-
売出し中
- 高松市三条町 新築戸建
- 3598万円
- 高松琴平電気鉄道琴平線 伏石駅 徒歩8分
- 香川県高松市三条町
- 112.41m² / 4LDK
-
売出し中
- 高松市三条町 新築戸建
- 3698万円
- 高松琴平電気鉄道琴平線 伏石駅 徒歩8分
- 香川県高松市三条町
- 106.82m² / 4LDK
注文住宅
※表示価格は延べ床面積約132m²の場合の建物価格の参考値です
エリア・駅で絞り込んで探す
香川県のサーパスが含まれるマンション
周辺の建物情報
物件の種類から探す
高松市で募集中の物件のみを検索できます
掲載情報に誤りや問題がある場合
LIFULL HOME'Sは「不動産会社」ではなく「情報掲載サイト」です
- ※管理会社の情報はLIFULL HOME'Sでは保持していないためお答えできません。お問合せはお控えください
- ※最新の募集状況は掲載中の不動産会社があれば、不動産会社へ直接お問合せください
掲載情報の訂正依頼 専用ダイヤル
0120-987-243
- 専用ダイヤル受付時間:10:00〜18:00
- ※土日・祝日、臨時休業日は除く
不動産データのご利用について
不動産事業におけるDX、サービスの改善、新規事業開発等をご検討中の方へ不動産データの活用をご提案します。LIFULL HOME'Sで集約した不動産情報や外部データは、不動産事業DX、不正決済防止、ローン審査、事業開発、研究等さまざまな事業でご活用いただいています。詳しくは以下よりご確認ください。
不動産アーカイブご利用アンケートにご協力ください
不動産アーカイブの掲載情報は、LIFULL HOME'S掲載の不動産情報および提携先の不動産情報を統計情報として集積したものであり、その存在や信憑性を保証するものではありません。