このページは物件の広告情報ではありません。
過去にLIFULL HOME'Sへ掲載された不動産情報と提携先の地図情報を元に生成した参考情報です。また、一般から投稿された情報など主観的な情報も含みます。
情報更新日: 2026/03/09
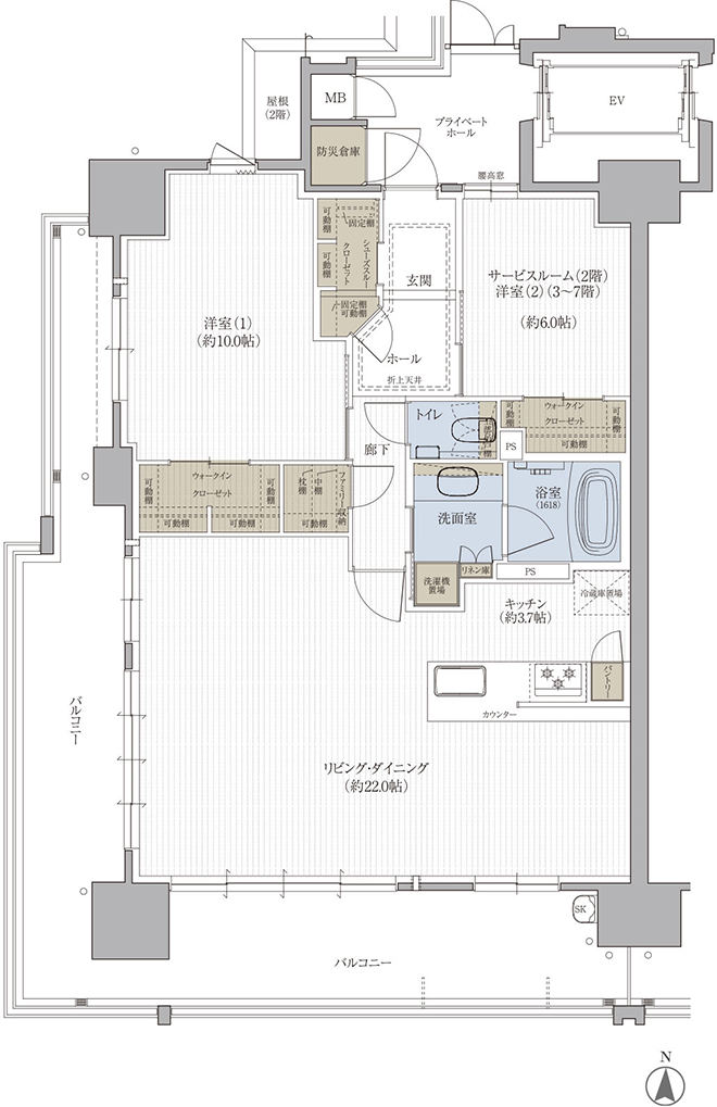
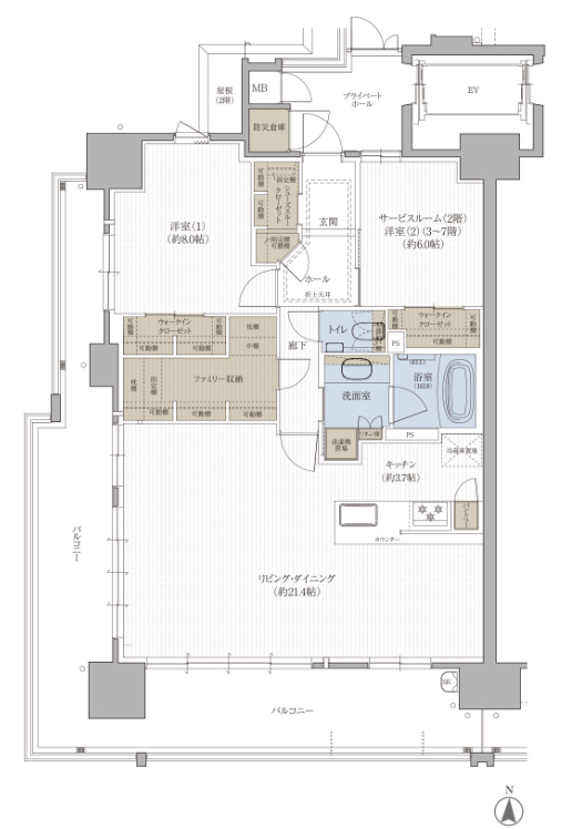
クレアホームズ松江大橋
| 所在地 | 島根県松江市東本町一丁目2番1 |
|---|---|
| 交通 |
|
| 価格 | 6,280万円~8,480万円 |
| 管理費等 | 13,600円~14,600円(月額) |
| 修繕積立金 | 8,500円~9,100円(月額) |
スポンサーリンク
クレアホームズ松江大橋の建物情報
物件概要
| 物件種別 | マンション |
|---|---|
| 築年月(築年数) | 2026年2月 (築1年) |
| 建物構造 | 鉄筋コンクリート造 地上15階建 |
| 販売個数(区画数) | 5戸 |
| 総戸数/総区画数 | 26戸 |
| 敷地全体面積 | 630.44m2 |
| 用途地域 | 商業 |
| 土地権利 | 所有権 |
| 建築確認番号 | 第ERI-24001712号(令和6年3月22日)、第ERI-24011896号(令和6年4月23日)計画変更 |
| 施工会社 | 株式会社カシワバラ・コーポレーション |
| 売主 | セントラル総合開発株式会社 |
| 販売会社 | 株式会社フリート(代理)、アーク不動産システム株式会社(代理) |
設備・条件
- 追い焚き
- システムキッチン
- シングル&DINKS向け
- オートロック
- エレベーター
- 100m2以上
※最新の状態と異なる場合があります
売りたい不動産をお持ちの方へ
このエリアの所有不動産を査定する
売却査定手続きの流れ、費用相場や注意点など不動産売却について詳しく知りたい方はLIFULL HOME'S 不動産査定へ
クレアホームズ松江大橋の周辺施設
-
買い物
日用品 -
- ローソン 松江母衣町店
- セブンイレブン 松江米子町店
- みしまや 中央店
- ポプラ 松江ニューアーバンホテル店
- 買い物
大型店 -
- エディオン 松江店
- エディオン 天神店
- シャミネ松江
- 一畑百貨店
- グルメ
-
- しゃぶしゃぶ温野菜松江駅前店
- スターバックスコーヒーシャミネ松江店
- ドトールコーヒーショップシャミネ松江店
- ケンタッキーフライドチキン 松江店
- 娯楽施設
-
- 末次公園
- ボートピア松江
- 白潟公園
- 島根県立武道館
- 文化施設
-
- ごうぎんカラコロ美術館
- 役所
公共施設 -
- 松江白潟本町郵便局
- 松江東本町郵便局
- 島根県警察本部
- 松江母衣郵便局
- 医療
-
- 松江赤十字病院
- 保育施設
-
- 松江暁の星幼稚園
- 白潟保育所
- しらゆり千鳥保育園
- みつき中央保育園
- 学校
-
- 松江市立内中原小学校
※学区外の学校が含まれる場合があります。実際の学区は必ず各自治体へご確認ください。
クレアホームズ松江大橋周辺の物件情報
周辺の問合せ可能な物件
島根県松江市の問合せ可能な物件のうち、この物件の周辺にあるものから表示しています
賃貸
-
募集中
- メゾン宍道湖
- 13万円
- 一畑電車北松江線 松江しんじ湖温泉駅 徒歩10分
- 島根県松江市東茶町6-2
- 70.08m² / 3LDK
-
募集中
- ガーデンハウス田町
- 7.7万円
- バス 鍛冶橋下車 徒歩3分
- 島根県松江市南田町95-1
- 84.5m² / 3LDK
-
募集中
- アルファステイツ宍道湖
- 12.5万円
- 一畑電車北松江線 松江しんじ湖温泉駅 徒歩7分
- 島根県松江市西茶町26番地
- 73.38m² / 3LDK
-
募集中
- アルファステイツ天神町
- 15.9万円
- JR山陰本線 松江駅 徒歩8分
- 島根県松江市天神町106
- 70.96m² / 3LDK
-
募集中
- メゾン夏椿
- 4.9万円
- 一畑電車北松江線 松江しんじ湖温泉駅 徒歩19分
- 島根県松江市殿町332-2
- 31.04m² / 1K
-
募集中
- ヴィラ・ア・マーレ
- 3.5万円
- バス 南田町東下車 徒歩1分
- 島根県松江市南田町
- 26.4m² / 1K
-
募集中
- カサローゼ宍道湖
- 6.8万円
- JR山陰本線 松江駅 徒歩13分
- 島根県松江市灘町1-54
- 27.8m² / 1DK
-
募集中
- ツインテラスXI
- 7.6万円
- バス 南田町下車 徒歩5分
- 島根県松江市南田町148-5
- 37.51m² / 1LDK
-
募集中
- Walnut南田町
- 3.6万円
- JR山陰本線 松江駅 徒歩22分
- 島根県松江市南田町63-2
- 18.37m² / 1K
-
募集中
- Noce南田町
- 6.2万円
- JR山陰本線 松江駅 徒歩22分
- 島根県松江市南田町63-1
- 32.67m² / ワンルーム
新築マンション
※完成後1年以上経過した未入居の物件が含まれている場合があります
-
売出し中
- JR山陰本線「乃木」駅 徒歩7分
- 3,280万円(2戸)~3,980万円(1戸)
- JR山陰本線「乃木」駅 徒歩7分
- 島根県松江市西嫁島2丁目2番
- 69.69m² / 2LDK、3LDK
-
売出し中
- 松江市営バス「東朝日町宮の沖」バス停【西進】 徒歩2分
- 3,318万円(1戸)~4,358万円(1戸)
- 松江市営バス「東朝日町宮の沖」バス停【西進】 徒歩2分
- 島根県松江市東朝日町字フケ37番(地番)
- 86.68m² / 2LDK+S(5戸)・3LDK(11戸)
-
売出し中
- JR山陰本線「松江」駅 徒歩23分
- 2,900万円台~14,900万円台(予定)
- JR山陰本線「松江」駅 徒歩23分
- 島根県松江市殿町105-1 (地番)
- 152.65m² / 2LDK・3LDK
-
売出し中
- JR山陰本線「松江」駅 徒歩6分
- 3,790万円~4,770万円
- JR山陰本線「松江」駅 徒歩6分
- 島根県松江市東朝日町字宮ノ沖123-4、他(地番)
- 84.44m² / 3LDK・4LDK
中古マンション
-
売出し中
- アルファステイツ宍道湖
- 2300万円
- 市営「市役所バス停徒歩」下車 徒歩2分
- 島根県松江市西茶町
- 69.22m² / 3LDK
-
売出し中
- フローレンス御手船場町グランドアーク
- 2750万円
- JR山陰本線 松江駅 徒歩4分
- 島根県松江市御手船場町
- 88.45m² / 2SLDK
-
売出し中
- パラッシオ嫁ヶ島グランリバージュ 2階
- 2080万円
- JR山陰本線 松江駅 徒歩20分
- 島根県松江市袖師町
- 66.97m² / 3LDK
-
売出し中
- サーパス黒田町
- 1350万円
- 一畑電車北松江線 松江しんじ湖温泉駅 徒歩16分
- 島根県松江市黒田町
- 76.45m² / 3LDK
-
売出し中
- サーパスシティ東朝日町
- 2480万円
- JR山陰本線 松江駅 徒歩10分
- 島根県松江市東朝日町
- 75.44m² / 3LDK
-
売出し中
- サーパス東朝日町南
- 2090万円
- JR山陰本線 松江駅 徒歩17分
- 島根県松江市東朝日町
- 75.16m² / 3LDK
-
売出し中
- サーパス西津田二丁目
- 3100万円
- JR山陰本線 松江駅 徒歩22分
- 島根県松江市西津田2丁目
- 80.56m² / 3LDK
-
売出し中
- サーパス上乃木
- 2150万円
- JR山陰本線 乃木駅 徒歩12分
- 島根県松江市上乃木3丁目
- 78.87m² / 3LDK
-
売出し中
- サーパス上乃木四丁目
- 3180万円
- JR山陰本線 乃木駅 徒歩17分
- 島根県松江市上乃木4丁目
- 84.1m² / 4LDK
-
売出し中
- アルファスマート上乃木II
- 2980万円
- 市営「仲良し橋バス停」下車 徒歩2分
- 島根県松江市上乃木8丁目
- 67.5m² / 3LDK
一戸建て
-
売出し中
- 幸町元山2号地建売
- 2880万円
- 一畑「横浜」下車 徒歩4分
- 島根県松江市幸町822-12
- 69.56m² / 2LDK
-
売出し中
- 松江市国屋町 戸建て
- 1799万円
- 一畑電車北松江線 松江しんじ湖温泉駅 国屋下車 徒歩2分
- 島根県松江市国屋町316-4
- 61.07m² / 2LDK
-
売出し中
- 中古戸建 松江市国屋町
- 1799万円
- 一畑電車北松江線 松江しんじ湖温泉駅 徒歩13分
- 島根県松江市国屋町
- 61.07m² / 3DK
-
売出し中
- 松江市西津田8丁目 戸建て
- 2399万円
- JR山陰本線 松江駅 生協病院前下車 徒歩3分
- 島根県松江市西津田8丁目3-2
- 181.01m² / 5SDK
-
売出し中
- 国屋町中古戸建
- 2300万円
- 一畑電車北松江線 松江しんじ湖温泉駅 徒歩15分
- 島根県松江市国屋町
- 110.13m² / 4SLDK
-
売出し中
- 西津田5丁目 中古戸建
- 750万円
- -「プラバホール東入口」下車 徒歩6分
- 島根県松江市西津田5丁目
- 149.14m² / 7DK
-
売出し中
- 淞北台 中古戸建
- 500万円
- -「淞北台団地」下車 徒歩3分
- 島根県松江市淞北台4-26
- 120.2m² / 7LDK
-
売出し中
- 国屋町 中古戸建
- 2580万円
- 市営「国屋」下車 徒歩16分
- 島根県松江市国屋町
- 127.82m² / 4SLDK
-
売出し中
- JR山陰本線「乃木」駅 徒歩14分
- 6695.8万円(1戸)
- JR山陰本線「乃木」駅 徒歩14分
- 島根県松江市上乃木2丁目
- 106.83m² / 3LDK(1戸)
-
売出し中
- 南平台テラス1号地
- 2880万円
- 市営「南平台入口」下車 徒歩3分
- 島根県松江市南平台16-5(住居表示)385-37(地番)
- 99.36m² / 3SLDK
注文住宅
※表示価格は延べ床面積約132m²の場合の建物価格の参考値です
エリア・駅で絞り込んで探す
島根県のクレアが含まれるマンション
物件の種類から探す
松江市で募集中の物件のみを検索できます
掲載情報に誤りや問題がある場合
LIFULL HOME'Sは「不動産会社」ではなく「情報掲載サイト」です
- ※管理会社の情報はLIFULL HOME'Sでは保持していないためお答えできません。お問合せはお控えください
- ※最新の募集状況は掲載中の不動産会社があれば、不動産会社へ直接お問合せください
掲載情報の訂正依頼 専用ダイヤル
0120-987-243
- 専用ダイヤル受付時間:10:00〜18:00
- ※土日・祝日、臨時休業日は除く
不動産データのご利用について
不動産事業におけるDX、サービスの改善、新規事業開発等をご検討中の方へ不動産データの活用をご提案します。LIFULL HOME'Sで集約した不動産情報や外部データは、不動産事業DX、不正決済防止、ローン審査、事業開発、研究等さまざまな事業でご活用いただいています。詳しくは以下よりご確認ください。
不動産アーカイブご利用アンケートにご協力ください
不動産アーカイブの掲載情報は、LIFULL HOME'S掲載の不動産情報および提携先の不動産情報を統計情報として集積したものであり、その存在や信憑性を保証するものではありません。