1. 不動産・住宅情報サイトLIFULL HOME'S
  2. マンション
  3. 新築マンション
  4. 中国・四国
  5. 島根県
  6. 松江市
  7. 松江駅
  8. クレアホームズ松江大橋
新築マンション 分譲中

クレアホームズ松江大橋

  • 更新日:2026/05/11
  • 次回更新予定日:2026/05/25

物件の特徴

  • 先着順
  • 6,280万円~7,770万円
  • 所在地
    島根県松江市東本町一丁目2番1 地図を見る
    • ※不動産会社が入力した情報を基に物件の位置を表示しています
    • ※詳しくは不動産会社までお問合せください

    閉じる

  • 交通
    JR山陰本線「松江」駅 徒歩14分
  • 引き渡し
    即入居可(諸手続き完了後)
  • 即入居可
  • エレベーター

販売概要

ポイント

  • 全国ブランド 「CLARE HOMES」 松江エリア初登場
  • 【島根県初】※1「ZEH-M Oriented & 低炭素建築物」ダブル認証
  • 宍道湖を、大山を、大橋川を望むリバーフロント景勝私産。

お問合せ(無料)

モデルルーム見学する

5/22
5/23
5/24
5/25
5/26
×
5/27
×
5/28
5/29
5/30
5/31
6/1
6/2
×
6/3
×
6/4
資料請求する
クレアホームズ松江大橋 クレアホームズ松江大橋

詳しいパンフレットや図面集、リーフレット等がお手元に届きます。
質問・相談もできます


かんたん1分で
資料をもらう
無料

電話する

0037-618-78519 無料

QRコードを読み込むとすぐに電話できます。

お問合せ先
クレアホームズ・マンションギャラリー
登録する
LINEで更新情報を受取る(無料)
価格・間取りなどの更新情報がLIFULL HOME'S公式のLINEから届きます

QRコードを読み込むと登録画面が表示されます
プライバシーポリシー
に同意の上ご登録ください

オリジナルムービー

  • 3月5日(木)より建物内モデルルーム公開

コンセプト

時を嗜む。 宍道湖の水景と共に。

  • クレアホームズ松江大橋 緑と調和する新たな住まい

    緑と調和する新たな住まい
    松江市に位置する「クレアホームズ松江大橋」の魅力は、その絶好のリバー・フロント環境と、四季折々の自然美を楽しめる絶好の立地条件にあります。朝陽の光に照らされ浮かび上がる大山や、穏やかな川面から煌めき流れる水の音風景は、ここで暮らす住民の日々に新たな息吹をもたらすでしょう。これほどのロケーションでしか味わえない特別な日常が、生活そのものに彩りを加え、充実した時間をもたらします。
    特筆すべきは、「ZEH-M Oriented」と「低炭素建築物」という2つの環境性能評価を受けた稀有な物件であるという点です。これにより、省エネルギー性が実現され、住む方に優れた環境配慮型の暮らしを提供します。この地域で新しい形の住まいを探している方々にとって、「クレアホームズ松江大橋」はその期待に応え得る存在です。この住宅が提供する、河川や緑に囲まれた自然との調和した生活は、居住空間に新たな価値を見出し、豊かな時間を約束するものとなります。
    ※1:島根県内の分譲マンションとしては初めて「ZEH-M Oriented」と「低炭素建築物」をダブル認証を受けています。(一般社団法人 住宅性能評価・表示協会出典) もっと見る

間取り

公開中:3

間取り表記例:
Rルーフバルコニー
TRトランクルーム
Sサービスルーム(納戸)
DEN書斎(納戸)
WTCウォークスルークロゼット(クローク)
N納戸
MCマルチクロゼット(クローク)
Wウォークインクロゼット(クローク)
SCシューズクロゼット(クローク)
WICウォークインクロゼット(クローク)
SICシューズインクロゼット(クローク)

LINEで更新情報を受け取る(無料)

価格・間取りなどの更新情報がLIFULL HOME'S公式のLINEから届きます
プライバシーポリシーに同意の上ご登録ください

QRコードを読み込むと登録画面が表示されます

周辺環境・アクセス

交通アクセス図

クレアホームズ松江大橋:交通図

周辺スポット

  • ローソン 松江母衣町店
    約230m(徒歩3分)

  • みしまや中央店
    約500m(徒歩7分)

  • エディオン 松江店
    約580m(徒歩8分)

  • 松江赤十字病院
    約280m(徒歩4分)

  • 松江市役所
    約800m(徒歩10分)

  • 島根県立図書館
    約1,090m(徒歩14分)

  • 山陰合同銀行本店
    約400m(徒歩5分)

  • 松江城
    約860m(徒歩11分)

  • 白潟公園
    約440m(徒歩6分)

  • シャミネ松江
    約1,060m(徒歩14分)
  • イオン松江ショッピングセンター
    約1,600m(車4分)
  • 玉造温泉
    約9.8km(車25分)
  • 出雲大社
    約38.2km(車55分)
  • 島根県庁
    約830m(徒歩11分)

※表示距離は現地からの概測距離(地図上)です。徒歩分数は80m/分で算出しています。
※車の所要時間は日中平常時に一般的な速度で3回実測した平均値を算出したものです。道路状況により所要時間は異なります。

周辺地図

周辺情報

※半径4kmを超えると、周辺情報のアイコンは表示されません。

  • ※地図上に表示される各種アイコンなどの情報は、おおよその所在地を表すものであり、物件・施設などの地点を保証するものではありません
  • ※地図の表示領域が広域になると周辺のお店・施設は表示できなくなります
  • ※地図、航空写真情報および地形ならびに周辺のお店・施設は、必ずしも現況を表すものではありません
  • ※物件から周辺のお店・施設までの距離は、利用が想定される道路を通行した場合の距離です。なお、必ずしも最短距離を保証するものではありません

LINEで更新情報を受け取る(無料)

価格・間取りなどの更新情報がLIFULL HOME'S公式のLINEから届きます
プライバシーポリシーに同意の上ご登録ください

QRコードを読み込むと登録画面が表示されます

モデルルーム

モデルルーム案内図

クレアホームズ松江大橋:モデルルーム地図

※掲載の地図はイメージイラストにつき実際とは多少異なる場合がございます。

モデルルーム情報

インフォメーション 3住戸棟内モデルルーム公開中

<モデルルーム公開中>
予約制/ハイスペックなマンションクオリティをぜひこの機会にお確かめください。
所在地 松江市東本町1-2-1
営業時間 10:00~18:00
定休日 火・水曜日(祝日除く)
開催期間 -
お問合せ先

クレアホームズ・マンションギャラリー

電話:0037-618-78519【通話無料】

  • 携帯可 光IP電話、及びIP電話からはご利用いただけません
  • ※営業時間外は電話がつながらないことがございますのでご了承ください。
  • ※お客様の電話番号は不動産会社に通知されません
  • ※携帯電話はご利用いただけます
  • ※光IP電話、及びIP電話をご利用のお客様は以下へご連絡ください
    クレアホームズ・マンションギャラリー TEL:0120-888-284
  • ※携帯電話からお問合せいただいた方には、ショートメッセージ(SMS)またはLINE通知メッセージによるお問合せ内容に関する通知をお届けする場合があり、お客様の電話番号は株式会社LIFULLで一定期間保管されます
  • ※株式会社LIFULLの個人情報の取扱い方針に同意のうえ、お電話ください

お問合せ(無料)

モデルルーム見学する
5/22
5/23
5/24
5/25
5/26
×
5/27
×
5/28
5/29
5/30
5/31
6/1
6/2
×
6/3
×
6/4


モデルルーム
見学予約する
無料

資料請求する
クレアホームズ松江大橋 クレアホームズ松江大橋

詳しいパンフレットや図面集、リーフレット等がお手元に届きます。
質問・相談もできます


かんたん1分で
資料をもらう
無料

電話する

0037-618-78519無料

QRコードを読み込むとすぐに電話できます。

登録する

LINEで更新情報を受け取る(無料)

価格・間取りなどの更新情報がLIFULL HOME'S公式のLINEから届きます
プライバシーポリシーに同意の上ご登録ください

QRコードを読み込むと登録画面が表示されます

建物・部屋

建物・共用部

  • クレアホームズ松江大橋 外観完成写真

    外観完成写真
    洗練の意匠が川辺を彩る。水辺の原風景を継ぎ、緑と街に調和するレジデンス。
  • クレアホームズ松江大橋 エントランスアプローチ完成予想図

    エントランスアプローチ完成予想図
    私邸へと向かうひと時を優雅に物語るエントランス。
  • クレアホームズ松江大橋 エントランス完成写真

    エントランス完成写真
    品格ある邸宅生活へと誘う迎賓空間。
  • クレアホームズ松江大橋 エントランスホール完成写真

    エントランスホール完成写真
    上品さと品格を大切に表現した空間美。

※掲載の完成予想CGは、計画段階の図面を基に描き起こしたもので、実際とは多少異なります。各種設備機器および周辺建物・電柱・架線・道路標識等は一部省略または簡略化しております。植栽は特定の季節の状況を示すものではなく、竣工時には完成予想CG程度には成長しておりません。また樹種等は変更となる場合があります。

LINEで更新情報を受け取る(無料)

価格・間取りなどの更新情報がLIFULL HOME'S公式のLINEから届きます
プライバシーポリシーに同意の上ご登録ください

QRコードを読み込むと登録画面が表示されます

室内・専有部

  • クレアホームズ松江大橋 リビング・ダイニング・キッチン

    リビング・ダイニング・キッチン
  • クレアホームズ松江大橋 リビング・ダイニング・キッチン

    リビング・ダイニング・キッチン
  • クレアホームズ松江大橋 ダイニング・キッチン

    ダイニング・キッチン
  • クレアホームズ松江大橋 ベッドルーム

    ベッドルーム
  • クレアホームズ松江大橋 プライベートルーム

    プライベートルーム
  • クレアホームズ松江大橋 バスルーム/パウダールーム

    バスルーム/パウダールーム

※掲載の室内写真は「クレアホームズ・マンションギャラリー」内のCtypeモデルルームを撮影(2024年8月)したもので、オプションも含まれます。また、オプション・家具・調度品等は分譲価格に含まれません。あらかじめご了承ください。有償オプションには対象住戸・申込時期および、変更できる内容に制限があります。設備・仕様はタイプにより異なる場合があります。詳しくは係員にお問い合わせください
※写真の窓外の眺望は、現地12階相当の高さより撮影した写真(2024年8月)にCG処理を加え、モデルルーム写真に合成したもので実際とは異なります。尚、眺望は住戸によって異なり、将来に渡って保証されるものではありません

LINEで更新情報を受け取る(無料)

価格・間取りなどの更新情報がLIFULL HOME'S公式のLINEから届きます
プライバシーポリシーに同意の上ご登録ください

QRコードを読み込むと登録画面が表示されます

設備・構造

  • クレアホームズ松江大橋 ヒートオフガラストップ

    ヒートオフガラストップ

    独自のヒートオフ構造により、バーナー周りの熱を分散・放熱させて表面温度の上昇を抑え汚れが焦げつきにくく、簡単なお手入れだけできれいに保ちます。

  • クレアホームズ松江大橋 グースネック オートセンサー水栓

    グースネック オートセンサー水栓

    浄水機能・センサー機能付で、デザイン性に優れた優美なフォルムのグースネックオートセンサー水栓を採用。水栓に触れることなく出し止めが可能です。また、ボタン切替でストレート吐水とシャワー吐水の切替が簡単に行えます。

  • クレアホームズ松江大橋 アシストスペース

    アシストスペース

    魚介類をさばく作業や、殻・背わたを取り除く調理も快適です。こんにゃくや漬物など、水気の多い食材の調理も安心。

  • クレアホームズ松江大橋 浴室換気暖房乾燥機

    浴室換気暖房乾燥機

    冬場の寒さによる身体への負担を軽減し快適なバスタイムを実現するとともに、洗濯物の室内干しでもしっかり乾かせます。

  • クレアホームズ松江大橋 ライン照明付き三面鏡+鏡裏収納

    ライン照明付き三面鏡+鏡裏収納

    顔を明るく映すライン照明付三面鏡はメイクの確認にも最適。鏡の裏には化粧品などをしまえる見せない収納スペースもご用意。

  • クレアホームズ松江大橋 小物棚付タオルハンガー

    小物棚付タオルハンガー

    手洗いや洗顔の際に、メガネや時計などを置ける小物用の棚を設置しています。

  • クレアホームズ松江大橋 ターントラップ方式

    ターントラップ方式

    排水路を電動可変式にすることで、ゼット孔からの給水を必要とせず水を一気に排出。節水のうえしっかり洗浄。

  • クレアホームズ松江大橋 大理石仕上げのホール床

    大理石仕上げのホール床

    住まいの格を象徴する玄関ホールの床には大理石を使用。住戸エントランスを上品に演出しています。

  • クレアホームズ松江大橋 玄関オートライト照明

    玄関オートライト照明

    人の動きを感知し、自動的に照明が点灯。一定時間後には消灯するので省エネにも効果的。

  • クレアホームズ松江大橋 全居室カーテンボックス

    全居室カーテンボックス

    カーテンレールをかくして、窓辺の美しさを演出するカーテンボックスを、カーテンレールのつく全居室の窓に採用しています。

  • クレアホームズ松江大橋 スロップシンク

    スロップシンク

    ガーデニングや汚れ物の洗濯などに便利なスロップシンクをバルコニーに設置。お掃除の際も重宝します。

  • クレアホームズ松江大橋 エコジョーズ×給湯器24号

    エコジョーズ×給湯器24号

    「エコジョーズ」は、少ないガス量で効率よくお湯を沸かす省エネ性が高い給湯器。CO2の排出も抑制するので、家計と環境どちらにとっても最適です。キッチンやシャワーなどの給湯と、自動湯はりやおいだきの同時使用でも、余裕の「24号タイプ」。

  • クレアホームズ松江大橋 ペット飼育可

    ペット飼育可

    大好きなペットと一緒に暮らすことができます。共用部にペット用の足洗い場も設けています。※ペットの種類や大きさ・頭数には規約に基づく制限があります。

  • クレアホームズ松江大橋 防犯カメラ

    防犯カメラ

    犯罪抑止力を高めるため、密室となるエレベーター内や人の目が届きにくいエリアに防犯カメラを随所に設置。映像は録画され、万一の際に役立てられます。

  • クレアホームズ松江大橋 防音サッシ(T-1等級)採用

    防音サッシ(T-1等級)採用

    静かな居住空間を実現するため、屋外からの音を抑える性能を持つ遮音性能の高いT-1等級のサッシを採用。深夜の自動車騒音など気になる騒音の侵入を抑えます。また、住戸内からの音漏れも低減し、快適な住環境を確保します。

  • クレアホームズ松江大橋 耐震玄関枠

    耐震玄関枠

    地震時に万一玄関枠が変形しても容易に開放できる構造を採用。住戸内に閉じ込められることなく避難できます。防音・断熱型で、防火性能も確保。

  • クレアホームズ松江大橋 アウトポール設計

    アウトポール設計

    リビング側に柱を出さずバルコニーなど外側に出す設計を採用。室内に出っ張りがなくなり広く使え、家具などのレイアウトがしやすくなります。

  • クレアホームズ松江大橋 フルフラットフロア

    フルフラットフロア

    浴室をはじめ、玄関部分を除く室内の床段差を解消。つまずきによる事故を未然に防ぎ、お子様や高齢者にも優しい設計に。

  • ステンレス製レンジフード ホーロー仕上げの整流板は、油汚れも簡単に拭き取れます。ビルトインコンロの点火/消火が、レンジフード(照明含む)の運転/停止と自動で連動しています。
  • 食器洗い乾燥機 食後の片付けをサポートし、家事の時間を短縮してくれる食器洗い乾燥機を、全戸で標準装備。節水効果も期待でき、環境にも優しい設備です。
  • 保温浴槽 発泡ポリスチレン断熱材で断熱。5.5時間たっても温度低下は2.5℃以内。沸かし直しが減らせる浴槽です。
  • フラッグストーンフロア 切り出した石をキチンと連続して揃えたようなデザイン。従来の浴室床よりスッキリとした形状です。
  • リネン庫 棚は使いやすい可動式になっており、高さ調節も簡単。タオルや洗剤などをストックするのに重宝します。
  • ホーム保安灯 廊下に設置し、停電時には自動的に点灯。安全性を確保します。取り外せば懐中電灯としても使用することができます。
  • 幅広フローリング ワックス掛けが不要で、傷がつきにくく耐熱性・耐摩耗性に優れた高級感あふれる幅広フローリングを採用しました。
  • センターオープンサッシ ワイドなリビング・ダイニングには、その開放感をさらに高めるセンターオープンサッシを採用。中央から大きく開け放つことができ、屋内と屋外の空間が繋がる心地よさが一層感じられます。
  • エレベーター内監視モニター 密室状態になりがちなエレベーター内に防犯カメラを設置しています。エレベーター内の状況を常に1階のエレベーターホールのモニターに映し出すので犯罪の抑止に効果的です。
  • 7インチワイドタッチパネルモニター オートロック、防犯センサー、ガス漏れ感知器、非常警報などとも連動するハンズフリータイプのセキュリティインターホン。留守中の訪問者を自動録画し、メッセージも録音します。
  • ボイドスラブ工法 各階スラブ厚は約275~300mm(水廻り、その他一部を除く)。スラブ内の中空部(ボイド)が、荷重を軽減しつつ、高い強度を発揮し、小梁のないすっきりした空間を実現します。
  • 柱構造 柱の主筋を束ねる帯筋は、溶接閉鎖型フープ筋を採用。両端をすべて溶接・閉鎖することで主筋をしっかり固定し、地震による柱型の座屈の防止や圧縮強度の増大に役立ちます。

※掲載の室内写真は「クレアホームズ・マンションギャラリー」内のCtypeモデルルームを撮影(2024年8月)したもので、オプションも含まれます。また、オプション・家具・調度品等は分譲価格に含まれません。あらかじめご了承ください。有償オプションには対象住戸・申込時期および、変更できる内容に制限があります。設備・仕様はタイプにより異なる場合があります。詳しくは係員にお問い合わせください。

LINEで更新情報を受け取る(無料)

価格・間取りなどの更新情報がLIFULL HOME'S公式のLINEから届きます
プライバシーポリシーに同意の上ご登録ください

QRコードを読み込むと登録画面が表示されます

物件概要

販売概要

先着順

販売スケジュール 好評分譲中
販売価格 6,280万円~7,770万円 ローンシミュレーター
最多価格帯 -
販売戸数 5戸
間取り 2LDK・2LDK+S・3LDK
専有面積 94.01㎡・94.20㎡(防災倉庫面積0.94㎡を含む)
バルコニー面積 30.85㎡・36.09㎡
管理費 13,600円・13,700円(月額)
修繕積立金 8,500円(月額)
修繕積立基金 765,000円(一括)
その他費用 ■管理準備金:27,200円・27,400円(一括) ■インターネット使用料(月額):1,595円(税込)
販売概要備考 ※お申込の際には、お認印、収入証明書の写し(令和5年分の源泉徴収票または直近3年分の確定申告書の控え)、ご本人確認書類(運転免許証・パスポート・保険証等)をご持参ください。
取引条件有効期限 2026/04/30

LINEで更新情報を受け取る(無料)

価格・間取りなどの更新情報がLIFULL HOME'S公式のLINEから届きます
プライバシーポリシーに同意の上ご登録ください

QRコードを読み込むと登録画面が表示されます

全体概要

所在地 島根県松江市東本町一丁目2番1
交通
JR山陰本線「松江」駅 徒歩14分
総戸数 26戸
構造および階数 鉄筋コンクリート造 地上15階建
駐車場 -
その他、共有施設等 ■駐車場:23台(内平置き7台、機械式駐車場16台)
■バイク置場:3台
■自転車置場:39台
完成時期 2026年3月3日竣工済
引き渡し可能年月 即入居可(諸手続き完了後)
分譲後の権利形態 建物:専有部分は区分所有権、共用部分は専有面積割合による所有権の共有
管理形態 区分所有者全員により管理組合を結成し、運営・管理業務はセントラルライフに委託していただきます。
管理員の勤務形態 通勤
敷地面積 630.44㎡
用途地域 商業地域
建築確認番号 第ERI-24001712号(令和6年3月22日)、第ERI-24011896号(令和6年4月23日)計画変更
売主 セントラル総合開発株式会社
販売会社 株式会社フリート(代理)、アーク不動産システム株式会社(代理)
施工会社 株式会社カシワバラ・コーポレーション
管理会社 セントラルライフ株式会社
備考 【ポイント】
※1 島根県内の分譲マンションとしては初めて「ZEH-M Oriented」と「低炭素建築物」をダブル認証を受けています。(一般社団法人 住宅性能評価・表示協会出典)
バルコニー面積: 30.85㎡・36.09㎡
建築確認番号: 第ERI-24001712号(令和6年3月22日)、第ERI-24011896号(令和6年4月23日)計画変更
加盟団体: (公社)全日本不動産協会広島県本部
情報更新日 2026/05/11
次回更新予定日 2026/05/25

LINEで更新情報を受け取る(無料)

価格・間取りなどの更新情報がLIFULL HOME'S公式のLINEから届きます
プライバシーポリシーに同意の上ご登録ください

QRコードを読み込むと登録画面が表示されます

会社・ブランド

ブランド情報

この物件の不動産会社が保持しているマンションブランドの特徴です。

クレア

ブランド画像

私たちのブランド「CLARE」は全国各地でマンション事業を展開しています。

私たちのブランドは、CLARE(クレア)。全国各地でマンション事業を数多く展開しています。“OWNERS FIRST” を追求し快適な住まいを創造するクレアホームズのクオリティ。
常にお客様視点での商品企画を行い “OWNERS FIRST(オーナーズ・ファースト)” の精神でこだわり抜いた設備仕様を採用。
日々の快適性はもちろん、住まうほどに愛着の深まる美しい空間づくりこそクレアホームズが追求するクオリティです。

私たちのブランドは、CLARE(クレア)。全国各地でマンション事業を数多く展開しています。“OWNERS FIRST” を追求し快適な住まいを創造するクレアホームズのクオリティ。
常にお客様視点での商品企画を行い “OWNERS FIRST(オーナーズ・ファースト)” の精神でこだわり抜いた設備仕様を採用。
日々の快適性はもちろん、住まうほどに愛着の深まる美しい空間づくりこそクレアホームズが追求するクオリティです。

情報提供元

セントラル総合開発株式会社 中国支店

免許番号
[国土交通大臣(13)第2432号]
所在地
〒730-0013 広島県広島市中区八丁堀15-10-5F
加盟団体
(公社)全日本不動産協会広島県本部

お問合せ(無料)

モデルルーム見学する
5/22
5/23
5/24
5/25
5/26
×
5/27
×
5/28
5/29
5/30
5/31
6/1
6/2
×
6/3
×
6/4


モデルルーム
見学予約する
無料

資料請求する
クレアホームズ松江大橋 クレアホームズ松江大橋

詳しいパンフレットや図面集、リーフレット等がお手元に届きます。
質問・相談もできます


かんたん1分で
資料をもらう
無料

電話する

0037-618-78519無料

QRコードを読み込むとすぐに電話できます。

お問合せ先

クレアホームズ・マンションギャラリー

電話:0037-618-78519【通話無料】

受付時間:10:00~18:00 定休日:火・水曜日(祝日除く)

  • ※お問合せの際は、「ライフルホームズを見て」とお伝えいただくとスムーズです
  • ※営業時間外は下記の「資料をもらう(無料)」よりお問合せください
【お電話の際の注意事項】
※お客様の電話番号は不動産会社に通知されません
※携帯電話はご利用いただけます
※光IP電話、及びIP電話をご利用のお客様は以下へご連絡ください
TEL:クレアホームズ・マンションギャラリー0120-888-284
※携帯電話からお問合せいただいた方には、ショートメッセージ(SMS)またはLINE通知メッセージによるお問合せ内容に関する通知をお届けする場合があり、お客様の電話番号は株式会社LIFULLで一定期間保管されます
登録する
お気に入り一覧を見る

LINEで更新情報を受け取る(無料)

価格・間取りなどの更新情報がLIFULL HOME'S公式のLINEから届きます
プライバシーポリシーに同意の上ご登録ください

QRコードを読み込むと登録画面が表示されます

シェアする

【物件番号】 1602082-0000002

  • ※完成予想図やCG合成画像は、門塀・植栽・庭・外観等、実際とは多少異なる場合があります。 また、掲載の図面は、多少変更になる場合があります
  • ※掲載の写真や動画には、一部オプション(有償)が含まれる場合があります。また、家具・調度品等は販売価格に含まれておりません
  • ※完成後1年未満で未入居の物件を「新築」と表示しております

その他の新築分譲マンションを探す

松江市の詳細町域から新築分譲マンションを探す

  • クレアホームズ松江大橋 外観

    外観完成予想図 ※完成予想CGは、計画段階の図面を基に描き起こしたもので、実際とは多少異なります。各種設備機器および周辺建物・電柱・架線・道路標識等は一部省略または簡略化しております。

  • クレアホームズ松江大橋 その他

    現地15階相当の高さより宍道湖を望む

  • クレアホームズ松江大橋 その他

    外観

  • クレアホームズ松江大橋 その他

    外観

  • クレアホームズ松江大橋 コンセプト

    松江市に位置する「クレアホームズ松江大橋」の魅力は、その絶好のリバー・フロント環境と、四季折々の自然美を楽しめる絶好の立地条件にあります。朝陽の光に照らされ浮かび上がる大山や、穏やかな川面から煌めき流れる水の音風景は、ここで暮らす住民の日々に新たな息吹をもたらすでしょう。これほどのロケーションでしか味わえない特別な日常が、生活そのものに彩りを加え、充実した時間をもたらします。 特筆すべきは、「ZEH-M Oriented」と「低炭素建築物」という2つの環境性能評価を受けた稀有な物件であるという点です。これにより、省エネルギー性が実現され、住む方に優れた環境配慮型の暮らしを提供します。この地域で新しい形の住まいを探している方々にとって、「クレアホームズ松江大橋」はその期待に応え得る存在です。この住宅が提供する、河川や緑に囲まれた自然との調和した生活は、居住空間に新たな価値を見出し、豊かな時間を約束するものとなります。

  • クレアホームズ松江大橋 コンセプト

    松江の中心市街地に位置する【クレアホームズ松江大橋】は、利便性と快適さを兼ね備えた魅力的なロケーションを提供します。松江市役所や島根県庁といった重要な公共機関にほど近く、ビジネスゾーンのJR「松江」駅エリアにも近接しています。この位置は、日常生活を豊かにするための様々な施設が徒歩圏内に集約されていることを意味します。特に、イオン松江ショッピングセンターへは車で約4分というアクセスの良さを誇り、スーパーマーケットや多様な専門店が揃うため、毎日の買い物にも非常に便利です。 交通面でも、JR「松江」駅が徒歩圏内であるため、空港へのスムーズなアクセスが可能です。観光にも便利な一畑電車北松江線の「松江しんじ湖温泉」駅へは徒歩14分、バスの「大橋北詰」停留所へは徒歩2分で行け、多方面への移動が容易です。また、車での移動でも、出雲大社まで車で約55分、玉造温泉まで約25分という距離感が、島根を代表するスポットへの訪問をより気軽にします。 松江の魅力を存分に堪能できる【クレアホームズ松江大橋】は、快適で便利な暮らしを実現します。

  • クレアホームズ松江大橋 コンセプト

    クレアホームズ松江大橋は、そのデザインにおいて地域の美しさを最大限に取り入れた住まいです。宍道湖や大橋川の豊かな自然を感じつつ、遠くに大山を望む景色の中に、洗練された建築が見事に溶け込んでいます。住まいとしての外観は、川辺を彩る美しいファサードが特徴で、自然との調和を意識した設計が施されています。 エントランスアプローチでは、訪れる人を優雅に迎え入れるよう、考え抜かれたデザインが施されており、エントランス自体はその象徴的な空間美が訪れる方を品格ある生活へと誘います。エントランスホールに足を踏み入れれば、その上品さと洗練された風格が、日常に特別なひとときをもたらします。計画段階からデザインにこだわり、周辺環境との調和を大切にしているため、デザインは緻密に仕上げられています。クレアホームズシリーズのブランドとして、多くの住まい手にとって魅力的なデザインを提供しています。

  • クレアホームズ松江大橋 共用部

    洗練の意匠が川辺を彩る。水辺の原風景を継ぎ、緑と街に調和するレジデンス。

  • クレアホームズ松江大橋 共用部

    私邸へと向かうひと時を優雅に物語るエントランス。

  • クレアホームズ松江大橋 共用部

    品格ある邸宅生活へと誘う迎賓空間。

  • クレアホームズ松江大橋 共用部

    上品さと品格を大切に表現した空間美。

  • クレアホームズ松江大橋 専有部

  • クレアホームズ松江大橋 専有部

  • クレアホームズ松江大橋 専有部

  • クレアホームズ松江大橋 専有部

  • クレアホームズ松江大橋 専有部

  • クレアホームズ松江大橋 専有部

  • クレアホームズ松江大橋 設備

    ヒートオフガラストップ

  • クレアホームズ松江大橋 設備

    グースネック オートセンサー水栓

  • クレアホームズ松江大橋 設備

    アシストスペース

  • クレアホームズ松江大橋 設備

    浴室換気暖房乾燥機

  • クレアホームズ松江大橋 設備

    ライン照明付き三面鏡+鏡裏収納

  • クレアホームズ松江大橋 設備

    小物棚付タオルハンガー

  • クレアホームズ松江大橋 設備

    ターントラップ方式

  • クレアホームズ松江大橋 設備

    大理石仕上げのホール床

  • クレアホームズ松江大橋 設備

    玄関オートライト照明

  • クレアホームズ松江大橋 設備

    全居室カーテンボックス

  • クレアホームズ松江大橋 設備

    スロップシンク

  • クレアホームズ松江大橋 設備

    エコジョーズ×給湯器24号

  • クレアホームズ松江大橋 設備

    ペット飼育可

  • クレアホームズ松江大橋 設備

    防犯カメラ

  • クレアホームズ松江大橋 設備

    防音サッシ(T-1等級)採用

  • クレアホームズ松江大橋 設備

    耐震玄関枠

  • クレアホームズ松江大橋 設備

    アウトポール設計

  • クレアホームズ松江大橋 設備

    フルフラットフロア

  • 周辺環境

    ローソン 松江母衣町店 約230m(徒歩3分)

  • 周辺環境

    みしまや中央店 約500m(徒歩7分)

  • 周辺環境

    エディオン 松江店 約580m(徒歩8分)

  • 周辺環境

    松江赤十字病院 約280m(徒歩4分)

  • 周辺環境

    松江市役所 約800m(徒歩10分)

  • 周辺環境

    島根県立図書館 約1,090m(徒歩14分)

  • 周辺環境

    山陰合同銀行本店 約400m(徒歩5分)

  • 周辺環境

    松江城 約860m(徒歩11分)

  • 周辺環境

    白潟公園 約440m(徒歩6分)

  • クレアホームズ松江大橋 アクセス図

  • クレアホームズ松江大橋 モデルルーム案内図

  • クレアホームズ松江大橋 外観

    外観完成予想図 ※完成予想CGは、計画段階の図面を基に描き起こしたもので、実際とは多少異なります。各種設備機器および周辺建物・電柱・架線・道路標識等は一部省略または簡略化しております。

  • クレアホームズ松江大橋 その他

    現地15階相当の高さより宍道湖を望む

  • クレアホームズ松江大橋 その他

    外観

  • クレアホームズ松江大橋 その他

    外観

  • クレアホームズ松江大橋 コンセプト

    松江市に位置する「クレアホームズ松江大橋」の魅力は、その絶好のリバー・フロント環境と、四季折々の自然美を楽しめる絶好の立地条件にあります。朝陽の光に照らされ浮かび上がる大山や、穏やかな川面から煌めき流れる水の音風景は、ここで暮らす住民の日々に新たな息吹をもたらすでしょう。これほどのロケーションでしか味わえない特別な日常が、生活そのものに彩りを加え、充実した時間をもたらします。 特筆すべきは、「ZEH-M Oriented」と「低炭素建築物」という2つの環境性能評価を受けた稀有な物件であるという点です。これにより、省エネルギー性が実現され、住む方に優れた環境配慮型の暮らしを提供します。この地域で新しい形の住まいを探している方々にとって、「クレアホームズ松江大橋」はその期待に応え得る存在です。この住宅が提供する、河川や緑に囲まれた自然との調和した生活は、居住空間に新たな価値を見出し、豊かな時間を約束するものとなります。

  • クレアホームズ松江大橋 コンセプト

    松江の中心市街地に位置する【クレアホームズ松江大橋】は、利便性と快適さを兼ね備えた魅力的なロケーションを提供します。松江市役所や島根県庁といった重要な公共機関にほど近く、ビジネスゾーンのJR「松江」駅エリアにも近接しています。この位置は、日常生活を豊かにするための様々な施設が徒歩圏内に集約されていることを意味します。特に、イオン松江ショッピングセンターへは車で約4分というアクセスの良さを誇り、スーパーマーケットや多様な専門店が揃うため、毎日の買い物にも非常に便利です。 交通面でも、JR「松江」駅が徒歩圏内であるため、空港へのスムーズなアクセスが可能です。観光にも便利な一畑電車北松江線の「松江しんじ湖温泉」駅へは徒歩14分、バスの「大橋北詰」停留所へは徒歩2分で行け、多方面への移動が容易です。また、車での移動でも、出雲大社まで車で約55分、玉造温泉まで約25分という距離感が、島根を代表するスポットへの訪問をより気軽にします。 松江の魅力を存分に堪能できる【クレアホームズ松江大橋】は、快適で便利な暮らしを実現します。

  • クレアホームズ松江大橋 コンセプト

    クレアホームズ松江大橋は、そのデザインにおいて地域の美しさを最大限に取り入れた住まいです。宍道湖や大橋川の豊かな自然を感じつつ、遠くに大山を望む景色の中に、洗練された建築が見事に溶け込んでいます。住まいとしての外観は、川辺を彩る美しいファサードが特徴で、自然との調和を意識した設計が施されています。 エントランスアプローチでは、訪れる人を優雅に迎え入れるよう、考え抜かれたデザインが施されており、エントランス自体はその象徴的な空間美が訪れる方を品格ある生活へと誘います。エントランスホールに足を踏み入れれば、その上品さと洗練された風格が、日常に特別なひとときをもたらします。計画段階からデザインにこだわり、周辺環境との調和を大切にしているため、デザインは緻密に仕上げられています。クレアホームズシリーズのブランドとして、多くの住まい手にとって魅力的なデザインを提供しています。

  • クレアホームズ松江大橋 共用部

    洗練の意匠が川辺を彩る。水辺の原風景を継ぎ、緑と街に調和するレジデンス。

  • クレアホームズ松江大橋 共用部

    私邸へと向かうひと時を優雅に物語るエントランス。

  • クレアホームズ松江大橋 共用部

    品格ある邸宅生活へと誘う迎賓空間。

  • クレアホームズ松江大橋 共用部

    上品さと品格を大切に表現した空間美。

  • クレアホームズ松江大橋 専有部

  • クレアホームズ松江大橋 専有部

  • クレアホームズ松江大橋 専有部

  • クレアホームズ松江大橋 専有部

  • クレアホームズ松江大橋 専有部

  • クレアホームズ松江大橋 専有部

  • クレアホームズ松江大橋 設備

    ヒートオフガラストップ

  • クレアホームズ松江大橋 設備

    グースネック オートセンサー水栓

  • クレアホームズ松江大橋 設備

    アシストスペース

  • クレアホームズ松江大橋 設備

    浴室換気暖房乾燥機

  • クレアホームズ松江大橋 設備

    ライン照明付き三面鏡+鏡裏収納

  • クレアホームズ松江大橋 設備

    小物棚付タオルハンガー

  • クレアホームズ松江大橋 設備

    ターントラップ方式

  • クレアホームズ松江大橋 設備

    大理石仕上げのホール床

  • クレアホームズ松江大橋 設備

    玄関オートライト照明

  • クレアホームズ松江大橋 設備

    全居室カーテンボックス

  • クレアホームズ松江大橋 設備

    スロップシンク

  • クレアホームズ松江大橋 設備

    エコジョーズ×給湯器24号

  • クレアホームズ松江大橋 設備

    ペット飼育可

  • クレアホームズ松江大橋 設備

    防犯カメラ

  • クレアホームズ松江大橋 設備

    防音サッシ(T-1等級)採用

  • クレアホームズ松江大橋 設備

    耐震玄関枠

  • クレアホームズ松江大橋 設備

    アウトポール設計

  • クレアホームズ松江大橋 設備

    フルフラットフロア

  • 周辺環境

    ローソン 松江母衣町店 約230m(徒歩3分)

  • 周辺環境

    みしまや中央店 約500m(徒歩7分)

  • 周辺環境

    エディオン 松江店 約580m(徒歩8分)

  • 周辺環境

    松江赤十字病院 約280m(徒歩4分)

  • 周辺環境

    松江市役所 約800m(徒歩10分)

  • 周辺環境

    島根県立図書館 約1,090m(徒歩14分)

  • 周辺環境

    山陰合同銀行本店 約400m(徒歩5分)

  • 周辺環境

    松江城 約860m(徒歩11分)

  • 周辺環境

    白潟公園 約440m(徒歩6分)

  • クレアホームズ松江大橋 アクセス図

  • クレアホームズ松江大橋 モデルルーム案内図

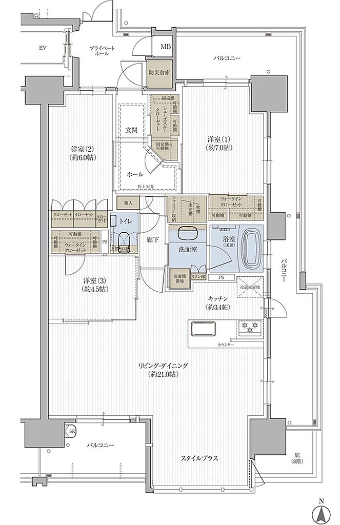
  • クレアホームズ松江大橋 間取り A

    A

    間取り
    2LDK
    専有面積
    94.01㎡
    バルコニー
    面積
    36.09㎡
    その他面積
    間取り:【2F】1LDK+S
    プライベートホール面積/5.77㎡
    ※専有面積に防災倉庫面積/0.94㎡含む
    所在階
    -
    向き
    -
    備考
    【EXECUTIVE Floor】
    ■3面開口の2面バルコニーの開放感あふれる南西角住戸。
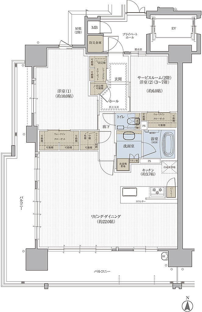
  • クレアホームズ松江大橋 間取り D

    D

    間取り
    2LDK
    専有面積
    94.20㎡
    バルコニー
    面積
    30.85㎡
    その他面積
    プライベートホール面積/5.42㎡
    ※専有面積に防災倉庫面積/0.94㎡含む
    所在階
    -
    向き
    -
    備考
    【EXECUTIVE Floor】
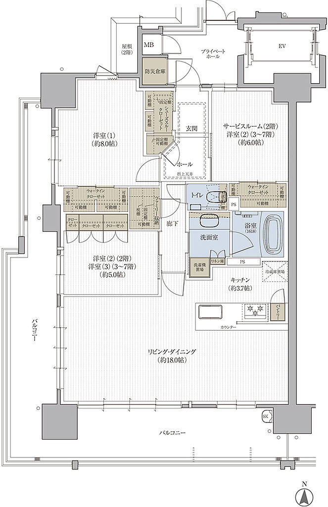
    ■専有面積94m2超。約25帖の広々としたリビング・ダイニング&スタイルプラスと3面バルコニーが魅力の上層階東南角2LDKプラン。
    【1】上層階・東南角住戸
    【2】約25帖のリビング・ダイニング&スタイルプラス
    【3】1618サイズ、窓付き浴室
    【4】迎賓の玄関
    【5】キッチン勝手口
    【6】豊富な収納スペース
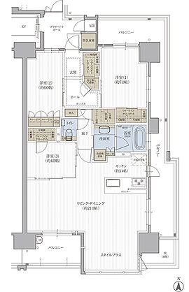
  • クレアホームズ松江大橋 間取り D【MENU PLAN1】

    D【MENU PLAN1】

    間取り
    3LDK
    専有面積
    94.20㎡
    バルコニー
    面積
    30.85㎡
    その他面積
    プライベートホール面積/5.42㎡
    ※専有面積に防災倉庫面積/0.94㎡含む
    所在階
    -
    向き
    -
    備考
    【EXECUTIVE Floor】
    ■広々としたリビング・ダイニング&スタイルプラスと3面バルコニーが魅力の東南角住戸。
  • クレアホームズ松江大橋 間取り A

    A

    間取り
    2LDK
    専有面積
    94.01㎡
    バルコニー
    面積
    36.09㎡
    その他面積
    間取り:【2F】1LDK+S
    プライベートホール面積/5.77㎡
    ※専有面積に防災倉庫面積/0.94㎡含む
    所在階
    -
    向き
    -
    備考
    【EXECUTIVE Floor】
    ■3面開口の2面バルコニーの開放感あふれる南西角住戸。
  • クレアホームズ松江大橋 間取り D

    D

    間取り
    2LDK
    専有面積
    94.20㎡
    バルコニー
    面積
    30.85㎡
    その他面積
    プライベートホール面積/5.42㎡
    ※専有面積に防災倉庫面積/0.94㎡含む
    所在階
    -
    向き
    -
    備考
    【EXECUTIVE Floor】
    ■専有面積94m2超。約25帖の広々としたリビング・ダイニング&スタイルプラスと3面バルコニーが魅力の上層階東南角2LDKプラン。
    【1】上層階・東南角住戸
    【2】約25帖のリビング・ダイニング&スタイルプラス
    【3】1618サイズ、窓付き浴室
    【4】迎賓の玄関
    【5】キッチン勝手口
    【6】豊富な収納スペース
  • クレアホームズ松江大橋 間取り D【MENU PLAN1】

    D【MENU PLAN1】

    間取り
    3LDK
    専有面積
    94.20㎡
    バルコニー
    面積
    30.85㎡
    その他面積
    プライベートホール面積/5.42㎡
    ※専有面積に防災倉庫面積/0.94㎡含む
    所在階
    -
    向き
    -
    備考
    【EXECUTIVE Floor】
    ■広々としたリビング・ダイニング&スタイルプラスと3面バルコニーが魅力の東南角住戸。

オンライン相談とは

モデルルームや現地に行くことなく、自宅からビデオ通話で不動産会社スタッフと物件の相談をすることができます。
  1. 不動産会社へ問合せ

    「オンライン相談」ボタンまたは「見学予約」ボタンを押してフォーム内の「オンライン相談」を選択し送信します。

  2. 不動産会社と日程・接続方法を調整

    不動産会社から連絡が来たらオンライン相談の日時を調整して、予約完了。

  3. 相談方法がメールで届く

    メールにてオンライン相談の利用方法が届きますので、ご確認ください。

  4. 指定場所にアクセス

    当日、予約時刻になったら指定のビデオ通話につなぎ、ご相談ください。

利用時の注意事項
  • ビデオ通話については各不動産会社指定のものとなります。
  • ビデオ通話利用時には通信が発生します。従量課金制通信サービスや通信料に上限があるネット回線・プランを利用する場合は、通信量に注意してください。
  • 通信速度やアプリの設定によってはビデオ通話の画質が低下することがあります。安定した画質で利用するためにも、Wi-Fi環境下での利用を推奨します。
  • ご利用のビデオ通話アプリによっては、対象のOSやブラウザに制限がある場合があります。詳しくはお問合せ先不動産会社にご確認ください。

閉じる

条件を削除すると新着お知らせメールの
配信が停止されますがよろしいですか?