このページは物件の広告情報ではありません。
過去にLIFULL HOME'Sへ掲載された不動産情報と提携先の地図情報を元に生成した参考情報です。また、一般から投稿された情報など主観的な情報も含みます。
情報更新日: 2026/04/10
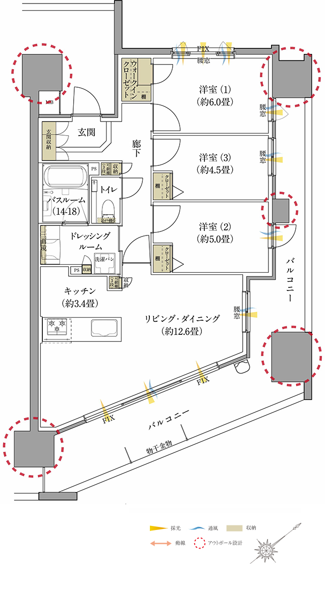
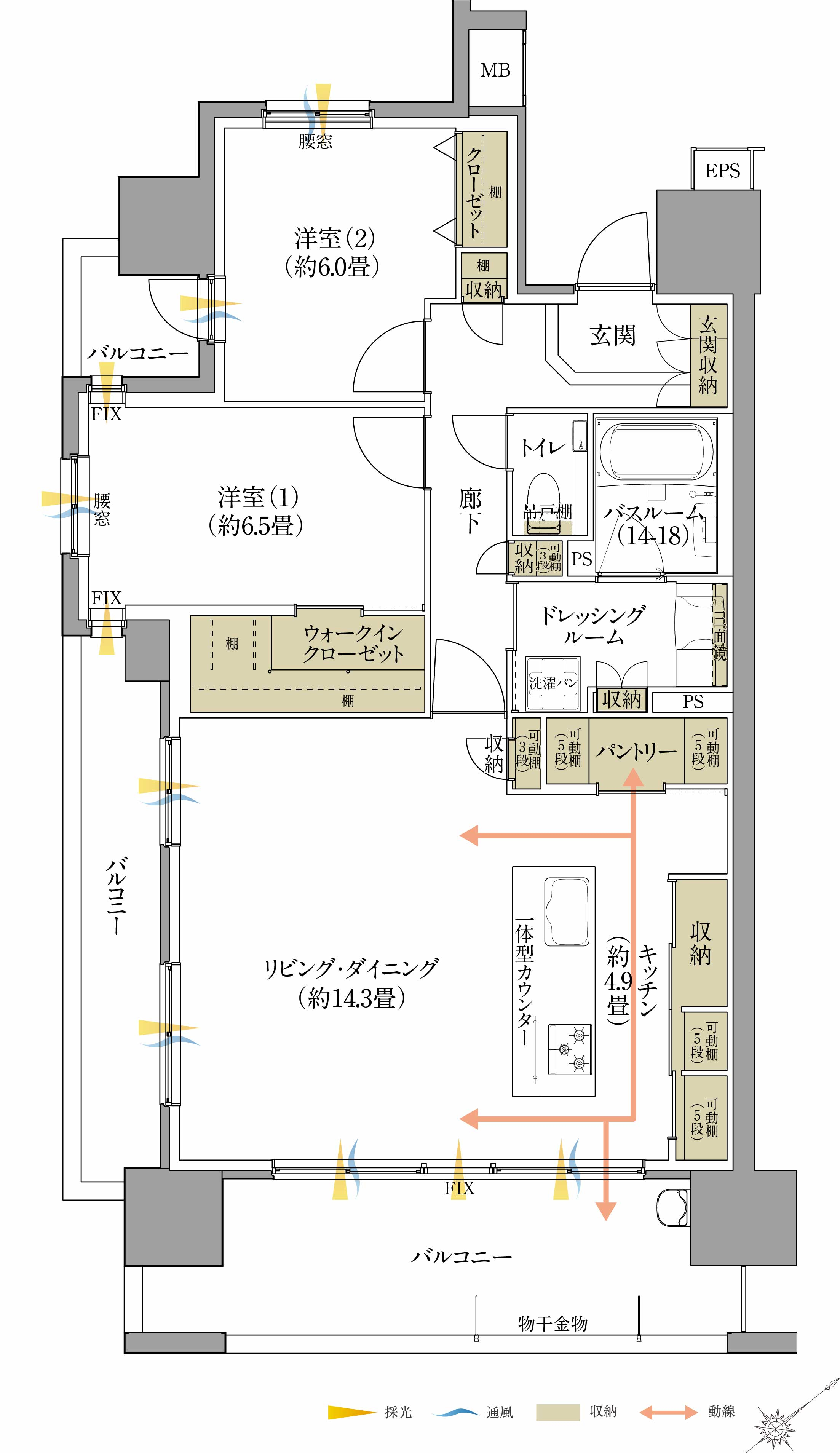
サーパス庚午中ザ・レジデンス
| 所在地 | 広島県広島市西区庚午中二丁目91番(地番) |
|---|---|
| 交通 |
|
| 価格 | 4,958万円~6,198万円 |
| 最多価格帯 | - |
| 管理費等 | 月額 10,195円~11,295円(インターネットサービス保守管理費などを含む) |
| 修繕積立金 | 月額 6,500円~7,700円 |
スポンサーリンク
サーパス庚午中ザ・レジデンスの建物情報
物件概要
| 物件種別 | マンション |
|---|---|
| 築年月(築年数) | 2026年1月 (築1年) |
| 建物構造 | 鉄筋コンクリート造、15階建て |
| 販売個数(区画数) | 5戸 |
| 総戸数/総区画数 | 44戸 |
| 敷地全体面積 | 1,846.41m2 |
| 延べ床面積 | 409.97m2 |
| 用途地域 | 第一種住居 |
| 地目 | 宅地 |
| 土地権利 | 所有権 |
| 建築確認番号 | 第ERI-23032607号(2024年1月19日) |
| 施工会社 | 株式会社穴吹工務店 |
| 売主 | 株式会社穴吹工務店 広島支店 |
| 販売会社 | 株式会社大京(販売提携・媒介) |
設備・条件
- 太陽光発電
- 追い焚き
- 浴室乾燥機
- IHコンロ
- コンロ三口以上
- システムキッチン
- 食器洗い乾燥機
- 高効率給湯器
- 浄水器・活水器
- ウォークインクローゼット
- ブロードバンド
- シングル&DINKS向け
- 複層ガラス採用(二重サッシ・防犯サッシ等)
- オートロック
- 防犯カメラ
- エレベーター
- ごみ出し24時間OK
- 駐車場完備
- 宅配ボックス
- 住宅性能評価書
- 南向き
- 環境にやさしい
- 子育てに優しい環境
- スーパー800m以内
- コンビニ400m以内
- 小学校800m以内
- 公園400m以内
- フィットネス施設(プール含む)800m以内
※最新の状態と異なる場合があります
売りたい不動産をお持ちの方へ
このエリアの所有不動産を査定する
売却査定手続きの流れ、費用相場や注意点など不動産売却について詳しく知りたい方はLIFULL HOME'S 不動産査定へ
サーパス庚午中ザ・レジデンスの周辺施設
-
買い物
日用品 -
- セブンイレブン 広島高須2丁目店
- ファミリーマート 高須駅前店
- セブンイレブン 広島高須駅前店
- ファミリーマート 古江西店
- 買い物
大型店 -
- ワークマン プラス広島庚午店
- ホームセンタージュンテンドー 庚午店
- エディオン 庚午中店
- グルメ
-
- とんかつ濱かつ広島庚午店
- リンガーハット 広島庚午店
- びっくりドンキー 庚午店
- しゃぶしゃぶ温野菜庚午店
- 役所
公共施設 -
- 広島高須郵便局
- 広島古江郵便局
- 広島庚午郵便局
- 広島庚午北郵便局
- 医療
-
- 光臨会荒木脳神経外科病院
- 医療法人社団加川整形外科病院
- 保育施設
-
- 古田保育園
- めぐみ幼稚園
- 古田幼稚園
- こうご北保育園
- 学校
-
- 私立広島学院中学校
- 私立広島学院高校
- 広島市立古田小学校
- 広島市立高須小学校
※学区外の学校が含まれる場合があります。実際の学区は必ず各自治体へご確認ください。
サーパス庚午中ザ・レジデンス周辺の物件情報
周辺の問合せ可能な物件
広島県広島市西区の問合せ可能な物件のうち、この物件の周辺にあるものから表示しています
賃貸
-
募集中
- 広島電鉄宮島線 高須駅 徒歩6分
- 7万円
- 広島電鉄宮島線 高須駅 徒歩6分
- 広島県広島市西区高須2丁目
- 57.78m² / 3LDK
-
募集中
- ファーレ高須
- 7万円
- 広島電鉄宮島線 高須駅 徒歩6分
- 広島県広島市西区高須2丁目
- 57.78m² / 3LDK
-
募集中
- ヴィラシオン古江東
- 12.5万円
- 広島電鉄宮島線 高須駅 徒歩6分
- 広島県広島市西区古江東町
- 95.25m² / 3LDK
-
募集中
- DーROOM高須2丁目 B棟
- 11.4万円
- 広島電鉄宮島線 高須駅 徒歩5分
- 広島県広島市西区高須2丁目
- 60.39m² / 2LDK
-
募集中
- 広島電鉄宮島線 高須駅 徒歩6分
- 11.4万円
- 広島電鉄宮島線 高須駅 徒歩6分
- 広島県広島市西区高須2丁目
- 60.39m² / 2LDK
-
募集中
- フィグ古江東町
- 12.8万円
- 広島電鉄宮島線 古江駅 徒歩10分
- 広島県広島市西区古江東町
- 62.05m² / 2LDK
-
募集中
- 広島電鉄宮島線 高須駅 徒歩5分
- 7.7万円
- 広島電鉄宮島線 高須駅 徒歩5分
- 広島県広島市西区高須2丁目
- 39.97m² / 1LDK
-
募集中
- D−room高須
- 7.7万円
- 広島電鉄宮島線 高須駅 徒歩5分
- 広島県広島市西区高須2丁目
- 39.97m² / 1LDK
-
募集中
- シャトー巌
- 5.8万円
- 広島電鉄宮島線 高須駅 徒歩6分
- 広島県広島市西区古江東町
- 63.06m² / 3DK
-
募集中
- 広島電鉄宮島線 高須駅 徒歩6分
- 5.8万円
- 広島電鉄宮島線 高須駅 徒歩6分
- 広島県広島市西区古江東町
- 63.06m² / 3DK
新築マンション
※完成後1年以上経過した未入居の物件が含まれている場合があります
-
売出し中
- 広島交通・広電バス・広島バス「三篠町三丁目」バス停 徒歩6分
- 4,298万円(1戸)~5,788万円(1戸)
- 広島交通・広電バス・広島バス「三篠町三丁目」バス停 徒歩6分
- 広島県広島市西区楠木町三丁目2番7(地番)
- 70.59m² / 3LDK(39戸)
-
売出し中
- 広島バス「庚午中一丁目」(己斐・紙屋町・八丁堀・広島駅方面行き)バス停 徒歩5分
- 3,498万円(1戸)~4,998万円(1戸)
- 広島バス「庚午中一丁目」(己斐・紙屋町・八丁堀・広島駅方面行き)バス停 徒歩5分
- 広島県広島市西区庚午北四丁目88番2、89番2(地番)
- 80.73m² / 3LDK(42戸)
-
売出し中
- 広島バス「庚午中一丁目」バス停(己斐・紙屋町・八丁堀・広島方面行き) 徒歩4分
- 4,370万円(1戸)~6,000万円(1戸)
- 広島バス「庚午中一丁目」バス停(己斐・紙屋町・八丁堀・広島方面行き) 徒歩4分
- 広島県広島市西区庚午中1丁目77-1
- 75.64m² / 2LDK、3LDK
-
売出し中
- 広電バス「中広二丁目」バス停(「横川」駅経由「広島」駅方面行き) 徒歩2分
- 未定(予定販売価格帯:4,900万円台~6,900万円台(税込)※100万円単位)
- 広電バス「中広二丁目」バス停(「横川」駅経由「広島」駅方面行き) 徒歩2分
- 広島県広島市西区中広町2丁目21-5
- 75.12m² / 2LDK+S、3LDK
-
売出し中
- JR山陽本線「西広島」駅 徒歩2分
- 5,660万円 ~ 6,650万円
- JR山陽本線「西広島」駅 徒歩2分
- 広島県広島市西区己斐本町一丁目14-2(地番)
- 68.2m² / 2LDK、3LDK
-
売出し中
- JR山陽本線「横川」駅 徒歩8分
- 8,140万円 ~ 8,980万円
- JR山陽本線「横川」駅 徒歩8分
- 広島県広島市西区横川町一丁目2-6(地番)
- 78.13m² / 3LDK
-
売出し中
- 広島交通「大宮」バス停 徒歩2分
- 未定
- 広島交通「大宮」バス停 徒歩2分
- 広島県広島市西区大芝1丁目5番4(地番)
- 71.45m² / 2LDK・2LDK+S・3LDK
-
売出し中
- JR山陽本線「横川」駅 徒歩3分
- 未定
- JR山陽本線「横川」駅 徒歩3分
- 広島県広島市西区横川新町1番8
- 75.54m² / 1LDK+S,2LDK+S
中古マンション
-
売出し中
- ダイアパレス高須
- 1899万円
- 広島電鉄宮島線 高須駅 徒歩3分
- 広島県広島市西区庚午北3丁目15-19
- 68.55m² / 2LDK
-
売出し中
- アージュ古江東
- 2349万円
- 広島電鉄宮島線 古江駅 古江下車 徒歩1分
- 広島県広島市西区古江東町18-28
- 63.2m² / 3LDK
-
売出し中
- クレアガーデン高須A棟
- 2790万円
- 広島電鉄宮島線 高須駅 徒歩10分
- 広島県広島市西区古江上1丁目175-2
- 72.04m² / 3LDK
-
売出し中
- 庚午中パーク・ホームズガーデンズコート
- 3480万円
- 広島電鉄宮島線 高須駅 徒歩6分
- 広島県広島市西区庚午中2丁目
- 70.24m² / 3LDK
-
売出し中
- 庚午中二丁目パーク・ホームズ
- 3100万円
- 広島電鉄宮島線 古江駅 徒歩6分
- 広島県広島市西区庚午中2丁目9-11
- 73.43m² / 3LDK
-
売出し中
- Jcity高須翠江館
- 1800万円
- 広島電鉄宮島線 高須駅 徒歩7分
- 広島県広島市西区高須3丁目3-40
- 71.71m² / 3LDK
-
売出し中
- パークハイム庚午中
- 2398万円
- 広島電鉄宮島線 古江駅 徒歩7分
- 広島県広島市西区庚午中2丁目10-5
- 84.58m² / 3LDK
-
売出し中
- 広島電鉄宮島線 東高須駅 徒歩3分
- 680万円
- 広島電鉄宮島線 東高須駅 徒歩3分
- 広島県広島市西区高須1丁目
- 72.95m² / 3SLDK
-
売出し中
- 古江パークホームズ
- 1500万円
- 広島電鉄宮島線 古江駅 徒歩11分
- 広島県広島市西区古江上1丁目382-10
- 68.85m² / 3LDK
-
売出し中
- 広島電鉄宮島線 古江駅 徒歩7分
- 1780万円
- 広島電鉄宮島線 古江駅 徒歩7分
- 広島県広島市西区庚午中1丁目
- 56.36m² / ワンルーム
一戸建て
-
売出し中
- 西区古江東町 No.2
- 4780万円
- 広島電鉄宮島線 古江駅 徒歩7分
- 広島県広島市西区古江東町3-16
- 106.82m² / 4LDK
-
売出し中
- 西区高須4丁目 No.1
- 4680万円
- 広島電鉄宮島線 高須駅 徒歩10分
- 広島県広島市西区高須4丁目1-12
- 108.47m² / 4SLDK
-
売出し中
- 西区高須4丁目 No.2
- 4580万円
- 広島電鉄宮島線 高須駅 徒歩10分
- 広島県広島市西区高須4丁目1-12
- 107.47m² / 4SLDK
-
売出し中
- 広島電鉄宮島線 古江駅 徒歩2分
- 4980万円
- 広島電鉄宮島線 古江駅 徒歩2分
- 広島県広島市西区古江西町
- 88.6m² / 5LDK
-
売出し中
- 広島電鉄宮島線 古江駅 徒歩7分
- 4480万円
- 広島電鉄宮島線 古江駅 徒歩7分
- 広島県広島市西区古江西町
- 90.67m² / 2SLDK
-
売出し中
- 西区古江西町 土地建物
- 600万円
- 広島電鉄宮島線 古江駅 徒歩8分
- 広島県広島市西区古江西町12-24-6
- 66.01m² / 4DK
-
売出し中
- ヴェルコート古江新町
- 4980万円
- 広島電鉄宮島線 古江駅 徒歩5分
- 広島県広島市西区古江新町8-24
- 101.84m² / 3SLDK
-
売出し中
- 西区古江新町
- 4980万円
- 広島電鉄宮島線 古江駅 徒歩3分
- 広島県広島市西区古江新町
- 101.84m² / 4LDK
-
売出し中
- 広島電鉄宮島線「古江」駅 徒歩5分
- 6,680万円
- 広島電鉄宮島線「古江」駅 徒歩5分
- 広島県広島市西区庚午中三丁目3番51
- 96.38m² / 3LDK(1号地)
-
売出し中
- 西区高須4丁目 土地建物
- 2780万円
- 広島電鉄宮島線 東高須駅 徒歩13分
- 広島県広島市西区高須4丁目17-5-2
- 98.95m² / 4SLDK
注文住宅
※表示価格は延べ床面積約132m²の場合の建物価格の参考値です
-
資料請求受付中
- 1840万円〜
- タナカホームズ
- 【全棟ZEH断熱性能】平屋も2階建ても1199万円(税込)~コスパのいいマイホーム タナカホームズ ブランドブック
-
資料請求受付中
- 2800万円〜
- 東亜ハウス株式会社
- UNIVERSAL GUIDE【ユニバーサルガイド】
-
資料請求受付中
- 2000万円〜
- 一条工務店
- 【一条工務店】 建築実例集3冊セット(HOME’S限定)
-
資料請求受付中
- 3000万円〜
- セキスイハイム
- 【セキスイハイム|平屋】ザ・デザイナーズハイムD1
-
資料請求受付中
- 3200万円〜
- 株式会社アイ工務店 中国支社・広島支店
- The Concept Book
-
資料請求受付中
- 1868万円〜
- タマホーム株式会社
- 大安心の家シリーズ
-
資料請求受付中
- 3200万円〜
- 大和ハウス
- 【大和ハウス】天井高2m72cmの高さというゆとり空間 xevoΣ<ジーヴォシグマ>
-
資料請求受付中
- -
- 積水ハウス
- BRAND BOOK
-
資料請求受付中
- -
- アキュラホーム(AQ Group)
- 「超空間の家」
-
資料請求受付中
- 3400万円〜
- へーベルハウス
- 【ヘーベルハウス】:ヘーベルハウス総合カタログ
エリア・駅で絞り込んで探す
広島県のレジデンスが含まれるマンション
周辺の建物情報
物件の種類から探す
広島市西区で募集中の物件のみを検索できます
掲載情報に誤りや問題がある場合
LIFULL HOME'Sは「不動産会社」ではなく「情報掲載サイト」です
- ※管理会社の情報はLIFULL HOME'Sでは保持していないためお答えできません。お問合せはお控えください
- ※最新の募集状況は掲載中の不動産会社があれば、不動産会社へ直接お問合せください
掲載情報の訂正依頼 専用ダイヤル
0120-987-243
- 専用ダイヤル受付時間:10:00〜18:00
- ※土日・祝日、臨時休業日は除く
不動産データのご利用について
不動産事業におけるDX、サービスの改善、新規事業開発等をご検討中の方へ不動産データの活用をご提案します。LIFULL HOME'Sで集約した不動産情報や外部データは、不動産事業DX、不正決済防止、ローン審査、事業開発、研究等さまざまな事業でご活用いただいています。詳しくは以下よりご確認ください。
不動産アーカイブご利用アンケートにご協力ください
不動産アーカイブの掲載情報は、LIFULL HOME'S掲載の不動産情報および提携先の不動産情報を統計情報として集積したものであり、その存在や信憑性を保証するものではありません。