このページは物件の広告情報ではありません。
過去にLIFULL HOME'Sへ掲載された不動産情報と提携先の地図情報を元に生成した参考情報です。また、一般から投稿された情報など主観的な情報も含みます。
情報更新日: 2026/02/14
アールブラン湘南辻堂
スポンサーリンク
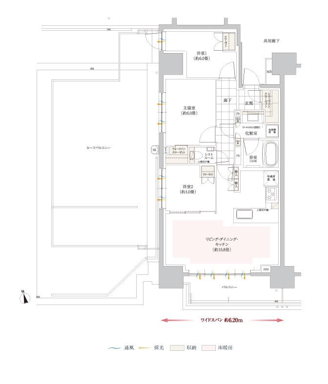
アールブラン湘南辻堂の建物情報
物件概要
| 物件種別 | マンション |
|---|---|
| 築年月(築年数) | 2025年7月 (築1年) |
| 建物構造 | 鉄筋コンクリート造 地上15階建 |
| 総戸数/総区画数 | 67戸 |
| 敷地全体面積 | 2,750.26m2(実測面積) |
| 用途地域 | 第一種住居 |
| 土地権利 | 所有権 |
| 建築確認番号 | 第R05普及協会00097号(令和5年8月9日付) |
| 施工会社 | 株式会社門倉組 |
| 売主 | 株式会社モリモト |
| 販売会社 | 株式会社モリモト(売主) |
設備・条件
- 追い焚き
- 浴室乾燥機
- システムキッチン
- 食器洗い乾燥機
- ディスポーザー
- 高効率給湯器
- 浄水器・活水器
- 床暖房
- ブロードバンド
- 内廊下
- 複層ガラス採用(二重サッシ・防犯サッシ等)
- オートロック
- 防犯カメラ
- セキュリティ充実
- エレベーター
- ごみ出し24時間OK
- ペット用施設
- 宅配ボックス
- デザイナーズ
- 住宅性能評価書
- 環境にやさしい
- スーパー800m以内
- コンビニ400m以内
- 総合病院800m以内
- フィットネス施設(プール含む)800m以内
※最新の状態と異なる場合があります
売りたい不動産をお持ちの方へ
このエリアの所有不動産を査定する
売却査定手続きの流れ、費用相場や注意点など不動産売却について詳しく知りたい方はLIFULL HOME'S 不動産査定へ
アールブラン湘南辻堂の周辺施設
-
買い物
日用品 -
- クリエイトエス・ディー藤沢羽鳥店
- オーケー辻堂羽鳥店
- ファミリーマート 藤沢羽鳥店
- ファミリーマート 辻堂神台店
- 買い物
大型店 -
- 西松屋 辻堂店
- ケーズデンキ 辻堂店
- ベビー・子供用品バースデイ 辻堂駅前店
- テラスモール湘南
- グルメ
-
- ガスト 辻堂店(から好し取扱店)
- ケンタッキーフライドチキン 羽鳥店
- すき家 1国藤沢辻堂店
- サイゼリヤ 藤沢羽鳥店
- 娯楽施設
-
- 神台まちかど公園
- 藤沢市立神台北公園
- 藤沢市立神台公園
- 快活CLUB Luz湘南辻堂店
- 役所
公共施設 -
- 藤沢辻堂新町郵便局
- 辻堂郵便局
- 茅ヶ崎市役所辻堂駅前出張所
- 医療
-
- 若林会湘南中央病院
- 医療法人徳洲会湘南藤沢徳洲会病院
- 保育施設
-
- 辻堂ももはな保育園
- 藤沢市立辻堂保育園
- アスク辻堂保育園
- キディ湘南C-X
- 学校
-
- 藤沢市立明治中学校
- 藤沢市立羽鳥小学校
アールブラン湘南辻堂周辺の物件情報
周辺の問合せ可能な物件
神奈川県藤沢市の問合せ可能な物件のうち、この物件の周辺にあるものから表示しています
賃貸
-
募集中
- TERRACE WELLNESS
- 11.9万円
- JR東海道本線 辻堂駅 徒歩11分
- 神奈川県藤沢市羽鳥1丁目2-45
- 43.0m² / 1LDK
-
募集中
- 羽鳥一丁目戸建
- 17万円
- JR東海道本線 辻堂駅 徒歩14分
- 神奈川県藤沢市羽鳥1丁目3-34
- 87.78m² / 3SLDK
-
募集中
- メイト壱番館
- 9.2万円
- JR東海道本線 辻堂駅 徒歩9分
- 神奈川県藤沢市羽鳥1丁目1-28
- 45.15m² / 2DK
-
募集中
- Krassy湘南羽鳥
- 10.2万円
- JR東海道本線 辻堂駅 徒歩14分
- 神奈川県藤沢市羽鳥1丁目6-5
- 40.16m² / 1LDK
-
募集中
- アーバンコート辻堂
- 5.5万円
- JR東海道本線 辻堂駅 徒歩10分
- 神奈川県藤沢市辻堂神台2丁目3-8
- 22.68m² / 1DK
-
募集中
- サンライフ羽鳥
- 3.5万円
- JR東海道本線 辻堂駅 徒歩12分
- 神奈川県藤沢市羽鳥1丁目
- 18.9m² / 1K
-
募集中
- JR東海道本線 辻堂駅 徒歩11分
- 4.9万円
- JR東海道本線 辻堂駅 徒歩11分
- 神奈川県藤沢市辻堂神台2丁目3-8
- 16.58m² / 1K
-
募集中
- GRADUS辻堂神台
- 10.6万円
- JR東海道本線 辻堂駅 徒歩12分
- 神奈川県藤沢市辻堂神台2丁目6-16
- 33.19m² / 1LDK
-
募集中
- JR東海道本線 辻堂駅 徒歩10分
- 26万円
- JR東海道本線 辻堂駅 徒歩10分
- 神奈川県藤沢市羽鳥1丁目1
- 75.28m² / 3LDK
-
募集中
- プレミスト湘南辻堂アクアフェイス
- 26万円
- JR東海道本線 辻堂駅 徒歩10分
- 神奈川県藤沢市羽鳥1丁目1
- 75.28m² / 3LDK
新築マンション
※完成後1年以上経過した未入居の物件が含まれている場合があります
-
売出し中
- JR東海道本線「藤沢」駅 徒歩5分
- 5,290万円
- JR東海道本線「藤沢」駅 徒歩5分
- 神奈川県藤沢市朝日町12番2
- 45.41m² / 1LDK+S
-
売出し中
- JR東海道本線「藤沢」駅 徒歩19分
- 未定
- JR東海道本線「藤沢」駅 徒歩19分
- 神奈川県藤沢市鵠沼神明2丁目1228番1外3筆(地番)
- 68.18m² / 2LDK+S(8戸)・3LDK(68戸)
-
売出し中
- 小田急江ノ島線「湘南台」駅 徒歩11分
- 4,990万円~6,320万円
- 小田急江ノ島線「湘南台」駅 徒歩11分
- 神奈川県藤沢市円行2丁目20番5外2筆(地番)
- 71.02m² / 3LDK・4LDK
-
売出し中
- THE TOWER 湘南辻堂
- 2億1000万円
- JR東海道本線 辻堂駅 徒歩2分
- 神奈川県藤沢市辻堂1丁目
- 92.01m² / 3LDK
-
売出し中
- 江ノ島電鉄「鵠沼」駅 徒歩6分
- 4,798万円~6,698万円
- 江ノ島電鉄「鵠沼」駅 徒歩6分
- 神奈川県藤沢市片瀬5丁目1840-1(地番)
- 70.4m² / 2LDK+S~3LDK
中古マンション
-
売出し中
- リベレンス湘南辻堂
- 3850万円
- JR東海道本線 辻堂駅 徒歩12分
- 神奈川県藤沢市辻堂神台2丁目5-1
- 74.19m² / 1SLDK
-
売出し中
- クリオ辻堂弐番館
- 4980万円
- JR東海道本線 辻堂駅 徒歩13分
- 神奈川県藤沢市羽鳥1丁目3-31
- 77.55m² / 3LDK
-
売出し中
- グランテム湘南辻堂
- 4450万円
- JR東海道本線 辻堂駅 徒歩11分
- 神奈川県藤沢市辻堂神台2丁目
- 66.87m² / 2LDK
-
売出し中
- プレミスト湘南辻堂フォレストフェイス
- 7480万円
- JR東海道本線 辻堂駅 徒歩11分
- 神奈川県藤沢市羽鳥1丁目
- 73.74m² / 3LDK
-
売出し中
- アイディーコート湘南辻堂
- 5180万円
- JR東海道本線 辻堂駅 徒歩13分
- 神奈川県藤沢市羽鳥2丁目
- 84.36m² / 3LDK
-
売出し中
- レクセルマンション辻堂
- 3680万円
- JR東海道本線 辻堂駅 徒歩5分
- 神奈川県藤沢市辻堂神台2丁目
- 57.66m² / 2LDK
-
売出し中
- パークハイツ湘南辻堂
- 3480万円
- JR東海道本線 辻堂駅 徒歩9分
- 神奈川県藤沢市辻堂新町1丁目
- 62.38m² / 3LDK
-
売出し中
- リストレジデンス辻堂タワー
- 6480万円
- JR東海道本線 辻堂駅 徒歩1分
- 神奈川県藤沢市辻堂1丁目
- 50.06m² / 1LDK
-
売出し中
- ステイツ湘南藤沢
- 4480万円
- JR東海道本線 辻堂駅 徒歩14分
- 神奈川県藤沢市辻堂新町3丁目
- 66.12m² / 3LDK
-
売出し中
- クリオ藤沢伍番館
- 2848万円
- JR東海道本線 辻堂駅 徒歩22分
- 神奈川県藤沢市城南3丁目
- 71.58m² / 3LDK
一戸建て
-
売出し中
- 藤沢市羽鳥2丁目 新築戸建2号棟 全2宅地
- 5380万円
- JR東海道本線 辻堂駅 徒歩16分
- 神奈川県藤沢市羽鳥2丁目
- 77.41m² / 3LDK
-
売出し中
- 藤沢市城南1丁目全2棟1号棟 新築戸建
- 4998万円
- JR東海道本線 辻堂駅 徒歩14分
- 神奈川県藤沢市城南1丁目
- 99.16m² / 4LDK
-
売出し中
- 藤沢市城南1丁目 新築戸建全2棟 1号棟
- 4998万円
- JR東海道本線 辻堂駅 徒歩14分
- 神奈川県藤沢市城南1丁目
- 99.16m² / 2SLDK
-
売出し中
- JR東海道本線 辻堂駅 徒歩18分
- 6399万円
- JR東海道本線 辻堂駅 徒歩18分
- 神奈川県藤沢市羽鳥2丁目
- 101.38m² / 4LDK
-
売出し中
- 藤沢市羽鳥1期 1号棟
- 6499万円
- JR東海道本線 辻堂駅 徒歩18分
- 神奈川県藤沢市羽鳥2丁目
- 101.38m² / 4LDK
-
売出し中
- JR東海道本線 辻堂駅 徒歩14分
- 5298万円
- JR東海道本線 辻堂駅 徒歩14分
- 神奈川県藤沢市城南1丁目
- 99.16m² / 2SLDK
-
売出し中
- 藤沢市城南5丁目 13号棟
- 5680万円
- JR東海道本線 辻堂駅 徒歩19分
- 神奈川県藤沢市城南5丁目
- 100.53m² / 2SLDK
-
売出し中
- 藤沢市城南5丁目 8号棟
- 5880万円
- JR東海道本線 辻堂駅 徒歩19分
- 神奈川県藤沢市城南5丁目
- 101.95m² / 3SLDK
-
売出し中
- 藤沢市城南5丁目 7号棟
- 5680万円
- JR東海道本線 辻堂駅 徒歩19分
- 神奈川県藤沢市城南5丁目
- 102.87m² / 2SLDK
-
売出し中
- 藤沢市城南5丁目 6号棟
- 5880万円
- JR東海道本線 辻堂駅 徒歩19分
- 神奈川県藤沢市城南5丁目
- 101.84m² / 3SLDK
注文住宅
※表示価格は延べ床面積約132m²の場合の建物価格の参考値です
-
資料請求受付中
- 2432万円〜
- ヤマト住建株式会社
- 【LEGANTIA】邸宅の頂点がここにある。受け継がれる価値、未来へ続く邸宅
-
資料請求受付中
- -
- へーベルハウス
- 【ヘーベルハウス】:ヘーベルハウス総合カタログ
-
資料請求受付中
- 1868万円〜
- タマホーム株式会社
- 大安心の家シリーズ
-
資料請求受付中
- 3000万円〜
- 株式会社スウェーデンハウス
- 【スウェーデンハウス】お客様満足度総合第1位の声「No.1 Sweden House News」
-
資料請求受付中
- 3200万円〜
- ダイワハウス
- 【ダイワハウス】 xevoΣ<ジーヴォシグマ> ~天井高2m72cmの高さというゆとり空間~
-
資料請求受付中
- -
- アキュラホーム(AQ Group)
- 「超空間の家」
-
資料請求受付中
- 3000万円〜
- セキスイハイム
- 【セキスイハイム|平屋】ザ・デザイナーズハイムD1
-
資料請求受付中
- 2000万円〜
- 一条工務店
- 【一条工務店】 建築実例集3冊セット(HOME’S限定)
エリア・駅で絞り込んで探す
周辺の建物情報
物件の種類から探す
藤沢市で募集中の物件のみを検索できます
掲載情報に誤りや問題がある場合
LIFULL HOME'Sは「不動産会社」ではなく「情報掲載サイト」です
- ※管理会社の情報はLIFULL HOME'Sでは保持していないためお答えできません。お問合せはお控えください
- ※最新の募集状況は掲載中の不動産会社があれば、不動産会社へ直接お問合せください
掲載情報の訂正依頼 専用ダイヤル
0120-987-243
- 専用ダイヤル受付時間:10:00〜18:00
- ※土日・祝日、臨時休業日は除く
不動産データのご利用について
不動産事業におけるDX、サービスの改善、新規事業開発等をご検討中の方へ不動産データの活用をご提案します。LIFULL HOME'Sで集約した不動産情報や外部データは、不動産事業DX、不正決済防止、ローン審査、事業開発、研究等さまざまな事業でご活用いただいています。詳しくは以下よりご確認ください。
不動産アーカイブご利用アンケートにご協力ください
不動産アーカイブの掲載情報は、LIFULL HOME'S掲載の不動産情報および提携先の不動産情報を統計情報として集積したものであり、その存在や信憑性を保証するものではありません。