このページは物件の広告情報ではありません。
過去にLIFULL HOME'Sへ掲載された不動産情報と提携先の地図情報を元に生成した参考情報です。また、一般から投稿された情報など主観的な情報も含みます。
情報更新日: 2026/03/31
クリオ鵠沼海岸
スポンサーリンク
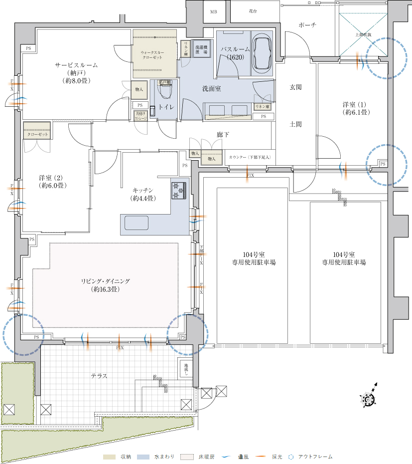
クリオ鵠沼海岸の建物情報
物件概要
| 物件種別 | マンション |
|---|---|
| 築年月(築年数) | 2020年2月 (築7年) |
| 建物構造 | 鉄筋コンクリート造、地上6階建 |
| 総戸数/総区画数 | 27戸 |
| 敷地全体面積 | 1,337.81m2(登記簿)、1,363.41m2(実測・建築確認対象敷地面積) |
| 管理人 | 日勤 |
| 用途地域 | 第一種低層住宅専用、近隣商業 |
| 土地権利 | 所有権 |
| 建築確認番号 | BCJ18本建確115(平成30年8月29日付) |
| 施工会社 | 奈良建設株式会社 |
| 売主 | ■明和地所株式会社<国土交通大臣(8)第4118号>〒150-8555 東京都渋谷区神泉町9-6 明和地所渋谷神泉ビル(一社)不動産協会会員(公社)首都圏不動産公正取引協議会加盟■三信住建株式会社<東京都知事(3)第85626号>〒104-0061 東京都中央区銀座6-2-1 Daiwa銀座ビル9階(一社)全国住宅産業協会(公社)首都圏不動産公正取引協議会加盟 |
| 販売会社 | (販売代理)明和地所株式会社<国土交通大臣(8)第4118号>〒150-8555 東京都渋谷区神泉町9-6 明和地所渋谷神泉ビル(一社)不動産協会会員(公社)首都圏不動産公正取引協議会加盟 |
設備・条件
- 追い焚き
- 浴室乾燥機
- IHコンロ
- コンロ三口以上
- システムキッチン
- 食器洗い乾燥機
- 高効率給湯器
- 浄水器・活水器
- 床暖房
- ウォークインクローゼット
- ブロードバンド
- バリアフリー
- オートロック
- 防犯カメラ
- エレベーター
- ごみ出し24時間OK
- ペット用施設
- 宅配ボックス
- 南向き
- 即入居可
- 環境にやさしい
- スーパー800m以内
- コンビニ400m以内
- 公園400m以内
※最新の状態と異なる場合があります
売りたい不動産をお持ちの方へ
このエリアの所有不動産を査定する
売却査定手続きの流れ、費用相場や注意点など不動産売却について詳しく知りたい方はLIFULL HOME'S 不動産査定へ
クリオ鵠沼海岸の周辺施設
-
買い物
日用品 -
- そうてつローゼン 鵠沼店
- セブンイレブン 鵠沼海岸店
- クリエイトエス・ディー小田急鵠沼海岸駅前店
- ファミリーマート 鵠沼海岸店
- 買い物
大型店 -
- ムラサキスポーツ 湘南鵠沼店
- グルメ
-
- 焼肉屋さかい 鵠沼海岸店
- マクドナルド 江の島店
- モスバーガー 江ノ島店
- 娯楽施設
-
- 八部公園
- 藤沢八部球場
- 鵠沼海浜公園
- 八部公園プール
- 公園
-
- 県立湘南海岸公園
- 役所
公共施設 -
- 鵠沼海岸郵便局
- 鵠沼桜が岡郵便局
- 保育施設
-
- 聖マルコ幼稚園
- 藤沢市立浜見保育園
- 湘南学園幼稚園
- 藤沢市立鵠沼保育園
- 学校
-
- 藤沢市立鵠南小学校
- 私立湘南学園小学校
- 藤沢市立鵠洋小学校
- 私立湘南学園高校
※学区外の学校が含まれる場合があります。実際の学区は必ず各自治体へご確認ください。
クリオ鵠沼海岸周辺の物件情報
周辺の問合せ可能な物件
神奈川県藤沢市の問合せ可能な物件のうち、この物件の周辺にあるものから表示しています
賃貸
-
募集中
- ハイシティ鵠沼
- 10万円
- 小田急江ノ島線 鵠沼海岸駅 徒歩3分
- 神奈川県藤沢市鵠沼海岸3丁目2-13
- 51.53m² / 2LDK
-
募集中
- グレース海岸
- 6.3万円
- 小田急江ノ島線 鵠沼海岸駅 徒歩3分
- 神奈川県藤沢市鵠沼海岸3丁目
- 23.19m² / 1K
-
募集中
- 小田急江ノ島線 鵠沼海岸駅 徒歩4分
- 6.3万円
- 小田急江ノ島線 鵠沼海岸駅 徒歩4分
- 神奈川県藤沢市鵠沼海岸3丁目2-9
- 23.19m² / 1K
-
募集中
- 小山ビル
- 7.5万円
- 小田急江ノ島線 鵠沼海岸駅 徒歩4分
- 神奈川県藤沢市鵠沼海岸3丁目2-18
- 41.45m² / 2DK
-
募集中
- 鵠沼原田ビル
- 4.5万円
- 小田急江ノ島線 鵠沼海岸駅 徒歩2分
- 神奈川県藤沢市鵠沼海岸3丁目5-5
- 19.37m² / 1K
-
募集中
- ダイヤモンドテラス鵠沼海岸A
- 6.8万円
- 小田急江ノ島線 鵠沼海岸駅 徒歩2分
- 神奈川県藤沢市鵠沼松が岡4丁目
- 20.05m² / 1K
-
募集中
- ダイヤモンドテラス鵠沼海岸B
- 6万円
- 小田急江ノ島線 鵠沼海岸駅 徒歩2分
- 神奈川県藤沢市鵠沼松が岡4丁目
- 21.33m² / 1K
-
募集中
- 小田急江ノ島線 鵠沼海岸駅 徒歩2分
- 6.5万円
- 小田急江ノ島線 鵠沼海岸駅 徒歩2分
- 神奈川県藤沢市鵠沼松が岡4丁目19-1
- 20.13m² / 1K
-
募集中
- シャーメゾン鵠沼海岸
- 6.8万円
- 小田急江ノ島線 鵠沼海岸駅 徒歩4分
- 神奈川県藤沢市鵠沼海岸3丁目3-9
- 26.25m² / 1K
-
募集中
- 平和堂ビル
- 22.04万円
- 小田急江ノ島線 鵠沼海岸駅 徒歩1分
- 神奈川県藤沢市鵠沼海岸3丁目1-11
- 80.96m² / 3LDK
新築マンション
※完成後1年以上経過した未入居の物件が含まれている場合があります
-
売出し中
- JR東海道本線「藤沢」駅 徒歩19分
- 未定
- JR東海道本線「藤沢」駅 徒歩19分
- 神奈川県藤沢市鵠沼神明2丁目1228番1外3筆(地番)
- 68.18m² / 2LDK+S(8戸)・3LDK(68戸)
-
売出し中
- 江ノ島電鉄「鵠沼」駅 徒歩6分
- 4,798万円~8,988万円
- 江ノ島電鉄「鵠沼」駅 徒歩6分
- 神奈川県藤沢市片瀬5丁目1840-1(地番)
- 75.24m² / 2LDK+S~3LDK
-
売出し中
- 小田急江ノ島線「湘南台」駅 徒歩11分
- 4,400万円台~6,400万円台
- 小田急江ノ島線「湘南台」駅 徒歩11分
- 神奈川県藤沢市円行2丁目20番5外2筆(地番)
- 71.02m² / 3LDK
中古マンション
-
売出し中
- -湘南に住まう-ペット暮らす 閑 静 な住環境の低層マンション
- 4280万円
- 小田急江ノ島線 鵠沼海岸駅 徒歩7分
- 神奈川県藤沢市鵠沼海岸5丁目1-22
- 75.14m² / 3LDK
-
売出し中
- グランノエル鵠沼海岸
- 4980万円
- 小田急江ノ島線 鵠沼海岸駅 徒歩3分
- 神奈川県藤沢市鵠沼海岸2丁目
- 65.41m² / 3LDK
-
売出し中
- 鵠沼パークハウス
- 4799万円
- 小田急江ノ島線 鵠沼海岸駅 徒歩12分
- 神奈川県藤沢市鵠沼海岸5丁目8-23
- 76.49m² / 3LDK
-
売出し中
- 小田急江ノ島線 鵠沼海岸駅 徒歩12分
- 4799万円
- 小田急江ノ島線 鵠沼海岸駅 徒歩12分
- 神奈川県藤沢市鵠沼海岸5丁目
- 76.49m² / 3LDK
-
売出し中
- グランドメゾン鵠沼海岸
- 6599万円
- 小田急江ノ島線 鵠沼海岸駅 徒歩5分
- 神奈川県藤沢市鵠沼海岸2丁目16-2
- 87.36m² / 3LDK
-
売出し中
- 東急ドエル・シーサイドコート鵠沼海岸
- 6980万円
- 小田急江ノ島線 鵠沼海岸駅 徒歩6分
- 神奈川県藤沢市鵠沼海岸2丁目16-5
- 74.17m² / 3LDK
-
売出し中
- レーベン鵠沼海岸BLUENOVA
- 1億1700万円
- 小田急江ノ島線 鵠沼海岸駅 徒歩12分
- 神奈川県藤沢市鵠沼海岸5丁目
- 81.01m² / 2LDK
-
売出し中
- クリオ鵠沼海岸グランロワ
- 7990万円
- 小田急江ノ島線 鵠沼海岸駅 徒歩8分
- 神奈川県藤沢市鵠沼海岸1丁目
- 70.15m² / 1LDK
一戸建て
-
売出し中
- 鵠沼松が岡四丁目 中古戸建て
- 1億5800万円
- 小田急江ノ島線 鵠沼海岸駅 徒歩4分
- 神奈川県藤沢市鵠沼松が岡4丁目
- 139.31m² / 3LDK
-
売出し中
- 小田急江ノ島線「鵠沼海岸」駅 徒歩7分~7分
- 8,280万円
- 小田急江ノ島線「鵠沼海岸」駅 徒歩7分~7分
- 神奈川県藤沢市鵠沼海岸三丁目5558番56
- 97.72m² / 4LDK(5号地)
-
売出し中
- 新築一戸建 藤沢市鵠沼海岸3丁目
- 8280万円
- 小田急江ノ島線 鵠沼海岸駅 徒歩7分
- 神奈川県藤沢市鵠沼海岸3丁目
- 104.12m² / 2SLDK
-
売出し中
- 藤沢市鵠沼松が岡5丁目 中古戸建
- 1億4500万円
- 小田急江ノ島線 鵠沼海岸駅 徒歩7分
- 神奈川県藤沢市鵠沼松が岡5丁目
- 127.3m² / 5SLDK
-
売出し中
- 藤沢市鵠沼海岸7丁目 新築戸建
- 6680万円
- 小田急江ノ島線 鵠沼海岸駅 徒歩8分
- 神奈川県藤沢市鵠沼海岸7丁目
- 107.22m² / 1SLDK
-
売出し中
- 新築戸建 藤沢市鵠沼海岸7丁目
- 6880万円
- 小田急江ノ島線 鵠沼海岸駅 徒歩8分
- 神奈川県藤沢市鵠沼海岸7丁目
- 107.22m² / 1SLDK
-
売出し中
- (三井ホーム施工)藤沢市鵠沼海岸三丁目
- 6400万円
- 小田急江ノ島線 鵠沼海岸駅 徒歩8分
- 神奈川県藤沢市鵠沼海岸3丁目14-2
- 154.84m² / 7DK
-
売出し中
- 藤沢市鵠沼松が岡 5丁目 新築一戸建て
- 5790万円
- 小田急江ノ島線 鵠沼海岸駅 徒歩8分
- 神奈川県藤沢市鵠沼松が岡5丁目
- 98.12m² / 4LDK
-
売出し中
- 小田急江ノ島線 鵠沼海岸駅 徒歩10分
- 6498万円
- 小田急江ノ島線 鵠沼海岸駅 徒歩10分
- 神奈川県藤沢市鵠沼海岸7丁目
- 89.63m² / 3LDK
-
売出し中
- 小田急江ノ島線 鵠沼海岸駅 徒歩10分
- 7598万円
- 小田急江ノ島線 鵠沼海岸駅 徒歩10分
- 神奈川県藤沢市鵠沼海岸7丁目
- 95.64m² / 4LDK
注文住宅
※表示価格は延べ床面積約132m²の場合の建物価格の参考値です
-
資料請求受付中
- 2000万円〜
- 一条工務店
- 【一条工務店】 建築実例集3冊セット(HOME’S限定)
-
資料請求受付中
- 2800万円〜
- ミサワホーム株式会社
- 【MISAWA】ミサワホーム代表カタログ3冊セット(HOME'S限定)
-
資料請求受付中
- 3000万円〜
- 株式会社スウェーデンハウス
- 【スウェーデンハウス】お客様満足度総合第1位の声「No.1 Sweden House News」
-
資料請求受付中
- 3400万円〜
- 株式会社アイ工務店 横浜支店
- N-ees
-
資料請求受付中
- 3000万円〜
- トヨタホーム
- FIRST CLASS LIVING
-
資料請求受付中
- 1868万円〜
- タマホーム株式会社
- 大安心の家シリーズ
-
資料請求受付中
- 2000万円〜
- ウィザースホーム
- 建築実例集
-
資料請求受付中
- 3200万円〜
- 三井ホーム株式会社
- 三井ホームのご紹介
-
資料請求受付中
- -
- 積水ハウス
- BRAND BOOK
-
資料請求受付中
- -
- アキュラホーム(AQ Group)
- 「超空間の家」
エリア・駅で絞り込んで探す
神奈川県のクリオが含まれるマンション
周辺の建物情報
物件の種類から探す
藤沢市で募集中の物件のみを検索できます
掲載情報に誤りや問題がある場合
LIFULL HOME'Sは「不動産会社」ではなく「情報掲載サイト」です
- ※管理会社の情報はLIFULL HOME'Sでは保持していないためお答えできません。お問合せはお控えください
- ※最新の募集状況は掲載中の不動産会社があれば、不動産会社へ直接お問合せください
掲載情報の訂正依頼 専用ダイヤル
0120-987-243
- 専用ダイヤル受付時間:10:00〜18:00
- ※土日・祝日、臨時休業日は除く
不動産データのご利用について
不動産事業におけるDX、サービスの改善、新規事業開発等をご検討中の方へ不動産データの活用をご提案します。LIFULL HOME'Sで集約した不動産情報や外部データは、不動産事業DX、不正決済防止、ローン審査、事業開発、研究等さまざまな事業でご活用いただいています。詳しくは以下よりご確認ください。
不動産アーカイブご利用アンケートにご協力ください
不動産アーカイブの掲載情報は、LIFULL HOME'S掲載の不動産情報および提携先の不動産情報を統計情報として集積したものであり、その存在や信憑性を保証するものではありません。