このページは物件の広告情報ではありません。
過去にLIFULL HOME'Sへ掲載された不動産情報と提携先の地図情報を元に生成した参考情報です。また、一般から投稿された情報など主観的な情報も含みます。
情報更新日: 2025/11/27
サーパス三条スクエアガーデン
| 所在地 | 香川県高松市三条町字下所229番1、229番3、228番4(地番) |
|---|
スポンサーリンク
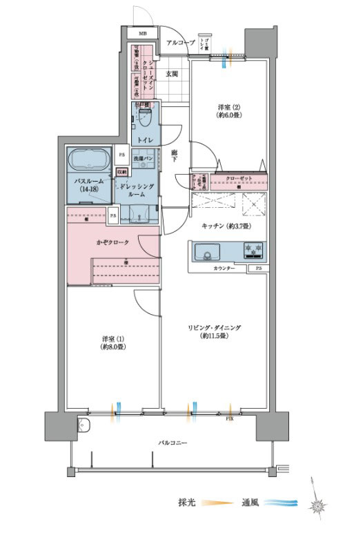
サーパス三条スクエアガーデンの建物情報
物件概要
| 物件種別 | マンション |
|---|---|
| 築年月(築年数) | 2018年12月 (築7年) |
| 建物構造 | 鉄筋コンクリート造地上9階建て |
| 総戸数/総区画数 | 62戸 |
| 敷地全体面積 | 3,818.13m2 |
| 延べ床面積 | 851.47m2 |
| 用途地域 | 第一種中高層住居専用 |
| 地目 | 宅地、公衆用道路 |
| 土地権利 | 所有権 |
| 建築確認番号 | - |
| 売主 | 株式会社穴吹工務店 四国支店 |
| 販売会社 | 株式会社穴吹工務店 四国支店 |
設備・条件
- 追い焚き
- システムキッチン
- 4LDK以上
- オートロック
※最新の状態と異なる場合があります
売りたい不動産をお持ちの方へ
このエリアの所有不動産を査定する
売却査定手続きの流れ、費用相場や注意点など不動産売却について詳しく知りたい方はLIFULL HOME'S 不動産査定へ
サーパス三条スクエアガーデン周辺の物件情報
周辺の問合せ可能な物件
香川県高松市の問合せ可能な物件のうち、この物件の周辺にあるものから表示しています
賃貸
-
募集中
- ソニックビル
- 4.3万円
- 高松琴平電気鉄道琴平線 伏石駅 徒歩4分
- 香川県高松市三条町
- 54.0m² / 3DK
-
募集中
- アルテミスガーデン
- 10.7万円
- 高松琴平電気鉄道琴平線 三条駅 徒歩8分
- 香川県高松市三条町356-2
- 70.29m² / 3LDK
-
募集中
- スピリア三条
- 5.2万円
- 高松琴平電気鉄道琴平線 三条駅 徒歩10分
- 香川県高松市三条町302-3
- 35.61m² / 1DK
-
募集中
- オプスBANZO
- 5.8万円
- 高松琴平電気鉄道琴平線 伏石駅 徒歩3分
- 香川県高松市三条町145-1
- 62.02m² / 2LDK
-
募集中
- ロゼ三条
- 5.4万円
- 高松琴平電気鉄道琴平線 伏石駅 徒歩11分
- 香川県高松市三条町309
- 51.03m² / 2LDK
-
募集中
- 高松琴平電気鉄道琴平線 伏石駅 徒歩8分
- 4万円
- 高松琴平電気鉄道琴平線 伏石駅 徒歩8分
- 香川県高松市三条町
- 44.3m² / 3DK
-
募集中
- 高松琴平電気鉄道琴平線 三条駅 徒歩8分
- 4.4万円
- 高松琴平電気鉄道琴平線 三条駅 徒歩8分
- 香川県高松市三条町
- 23.18m² / 1K
-
募集中
- グランフォーレ三条
- 4.5万円
- 高松琴平電気鉄道琴平線 三条駅 徒歩9分
- 香川県高松市三条町
- 44.55m² / 1LDK
-
募集中
- ルミエール三条
- 2.8万円
- 高松琴平電気鉄道琴平線 伏石駅 徒歩6分
- 香川県高松市三条町
- 22.8m² / ワンルーム
-
募集中
- ラ・ブランシェ・三条
- 5万円
- 高松琴平電気鉄道琴平線 伏石駅 徒歩10分
- 香川県高松市三条町
- 45.97m² / 1LDK
新築マンション
※完成後1年以上経過した未入居の物件が含まれている場合があります
-
売出し中
- 高松琴平電気鉄道琴平線「伏石」駅 徒歩7分 南口
- 3,060万円(1戸)~3,200万円(1戸)
- 高松琴平電気鉄道琴平線「伏石」駅 徒歩7分 南口
- 香川県高松市三条町字悪所21番4、22番1、23番1、24番1、25番1(合筆予定)
- 68.86m² / 2LDK、3LDK
-
売出し中
- JR予讃線「高松」駅 徒歩7分 (約540m)
- 3,430万円~5,560万円
- JR予讃線「高松」駅 徒歩7分 (約540m)
- 香川県高松市錦町1丁目261-1
- 93.01m² / 2LDK+WIC+FC+SIC~3LDK+3WIC+FC+P+SIC
-
売出し中
- JR高徳線「栗林」駅 徒歩8分
- 2,890万円~4,220万円
- JR高徳線「栗林」駅 徒歩8分
- 香川県高松市藤塚町1丁目13-19(地番)
- 80.13m² / 2LDK・3LDK
-
売出し中
- 高松琴平電気鉄道琴平線「伏石」駅 徒歩11分
- 3,588万円~4,258万円
- 高松琴平電気鉄道琴平線「伏石」駅 徒歩11分
- 香川県高松市伏石町2089-4(地番)
- 79.13m² / 3LDK
-
売出し中
- JR予讃線「高松」駅 徒歩9分
- 未定
- JR予讃線「高松」駅 徒歩9分
- 香川県高松市錦町一丁目253-1(地番)
- 148.81m² / 1LDK~4LDK
-
売出し中
- 高松琴平電気鉄道琴平線「瓦町」駅 徒歩9分
- 3,640万円~4,960万円
- 高松琴平電気鉄道琴平線「瓦町」駅 徒歩9分
- 香川県高松市藤塚町二丁目10-1(地番)
- 82.57m² / 2LDK・3LDK
-
売出し中
- JR予讃線「高松」駅 徒歩11分
- 2,780万円(2戸)~4,140万円(1戸)
- JR予讃線「高松」駅 徒歩11分
- 香川県高松市浜ノ町313-23
- 81.28m² / 2LDK、3LDK
中古マンション
一戸建て
香川県のサーパスが含まれるマンション
周辺の建物情報
物件の種類から探す
高松市で募集中の物件のみを検索できます
掲載情報に誤りや問題がある場合
LIFULL HOME'Sは「不動産会社」ではなく「情報掲載サイト」です
- ※管理会社の情報はLIFULL HOME'Sでは保持していないためお答えできません。お問合せはお控えください
- ※最新の募集状況は掲載中の不動産会社があれば、不動産会社へ直接お問合せください
掲載情報の訂正依頼 専用ダイヤル
0120-987-243
- 専用ダイヤル受付時間:10:00〜18:00
- ※土日・祝日、臨時休業日は除く
不動産データのご利用について
不動産事業におけるDX、サービスの改善、新規事業開発等をご検討中の方へ不動産データの活用をご提案します。LIFULL HOME'Sで集約した不動産情報や外部データは、不動産事業DX、不正決済防止、ローン審査、事業開発、研究等さまざまな事業でご活用いただいています。詳しくは以下よりご確認ください。
不動産アーカイブご利用アンケートにご協力ください
不動産アーカイブの掲載情報は、LIFULL HOME'S掲載の不動産情報および提携先の不動産情報を統計情報として集積したものであり、その存在や信憑性を保証するものではありません。