このページは物件の広告情報ではありません。
過去にLIFULL HOME'Sへ掲載された不動産情報と提携先の地図情報を元に生成した参考情報です。また、一般から投稿された情報など主観的な情報も含みます。
情報更新日: 2026/03/27
ルーシア今出川 油小路
スポンサーリンク
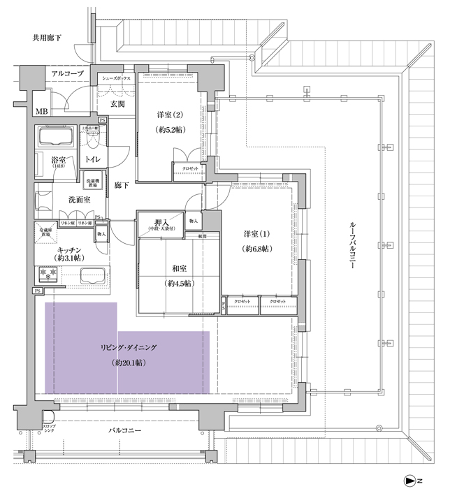
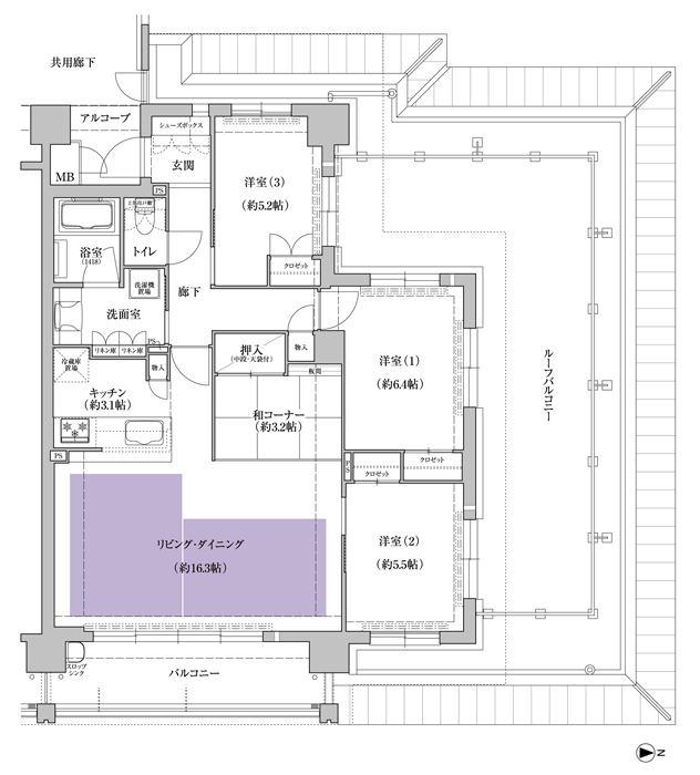
ルーシア今出川 油小路の建物情報
物件概要
| 物件種別 | マンション |
|---|---|
| 築年月(築年数) | 2015年6月 (築11年) |
| 建物構造 | 鉄筋コンクリート造 地上5階建て |
| 総戸数/総区画数 | 26戸 |
| 敷地全体面積 | 973.38m2(道路後退面積22.72m2含む) |
| 用途地域 | 準工業 |
| 地目 | 宅地 |
| 土地権利 | 所有権 |
| 建築確認番号 | 第H26確認建築京機構市00200号(平成26年6月24日) |
| 施工会社 | 株式会社中川工務店 |
| 売主 | 株式会社ゼロ・コーポレーション |
| 販売会社 | 株式会社ゼロ・コーポレーション(売主) |
設備・条件
- 追い焚き
- 浴室乾燥機
- コンロ三口以上
- システムキッチン
- 食器洗い乾燥機
- 高効率給湯器
- 浄水器・活水器
- 床暖房
- ウォークインクローゼット
- ブロードバンド
- シングル&DINKS向け
- 4LDK以上
- バリアフリー
- 複層ガラス採用(二重サッシ・防犯サッシ等)
- オートロック
- 防犯カメラ
- セキュリティ充実
- エレベーター
- ごみ出し24時間OK
- 宅配ボックス
- 住宅性能評価書
- 環境にやさしい
- スーパー800m以内
- コンビニ400m以内
- 総合病院800m以内
- 公園400m以内
- フィットネス施設(プール含む)800m以内
※最新の状態と異なる場合があります
売りたい不動産をお持ちの方へ
ルーシア今出川 油小路の周辺施設
-
買い物
日用品 -
- ダックス上京堀川今出川店
- フレスコ 堀川今出川店
- 生鮮館なかむら 堀川店
- ダイソー堀川今出川店
- 買い物
大型店 -
- ユニクロ 西陣店
- グルメ
-
- サイゼリヤ 今出川駅前店
- やよい軒 烏丸今出川店
- CoCo壱番屋 烏丸今出川店
- 天下一品今出川店
- 娯楽施設
-
- 京都ちりんちりん
- 文化施設
-
- 茶道資料館
- 京都市考古資料館
- 京菓子資料館
- 樂美術館
- 役所
公共施設 -
- 京都寺ノ内郵便局
- 京都市上京区役所
- 京都室町上立売郵便局
- 京都小山中溝郵便局
- 医療
-
- 社会医療法人西陣健康会堀川病院
- 室町病院
- 医療法人愛寿会同仁病院
- 保育施設
-
- 寺之内幼稚園
- 京都市立みつば幼稚園
- こぐま白雲北保育園
- 京都市上京保育所
- 学校
-
- 私立同志社大学新町キャンパス
- 京都市立西陣中央小学校
- 京都市立室町小学校
- 私立京都美山高校
※学区外の学校が含まれる場合があります。実際の学区は必ず各自治体へご確認ください。
ルーシア今出川 油小路周辺の物件情報
周辺の問合せ可能な物件
京都府京都市上京区の問合せ可能な物件のうち、この物件の周辺にあるものから表示しています
賃貸
-
募集中
- あおきハイツ
- 4万円
- 京都市営烏丸線 今出川駅 徒歩10分
- 京都府京都市上京区堀之上町
- 21.0m² / 1K
-
募集中
- 京都市営烏丸線 今出川駅 徒歩10分
- 4万円
- 京都市営烏丸線 今出川駅 徒歩10分
- 京都府京都市上京区堀之上町
- 21.0m² / 1K
-
募集中
- リーガル京都西陣
- 4.6万円
- 京都市営烏丸線 今出川駅 徒歩11分
- 京都府京都市上京区立売通堀川西入芝薬師町
- 21.04m² / 1K
-
募集中
- 京都市営烏丸線 今出川駅 徒歩11分
- 4.6万円
- 京都市営烏丸線 今出川駅 徒歩11分
- 京都府京都市上京区上立売通堀川西入芝薬師町
- 21.04m² / 1K
-
募集中
- リーガル京都西陣
- 4.6万円
- 京都市営烏丸線 今出川駅 徒歩11分
- 京都府京都市上京区上立売通堀川西入芝薬師町
- 21.04m² / 1K
-
募集中
- 京都市営烏丸線 今出川駅 徒歩11分
- 4.6万円
- 京都市営烏丸線 今出川駅 徒歩11分
- 京都府京都市上京区立売通堀川西入芝薬師町
- 21.04m² / 1K
-
募集中
- B&ホワイトM
- 4.1万円
- 京都市営烏丸線 今出川駅 徒歩12分
- 京都府京都市上京区堀川通上立売下ル芝薬師町
- 18.42m² / 1K
-
募集中
- 京都市営烏丸線 今出川駅 徒歩12分
- 4.1万円
- 京都市営烏丸線 今出川駅 徒歩12分
- 京都府京都市上京区堀川通上立売下ル芝薬師町
- 18.42m² / 1K
-
募集中
- クラウンハイム京都西陣
- 12.158万円
- 京都市営烏丸線 今出川駅 徒歩10分
- 京都府京都市上京区堀川通上立売半丁下ル山名町
- 64.37m² / 3LDK
-
募集中
- 京都市営烏丸線 今出川駅 徒歩10分
- 12.158万円
- 京都市営烏丸線 今出川駅 徒歩10分
- 京都府京都市上京区堀川通上立売半丁下る山名町
- 64.37m² / 3LDK
新築マンション
※完成後1年以上経過した未入居の物件が含まれている場合があります
-
売出し中
- 京都市営地下鉄東西線「二条」駅まで徒歩13分 京都市営地下鉄東西線「二条城前」駅まで徒歩14分 JR嵯峨野線「二条」駅まで徒歩15分 京都市営地下鉄烏丸線「丸太町」駅まで徒歩16分
- 未定
- 京都市営地下鉄東西線「二条」駅まで徒歩13分 京都市営地下鉄東西線「二条城前」駅まで徒歩14分 JR嵯峨野線「二条」駅まで徒歩15分 京都市営地下鉄烏丸線「丸太町」駅まで徒歩16分
- 京都府京都市上京区竹屋町通千本東入主税町1120番(一部)(地番)
- 84.96m² / 1LD・K~3LD・K
-
売出し中
- 京都市営地下鉄東西線「二条」駅まで徒歩13分 京都市営地下鉄東西線「二条城前」駅まで徒歩14分 JR嵯峨野線「二条」駅まで徒歩15分 京都市営地下鉄烏丸線「丸太町」駅まで徒歩16分
- 未定
- 京都市営地下鉄東西線「二条」駅まで徒歩13分 京都市営地下鉄東西線「二条城前」駅まで徒歩14分 JR嵯峨野線「二条」駅まで徒歩15分 京都市営地下鉄烏丸線「丸太町」駅まで徒歩16分
- 京都府京都市上京区千本通二条下る東入主税町936番(一部)他(地番)
- 134.91m² / 1LD・K~3LD・K
-
売出し中
- 京都地下鉄東西線「二条」駅 徒歩11分
- 4980万円~7450万円
- 京都地下鉄東西線「二条」駅 徒歩11分
- 京都府京都市上京区下立売通千本東入下る中務町486番13(地番)
- 70.12m² / 2LDK+WIC~2LDK+S+WIC+SIC
-
売出し中
- 京都市営烏丸線「丸太町」駅 徒歩13分
- 4,990万円・6,890万円
- 京都市営烏丸線「丸太町」駅 徒歩13分
- 京都府京都市上京区東堀川通出水下る四町目192番1(地番)
- 70.06m² / 3LDK
-
売出し中
- 京都地下鉄東西線「二条」駅 徒歩11分
- 未定
- 京都地下鉄東西線「二条」駅 徒歩11分
- 京都府京都市上京区主税町953番2(地番)
- - / 3LDK
-
売出し中
- アクアプレイス京都千本丸太町
- 4320万円
- 京都地下鉄東西線 二条駅 徒歩15分
- 京都府京都市上京区長門町
- 45.35m² / 1LDK
-
売出し中
- 京都市営烏丸線「丸太町」駅 徒歩11分
- 20,800万円
- 京都市営烏丸線「丸太町」駅 徒歩11分
- 京都府京都市上京区堀川通丸太町上る上堀川町117番 他
- 129.96m² / 3LDK(1戸)
中古マンション
-
売出し中
- クラウンハイム京都西陣
- 6490万円
- 京都市営烏丸線 今出川駅 徒歩12分
- 京都府京都市上京区山名町
- 86.23m² / 3LDK
-
売出し中
- ライオンズ京都小川御所
- 7498万円
- 京都市営烏丸線 今出川駅 徒歩10分
- 京都府京都市上京区小川通寺之内下る射場町
- 76.37m² / 3LDK
-
売出し中
- 京都市営烏丸線 今出川駅 徒歩10分
- 7798万円
- 京都市営烏丸線 今出川駅 徒歩10分
- 京都府京都市上京区小川通寺之内下る射場町
- 76.37m² / 3LDK
-
売出し中
- ライオンズ京都小川御所
- 7498万円
- 京都市営烏丸線 今出川駅 徒歩10分
- 京都府京都市上京区射場町
- 76.37m² / 3LDK
-
売出し中
- アクシルコート堀川今出川
- 4700万円
- 京都市営烏丸線 今出川駅 徒歩10分
- 京都府京都市上京区西船橋町
- 81.94m² / ワンルーム
-
売出し中
- ライオンズマンション京都西陣
- 3480万円
- 京都市営烏丸線 今出川駅 徒歩10分
- 京都府京都市上京区今出川通大宮東入2丁目西船橋町336
- 60.38m² / 2LDK
-
売出し中
- コスモ堀川寺之内
- 3549万円
- 京都市営烏丸線 今出川駅 徒歩16分
- 京都府京都市上京区寺之内竪町
- 65.17m² / 3LDK
-
売出し中
- ローレルコート今出川
- 6990万円
- 京都市営烏丸線 今出川駅 徒歩8分
- 京都府京都市上京区寺之内通新町東入古木町
- 92.57m² / 3LDK
-
売出し中
- ジオ京都御所西
- 8980万円
- 京都市営烏丸線 今出川駅 徒歩5分
- 京都府京都市上京区今出川通新町西入弁財天町
- 80.09m² / 3LDK
-
売出し中
- サンヴェール京都西陣
- 4190万円
- 京都市営烏丸線 今出川駅 徒歩13分
- 京都府京都市上京区大宮通今出川下る薬師町
- 70.21m² / 3LDK
一戸建て
-
売出し中
- 京都市上京区観世町 中古戸建
- 4099万円
- 京都市営烏丸線 今出川駅 徒歩14分
- 京都府京都市上京区観世町
- 89.91m² / 2SLDK
-
売出し中
- 上京区観世町 中古戸建
- 4099万円
- 京都市営烏丸線 今出川駅 徒歩14分
- 京都府京都市上京区観世町
- 89.91m² / 3LDK
-
売出し中
- 道正町 路地奥のひらや
- 980万円
- 京都市営烏丸線 鞍馬口駅 徒歩9分
- 京都府京都市上京区道正町
- 28.76m² / 1DK
-
売出し中
- 京福電気鉄道北野線「北野白梅町」駅 徒歩6分
- 3,599万円
- 京福電気鉄道北野線「北野白梅町」駅 徒歩6分
- 京都府京都市上京区今小路通御前通西入上る観音寺門前町821-73
- 79.8m² / 2SLDK
-
売出し中
- 上、観世町中古戸建
- 4099万円
- 京都市営烏丸線 今出川駅 徒歩16分
- 京都府京都市上京区大宮通五辻下る観世町
- 89.91m² / 3LDK
-
売出し中
- 京都市営烏丸線「鞍馬口」駅 徒歩13分
- 4,499万円
- 京都市営烏丸線「鞍馬口」駅 徒歩13分
- 京都府京都市上京区上天神町
- 107.46m² / 2SLDK
-
売出し中
- 室町通寺之内
- 2200万円
- 京都市営烏丸線 鞍馬口駅 徒歩5分
- 京都府京都市上京区下柳原南半町
- 56.0m² / 1SLDK
-
売出し中
- 上京区東町 中古戸建
- 3980万円
- 京福電気鉄道北野線 北野白梅町駅 徒歩11分
- 京都府京都市上京区一条通七本松西入東町
- 94.09m² / 3LDK
-
売出し中
- 京都市上京区西千本町 新築一戸建て 2号地
- 4580万円
- 京都市営烏丸線 今出川駅 徒歩20分
- 京都府京都市上京区西千本町
- 103.88m² / 3LDK
-
売出し中
- 京都市上京区西千本町 新築一戸建て 3号地
- 4380万円
- 京都市営烏丸線 今出川駅 徒歩20分
- 京都府京都市上京区西千本町
- 112.66m² / 4LDK
注文住宅
※表示価格は延べ床面積約132m²の場合の建物価格の参考値です
-
資料請求受付中
- 3000万円〜
- セキスイハイム
- 【セキスイハイム】総合カタログ(heimism)
-
資料請求受付中
- 3400万円〜
- へーベルハウス
- 【ヘーベルハウス】:ヘーベルハウス総合カタログ
-
資料請求受付中
- -
- 積水ハウス
- BRAND BOOK
-
資料請求受付中
- 3200万円〜
- 大和ハウス
- 【大和ハウス】 xevoΣ<ジーヴォシグマ> ~天井高2m72cmの高さというゆとり空間~
-
資料請求受付中
- 2432万円〜
- ヤマト住建株式会社
- 【LEGANTIA】邸宅の頂点がここにある。受け継がれる価値、未来へ続く邸宅
-
資料請求受付中
- 2000万円〜
- 一条工務店
- 【一条工務店】 建築実例集3冊セット(HOME’S限定)
エリア・駅で絞り込んで探す
京都府のルーシアが含まれるマンション
物件の種類から探す
京都市上京区で募集中の物件のみを検索できます
掲載情報に誤りや問題がある場合
LIFULL HOME'Sは「不動産会社」ではなく「情報掲載サイト」です
- ※管理会社の情報はLIFULL HOME'Sでは保持していないためお答えできません。お問合せはお控えください
- ※最新の募集状況は掲載中の不動産会社があれば、不動産会社へ直接お問合せください
掲載情報の訂正依頼 専用ダイヤル
0120-987-243
- 専用ダイヤル受付時間:10:00〜18:00
- ※土日・祝日、臨時休業日は除く
不動産データのご利用について
不動産事業におけるDX、サービスの改善、新規事業開発等をご検討中の方へ不動産データの活用をご提案します。LIFULL HOME'Sで集約した不動産情報や外部データは、不動産事業DX、不正決済防止、ローン審査、事業開発、研究等さまざまな事業でご活用いただいています。詳しくは以下よりご確認ください。
不動産アーカイブご利用アンケートにご協力ください
不動産アーカイブの掲載情報は、LIFULL HOME'S掲載の不動産情報および提携先の不動産情報を統計情報として集積したものであり、その存在や信憑性を保証するものではありません。