このページは物件の広告情報ではありません。
過去にLIFULL HOME'Sへ掲載された不動産情報と提携先の地図情報を元に生成した参考情報です。また、一般から投稿された情報など主観的な情報も含みます。
情報更新日: 2026/04/10
シティテラス杉並方南町
スポンサーリンク
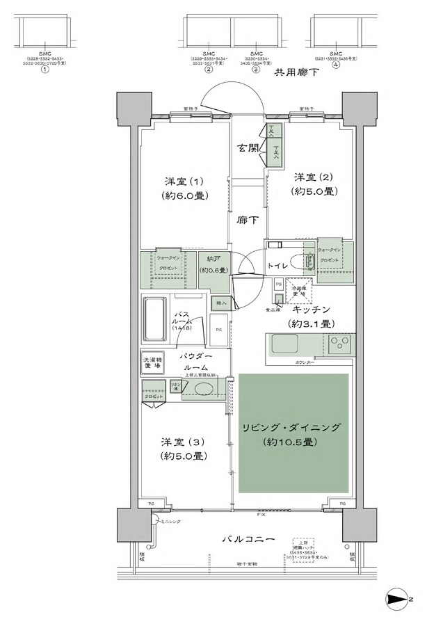
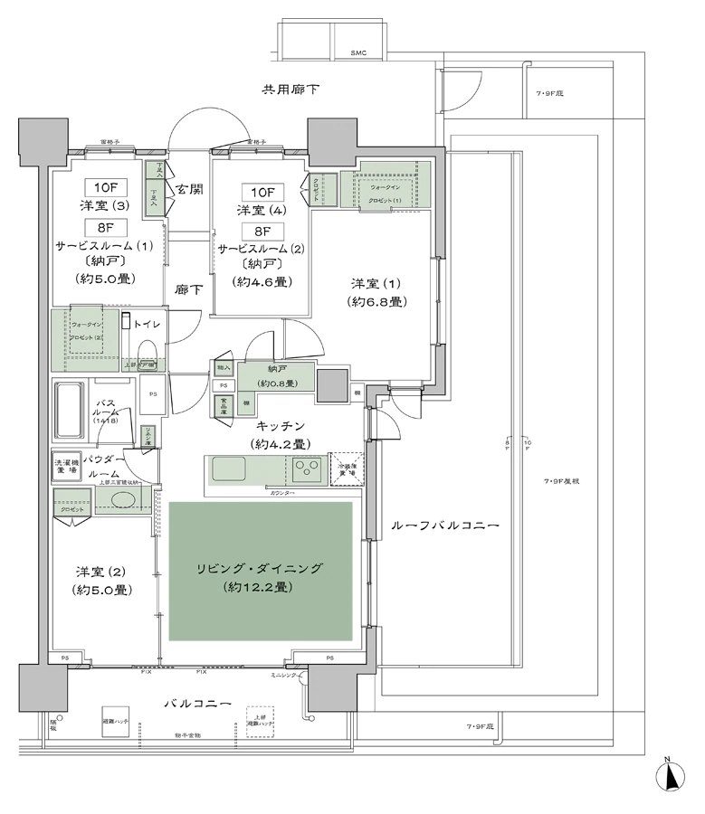
シティテラス杉並方南町の建物一覧
シティテラス杉並方南町の建物情報
物件概要
| 物件種別 | マンション |
|---|---|
| 築年月(築年数) | 2017年10月 (築9年) |
| 建物構造 | ノース:鉄筋コンクリート造 地上6 階建、 サウス:鉄筋コンクリート造一部鉄骨造・地下1階地上11階建 |
| 総戸数/総区画数 | 298戸 |
| 敷地全体面積 | 9,180.50(建築確認面積)〔ノース:1,786.8、サウス:7,393.69〕 ※販売対象面積は、私道負担部分1,292.43を含む10,472.93となります。※杉並区に道路として上地予定の10.56が販売対象面積に加わる場合があります。 |
| 用途地域 | 第一種中高層住居専用、近隣商業 |
| 地目 | 宅地、公衆用道路 |
| 土地権利 | 所有権 |
| 建築確認番号 | 一団地認定通知書番号/ 27都市建指建代0140号(平成27年7月22日付)、建築確認番号/ ノース:JCIA確認15第00238号(平成27年8月31日付)・JCIA確認15第00238(02)号(平成27年12月14日付)・JCIA確認15第00238(03)号(平成28年6月20日付)、サウス:JCIA確認15第00168号(平成27年8月17日付)・JCIA確認15第00168(02)号(平成27年12月14日付)・JCIA確認15第00168(03)号(平成28年6月20日付) |
| 売主 | 住友不動産株式会社 |
| 販売会社 | 売主/住友不動産株式会社 |
設備・条件
- 追い焚き
- 浴室乾燥機
- コンロ三口以上
- システムキッチン
- 食器洗い乾燥機
- 浄水器・活水器
- ブロードバンド
- 4LDK以上
- バリアフリー
- オートロック
- 防犯カメラ
- セキュリティ充実
- エレベーター
- 宅配ボックス
- 住宅性能評価書
- 子育てに優しい環境
- スーパー800m以内
- コンビニ400m以内
- 小学校800m以内
- 公園400m以内
※最新の状態と異なる場合があります
売りたい不動産をお持ちの方へ
このエリアの所有不動産を査定する
売却査定手続きの流れ、費用相場や注意点など不動産売却について詳しく知りたい方はLIFULL HOME'S 不動産査定へ
シティテラス杉並方南町の周辺施設
-
買い物
日用品 -
- セブンイレブン 杉並方南町駅前店
- セブンイレブン 方南店
- ココカラファイン方南町店
- ローソン ・スリーエフ杉並方南町店
- 買い物
大型店 -
- 島忠ホームズ 中野本店
- グルメ
-
- 松屋 方南町駅前店
- ドトールコーヒーショップ方南町店
- 松のや方南町店
- マクドナルド 方南町店
- 娯楽施設
-
- FASTGYM24方南町店
- 南中野ゴルフセンター
- 中野区立広町みらい公園
- 役所
公共施設 -
- 杉並方南二郵便局
- 杉並区立方南図書館
- 中野南台郵便局
- 中野区立南台図書館
- 医療
-
- 社会医療法人河北医療財団河北リハビリテーション病院
- 救世軍ブース記念病院
- 立正佼成会附属佼成病院
- 保育施設
-
- ポピンズナーサリースクール方南町
- 中野みなみ保育園
- かえで保育園杉並いずみ
- アートチャイルドケア中野南台森の保育園
- 学校
-
- 中野区立南中野中学校
- 杉並区立泉南中学校
- 杉並区立方南小学校
- 私立佼成学園中学校
※学区外の学校が含まれる場合があります。実際の学区は必ず各自治体へご確認ください。
シティテラス杉並方南町周辺の物件情報
周辺の問合せ可能な物件
東京都杉並区の問合せ可能な物件のうち、この物件の周辺にあるものから表示しています
賃貸
-
募集中
- 東京メトロ丸ノ内線 方南町駅 徒歩2分
- 16.9万円
- 東京メトロ丸ノ内線 方南町駅 徒歩2分
- 東京都杉並区方南2丁目12-24
- 44.27m² / 2LDK
-
募集中
- タスキsmart方南町
- 16.9万円
- 東京メトロ丸ノ内線 方南町駅 徒歩2分
- 東京都杉並区方南2丁目12-24
- 44.27m² / 2LDK
-
募集中
- サウスステージ
- 15万円
- 東京メトロ丸ノ内線 方南町駅 徒歩3分
- 東京都杉並区方南2丁目
- 41.23m² / 1LDK
-
募集中
- メゾン方南
- 13万円
- 東京メトロ丸ノ内線 方南町駅 徒歩3分
- 東京都杉並区方南2丁目
- 45.0m² / 2DK
-
募集中
- 東京メトロ丸ノ内線 方南町駅 徒歩2分
- 16万円
- 東京メトロ丸ノ内線 方南町駅 徒歩2分
- 東京都杉並区方南2丁目
- 51.3m² / 2DK
-
募集中
- 東京メトロ丸ノ内線 方南町駅 徒歩1分
- 6万円
- 東京メトロ丸ノ内線 方南町駅 徒歩1分
- 東京都杉並区方南2丁目
- 15.44m² / 1K
-
募集中
- SEIWAビル
- 6万円
- 東京メトロ丸ノ内線 方南町駅 徒歩1分
- 東京都杉並区方南2丁目
- 15.44m² / 1K
-
募集中
- スプリングブリーズ
- 17.5万円
- 東京メトロ丸ノ内線 方南町駅 徒歩2分
- 東京都杉並区方南2丁目12-3
- 51.3m² / 2DK
-
募集中
- 東京メトロ丸ノ内線 方南町駅 徒歩3分
- 15万円
- 東京メトロ丸ノ内線 方南町駅 徒歩3分
- 東京都杉並区方南2丁目
- 41.23m² / 1LDK
-
募集中
- 佐武ビル
- 6.8万円
- 東京メトロ丸ノ内線 方南町駅 徒歩1分
- 東京都杉並区方南2丁目12-16
- 24.7m² / 1DK
新築マンション
※完成後1年以上経過した未入居の物件が含まれている場合があります
-
売出し中
- 京王井の頭線「浜田山」駅 徒歩7分
- 8,000万円~29,000万円(1,000万円台)
- 京王井の頭線「浜田山」駅 徒歩7分
- 東京都杉並区浜田山三丁目966番2(地番)
- 107.76m² / 2LDK~3LDK
-
売出し中
- JR中央線「荻窪」駅 徒歩7分
- 14,190万円・14,490万円
- JR中央線「荻窪」駅 徒歩7分
- 東京都杉並区荻窪四丁目12番2(地番)
- 71.4m² / 3LDK
-
売出し中
- JR中央線「荻窪」駅 徒歩12分
- 9,990万円~17,990万円
- JR中央線「荻窪」駅 徒歩12分
- 東京都杉並区荻窪二丁目535番1他(地番)、東京都杉並区荻窪二丁目5番1号(住居表示)
- 84.61m² / 2LDK~4LDK
-
売出し中
- 京王井の頭線「三鷹台」駅 徒歩11分
- 6,170万円~10,300万円
- 京王井の頭線「三鷹台」駅 徒歩11分
- 東京都杉並区松庵一丁目16番22号
- 60.04m² / 1LDK~3LDK
-
売出し中
- 京王井の頭線「高井戸」駅 徒歩3分 (約180m) (計画地東側を通る場合のルートです)
- 9,498万円~13,598万円
- 京王井の頭線「高井戸」駅 徒歩3分 (約180m) (計画地東側を通る場合のルートです)
- 東京都杉並区高井戸西二丁目1125番2(地番)
- 74.86m² / 2LDK~3LDK
-
売出し中
- リムテラスガーデン阿佐谷北
- 8990万円
- JR中央線 阿佐ケ谷駅 徒歩8分
- 東京都杉並区阿佐谷北2丁目21-12
- 85.87m² / 2SLDK
-
売出し中
- 東京メトロ丸ノ内線「東高円寺」駅 徒歩3分
- 一般販売住戸:9,000万円台~17,000万円台 ※1,000万円単位(予定・本販売期以降に対応)
- 東京メトロ丸ノ内線「東高円寺」駅 徒歩3分
- 東京都杉並区高円寺南1丁目454番7外
- 80.74m² / 一般販売住戸:1LDK~3LDK
-
売出し中
- 京王井の頭線「久我山」駅 徒歩8分 (北口)
- 未定
- 京王井の頭線「久我山」駅 徒歩8分 (北口)
- 東京都杉並区宮前5丁目203番1 他1筆(地番)
- 106.31m² / 2LDK~4LDK
-
売出し中
- JR中央線「西荻窪」駅 徒歩13分
- 6,900万円台~27,900万円台(予定)※100万円単位・全販売予定住戸に対応
- JR中央線「西荻窪」駅 徒歩13分
- 東京都杉並区桃井四丁目161-1他(地番)
- 126.25m² / 2LDK~4LDK
-
売出し中
- リムテラスパーク西永福
- 8990万円
- 京王井の頭線 西永福駅 徒歩3分
- 東京都杉並区永福3丁目
- 86.57m² / 3LDK
中古マンション
-
売出し中
- 方南町コーポビアネーズ
- 5680万円
- 東京メトロ丸ノ内線 方南町駅 徒歩3分
- 東京都杉並区方南2丁目
- 81.25m² / 3LDK
-
売出し中
- モナークマンション第2方南B
- 4280万円
- 東京メトロ丸ノ内線 方南町駅 徒歩2分
- 東京都杉並区方南2丁目4-24
- 41.16m² / 2LDK
-
売出し中
- 方南町セントラルマンション
- 1800万円
- 東京メトロ丸ノ内線 方南町駅 徒歩3分
- 東京都杉並区方南2丁目16-1
- 32.2m² / 2DK
-
売出し中
- 方南ファミリーコーポ
- 4799万円
- 東京メトロ丸ノ内線 方南町駅 徒歩1分
- 東京都杉並区方南2丁目
- 54.97m² / 2LDK
-
売出し中
- 東京メトロ丸ノ内線 方南町駅 徒歩1分
- 4999万円
- 東京メトロ丸ノ内線 方南町駅 徒歩1分
- 東京都杉並区方南2丁目
- 54.97m² / 2LDK
-
売出し中
- 方南町サーラ442
- 2799万円
- 東京メトロ丸ノ内線 方南町駅 徒歩3分
- 東京都杉並区和泉4丁目
- 38.5m² / 1LDK
-
売出し中
- ライオンズプラザ方南町
- 6299万円
- 東京メトロ丸ノ内線 方南町駅 徒歩2分
- 東京都杉並区堀ノ内1丁目3-13
- 50.05m² / 2LDK
-
売出し中
- ステージファースト方南町アジールコート
- 2280万円
- 東京メトロ丸ノ内線 方南町駅 徒歩1分
- 東京都杉並区堀ノ内1丁目4-1
- 26.05m² / ワンルーム
-
売出し中
- 東京メトロ丸ノ内線 方南町駅 徒歩9分
- 8780万円
- 東京メトロ丸ノ内線 方南町駅 徒歩9分
- 東京都杉並区方南1丁目
- 91.49m² / 3LDK
-
売出し中
- モナーク杉並
- 5490万円
- 東京メトロ丸ノ内線 方南町駅 徒歩4分
- 東京都杉並区堀ノ内1丁目
- 76.18m² / 2LDK
一戸建て
-
売出し中
- 杉並区和泉4丁目 新築分譲住宅
- 6880万円
- 東京メトロ丸ノ内線 方南町駅 徒歩9分
- 東京都杉並区和泉4丁目
- 52.17m² / 2LDK
-
売出し中
- 杉並区方南1丁目 中古戸建
- 3180万円
- 京王線 笹塚駅 徒歩12分
- 東京都杉並区方南1丁目
- 54.05m² / 3K
-
売出し中
- 杉並区和田2丁目 中古戸建
- 1億3900万円
- 東京メトロ丸ノ内線 東高円寺駅 徒歩11分
- 東京都杉並区和田2丁目
- 87.66m² / 4SLDK
-
売出し中
- 杉並区和田2丁目 中古戸建
- 1億3900万円
- 東京メトロ丸ノ内線 東高円寺駅 徒歩11分
- 東京都杉並区和田2丁目
- 139.74m² / 4SLDK
-
売出し中
- 杉並区・堀ノ内2丁目
- 4580万円
- 東京メトロ丸ノ内線 方南町駅 徒歩7分
- 東京都杉並区堀ノ内2丁目
- 49.68m² / 3K
-
売出し中
- 杉並区堀ノ内1丁目の中古戸建
- 4488万円
- 東京メトロ丸ノ内線 方南町駅 徒歩10分
- 東京都杉並区堀ノ内1丁目
- 56.53m² / 2DK
-
売出し中
- 京王井の頭線「永福町」駅 徒歩11分
- 10,980万円(A号棟)~11,980万円(B号棟)
- 京王井の頭線「永福町」駅 徒歩11分
- 東京都杉並区和泉3-50-15
- 101.52m² / 2LDK +2S+WIC + 土間収納(C号棟)~3LDK +S + WIC(A号棟)
-
売出し中
- 京王線「代田橋」駅 徒歩7分
- 未定
- 京王線「代田橋」駅 徒歩7分
- 東京都杉並区和泉1丁目90番4の一部 他(地番)
- 100.11m² / 3LDK+S・4LDK
-
売出し中
- 杉並区和田2丁目 中古戸建
- 1億4500万円
- 東京メトロ丸ノ内線 東高円寺駅 徒歩10分
- 東京都杉並区和田2丁目
- 137.4m² / 6LDK
エリア・駅で絞り込んで探す
東京都のシティテラスが含まれるマンション
物件の種類から探す
杉並区で募集中の物件のみを検索できます
掲載情報に誤りや問題がある場合
LIFULL HOME'Sは「不動産会社」ではなく「情報掲載サイト」です
- ※管理会社の情報はLIFULL HOME'Sでは保持していないためお答えできません。お問合せはお控えください
- ※最新の募集状況は掲載中の不動産会社があれば、不動産会社へ直接お問合せください
掲載情報の訂正依頼 専用ダイヤル
0120-987-243
- 専用ダイヤル受付時間:10:00〜18:00
- ※土日・祝日、臨時休業日は除く
不動産データのご利用について
不動産事業におけるDX、サービスの改善、新規事業開発等をご検討中の方へ不動産データの活用をご提案します。LIFULL HOME'Sで集約した不動産情報や外部データは、不動産事業DX、不正決済防止、ローン審査、事業開発、研究等さまざまな事業でご活用いただいています。詳しくは以下よりご確認ください。
不動産アーカイブご利用アンケートにご協力ください
不動産アーカイブの掲載情報は、LIFULL HOME'S掲載の不動産情報および提携先の不動産情報を統計情報として集積したものであり、その存在や信憑性を保証するものではありません。