このページは物件の広告情報ではありません。
過去にLIFULL HOME'Sへ掲載された不動産情報と提携先の地図情報を元に生成した参考情報です。また、一般から投稿された情報など主観的な情報も含みます。
情報更新日: 2025/11/23
SKY TIARA(スカイティアラ・ウエスト)
スポンサーリンク
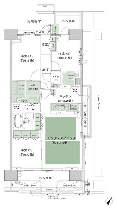
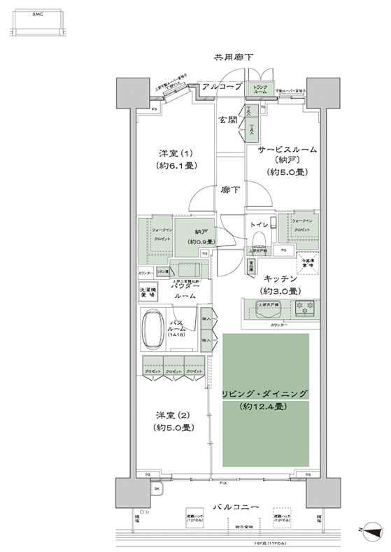
SKY TIARA(スカイティアラ・ウエスト)の建物情報
物件概要
| 物件種別 | マンション |
|---|---|
| 築年月(築年数) | 2015年4月 (築11年) |
| 建物構造 | 鉄筋コンクリート造・地下-階地上19階建 |
| 総戸数/総区画数 | 456戸 |
| 敷地全体面積 | 11099.35平米(※イーストとの合計面積16,069.39平米) |
| 用途地域 | 準工業 |
| 地目 | 宅地 |
| 土地権利 | 所有権 |
| 建築確認番号 | ウエスト第ERI13040750号(平成25年9月12日付)、第ERI114007097号(平成26年3月4日付)、第ERI14010200号(平成26年4月7日付)、第ERI14050791号(平成26年12月19日付)、第ERI15011123号(平成27年4月1日)・イースト第ERI13040745号(平成25年9月10日付)、第ERI14007096号(平成26年3月4日付)、第ERI14010199号(平成26年4月2日付)、第ERI14050754号(平成26年12月19日付) |
| 売主 | 住友不動産株式会社 |
| 販売会社 | 販売代理/住友不動産販売株式会社 |
設備・条件
- 追い焚き
- 浴室乾燥機
- コンロ三口以上
- システムキッチン
- 食器洗い乾燥機
- ディスポーザー
- 高効率給湯器
- 浄水器・活水器
- 床暖房
- ブロードバンド
- バリアフリー
- オートロック
- 防犯カメラ
- セキュリティ充実
- エレベーター
- 宅配ボックス
- コンシェルジュサービス
- 外断熱
- 環境にやさしい
- 子育てに優しい環境
- スーパー800m以内
- コンビニ400m以内
- 小学校800m以内
- 公園400m以内
※最新の状態と異なる場合があります
売りたい不動産をお持ちの方へ
このエリアの所有不動産を査定する
売却査定手続きの流れ、費用相場や注意点など不動産売却について詳しく知りたい方はLIFULL HOME'S 不動産査定へ
SKY TIARA(スカイティアラ・ウエスト)の周辺施設
-
買い物
日用品 -
- まいばすけっと小豆沢1丁目店
- ローソン 赤羽西店
- セブンイレブン 板橋小豆沢1丁目店
- クリエイトエス・ディー板橋小豆沢店
- 買い物
大型店 -
- ビバホーム 板橋前野店
- セブンタウン小豆沢
- アカチャンホンポセブンタウン小豆沢店
- グルメ
-
- 松のや本蓮沼店
- モスバーガー 志村坂上店
- 松屋 本蓮沼店
- 道とん堀 板橋志村店
- 娯楽施設
-
- 赤羽スポーツの森公園競技場グラウンド
- 桐ヶ丘プール
- 国立スポーツ科学センターテニスコート
- 小豆沢体育館
- 役所
公共施設 -
- 赤羽西六郵便局
- 板橋区立志村図書館
- 板橋蓮沼郵便局
- 板橋志村郵便局
- 医療
-
- 医療法人財団逸生会大橋病院
- 医療法人財団健康文化会小豆沢病院
- 一般社団法人巨樹の会赤羽リハビリテーション病院
- 医療法人社団明芳会板橋中央総合病院
- 保育施設
-
- 板橋区立さかうえ保育園
- 日の基保育園
- ひまわりキッズガーデン志村
- ほっぺるランド板橋小豆沢
- 学校
-
- 板橋区立志村第二中学校
- 北区立桐ヶ丘郷小学校
- 板橋区立志村第二小学校
- 北区立稲付中学校
SKY TIARA(スカイティアラ・ウエスト)周辺の物件情報
周辺の問合せ可能な物件
東京都板橋区の問合せ可能な物件のうち、この物件の周辺にあるものから表示しています
賃貸
-
募集中
- 都営三田線 志村坂上駅 徒歩9分
- 14.2万円
- 都営三田線 志村坂上駅 徒歩9分
- 東京都板橋区小豆沢1丁目3-4
- 42.82m² / 1LDK
-
募集中
- アンジュール小豆沢
- 14.2万円
- 都営三田線 志村坂上駅 徒歩9分
- 東京都板橋区小豆沢1丁目3-4
- 42.21m² / 1LDK
-
募集中
- グレース澤田
- 6.5万円
- 都営三田線 志村坂上駅 徒歩8分
- 東京都板橋区小豆沢1丁目7-18
- 21.66m² / 1K
-
募集中
- KDXレジデンス小豆沢
- 8.2万円
- 都営三田線 志村坂上駅 徒歩8分
- 東京都板橋区小豆沢1丁目7-13
- 21.12m² / 1K
-
募集中
- 都営三田線 志村坂上駅 徒歩7分
- 13.3万円
- 都営三田線 志村坂上駅 徒歩7分
- 東京都板橋区小豆沢1丁目
- 36.96m² / 1LDK
-
募集中
- 都営三田線 志村坂上駅 徒歩10分
- 15万円
- 都営三田線 志村坂上駅 徒歩10分
- 東京都板橋区小豆沢2丁目2-8
- 36.8m² / 1LDK
-
募集中
- ハーモニーテラス小豆沢II
- 5.9万円
- 都営三田線 志村坂上駅 徒歩6分
- 東京都板橋区小豆沢1丁目15-14
- 10.89m² / ワンルーム
-
募集中
- 都営三田線 志村坂上駅 徒歩7分
- 5.9万円
- 都営三田線 志村坂上駅 徒歩7分
- 東京都板橋区小豆沢1丁目15-14
- 10.89m² / ワンルーム
-
募集中
- 本蓮沼駅から徒歩6分
- 7.5万円
- 都営三田線 本蓮沼駅 徒歩6分
- 東京都板橋区蓮沼町
- 31.4m² / 1DK
-
募集中
- LUMEED志村坂上
- 15万円
- 都営三田線 志村坂上駅 徒歩10分
- 東京都板橋区小豆沢2丁目2-8
- 36.8m² / 1LDK
新築マンション
※完成後1年以上経過した未入居の物件が含まれている場合があります
-
売出し中
- 東武東上線「大山」駅 徒歩3分
- 10,500万円~15,900万円
- 東武東上線「大山」駅 徒歩3分
- 東京都板橋区大山町70番(地番)
- 72.01m² / 2LD・K・3LD・K
-
売出し中
- 東武東上線「上板橋」駅 徒歩2分
- 未定
- 東武東上線「上板橋」駅 徒歩2分
- 東京都板橋区上板橋一丁目1002番(地番)
- 70.06m² / 1LD・K~3LD・K
-
売出し中
- 東武東上線「上板橋」駅 徒歩1分
- 未定
- 東武東上線「上板橋」駅 徒歩1分
- 東京都板橋区上板橋一丁目1001番地(地番)
- 105.66m² / 2LD・K~3LD・K
-
売出し中
- 東武東上線「大山」駅 徒歩6分
- 6,340万円~7,990万円
- 東武東上線「大山」駅 徒歩6分
- 東京都板橋区仲町2-1(地番)
- 68.57m² / 2LDK・3LDK
-
売出し中
- JR埼京線「浮間舟渡」駅 徒歩5分~6分 (ジオ板橋浮間舟渡からJR埼京線「浮間舟渡」駅 までは徒歩5分(I棟)~6分(B棟)であり、いずれも一部公有地を通過するルートとなります。)
- 5,798万円~8,748万円
- JR埼京線「浮間舟渡」駅 徒歩5分~6分 (ジオ板橋浮間舟渡からJR埼京線「浮間舟渡」駅 までは徒歩5分(I棟)~6分(B棟)であり、いずれも一部公有地を通過するルートとなります。)
- 東京都板橋区舟渡1丁目13-2、3、4、5、7、14 全6筆(地番)
- 81.18m² / 2LDK~4LDK
-
売出し中
- 東京メトロ有楽町線「地下鉄成増」駅 徒歩4分
- 未定
- 東京メトロ有楽町線「地下鉄成増」駅 徒歩4分
- 東京都板橋区成増一丁目232番2、他(地番)
- 73.59m² / 3LDK
-
売出し中
- 東武東上線「上板橋」駅 徒歩9分
- 1億288万円(1戸)
- 東武東上線「上板橋」駅 徒歩9分
- 東京都板橋区桜川2丁目103番2
- 79.39m² / 4LDK(1戸)
-
売出し中
- 都営三田線「新板橋」駅 徒歩10分
- 8,240万円~14,880万円
- 都営三田線「新板橋」駅 徒歩10分
- 東京都板橋区加賀一丁目3356番1他2筆(地番)
- 86.75m² / 2LDK・3LDK
-
売出し中
- 東武東上線「大山」駅 徒歩4分
- 9,900万円~12,000万円
- 東武東上線「大山」駅 徒歩4分
- 東京都板橋区大山町73番(地番)
- 67.96m² / 2LD・K・3LD・K
-
売出し中
- 都営三田線「板橋本町」駅 徒歩4分
- 7,798~8,698万円
- 都営三田線「板橋本町」駅 徒歩4分
- 東京都板橋区本町32番34(地番)
- 58.8m² / 1LDK+S(納戸)~2LDK
中古マンション
-
売出し中
- ライオンズプラザ本蓮沼
- 4280万円
- 都営三田線 本蓮沼駅 徒歩6分
- 東京都板橋区小豆沢1丁目
- 50.42m² / 1SLDK
-
売出し中
- グローリア初穂小豆沢
- 2980万円
- 都営三田線 本蓮沼駅 徒歩11分
- 東京都板橋区小豆沢1丁目
- 49.5m² / 2LDK
-
売出し中
- クレールあづさわ
- 3780万円
- 都営三田線 志村坂上駅 徒歩8分
- 東京都板橋区小豆沢2丁目
- 59.4m² / 3LDK
-
売出し中
- サンクレイドル志村坂上
- 6500万円
- 都営三田線 志村坂上駅 徒歩12分
- 東京都板橋区小豆沢1丁目
- 65.88m² / 3LDK
-
売出し中
- 都営三田線 本蓮沼駅 徒歩6分
- 4999万円
- 都営三田線 本蓮沼駅 徒歩6分
- 東京都板橋区蓮沼町
- 55.86m² / 2LDK
-
売出し中
- ウィンベルコーラス蓮沼
- 4899万円
- 都営三田線 本蓮沼駅 徒歩6分
- 東京都板橋区蓮沼町41-5
- 55.86m² / 2LDK
-
売出し中
- ウインベルコーラス蓮沼
- 4999万円
- 都営三田線 本蓮沼駅 徒歩6分
- 東京都板橋区蓮沼町41-5
- 55.86m² / 2LDK
-
売出し中
- 都営三田線 本蓮沼駅 徒歩6分
- 4280万円
- 都営三田線 本蓮沼駅 徒歩6分
- 東京都板橋区小豆沢1丁目
- 50.42m² / 1SLDK
-
売出し中
- 都営三田線 本蓮沼駅 徒歩5分
- 5699万円
- 都営三田線 本蓮沼駅 徒歩5分
- 東京都板橋区蓮沼町
- 65.48m² / 3LDK
一戸建て
-
売出し中
- 板橋区蓮沼町 新築戸建 全2棟
- 8180万円
- 都営三田線 本蓮沼駅 徒歩7分
- 東京都板橋区蓮沼町
- 112.31m² / 3SLDK
-
売出し中
- 板橋区蓮沼町 新築戸建
- 7980万円
- 都営三田線 本蓮沼駅 徒歩7分
- 東京都板橋区蓮沼町
- 114.68m² / 3SLDK
-
売出し中
- 都営三田線「本蓮沼」駅 徒歩7分
- 7980万円
- 都営三田線「本蓮沼」駅 徒歩7分
- 東京都板橋区蓮沼町
- 114.68m² / 3LDK+S
-
売出し中
- 板橋区蓮沼町III期
- 7980万円
- 都営三田線 本蓮沼駅 徒歩7分
- 東京都板橋区蓮沼町59-9
- 112.31m² / 4LDK
-
売出し中
- 蓮沼町 1号棟
- 7980万円
- 都営三田線 本蓮沼駅 徒歩7分
- 東京都板橋区蓮沼町
- 112.31m² / 3SLDK
-
売出し中
- 板橋区小豆沢4丁目 一戸建て
- 6780万円
- JR埼京線 北赤羽駅 徒歩10分
- 東京都板橋区小豆沢4丁目
- 69.04m² / 2SLDK
-
売出し中
- 板橋区大原町 全2棟
- 5698万円
- 都営三田線 本蓮沼駅 徒歩9分
- 東京都板橋区大原町
- 100.61m² / 2SLDK
-
売出し中
- 都営三田線 志村坂上駅 徒歩7分
- 6980万円
- 都営三田線 志村坂上駅 徒歩7分
- 東京都板橋区志村2丁目
- 119.8m² / 4SDK
-
売出し中
- 新築戸建 板橋区宮本町
- 5980万円
- 都営三田線 本蓮沼駅 徒歩12分
- 東京都板橋区宮本町
- 70.77m² / 3LDK
-
売出し中
- 板橋区前野町4丁目 新築戸建
- 6180万円
- 都営三田線 志村坂上駅 徒歩9分
- 東京都板橋区前野町4丁目
- 97.6m² / 3LDK
注文住宅
※表示価格は延べ床面積約132m²の場合の建物価格の参考値です
エリア・駅で絞り込んで探す
周辺の建物情報
物件の種類から探す
板橋区で募集中の物件のみを検索できます
掲載情報に誤りや問題がある場合
LIFULL HOME'Sは「不動産会社」ではなく「情報掲載サイト」です
- ※管理会社の情報はLIFULL HOME'Sでは保持していないためお答えできません。お問合せはお控えください
- ※最新の募集状況は掲載中の不動産会社があれば、不動産会社へ直接お問合せください
掲載情報の訂正依頼 専用ダイヤル
0120-987-243
- 専用ダイヤル受付時間:10:00〜18:00
- ※土日・祝日、臨時休業日は除く
不動産データのご利用について
不動産事業におけるDX、サービスの改善、新規事業開発等をご検討中の方へ不動産データの活用をご提案します。LIFULL HOME'Sで集約した不動産情報や外部データは、不動産事業DX、不正決済防止、ローン審査、事業開発、研究等さまざまな事業でご活用いただいています。詳しくは以下よりご確認ください。
不動産アーカイブご利用アンケートにご協力ください
不動産アーカイブの掲載情報は、LIFULL HOME'S掲載の不動産情報および提携先の不動産情報を統計情報として集積したものであり、その存在や信憑性を保証するものではありません。