1. 不動産・住宅情報サイトLIFULL HOME'S
  2. マンション
  3. 新築マンション
  4. 関東
  5. 東京都
  6. 東京23区
  7. 板橋区
  8. 新板橋駅
  9. バウス加賀
新築マンション 分譲予定

バウス加賀

  • 情報更新日: 4時間前 NEW
  • 次回更新予定日:2026/04/30

物件の特徴

  • 予告広告 第3期1次 予告広告
  • 未定
  • 所在地
    東京都板橋区加賀一丁目3356番1他2筆(地番) 地図を見る
    • ※不動産会社が入力した情報を基に物件の位置を表示しています
    • ※詳しくは不動産会社までお問合せください

    閉じる

  • 交通
    都営三田線「新板橋」駅 徒歩10分
    JR埼京線「十条」駅 徒歩14分
    都営三田線「板橋区役所前」駅 徒歩11分
  • 引き渡し
    2026年9月下旬(予定)
  • 大規模マンション
  • 100㎡以上
  • 4LDK以上

販売概要

  • 予告広告 第3期1次 予告広告

    未定

    間取り
    1LDK+S(納戸) ~ 5LDK
    専有面積
    59.49㎡ ~ 127.92㎡
    販売スケジュール
    販売開始予定時期/2026年5月下旬予定

    詳細を見る

予告広告
この広告は予告広告を含みます。販売を開始するまでは、契約または予約(仮予約を含む)の申込および申込順位の確保には一切応じられませんのでご了承ください。価格または販売方法が未定の場合は、本広告にて確定情報をお知らせします。

ポイント

  • 「池袋」駅3km圏。大手町へ直通15分。新宿へ直通11分。(※1)
  • 都心近接ながらも歴史深い静穏な地に全228邸の大規模レジンデンス、誕生。
  • 平均専有面積73m2超・3LDK中心。110m2超のペントハウスも備えたゆとりあるプラン

お問合せ(無料)

モデルルーム見学する

4/18
4/19
4/20
×
4/21
×
4/22
×
4/23
4/24
4/25
4/26
4/27
×
4/28
×
4/29
×
4/30
5/1
資料請求する
バウス加賀 バウス加賀

詳しいパンフレットや図面集、リーフレット等がお手元に届きます。
質問・相談もできます


かんたん1分で
資料をもらう
無料

電話する

0037-618-76699 無料

QRコードを読み込むとすぐに電話できます。

お問合せ先
「バウス加賀」マンションギャラリー
登録する
LINEで更新情報を受取る(無料)
価格・間取りなどの更新情報がLIFULL HOME'S公式のLINEから届きます

QRコードを読み込むと登録画面が表示されます
プライバシーポリシー
に同意の上ご登録ください

コンセプト

加賀の杜 東京が求める、都市居住の「原点へ」。

  • バウス加賀 「移動性」の原点へ。 行動を自在にする交通アクセス。池袋2駅、大手町約10km圏。

    「移動性」の原点へ。 行動を自在にする交通アクセス。池袋2駅、大手町約10km圏。
    心から安らげる自然と日々の利便性を、バランス良く享受できるアクセス性を確保。
    最寄り駅まで徒歩10分※、大手町直通15分の「都営三田線」と池袋、新宿、渋谷の三大副都心に直通の「JR埼京線」という都心直結する2路線を利用可能。
    通勤・通学、プライベートもスムーズに移動できるアクセシビリティを実現します。
    ※都営三田線「新板橋」駅まで徒歩10分(約800m)
    ※掲載のイラストは、地図を基に作成したもので形状・色等は実際とは異なります。また特定の季節、時期を想定して描かれたものではございません。
    ※徒歩分数表示については地図上の概測で、徒歩分数は80mを1分として算出(端数切り上げ)しています。
    ※掲載の所要時間は、平日朝の通勤ラッシュ時(7:00~9:00)のものであり、時間帯により異なります。また、乗り換え、待ち時間を含めた所要時間を表示しています。
    ※2025年4月時点の運行ダイヤによるものです。YAHOO路線情報2025年4月版調べ。乗換時間含む分数表記。乗換時歩く速度設定「少し急いで」通勤時7~9時、日中時11~14時に目的駅へ到着する電車よりサンプリング。
    もっと見る

間取り

公開中:7

間取り表記例:
Rルーフバルコニー
TRトランクルーム
Sサービスルーム(納戸)
DEN書斎(納戸)
WTCウォークスルークロゼット(クローク)
N納戸
MCマルチクロゼット(クローク)
Wウォークインクロゼット(クローク)
SCシューズクロゼット(クローク)
WICウォークインクロゼット(クローク)
SICシューズインクロゼット(クローク)

LINEで更新情報を受け取る(無料)

価格・間取りなどの更新情報がLIFULL HOME'S公式のLINEから届きます
プライバシーポリシーに同意の上ご登録ください

QRコードを読み込むと登録画面が表示されます

周辺環境・アクセス

現地案内図

バウス加賀:案内図

所在地
東京都板橋区加賀一丁目3356番1他2筆(地番)
お問合せ先
「バウス加賀」マンションギャラリー
0037-618-76699

交通アクセス図

バウス加賀:交通図

周辺スポット

  • 仲宿商店街
    (徒歩9分)

  • クイーンズ伊勢丹
    (徒歩12分)

  • 十条銀座商店街
    (徒歩14分)

  • 帝京大学医学部
    (徒歩9分)

  • 区立東板橋図書館
    (徒歩6分)

  • 板橋こども動物園
    (徒歩9分)

  • 東板橋公園
    (徒歩7分)

  • 石神井川緑道
    (徒歩1分)

  • 東京家政大学附属みどりヶ丘幼稚園
    約540m(徒歩7分)
  • 板橋区立金沢小学校
    約480m(徒歩6分)
  • 東京家政大学附属女子中学校・高等学校
    約550m(徒歩7分)
  • 帝京高等看護学院
    約860m(徒歩11分)
  • 資生堂美容専門学校
    約360m(徒歩5分)
  • 東京家政大学
    約190m(徒歩3分)
  • 加賀庭球場
    約180m(徒歩3分)
  • 区立植村記念加賀スポーツセンター
    約340m(徒歩5分)
  • 区立加賀第二公園
    約120m(徒歩2分)
  • 区立板谷公園
    約140m(徒歩2分)
  • 区立加賀西公園
    約280m(徒歩4分)
  • 板橋四丁目東公園
    約490m(徒歩7分)

※掲載の情報は2025年4月現在のもので今後変更になる場合がございます。

周辺地図

周辺情報

※半径4kmを超えると、周辺情報のアイコンは表示されません。

  • ※地図上に表示される各種アイコンなどの情報は、おおよその所在地を表すものであり、物件・施設などの地点を保証するものではありません
  • ※地図の表示領域が広域になると周辺のお店・施設は表示できなくなります
  • ※地図、航空写真情報および地形ならびに周辺のお店・施設は、必ずしも現況を表すものではありません
  • ※物件から周辺のお店・施設までの距離は、利用が想定される道路を通行した場合の距離です。なお、必ずしも最短距離を保証するものではありません

LINEで更新情報を受け取る(無料)

価格・間取りなどの更新情報がLIFULL HOME'S公式のLINEから届きます
プライバシーポリシーに同意の上ご登録ください

QRコードを読み込むと登録画面が表示されます

モデルルーム

モデルルーム情報

所在地 -
営業時間 10:00~18:00
定休日 水・木曜日 ※祝日の場合を除く
開催期間 2025/12/08 ~
お問合せ先

「バウス加賀」マンションギャラリー

電話:0037-618-76699【通話無料】

  • 携帯可 光IP電話、及びIP電話からはご利用いただけません
  • ※営業時間外は電話がつながらないことがございますのでご了承ください。
  • ※お客様の電話番号は不動産会社に通知されません
  • ※携帯電話はご利用いただけます
  • ※光IP電話、及びIP電話をご利用のお客様は以下へご連絡ください
    「バウス加賀」マンションギャラリー TEL:0120-194-228
  • ※携帯電話からお問合せいただいた方には、ショートメッセージ(SMS)またはLINE通知メッセージによるお問合せ内容に関する通知をお届けする場合があり、お客様の電話番号は株式会社LIFULLで一定期間保管されます
  • ※株式会社LIFULLの個人情報の取扱い方針に同意のうえ、お電話ください

お問合せ(無料)

モデルルーム見学する
4/18
4/19
4/20
×
4/21
×
4/22
×
4/23
4/24
4/25
4/26
4/27
×
4/28
×
4/29
×
4/30
5/1


モデルルーム
見学予約する
無料

資料請求する
バウス加賀 バウス加賀

詳しいパンフレットや図面集、リーフレット等がお手元に届きます。
質問・相談もできます


かんたん1分で
資料をもらう
無料

電話する

0037-618-76699無料

QRコードを読み込むとすぐに電話できます。

登録する

LINEで更新情報を受け取る(無料)

価格・間取りなどの更新情報がLIFULL HOME'S公式のLINEから届きます
プライバシーポリシーに同意の上ご登録ください

QRコードを読み込むと登録画面が表示されます

建物・部屋

建物・共用部

  • バウス加賀 エントランス完成予想CG

    エントランス完成予想CG
    加賀の伝統を感じさせる秀麗な迎賓の設えで不変の美を宿すエントランス。桜や石積み、格子状の窓など、加賀の伝統を感じさせる優雅な趣のエントランスを創出。
  • バウス加賀 コミュニティスペース完成予CG

    コミュニティスペース完成予CG
    加賀藩下屋敷の縮景をデザインし回廊式庭園をモチーフとした趣深いランドプラン。加賀藩の歴史や文化を継承し、約5,800m2のゆとりに満ちた敷地内に水流や石垣、四季、加賀友禅、光の5つをテーマにランドプランを計画。
  • バウス加賀 ウォーターガーデン完成予想CG

    ウォーターガーデン完成予想CG
    かつてこの地にあった回遊式庭園の一部を思わせるような佇まい。心地よい水面の揺らぎと瑞々しい緑の潤い。石垣をイメージした自然石積みの質感が、迎賓の情趣と安らぎを静かに醸し、住まう方を優しく包みます。
  • バウス加賀 エントランスホール完成予想CG

    エントランスホール完成予想CG
    エントランスの扉の先に広がる、加賀の伝統美を宿した「エントランスホール」。行灯を思わせる光が心地よいレセプションカウンター、加賀友禅の技法や意匠を活かしたアートが印象的で、かけがえのない迎賓の時を演出します。
  • バウス加賀 ブックラウンジ完成予想CG

    ブックラウンジ完成予想CG
    加賀友禅アートを設えた落ち着いた空間でゆったりと寛ぎながら知識を深める心地良い「ブックラウンジ」磨りガラスの建具から柔らかな光が差し込む穏やかな知の空間で、ゆったりとソファーに寛ぎながら読書を楽しむことができます。
  • バウス加賀 集会室完成予想CG

    集会室完成予想CG
    ウォーターガーデンを臨みながら思い思いにくつろげる、3つの空間からなる開放的な集会室。お子様がのびのびと元気に遊べる「キッズスペース」。仕事や趣味の時間を豊かに叶える「マルチスペース」。心地よい安らぎに迎えられる「オーナーズラウンジ」。

※掲載の外観完成予想CGは、設計図を基に作成したもので形状・色等は実際とは異なります。施工上の理由及び改良のため、変更となる場合がございます。なお、外観形状の細部、設備機器等は表現していません。植栽は計画段階のものであり、変更となる場合がございます。また特定の季節、時期、または入居時を想定して描かれたものではございません。葉の色合いや枝ぶり、樹形は想定であり、竣工時には完成予想CG程度には成長しておりません。

LINEで更新情報を受け取る(無料)

価格・間取りなどの更新情報がLIFULL HOME'S公式のLINEから届きます
プライバシーポリシーに同意の上ご登録ください

QRコードを読み込むと登録画面が表示されます

室内・専有部

ゆとりから生まれる次代を見据えた心地よい暮らし

多くのタイプでリビング・ダイニングは、12畳以上の空間を確保。更に収納スペースも豊富にご用意しました。また、日々の生活をより快適に過ごしていただけるよう家事動線にも工夫を凝らしたプランをご用意いたしました。

  • バウス加賀 リビング・ダイニング

    リビング・ダイニング
  • バウス加賀 リビング・ダイニング

    リビング・ダイニング
  • バウス加賀 リビング・ダイニング

    リビング・ダイニング
  • バウス加賀 リビング・ダイニング

    リビング・ダイニング
  • バウス加賀 洋室

    洋室
  • バウス加賀 キッチン

    キッチン

※掲載の間取りは計画段階のもので今後変更になる場合がございます。
※掲載の情報は2025年4月時点のものであり、今後変更になる場合があります。

LINEで更新情報を受け取る(無料)

価格・間取りなどの更新情報がLIFULL HOME'S公式のLINEから届きます
プライバシーポリシーに同意の上ご登録ください

QRコードを読み込むと登録画面が表示されます

設備・構造

洗練された機能と美が、暮らしに宿る。

美しくあること、機能的であること。
ディスポーザーや食器洗い乾燥機など、忙しい毎日の中で家事の時短化・効率化を
実現する設備仕様を採用しています。

  • バウス加賀 ディスポーザー

    ディスポーザー

    生ゴミをすぐに処理できるディスポーザーを装備。清潔なキッチンに配慮しました。※一部粉砕処理できないものがあります。

  • バウス加賀 浄水器一体型水栓

    浄水器一体型水栓

    浄水をいつでもご利用いただけます。引き出し式ノズルでシンクのお手入れも簡単。※参考画像

  • バウス加賀 天板:天然御影石

    天板:天然御影石

    品格あるカウンターが日常の料理に彩りをもたらします。天板は天然御影石を採用しました。

  • バウス加賀 スライドオープン食器洗い乾燥機<br />
<br />

    スライドオープン食器洗い乾燥機

    洗浄から乾燥までワンタッチで行えるスライドオープン式のビルトイン大容量タイプ。※参考画像

  • バウス加賀 チャイルドミラー

    チャイルドミラー

    背の低いお子様にも、よく見える便利な下部ミラー貼りを採用しました。

  • バウス加賀 タオル掛け

    タオル掛け

    洗面室にはスタイリッシュなタオル掛けを予めご用意しました。※参考画像

  • バウス加賀 TES温水式浴室暖房乾燥機

    TES温水式浴室暖房乾燥機

    天気や時間を気にせず計画的に洗濯物を乾かせる衣類乾燥や、カビが生えにくくなる浴室乾燥機を搭載しました。

  • バウス加賀 ゆるリラ浴槽&魔法びん浴槽

    ゆるリラ浴槽&魔法びん浴槽

    「気持ちいい」をとことん科学して生まれた、入る人をやさしく包み込むゆるリラ浴槽&お湯が冷めにくく省エネ効果の高い魔法びん浴槽。※参考画像

  • バウス加賀 スティックリモコン

    スティックリモコン

    水勢の強弱・洗浄位置・温水の温度をお好みの設定でリモコンに登録できます。最大4名まで登録可能。※参考画像

  • バウス加賀 タンクレストイレ

    タンクレストイレ

    お掃除の手間が省け、デザイン性が高くスリムでスッキリしたタンクレストイレ。

  • バウス加賀 手洗いカウンター

    手洗いカウンター

    上質で清潔感のある空間を演出する手洗い器を設置しました。

  • バウス加賀 TESガス温水床暖房<br />
<br />

    TESガス温水床暖房

    リビング・ダイニングには埃を巻き上げにくく、日だまりのような温かさを実現した床暖房。床暖房リモコンには「セーブモード」を搭載。床面温度を一定温度に保つことを想定し、温水供給時間に上限を設けて出力制限できます。

  • バウス加賀 玄関通風窓

    玄関通風窓

    プライバシーを守りながら玄関からの通風・採光を確保。玄関を明るくし、室内の自然な風の流れを促します。※C13タイプを除く

  • バウス加賀 宅配ボックス

    宅配ボックス

    在宅・不在問わず、荷物を受け取れ、宅配の発送も可能な宅配ボックス。※image photo

  • バウス加賀 二重床・二重天井構造

    二重床・二重天井構造

    コンクリートスラブと床、コンクリートスラブと天井の間に空間を確保し、遮音性能を高め生活音の伝わりを軽減。将来のリフォームやメンテナンス性も高い構造です。※概念図

  • バウス加賀 複層ガラス(全窓)

    複層ガラス(全窓)

    住戸のサッシのガラスは、中空層側に特殊金属膜(Low-E膜)をコーティングした「Low-E複層ガラス」を採用。「特殊金属膜(Low-E膜)」により、複層ガラスの断熱性能がより高まります。また冬季は、外部から日射熱を取り入れる効果も期待できます。※一部粉砕処理できないものがあります。

  • バウス加賀 梁内蔵型戸境壁

    梁内蔵型戸境壁

    ※概念図※一部住戸除く

  • バウス加賀 東京都マンション環境性能表示

    東京都マンション環境性能表示

※掲載の写真はモデルルームB7’タイプを撮影したものです。(2025年8月撮影) ※実際の色味についてはモデルルームにてご確認ください。※カラースキームにより色味は異なります。※参考写真を除く。
※プレミアムタイプ・ペントハウスについては仕様が異なる部分がございます。詳しくは販売員にお尋ねください。

省エネ性能

省エネ性能ラベル

省エネ性能ラベル

性能の詳細

エネルギー
消費性能
★★★(削減率20%達成)
断熱性能 5段階/7段階中
目安光熱費 -/年

住棟ラベル:本ラベルは、住棟全体(複数棟の場合は代表棟)の性能を示すものであり、特定の住戸の性能を示すものではありません

住戸ラベル:本ラベルは、特定の住戸の性能を示すものであり、全ての住戸の性能を示すものではありません

LINEで更新情報を受け取る(無料)

価格・間取りなどの更新情報がLIFULL HOME'S公式のLINEから届きます
プライバシーポリシーに同意の上ご登録ください

QRコードを読み込むと登録画面が表示されます

物件概要

販売概要

予告広告 第3期1次 予告広告

販売スケジュール 販売開始予定時期/2026年5月下旬予定
販売価格 未定 価格をお問合せ(無料)
予定最多価格帯 未定
販売戸数 未定
本販売期以降の総販売戸数 143戸
間取り 1LDK+S(納戸) ~ 5LDK
専有面積 59.49㎡ ~ 127.92㎡
バルコニー面積 4.86㎡ ~ 20.55㎡
管理費 未定(月額)
修繕積立金 未定(月額)
修繕積立基金 未定(引渡時一括)
その他費用 管理準備金(引渡時一括)/未定
販売概要備考 ※本概要は予告広告で価格・販売戸数は未定です。販売住戸が未確定の為、物件データは第3期以降販売対象の全住戸(143戸)のものを表記しています
取引条件有効期限 -

※販売戸数は未定です。物件の取引内容及び取引条件は、本販売期以降の総販売戸数を基に表示しています。確定情報については本広告時に明示します

LINEで更新情報を受け取る(無料)

価格・間取りなどの更新情報がLIFULL HOME'S公式のLINEから届きます
プライバシーポリシーに同意の上ご登録ください

QRコードを読み込むと登録画面が表示されます

全体概要

所在地 東京都板橋区加賀一丁目3356番1他2筆(地番)
交通
都営三田線「新板橋」駅 徒歩10分
JR埼京線「十条」駅 徒歩14分
都営三田線「板橋区役所前」駅 徒歩11分
総戸数 228戸 (分譲228戸、他店舗1区画)
構造および階数 鉄筋コンクリート造地上12階建て
駐車場 -
その他、共有施設等 ■駐車場台数/使用料:76台(機械式(来客用5台含む):75台、平置身障者用:1台)、19,000円~30,000円(月額)
■駐輪場台数/使用料:468台(2段ラック式・前輪ラック式・スライドラック式・平置式:456台、子供用自転車置場(平置式):12台)、100円~500円(月額)
■バイク置場台数/使用料:20台、3,500円~5,000円(月額)
完成時期 2026年8月上旬(予定)
引き渡し可能年月 2026年9月下旬(予定)
分譲後の権利形態 専有部分は区分所有、敷地・共用部分は専有面積割合による所有権の共有
管理形態 区分所有者全員で管理組合を設立し、管理組合より管理会社へ委託(予定)
管理員の勤務形態 通勤管理
敷地面積 5,861.26㎡
用途地域 準工業地域
建築確認番号 第UHEC建確R060433号 (2024年9月27日付)、第UHEC建確R060433変1号
売主 中央日本土地建物株式会社、日鉄興和不動産株式会社(国土交通大臣(5)第6908号)、総合地所株式会社(国土交通大臣(5)第6814号)
販売会社 株式会社長谷工アーベスト(代理)
施工会社 株式会社長谷工コーポレーション
管理会社 中央日土地レジデンシャルサービス株式会社
備考 バルコニー面積: 4.86㎡~20.55㎡
建築確認番号: 第UHEC建確R060433号 (2024年9月27日付)、第UHEC建確R060433変1号
加盟団体: (公社)首都圏不動産公正取引協議会、(一社)不動産協会、(一社)不動産流通経営協会
※本物件南西側緑地は都市計画緑地の指定を受けており、敷地の一部は都市計画緑地部分に該当します。
【TOP画像】
※1.掲載の外観完成予想CGは、設計図を基に作成したもので形状・色等は実際とは異なります。施工上の理由及び改良のため、変更となる場合がございます。なお、外観形状の細部、設備機器等は表現していません。植栽は計画段階のものであり、変更となる場合がございます。また特定の季節、時期、または入居時を想定して描かれたものではございません。葉の色合いや枝ぶり、樹形は想定であり、竣工時には完成予想CG程度には成長しておりません。
【ポイント箇所】
※1:「新宿」まで…JR埼京線「十条」駅よりJR埼京線利用。「大手町」駅まで…都営三田線「新板橋」駅より都営三田線利用。掲載の所要時間は、平日朝の通勤ラッシュ時(7:00~9:00)のものであり、時間帯により異なります。また、乗り換え、待ち時間を含めた所要時間を表示しています。2025年4月時点の運行ダイヤによるものです。YAHOO路線情報2025年4月版調べ。乗換時間含む分数表記。乗換時歩く速度設定「少し急いで」通勤時7~9時、日中時11~14時に目的駅へ到着する電車よりサンプリング。
情報更新日 2026/04/16
次回更新予定日 2026/04/30

LINEで更新情報を受け取る(無料)

価格・間取りなどの更新情報がLIFULL HOME'S公式のLINEから届きます
プライバシーポリシーに同意の上ご登録ください

QRコードを読み込むと登録画面が表示されます

会社・ブランド

ブランド情報

この物件の不動産会社が保持しているマンションブランドの特徴です。

BAUS

ブランド画像

感動が育つ住まい。 BAUS

家族や友だちと過ごす、にぎやかな空間がある。
自分自身と向き合う、リラックスした時間がある。
いつでも、どんな時でも、自分らしくいられる住まいがここにある。

「BAUS」は、住む人が毎日を自分らしく
よりよく生きていくための、住まいのブランドです。
一人ひとり、それぞれのライフスタイルを大切に考え、
変化するライフステージに寄り添いながら、
ともに住まいの感動を育てていきます。

家族や友だちと過ごす、にぎやかな空間がある。
自分自身と向き合う、リラックスした時間がある。
いつでも、どんな時でも、自分らしくいられる住まいがここにある。

「BAUS」は、住む人が毎日を自分らしく
よりよく生きていくための、住まいのブランドです。
一人ひとり、それぞれのライフスタイルを大切に考え、
変化するライフステージに寄り添いながら、
ともに住まいの感動を育てていきます。

情報提供元

中央日本土地建物株式会社

免許番号
[国土交通大臣(16)第125号]
所在地
〒100-0013 東京都千代田区霞が関1-4-1 日土地ビル
加盟団体
(公社)首都圏不動産公正取引協議会、(一社)不動産協会、(一社)不動産流通経営協会

お問合せ(無料)

モデルルーム見学する
4/18
4/19
4/20
×
4/21
×
4/22
×
4/23
4/24
4/25
4/26
4/27
×
4/28
×
4/29
×
4/30
5/1


モデルルーム
見学予約する
無料

資料請求する
バウス加賀 バウス加賀

詳しいパンフレットや図面集、リーフレット等がお手元に届きます。
質問・相談もできます


かんたん1分で
資料をもらう
無料

電話する

0037-618-76699無料

QRコードを読み込むとすぐに電話できます。

お問合せ先

「バウス加賀」マンションギャラリー

電話:0037-618-76699【通話無料】

受付時間:10:00~18:00、定休日/水・木曜日(※祝日の場合を除く)

  • ※お問合せの際は、「ライフルホームズを見て」とお伝えいただくとスムーズです
  • ※営業時間外は下記の「資料をもらう(無料)」よりお問合せください
【お電話の際の注意事項】
※お客様の電話番号は不動産会社に通知されません
※携帯電話はご利用いただけます
※光IP電話、及びIP電話をご利用のお客様は以下へご連絡ください
TEL:「バウス加賀」マンションギャラリー0120-194-228
※携帯電話からお問合せいただいた方には、ショートメッセージ(SMS)またはLINE通知メッセージによるお問合せ内容に関する通知をお届けする場合があり、お客様の電話番号は株式会社LIFULLで一定期間保管されます
登録する
お気に入り一覧を見る

LINEで更新情報を受け取る(無料)

価格・間取りなどの更新情報がLIFULL HOME'S公式のLINEから届きます
プライバシーポリシーに同意の上ご登録ください

QRコードを読み込むと登録画面が表示されます

シェアする

【物件番号】 1602003-0000004

  • ※完成予想図やCG合成画像は、門塀・植栽・庭・外観等、実際とは多少異なる場合があります。 また、掲載の図面は、多少変更になる場合があります
  • ※掲載の写真や動画には、一部オプション(有償)が含まれる場合があります。また、家具・調度品等は販売価格に含まれておりません
  • ※完成後1年未満で未入居の物件を「新築」と表示しております

その他の新築分譲マンションを探す

板橋区の詳細町域から新築分譲マンションを探す

  • バウス加賀 外観

    外観完成予想CG(※1)

  • バウス加賀 その他

    エントランス完成予想CG

  • バウス加賀 その他

    ロケーション距離圏図

  • バウス加賀 その他

    外観完成予想CG

  • バウス加賀 コンセプト

    心から安らげる自然と日々の利便性を、バランス良く享受できるアクセス性を確保。 最寄り駅まで徒歩10分※、大手町直通15分の「都営三田線」と池袋、新宿、渋谷の三大副都心に直通の「JR埼京線」という都心直結する2路線を利用可能。 通勤・通学、プライベートもスムーズに移動できるアクセシビリティを実現します。 ※都営三田線「新板橋」駅まで徒歩10分(約800m)

  • バウス加賀 コンセプト

    池袋へ直通5分、大手町へも直通15分(※1)。2駅2路線が利用できる都心近接のロケーションに、全228邸の大規模レジデンスが誕生します。 舞台は石神井川沿い、公園に寄り添う歴史深い板橋加賀エリア。豊かな自然と落ち着いた街並みに加え、教育施設や利便施設も整う住環境が広がります。かつてこの地に加賀藩下屋敷が構えられた背景もあり、今もなお趣ある景観と静穏な空気が息づいています。 平均専有面積は約73m2と、ゆとりある住空間を確保。最上階には限定3邸のペントハウスもご用意し、開放感と特別感を兼ね備えたプランをラインアップ。都市の利便性と豊かさを両立する、新たな邸宅ステージがここに始まります。

  • バウス加賀 コンセプト

    現地周辺の板橋加賀エリアは、景観形成重点地区に指定されており、豊かな歴史と自然の息づく閑静な街並みが保たれています。 また、その良好な住環境をもとに、充実した教育環境が育まれ、子育てに優しい文教の趣漂うエリアとしても成熟しています。

  • バウス加賀 共用部

    加賀の伝統を感じさせる秀麗な迎賓の設えで不変の美を宿すエントランス。桜や石積み、格子状の窓など、加賀の伝統を感じさせる優雅な趣のエントランスを創出。

  • バウス加賀 共用部

    加賀藩下屋敷の縮景をデザインし回廊式庭園をモチーフとした趣深いランドプラン。加賀藩の歴史や文化を継承し、約5,800m2のゆとりに満ちた敷地内に水流や石垣、四季、加賀友禅、光の5つをテーマにランドプランを計画。

  • バウス加賀 共用部

    かつてこの地にあった回遊式庭園の一部を思わせるような佇まい。心地よい水面の揺らぎと瑞々しい緑の潤い。石垣をイメージした自然石積みの質感が、迎賓の情趣と安らぎを静かに醸し、住まう方を優しく包みます。

  • バウス加賀 共用部

    エントランスの扉の先に広がる、加賀の伝統美を宿した「エントランスホール」。行灯を思わせる光が心地よいレセプションカウンター、加賀友禅の技法や意匠を活かしたアートが印象的で、かけがえのない迎賓の時を演出します。

  • バウス加賀 共用部

    加賀友禅アートを設えた落ち着いた空間でゆったりと寛ぎながら知識を深める心地良い「ブックラウンジ」磨りガラスの建具から柔らかな光が差し込む穏やかな知の空間で、ゆったりとソファーに寛ぎながら読書を楽しむことができます。

  • バウス加賀 共用部

    ウォーターガーデンを臨みながら思い思いにくつろげる、3つの空間からなる開放的な集会室。お子様がのびのびと元気に遊べる「キッズスペース」。仕事や趣味の時間を豊かに叶える「マルチスペース」。心地よい安らぎに迎えられる「オーナーズラウンジ」。

  • バウス加賀 専有部

  • バウス加賀 専有部

  • バウス加賀 専有部

  • バウス加賀 専有部

  • バウス加賀 専有部

  • バウス加賀 専有部

  • バウス加賀 設備

    ディスポーザー

  • バウス加賀 設備

    浄水器一体型水栓

  • バウス加賀 設備

    天板:天然御影石

  • バウス加賀 設備

    スライドオープン食器洗い乾燥機

  • バウス加賀 設備

    チャイルドミラー

  • バウス加賀 設備

    タオル掛け

  • バウス加賀 設備

    TES温水式浴室暖房乾燥機

  • バウス加賀 設備

    ゆるリラ浴槽&魔法びん浴槽

  • バウス加賀 設備

    スティックリモコン

  • バウス加賀 設備

    タンクレストイレ

  • バウス加賀 設備

    手洗いカウンター

  • バウス加賀 設備

    TESガス温水床暖房

  • バウス加賀 設備

    玄関通風窓

  • バウス加賀 設備

    宅配ボックス

  • バウス加賀 設備

    二重床・二重天井構造

  • バウス加賀 設備

    複層ガラス(全窓)

  • バウス加賀 設備

    梁内蔵型戸境壁

  • バウス加賀 設備

    東京都マンション環境性能表示

  • 周辺環境

    仲宿商店街 (徒歩9分)

  • 周辺環境

    クイーンズ伊勢丹 (徒歩12分)

  • 周辺環境

    十条銀座商店街 (徒歩14分)

  • 周辺環境

    帝京大学医学部 (徒歩9分)

  • 周辺環境

    区立東板橋図書館 (徒歩6分)

  • 周辺環境

    板橋こども動物園 (徒歩9分)

  • 周辺環境

    東板橋公園 (徒歩7分)

  • 周辺環境

    石神井川緑道 (徒歩1分)

  • バウス加賀 現地案内図

  • バウス加賀 アクセス図

  • バウス加賀 外観

    外観完成予想CG(※1)

  • バウス加賀 その他

    エントランス完成予想CG

  • バウス加賀 その他

    ロケーション距離圏図

  • バウス加賀 その他

    外観完成予想CG

  • バウス加賀 コンセプト

    心から安らげる自然と日々の利便性を、バランス良く享受できるアクセス性を確保。 最寄り駅まで徒歩10分※、大手町直通15分の「都営三田線」と池袋、新宿、渋谷の三大副都心に直通の「JR埼京線」という都心直結する2路線を利用可能。 通勤・通学、プライベートもスムーズに移動できるアクセシビリティを実現します。 ※都営三田線「新板橋」駅まで徒歩10分(約800m)

  • バウス加賀 コンセプト

    池袋へ直通5分、大手町へも直通15分(※1)。2駅2路線が利用できる都心近接のロケーションに、全228邸の大規模レジデンスが誕生します。 舞台は石神井川沿い、公園に寄り添う歴史深い板橋加賀エリア。豊かな自然と落ち着いた街並みに加え、教育施設や利便施設も整う住環境が広がります。かつてこの地に加賀藩下屋敷が構えられた背景もあり、今もなお趣ある景観と静穏な空気が息づいています。 平均専有面積は約73m2と、ゆとりある住空間を確保。最上階には限定3邸のペントハウスもご用意し、開放感と特別感を兼ね備えたプランをラインアップ。都市の利便性と豊かさを両立する、新たな邸宅ステージがここに始まります。

  • バウス加賀 コンセプト

    現地周辺の板橋加賀エリアは、景観形成重点地区に指定されており、豊かな歴史と自然の息づく閑静な街並みが保たれています。 また、その良好な住環境をもとに、充実した教育環境が育まれ、子育てに優しい文教の趣漂うエリアとしても成熟しています。

  • バウス加賀 共用部

    加賀の伝統を感じさせる秀麗な迎賓の設えで不変の美を宿すエントランス。桜や石積み、格子状の窓など、加賀の伝統を感じさせる優雅な趣のエントランスを創出。

  • バウス加賀 共用部

    加賀藩下屋敷の縮景をデザインし回廊式庭園をモチーフとした趣深いランドプラン。加賀藩の歴史や文化を継承し、約5,800m2のゆとりに満ちた敷地内に水流や石垣、四季、加賀友禅、光の5つをテーマにランドプランを計画。

  • バウス加賀 共用部

    かつてこの地にあった回遊式庭園の一部を思わせるような佇まい。心地よい水面の揺らぎと瑞々しい緑の潤い。石垣をイメージした自然石積みの質感が、迎賓の情趣と安らぎを静かに醸し、住まう方を優しく包みます。

  • バウス加賀 共用部

    エントランスの扉の先に広がる、加賀の伝統美を宿した「エントランスホール」。行灯を思わせる光が心地よいレセプションカウンター、加賀友禅の技法や意匠を活かしたアートが印象的で、かけがえのない迎賓の時を演出します。

  • バウス加賀 共用部

    加賀友禅アートを設えた落ち着いた空間でゆったりと寛ぎながら知識を深める心地良い「ブックラウンジ」磨りガラスの建具から柔らかな光が差し込む穏やかな知の空間で、ゆったりとソファーに寛ぎながら読書を楽しむことができます。

  • バウス加賀 共用部

    ウォーターガーデンを臨みながら思い思いにくつろげる、3つの空間からなる開放的な集会室。お子様がのびのびと元気に遊べる「キッズスペース」。仕事や趣味の時間を豊かに叶える「マルチスペース」。心地よい安らぎに迎えられる「オーナーズラウンジ」。

  • バウス加賀 専有部

  • バウス加賀 専有部

  • バウス加賀 専有部

  • バウス加賀 専有部

  • バウス加賀 専有部

  • バウス加賀 専有部

  • バウス加賀 設備

    ディスポーザー

  • バウス加賀 設備

    浄水器一体型水栓

  • バウス加賀 設備

    天板:天然御影石

  • バウス加賀 設備

    スライドオープン食器洗い乾燥機

  • バウス加賀 設備

    チャイルドミラー

  • バウス加賀 設備

    タオル掛け

  • バウス加賀 設備

    TES温水式浴室暖房乾燥機

  • バウス加賀 設備

    ゆるリラ浴槽&魔法びん浴槽

  • バウス加賀 設備

    スティックリモコン

  • バウス加賀 設備

    タンクレストイレ

  • バウス加賀 設備

    手洗いカウンター

  • バウス加賀 設備

    TESガス温水床暖房

  • バウス加賀 設備

    玄関通風窓

  • バウス加賀 設備

    宅配ボックス

  • バウス加賀 設備

    二重床・二重天井構造

  • バウス加賀 設備

    複層ガラス(全窓)

  • バウス加賀 設備

    梁内蔵型戸境壁

  • バウス加賀 設備

    東京都マンション環境性能表示

  • 周辺環境

    仲宿商店街 (徒歩9分)

  • 周辺環境

    クイーンズ伊勢丹 (徒歩12分)

  • 周辺環境

    十条銀座商店街 (徒歩14分)

  • 周辺環境

    帝京大学医学部 (徒歩9分)

  • 周辺環境

    区立東板橋図書館 (徒歩6分)

  • 周辺環境

    板橋こども動物園 (徒歩9分)

  • 周辺環境

    東板橋公園 (徒歩7分)

  • 周辺環境

    石神井川緑道 (徒歩1分)

  • バウス加賀 現地案内図

  • バウス加賀 アクセス図

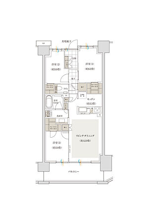
  • バウス加賀 間取り B5

    B5

    間取り
    2LDK+S+2WIC+FC+2N
    専有面積
    76.46㎡
    バルコニー
    面積
    12.60㎡
    その他面積
    -
    所在階
    -
    向き
    -
    備考
    -
  • バウス加賀 間取り B7’

    B7’

    間取り
    2LDK+S+WIC+SIC
    専有面積
    81.75㎡
    バルコニー
    面積
    4.86㎡
    その他面積
    サービスバルコニー/6.08㎡
    所在階
    2~9階
    向き
    -
    備考
    -
  • バウス加賀 間取り C5

    C5

    間取り
    2LDK+WIC+SIC
    専有面積
    59.49㎡
    バルコニー
    面積
    10.20㎡
    その他面積
    -
    所在階
    -
    向き
    -
    備考
    -
  • バウス加賀 間取り B4

    B4

    間取り
    3LDK+N+3WIC
    専有面積
    72.99㎡
    バルコニー
    面積
    12.00㎡
    その他面積
    -
    所在階
    -
    向き
    -
    備考
    -
  • バウス加賀 間取り B7

    B7

    間取り
    3LDK+WIC+SIC
    専有面積
    81.75㎡
    バルコニー
    面積
    4.86㎡
    その他面積
    サービスバルコニー/6.08㎡
    所在階
    10階
    向き
    -
    備考
    -
  • バウス加賀 間取り C6

    C6

    間取り
    3LDK+WIC
    専有面積
    68.62㎡
    バルコニー
    面積
    11.80㎡
    その他面積
    -
    所在階
    -
    向き
    -
    備考
    -
  • バウス加賀 間取り B5m

    B5m

    間取り
    4LDK+3WIC+4N
    専有面積
    127.92㎡
    バルコニー
    面積
    20.49㎡
    その他面積
    ルーフバルコニー面積/55.66㎡
    ※専有面積/76.46㎡(上階)、51.45㎡(下階)
    ※バルコニー面積/12.60㎡(上階)、7.89㎡(下階)
    所在階
    -
    向き
    -
    備考
    -
  • バウス加賀 間取り B5

    B5

    間取り
    2LDK+S+2WIC+FC+2N
    専有面積
    76.46㎡
    バルコニー
    面積
    12.60㎡
    その他面積
    -
    所在階
    -
    向き
    -
    備考
    -
  • バウス加賀 間取り B7’

    B7’

    間取り
    2LDK+S+WIC+SIC
    専有面積
    81.75㎡
    バルコニー
    面積
    4.86㎡
    その他面積
    サービスバルコニー/6.08㎡
    所在階
    2~9階
    向き
    -
    備考
    -
  • バウス加賀 間取り C5

    C5

    間取り
    2LDK+WIC+SIC
    専有面積
    59.49㎡
    バルコニー
    面積
    10.20㎡
    その他面積
    -
    所在階
    -
    向き
    -
    備考
    -
  • バウス加賀 間取り B4

    B4

    間取り
    3LDK+N+3WIC
    専有面積
    72.99㎡
    バルコニー
    面積
    12.00㎡
    その他面積
    -
    所在階
    -
    向き
    -
    備考
    -
  • バウス加賀 間取り B7

    B7

    間取り
    3LDK+WIC+SIC
    専有面積
    81.75㎡
    バルコニー
    面積
    4.86㎡
    その他面積
    サービスバルコニー/6.08㎡
    所在階
    10階
    向き
    -
    備考
    -
  • バウス加賀 間取り C6

    C6

    間取り
    3LDK+WIC
    専有面積
    68.62㎡
    バルコニー
    面積
    11.80㎡
    その他面積
    -
    所在階
    -
    向き
    -
    備考
    -
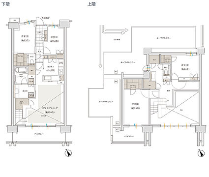
  • バウス加賀 間取り B5m

    B5m

    間取り
    4LDK+3WIC+4N
    専有面積
    127.92㎡
    バルコニー
    面積
    20.49㎡
    その他面積
    ルーフバルコニー面積/55.66㎡
    ※専有面積/76.46㎡(上階)、51.45㎡(下階)
    ※バルコニー面積/12.60㎡(上階)、7.89㎡(下階)
    所在階
    -
    向き
    -
    備考
    -

オンライン相談とは

モデルルームや現地に行くことなく、自宅からビデオ通話で不動産会社スタッフと物件の相談をすることができます。
  1. 不動産会社へ問合せ

    「オンライン相談」ボタンまたは「見学予約」ボタンを押してフォーム内の「オンライン相談」を選択し送信します。

  2. 不動産会社と日程・接続方法を調整

    不動産会社から連絡が来たらオンライン相談の日時を調整して、予約完了。

  3. 相談方法がメールで届く

    メールにてオンライン相談の利用方法が届きますので、ご確認ください。

  4. 指定場所にアクセス

    当日、予約時刻になったら指定のビデオ通話につなぎ、ご相談ください。

利用時の注意事項
  • ビデオ通話については各不動産会社指定のものとなります。
  • ビデオ通話利用時には通信が発生します。従量課金制通信サービスや通信料に上限があるネット回線・プランを利用する場合は、通信量に注意してください。
  • 通信速度やアプリの設定によってはビデオ通話の画質が低下することがあります。安定した画質で利用するためにも、Wi-Fi環境下での利用を推奨します。
  • ご利用のビデオ通話アプリによっては、対象のOSやブラウザに制限がある場合があります。詳しくはお問合せ先不動産会社にご確認ください。

閉じる

条件を削除すると新着お知らせメールの
配信が停止されますがよろしいですか?