このページは物件の広告情報ではありません。
過去にLIFULL HOME'Sへ掲載された不動産情報と提携先の地図情報を元に生成した参考情報です。また、一般から投稿された情報など主観的な情報も含みます。
情報更新日: 2025/12/01
アルファステイツ愛宕山II
スポンサーリンク
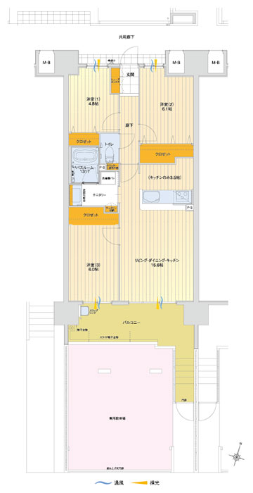
アルファステイツ愛宕山IIの建物情報
物件概要
| 物件種別 | マンション |
|---|---|
| 築年月(築年数) | 2016年1月 (築10年) |
| 建物構造 | 鉄筋コンクリート造 地上14階建て |
| 総戸数/総区画数 | 97戸 |
| 敷地全体面積 | 4,852.83m2(確認申請時) |
| 用途地域 | 第一種中高層住居専用 |
| 地目 | 宅地 |
| 土地権利 | 所有権 |
| 建築確認番号 | 第ERI14034755号(平成26年8月27日付) |
| 施工会社 | 株式会社岸之上工務店 |
| 売主 | 穴吹興産株式会社 |
| 販売会社 | 穴吹興産株式会社(売主) |
設備・条件
- 追い焚き
- システムキッチン
- オートロック
- 防犯カメラ
- エレベーター
- ペット用施設
- 駐車場完備
- 南向き
- スーパー800m以内
- コンビニ400m以内
※最新の状態と異なる場合があります
売りたい不動産をお持ちの方へ
このエリアの所有不動産を査定する
売却査定手続きの流れ、費用相場や注意点など不動産売却について詳しく知りたい方はLIFULL HOME'S 不動産査定へ
アルファステイツ愛宕山IIの周辺施設
-
買い物
日用品 -
- 毎日屋あたご店
- ローソン 高知秦南町1丁目店
- イオンスタイル高知
- ツルハドラッグ高知和泉店
- 買い物
大型店 -
- CORNERS SPORTSAUTHORITY高知
- ライトオン イオンモール高知店
- ユニクロ イオンモール高知店
- 無印良品 イオンモール高知店
- グルメ
-
- コメダ珈琲店イオンモール高知店
- スターバックスコーヒーイオンモール高知2階店
- スターバックスコーヒーイオンモール高知1階店
- 31アイスクリーム イオンモール高知店
- 娯楽施設
-
- 吉田公園
- TOHOシネマズ高知
- プラサカプコン 高知店
- 落合公園
- 役所
公共施設 -
- イオンモール高知内郵便局
- 高知秦泉寺郵便局
- 高知愛宕郵便局
- 高知中央郵便局
- 医療
-
- 悠仁会高橋病院
- 高知赤十字病院
- 木村病院
- 医療法人須藤会土佐病院
- 保育施設
-
- まるばし保育園
- あたご幼稚園
- 高知市秦中央保育園
- 高知聖園マリア園
- 学校
-
- 高知市立秦小学校
- 高知市立愛宕中学校
- 高知市立江ノ口小学校
- 高知市立一ツ橋小学校
アルファステイツ愛宕山II周辺の物件情報
周辺の問合せ可能な物件
高知県高知市の問合せ可能な物件のうち、この物件の周辺にあるものから表示しています
賃貸
-
募集中
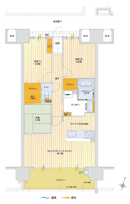
- アルファステイツ愛宕山II
- 14.9万円
- JR土讃線 高知駅 徒歩17分
- 高知県高知市愛宕山南町4-3
- 89.73m² / 2SLDK
-
募集中
- レオパレスATAGO
- 4.9万円
- JR土讃線 高知駅 徒歩17分
- 高知県高知市愛宕町4丁目
- 19.87m² / 1K
-
募集中
- JR土讃線 高知駅 徒歩16分
- 4万円
- JR土讃線 高知駅 徒歩16分
- 高知県高知市愛宕山南町5-8
- 37.0m² / 2DK
-
募集中
- コーポラス三穂
- 5.5万円
- JR土讃線 高知駅 徒歩16分
- 高知県高知市愛宕町4丁目9-1
- 39.96m² / 1LDK
-
募集中
- Tハウス
- 3.5万円
- JR土讃線 高知駅 徒歩17分
- 高知県高知市愛宕町4丁目13-5
- 31.47m² / 2K
-
募集中
- ジョージプレイス
- 5.2万円
- JR土讃線 高知駅 徒歩16分
- 高知県高知市愛宕山南町11-16
- 34.62m² / 1K
-
募集中
- コーポながの
- 3.9万円
- JR土讃線 入明駅 徒歩17分
- 高知県高知市愛宕町4丁目
- 22.75m² / 1K
-
募集中
- ジョージプレイス
- 5.2万円
- JR土讃線 高知駅 徒歩15分
- 高知県高知市愛宕山南町11-16
- 34.62m² / 1K
-
募集中
- ウィルモアK
- 5.6万円
- バス 愛宕小橋下車 徒歩3分
- 高知県高知市愛宕山南町6-3
- 32.09m² / ワンルーム
-
募集中
- JR土讃線 高知駅 徒歩14分
- 3.5万円
- JR土讃線 高知駅 徒歩14分
- 高知県高知市愛宕山南町1-6
- 22.0m² / 1DK
新築マンション
※完成後1年以上経過した未入居の物件が含まれている場合があります
-
売出し中
- とさでん交通市内線「県庁前」駅 徒歩2分
- 3,140万円~6,690万円
- とさでん交通市内線「県庁前」駅 徒歩2分
- 高知県高知市本町5丁目116番(地番)
- 90.05m² / 2LDK+S、3LDK
-
売出し中
- とさでん交通市内線「堀詰」駅 徒歩2分
- 2,880万円~5,880万円
- とさでん交通市内線「堀詰」駅 徒歩2分
- 高知県高知市本町一丁目108番1
- 93.66m² / 2LDK+WIC~3LDK+4WIC+FC+P+SIC
-
売出し中
- とさでん交通「グランド通」バス停 徒歩2分 西方面行) 徒歩2分/(東方面行) 徒歩4分
- 未定
- とさでん交通「グランド通」バス停 徒歩2分 西方面行) 徒歩2分/(東方面行) 徒歩4分
- 高知県高知市鷹匠町二丁目46番2
- 83.81m² / 2LDK、3LDK
中古マンション
-
売出し中
- \アルファステイツ昭和町/
- 1980万円
- JR土讃線 高知駅 徒歩10分
- 高知県高知市昭和町
- 74.91m² / 3LDK
-
売出し中
- ビ・ウェル秦
- 2680万円
- バス 中秦泉寺下車 徒歩2分
- 高知県高知市愛宕山
- 88.04m² / 4LDK
-
売出し中
- 高知市比島町
- 1680万円
- バス 比島アパート前停下車 徒歩5分
- 高知県高知市比島町
- 73.91m² / 3LDK
-
売出し中
- \ダイアパレス大川筋/
- 1980万円
- JR土讃線 高知駅 徒歩10分
- 高知県高知市大川筋1丁目
- 75.44m² / 3LDK
-
売出し中
- クレアホームズ高知駅前
- 3480万円
- JR土讃線 高知駅 徒歩4分
- 高知県高知市北本町2丁目
- 70.86m² / 3LDK
-
売出し中
- ライオンズマンション高知 804
- 1590万円
- JR土讃線 高知駅 徒歩5分
- 高知県高知市北本町2丁目2番29
- 83.49m² / 3LDK
-
売出し中
- ダイアパレスヌーベルヴュー
- 1280万円
- バス 比島アパート前下車 徒歩5分
- 高知県高知市比島町2丁目3-31
- 57.54m² / 3LDK
-
売出し中
- ダイアパレス高知ヌーベルヴュー
- 1280万円
- バス 比島アパート前下車 徒歩4分
- 高知県高知市比島町2丁目
- 57.54m² / 3LDK
一戸建て
-
売出し中
- 高知市愛宕山南町 一戸建
- 6650万円
- バス 愛宕小橋下車 徒歩3分
- 高知県高知市愛宕山南町
- 106.86m² / 3LDK
-
売出し中
- 高知市愛宕町 一戸建
- 3598万円
- バス 愛宕小橋下車 徒歩3分
- 高知県高知市愛宕町4丁目
- 103.02m² / 4LDK
-
売出し中
- 高知市愛宕町 一戸建
- 3880万円
- JR土讃線 高知駅 徒歩13分
- 高知県高知市愛宕町3丁目
- 91.92m² / 3LDK
-
売出し中
- 高知市西秦泉寺 一戸建
- 650万円
- バス 愛宕山下車 徒歩2分
- 高知県高知市西秦泉寺
- 60.88m² / 4DK
-
売出し中
- 高知市愛宕町3丁目 中古住宅 売家
- 1880万円
- バス 愛宕中学校通下車 徒歩2分
- 高知県高知市愛宕町3丁目
- 105.98m² / 6K
-
売出し中
- 高知市前里・1号棟 新築住宅 売家
- 3390万円
- バス 前里下車 徒歩2分
- 高知県高知市前里
- 108.54m² / 4LDK
-
売出し中
- 高知市前里 一戸建
- 3290万円
- JR土讃線 高知駅 徒歩20分
- 高知県高知市前里35
- 88.28m² / 3LDK
-
売出し中
- 高知市前里 一戸建
- 3390万円
- バス 前里下車 徒歩3分
- 高知県高知市前里
- 98.82m² / 4LDK
-
売出し中
- 高知市前里 一戸建
- 3290万円
- バス 前里下車 徒歩4分
- 高知県高知市前里
- 88.28m² / 3LDK
-
売出し中
- 高知市前里 一戸建
- 3390万円
- JR土讃線 高知駅 徒歩20分
- 高知県高知市前里
- 98.82m² / 4LDK
注文住宅
※表示価格は延べ床面積約132m²の場合の建物価格の参考値です
-
資料請求受付中
- 2800万円〜
- 株式会社アイ工務店 愛媛支店
- The Concept Book
-
資料請求受付中
- 2800万円〜
- ミサワホーム株式会社
- 【MISAWA】ミサワホーム代表カタログ3冊セット(HOME'S限定)
-
資料請求受付中
- 1520万円〜
- 株式会社秀光ビルド 高知店
- 秀光ビルド 商品ラインナップ
-
資料請求受付中
- 3000万円〜
- セキスイハイム
- 【セキスイハイム|平屋】ザ・デザイナーズハイムD1
-
資料請求受付中
- -
- 積水ハウス
- BRAND BOOK
-
資料請求受付中
- 2420万円〜
- 株式会社建匠
- 建匠の家づくり
-
資料請求受付中
- 3200万円〜
- ダイワハウス
- 【ダイワハウス】 xevoΣ<ジーヴォシグマ> ~天井高2m72cmの高さというゆとり空間~
-
資料請求受付中
- 1868万円〜
- タマホーム株式会社
- 大安心の家シリーズ
エリア・駅で絞り込んで探す
高知県のアルファステイツが含まれるマンション
周辺の建物情報
物件の種類から探す
高知市で募集中の物件のみを検索できます
掲載情報に誤りや問題がある場合
LIFULL HOME'Sは「不動産会社」ではなく「情報掲載サイト」です
- ※管理会社の情報はLIFULL HOME'Sでは保持していないためお答えできません。お問合せはお控えください
- ※最新の募集状況は掲載中の不動産会社があれば、不動産会社へ直接お問合せください
掲載情報の訂正依頼 専用ダイヤル
0120-987-243
- 専用ダイヤル受付時間:10:00〜18:00
- ※土日・祝日、臨時休業日は除く
不動産データのご利用について
不動産事業におけるDX、サービスの改善、新規事業開発等をご検討中の方へ不動産データの活用をご提案します。LIFULL HOME'Sで集約した不動産情報や外部データは、不動産事業DX、不正決済防止、ローン審査、事業開発、研究等さまざまな事業でご活用いただいています。詳しくは以下よりご確認ください。
不動産アーカイブご利用アンケートにご協力ください
不動産アーカイブの掲載情報は、LIFULL HOME'S掲載の不動産情報および提携先の不動産情報を統計情報として集積したものであり、その存在や信憑性を保証するものではありません。