このページは物件の広告情報ではありません。
過去にLIFULL HOME'Sへ掲載された不動産情報と提携先の地図情報を元に生成した参考情報です。また、一般から投稿された情報など主観的な情報も含みます。
情報更新日: 2026/04/10
ザ・パークハウス 六甲篠原
スポンサーリンク
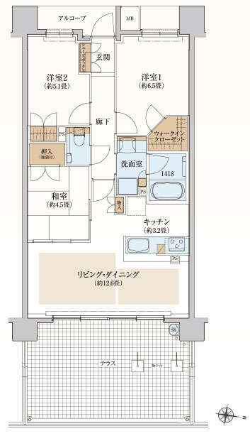
ザ・パークハウス 六甲篠原の建物情報
物件概要
| 物件種別 | マンション |
|---|---|
| 築年月(築年数) | 2014年2月 (築13年) |
| 建物構造 | 鉄筋コンクリート造地上9階建1棟 |
| 総戸数/総区画数 | 73戸 |
| 敷地全体面積 | 2823.88m2 |
| 管理人 | 日勤 |
| 用途地域 | 第一種住居 |
| 地目 | 宅地 |
| 土地権利 | 所有権 |
| 売主 | 三菱地所レジデンス株式会社 |
| 販売会社 | 三菱地所レジデンス株式会社(売主) |
設備・条件
- 追い焚き
- システムキッチン
- 4LDK以上
- オートロック
- 公園400m以内
※最新の状態と異なる場合があります
売りたい不動産をお持ちの方へ
このエリアの所有不動産を査定する
売却査定手続きの流れ、費用相場や注意点など不動産売却について詳しく知りたい方はLIFULL HOME'S 不動産査定へ
ザ・パークハウス 六甲篠原の周辺施設
-
買い物
日用品 -
- Can★Doグルメシティ灘店
- グルメシティ 灘店
- セブンイレブン 神戸篠原南町4丁目店
- プロマート水道筋店
- 買い物
大型店 -
- ホームセンターコーナン 灘大石川店
- グルメ
-
- 大阪王将王子公園店
- サイゼリヤ 阪急六甲駅北口店
- 無添くら寿司 灘南通店
- 31アイスクリーム 六甲店
- 娯楽施設
-
- 篠原公園
- 都賀川公園
- 青谷川公園
- 役所
公共施設 -
- 灘警察署
- 神戸将軍郵便局
- 神戸篠原郵便局
- 神戸国玉郵便局
- 医療
-
- 医療法人愛和会金沢病院
- 中井病院
- 医療法人寛仁会吉田アーデント病院
- 医療法人財団神戸海星病院
- 保育施設
-
- 光愛児園
- 幼保連携型認定こども園光愛児園
- 幼保連携型認定こども園光愛児園sun分園
- 光愛児園SUN分園
- 学校
-
- 神戸市立上野中学校
- 神戸市立摩耶小学校
- 神戸市立灘小学校
- 神戸市立六甲小学校
※学区外の学校が含まれる場合があります。実際の学区は必ず各自治体へご確認ください。
ザ・パークハウス 六甲篠原周辺の物件情報
周辺の問合せ可能な物件
兵庫県神戸市灘区の問合せ可能な物件のうち、この物件の周辺にあるものから表示しています
賃貸
-
募集中
- ハイツ西六甲
- 5.6万円
- 阪急神戸本線 六甲駅 徒歩10分
- 兵庫県神戸市灘区篠原南町5丁目
- 38.0m² / 2DK
-
募集中
- ビエント六甲
- 10万円
- 阪急神戸本線 六甲駅 徒歩12分
- 兵庫県神戸市灘区篠原南町5丁目4-14
- 53.0m² / 2LDK
-
募集中
- 阪急神戸本線 六甲駅 徒歩12分
- 10万円
- 阪急神戸本線 六甲駅 徒歩12分
- 兵庫県神戸市灘区篠原南町5丁目
- 53.0m² / 2LDK
-
募集中
- ベラ フォレスタ
- 10.5万円
- 阪急神戸本線 六甲駅 徒歩10分
- 兵庫県神戸市灘区篠原中町5丁目
- 40.25m² / 1LDK
-
募集中
- 阪急神戸本線 王子公園駅 徒歩12分
- 4.2万円
- 阪急神戸本線 王子公園駅 徒歩12分
- 兵庫県神戸市灘区篠原南町7丁目
- 20.8m² / 1K
-
募集中
- 篠原リッチライフ壱番館
- 6.8万円
- 阪急神戸本線 六甲駅 徒歩8分
- 兵庫県神戸市灘区篠原中町5丁目5番37号
- 37.83m² / 1LDK
-
募集中
- 阪急神戸本線 六甲駅 徒歩12分
- 6.2万円
- 阪急神戸本線 六甲駅 徒歩12分
- 兵庫県神戸市灘区篠原中町6丁目
- 32.0m² / 1DK
-
募集中
- 三景マンション
- 4.2万円
- JR東海道・山陽本線 摩耶駅 徒歩13分
- 兵庫県神戸市灘区篠原南町7丁目5-19
- 20.8m² / ワンルーム
-
募集中
- 第1大森マンション
- 6.2万円
- 阪急神戸本線 六甲駅 徒歩10分
- 兵庫県神戸市灘区篠原中町6丁目
- 32.0m² / 1LDK
-
募集中
- コーポ岡久
- 6万円
- 阪急神戸本線 六甲駅 徒歩11分
- 兵庫県神戸市灘区篠原南町5丁目
- 29.0m² / 1DK
新築マンション
※完成後1年以上経過した未入居の物件が含まれている場合があります
-
売出し中
- 阪急神戸本線「六甲」駅 徒歩12分
- 未定
- 阪急神戸本線「六甲」駅 徒歩12分
- 兵庫県神戸市灘区篠原南町6丁目11番1の一部(登記簿)、神戸市灘区篠原南町6丁目9番以下未定(住居表示実施地区)
- 95.1m² / 1LDK+S~3LDK+N
-
売出し中
- 阪神本線「岩屋」駅 徒歩3分
- 6,480万円~9,780万円
- 阪神本線「岩屋」駅 徒歩3分
- 兵庫県神戸市灘区岩屋北町3丁目3番5号
- 115.35m² / 3LDK・3LDK+畳コーナー・3LDK+WIC
-
売出し中
- JR東海道・山陽本線「灘」駅 徒歩4分
- 未定
- JR東海道・山陽本線「灘」駅 徒歩4分
- 兵庫県神戸市灘区原田通3丁目2番10、2番11(登記簿)、神戸市灘区原田通3丁目2番以下未定(住居表示実施地区)
- 70.19m² / 2LDK ・ 3LDK
中古マンション
-
売出し中
- ワコーレ六甲
- 2080万円
- 阪急神戸本線 六甲駅 徒歩9分
- 兵庫県神戸市灘区篠原南町4丁目
- 49.41m² / 2LDK
-
売出し中
- ワコーレパークブルー王子公園 中古マンション
- 4280万円
- JR東海道・山陽本線 摩耶駅 徒歩10分
- 兵庫県神戸市灘区倉石通1丁目
- 71.7m² / 3LDK
-
売出し中
- シエリア王子公園
- 5880万円
- 阪急神戸本線 王子公園駅 徒歩9分
- 兵庫県神戸市灘区水道筋2丁目
- 72.22m² / 2SLDK
-
売出し中
- 阪急神戸本線 王子公園駅 徒歩8分
- 5980万円
- 阪急神戸本線 王子公園駅 徒歩8分
- 兵庫県神戸市灘区水道筋2丁目
- 70.87m² / 3LDK
-
売出し中
- ランズ王子公園 中古マンション
- 6880万円
- JR東海道・山陽本線 摩耶駅 徒歩8分
- 兵庫県神戸市灘区水道筋2丁目
- 80.92m² / 3SLDK
-
売出し中
- モアライフ灘
- 2380万円
- 阪急神戸本線 王子公園駅 徒歩12分
- 兵庫県神戸市灘区畑原通2丁目
- 59.22m² / 3DK
-
売出し中
- 六甲ガーデンズ 中古マンション
- 2700万円
- 阪急神戸本線 六甲駅 徒歩9分
- 兵庫県神戸市灘区篠原中町5丁目
- 72.03m² / 2LDK
-
売出し中
- 六甲篠原パークマンション 中古マンション
- 5480万円
- 阪急神戸本線 六甲駅 徒歩3分
- 兵庫県神戸市灘区篠原南町1丁目
- 142.96m² / 5LDK
-
売出し中
- グランスイート六甲篠原本町
- 6580万円
- 阪急神戸本線 六甲駅 徒歩12分
- 兵庫県神戸市灘区篠原本町4丁目
- 75.91m² / 3LDK
一戸建て
-
売出し中
- 神戸市灘区篠原南町5丁目新築一戸建て
- 5380万円
- 阪急神戸本線 六甲駅 徒歩11分
- 兵庫県神戸市灘区篠原南町5丁目
- 92.5m² / 3LDK
-
売出し中
- 神戸市灘区篠原南町5丁目 一戸建て
- 5380万円
- 阪急神戸本線 六甲駅 徒歩11分
- 兵庫県神戸市灘区篠原南町5丁目4
- 92.5m² / 2SLDK
-
売出し中
- 神戸市灘区篠原南町4丁目戸建 全2区画
- 5980万円
- 阪急神戸本線 六甲駅 徒歩9分
- 兵庫県神戸市灘区篠原南町4丁目
- 102.13m² / 4LDK
-
売出し中
- 神戸市灘区篠原南町4丁目新築戸建
- 5980万円
- 阪急神戸本線 六甲駅 徒歩9分
- 兵庫県神戸市灘区篠原南町4丁目5-6
- 102.13m² / 4LDK
-
売出し中
- 阪急神戸本線 六甲駅 徒歩11分
- 5980万円
- 阪急神戸本線 六甲駅 徒歩11分
- 兵庫県神戸市灘区篠原中町4丁目
- 116.85m² / 1LDK
-
売出し中
- 阪急神戸本線 六甲駅 徒歩11分
- 5780万円
- 阪急神戸本線 六甲駅 徒歩11分
- 兵庫県神戸市灘区篠原中町4丁目
- 114.72m² / 4LDK
-
売出し中
- 篠原南町
- 2300万円
- 阪急神戸本線 六甲駅 徒歩9分
- 兵庫県神戸市灘区篠原南町4丁目
- 92.88m² / 4LDK
-
売出し中
- 神戸市灘区畑原通1丁目 中古一戸建て
- 5398万円
- 阪急神戸本線 六甲駅 徒歩15分
- 兵庫県神戸市灘区畑原通1丁目
- 145.7m² / 5SLDK
-
売出し中
- 神戸市灘区畑原通1丁目中古戸建
- 5398万円
- 阪急神戸本線 六甲駅 徒歩15分
- 兵庫県神戸市灘区畑原通1丁目
- 145.7m² / 4SLDK
-
売出し中
- 神戸市灘区岸地通1丁目 中古一戸建て
- 2780万円
- JR東海道・山陽本線 摩耶駅 徒歩9分
- 兵庫県神戸市灘区岸地通1丁目
- 51.84m² / 3DK
注文住宅
※表示価格は延べ床面積約132m²の場合の建物価格の参考値です
-
資料請求受付中
- 2000万円〜
- 一条工務店
- 【一条工務店】 建築実例集3冊セット(HOME’S限定)
-
資料請求受付中
- 2800万円〜
- ミサワホーム株式会社
- 【MISAWA】ミサワホーム代表カタログ3冊セット(HOME'S限定)
-
資料請求受付中
- 3400万円〜
- へーベルハウス
- 【ヘーベルハウス】:ヘーベルハウス総合カタログ
-
資料請求受付中
- 1868万円〜
- タマホーム株式会社
- 大安心の家シリーズ
-
資料請求受付中
- -
- 積水ハウス
- BRAND BOOK
-
資料請求受付中
- 3000万円〜
- トヨタホーム
- FIRST CLASS LIVING
-
資料請求受付中
- 3200万円〜
- 大和ハウス
- 【大和ハウス】天井高2m72cmの高さというゆとり空間 xevoΣ<ジーヴォシグマ>
-
資料請求受付中
- 3000万円〜
- セキスイハイム
- 【セキスイハイム|平屋】ザ・デザイナーズハイムD1
エリア・駅で絞り込んで探す
兵庫県のザ・パークハウスが含まれるマンション
物件の種類から探す
神戸市灘区で募集中の物件のみを検索できます
掲載情報に誤りや問題がある場合
LIFULL HOME'Sは「不動産会社」ではなく「情報掲載サイト」です
- ※管理会社の情報はLIFULL HOME'Sでは保持していないためお答えできません。お問合せはお控えください
- ※最新の募集状況は掲載中の不動産会社があれば、不動産会社へ直接お問合せください
掲載情報の訂正依頼 専用ダイヤル
0120-987-243
- 専用ダイヤル受付時間:10:00〜18:00
- ※土日・祝日、臨時休業日は除く
不動産データのご利用について
不動産事業におけるDX、サービスの改善、新規事業開発等をご検討中の方へ不動産データの活用をご提案します。LIFULL HOME'Sで集約した不動産情報や外部データは、不動産事業DX、不正決済防止、ローン審査、事業開発、研究等さまざまな事業でご活用いただいています。詳しくは以下よりご確認ください。
不動産アーカイブご利用アンケートにご協力ください
不動産アーカイブの掲載情報は、LIFULL HOME'S掲載の不動産情報および提携先の不動産情報を統計情報として集積したものであり、その存在や信憑性を保証するものではありません。