このページは物件の広告情報ではありません。
過去にLIFULL HOME'Sへ掲載された不動産情報と提携先の地図情報を元に生成した参考情報です。また、一般から投稿された情報など主観的な情報も含みます。
情報更新日: 2026/04/07
リムテラス狛江
スポンサーリンク
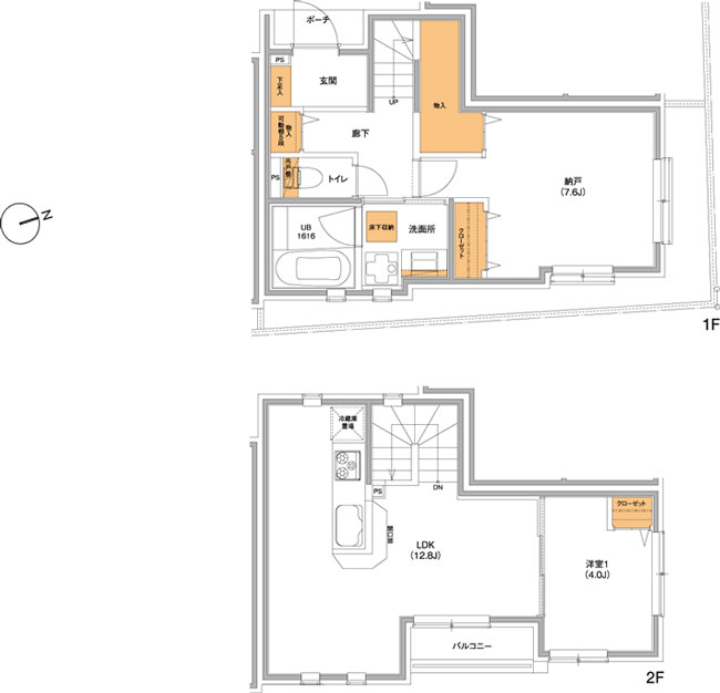
リムテラス狛江の建物情報
物件概要
| 物件種別 | マンション |
|---|---|
| 築年月(築年数) | 2015年11月 (築11年) |
| 建物構造 | 薄板軽量形鋼造3階建 |
| 総戸数/総区画数 | 6戸 |
| 敷地全体面積 | 316.40m2 |
| 管理形態 | 一部委託 |
| 用途地域 | 第一種低層住宅専用、第一種住居 |
| 土地権利 | 所有権 |
| 建築確認番号 | 26多建建一建第0709号(平成27年4月23日) |
| 施工会社 | 株式会社ガイアフィールド |
| 売主 | 株式会社エルプラス |
| 販売会社 | 日本中央不動産レジデンシャル株式会社(媒介) |
設備・条件
- 追い焚き
- 浴室乾燥機
- コンロ三口以上
- システムキッチン
- 食器洗い乾燥機
- 浄水器・活水器
- 床暖房
- ウォークインクローゼット
- 複層ガラス採用(二重サッシ・防犯サッシ等)
- オートロック
- セキュリティ充実
- 外断熱
- 即入居可
- 子育てに優しい環境
- スーパー800m以内
- コンビニ400m以内
- 小学校800m以内
- 公園400m以内
※最新の状態と異なる場合があります
売りたい不動産をお持ちの方へ
このエリアの所有不動産を査定する
売却査定手続きの流れ、費用相場や注意点など不動産売却について詳しく知りたい方はLIFULL HOME'S 不動産査定へ
リムテラス狛江の周辺施設
-
買い物
日用品 -
- ローソン 狛江中和泉三丁目店
- ファミリーマート 狛江中和泉一丁目店
- ウェルパーク薬局狛江松原店
- セブンイレブン 狛江駅北店
- 買い物
大型店 -
- ノジマ 小田急OX狛江店
- ハニーズ 狛江店
- ファッションセンターしまむら 小田急OX狛江店
- ECORMA1
- グルメ
-
- なか卯 狛江店
- エ・プロント狛江店
- マクドナルド 狛江マルシェ店
- ドトールコーヒーショップ狛江店
- 娯楽施設
-
- 狛江ローンテニスクラブ
- 狛江インドアテニススクール
- 元和泉市民テニスコート
- 狛江ゴルフ倶楽部
- 役所
公共施設 -
- 狛江市立中央図書館
- 狛江駅前郵便局
- 狛江市役所
- 狛江中和泉郵便局
- 保育施設
-
- いずみの森保育園
- めぐみの森保育園
- 木下の保育園元和泉
- 狛江子どもの家
- 学校
-
- 狛江市立和泉小学校
- 狛江市立狛江第三中学校
- 狛江市立狛江第一小学校
- 東京都立狛江高校
※学区外の学校が含まれる場合があります。実際の学区は必ず各自治体へご確認ください。
リムテラス狛江周辺の物件情報
周辺の問合せ可能な物件
東京都狛江市の問合せ可能な物件のうち、この物件の周辺にあるものから表示しています
賃貸
-
募集中
- ファミール弐番館
- 8.9万円
- 小田急小田原線 狛江駅 徒歩8分
- 東京都狛江市中和泉3丁目3-12
- 39.74m² / 1LDK
-
募集中
- KEN BRIGHT COURT
- 8.3万円
- 小田急小田原線 狛江駅 徒歩10分
- 東京都狛江市中和泉3丁目
- 27.0m² / 1K
-
募集中
- メイプルハイツ
- 5万円
- 小田急小田原線 狛江駅 徒歩8分
- 東京都狛江市中和泉3丁目28-9
- 21.4m² / 1K
-
募集中
- 中和泉ハイツ
- 5.5万円
- 小田急小田原線 狛江駅 徒歩11分
- 東京都狛江市中和泉3丁目24-29
- 25.0m² / 1DK
-
募集中
- ミドルハイム
- 4.7万円
- 小田急小田原線 狛江駅 徒歩5分
- 東京都狛江市中和泉1丁目21-6
- 18.0m² / 1K
-
募集中
- シルクハイツ
- 5.3万円
- 小田急小田原線 狛江駅 徒歩9分
- 東京都狛江市中和泉1丁目10-16
- 19.87m² / 1K
-
募集中
- ホープイズミ
- 6万円
- 小田急小田原線 狛江駅 徒歩6分
- 東京都狛江市元和泉2丁目14-8
- 23.1m² / 1DK
-
募集中
- 小田急小田原線 狛江駅 徒歩7分
- 2.6万円
- 小田急小田原線 狛江駅 徒歩7分
- 東京都狛江市中和泉1丁目21-10
- 13.0m² / ワンルーム
-
募集中
- サンガーデン
- 2.6万円
- 小田急小田原線 狛江駅 徒歩6分
- 東京都狛江市中和泉1丁目21-10
- 13.0m² / ワンルーム
-
募集中
- コーポリッチ
- 4.9万円
- 小田急小田原線 狛江駅 徒歩7分
- 東京都狛江市中和泉1丁目21-14
- 19.5m² / 1K
新築マンション
※完成後1年以上経過した未入居の物件が含まれている場合があります
中古マンション
-
売出し中
- ヒルズ狛江
- 7380万円
- 小田急小田原線 狛江駅 徒歩3分
- 東京都狛江市和泉本町1丁目
- 75.12m² / 3LDK
-
売出し中
- ザ・パークハウス狛江
- 8490万円
- 小田急小田原線 狛江駅 徒歩7分
- 東京都狛江市和泉本町1丁目
- 76.44m² / 3LDK
-
売出し中
- パークビュー狛江
- 4490万円
- 小田急小田原線 狛江駅 徒歩14分
- 東京都狛江市元和泉2丁目
- 72.51m² / 3LDK
-
売出し中
- クィーポ狛江
- 3799万円
- 小田急小田原線 狛江駅 徒歩8分
- 東京都狛江市和泉本町1丁目
- 62.32m² / 3LDK
-
売出し中
- 豊栄狛江マンション
- 2300万円
- 小田急小田原線 狛江駅 徒歩11分
- 東京都狛江市和泉本町1丁目12-1
- 55.13m² / 1SLDK
-
売出し中
- デュオステージ狛江5階部分
- 3720万円
- 小田急小田原線 狛江駅 徒歩7分
- 東京都狛江市岩戸北3丁目
- 33.05m² / 1DK
-
売出し中
- 狛江第2コーポラス
- 2480万円
- 小田急小田原線 狛江駅 徒歩9分
- 東京都狛江市岩戸北3丁目10-5
- 39.96m² / 1LDK
-
売出し中
- パーク・ハイム狛江
- 6599万円
- 小田急小田原線 和泉多摩川駅 徒歩2分
- 東京都狛江市東和泉3丁目
- 72.48m² / 3LDK
-
売出し中
- メゾン喜多見
- 6480万円
- 小田急小田原線 喜多見駅 徒歩6分
- 東京都狛江市岩戸北3丁目
- 80.66m² / 3LDK
一戸建て
-
売出し中
- 小田急小田原線「狛江」駅 徒歩9分
- 11290万円
- 小田急小田原線「狛江」駅 徒歩9分
- 東京都狛江市中和泉1-1759-10(地番)
- 98.4m² / 3(4)LDK ※4LDKに変更可(有償)
-
売出し中
- 狛江市元和泉2丁目戸建
- 1790万円
- 小田急小田原線 狛江駅 徒歩7分
- 東京都狛江市元和泉2丁目
- 56.6m² / 3SDK
-
売出し中
- 小田急小田原線「狛江」駅 徒歩20分
- 6290万円~6890万円
- 小田急小田原線「狛江」駅 徒歩20分
- 東京都狛江市中和泉5
- 79.69m² / 3LDK
-
売出し中
- 小田急小田原線「狛江」駅 徒歩20分
- 6290万円~6890万円
- 小田急小田原線「狛江」駅 徒歩20分
- 東京都狛江市中和泉5
- 79.69m² / 3LDK・3LDK+ロフト
-
売出し中
- 狛江市中和泉5丁目 新築戸建 C号棟
- 6790万円
- 小田急小田原線 狛江駅 徒歩23分
- 東京都狛江市中和泉5丁目
- 79.69m² / 3LDK
-
売出し中
- 狛江市中和泉5丁目 新築戸建 A号棟
- 6890万円
- 小田急小田原線 狛江駅 徒歩23分
- 東京都狛江市中和泉5丁目
- 78.66m² / 3LDK
-
売出し中
- 狛江市中和泉5丁目 新築戸建 B号棟
- 6390万円
- 小田急小田原線 狛江駅 徒歩23分
- 東京都狛江市中和泉5丁目
- 78.35m² / 3LDK
注文住宅
※表示価格は延べ床面積約132m²の場合の建物価格の参考値です
-
資料請求受付中
- -
- 積水ハウス
- BRAND BOOK
-
資料請求受付中
- 1868万円〜
- タマホーム株式会社
- 大安心の家シリーズ
-
資料請求受付中
- -
- アキュラホーム(AQ Group)
- 「超空間の家」
-
資料請求受付中
- 3000万円〜
- セキスイハイム
- 【セキスイハイム】総合カタログ(heimism)
-
資料請求受付中
- 2800万円〜
- ミサワホーム株式会社
- 【MISAWA】ミサワホーム代表カタログ3冊セット(HOME'S限定)
-
資料請求受付中
- 3400万円〜
- へーベルハウス
- 【ヘーベルハウス】:ヘーベルハウス総合カタログ
-
資料請求受付中
- 3000万円〜
- トヨタホーム
- FIRST CLASS LIVING
-
資料請求受付中
- 2000万円〜
- 一条工務店
- 【一条工務店】 建築実例集3冊セット(HOME’S限定)
エリア・駅で絞り込んで探す
周辺の建物情報
物件の種類から探す
狛江市で募集中の物件のみを検索できます
掲載情報に誤りや問題がある場合
LIFULL HOME'Sは「不動産会社」ではなく「情報掲載サイト」です
- ※管理会社の情報はLIFULL HOME'Sでは保持していないためお答えできません。お問合せはお控えください
- ※最新の募集状況は掲載中の不動産会社があれば、不動産会社へ直接お問合せください
掲載情報の訂正依頼 専用ダイヤル
0120-987-243
- 専用ダイヤル受付時間:10:00〜18:00
- ※土日・祝日、臨時休業日は除く
不動産データのご利用について
不動産事業におけるDX、サービスの改善、新規事業開発等をご検討中の方へ不動産データの活用をご提案します。LIFULL HOME'Sで集約した不動産情報や外部データは、不動産事業DX、不正決済防止、ローン審査、事業開発、研究等さまざまな事業でご活用いただいています。詳しくは以下よりご確認ください。
不動産アーカイブご利用アンケートにご協力ください
不動産アーカイブの掲載情報は、LIFULL HOME'S掲載の不動産情報および提携先の不動産情報を統計情報として集積したものであり、その存在や信憑性を保証するものではありません。