このページは物件の広告情報ではありません。
過去にLIFULL HOME'Sへ掲載された不動産情報と提携先の地図情報を元に生成した参考情報です。また、一般から投稿された情報など主観的な情報も含みます。
情報更新日: 2026/04/08
グランドヒルズ三軒茶屋 HILL TOP GARDEN
スポンサーリンク
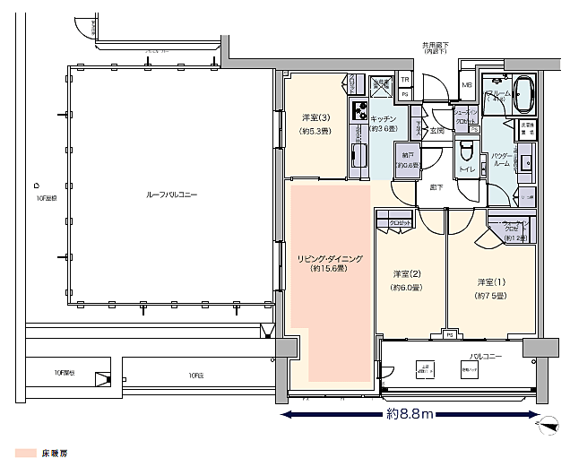
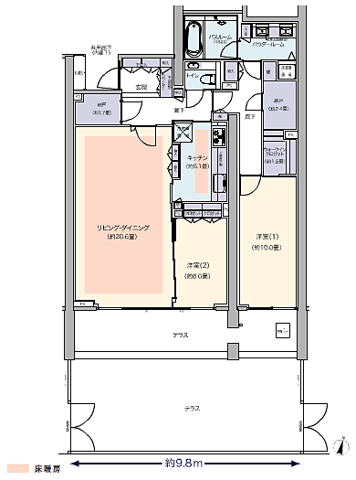
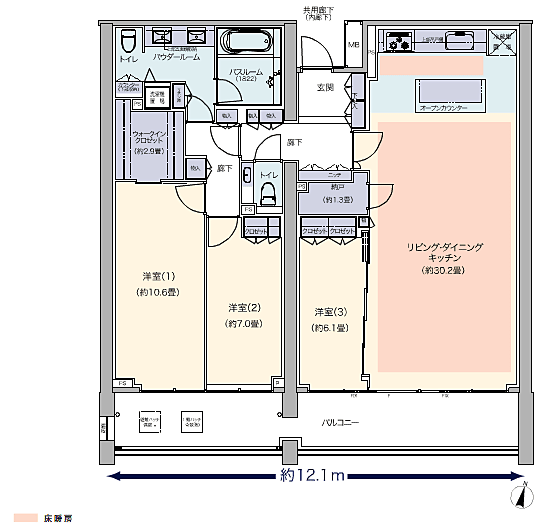
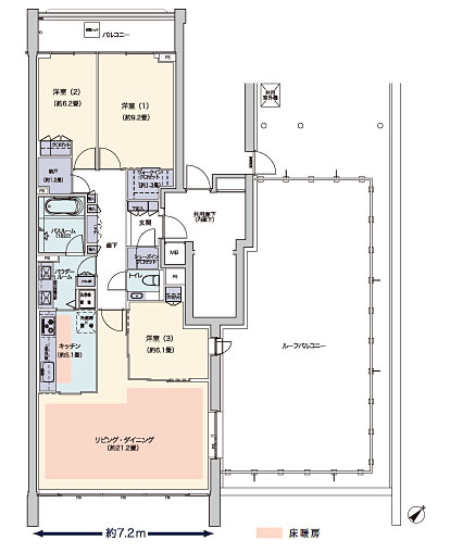
グランドヒルズ三軒茶屋 HILL TOP GARDENの建物一覧
グランドヒルズ三軒茶屋 HILL TOP GARDENの建物情報
物件概要
| 物件種別 | マンション |
|---|---|
| 築年月(築年数) | 2008年3月 (築19年) |
| 建物構造 | 鉄筋コンクリート造・地下1階地上13階建 |
| 総戸数/総区画数 | 311戸 |
| 敷地全体面積 | 14105.48平米 |
| 管理人 | 常駐 |
| 用途地域 | 第一種中高層住居専用、第一種住居 |
| 地目 | 宅地 |
| 土地権利 | 所有権 |
| 売主 | 住友不動産株式会社 |
| 販売会社 | 売主/住友不動産株式会社 |
設備・条件
- 追い焚き
- 浴室乾燥機
- システムキッチン
- 食器洗い乾燥機
- ディスポーザー
- 床暖房
- トランクルーム
- ブロードバンド
- バリアフリー
- 複層ガラス採用(二重サッシ・防犯サッシ等)
- オートロック
- 防犯カメラ
- 管理人常駐
- セキュリティ充実
- エレベーター
- ごみ出し24時間OK
- ペット用施設
- 駐車場完備
- 宅配ボックス
- コンシェルジュサービス
- 外断熱
- 住宅性能評価書
- 免震構造
- 100m2以上
- 子育てに優しい環境
- スーパー800m以内
- コンビニ400m以内
- 小学校800m以内
- 公園400m以内
- フィットネス施設(プール含む)800m以内
- 複数路線
※最新の状態と異なる場合があります
売りたい不動産をお持ちの方へ
このエリアの所有不動産を査定する
売却査定手続きの流れ、費用相場や注意点など不動産売却について詳しく知りたい方はLIFULL HOME'S 不動産査定へ
グランドヒルズ三軒茶屋 HILL TOP GARDENの周辺施設
-
買い物
日用品 -
- サミットストア 代沢十字路店
- セブンイレブン 世田谷三宿1丁目店
- ファミリーマート 太子堂三丁目店
- まいばすけっと世田谷淡島店
- 買い物
大型店 -
- 無印良品 三軒茶屋店
- コジマ×ビックカメラ 若林店
- グルメ
-
- すき家 三軒茶屋北店
- バーミヤン 下北沢南店
- CoCo壱番屋 世田谷区三軒茶屋店
- スターバックスコーヒー代沢5丁目店
- 娯楽施設
-
- 太子堂中学校温水プール
- ティップネス三軒茶屋店
- 役所
公共施設 -
- 世田谷太子堂郵便局
- 世田谷淡島郵便局
- 世田谷池尻郵便局
- 三軒茶屋駅前郵便局
- 医療
-
- 青葉会青葉病院
- 保育施設
-
- ポポラー東京三軒茶屋園
- 三宿の杜なごみ保育園
- 三宿保育園
- 認定こども園世田谷区立多聞幼稚園
- 学校
-
- 世田谷区立太子堂中学校
- 世田谷区立多聞小学校
- 世田谷区立代沢小学校
- 私立世田谷学園中学校
※学区外の学校が含まれる場合があります。実際の学区は必ず各自治体へご確認ください。
グランドヒルズ三軒茶屋 HILL TOP GARDEN周辺の物件情報
周辺の問合せ可能な物件
東京都世田谷区の問合せ可能な物件のうち、この物件の周辺にあるものから表示しています
賃貸
-
募集中
- Brillia ist 三軒茶屋 ブラッサムテラス
- 21.5万円
- 東急田園都市線 三軒茶屋駅 徒歩13分
- 東京都世田谷区太子堂3丁目38-1
- 53.55m² / 1LDK
-
募集中
- 東急田園都市線 三軒茶屋駅 徒歩13分
- 21.5万円
- 東急田園都市線 三軒茶屋駅 徒歩13分
- 東京都世田谷区太子堂3丁目38-1
- 53.55m² / 1LDK
-
募集中
- 東急田園都市線 三軒茶屋駅 徒歩10分
- 7.8万円
- 東急田園都市線 三軒茶屋駅 徒歩10分
- 東京都世田谷区太子堂3丁目28-5
- 23.89m² / 1DK
-
募集中
- Brillia ist 三軒茶屋 アイビーテラス
- 24万円
- 東急田園都市線 三軒茶屋駅 徒歩12分
- 東京都世田谷区太子堂3丁目36-1
- 59.04m² / 1LDK
-
募集中
- マストライフ太子堂
- 12万円
- 東急田園都市線 三軒茶屋駅 徒歩10分
- 東京都世田谷区太子堂3丁目30-2
- 30.6m² / 1K
-
募集中
- 東急田園都市線 三軒茶屋駅 徒歩12分
- 17.5万円
- 東急田園都市線 三軒茶屋駅 徒歩12分
- 東京都世田谷区代沢4丁目16-6
- 40.75m² / 1LDK
-
募集中
- Cattleya Garden 代沢
- 17.5万円
- 東急田園都市線 三軒茶屋駅 徒歩12分
- 東京都世田谷区代沢4丁目16-6
- 40.75m² / 1LDK
-
募集中
- ライオンズマンション太子堂第2
- 7.8万円
- 東急田園都市線 三軒茶屋駅 徒歩10分
- 東京都世田谷区太子堂3丁目28-5
- 23.89m² / 1K
-
募集中
- アートヒルズ第5世田谷
- 6.9万円
- 東急田園都市線 三軒茶屋駅 徒歩14分
- 東京都世田谷区代沢4丁目
- 16.78m² / ワンルーム
-
募集中
- 京王井の頭線 池ノ上駅 徒歩13分
- 6.9万円
- 京王井の頭線 池ノ上駅 徒歩13分
- 東京都世田谷区代沢4丁目
- 16.78m² / ワンルーム
新築マンション
※完成後1年以上経過した未入居の物件が含まれている場合があります
-
売出し中
- 東急東横線「学芸大学」駅 徒歩11分
- 未定
- 東急東横線「学芸大学」駅 徒歩11分
- 東京都世田谷区下馬6丁目88番1(地番)
- 85.66m² / 1LDK~3LDK
-
売出し中
- 東急田園都市線「桜新町」駅 徒歩12分
- 11,290万円~15,190万円
- 東急田園都市線「桜新町」駅 徒歩12分
- 東京都世田谷区深沢7丁目40番1
- 81.87m² / 2LDK・3LDK
-
売出し中
- 東急大井町線「尾山台」駅 徒歩12分
- 8,290万円~15,490万円
- 東急大井町線「尾山台」駅 徒歩12分
- 東京都世田谷区等々力七丁目50-9(地番)
- 81.41m² / 1LDK~3LDK
-
売出し中
- 小田急小田原線「祖師ヶ谷大蔵」駅 徒歩7分
- 7,770万円~8,980万円
- 小田急小田原線「祖師ヶ谷大蔵」駅 徒歩7分
- 東京都世田谷区祖師谷一丁目95番9.10(地名地番)、東京都世田谷区祖師谷一丁目21番12号(住居表示)
- 70.05m² / 2LDK+S~3LDK
-
売出し中
- 京王線「桜上水」駅 徒歩12分
- 10,800万円~12,000万円
- 京王線「桜上水」駅 徒歩12分
- 東京都世田谷区上北沢1丁目725番1他(地番)
- 70.34m² / 1LD・K+2S~3LD・K
-
売出し中
- 東急田園都市線「桜新町」駅 徒歩5分
- 33,988.6万円
- 東急田園都市線「桜新町」駅 徒歩5分
- 東京都世田谷区新町三丁目309番1、他(地番)
- 100.03m² / 2LDK
-
売出し中
- 東急田園都市線「駒沢大学」駅 徒歩13分
- 未定
- 東急田園都市線「駒沢大学」駅 徒歩13分
- 東京都世田谷区上馬五丁目12番5(地番)
- 121.34m² / 2LDK~3LDK
-
売出し中
- 東急田園都市線「三軒茶屋」駅 徒歩12分
- 未定
- 東急田園都市線「三軒茶屋」駅 徒歩12分
- 東京都世田谷区若林1丁目439番2(地名地番)
- 71.81m² / 1LDK~3LDK
-
売出し中
- 小田急小田原線「祖師ヶ谷大蔵」駅 徒歩8分
- 9,490万円~13,710万円
- 小田急小田原線「祖師ヶ谷大蔵」駅 徒歩8分
- 東京都世田谷区砧四丁目259番1(地番)
- 65.31m² / 2LDK~3LDK
-
売出し中
- 小田急小田原線「下北沢」駅 徒歩15分
- 未定
- 小田急小田原線「下北沢」駅 徒歩15分
- 東京都世田谷区代沢四丁目254番1(地番)
- 151.85m² / 2LDK(6戸)・3LDK(25戸)
中古マンション
-
売出し中
- 下北沢駅13分「ウエリス代沢」
- 1億1780万円
- 小田急小田原線 世田谷代田駅 徒歩12分
- 東京都世田谷区代沢4丁目
- 65.8m² / 3LDK
-
売出し中
- 世田谷三宿マンション
- 6999万円
- 東急田園都市線 三軒茶屋駅 徒歩12分
- 東京都世田谷区三宿2丁目
- 63.83m² / 2LDK
-
売出し中
- メゾンドミロール
- 1000万円
- 東急世田谷線 西太子堂駅 徒歩8分
- 東京都世田谷区太子堂5丁目17-1
- 10.05m² / ワンルーム
-
売出し中
- グリーンサイド
- 2980万円
- 東急田園都市線 三軒茶屋駅 徒歩10分
- 東京都世田谷区三宿1丁目
- 36.48m² / 2DK
-
売出し中
- クレッセント池尻大橋
- 5999万円
- 京王井の頭線 池ノ上駅 徒歩11分
- 東京都世田谷区三宿2丁目19-16
- 39.12m² / 2DK
-
売出し中
- ライオンズマンション三宿
- 4780万円
- 東急田園都市線 池尻大橋駅 徒歩12分
- 東京都世田谷区三宿1丁目8-10
- 43.74m² / 1LDK
-
売出し中
- グランドステージ三宿
- 8980万円
- 東急田園都市線 三軒茶屋駅 徒歩7分
- 東京都世田谷区三宿1丁目13-4
- 56.24m² / 2LDK
-
売出し中
- パークハイム三軒茶屋
- 5980万円
- 東急世田谷線 西太子堂駅 徒歩9分
- 東京都世田谷区若林2丁目30-10
- 54.08m² / 2LDK
-
売出し中
- 東急ドエルキルト三軒茶屋
- 7999万円
- 東急田園都市線 三軒茶屋駅 徒歩4分
- 東京都世田谷区太子堂4丁目30
- 40.17m² / 1LDK
-
売出し中
- ダイアパレス三宿
- 4680万円
- 東急田園都市線 池尻大橋駅 徒歩12分
- 東京都世田谷区三宿2丁目
- 48.5m² / 1LDK
一戸建て
-
売出し中
- 世田谷区三宿1丁目戸建
- 1億1800万円
- 東急田園都市線 三軒茶屋駅 徒歩12分
- 東京都世田谷区三宿1丁目
- 106.82m² / 2SLDK
-
売出し中
- 太子堂5丁目 新築戸建
- 1億3480万円
- 東急田園都市線 三軒茶屋駅 徒歩10分
- 東京都世田谷区太子堂5丁目
- 91.4m² / 2SLDK
-
売出し中
- 世田谷区三宿2丁目 中古戸建
- 9498万円
- 東急田園都市線 池尻大橋駅 徒歩15分
- 東京都世田谷区三宿2丁目
- 81.0m² / 4LDK
-
売出し中
- 世田谷区三宿2丁目の中古戸建
- 9498万円
- 東急田園都市線 池尻大橋駅 徒歩15分
- 東京都世田谷区三宿2丁目
- 81.0m² / 3SLDK
-
売出し中
- 世田谷区三宿2丁目
- 9498万円
- 京王井の頭線 池ノ上駅 徒歩13分
- 東京都世田谷区三宿2丁目
- 87.48m² / 4LDK
-
売出し中
- 三宿2丁目 中古戸建
- 9498万円
- 東急田園都市線 池尻大橋駅 徒歩15分
- 東京都世田谷区三宿2丁目
- 87.48m² / 2SLDK
-
売出し中
- 世田谷区三宿ニ丁目 中古一戸建て
- 9498万円
- 東急田園都市線 池尻大橋駅 徒歩15分
- 東京都世田谷区三宿2丁目
- 81.0m² / 4LDK
-
売出し中
- 世田谷区三宿2丁目 一戸建て
- 9498万円
- 東急田園都市線 池尻大橋駅 徒歩15分
- 東京都世田谷区三宿2丁目17
- 87.1m² / 4LDK
-
売出し中
- 世田谷区太子堂5丁目 新築
- 1億3480万円
- 東急田園都市線 三軒茶屋駅 徒歩10分
- 東京都世田谷区太子堂5丁目
- 91.4m² / 3LDK
-
売出し中
- 世田谷区代田1丁目 中古
- 1億3580万円
- 小田急小田原線 世田谷代田駅 徒歩12分
- 東京都世田谷区代田1丁目
- 125.68m² / 4LDK
注文住宅
※表示価格は延べ床面積約132m²の場合の建物価格の参考値です
エリア・駅で絞り込んで探す
東京都のグランドヒルズが含まれるマンション
周辺の建物情報
物件の種類から探す
世田谷区で募集中の物件のみを検索できます
掲載情報に誤りや問題がある場合
LIFULL HOME'Sは「不動産会社」ではなく「情報掲載サイト」です
- ※管理会社の情報はLIFULL HOME'Sでは保持していないためお答えできません。お問合せはお控えください
- ※最新の募集状況は掲載中の不動産会社があれば、不動産会社へ直接お問合せください
掲載情報の訂正依頼 専用ダイヤル
0120-987-243
- 専用ダイヤル受付時間:10:00〜18:00
- ※土日・祝日、臨時休業日は除く
不動産データのご利用について
不動産事業におけるDX、サービスの改善、新規事業開発等をご検討中の方へ不動産データの活用をご提案します。LIFULL HOME'Sで集約した不動産情報や外部データは、不動産事業DX、不正決済防止、ローン審査、事業開発、研究等さまざまな事業でご活用いただいています。詳しくは以下よりご確認ください。
不動産アーカイブご利用アンケートにご協力ください
不動産アーカイブの掲載情報は、LIFULL HOME'S掲載の不動産情報および提携先の不動産情報を統計情報として集積したものであり、その存在や信憑性を保証するものではありません。