このページは物件の広告情報ではありません。
過去にLIFULL HOME'Sへ掲載された不動産情報と提携先の地図情報を元に生成した参考情報です。また、一般から投稿された情報など主観的な情報も含みます。
情報更新日: 2025/12/05
プレミスト京都御池通 1LDK 9階
部屋情報
| 所在地 | 京都府京都市中京区橋之町738 |
|---|---|
| 交通 |
|
| AI予測賃料 |
12.4万円 〜 13.9万円
AI予測賃料とは
※LIFULL HOME'Sが独自で計算した参考情報であり、実際の取引価格とは異なります。 (算出ロジックについて ) |
| 専有面積 | 40.04m² |
| 所在階/階数 | 9階/11階 |
| 主採光 | 北 |
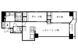
| 間取り | 1LDK (リビングダイニングキッチン10.0帖 洋室4.9帖) |
スポンサーリンク
LIFULL HOME'S 掲載履歴
プレミスト京都御池通の賃貸掲載履歴
全3件
| 年/月 | 賃料 |
|---|---|
| 2024年11月〜2025年3月 | 13.9万円 / 月 |
| 2024年1月〜2024年3月 | 13.9万円 / 月 |
| 2021年9月〜2022年4月 | 14.5万円 / 月 |
売りたい不動産をお持ちの方へ
このエリアの所有不動産を査定する
売却査定手続きの流れ、費用相場や注意点など不動産売却について詳しく知りたい方はLIFULL HOME'S 不動産査定へ
プレミスト京都御池通周辺の物件情報
周辺の問合せ可能な物件
京都府京都市中京区の問合せ可能な物件のうち、この物件の周辺にあるものから表示しています
賃貸
-
募集中
- ソフィアブリュー
- 12.3万円
- 京都地下鉄東西線 烏丸御池駅 徒歩6分
- 京都府京都市中京区釜座通押小路上る上松屋町
- 44.72m² / 1LDK
-
募集中
- 京都地下鉄東西線 烏丸御池駅 徒歩6分
- 12.3万円
- 京都地下鉄東西線 烏丸御池駅 徒歩6分
- 京都府京都市中京区上松屋町
- 44.72m² / 1LDK
-
募集中
- 京都市営烏丸線 烏丸御池駅 徒歩7分
- 12万円
- 京都市営烏丸線 烏丸御池駅 徒歩7分
- 京都府京都市中京区油小路通押小路下る式阿弥町
- 49.73m² / 1LDK
-
募集中
- ジョイ御池
- 12万円
- 京都市営烏丸線 烏丸御池駅 徒歩8分
- 京都府京都市中京区油小路通御池下ル式阿弥町
- 49.73m² / 1LDK
-
募集中
- ジョイ御池
- 12万円
- 京都市営烏丸線 烏丸御池駅 徒歩7分
- 京都府京都市中京区油小路御池下る式阿弥町
- 49.73m² / 1LDK
-
募集中
- 京都市営烏丸線 烏丸御池駅 徒歩7分
- 12万円
- 京都市営烏丸線 烏丸御池駅 徒歩7分
- 京都府京都市中京区油小路御池下る式阿弥町
- 49.73m² / 1LDK
-
募集中
- 京都市営烏丸線 烏丸御池駅 徒歩6分
- 12万円
- 京都市営烏丸線 烏丸御池駅 徒歩6分
- 京都府京都市中京区油小路御池下る式阿弥町
- 49.73m² / 1LDK
-
募集中
- ジョイ御池
- 12万円
- 京都市営烏丸線 烏丸御池駅 徒歩6分
- 京都府京都市中京区油小路御池下る式阿弥町
- 49.73m² / 1LDK
-
募集中
- 京都市営烏丸線 四条駅 徒歩8分
- 12.8万円
- 京都市営烏丸線 四条駅 徒歩8分
- 京都府京都市中京区小川通三条上る西堂町
- 44.42m² / 1LDK
-
募集中
- CALM姉小路通
- 12.8万円
- 京都市営烏丸線 四条駅 徒歩8分
- 京都府京都市中京区小川通姉小路下る西堂町
- 44.42m² / 1LDK
新築マンション
※完成後1年以上経過した未入居の物件が含まれている場合があります
-
売出し中
- JR山陰本線「円町」駅 徒歩8分
- 未定
- JR山陰本線「円町」駅 徒歩8分
- 京都府京都市中京区西ノ京南両町105番1の一部
- 67.26m² / 1LDK・1LDK+S(納戸)・2LDK・2LDK+S(納戸)・3LDK
-
売出し中
- 阪急京都本線「大宮」駅 徒歩1分
- 未定
- 阪急京都本線「大宮」駅 徒歩1分
- 京都府京都市中京区四条通大宮西入錦大宮町140番(地番)
- 121.36m² / 1LDK・2LDK・2LDK+N(納戸)・3LDK+N(納戸)
-
売出し中
- 京都地下鉄東西線「二条城前」駅 徒歩5分
- 4,800万台~25,000万台
- 京都地下鉄東西線「二条城前」駅 徒歩5分
- 京都府京都市中京区堀川通姉小路下る姉東堀川町78-1
- 121.54m² / 1LDK~3LDK
中古マンション
一戸建て
-
売出し中
- 御所南のStore&House
- 1億2000万円
- 京都地下鉄東西線 二条城前駅 徒歩5分
- 京都府京都市中京区西大黒町
- 109.25m² / 3DK
-
売出し中
- 二条新町
- 1億2800万円
- 京都市営烏丸線 烏丸御池駅 徒歩8分
- 京都府京都市中京区二条新町
- 138.08m² / 3LDK
-
売出し中
- 京都市営烏丸線 烏丸御池駅 徒歩7分
- 1億2800万円
- 京都市営烏丸線 烏丸御池駅 徒歩7分
- 京都府京都市中京区新町通夷川下る二条新町
- 138.09m² / 3LDK
-
売出し中
- 京都地下鉄東西線 二条城前駅 徒歩8分
- 8000万円
- 京都地下鉄東西線 二条城前駅 徒歩8分
- 京都府京都市中京区三条油小路町173番地4
- 97.23m² / 3LDK
-
売出し中
- 中京区越後町 中古テラス
- 6380万円
- 京都地下鉄東西線 二条城前駅 徒歩11分
- 京都府京都市中京区越後町
- 50.24m² / 5K
-
売出し中
- 中京区高田町中古戸建
- 3億8800万円
- 京都市営烏丸線 烏丸御池駅 徒歩4分
- 京都府京都市中京区高田町
- 179.91m² / 5DK
-
売出し中
- 京都地下鉄東西線 二条城前駅 徒歩4分
- 5500万円
- 京都地下鉄東西線 二条城前駅 徒歩4分
- 京都府京都市中京区大宮通御池下る三坊大宮町
- 108.44m² / 3LDK
-
売出し中
- 中京区鍛冶屋町 中古戸建
- 1億1500万円
- 阪急京都本線 大宮駅 徒歩6分
- 京都府京都市中京区鍛冶屋町
- 226.82m² / 9DK
注文住宅
※表示価格は延べ床面積約132m²の場合の建物価格の参考値です
-
資料請求受付中
- 2324万円〜
- ヤマト住建株式会社
- 【エネージュLCCM】脱炭素社会へ!住まいのすべての過程でCO2排出量を抑える住宅
-
資料請求受付中
- -
- へーベルハウス
- 【ヘーベルハウス】:ヘーベルハウス総合カタログ
-
資料請求受付中
- 2000万円〜
- 一条工務店
- 【一条工務店】 建築実例集3冊セット(HOME’S限定)
-
資料請求受付中
- 3200万円〜
- 三井ホーム株式会社
- 三井ホームのご紹介
-
資料請求受付中
- 3200万円〜
- ダイワハウス
- 【ダイワハウス】 xevoΣ<ジーヴォシグマ> ~天井高2m72cmの高さというゆとり空間~
-
資料請求受付中
- 2800万円〜
- ミサワホーム株式会社
- 【MISAWA】ミサワホーム代表カタログ3冊セット(HOME'S限定)
-
資料請求受付中
- 1868万円〜
- タマホーム株式会社
- 大安心の家シリーズ
-
資料請求受付中
- -
- 積水ハウス
- BRAND BOOK
-
資料請求受付中
- 3000万円〜
- セキスイハイム
- 【セキスイハイム|平屋】ザ・デザイナーズハイムD1
エリア・駅で絞り込んで探す
賃貸
物件の種類から探す
京都市中京区で募集中の物件のみを検索できます
掲載情報に誤りや問題がある場合
LIFULL HOME'Sは「不動産会社」ではなく「情報掲載サイト」です
- ※管理会社の情報はLIFULL HOME'Sでは保持していないためお答えできません。お問合せはお控えください
- ※最新の募集状況は掲載中の不動産会社があれば、不動産会社へ直接お問合せください
掲載情報の訂正依頼 専用ダイヤル
0120-987-243
- 専用ダイヤル受付時間:10:00〜18:00
- ※土日・祝日、臨時休業日は除く
不動産データのご利用について
不動産事業におけるDX、サービスの改善、新規事業開発等をご検討中の方へ不動産データの活用をご提案します。LIFULL HOME'Sで集約した不動産情報や外部データは、不動産事業DX、不正決済防止、ローン審査、事業開発、研究等さまざまな事業でご活用いただいています。詳しくは以下よりご確認ください。
不動産アーカイブご利用アンケートにご協力ください
不動産アーカイブの掲載情報は、LIFULL HOME'S掲載の不動産情報および提携先の不動産情報を統計情報として集積したものであり、その存在や信憑性を保証するものではありません。