このページは物件の広告情報ではありません。
過去にLIFULL HOME'Sへ掲載された不動産情報と提携先の地図情報を元に生成した参考情報です。また、一般から投稿された情報など主観的な情報も含みます。
情報更新日: 2026/04/02
【募集中あり】ケイズ・ヴィラ堀川 2LDK 2階
部屋情報
| 所在地 | 京都府京都市伏見区竹田田中宮町7 |
|---|---|
| 交通 |
|
| AI予測賃料 |
8.1万円 〜 9.0万円
AI予測賃料とは
※LIFULL HOME'Sが独自で計算した参考情報であり、実際の取引価格とは異なります。 (算出ロジックについて ) |
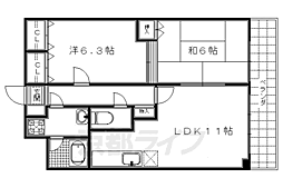
| 専有面積 | 56.11m² |
| 所在階/階数 | 2階/5階 |
| 主採光 | 東 |
| 間取り | 2LDK (洋室6.0帖 和室5.7畳 リビングダイニングキッチン10.2帖) |
スポンサーリンク
売りたい不動産をお持ちの方へ
このエリアの所有不動産を査定する
売却査定手続きの流れ、費用相場や注意点など不動産売却について詳しく知りたい方はLIFULL HOME'S 不動産査定へ
ケイズ・ヴィラ堀川周辺の物件情報
周辺の問合せ可能な物件
京都府京都市伏見区の問合せ可能な物件のうち、この物件の周辺にあるものから表示しています
賃貸
-
募集中
- 京都市営烏丸線 竹田駅 徒歩10分
- 8.6万円
- 京都市営烏丸線 竹田駅 徒歩10分
- 京都府京都市伏見区竹田田中宮町
- 56.57m² / 2LDK
-
募集中
- クエストオブインフィニティー
- 8.6万円
- 京都市営烏丸線 竹田駅 徒歩10分
- 京都府京都市伏見区竹田田中宮町
- 56.57m² / 2LDK
-
募集中
- ペアシティ京都
- 8万円
- 近鉄京都線 竹田駅 徒歩14分
- 京都府京都市伏見区竹田東小屋ノ内町
- 48.6m² / 2LDK
-
募集中
- 近鉄京都線 竹田駅 徒歩14分
- 8万円
- 近鉄京都線 竹田駅 徒歩14分
- 京都府京都市伏見区竹田東小屋ノ内町
- 48.6m² / 2LDK
-
募集中
- グレース・ダイン
- 8.8万円
- 京都市営烏丸線 竹田駅 徒歩5分
- 京都府京都市伏見区竹田浄菩提院町
- 55.14m² / 2LDK
-
募集中
- 京都市営烏丸線 竹田駅 徒歩5分
- 8.8万円
- 京都市営烏丸線 竹田駅 徒歩5分
- 京都府京都市伏見区竹田浄菩提院町
- 55.14m² / 2LDK
-
募集中
- 京都市営烏丸線 竹田駅 徒歩5分
- 8.1万円
- 京都市営烏丸線 竹田駅 徒歩5分
- 京都府京都市伏見区竹田中内畑町
- 66.1m² / 2LDK
-
募集中
- ブリーズ・ヴァン竹田
- 8.1万円
- 京都市営烏丸線 竹田駅 徒歩5分
- 京都府京都市伏見区竹田中内畑町
- 66.1m² / 2LDK
-
募集中
- 鳥羽エクセレント
- 9万円
- 近鉄京都線 伏見駅 徒歩23分
- 京都府京都市伏見区中島秋ノ山町
- 55.9m² / 2LDK
-
募集中
- 近鉄京都線 伏見駅 徒歩23分
- 9万円
- 近鉄京都線 伏見駅 徒歩23分
- 京都府京都市伏見区中島秋ノ山町
- 55.9m² / 2LDK
中古マンション
-
売出し中
- ハイム伏見B棟
- 1850万円
- 京阪本線 中書島駅 徒歩14分
- 京都府京都市伏見区横大路下三栖山殿
- 64.51m² / 2LDK
-
売出し中
- ペルル伏見桃山2 中古マンション
- 1998万円
- 京阪宇治線 中書島駅 徒歩6分
- 京都府京都市伏見区東浜南町
- 60.39m² / 2LDK
-
売出し中
- エルシティ桃山 中古マンション
- 1990万円
- JR奈良線 桃山駅 徒歩2分
- 京都府京都市伏見区桃山町立売
- 57.92m² / 2LDK
-
売出し中
- アドリーム伏見向島
- 1999万円
- 近鉄京都線 向島駅 徒歩4分
- 京都府京都市伏見区向島二ノ丸町
- 61.95m² / 2SLDK
-
売出し中
- ディオ・フェルティ淀桂川 中古マンション
- 1550万円
- 京阪本線 淀駅 徒歩4分
- 京都府京都市伏見区納所町
- 53.41m² / 2LDK
-
売出し中
- エイジングコート淀城公園
- 1480万円
- 京阪本線 淀駅 徒歩10分
- 京都府京都市伏見区淀木津町197-1
- 63.0m² / 2LDK
-
売出し中
- ライオンズマンション京都淀B 中古マンション
- 1480万円
- 京阪本線 淀駅 徒歩28分
- 京都府京都市伏見区淀際目町
- 65.74m² / 2LDK
一戸建て
-
売出し中
- 京都市伏見区竹田醍醐田町 新築一戸建て 全1区画
- 2598万円
- 京都市営烏丸線 竹田駅 徒歩8分
- 京都府京都市伏見区竹田醍醐田町
- 84.57m² / 2SLDK
-
売出し中
- 伏見区竹田醍醐田町
- 2798万円
- 近鉄京都線 伏見駅 徒歩9分
- 京都府京都市伏見区竹田醍醐田町
- 84.57m² / 2SLDK
-
売出し中
- 京都市伏見区中島宮ノ前町 中古戸建
- 1880万円
- 近鉄京都線 竹田駅 徒歩21分
- 京都府京都市伏見区中島宮ノ前町
- 93.82m² / 4DK
-
売出し中
- 伏見区竹田七瀬川町
- 2200万円
- 近鉄京都線 竹田駅 徒歩11分
- 京都府京都市伏見区竹田七瀬川町
- 123.68m² / 4LDK
-
売出し中
- 京都市伏見区竹田七瀬川町 中古一戸建て
- 2200万円
- 近鉄京都線 竹田駅 徒歩11分
- 京都府京都市伏見区竹田七瀬川町
- 123.68m² / 5LDK
-
売出し中
- 景勝町
- 2080万円
- 近鉄京都線 伏見駅 徒歩10分
- 京都府京都市伏見区景勝町
- 58.72m² / 3LDK
-
売出し中
- 近鉄京都線 伏見駅 徒歩10分
- 990万円
- 近鉄京都線 伏見駅 徒歩10分
- 京都府京都市伏見区景勝町
- 47.69m² / 4DK
注文住宅
※表示価格は延べ床面積約132m²の場合の建物価格の参考値です
-
資料請求受付中
- 3000万円〜
- トヨタホーム
- FIRST CLASS LIVING
-
資料請求受付中
- 3000万円〜
- セキスイハイム
- 【セキスイハイム】総合カタログ(heimism)
-
資料請求受付中
- -
- 積水ハウス
- BRAND BOOK
-
資料請求受付中
- 2000万円〜
- 一条工務店
- 【一条工務店】 建築実例集3冊セット(HOME’S限定)
-
資料請求受付中
- 1868万円〜
- タマホーム株式会社
- 大安心の家シリーズ
-
資料請求受付中
- 2432万円〜
- ヤマト住建株式会社
- 【LEGANTIA】邸宅の頂点がここにある。受け継がれる価値、未来へ続く邸宅
-
資料請求受付中
- 2800万円〜
- ミサワホーム株式会社
- 【MISAWA】ミサワホーム代表カタログ3冊セット(HOME'S限定)
物件の種類から探す
京都市伏見区で募集中の物件のみを検索できます
掲載情報に誤りや問題がある場合
LIFULL HOME'Sは「不動産会社」ではなく「情報掲載サイト」です
- ※管理会社の情報はLIFULL HOME'Sでは保持していないためお答えできません。お問合せはお控えください
- ※最新の募集状況は掲載中の不動産会社があれば、不動産会社へ直接お問合せください
掲載情報の訂正依頼 専用ダイヤル
0120-987-243
- 専用ダイヤル受付時間:10:00〜18:00
- ※土日・祝日、臨時休業日は除く
不動産データのご利用について
不動産事業におけるDX、サービスの改善、新規事業開発等をご検討中の方へ不動産データの活用をご提案します。LIFULL HOME'Sで集約した不動産情報や外部データは、不動産事業DX、不正決済防止、ローン審査、事業開発、研究等さまざまな事業でご活用いただいています。詳しくは以下よりご確認ください。
不動産アーカイブご利用アンケートにご協力ください
不動産アーカイブの掲載情報は、LIFULL HOME'S掲載の不動産情報および提携先の不動産情報を統計情報として集積したものであり、その存在や信憑性を保証するものではありません。