このページは物件の広告情報ではありません。
過去にLIFULL HOME'Sへ掲載された不動産情報と提携先の地図情報を元に生成した参考情報です。また、一般から投稿された情報など主観的な情報も含みます。
情報更新日: 2026/03/30
【募集中あり】デミューズ・木幡 3LDK 4階
部屋情報
| 所在地 | 京都府宇治市木幡西浦48 |
|---|---|
| 交通 |
|
| AI予測賃料 |
8.1万円 〜 9.1万円
AI予測賃料とは
※LIFULL HOME'Sが独自で計算した参考情報であり、実際の取引価格とは異なります。 (算出ロジックについて ) |
| 専有面積 | 67.96m² |
| 所在階/階数 | 4階/7階 |
| 主採光 | 東 |
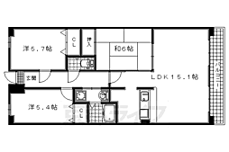
| 間取り | 3LDK (リビングダイニングキッチン13.1帖 和室6.0畳 洋室4.5帖 洋室8.1帖) |
スポンサーリンク
LIFULL HOME'S 掲載履歴
デミューズ・木幡の賃貸掲載履歴
全8件
| 年/月 | 賃料 |
|---|---|
| 2025年8月 | 8.3万円 / 月 |
| 2024年9月〜2024年11月 | 8.2万円 / 月 |
| 2022年7月〜2022年11月 | 8万円 / 月 |
| 2022年5月〜2022年6月 | 8.2万円 / 月 |
| 2019年12月〜2020年2月 | 8万円 / 月 |
| 2016年7月〜2016年9月 | 7.8万円 / 月 |
| 2013年1月〜2013年3月 | 8万円 / 月 |
| 2010年5月〜2010年11月 | 7.9万円 / 月 |
売りたい不動産をお持ちの方へ
このエリアの所有不動産を査定する
売却査定手続きの流れ、費用相場や注意点など不動産売却について詳しく知りたい方はLIFULL HOME'S 不動産査定へ
デミューズ・木幡周辺の物件情報
周辺の問合せ可能な物件
京都府宇治市の問合せ可能な物件のうち、この物件の周辺にあるものから表示しています
賃貸
-
募集中
- パデシオン宇治木幡
- 8万円
- 京阪宇治線 木幡駅 徒歩6分
- 京都府宇治市木幡西浦
- 64.48m² / 3LDK
-
募集中
- JR奈良線 木幡駅 徒歩3分
- 8.3万円
- JR奈良線 木幡駅 徒歩3分
- 京都府宇治市木幡中村
- 71.4m² / 3LDK
-
募集中
- フレックス戸ノ内
- 8.2万円
- JR奈良線 黄檗駅 徒歩16分
- 京都府宇治市五ケ庄戸ノ内
- 70.34m² / 3LDK
-
募集中
- JR奈良線 黄檗駅 徒歩15分
- 8.2万円
- JR奈良線 黄檗駅 徒歩15分
- 京都府宇治市五ケ庄戸ノ内
- 70.34m² / 3LDK
-
募集中
- フレックス戸ノ内
- 8.2万円
- 京阪宇治線 黄檗駅 徒歩15分
- 京都府宇治市五ヶ庄戸ノ内
- 70.34m² / 3LDK
-
募集中
- 京阪宇治線 黄檗駅 徒歩15分
- 8.2万円
- 京阪宇治線 黄檗駅 徒歩15分
- 京都府宇治市五ヶ庄戸ノ内
- 70.34m² / 3LDK
-
募集中
- コスモウイング宇治
- 8万円
- 京阪宇治線 三室戸駅 徒歩8分
- 京都府宇治市莵道籔里
- 62.6m² / 3LDK
-
募集中
- JR奈良線 宇治駅 徒歩16分
- 8万円
- JR奈良線 宇治駅 徒歩16分
- 京都府宇治市槇島町月夜
- 64.55m² / 3LDK
-
募集中
- 朝日プラザ宇治
- 8万円
- JR奈良線 宇治駅 徒歩18分
- 京都府宇治市槇島町月夜
- 64.55m² / 3LDK
中古マンション
-
売出し中
- パデシオン宇治木幡
- 2299万円
- 京阪宇治線 木幡駅 徒歩7分
- 京都府宇治市木幡西浦
- 65.99m² / 3LDK
-
売出し中
- ユニ宇治マンション3号館
- 2190万円
- 京阪宇治線 木幡駅 徒歩3分
- 京都府宇治市木幡内畑
- 65.46m² / 3LDK
-
売出し中
- 朝日プラザ桃山東 中古マンション
- 2390万円
- 京都地下鉄東西線 六地蔵駅 徒歩3分
- 京都府宇治市六地蔵徳永
- 59.28m² / 3LDK
-
売出し中
- グラン・コート北宇治II
- 2080万円
- 近鉄京都線 向島駅 徒歩10分
- 京都府宇治市槇島町落合
- 67.86m² / 3LDK
-
売出し中
- グラン・コート北宇治 中古マンション
- 2080万円
- 近鉄京都線 向島駅 徒歩12分
- 京都府宇治市槇島町落合
- 67.86m² / 3LDK
-
売出し中
- グラン・コート北宇治2
- 2290万円
- 近鉄京都線 向島駅 徒歩12分
- 京都府宇治市槇島町落合
- 75.4m² / 3LDK
-
売出し中
- 朝日プラザ宇治 中古マンション
- 2390万円
- JR奈良線 宇治駅 徒歩17分
- 京都府宇治市槇島町月夜
- 62.3m² / 3LDK
-
売出し中
- パデシオン宇治三室戸 中古マンション
- 2180万円
- JR奈良線 宇治駅 徒歩19分
- 京都府宇治市莵道門前
- 73.3m² / 3LDK
-
売出し中
- イトーピア宇治グランヒルズ
- 2299万円
- JR奈良線 JR小倉駅 徒歩8分
- 京都府宇治市神明石塚
- 68.9m² / 3LDK
一戸建て
-
売出し中
- 京阪宇治線 木幡駅 徒歩9分
- 2480万円
- 京阪宇治線 木幡駅 徒歩9分
- 京都府宇治市木幡西浦
- 124.93m² / 5LDK
-
売出し中
- 宇治市五ケ庄北ノ庄 新築一戸建て 1期 全1区画
- 4090万円
- 京阪宇治線 木幡駅 徒歩13分
- 京都府宇治市五ケ庄北ノ庄
- 105.16m² / 4LDK
-
売出し中
- 新築戸建 宇治市五ヶ庄北ノ庄
- 4090万円
- 京阪宇治線 木幡駅 徒歩13分
- 京都府宇治市五ケ庄北ノ庄
- 101.19m² / 4LDK
-
売出し中
- 京阪宇治線「木幡」駅 徒歩13分~13分
- 4,090万円
- 京阪宇治線「木幡」駅 徒歩13分~13分
- 京都府宇治市五ケ庄北ノ庄33番58(地番)
- 105.16m² / 4LDK~4LDK
-
売出し中
- 宇治市五ケ庄北ノ庄 1期 1号棟
- 4090万円
- 京阪宇治線 木幡駅 徒歩16分
- 京都府宇治市五ケ庄北ノ庄
- 105.16m² / 4LDK
-
売出し中
- 京阪宇治線「木幡」駅 徒歩13分
- 4090万円
- 京阪宇治線「木幡」駅 徒歩13分
- 京都府宇治市五ケ庄北ノ庄
- 105.16m² / 4LDK
-
売出し中
- JR奈良線 木幡駅 徒歩9分
- 980万円
- JR奈良線 木幡駅 徒歩9分
- 京都府宇治市木幡中村
- 110.98m² / 4LDK
-
売出し中
- 京阪宇治線「木幡」駅 徒歩11分
- 3,580~3,980万円
- 京阪宇治線「木幡」駅 徒歩11分
- 京都府宇治市五ヶ庄北ノ庄1-1他
- 83.13m² / 4LDK
-
売出し中
- 宇治市木幡南山 中古一戸建て
- 680万円
- JR奈良線 木幡駅 徒歩8分
- 京都府宇治市木幡南山
- 75.49m² / 3DK
-
売出し中
- 宇治市五ケ庄檀ノ東 新築戸建
- 3190万円
- 京阪宇治線 黄檗駅 徒歩8分
- 京都府宇治市五ケ庄檀ノ東
- 99.92m² / 4LDK
注文住宅
※表示価格は延べ床面積約132m²の場合の建物価格の参考値です
-
資料請求受付中
- 2000万円〜
- 一条工務店
- 【一条工務店】 建築実例集3冊セット(HOME’S限定)
-
資料請求受付中
- 3400万円〜
- へーベルハウス
- 【ヘーベルハウス】:ヘーベルハウス総合カタログ
-
資料請求受付中
- 2800万円〜
- ミサワホーム株式会社
- 【MISAWA】ミサワホーム代表カタログ3冊セット(HOME'S限定)
-
資料請求受付中
- -
- アキュラホーム(AQ Group)
- 「超空間の家」
-
資料請求受付中
- 2432万円〜
- ヤマト住建株式会社
- 【LEGANTIA】邸宅の頂点がここにある。受け継がれる価値、未来へ続く邸宅
-
資料請求受付中
- 2200万円〜
- アーキホームライフ 京滋
- スタイルブック
-
資料請求受付中
- 3000万円〜
- セキスイハイム
- 【セキスイハイム】総合カタログ(heimism)
-
資料請求受付中
- -
- 積水ハウス
- BRAND BOOK
-
資料請求受付中
- 3200万円〜
- 大和ハウス
- 【大和ハウス】 xevoΣ<ジーヴォシグマ> ~天井高2m72cmの高さというゆとり空間~
-
資料請求受付中
- 1868万円〜
- タマホーム株式会社
- 大安心の家シリーズ
エリア・駅で絞り込んで探す
賃貸
物件の種類から探す
宇治市で募集中の物件のみを検索できます
掲載情報に誤りや問題がある場合
LIFULL HOME'Sは「不動産会社」ではなく「情報掲載サイト」です
- ※管理会社の情報はLIFULL HOME'Sでは保持していないためお答えできません。お問合せはお控えください
- ※最新の募集状況は掲載中の不動産会社があれば、不動産会社へ直接お問合せください
掲載情報の訂正依頼 専用ダイヤル
0120-987-243
- 専用ダイヤル受付時間:10:00〜18:00
- ※土日・祝日、臨時休業日は除く
不動産データのご利用について
不動産事業におけるDX、サービスの改善、新規事業開発等をご検討中の方へ不動産データの活用をご提案します。LIFULL HOME'Sで集約した不動産情報や外部データは、不動産事業DX、不正決済防止、ローン審査、事業開発、研究等さまざまな事業でご活用いただいています。詳しくは以下よりご確認ください。
不動産アーカイブご利用アンケートにご協力ください
不動産アーカイブの掲載情報は、LIFULL HOME'S掲載の不動産情報および提携先の不動産情報を統計情報として集積したものであり、その存在や信憑性を保証するものではありません。