このページは物件の広告情報ではありません。
過去にLIFULL HOME'Sへ掲載された不動産情報と提携先の地図情報を元に生成した参考情報です。また、一般から投稿された情報など主観的な情報も含みます。
情報更新日: 2025/12/15
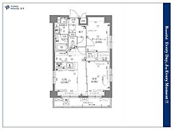
ミルーナヒルズ西日暮里 2LDK 2階
部屋情報
| 所在地 | 東京都荒川区荒川5丁目5-6 |
|---|---|
| 交通 |
|
| 専有面積 | 50.8m² |
| 所在階/階数 | 2階/8階 |
| 主採光 | 北西 |
| 間取り | 2LDK (リビングダイニングキッチン10.5帖 洋室6.0帖 洋室6.0帖) |
スポンサーリンク
LIFULL HOME'S 掲載履歴
ミルーナヒルズ西日暮里の賃貸掲載履歴
全1件
| 年/月 | 賃料 |
|---|---|
| 2015年7月〜2015年8月 | 6.95万円 / 月 |
売りたい不動産をお持ちの方へ
このエリアの所有不動産を査定する
売却査定手続きの流れ、費用相場や注意点など不動産売却について詳しく知りたい方はLIFULL HOME'S 不動産査定へ
ミルーナヒルズ西日暮里周辺の物件情報
周辺の問合せ可能な物件
東京都荒川区の問合せ可能な物件のうち、この物件の周辺にあるものから表示しています
賃貸
-
募集中
- 東京メトロ千代田線 町屋駅 徒歩6分
- 16万円
- 東京メトロ千代田線 町屋駅 徒歩6分
- 東京都荒川区荒川4丁目
- 69.91m² / 2LDK
-
募集中
- クオーレ東館
- 16万円
- 東京メトロ千代田線 町屋駅 徒歩4分
- 東京都荒川区荒川5丁目
- 49.89m² / 2LDK
-
募集中
- 田園キャッスル町屋
- 18万円
- 東京メトロ千代田線 町屋駅 徒歩4分
- 東京都荒川区荒川4丁目
- 56.42m² / 2LDK
-
募集中
- 東京メトロ千代田線 町屋駅 徒歩14分
- 17万円
- 東京メトロ千代田線 町屋駅 徒歩14分
- 東京都荒川区東尾久2丁目
- 56.05m² / 2LDK
-
募集中
- パレステージ町屋参番館
- 17万円
- 東京メトロ千代田線 町屋駅 徒歩10分
- 東京都荒川区東尾久3丁目6-23
- 45.36m² / 2LDK
-
募集中
- Heim Komorelia
- 17.3万円
- 都電荒川線 荒川二丁目駅 徒歩12分
- 東京都荒川区荒川3丁目18-5
- 45.99m² / 2LDK
-
募集中
- パークハイム星
- 18万円
- JR山手線 西日暮里駅 徒歩9分
- 東京都荒川区西日暮里2丁目
- 47.8m² / 2LDK
-
募集中
- JR山手線 日暮里駅 徒歩5分
- 18万円
- JR山手線 日暮里駅 徒歩5分
- 東京都荒川区西日暮里2丁目13-11
- 47.8m² / 2LDK
-
募集中
- マンション道灌山
- 18万円
- JR山手線 西日暮里駅 徒歩1分
- 東京都荒川区西日暮里3丁目6-14
- 45.15m² / 2LDK
-
募集中
- コウジーコート
- 16.4万円
- JR山手線 田端駅 徒歩16分
- 東京都荒川区東尾久5丁目32-7
- 58.5m² / 2LDK
新築マンション
※完成後1年以上経過した未入居の物件が含まれている場合があります
中古マンション
-
売出し中
- 京成本線 新三河島駅 徒歩2分
- 3980万円
- 京成本線 新三河島駅 徒歩2分
- 東京都荒川区西日暮里1丁目
- 56.06m² / 2LDK
-
売出し中
- ハイツ西日暮里
- 3980万円
- 京成本線 新三河島駅 徒歩2分
- 東京都荒川区西日暮里1丁目14-4
- 56.06m² / 2LDK
-
売出し中
- ハイツ西日暮里
- 3980万円
- 京成本線 新三河島駅 徒歩2分
- 東京都荒川区西日暮里1丁目14-4
- 56.06m² / 2LDK
-
売出し中
- パシフィック西日暮里
- 4200万円
- 日暮里舎人ライナー 赤土小学校前駅 徒歩5分
- 東京都荒川区東尾久1丁目29-7
- 58.95m² / 2LDK
-
売出し中
- ダイアパレス田端
- 4780万円
- JR山手線 西日暮里駅 徒歩9分
- 東京都荒川区東尾久1丁目30番12号
- 60.51m² / 2SLDK
-
売出し中
- GSハイム日暮里
- 4280万円
- JR山手線 日暮里駅 徒歩4分
- 東京都荒川区西日暮里2丁目
- 49.18m² / 2LDK
-
売出し中
- セレナハイム荒川公園
- 4590万円
- 東京メトロ日比谷線 三ノ輪駅 徒歩11分
- 東京都荒川区荒川1丁目32-14
- 55.22m² / 2SLDK
-
売出し中
- 新日暮里ハイツ
- 4280万円
- JR山手線 西日暮里駅 徒歩4分
- 東京都荒川区西日暮里2丁目57-4
- 45.98m² / 2LDK
-
売出し中
- JR山手線 日暮里駅 徒歩3分
- 4280万円
- JR山手線 日暮里駅 徒歩3分
- 東京都荒川区西日暮里2丁目
- 45.98m² / 2LDK
-
売出し中
- レインボーメセナ
- 3590万円
- 東京メトロ日比谷線 三ノ輪駅 徒歩8分
- 東京都荒川区荒川1丁目46
- 47.17m² / 2LDK
一戸建て
-
売出し中
- 荒川4丁目借地権付き戸建
- 4090万円
- 東京メトロ千代田線 町屋駅 徒歩4分
- 東京都荒川区荒川4丁目
- 123.0m² / 2SLDK
-
売出し中
- 中古戸建 荒川区荒川3丁目 全1区画
- 3580万円
- JR常磐線 三河島駅 徒歩3分
- 東京都荒川区荒川3丁目
- 89.16m² / 4DK
-
売出し中
- 荒川6丁目
- 4780万円
- 東京メトロ千代田線 町屋駅 徒歩7分
- 東京都荒川区荒川6丁目
- 68.62m² / 3LDK
-
売出し中
- 荒川区荒川6丁目
- 4780万円
- 東京メトロ千代田線 町屋駅 徒歩7分
- 東京都荒川区荒川6丁目
- 68.62m² / 2SLDK
-
売出し中
- 荒川区西日暮里6丁目 中古一戸建て
- 7980万円
- 日暮里舎人ライナー 西日暮里駅 徒歩6分
- 東京都荒川区西日暮里6丁目
- 91.9m² / 2SLDK
-
売出し中
- 荒川区西日暮里五丁目・再建不戸建
- 3580万円
- JR山手線 西日暮里駅 徒歩5分
- 東京都荒川区西日暮里5丁目2-1
- 66.88m² / 4DK
-
売出し中
- 荒川区東尾久1丁目 一戸建て
- 2480万円
- 日暮里舎人ライナー 赤土小学校前駅 徒歩4分
- 東京都荒川区東尾久1丁目28
- 44.64m² / 2DK
-
売出し中
- 荒川区西日暮里6丁目 中古戸建
- 8950万円
- 日暮里舎人ライナー 西日暮里駅 徒歩3分
- 東京都荒川区西日暮里6丁目
- 74.72m² / 2SLDK
-
売出し中
- 荒川区西日暮里6丁目 一戸建て
- 8680万円
- 日暮里舎人ライナー 西日暮里駅 徒歩3分
- 東京都荒川区西日暮里6丁目36
- 74.72m² / 2SLDK
-
売出し中
- 穏やかな環境に建つ 設備充実の築浅住戸
- 9600万円
- JR山手線 西日暮里駅 徒歩3分
- 東京都荒川区西日暮里6丁目
- 74.72m² / 2SLDK
注文住宅
※表示価格は延べ床面積約132m²の場合の建物価格の参考値です
-
資料請求受付中
- 2600万円〜
- 株式会社アイ工務店 東京支店
- 【東京 展示場ご来場者歓迎!】憧れのスキップフロアが叶える大収納【アイ工務店】
-
資料請求受付中
- -
- アキュラホーム(AQ Group)
- 「超空間の家」
-
資料請求受付中
- 2000万円〜
- 一条工務店
- 【一条工務店】 建築実例集3冊セット(HOME’S限定)
-
資料請求受付中
- 1868万円〜
- タマホーム株式会社
- 大安心の家シリーズ
-
資料請求受付中
- -
- 積水ハウス
- BRAND BOOK
-
資料請求受付中
- 2432万円〜
- ヤマト住建株式会社
- 【LEGANTIA】邸宅の頂点がここにある。受け継がれる価値、未来へ続く邸宅
-
資料請求受付中
- 3000万円〜
- 株式会社スウェーデンハウス
- 【スウェーデンハウス】お客様満足度総合第1位の声「No.1 Sweden House News」
-
資料請求受付中
- 3000万円〜
- セキスイハイム
- 【セキスイハイム|平屋】ザ・デザイナーズハイムD1
エリア・駅で絞り込んで探す
賃貸
物件の種類から探す
荒川区で募集中の物件のみを検索できます
掲載情報に誤りや問題がある場合
LIFULL HOME'Sは「不動産会社」ではなく「情報掲載サイト」です
- ※管理会社の情報はLIFULL HOME'Sでは保持していないためお答えできません。お問合せはお控えください
- ※最新の募集状況は掲載中の不動産会社があれば、不動産会社へ直接お問合せください
掲載情報の訂正依頼 専用ダイヤル
0120-987-243
- 専用ダイヤル受付時間:10:00〜18:00
- ※土日・祝日、臨時休業日は除く
不動産データのご利用について
不動産事業におけるDX、サービスの改善、新規事業開発等をご検討中の方へ不動産データの活用をご提案します。LIFULL HOME'Sで集約した不動産情報や外部データは、不動産事業DX、不正決済防止、ローン審査、事業開発、研究等さまざまな事業でご活用いただいています。詳しくは以下よりご確認ください。
不動産アーカイブご利用アンケートにご協力ください
不動産アーカイブの掲載情報は、LIFULL HOME'S掲載の不動産情報および提携先の不動産情報を統計情報として集積したものであり、その存在や信憑性を保証するものではありません。