このページは物件の広告情報ではありません。
過去にLIFULL HOME'Sへ掲載された不動産情報と提携先の地図情報を元に生成した参考情報です。また、一般から投稿された情報など主観的な情報も含みます。
情報更新日: 2025/12/15
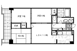
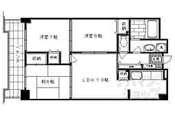
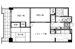
かーせん22 3LDK 4階
部屋情報
| 所在地 | 京都府京都市下京区中堂寺庄ノ内町24-8 |
|---|---|
| 交通 |
|
| AI予測賃料 |
11.0万円 〜 12.6万円
AI予測賃料とは
※LIFULL HOME'Sが独自で計算した参考情報であり、実際の取引価格とは異なります。 (算出ロジックについて ) |
| 専有面積 | 67.17m² |
| 所在階/階数 | 4階/6階 |
| 主採光 | 南 |
| 間取り | 3LDK (洋室6.0帖 洋室6.9帖 和室6.0畳 リビングダイニングキッチン12.9帖) |
スポンサーリンク
LIFULL HOME'S 掲載履歴
かーせん22の賃貸掲載履歴
全6件
| 年/月 | 賃料 |
|---|---|
| 2022年9月〜2022年10月 | 10.2万円 / 月 |
| 2022年7月〜2022年8月 | 10.6万円 / 月 |
| 2018年1月〜2018年4月 | 9.6万円 / 月 |
| 2017年11月〜2017年12月 | 9.8万円 / 月 |
| 2016年8月〜2016年10月 | 8.95万円 / 月 |
| 2014年11月〜2014年12月 | 8.8万円 / 月 |
売りたい不動産をお持ちの方へ
このエリアの所有不動産を査定する
売却査定手続きの流れ、費用相場や注意点など不動産売却について詳しく知りたい方はLIFULL HOME'S 不動産査定へ
かーせん22周辺の物件情報
周辺の問合せ可能な物件
京都府京都市下京区の問合せ可能な物件のうち、この物件の周辺にあるものから表示しています
賃貸
-
募集中
- フレア五条
- 11.5万円
- 京都市営烏丸線 五条駅 徒歩9分
- 京都府京都市下京区五条通堀川西入ル柿本町
- 70.76m² / 3LDK
-
募集中
- 京都市営烏丸線 五条駅 徒歩9分
- 11.5万円
- 京都市営烏丸線 五条駅 徒歩9分
- 京都府京都市下京区五条通堀川西入ル柿本町
- 70.76m² / 3LDK
-
募集中
- 京都市営烏丸線 五条駅 徒歩9分
- 11.5万円
- 京都市営烏丸線 五条駅 徒歩9分
- 京都府京都市下京区猪熊通松原下る柿本町
- 70.76m² / 3LDK
-
募集中
- 京都市営烏丸線 五条駅 徒歩9分
- 11.5万円
- 京都市営烏丸線 五条駅 徒歩9分
- 京都府京都市下京区猪熊通五条下る柿本町
- 70.76m² / 3LDK
-
募集中
- フレア五条
- 11.5万円
- 京都市営烏丸線 五条駅 徒歩9分
- 京都府京都市下京区猪熊通花屋町上る柿本町
- 70.76m² / 3LDK
-
募集中
- フレア五条
- 11.5万円
- 京都市営烏丸線 五条駅 徒歩9分
- 京都府京都市下京区猪熊通五条下る柿本町
- 70.76m² / 3LDK
-
募集中
- フレア五条
- 11.5万円
- 京都市営烏丸線 五条駅 徒歩9分
- 京都府京都市下京区猪熊通松原下る柿本町
- 70.76m² / 3LDK
-
募集中
- グランディール堀川
- 13万円
- 阪急京都本線 大宮駅 徒歩8分
- 京都府京都市下京区仏光寺通東堀川東入喜吉町
- 63.2m² / 3LDK
-
募集中
- 阪急京都本線 大宮駅 徒歩8分
- 13万円
- 阪急京都本線 大宮駅 徒歩8分
- 京都府京都市下京区仏光寺通醒ケ井東入喜吉町
- 63.2m² / 3LDK
-
募集中
- 阪急京都本線 大宮駅 徒歩8分
- 13万円
- 阪急京都本線 大宮駅 徒歩8分
- 京都府京都市下京区仏光寺通東堀川東入喜吉町
- 63.2m² / 3LDK
中古マンション
一戸建て
-
売出し中
- 阪急京都本線 西京極駅 徒歩13分
- 6200万円
- 阪急京都本線 西京極駅 徒歩13分
- 京都府京都市下京区西七条名倉町21-114
- 118.4m² / 6DK
-
売出し中
- JR山陰本線 梅小路京都西駅 徒歩7分
- 1億2950万円
- JR山陰本線 梅小路京都西駅 徒歩7分
- 京都府京都市下京区西七条南東野町
- 307.32m² / 5LDK
-
売出し中
- 西七条南東野町戸建
- 2280万円
- JR山陰本線 梅小路京都西駅 徒歩8分
- 京都府京都市下京区西七条南東野町
- 96.53m² / 3LDK
-
売出し中
- 下京区小坂町
- 3880万円
- JR山陰本線 丹波口駅 徒歩10分
- 京都府京都市下京区小坂町
- 77.62m² / 2SLDK
-
売出し中
- 下京区坊門町
- 4680万円
- 阪急京都本線 大宮駅 徒歩6分
- 京都府京都市下京区坊門町
- 75.62m² / 3LDK
-
売出し中
- 西七条西久保町 中古テラス
- 600万円
- JR山陰本線 梅小路京都西駅 徒歩13分
- 京都府京都市下京区西七条西久保町6番6
- 50.62m² / 3DK
-
売出し中
- 花畑町の元京町家
- 2480万円
- JR山陰本線 梅小路京都西駅 徒歩9分
- 京都府京都市下京区花畑町
- 88.04m² / 7SK
-
売出し中
- 舟屋町
- 850万円
- 京都市営烏丸線 四条駅 徒歩9分
- 京都府京都市下京区舟屋町
- 19.17m² / 3K
-
売出し中
- 下京区区油小路通花屋町下る仏具屋町中古戸建
- 1億9800万円
- 京都市営烏丸線 五条駅 徒歩10分
- 京都府京都市下京区仏具屋町
- 292.82m² / 9LDK
注文住宅
※表示価格は延べ床面積約132m²の場合の建物価格の参考値です
-
資料請求受付中
- 3200万円〜
- ダイワハウス
- 【ダイワハウス】 xevoΣ<ジーヴォシグマ> ~天井高2m72cmの高さというゆとり空間~
-
資料請求受付中
- 1868万円〜
- タマホーム株式会社
- 大安心の家シリーズ
-
資料請求受付中
- 3200万円〜
- 三井ホーム株式会社
- 三井ホームのご紹介
-
資料請求受付中
- -
- へーベルハウス
- 【ヘーベルハウス】:ヘーベルハウス総合カタログ
-
資料請求受付中
- -
- 積水ハウス
- BRAND BOOK
-
資料請求受付中
- 2000万円〜
- 一条工務店
- 【一条工務店】 建築実例集3冊セット(HOME’S限定)
-
資料請求受付中
- 2800万円〜
- ミサワホーム株式会社
- 【MISAWA】ミサワホーム代表カタログ3冊セット(HOME'S限定)
-
資料請求受付中
- 3000万円〜
- セキスイハイム
- 【セキスイハイム|平屋】ザ・デザイナーズハイムD1
-
資料請求受付中
- 2324万円〜
- ヤマト住建株式会社
- 【エネージュLCCM】脱炭素社会へ!住まいのすべての過程でCO2排出量を抑える住宅
エリア・駅で絞り込んで探す
賃貸
物件の種類から探す
京都市下京区で募集中の物件のみを検索できます
掲載情報に誤りや問題がある場合
LIFULL HOME'Sは「不動産会社」ではなく「情報掲載サイト」です
- ※管理会社の情報はLIFULL HOME'Sでは保持していないためお答えできません。お問合せはお控えください
- ※最新の募集状況は掲載中の不動産会社があれば、不動産会社へ直接お問合せください
掲載情報の訂正依頼 専用ダイヤル
0120-987-243
- 専用ダイヤル受付時間:10:00〜18:00
- ※土日・祝日、臨時休業日は除く
不動産データのご利用について
不動産事業におけるDX、サービスの改善、新規事業開発等をご検討中の方へ不動産データの活用をご提案します。LIFULL HOME'Sで集約した不動産情報や外部データは、不動産事業DX、不正決済防止、ローン審査、事業開発、研究等さまざまな事業でご活用いただいています。詳しくは以下よりご確認ください。
不動産アーカイブご利用アンケートにご協力ください
不動産アーカイブの掲載情報は、LIFULL HOME'S掲載の不動産情報および提携先の不動産情報を統計情報として集積したものであり、その存在や信憑性を保証するものではありません。