このページは物件の広告情報ではありません。

過去にLIFULL HOME'Sへ掲載された不動産情報と提携先の地図情報を元に生成した参考情報です。また、一般から投稿された情報など主観的な情報も含みます。

【募集中あり】コスモ若葉ステーションアベニュー の賃貸・中古情報

最終更新日: 2026/03/17

コスモ若葉ステーションアベニューの写真一覧

  • 外観 |

  • 外観 |

  • 外観 |

  • 外観 |

  • 外観 |

  • エントランス | ワカバウォークも近く便利な立地!

  • エントランス | 敷地内お掃除が行き届いています!

  • エントランス |

  • エントランス |

  • エントランス |

  • 駐車場 |

  • 駐車場 |

  • 周辺 | 坂戸市立南小学校まで800m

  • 周辺 | 坂戸市立千代田中学校まで1040m

  • 周辺 | ヤオコーワカバウォーク店まで400m

  • 周辺 | セブンイレブン若葉駅東口店まで240m

  • 周辺 | ローソン鶴ヶ島若葉店まで270m

  • 周辺 | ドラッグストアセキ若葉店まで211m

  • 周辺 | かなざわクリニックまで170m

  • 周辺 | 坂戸若葉駅前郵便局まで235m

  • 周辺 | 富士見西児童公園まで346m

所在地 埼玉県坂戸市千代田3丁目22-18
交通
  • 東武東上線 / 若葉駅 徒歩4分
  • 東武東上線 / 坂戸駅 徒歩28分

想定最大浸水深

  • 5.0m以上
  • 2.0〜5.0m未満
  • 1.0〜2.0m未満
  • 0.5〜1.0m未満
  • 0〜0.5m未満
浸水リスクについて
  • データ出典:国土交通省 国土政策局 国土数値情報 「国土数値情報 浸水想定区域データ」(平成24年度)をもとに株式会社LIFULLが編集・加工
  • 出典元の国土数値情報(浸水想定区域データ)は、以下のような適用限界がある事にご注意ください
  • 最新の情報および詳細は、各自治体の公表しているデータをご確認ください。
  • 表示される浸水想定区域のデータは、原典データを加工したものであり、実際の法令の適用の範囲については、ご自身でご確認ください。
  • 原典資料に浸水想定区域がなかったものは整備の対象外となるため、データには欠落・誤差が含まれますのでご注意ください。
  • 河川により、浸水シミュレーションの前提となる計画降雨が異なります。また、計画降雨の異なる河川の浸水想定区域が同一レイヤに表示されることになるため、注意する必要があります。
  • データは、都道府県単位で提供しています。従って、浸水想定区域が複数都道府県にまたがる場合は、範囲に含まれる全ての都道府県のデータを確認する必要があります。
  • 一辺76mのメッシュ単位の中で、想定最大浸水深が最も高い地点の情報を表示しています。厳密に地点を特定した情報については各自治体のデータをご確認ください。
  • ハザードマップの利用により、ご利用者様又は第三者に生じた損害については、ご利用者様がその責任を負うものとし、当社および出典元である国土交通省国土情報課、各データの原典作成者は一切責任を負いません。
  • ハザードマップの詳細な情報は「ハザードマップポータルサイト」でご確認いただけます。

建物周辺の施設充実度 72/100

無料査定依頼(所有者の方のみ)

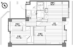
コスモ若葉ステーションアベニューの部屋情報

募集中2

※AI予測賃料・AI予測価格はLIFULL HOME'Sが独自で計算した参考情報であり、実際の取引価格とは異なります( 算出ロジックについて

希望のお部屋が見つからないあなたへ

このエリアを得意とする会社に問合せしてみませんか?当サイト内に掲載がない物件に出会える可能性も。

賃貸を取扱う会社

若葉駅の賃貸を取扱う会社一覧から探す

売買を取扱う会社

若葉駅の売買を取扱う会社一覧から探す

コスモ若葉ステーションアベニューの建物情報

物件概要

情報を編集する

物件種別 マンション
築年月(築年数) 1988年4月 (築39年)
建物構造 SRC(鉄骨鉄筋コンクリート)
建物階数 地上9階
総戸数 62戸
管理人 日勤
管理形態 全部委託
用途地域 第二種住居
土地権利 所有権
国土法届出 不要

この建物のすべての写真を見る

設備・条件

情報を編集する

  • 公営水道
  • 都市ガス
  • 下水
  • オートロック
  • 防犯カメラ
  • エレベーター
  • バイク置き場あり
  • 駐輪場あり
  • 平面駐車場

※最新の状態と異なる場合があります

LIFULL HOME'S 掲載履歴

コスモ若葉ステーションアベニューの売買掲載履歴

35

年/月 価格 専有面積
間取り
所在階
2026年3月 2780万円 74.24m²
3LDK
4階
2025年5月〜2025年10月 2290万円 63.37m²
3LDK
3階
2025年8月〜2025年9月 1490万円 74.24m²
3LDK
4階
2024年12月〜2025年7月 1598万円 74.24m²
3LDK
4階
2025年6月 1890万円 74.24m²
3LDK
8階
2025年4月〜2025年5月 1980万円 74.24m²
3LDK
8階
2025年3月 1200万円 63.37m²
3LDK
3階
2023年11月〜2024年9月 1680万円 -
3LDK
4階
2023年8月〜2023年10月 1750万円 -
3LDK
4階
2022年4月 2580万円 -
8階
2021年12月〜2022年1月 1380万円 71.15m²
8階
2021年5月〜2021年7月 2180万円 74.3m²
3LDK
3階
2021年1月〜2021年3月 1290万円 71.15m²
3LDK
7階
2020年11月〜2020年12月 1100万円 74.3m²
3LDK
3階
2020年3月〜2020年10月 1200万円 74.3m²
3LDK
3階
2020年9月〜2020年10月 1490万円 87.23m²
4LDK
9階
2020年6月〜2020年8月 1580万円 87.23m²
4LDK
9階
2020年3月〜2020年5月 1620万円 87.23m²
4LDK
9階
2019年11月〜2020年2月 1680万円 87.23m²
4LDK
9階
2019年6月〜2019年11月 2180万円 74.3m²
3LDK
5階
2019年6月〜2019年10月 1750万円 87.23m²
4LDK
9階
2019年9月 1998万円 74.24m²
3LDK
5階
2019年7月〜2019年8月 2198万円 74.24m²
3LDK
5階
2019年2月〜2019年5月 1890万円 87.23m²
4LDK
9階
2019年3月〜2019年5月 2380万円 74.3m²
3LDK
5階
2018年3月〜2018年5月 1480万円 75.4m²
4LDK
3階
2018年2月〜2018年3月 1650万円 75.77m²
4LDK
5階
2017年12月〜2018年1月 1750万円 75.77m²
4LDK
5階
2013年7月〜2013年10月 1380万円 74.24m²
3LDK
8階
2013年2月〜2013年6月 1400万円 71.14m²
3LDK
8階
2013年1月〜2013年4月 980万円 63.37m²
4LDK
1階
2010年7月〜2010年9月 1180万円 75.83m²
4LDK
4階
2009年10月〜2010年6月 1080万円 75.83m²
4LDK
4階
2009年8月〜2009年9月 1180万円 75.83m²
4LDK
4階
2009年1月〜2009年7月 1380万円 75.83m²
4LDK
4階

売買掲載履歴

売買掲載履歴とは、過去LIFULL HOME'Sに掲載された時点の情報を履歴として一覧にまとめたものです。

※最終的な成約価格とは異なる場合があります。また、将来の売出し価格を保証するものではありません。

坂戸市の価格相場を見る (中古マンションの価格相場)

コスモ若葉ステーションアベニューの賃貸掲載履歴

16

年/月 賃料 専有面積
間取り
所在階
2026年2月〜2026年3月 6万円 25.83m²
1R
6階
2024年12月〜2025年2月 9.5万円 71.15m²
3LDK
2階
2024年3月 8.8万円 -
3LDK
5階
2024年2月 9.5万円 -
3LDK
5階
2024年1月 10.5万円 -
3LDK
5階
2019年8月〜2019年10月 10万円 69.4m²
4LDK
1階
2017年4月〜2018年11月 9.8万円 73.04m²
4LDK
3階
2017年1月〜2017年2月 9.4万円 74.24m²
3LDK
8階
2016年5月〜2016年10月 8.9万円 74.24m²
3LDK
8階
2016年3月〜2016年4月 9.5万円 74.24m²
3LDK
8階
2014年11月 7.6万円 74.3m²
3LDK
3階
2014年10月 8万円 74.3m²
3LDK
3階
2014年9月 7.6万円 74.3m²
3LDK
3階
2013年8月 9万円 75.04m²
4LDK
3階
2012年5月〜2012年9月 11万円 74.04m²
4LDK
3階
2009年9月〜2009年12月 8.5万円 74.3m²
3LDK
3階

賃貸掲載履歴

賃貸掲載履歴とは、過去LIFULL HOME'Sに掲載された時点の情報を履歴として一覧にまとめたものです。

※最終的な成約賃料とは異なる場合があります。また、将来の募集賃料を保証するものではありません。

東武東上線の家賃相場を見る

口コミ情報

コスモ若葉ステーションアベニューの口コミ

建物スコア

4.0

建物スコア

建物スコアとは、他社から提供された建物に対するユーザー評価(口コミ平均点)を元に、LIFULL HOME'Sにおける建物の注目度(アクセス数など)を加味して、LIFULL HOME'Sが独自に算出したものです。

※本スコアは、LIFULL HOME'Sがユーザー評価や注目度を参考に独自に算出した参考情報であり、建物そのものの客観的な価値を評価・保証するものではありません。

14

交通情報

○ 良い点

その他

【若葉駅に対する口コミ】駅を出てすぐにワカバウォークがあり、映画館や、服屋、飲食店がいっぱいあって、欲しいものが揃うと思います!また、一日中時間を過ごすにも楽しめる場所となっています。都内までは、乗り...換えなしで行けるので便利です。
投稿日:2022.02 投稿ID:MR42293901M

by マンションレビュー

交通情報

△ 気になる点

その他

口コミで良い点と気になる点を1つずつ書くと、サイト内の気になる口コミが全て読めるようになります

非公開口コミを見る

投稿日:2022.02 投稿ID:MR42293901M

by マンションレビュー

交通情報

○ 良い点

住人・所有者(元住人を含む)

駅から近く、10年前にできたワカバウォークも買い物に便利。セブンイレブンやローソンも近くにあって、どんな時間でも買い物に出かけられる。
投稿日:2015.03 投稿ID:MR2016301M

by マンションレビュー

交通情報

△ 気になる点

住人・所有者(元住人を含む)

口コミで良い点と気になる点を1つずつ書くと、サイト内の気になる口コミが全て読めるようになります

非公開口コミを見る

投稿日:2015.03 投稿ID:MR2016301M

by マンションレビュー

立地・治安・周辺環境

○ 良い点

住人・所有者(元住人を含む)

必要なものが揃ってる割に、ガチャガチャしすぎることもなくほどよい。
投稿日:2015.03 投稿ID:MR2016302M

by マンションレビュー

立地・治安・周辺環境

△ 気になる点

住人・所有者(元住人を含む)

口コミで良い点と気になる点を1つずつ書くと、サイト内の気になる口コミが全て読めるようになります

非公開口コミを見る

投稿日:2015.03 投稿ID:MR2016302M

by マンションレビュー

外観・共用部分・設備

○ 良い点

住人・所有者(元住人を含む)

築年数にしてはそれなりにきれいだと思う。
投稿日:2015.03 投稿ID:MR2016303M

by マンションレビュー

外観・共用部分・設備

△ 気になる点

住人・所有者(元住人を含む)

口コミで良い点と気になる点を1つずつ書くと、サイト内の気になる口コミが全て読めるようになります

非公開口コミを見る

投稿日:2015.03 投稿ID:MR2016303M

by マンションレビュー

部屋の仕様・設備

○ 良い点

住人・所有者(元住人を含む)

可もなく不可もなく。昔のマンションなので、浴室乾燥とかはない。4階の棟の4階に住んでいるが、天井が高くて広く感じる。
投稿日:2015.03 投稿ID:MR2016304M

by マンションレビュー

部屋の仕様・設備

△ 気になる点

住人・所有者(元住人を含む)

口コミで良い点と気になる点を1つずつ書くと、サイト内の気になる口コミが全て読めるようになります

非公開口コミを見る

投稿日:2015.03 投稿ID:MR2016304M

by マンションレビュー

買い物・食事・周辺施設

○ 良い点

住人・所有者(元住人を含む)

ワカバウォーク(これがあるのでだいたい揃う)、ハンプティダンプティ、マツモトキヨシ、ローソン、セブンイレブン、セキ薬局
投稿日:2015.03 投稿ID:MR2016305M

by マンションレビュー

買い物・食事・周辺施設

△ 気になる点

住人・所有者(元住人を含む)

口コミで良い点と気になる点を1つずつ書くと、サイト内の気になる口コミが全て読めるようになります

非公開口コミを見る

投稿日:2015.03 投稿ID:MR2016305M

by マンションレビュー

子育て環境

○ 良い点

住人・所有者(元住人を含む)

歩道が整備されていて安全に遊びやすい。駅から離れる方に歩いて行くと大きな公園がある。
投稿日:2015.03 投稿ID:MR2016306M

by マンションレビュー

子育て環境

△ 気になる点

住人・所有者(元住人を含む)

口コミで良い点と気になる点を1つずつ書くと、サイト内の気になる口コミが全て読めるようになります

非公開口コミを見る

投稿日:2015.03 投稿ID:MR2016306M

by マンションレビュー

この物件の口コミを投稿する

※一部の口コミは他社から提供されたもので、情報の信憑性を保証するものではありません。

売りたい不動産をお持ちの方へ

このエリアの所有不動産を査定する

エリア
坂戸市千代田

売却査定手続きの流れ、費用相場や注意点など不動産売却について詳しく知りたい方は LIFULL HOME'S 不動産査定

コスモ若葉ステーションアベニューを売却査定する

コスモ若葉ステーションアベニューの不動産価値を調べる

コスモ若葉ステーションアベニューの周辺情報

周辺の施設充実度

総合スコア
72 / 100

この建物周辺では歩ける範囲に 多くの施設があり利便性が高い エリアと考えられます。

スーパー

76

コンビニ

70

弁当・惣菜

50

大型商業施設

55

ドラッグストア

66

飲食店

76

カフェ

57

医療施設

68

郵便局

68

交番

64

公園

66

習い事施設

59

子育て施設

76

建物周辺の施設充実度

この建物周辺の施設充実度をスコアでわかりやすく表しました。建物から半径1km圏内の各施設ごとの充実度とそれに基づく総合的な利便性を最高値100として算出しています。 これからの暮らしをイメージする参考としてご利用ください。

各カテゴリに含まれる施設は以下の通りです

スーパー
:スーパーマーケット
コンビニ
:コンビニエンスストア
弁当・惣菜
:弁当屋
大型商業施設
:百貨店・複合商業施設
ドラッグストア
:ドラッグストア
飲食店
:飲食店
カフェ
:コーヒーショップ
医療施設
:病院
郵便局
:郵便局
交番
:警察署、交番、派出所
公園
:公園、動物園、植物園、野球場、テニスコート
習い事教室
:塾・予備校、専門学校、スポーツクラブ
子育て施設
:保育園、幼稚園、小学校

周辺施設

買い物
日用品
  • ドラッグストアセキ若葉店
  • ローソン 鶴ヶ島若葉店
  • セブンイレブン 若葉駅東口店
  • スギ薬局ワカバウォーク店
買い物
大型店
  • ハニーズ 若葉店
  • ユニクロ ワカバウォーク店
  • ジーユー ワカバウォーク店
  • 無印良品 ワカバウォーク店
グルメ
  • サイゼリヤ 若葉店
  • スターバックスコーヒー鶴ヶ島若葉店
  • バーミヤン 若葉店
  • ジョナサン 若葉店
娯楽施設
  • シネプレックスわかば
  • 富士見中央近隣公園テニスコート
  • 稲荷久保公園
  • 千代田公園
役所
公共施設
  • 坂戸若葉駅前郵便局
  • 鶴ヶ島市役所若葉駅前出張所
  • 鶴ヶ島市立図書館富士見分室
  • 坂戸郵便局
保育施設
  • アスクわかば保育園
  • 若葉台幼稚園
  • 千代田保育園
  • 鶴ヶ島市立富士見保育所
学校
  • 私立女子栄養大学
  • 鶴ヶ島市立富士見中学校
  • 鶴ヶ島市立栄小学校
  • 国立筑波大学附属坂戸高校

※学区外の​学校が​含まれる​場合が​あります。​実際の​学区は​必ず各自治体へ​ご確認ください。

周辺施設

物件から半径1km以内の周辺施設を表示しています。

  • ※該当カテゴリに半径1km以内の施設が5件以上ある時は、4件まで表示しています。
  • ※周辺情報は株式会社LIFULLが地図情報の提供事業者から提供を受けた情報と、LIFULL HOME'Sの物件情報を元に生成した参考情報であり、現況とは異なる場合があります。
  • ※特に​学校に​ついては​学区を​考慮しておらず、​表示して​いる​学校に​通える​ことを​保証する​ものでは​ありません。​実際の​学区は​必ず​自治体へ​ご確認ください。

よくあるご質問

コスモ若葉ステーションアベニューに住みたいと思っています。家賃はいくらですか?
コスモ若葉ステーションアベニューに住みたいと思っています。売出し中の物件はありますか?
コスモ若葉ステーションアベニュー周辺はどんな街ですか?どんなお店があるか知りたいです。
コスモ若葉ステーションアベニュー周辺はお買い物に便利ですか?近くのお店が知りたいです。
コスモ若葉ステーションアベニュー周辺エリアに住みたいです。募集中の物件はありますか?
コスモ若葉ステーションアベニューの口コミが見たいです。どんな口コミがありますか?

コスモ若葉ステーションアベニュー周辺の物件情報

周辺の問合せ可能な物件

埼玉県坂戸市の問合せ可能な物件のうち、この物件の周辺にあるものから表示しています

一戸建て

坂戸市の一戸建て一覧から探す

不動産会社から探す

埼玉県の不動産会社一覧から検索できます

物件の種類から探す

坂戸市で募集中の物件のみを検索できます

買う

建てる、修繕・改修する

注文住宅・一戸建て購入の相談をする

資金計画や注文住宅・一戸建て購入の進め方、注意点などをハウジングアドバイザーに相談できます

ご利用案内

掲載情報に誤りや問題がある場合

LIFULL HOME'Sは「不動産会社」ではなく「情報掲載サイト」です

  • ※管理会社の情報はLIFULL HOME'Sでは保持していないためお答えできません。お問合せはお控えください
  • ※最新の募集状況は掲載中の不動産会社があれば、不動産会社へ直接お問合せください

掲載情報の誤りを指摘する
訂正の依頼をする

掲載情報の訂正依頼 専用ダイヤル

0120-987-243

  • 専用ダイヤル受付時間:10:00〜18:00
  • ※土日・祝日、臨時休業日は除く

不動産データのご利用について

不動産事業におけるDX、サービスの改善、新規事業開発等をご検討中の方へ不動産データの活用をご提案します。LIFULL HOME'Sで集約した不動産情報や外部データは、不動産事業DX、不正決済防止、ローン審査、事業開発、研究等さまざまな事業でご活用いただいています。詳しくは以下よりご確認ください。

不動産データ活用について詳細をみる

不動産アーカイブご利用アンケートにご協力ください

ご利用アンケートに回答する

不動産アーカイブの掲載情報は、LIFULL HOME'S掲載の不動産情報および提携先の不動産情報を統計情報として集積したものであり、その存在や信憑性を保証するものではありません。

ページTOPへ