このページは物件の広告情報ではありません。

過去にLIFULL HOME'Sへ掲載された不動産情報と提携先の地図情報を元に生成した参考情報です。また、一般から投稿された情報など主観的な情報も含みます。

情報更新日: 2026/02/15

代々木ハイライズ 2SLDK 5階

部屋情報

代々木ハイライズの写真一覧

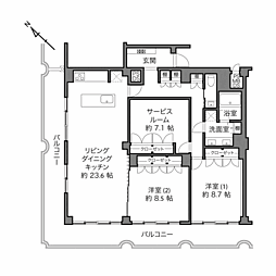
  • 間取り |

  • リビング/ダイニング | 約23.6帖のLDK。チーク材のパネルや塗装を施した天井・梁(はり)など、リノベ感に溢れた空間です。

  • リビング/ダイニング | LDKは南西と北西の二面採光。住戸をL字に囲むバルコニーのおかげで、開放感がたまりません。

  • リビング/ダイニング | キッチンからLDを見たカット。大きなダイニングテーブルを置いてもまだ余白が残る広さなので、存分にインテリアを楽しめます。

  • キッチン |

  • キッチン | キッチンはII型。コンロは調理中の油はねが気になりづらい壁向き、シンクは会話が弾むリビングダイニング向きという効率的な造りです。

  • 浴室 | 1418サイズの浴室は、浴室乾燥機付きです。

  • トイレ | トイレ内には独立手洗い器を設置しています。

  • トイレ | 廊下からアクセスするトイレ。シンプルなタンクレス仕様でゆとりあるスペースに。

  • 洗面 | 洗面台は忙しいご家族にうれしいダブルボウル仕様。洗面台下部の引き出し収納の他にも大きな両開き収納を備えています。正面の壁にはテラゾータイルが映えます。

  • 寝室 | 約7.2帖のサービスルーム。収納は壁一面にあり、頼もしい収納力です。

  • 寝室 | 約7.2帖のサービスルームは画像のようなシングルベッドだけでなく、ダブルサイズも置ける広さです。※イメージCG画像

  • 寝室 | 約7.2帖のサービスルームは窓はないものの、個室のように使える空間です

  • 洋室 |

  • 洋室 | 約8.7帖の洋室1。ダブルベッドを置いたイメージ※イメージCG画像

  • 洋室 | 約8.7帖の洋室1は南西向きのバルコニーに面しています。

  • 洋室 | 広さ約8.6帖の洋室2。ガラスパネルを閉じて空間を分けることも可能です。

  • 洋室 | 広さ約8.6帖の洋室2。両開きの収納が3か所に備わっています。

  • 室内 | 集合住宅では節約されがちな廊下のスペースですが、こちらの物件は余裕を感じる造り。写っていませんが、収納を豊富に設けています。

  • 玄関 | 壁一面にはトールタイプのシューズボックスが並びます。

  • 玄関 | 玄関土間はスーツケースやベビーカーなど外で使うアイテムも出しておける広さです。

  • その他 | 南東側の眺望。こちらは気になる視線はなく、青空を仰げそうです。

  • その他 | 北東側は正面に建物が。道路分距離は取れているものの、カーテン等目隠し対策は必要になりそう。

  • その他 | 年間1000件を超える取引を行う中古・リノベーション住宅の流通プラットフォームのカウカモ。その豊富なデータを元に、一住戸ずつ顧客起点でプロデュースし住み心地まで考え抜いたリノベーション物件です。

  • その他 | 共用ロビーのタイル壁面と石張りの床など、年月を重ねても変わらない上品さです。

  • その他 | 共用部エレベーター

  • バルコニー | 南東側のバルコニー。

  • バルコニー | 北東側のバルコニー。

物件概要

情報を編集する

所在地 東京都渋谷区代々木4丁目26-10
交通
  • 京王線 / 初台駅 徒歩6分
  • 小田急小田原線 / 参宮橋駅 徒歩10分
価格

1億 3,880万円

専有面積 114.32m²
所在階/階数 5階/6階
主採光 南西
間取り 2SLDK

想定最大浸水深

  • 5.0m以上
  • 2.0〜5.0m未満
  • 1.0〜2.0m未満
  • 0.5〜1.0m未満
  • 0〜0.5m未満
浸水リスクについて
  • データ出典:国土交通省 国土政策局 国土数値情報 「国土数値情報 浸水想定区域データ」(平成24年度)をもとに株式会社LIFULLが編集・加工
  • 出典元の国土数値情報(浸水想定区域データ)は、以下のような適用限界がある事にご注意ください
  • 最新の情報および詳細は、各自治体の公表しているデータをご確認ください。
  • 表示される浸水想定区域のデータは、原典データを加工したものであり、実際の法令の適用の範囲については、ご自身でご確認ください。
  • 原典資料に浸水想定区域がなかったものは整備の対象外となるため、データには欠落・誤差が含まれますのでご注意ください。
  • 河川により、浸水シミュレーションの前提となる計画降雨が異なります。また、計画降雨の異なる河川の浸水想定区域が同一レイヤに表示されることになるため、注意する必要があります。
  • データは、都道府県単位で提供しています。従って、浸水想定区域が複数都道府県にまたがる場合は、範囲に含まれる全ての都道府県のデータを確認する必要があります。
  • 一辺76mのメッシュ単位の中で、想定最大浸水深が最も高い地点の情報を表示しています。厳密に地点を特定した情報については各自治体のデータをご確認ください。
  • ハザードマップの利用により、ご利用者様又は第三者に生じた損害については、ご利用者様がその責任を負うものとし、当社および出典元である国土交通省国土情報課、各データの原典作成者は一切責任を負いません。
  • ハザードマップの詳細な情報は「ハザードマップポータルサイト」でご確認いただけます。

無料査定依頼(所有者の方のみ)

リフォーム・リノベーション情報

共有部分 2013年01月
大規模修繕工事
水回り 2025年09月
キッチン、浴室、トイレ、洗面所、給湯器、給排水管
内装 2025年09月
内装全面(床、壁、天井、建具すべて)

設備・条件

情報を編集する

※最新の状態と異なる場合があります

  • 公営水道
  • 都市ガス
  • 下水
  • オートロック
  • 防犯カメラ
  • エレベーター
  • ごみ出し24時間OK
  • バイク置き場あり
  • 駐輪場あり
  • 耐震構造(新耐震基準適合)
  • 事務所不可
  • ペット相談
  • 専用バス
  • 専用トイレ
  • バス・トイレ別
  • 追い焚き
  • シャワー
  • 温水洗浄便座
  • 浴室乾燥機
  • 浴室暖房
  • オートバス
  • タンクレストイレ
  • コンロ三口
  • システムキッチン
  • 食器洗い乾燥機
  • 給湯
  • 浄水器・活水器
  • エアコン
  • 全居室収納
  • クローゼット
  • シューズボックス
  • フローリング
  • 室内洗濯機置場
  • 全室フローリング
  • 角部屋

代々木ハイライズの部屋情報

募集中1

※AI予測賃料・AI予測価格はLIFULL HOME'Sが独自で計算した参考情報であり、実際の取引価格とは異なります(算出ロジックについて

LIFULL HOME'S 掲載履歴

代々木ハイライズの売買掲載履歴

3

年/月 価格
2025年12月〜2026年1月 1億3980万円
2025年11月 1億4480万円
2025年10月 1億5480万円

売買掲載履歴

売買掲載履歴とは、過去LIFULL HOME'Sに掲載された時点の情報を履歴として一覧にまとめたものです。

※最終的な成約価格とは異なる場合があります。また、将来の売出し価格を保証するものではありません。

渋谷区の価格相場を見る (中古マンションの価格相場)

代々木ハイライズの建物情報

物件概要

情報を編集する

物件種別 マンション
築年月(築年数) 1974年4月 (築52年)
建物構造 RC(鉄筋コンクリート)
建物階数 地上6階
総戸数 24戸
管理人 日勤
管理形態 全部委託
土地権利 所有権

売りたい不動産をお持ちの方へ

このエリアの所有不動産を査定する

エリア
渋谷区代々木

売却査定手続きの流れ、費用相場や注意点など不動産売却について詳しく知りたい方はLIFULL HOME'S 不動産査定

代々木ハイライズを売却査定する

代々木ハイライズの不動産価値を調べる

代々木ハイライズ周辺の物件情報

周辺の問合せ可能な物件

東京都渋谷区の問合せ可能な物件のうち、この物件の周辺にあるものから表示しています

不動産会社から探す

東京都の不動産会社一覧から検索できます

物件の種類から探す

渋谷区で募集中の物件のみを検索できます

建てる、修繕・改修する

注文住宅・一戸建て購入の相談をする

資金計画や注文住宅・一戸建て購入の進め方、注意点などをハウジングアドバイザーに相談できます

ご利用案内

掲載情報に誤りや問題がある場合

LIFULL HOME'Sは「不動産会社」ではなく「情報掲載サイト」です

  • ※管理会社の情報はLIFULL HOME'Sでは保持していないためお答えできません。お問合せはお控えください
  • ※最新の募集状況は掲載中の不動産会社があれば、不動産会社へ直接お問合せください

掲載情報の誤りを指摘する
訂正の依頼をする

掲載情報の訂正依頼 専用ダイヤル

0120-987-243

  • 専用ダイヤル受付時間:10:00〜18:00
  • ※土日・祝日、臨時休業日は除く

不動産データのご利用について

不動産事業におけるDX、サービスの改善、新規事業開発等をご検討中の方へ不動産データの活用をご提案します。LIFULL HOME'Sで集約した不動産情報や外部データは、不動産事業DX、不正決済防止、ローン審査、事業開発、研究等さまざまな事業でご活用いただいています。詳しくは以下よりご確認ください。

不動産データ活用について詳細をみる

不動産アーカイブご利用アンケートにご協力ください

ご利用アンケートに回答する

不動産アーカイブの掲載情報は、LIFULL HOME'S掲載の不動産情報および提携先の不動産情報を統計情報として集積したものであり、その存在や信憑性を保証するものではありません。

ページTOPへ