このページは物件の広告情報ではありません。

過去にLIFULL HOME'Sへ掲載された不動産情報と提携先の地図情報を元に生成した参考情報です。また、一般から投稿された情報など主観的な情報も含みます。

情報更新日: 2026/03/15

【募集中あり】メゾングラース京都十条 2LDK 2階

部屋情報

メゾングラース京都十条の写真一覧

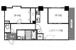
  • 間取り |

  • リビング/ダイニング |

  • リビング/ダイニング |

  • キッチン |

  • キッチン |

  • キッチン |

  • キッチン |

  • 浴室 |

  • 浴室 |

  • 浴室 |

  • 寝室 |

  • 子供部屋 |

  • 室内 |

  • 室内 |

  • 室内 |

  • 玄関 |

  • 玄関 |

  • その他 |

  • その他 |

  • その他 |

  • その他 |

物件概要

情報を編集する

所在地 京都府京都市南区東九条松田町28
交通
  • 近鉄京都線 / 十条駅 徒歩3分
  • 京都市営烏丸線 / 十条駅 徒歩9分
  • 近鉄京都線 / 東寺駅 徒歩12分
  • 近鉄京都線 / 上鳥羽口駅 徒歩14分
  • 京都市営烏丸線 / 九条駅 徒歩15分
  • 京阪本線 / 鳥羽街道駅 徒歩20分
  • JR東海道・山陽本線 / 京都駅 徒歩23分
AI予測賃料

10.1万円 〜 11.1万円

AI予測賃料とは

※LIFULL HOME'Sが独自で計算した参考情報であり、実際の取引価格とは異なります。 (算出ロジックについて

専有面積 50.6m²
所在階/階数 2階/4階
主採光
間取り 2LDK (洋室5.3帖 洋室6.0帖 リビングダイニングキッチン10.3帖)

想定最大浸水深

  • 5.0m以上
  • 2.0〜5.0m未満
  • 1.0〜2.0m未満
  • 0.5〜1.0m未満
  • 0〜0.5m未満
浸水リスクについて
  • データ出典:国土交通省 国土政策局 国土数値情報 「国土数値情報 浸水想定区域データ」(平成24年度)をもとに株式会社LIFULLが編集・加工
  • 出典元の国土数値情報(浸水想定区域データ)は、以下のような適用限界がある事にご注意ください
  • 最新の情報および詳細は、各自治体の公表しているデータをご確認ください。
  • 表示される浸水想定区域のデータは、原典データを加工したものであり、実際の法令の適用の範囲については、ご自身でご確認ください。
  • 原典資料に浸水想定区域がなかったものは整備の対象外となるため、データには欠落・誤差が含まれますのでご注意ください。
  • 河川により、浸水シミュレーションの前提となる計画降雨が異なります。また、計画降雨の異なる河川の浸水想定区域が同一レイヤに表示されることになるため、注意する必要があります。
  • データは、都道府県単位で提供しています。従って、浸水想定区域が複数都道府県にまたがる場合は、範囲に含まれる全ての都道府県のデータを確認する必要があります。
  • 一辺76mのメッシュ単位の中で、想定最大浸水深が最も高い地点の情報を表示しています。厳密に地点を特定した情報については各自治体のデータをご確認ください。
  • ハザードマップの利用により、ご利用者様又は第三者に生じた損害については、ご利用者様がその責任を負うものとし、当社および出典元である国土交通省国土情報課、各データの原典作成者は一切責任を負いません。
  • ハザードマップの詳細な情報は「ハザードマップポータルサイト」でご確認いただけます。

無料査定依頼(所有者の方のみ)

設備・条件

情報を編集する

※最新の状態と異なる場合があります

  • 公営水道
  • 都市ガス
  • 下水
  • オートロック
  • 防犯カメラ
  • エレベーター
  • ごみ出し24時間OK
  • バイク置き場あり
  • 駐輪場あり
  • タイル貼り
  • 専用バス
  • 専用トイレ
  • バス・トイレ別
  • 追い焚き
  • シャワー
  • 洗髪洗面化粧台
  • 温水洗浄便座
  • 浴室乾燥機
  • 独立洗面台
  • オートバス
  • コンロ三口
  • システムキッチン
  • 給湯
  • エアコン
  • クローゼット
  • シューズボックス
  • CATV
  • CS対応
  • BS対応
  • 光ファイバー
  • フローリング
  • バルコニー
  • 室内洗濯機置場
  • TVモニタ付インターホン
  • 角部屋

LIFULL HOME'S 掲載履歴

メゾングラース京都十条の賃貸掲載履歴

6

年/月 賃料
2026年3月 10万円 / 月
2026年1月〜2026年2月 10.3万円 / 月
2019年9月 9万円 / 月
2019年7月〜2019年8月 9.5万円 / 月
2018年7月〜2018年9月 9万円 / 月
2018年5月〜2018年6月 9.4万円 / 月

賃貸掲載履歴

賃貸掲載履歴とは、過去LIFULL HOME'Sに掲載された時点の情報を履歴として一覧にまとめたものです。

※最終的な成約賃料とは異なる場合があります。また、将来の募集賃料を保証するものではありません。

近鉄京都線の家賃相場を見る

メゾングラース京都十条の建物情報

物件概要

情報を編集する

物件種別 マンション
築年月(築年数) 2008年7月 (築18年)
建物構造 RC(鉄筋コンクリート)
建物階数 地上4階

売りたい不動産をお持ちの方へ

このエリアの所有不動産を査定する

エリア
京都市南区東九条松田町

売却査定手続きの流れ、費用相場や注意点など不動産売却について詳しく知りたい方はLIFULL HOME'S 不動産査定

メゾングラース京都十条を売却査定する

メゾングラース京都十条の不動産価値を調べる

メゾングラース京都十条周辺の物件情報

周辺の問合せ可能な物件

京都府京都市南区の問合せ可能な物件のうち、この物件の周辺にあるものから表示しています

賃貸

京都市南区の賃貸一覧から探す

不動産会社から探す

京都府の不動産会社一覧から検索できます

物件の種類から探す

京都市南区で募集中の物件のみを検索できます

建てる、修繕・改修する

注文住宅・一戸建て購入の相談をする

資金計画や注文住宅・一戸建て購入の進め方、注意点などをハウジングアドバイザーに相談できます

ご利用案内

掲載情報に誤りや問題がある場合

LIFULL HOME'Sは「不動産会社」ではなく「情報掲載サイト」です

  • ※管理会社の情報はLIFULL HOME'Sでは保持していないためお答えできません。お問合せはお控えください
  • ※最新の募集状況は掲載中の不動産会社があれば、不動産会社へ直接お問合せください

掲載情報の誤りを指摘する
訂正の依頼をする

掲載情報の訂正依頼 専用ダイヤル

0120-987-243

  • 専用ダイヤル受付時間:10:00〜18:00
  • ※土日・祝日、臨時休業日は除く

不動産データのご利用について

不動産事業におけるDX、サービスの改善、新規事業開発等をご検討中の方へ不動産データの活用をご提案します。LIFULL HOME'Sで集約した不動産情報や外部データは、不動産事業DX、不正決済防止、ローン審査、事業開発、研究等さまざまな事業でご活用いただいています。詳しくは以下よりご確認ください。

不動産データ活用について詳細をみる

不動産アーカイブご利用アンケートにご協力ください

ご利用アンケートに回答する

不動産アーカイブの掲載情報は、LIFULL HOME'S掲載の不動産情報および提携先の不動産情報を統計情報として集積したものであり、その存在や信憑性を保証するものではありません。

ページTOPへ