建築条件付き土地 糟屋郡志免町王子3丁目
【全3区画】土地面積は広々49坪超!前面道路幅員6m以上×穏やかな住環境。
■ゆとりある街区設計!全3区画の新コミュニティ。
■建ぺい率40%、容積率60%。
■2台分のカースペースを設けたプランをご検討可能(車種による)。
セカンドカーや来客時の駐車に便利です。
■前面道路は、アスファルト舗装。
■低層住宅が建ち並ぶ、第一種低層住居専用地域内。
■自然の彩りを感じられる、緑豊かな住環境。
■「ユニバ通り」や福岡県道68号「福岡太宰府線」に程近い立地。
0037-618-86790
無料
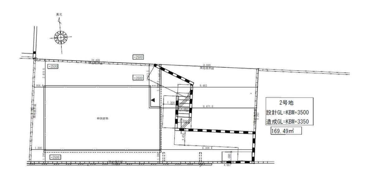
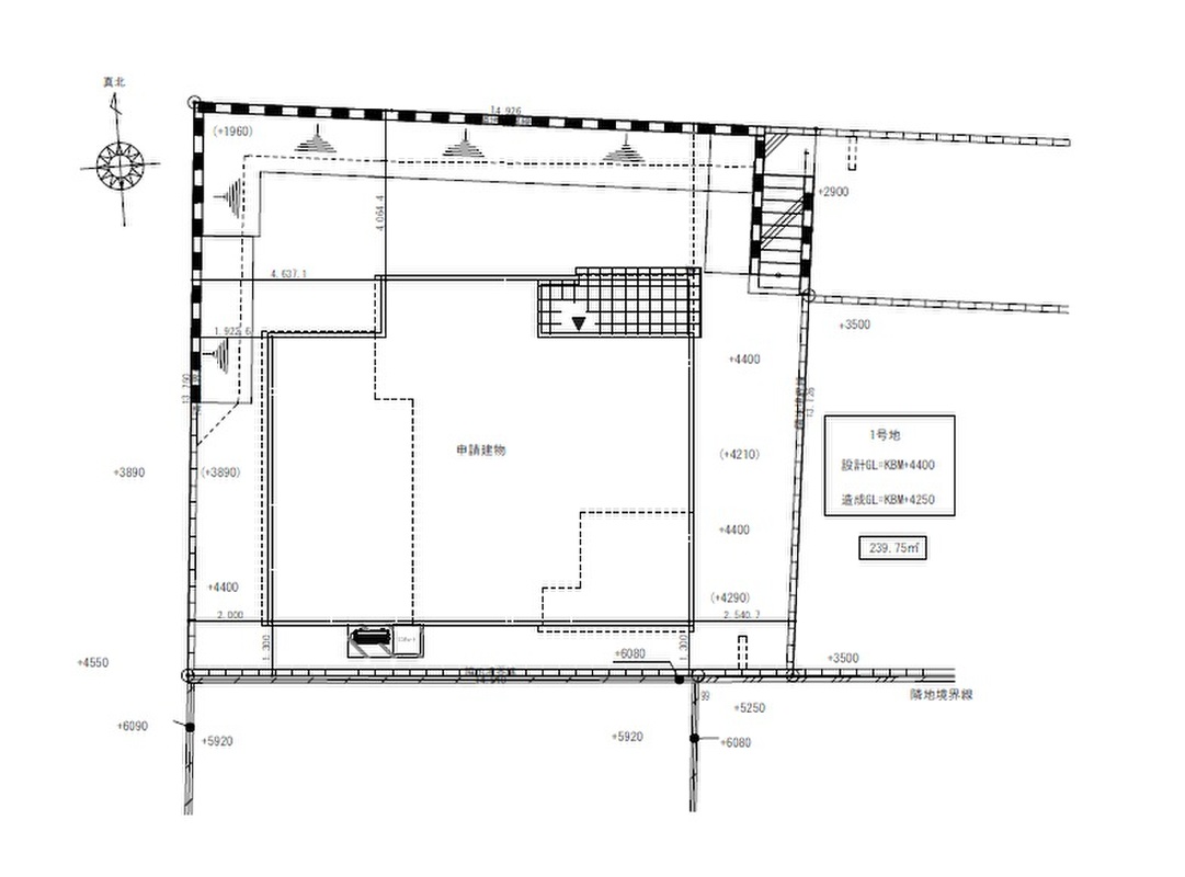
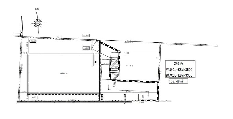
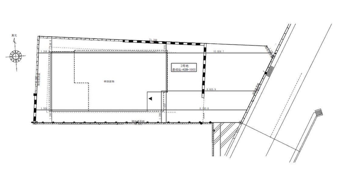
区画図
0037-618-86790
無料
外観・分譲地
外観・分譲地のこだわりポイント
- 駐車場あり
- 低層住宅地
- 敷地延長・変形地
- 前面道路6m以上
0037-618-86790
無料
周辺環境・地図
周辺情報
※半径4kmを超えると、周辺情報のアイコンは表示されません。
- ※不動産会社が入力した情報を基に物件の位置を表示しています。
- ※詳しくは不動産会社までお問合せください。
- ※地図上に表示される各種アイコンなどの情報は、おおよその所在地を表すものであり、物件・施設などの地点を保証するものではありません。
- ※地図の表示領域が広域になると周辺のお店・施設は表示できなくなります。
- ※地図、航空写真情報および地形ならびに周辺のお店・施設は、必ずしも現況を表すものではありません。
- ※物件から周辺のお店・施設までの距離は、利用が想定される道路を通行した場合の距離です。なお、必ずしも最短距離を保証するものではありません。
-
【買い物】
TRIAL GO 志免南里店 (約750m 徒歩10分)
食料品や日用品など、多彩な品揃えのあるスーパーマーケット。24...
-
【その他】
学校法人 山崎学園 志免中央幼稚園 (約1000m 徒歩13分)
テーマ活動や製作、言語、音楽、体育、社会など、季節や子どもの発...
-
【その他】
社会福祉法人翔空会 志免さくらこども園 (約1100m 徒歩14分。)
「自分で考えて、自分で動く」を保育理念に掲げられており、異年齢...
-
【学校】
志免町立志免中央小学校 (約1600m 徒歩20分)
教育目標は「ふるさと志免を愛し、主体的に協働してたくましく生き...
-
【学校】
志免町立志免中学校 (約1000m 徒歩13分)
周辺は緑豊かな環境で、四季折々の景色を楽しみながら通学できそう...
周辺環境のこだわりポイント
- スーパー 800m以内
0037-618-86790
無料
物件概要
| 所在地 | 福岡県糟屋郡志免町王子3丁目 | ||
|---|---|---|---|
| 交通 |
福岡市地下鉄空港線「福岡空港」駅 徒歩34分 |
||
| 販売価格 | 2538万円・2638万円 | 最多価格帯 | - |
| 建物面積 | - | 土地面積 | 165.05m2(約49.92坪)~239.75m2(約72.52坪) |
| 開発面積 | - | 建ぺい率・容積率 | 建ぺい率40% 容積率60% |
| 建築条件 | 建築条件付 建築条件付き土地とは一定期間内に、その土地に建築する建物の請負契約が締結されることを条件に販売される土地のことです。 土地売買契約締結後、建築請負会社と購入した土地に建築する建物について協議することになります。広告に参考プランが掲載されている場合でも、プランは一例であり、実際の建築プランは建築請負会社と土地購入者で協議・検討することが可能です。 期間内に建築プランが決まらず建築請負契約が成立しなければ土地売買契約は白紙となり、支払済みの金銭はすべて返還されます。 建築請負会社が指定されている場合と指定されていない場合があります。 また、建築条件付き土地の価格には、建物価格は含まれません。 |
||
| 販売スケジュール | 販売中 | ||
| 販売区画数 / 総区画数 | 3区画 / 3区画 | ||
| 造成完了予定日 | - | 引き渡し可能年月 | 相談 |
| 駐車場 | 1台 ~ 2台 | 道路の幅員 | 東側:約6.35~6.40m |
| 用途地域 | 第一種低層住居専用地域 | 都市計画 | - |
| 地目 | 国土法 | - | |
| 土地の権利 | 所有権 | 借地権の種類・期間 | - |
| 主たる設備の概要 | 公営水道、本下水、ガス:プロパン、雨水排水:側溝 | 開発許可番号 | 開発許可申請不要な土地のためなし |
| 施工会社 | - | 機構融資 | - |
| 売主 | 取引態様 | アバンティア不動産(専任媒介) | |
| 備考 | ※通路敷地:1号地66.38m2、2号地65.12m2 ※宅地造成工事規制区域 外 ※法22条指定区域 ※絶対高有:10m ※壁面後退有:1.0m ※最低敷地面積有:165m2(開発事業の場合は平均140m2以上) ※航空法による規制あり ※隣地との間に最大約3.0mを超える高低差有。がけ条件の適用により、建築に制限が生じる場合があります。 ※この土地は、土地売買契約後60日以内に売主会社が指定する建築会社と建物の建築請負契約を締結することを条件に販売します。この期間内に建築請負契約を締結されなかった場合は、土地売買契約は白紙となり、受領した手付金等の土地代金は全てお返しします。 | ||
| 情報更新日 | 2026/05/01 | 次回更新予定日 | 2026/05/15 |
| 取引条件有効期限 | 2026/05/31 | ||
販売概要・権利のこだわりポイント
- 建築条件付き
- 所有権
0037-618-86790
無料
取扱い不動産会社
株式会社アバンティア不動産 福岡営業所の会社情報
お電話でのお問合せは「LIFULL HOME'S(ライフルホームズ)を見て」とお伝えください
アバンティア不動産
0037-618-86790
無料
- ※携帯電話はご利用いただけます
- ※光IP電話、及びIP電話をご利用のお客様はTEL:0120-343-403へご連絡ください
- ※携帯電話からお問合せいただいた方には、ショートメッセージ(SMS)またはLINE通知メッセージによるお問合せ内容に関する通知をお届けする場合があり、お客様の電話番号は株式会社LIFULLで一定期間保管されます
- ※株式会社LIFULLの個人情報の取扱い方針に同意のうえ、お電話ください
| 会社名 |
株式会社アバンティア不動産 福岡営業所 |
|---|---|
| 免許番号 | 国土交通大臣 (1) 第 10901 号 |
| 所在地 | 福岡県福岡市城南区長尾4丁目18-9 |
| 所属団体 |
東海不動産公正取引協議会 |
この物件にお問合せする
不動産会社に電話で相談したい!
アバンティア不動産
0037-618-86790
無料
電話でのお問合せは「LIFULL HOME'S(ライフルホームズ)を見て」とお伝えください
- ※携帯電話はご利用いただけます
- ※光IP電話、及びIP電話をご利用のお客様はTEL:0120-343-403へご連絡ください
- ※携帯電話からお問合せいただいた方には、ショートメッセージ(SMS)またはLINE通知メッセージによるお問合せ内容に関する通知をお届けする場合があり、お客様の電話番号は株式会社LIFULLで一定期間保管されます
- ※株式会社LIFULLの個人情報の取扱い方針に同意のうえ、お電話ください
LIFULL HOME'Sは物件鮮度No.1を目指していきます 物件情報に誤りがある場合はコチラからご連絡ください
- 【物件番号】
- 1707957-0000126
- ※完成後1年未満で未入居の物件を「新築」と表示しております。
- ※完成予想図やCG合成画像は、門塀・植栽・庭・外観等、実際とは多少異なる場合があります。
物件を再検索する
福岡県の人気エリアから土地を探す
