土地 葛城市長尾第1期3区画 55坪 1980万円
葛城市長尾に新規分譲地をスタートします。敷地面積は50坪と55坪、磐城駅から徒歩約4分でとても便利、道も広くお車の運転が苦手な方でも車庫入れも楽々です。
磐城小学校まで400m、徒歩5分。白鳳中学校まで450m、徒歩6分。マンダイまで1.4km、徒歩19分、自転車で約9分です。お車での買い物はオークワまで2.1kmです。
敷地が広くて形が良いと間取りのバリエーションが増えて楽しいですよね。平屋をお考えの方にもおすすめです。
0037-618-18477
無料
魅力1 磐城駅から徒歩5分で全区画広めの敷地です
0037-618-18477
無料
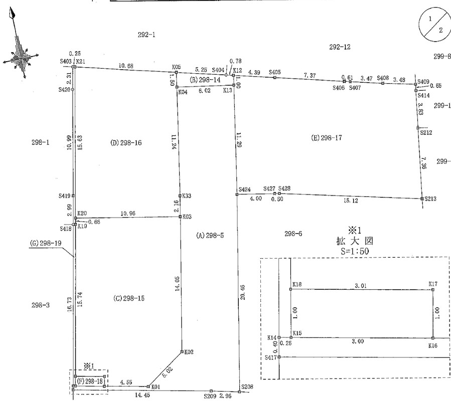
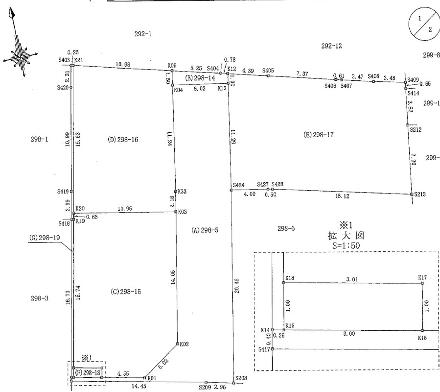
区画図
0037-618-18477
無料
内観・室内
0037-618-18477
無料
外観・分譲地
外観・分譲地のこだわりポイント
- 駐車場あり
- 角地
- 南道路
- 整形地
- 前面道路6m以上
- 平坦地
0037-618-18477
無料
周辺環境・地図
周辺情報
※半径4kmを超えると、周辺情報のアイコンは表示されません。
- ※不動産会社が入力した情報を基に物件の位置を表示しています。
- ※詳しくは不動産会社までお問合せください。
- ※地図上に表示される各種アイコンなどの情報は、おおよその所在地を表すものであり、物件・施設などの地点を保証するものではありません。
- ※地図の表示領域が広域になると周辺のお店・施設は表示できなくなります。
- ※地図、航空写真情報および地形ならびに周辺のお店・施設は、必ずしも現況を表すものではありません。
- ※物件から周辺のお店・施設までの距離は、利用が想定される道路を通行した場合の距離です。なお、必ずしも最短距離を保証するものではありません。
周辺環境のこだわりポイント
- 小学校 800m以内
- 中学校 800m以内
0037-618-18477
無料
物件概要
| 所在地 | 奈良県葛城市長尾 | ||
|---|---|---|---|
| 交通 |
近鉄南大阪線「磐城」駅 徒歩4分 |
||
| 販売価格 | 1780~1980万円 | 最多価格帯 | - |
| 建物面積 | - | 土地面積 | 165.35m2~184.26m2 |
| 開発面積 | - | 建ぺい率・容積率 | 建ぺい率60% 容積率200% |
| 建築条件 | 建築条件無 建築条件付き土地とは一定期間内に、その土地に建築する建物の請負契約が締結されることを条件に販売される土地のことです。 土地売買契約締結後、建築請負会社と購入した土地に建築する建物について協議することになります。広告に参考プランが掲載されている場合でも、プランは一例であり、実際の建築プランは建築請負会社と土地購入者で協議・検討することが可能です。 期間内に建築プランが決まらず建築請負契約が成立しなければ土地売買契約は白紙となり、支払済みの金銭はすべて返還されます。 建築請負会社が指定されている場合と指定されていない場合があります。 また、建築条件付き土地の価格には、建物価格は含まれません。 |
||
| 販売スケジュール | 販売中 | ||
| 販売区画数 / 総区画数 | 2区画 / 3区画 | ||
| 造成完了予定日 | 完了 | 引き渡し可能年月 | 相談 |
| 駐車場 | 2台 | 道路の幅員 | 6m |
| 用途地域 | 第一種住居地域 | 都市計画 | 市街化区域 |
| 地目 | 宅地 | 国土法 | 不要 |
| 土地の権利 | 所有権 | 借地権の種類・期間 | - |
| 主たる設備の概要 | 電気、水道、公共下水 | 開発許可番号 | 高土第1072号 |
| 施工会社 | - | 機構融資 | - |
| 売主 | 株式会社DAI-SEI他 [奈良県知事(2)第4334号] | 取引態様 | 株式会社 DAI-SEI/仲介、売主 |
| 備考 | 香芝市、葛城市、田原本町、斑鳩町など他にも物件が多数あります。建物についてもご相談ください、エアコン1台で全館空調するお家を造っています。 | ||
| 情報更新日 | 2026/01/10 | 次回更新予定日 | 随時 |
| 取引条件有効期限 | 2026/03/31 | ||
販売概要・権利のこだわりポイント
- 所有権
- 売主・代理
- 自由設計対応
0037-618-18477
無料
取扱い不動産会社
株式会社DAI-SEIの会社情報
お電話でのお問合せは「LIFULL HOME'S(ライフルホームズ)を見て」とお伝えください
株式会社DAI-SEI
0037-618-18477
無料
- ※携帯電話はご利用いただけます
- ※光IP電話、及びIP電話をご利用のお客様はTEL:0745-51-0201へご連絡ください
- ※携帯電話からお問合せいただいた方には、ショートメッセージ(SMS)またはLINE通知メッセージによるお問合せ内容に関する通知をお届けする場合があり、お客様の電話番号は株式会社LIFULLで一定期間保管されます
- ※株式会社LIFULLの個人情報の取扱い方針に同意のうえ、お電話ください
| 会社名 |
株式会社DAI-SEI |
|---|---|
| 免許番号 | 奈良県知事 (1) 第 4334 号 |
| 所在地 | 奈良県香芝市高山台1‐17 |
| 所属団体 |
(公社)奈良県宅地建物取引業協会 |
この物件にお問合せする
実際に物件・周辺環境を見て検討したい!
近隣建物や接道の状況など資料で分からない部分も一目瞭然。 まずはWEBで事前予約、スムーズに見学しましょう
ご予約無しに直接ご来場された場合、担当者不在であったり、
他のお客様のご案内の都合上、お待たせしてしまうことがございます。
不動産会社に電話で相談したい!
株式会社DAI-SEI
0037-618-18477
無料
電話でのお問合せは「LIFULL HOME'S(ライフルホームズ)を見て」とお伝えください
- ※携帯電話はご利用いただけます
- ※光IP電話、及びIP電話をご利用のお客様はTEL:0745-51-0201へご連絡ください
- ※携帯電話からお問合せいただいた方には、ショートメッセージ(SMS)またはLINE通知メッセージによるお問合せ内容に関する通知をお届けする場合があり、お客様の電話番号は株式会社LIFULLで一定期間保管されます
- ※株式会社LIFULLの個人情報の取扱い方針に同意のうえ、お電話ください
LIFULL HOME'Sは物件鮮度No.1を目指していきます 物件情報に誤りがある場合はコチラからご連絡ください
- 【物件番号】
- 1707242-0000051
- ※完成後1年未満で未入居の物件を「新築」と表示しております。
- ※完成予想図やCG合成画像は、門塀・植栽・庭・外観等、実際とは多少異なる場合があります。









