建築条件付き土地 ~Natural Wood Town 和泉市上町~
2026年度補助金【みらいエコ住宅2026補助金事業】制度が始まります。サンエーホーム(株)は事業者登録をしているため、新築の場合75万~110万円分になります。(対象条件は個人差があります。)
マイホームを建てて、毎月のローンの支払いが【5万円台】も可能のになる物件になります。 賃貸よりも安く毎月のコストを下げれる物件です。 ※内容は個人差があります。
予算が心配な方は専属のファイナンシャルプランナーいてますので、ご気軽にご相談ください。ローンの無料相談も実施しております。
0037-618-98272
無料
魅力1 昔から建設用に使われてきたヒノキ
ヒノキは比較的乾燥が容易で、木目がまっすぐ均質であるため狂いが少なく加工性が良いという特性をもっています。耐湿・耐水性に優れ保存性が高く世界最高レベルの木材といわれています。日本書紀に「スギとクスノキは舟に、ヒノキは宮殿に、マキは棺に使いなさい」と記されています。 ヒノキは昔から宮殿建設用木材として最適であることが知られていました。世界最古の木造建築物といわれる法隆寺や伊勢神宮にもヒノキが使われています。身近なところでは和泉市にある池上曽根遺跡で発見された弥生時代の建物の柱にヒノキが使われ、柱の半分以上が腐らずに見つかっています。建物の復旧には同市父鬼町で伐採されたヒノキを使っているそうです。
魅力2 優しい雰囲気のあるヒノキの加工品
加工されたヒノキは美しい光沢と優しい雰囲気をもっています。特有の芳香があり、ヒノキ風呂、ヒノキ酒器など、その香りは多くの人に好まれています。この他にもヒノキには、気分を落ち着かせる効果があったり抗菌効果をもつ物質が多く含まれているため、 まな板等にも用いられています。また、ヒノキチオールという成分は防蟻効果があるといわれています。
魅力3 「檜舞台に立つ」
江戸時代に高品質なヒノキは神社建築等に多く使用され、枯渇寸前となり幕府はヒノキの伐採を制限しました。この制限は能舞台に使用する木材にも適応され、幕府公認の大劇場以外の建築にヒノキは使用できなくなりました。つまり、ヒノキで造った舞台は権威ある劇場だけであり、そこに立てるのは一流の役者だけだったのです。そこから晴れの舞台に立ち腕前を披露することを「檜舞台に立つ」というようになったそうです。
0037-618-98272
無料
区画図
0037-618-98272
無料
内観・室内
0037-618-98272
無料
設備・仕様
設備・仕様のこだわりポイント
- その他設備
-
- 都市ガス
0037-618-98272
無料
外観・分譲地
外観・分譲地のこだわりポイント
- 駐車場あり
- 南道路
- 整形地
- 平坦地
0037-618-98272
無料
参考プラン
0037-618-98272
無料
周辺環境・地図
周辺情報
※半径4kmを超えると、周辺情報のアイコンは表示されません。
- ※不動産会社が入力した情報を基に物件の位置を表示しています。
- ※詳しくは不動産会社までお問合せください。
- ※地図上に表示される各種アイコンなどの情報は、おおよその所在地を表すものであり、物件・施設などの地点を保証するものではありません。
- ※地図の表示領域が広域になると周辺のお店・施設は表示できなくなります。
- ※地図、航空写真情報および地形ならびに周辺のお店・施設は、必ずしも現況を表すものではありません。
- ※物件から周辺のお店・施設までの距離は、利用が想定される道路を通行した場合の距離です。なお、必ずしも最短距離を保証するものではありません。
周辺環境のこだわりポイント
- スーパー 800m以内
- コンビニ 400m以内
- 小学校 800m以内
- 総合病院 800m以内
- 公園 400m以内
- 中学校 800m以内
0037-618-98272
無料
物件概要
| 所在地 | 大阪府和泉市上町363-12 | ||
|---|---|---|---|
| 交通 |
JR阪和線「北信太」駅 徒歩12分~15分 |
||
| 販売価格 | 362万円 | 最多価格帯 | - |
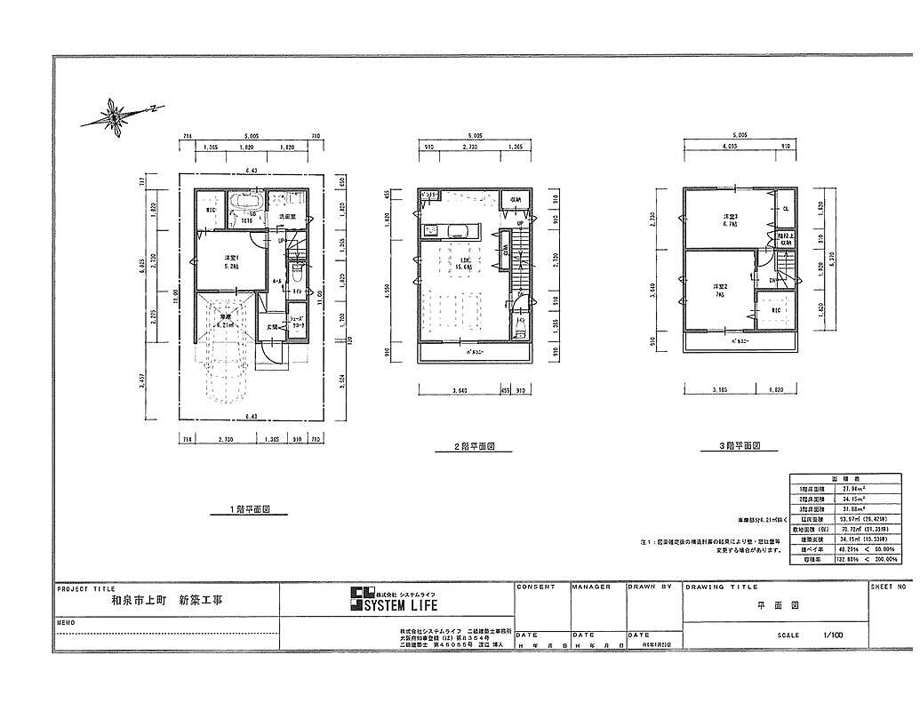
| 建物面積 | - | 土地面積 | 70.72m2 |
| 開発面積 | - | 建ぺい率・容積率 | 建ぺい率60% 容積率200% |
| 建築条件 | 建築条件付 建築条件付き土地とは一定期間内に、その土地に建築する建物の請負契約が締結されることを条件に販売される土地のことです。 土地売買契約締結後、建築請負会社と購入した土地に建築する建物について協議することになります。広告に参考プランが掲載されている場合でも、プランは一例であり、実際の建築プランは建築請負会社と土地購入者で協議・検討することが可能です。 期間内に建築プランが決まらず建築請負契約が成立しなければ土地売買契約は白紙となり、支払済みの金銭はすべて返還されます。 建築請負会社が指定されている場合と指定されていない場合があります。 また、建築条件付き土地の価格には、建物価格は含まれません。 |
||
| 販売スケジュール | 先着順受付中 | ||
| 販売区画数 / 総区画数 | 1区画 / 1区画 | ||
| 造成完了予定日 | 2025年7月 | 引き渡し可能年月 | 相談 |
| 駐車場 | 1台 ~ 2台 | 道路の幅員 | 東側 幅員約4.9m |
| 用途地域 | 第二種住居地域 | 都市計画 | 市街化区域 |
| 地目 | 宅地 | 国土法 | 日本 |
| 土地の権利 | 所有権 | 借地権の種類・期間 | - |
| 主たる設備の概要 | 都市ガス、公営水道、公共下水、関西電力 | 開発許可番号 | 完成済みのため省略 |
| 施工会社 | サンエーホーム株式会社 | 機構融資 | - |
| 売主 | サンエーホーム株式会社 [大阪府知事(7)第42772号] | 取引態様 | サンエーホーム株式会社/売主 |
| 備考 |
01ヒノキの躰体(ハコ) 私たちの家づくりの第一歩として、まず強い家から始まります。 住まう人が安心して過ごせることが、最も大切であると考えています。 柱・梁を含む全ての構造材に国産ヒノキ材を使用し、接合部分は高精度・高強度を誇る特殊金物で接合することにより強固な躯体(ハコ)を実現しました。 02健康に暮らす 私たちは人生の長い時間を家で過ごします。 この大切な家を建てる時に多くの人が間取りや外観などを真剣に考えますが「どのような建材を使っているのか?」ということに関心を持たれている方は少ないのかもしれません。 建材に使用される化学物質は少しづつ室内に広がり、私たちの知らない間に体内に蓄積されていきます。微量で反応する人もいれば、長く住んでも症状に出ない人もいます。 しかし高断熱・高気密性が進んできた最近の住宅では、揮発性の化学物質が室内に閉じ込められがちになっています。 そこで、出来る限り化学物質を使用した建材を使わないことが注目されてきており、少しでも健康に暮らせる家づくりをすることが私たちの考えです。 03自然素材 無垢材や漆喰などの自然素材で建てた家は空気が新鮮でシックハウスの原因となる化学物質が極めて少なく快適さを実感できます。 また自然素材そのものが呼吸する素材であるため、夏は室内の湿気を調整し冬は結露が起きにくく、カビやダニの発生も少ないとされています。 04ちょうどいい家 ショッピングに出かけて服を試着した時に自分にピッタリ合うと、すごく気持ちがいいですよね。 反対に少しサイズの違ったものを買ってしまうと、愛着がなくなって着る機会も少なくなってしまうことってありませんか? 家を建てるのもよく似ていると思うんです。 広すぎるリビングは落ち着かなかったり、収納スペースが少なかったり・・・。 購入時にかかる諸経費や家具、電化製品も含めてどのくらいの費用が必要になるのか、月々支払う住宅ローンにも無理がないか、将来金利が上がることも想定しながら慎重にすすめていきましょう。 自分たちにピッタリな家づくりをしていただくために私たちのショールームで住空間を体験していただき、お客様にとっての「ちょうどいい」を見つけていただければと思っています。 05提案力~理想の家~ 「理想の家」とは何を意味するのでしょうか? もちろん家族構成やライフスタイルによって様々ですよね。 間取り、外観デザイン、インテリア、外構・・・私たちがご提案させていただく項目はたくさんあります。 設計には大きく二つの要素があると考えています。 一つは外観の美しさ、カッコ良さを表現する「デザイン設計」。 もう一つは住まう人が快適に暮らせる「空間設計」。 この二つの設計要素のバランスがとても重要で、デザイン重視になると住みにくい家になったり空間設計だけが先行すると外観の美しさが欠けてしまいます。 私たちはこの二つの要素を調和させながら、家族構成とライフスタイルに合った愛着のもてる家づくりをご提案いたします。 サンエーホームのご提案↓↓↓↓↓ http://aaahome.jp/?page_id=270 ショールームご案内↓↓↓↓↓ http://aaahome.jp/?page_id=3443 |
||
| 情報更新日 | 2026/05/16 | 次回更新予定日 | 2026/05/30 |
| 取引条件有効期限 | 2026/12/28 | ||
販売概要・権利のこだわりポイント
- 建築条件付き
- 所有権
- 仲介手数料不要
- 売主・代理
- 自由設計対応
0037-618-98272
無料
取扱い不動産会社
スタッフからのコメント
- ショールーム
- ひとつの区画が上町にできますので、環境・治安などがすごくいい所になります。
北信太駅・カナートモールなど商業施設が近場に揃っている為、住みやすい環境が整っております。
ぜひ一度上町分譲地を見てみませんか。
木下 翔太
サンエーホーム株式会社の会社情報
お電話でのお問合せは「LIFULL HOME'S(ライフルホームズ)を見て」とお伝えください
サンエーホーム株式会社
0037-618-98272
無料
- ※携帯電話はご利用いただけます
- ※光IP電話、及びIP電話をご利用のお客様はTEL:0725562100へご連絡ください
- ※携帯電話からお問合せいただいた方には、ショートメッセージ(SMS)またはLINE通知メッセージによるお問合せ内容に関する通知をお届けする場合があり、お客様の電話番号は株式会社LIFULLで一定期間保管されます
- ※株式会社LIFULLの個人情報の取扱い方針に同意のうえ、お電話ください
| 会社名 |
サンエーホーム株式会社 |
|---|---|
| 免許番号 | 大阪府知事 (5) 第 42772 号 |
| 所在地 | 大阪府和泉市池田下町236-3 |
| 所属団体 |
(一社)大阪府宅地建物取引業協会 |
この物件にお問合せする
実際に物件・周辺環境を見て検討したい!
近隣建物や接道の状況など資料で分からない部分も一目瞭然。 まずはWEBで事前予約、スムーズに見学しましょう
ご予約無しに直接ご来場された場合、担当者不在であったり、
他のお客様のご案内の都合上、お待たせしてしまうことがございます。
不動産会社に電話で相談したい!
サンエーホーム株式会社
0037-618-98272
無料
電話でのお問合せは「LIFULL HOME'S(ライフルホームズ)を見て」とお伝えください
- ※携帯電話はご利用いただけます
- ※光IP電話、及びIP電話をご利用のお客様はTEL:0725562100へご連絡ください
- ※携帯電話からお問合せいただいた方には、ショートメッセージ(SMS)またはLINE通知メッセージによるお問合せ内容に関する通知をお届けする場合があり、お客様の電話番号は株式会社LIFULLで一定期間保管されます
- ※株式会社LIFULLの個人情報の取扱い方針に同意のうえ、お電話ください
LIFULL HOME'Sは物件鮮度No.1を目指していきます 物件情報に誤りがある場合はコチラからご連絡ください
- 【物件番号】
- 1706090-0000094
- ※完成後1年未満で未入居の物件を「新築」と表示しております。
- ※完成予想図やCG合成画像は、門塀・植栽・庭・外観等、実際とは多少異なる場合があります。
物件を再検索する
大阪府の人気エリアから土地を探す














