建築条件付き土地 トゥルータウン湖南市菩提寺
- 価格
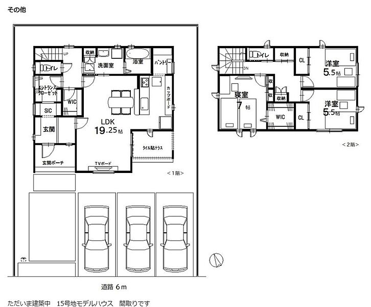
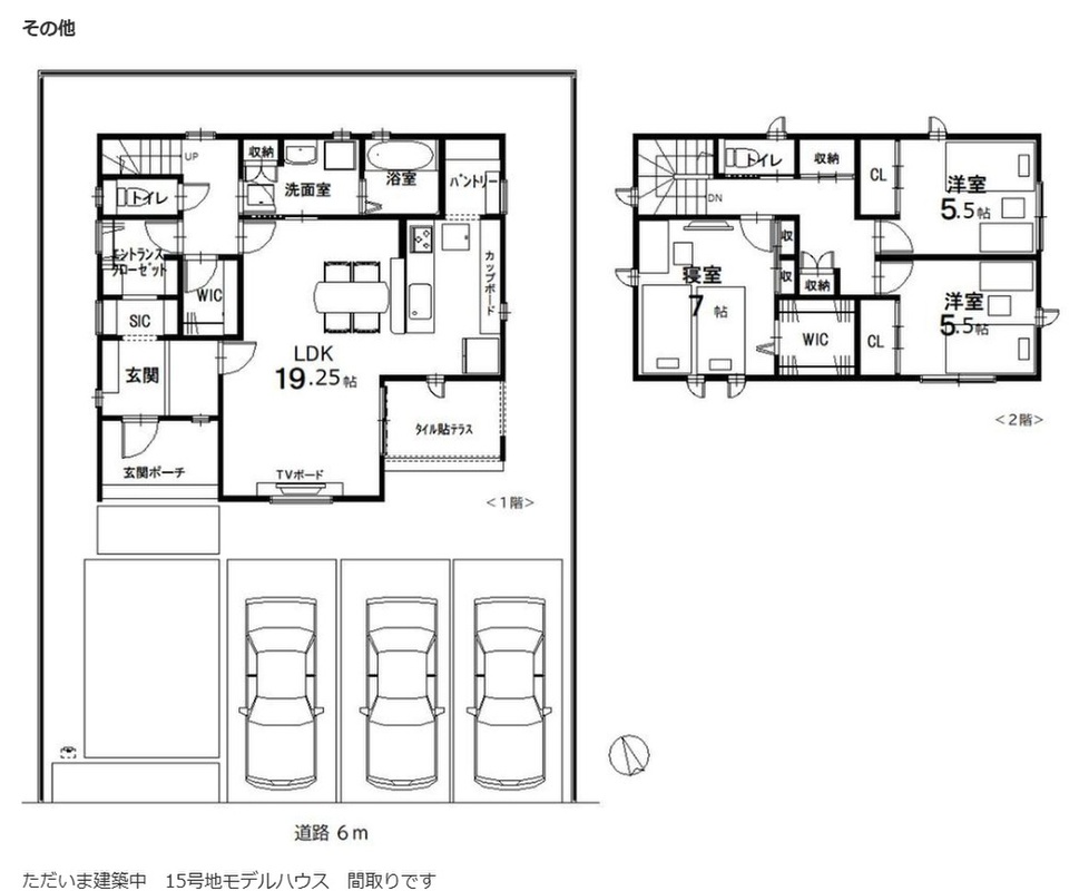
- 999万円~1099万円・建売住宅もございます 15号地:3490万円
- 所在地
- 滋賀県湖南市菩提寺字広野330-162他
- 交通
- JR草津線「石部」駅 バス23分「イワタニ東口停」バス停 徒歩3分~4分
乗り換え案内
- 土地面積
- 200.71m2~201.56m2(60.71坪~60.97坪)(登記)
- 販売区画数 / 総区画数
- 4区画 / 29区画
- 建築条件
- 付
全区画60坪以上! 総29区画の街 好評分譲中!!■□近江富士を眺めながら豊かに暮らす街■□緑豊かな住宅地です■□
■□JR草津線「石部」バス23分イワタニ東口停歩3分~4分■□最寄りには保育園・こども園が3つあります。■□ファミリーマート湖南菩提寺店まで徒歩4分(約290m)■□
■□マコトホーム株式会社 現地モデルハウスご覧いただけます【予約制】
まずはお気軽にお問合せ下さい 詳しい資料お届けします■□
0037-633-32303
無料
内観・室内
0037-633-32303
無料
設備・仕様
0037-633-32303
無料
外観・分譲地
外観・分譲地のこだわりポイント
- 総戸数・総区画数が10以上〜30未満
- 角地
- 南道路
- 整形地
- 前面道路6m以上
0037-633-32303
無料
参考プラン
0037-633-32303
無料
周辺環境・地図
-
【買い物】
ファミリーマート湖南菩提寺店 (290m 徒歩4分)
■□24時間営業■□徒歩5分以内!■□
-
【学校】
ひかり認定こども園 (1260m 徒歩約16分)
■□幼稚園型認定こども園 平成元年開園■□音楽リズム・体育・表...
-
【学校】
菩提寺優愛保育園モンチ (1150m 徒歩約15分)
■□2021年には内外装をリニューアル■□第2園庭には、人口の...
-
【学校】
京進のほいくえんHOPPA菩提寺西 (1020m 徒歩約13分)
■□湖南市の認可保育園■□English timeなどの教育カ...
-
【学校】
菩提寺北小学校 (1440m 徒歩約18分)
■□学校教育目標「豊かな心と 生涯学び続ける力を持ち、たくまし...
-
案内図
-
交通図
周辺環境のこだわりポイント
- コンビニ 400m以内
0037-633-32303
無料
物件概要
| 所在地 | 滋賀県湖南市菩提寺字広野330-162他 | ||
|---|---|---|---|
| 交通 |
JR草津線「石部」駅 バス23分「イワタニ東口停」バス停 徒歩3分~4分 |
||
| 販売価格 | 999万円~1099万円・建売住宅もございます 15号地:3490万円 | 最多価格帯 | 900万円台(2区画) |
| 建物面積 | - | 土地面積 | 200.71m2~201.56m2(60.71坪~60.97坪)(登記) |
| 開発面積 | 9633.29m2 | 建ぺい率・容積率 | 建ぺい率:60%、容積率:100% |
| 建築条件 | 建築条件付 建築条件付き土地とは一定期間内に、その土地に建築する建物の請負契約が締結されることを条件に販売される土地のことです。 土地売買契約締結後、建築請負会社と購入した土地に建築する建物について協議することになります。広告に参考プランが掲載されている場合でも、プランは一例であり、実際の建築プランは建築請負会社と土地購入者で協議・検討することが可能です。 期間内に建築プランが決まらず建築請負契約が成立しなければ土地売買契約は白紙となり、支払済みの金銭はすべて返還されます。 建築請負会社が指定されている場合と指定されていない場合があります。 また、建築条件付き土地の価格には、建物価格は含まれません。 |
||
| 販売スケジュール | 販売中 | ||
| 販売区画数 / 総区画数 | 4区画 / 29区画 | ||
| 造成完了予定日 | - | 引き渡し可能年月 | 相談 |
| 駐車場 | - | 道路の幅員 | 道路幅:6m、アスファルト舗装、公道 |
| 用途地域 | 指定なし | 都市計画 | 市街化調整区域 |
| 地目 | 宅地 | 国土法 | - |
| 土地の権利 | 所有権 | 借地権の種類・期間 | - |
| 主たる設備の概要 | 公営水道、本下水、個別LPG | 開発許可番号 | 湖都第161号(令和3年3月15日) |
| 施工会社 | - | 機構融資 | - |
| 売主 | マコトホーム株式会社 [[滋賀県知事(4)第003025号]] | 取引態様 | マコトホーム(株)[滋賀県知事(4)第003025号] <売主> |
| 備考 | 「菩提寺イワタニランド南地区(B地区)地区計画」による制限あり ●周辺の環境と調和した低層の戸建住宅(居住用)としての利用に限られます。 ●建ぺい率:60%、容積率:100% ●壁面後退:1.0m ●建築物の高さの最高限度:10m ●道路斜線、北側斜線の制限 | ||
| 情報更新日 | 2026/02/25 | 次回更新予定日 | 2026/03/11 |
| 取引条件有効期限 | 2026/03/31 | ||
販売概要・権利のこだわりポイント
- 建築条件付き
- 所有権
- 売主・代理
0037-633-32303
無料
取扱い不動産会社
マコトホーム株式会社の会社情報
お電話でのお問合せは「LIFULL HOME'S(ライフルホームズ)を見て」とお伝えください
マコトホーム(株)
0037-633-32303
無料
- ※携帯電話はご利用いただけます
- ※光IP電話、及びIP電話をご利用のお客様はTEL:0120-077-569へご連絡ください
- ※携帯電話からお問合せいただいた方には、ショートメッセージ(SMS)またはLINE通知メッセージによるお問合せ内容に関する通知をお届けする場合があり、お客様の電話番号は株式会社LIFULLで一定期間保管されます
- ※株式会社LIFULLの個人情報の取扱い方針に同意のうえ、お電話ください
| 会社名 |
マコトホーム株式会社 |
|---|---|
| 免許番号 | 滋賀県知事 (5) 第 3025 号 |
| 所在地 | 滋賀県草津市矢橋町156-1 |
| 所属団体 |
(公社)近畿地区不動産公正取引協議会 |
この物件にお問合せする
実際に物件・周辺環境を見て検討したい!
近隣建物や接道の状況など資料で分からない部分も一目瞭然。 まずはWEBで事前予約、スムーズに見学しましょう
ご予約無しに直接ご来場された場合、担当者不在であったり、
他のお客様のご案内の都合上、お待たせしてしまうことがございます。
不動産会社に電話で相談したい!
マコトホーム(株)
0037-633-32303
無料
電話でのお問合せは「LIFULL HOME'S(ライフルホームズ)を見て」とお伝えください
- ※携帯電話はご利用いただけます
- ※光IP電話、及びIP電話をご利用のお客様はTEL:0120-077-569へご連絡ください
- ※携帯電話からお問合せいただいた方には、ショートメッセージ(SMS)またはLINE通知メッセージによるお問合せ内容に関する通知をお届けする場合があり、お客様の電話番号は株式会社LIFULLで一定期間保管されます
- ※株式会社LIFULLの個人情報の取扱い方針に同意のうえ、お電話ください
LIFULL HOME'Sは物件鮮度No.1を目指していきます 物件情報に誤りがある場合はコチラからご連絡ください
- 【物件番号】
- 1704571-0000004
- ※完成後1年未満で未入居の物件を「新築」と表示しております。
- ※完成予想図やCG合成画像は、門塀・植栽・庭・外観等、実際とは多少異なる場合があります。





