不動産・住宅情報サイトLIFULL HOME'S>土地>近畿>大阪府>松原市>河内松原駅>フォレステージ松原IV期※※※長期優良住宅認定仕様です※※※

建築条件付き土地 フォレステージ松原IV期※※※長期優良住宅認定仕様です※※※

【フォレステージ松原IV期】 天王寺・あべの方面へスムーズにアクセス可能な、近鉄南大阪線「河内松原」駅まで徒歩19~21分。穏やかな住環境と日々の利便性を享受できるロケーションが魅力です。
【前面道路を含む現地写真】 建ぺい率は60%、容積率は200%です。前面道路は幅員約5.0m~約7.0mで、車の入出庫もスムーズに行えそうです。/2026年3月5日撮影(現地販売センター)
【現地写真】 敷地を有効活用した多彩な建物プラン例をご用意しております。広々としたLDKや収納豊富な間取りなど、ぜひご希望をお聞かせください。/2026年3月5日撮影(現地販売センター)
【全体区画図】 全20区画の新たな街!長期優良住宅認定仕様×自由設計対応で、理想の住まいを実現できます◎全区画2台分のカースペースを確保可能(車種による)。
【現地外観写真/当社施工例】 全居室2面採光設計で、光と風を取り込む快適な住まい。シンプル×スタイリッシュな外観が目を惹く、都会的な外観デザインです。
【三宅小学校まで徒歩5~7分(約388~494m)】 お子様が6年間通学しやすく、負担になりにくい距離です。HPにて学校日記が公開されており、日々の生活の様子などが写真付きで紹介されています。
案内図
【現地写真】
Panasonic製のキッチンが標準仕様。自由に動かせて作業スペースを広げる、便利なスラくるネット付きで、作業効率がアップしそうです。/2026年3月5日撮影(現地販売センター)
【前面道路を含む現地写真】
保育園や小学校、図書館、公園が徒歩11分圏内に揃います。子育て中のご家族にもおすすめの住環境です。/2026年3月5日撮影(現地販売センター)
【前面道路を含む現地写真】
第一種中高層住居専用地域に位置しています。2台分の駐車スペースをご検討いただける広さを確保しています(車種による)。/2026年1月30日撮影
【前面道路を含む現地写真】
コンビニやスーパーなどの買い物施設や医療施設などが徒歩8分圏内に点在!幅広い世帯の方が暮らしやすいロケーションです◎/2026年1月30日撮影
【前面道路を含む現地写真】
FWP-ES工法で地震に強い家◎耐震等級3を採用。自由設計対応の計2区画販売中!戸建住宅などが建ち並ぶ、閑静な住宅街に位置しています。/2026年1月30日撮影
【前面道路を含む現地写真】
現地案内会開催中!周辺の道路幅や交通量など、現地にてご確認いただけます。是非お気軽にお問い合わせください!/2026年1月30日撮影
【全体区画図】
未定 / 土地 -
【LDK(約17.75帖)/当社施工例】
ナチュラルなカラーのフローリングが映える広々としたLDKは、木の風合いとぬくもりが感じられる心地よい空間です。
【LDK(約17.75帖)/当社施工例】
キッチンには、まとめ買いにも対応できるパントリーを設けています。調理家電や防災グッズなどの保管にも便利です。
【フリールーム(約2.0帖)/当社施工例】
LDKに隣接するフリールームは、収納スペース、趣味のお部屋や家事スペースなど、多目的にご使用いただけます。
【洋室(約6.62帖)/当社施工例】
バルコニーへ出入り可能な洋室です。東側の窓から差し込む自然光が、心地よい目覚めを誘う明るい空間。1日の始まりを爽やかに迎えられそうです。
【洋室(約9.75帖)/当社施工例】
お子様が小さいうちは広々としたプレイスペースに、成長に合わせて個室として使うなど、様々な用途で使いやすい空間設計です。
【玄関/当社施工例】
シューズボックス・収納スペースが備わり、玄関周りをすっきりと保てます。玄関ドアを開けても直接室内が見えにくい、プライバシーに配慮した設計です。
【キッチン/当社施工例】
複数品同時に調理可能な3口ガスコンロ&グリル付き。見た目もスタイリッシュなビルトインタイプの食洗機を備え、家事の効率化にもつながります。
【洗面脱衣室/当社施工例】
ホワイトを基調とした明るい印象の洗面脱衣室です。スタイリッシュなデザインが魅力的な、Panasonic製の洗面化粧台を採用しています。
【1階トイレ/当社施工例】
1年中快適に利用できる、温水洗浄便座付き。壁面のリモコンで、水勢や温度の設定が可能です。手洗い器一体型のため、使用後すぐに手洗いができ衛生的です。
【浴室/当社施工例】
1616サイズの広々とした浴室で、日々の疲れを癒せます。雨の日の洗濯に便利な浴室ハンガーパイプ付き。ゆったり半身浴を楽しめるベンチタイプの浴槽です。
【給湯器リモコン/当社施工例】
追い焚きや自動お湯はりなど、多彩な機能を備えています。ボタン一つで温度管理が可能で、快適なバスタイムをサポートします。
【2ドア1ルーム/当社施工例】
約9.75帖の洋室は、2ドア1ルーム仕様で可変性のある設計。お子様の成長やライフスタイルに合わせて2部屋に仕切ることができます(別途工事費要)。
【バルコニー/当社施工例】
約6.62帖の洋室から出入り可能。朝の光が差し込む東向きバルコニーで、洗濯物も快適に乾かせます。天気のよい日には、リフレッシュの場としても◎
【TVモニタ付インターホン/当社施工例】
ドアを開けずに会話が可能で、防犯対策に心強い設備です。お子様が一人で留守番される際にも役立ちます。
【駐車場/当社施工例】
並列で2台駐車可能です(車種による)。セカンドカーの所有や来客時にも便利です。お車だけでなく、自転車やバイク置き場としても活躍します。
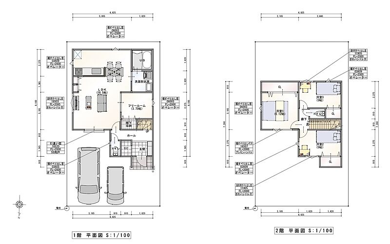
【建物プラン例(1-7号地)】
LDKは隣接するフリールームとの一体利用が可能。/建物面積93.15m2※このプランは一例です。プランはお客様が自由に決定できます。≪土地価格2089万円、建物価格2014.1万円、合計4103.1万円≫
【建物プラン例(1-12号地)】
家族のコミュニケーションが深まる間取り。/建物面積91.5m2※このプランは一例です。プランはお客様が自由に決定できます。≪土地価格2116万円、建物価格2006.4万円、合計4122.4万円≫
【その他】 阿保くすの木保育園 (約696~802m 徒歩9~11分)
【学校】 松原第四中学校 (約1850~1956m 徒歩24~25分)
【買い物】 ファミリーマート 松原三宅中一丁目店 (約362~468m 徒歩5~6分)
【買い物】 サンプラザ 三宅店 (約462~568m 徒歩6~8分)
【買い物】 セブンパーク天美 (約1140~1246m 徒歩15~16分)
【金融機関】 松原三宅郵便局 (約473~579m 徒歩6~8分)

  • ※不動産会社が入力した情報を基に物件の位置を表示しています。
  • ※詳しくは不動産会社までお問合せください。

閉じる

【4/26更新】
~全20区画×敷地30坪超~建物プラン例ご用意しています
□新しい道路と区画で整備された、美しい街並みが魅力
□同世代のコミュニティが形成されやすく、子育て世帯にもおすすめ!
□前面道路は幅員約6m幅。駐車2台もスムーズに行えます
□冬は暖かく夏は涼しい、断熱等性能等級6&オール樹脂サッシ!
□建物プラン例をご用意!ご希望の間取りを叶えるための自由なプラン作成も承ります
~次世代まで住み継げる家「FWP-ES工法」の大切なポイント~
■揺れを抑えて建物を守る!オリジナル「耐震&制震工法」を採用!
■ローン金利・税制の優遇もある「長期優良住宅認定仕様」!

区画図

  • 全20区画の新たな街!長期優良住宅認定仕様×自由設計対応で、理想の住まいを実現できます◎全区画2台分のカースペースを確保可能(車種による)。
    【全体区画図】
    土地面積 -
    価格 未定

    間取り・区画情報

    フォレステージ松原IV期※※※長期優良住宅認定仕様です※※※

    【全体区画図】 / - / 未定

    印刷する

    【全体区画図】
    区画名 【全体区画図】
    土地面積 - 価格 未定
    備考 全20区画の新たな街!長期優良住宅認定仕様×自由設計対応で、理想の住まいを実現できます◎全区画2台分のカースペースを確保可能(車種による)。

    資料をもらう(無料)

    見学予約する(無料)

    電話でのお問合せ(通話無料)0037-618-56197

    閉じる

内観・室内

設備・仕様

外観・分譲地

外観・分譲地のこだわりポイント

  • 駐車場あり
  • 総戸数・総区画数が10以上〜30未満
  • 整形地
  • 前面道路6m以上
  • 平坦地

参考プラン

周辺環境・地図

周辺情報

※半径4kmを超えると、周辺情報のアイコンは表示されません。

  • ※不動産会社が入力した情報を基に物件の位置を表示しています。
  • ※詳しくは不動産会社までお問合せください。
  • ※地図上に表示される各種アイコンなどの情報は、おおよその所在地を表すものであり、物件・施設などの地点を保証するものではありません。
  • ※地図の表示領域が広域になると周辺のお店・施設は表示できなくなります。
  • ※地図、航空写真情報および地形ならびに周辺のお店・施設は、必ずしも現況を表すものではありません。
  • ※物件から周辺のお店・施設までの距離は、利用が想定される道路を通行した場合の距離です。なお、必ずしも最短距離を保証するものではありません。

周辺環境のこだわりポイント

  • スーパー 800m以内
  • 小学校 800m以内

物件概要

不動産用語

所在地 大阪府松原市三宅中2丁目36番5から分筆 他
交通 近鉄南大阪線「河内松原」駅 徒歩19分~21分
販売価格 2089万円・2116万円 最多価格帯 -
建物面積 - 土地面積 100m2(約30.24坪)・101m2(約30.55坪)
開発面積 0m2 建ぺい率・容積率 建ぺい率60% 容積率200%
建築条件 建築条件付
販売スケジュール 販売中
販売区画数 / 総区画数 2区画 / 20区画
造成完了予定日 2025年12月末 引き渡し可能年月 相談
駐車場 1台 ~ 2台(全区画2台分の駐車スペースを確保可能(車種による)) 道路の幅員 西側:市道 三宅中36号線 5m、南側:市道 三宅中92号線 6m、開発内:開発道路 6~7m
用途地域 第一種中高層住居専用地域 都市計画 -
地目 宅地 国土法 -
土地の権利 所有権 借地権の種類・期間 -
その他費用 自治会費:年間2400円
主たる設備の概要 関西電力、公営水道、本下水、前面道路 L型側溝、大阪ガス、J-COM・eo光 開発許可番号 完成済みのため省略
施工会社 - 機構融資 -
売主 ファミティホーム株式会社 [大阪府知事(8)第041868号] 取引態様 松原住宅株式会社(売主代理)
備考 ※文化財保護法、宅地造成工事規制区域、準防火地域、第二種高度地区
水防法に基づく水害ハザードマップ:【洪水】有
※松原市では大阪府屋外広告物条例に基づき、広告物の規制を行っております。
※2・3・9~14・19号地:電柱あり、15号地:電柱・支線あり。
※分譲地西側の接道と近隣道路に時間帯交通規制あり。該当時間帯に自動車等での通行が必要な場合は、申請が必要です。
※売主と土地売買契約後3ヶ月以内に住宅の建築請負契約を締結して頂くことを条件として販売します。この期間内に住宅を建築しないことが確定した時、または住宅の建築請負契約が成立しなかった場合は土地売買契約は白紙となり受領した金額は全額お返しします。

■□ご来場頂くと...□■

・家探しのポイント、住宅購入の流れや住宅ローンのご説明

・松原住宅のご紹介

・ご希望条件のご相談

・現地、物件の詳細見学

・モデルハウスのご見学

などなど、お客様のご要望によってご案内させていただきます。

具体的なお家づくりのイメージをお持ちの方も、そうでない方にも
お客様お一人お一人に寄り添った、オンリーワンの内容でご案内いたします。

お時間がなかなか取れない方も、所要時間をご指定頂ければ
お客様の時間に合わせて実際に現地をご見学頂けるようプラン設定します♪
まずはお気軽にご相談ください。
情報更新日 2026/04/26 次回更新予定日 2026/05/10
取引条件有効期限 2026/05/31

販売概要・権利のこだわりポイント

  • 建築条件付き
  • 所有権
  • 売主・代理
  • 自由設計対応

取扱い不動産会社

松原住宅株式会社の会社情報

お電話でのお問合せは「LIFULL HOME'S(ライフルホームズ)を見て」とお伝えください

LIFULL HOME'S専用無料電話

0037-618-56197 無料

  • ※携帯電話はご利用いただけます
  • ※光IP電話、及びIP電話をご利用のお客様はTEL:072-957-3838へご連絡ください
  • ※携帯電話からお問合せいただいた方には、ショートメッセージ(SMS)またはLINE通知メッセージによるお問合せ内容に関する通知をお届けする場合があり、お客様の電話番号は株式会社LIFULLで一定期間保管されます
  • ※株式会社LIFULLの個人情報の取扱い方針に同意のうえ、お電話ください
会社名

松原住宅株式会社

免許番号 大阪府知事 (13) 第 17696 号
所在地 大阪府羽曳野市誉田3-14-16
所属団体

(一社)大阪府宅地建物取引業協会

この物件にお問合せする

資料を取り寄せてじっくり検討したい!

物件に関する様々な資料がお手元に届きます。 WEBには載せきれない詳細な図面や事前情報が得られる機会も!

実際に物件・周辺環境を見て検討したい!

近隣建物接道の状況など資料で分からない部分も一目瞭然。 まずはWEBで事前予約、スムーズに見学しましょう

ご予約無しに直接ご来場された場合、担当者不在であったり、
他のお客様のご案内の都合上、お待たせしてしまうことがございます。

不動産会社に電話で相談したい!

LIFULL HOME'S専用無料電話

0037-618-56197 無料

電話でのお問合せは「LIFULL HOME'S(ライフルホームズ)を見て」とお伝えください

  • ※携帯電話はご利用いただけます
  • ※光IP電話、及びIP電話をご利用のお客様はTEL:072-957-3838へご連絡ください
  • ※携帯電話からお問合せいただいた方には、ショートメッセージ(SMS)またはLINE通知メッセージによるお問合せ内容に関する通知をお届けする場合があり、お客様の電話番号は株式会社LIFULLで一定期間保管されます
  • ※株式会社LIFULLの個人情報の取扱い方針に同意のうえ、お電話ください

LIFULL HOME'Sは物件鮮度No.1を目指していきます  物件情報に誤りがある場合はコチラからご連絡ください

【物件番号】
1701479-0000124
  • ※完成後1年未満で未入居の物件を「新築」と表示しております。
  • ※完成予想図やCG合成画像は、門塀・植栽・庭・外観等、実際とは多少異なる場合があります。

条件を削除すると新着お知らせメールの
配信が停止されますがよろしいですか?