建築条件付き土地 【ダイワハウス】セキュレアふじみ野市清見I (建築条件付宅地分譲)
東武東上線「上福岡」駅まで徒歩20分。広々としたゆとりのある敷地です!
イオンタウンふじみ野まで徒歩7分。毎日のお買い物や休日のお出かけにも便利な立地です♪
小中学校まで徒歩9分、幼稚園まで徒歩3分。子育て世帯にも嬉しい立地です
0037-618-63995
無料
設備・仕様
設備・仕様のこだわりポイント
- その他設備
-
- 都市ガス
0037-618-63995
無料
外観・分譲地
0037-618-63995
無料
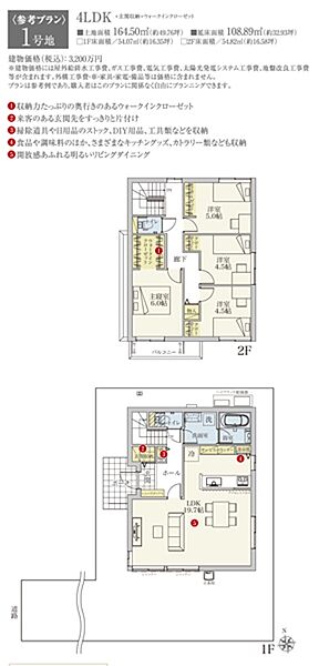
参考プラン
0037-618-63995
無料
周辺環境・地図
周辺情報
※半径4kmを超えると、周辺情報のアイコンは表示されません。
- ※不動産会社が入力した情報を基に物件の位置を表示しています。
- ※詳しくは不動産会社までお問合せください。
- ※地図上に表示される各種アイコンなどの情報は、おおよその所在地を表すものであり、物件・施設などの地点を保証するものではありません。
- ※地図の表示領域が広域になると周辺のお店・施設は表示できなくなります。
- ※地図、航空写真情報および地形ならびに周辺のお店・施設は、必ずしも現況を表すものではありません。
- ※物件から周辺のお店・施設までの距離は、利用が想定される道路を通行した場合の距離です。なお、必ずしも最短距離を保証するものではありません。
0037-618-63995
無料
物件概要
| 所在地 | 埼玉県ふじみ野市清見4丁目1番50 | ||
|---|---|---|---|
| 交通 |
東武東上線「上福岡」駅 徒歩20分~20分 東武東上線「上福岡」駅 徒歩20分 東武東上線「ふじみ野」駅 徒歩43分 |
||
| 販売価格 | 2,780万円 | 最多価格帯 | - |
| 建物面積 | - | 土地面積 | 164.50m2(1号地) 私道負担なし |
| 開発面積 | - | 建ぺい率・容積率 | 60%・200% |
| 建築条件 | 建築条件付 建築条件付き土地とは一定期間内に、その土地に建築する建物の請負契約が締結されることを条件に販売される土地のことです。 土地売買契約締結後、建築請負会社と購入した土地に建築する建物について協議することになります。広告に参考プランが掲載されている場合でも、プランは一例であり、実際の建築プランは建築請負会社と土地購入者で協議・検討することが可能です。 期間内に建築プランが決まらず建築請負契約が成立しなければ土地売買契約は白紙となり、支払済みの金銭はすべて返還されます。 建築請負会社が指定されている場合と指定されていない場合があります。 また、建築条件付き土地の価格には、建物価格は含まれません。 |
||
| 販売スケジュール | 先着順申込受付中 | ||
| 販売区画数 / 総区画数 | 1区画 / 2区画 | ||
| 造成完了予定日 | 令和7年3月造成済 1区画 | 引き渡し可能年月 | - |
| 駐車場 | - | 道路の幅員 | 6m(アスファルト舗装) |
| 用途地域 | 第一種住居地域 | 都市計画 | 市街化区域 |
| 地目 | 宅地 | 国土法 | 届出不要 |
| 土地の権利 | 所有権 | 借地権の種類・期間 | - |
| その他費用 | - | ||
| 主たる設備の概要 | 電気:大和ハウス工業(他の小売電気事業者の選択も可能です)、ガス:都市ガス、水道:公営水道、下水:公共下水道 | 開発許可番号 | 開発許可申請不要な土地のため無し |
| 施工会社 | - | 機構融資 | - |
| 売主 | 大和ハウス工業株式会社 [国土交通大臣(16)第245号 国土交通大臣許可(特-7)第5279号] | 取引態様 | 売主 |
| 備考 | ゴミステーション2.67m2のうち、7分の1の負担持分があります。 [建築条件付宅地分譲とは]この土地は、土地売買契約締結後3ヶ月以内に、大和ハウス工業株式会社と住宅の建築請負契約を締結していただくことを条件として販売いたします。この期間内に住宅を建築しないことが確定したとき、または住宅の建築請負契約が成立しなかった場合は、土地売買契約は白紙となり、受領した金銭は全額無利息で返却致します。詳細については、係員におたずねください。 | ||
| 情報更新日 | 2026/05/24 | 次回更新予定日 | 2026/05/27 |
| 取引条件有効期限 | 2026/06/03 | ||
販売概要・権利のこだわりポイント
- 建築条件付き
- 所有権
- 売主・代理
0037-618-63995
無料
取扱い不動産会社
大和ハウス工業株式会社の会社情報
お電話でのお問合せは「LIFULL HOME'S(ライフルホームズ)を見て」とお伝えください
埼玉西支店 住宅営業所
0037-618-63995
無料
- ※携帯電話はご利用いただけます
- ※光IP電話、及びIP電話をご利用のお客様はTEL:0120-257-127へご連絡ください
- ※携帯電話からお問合せいただいた方には、ショートメッセージ(SMS)またはLINE通知メッセージによるお問合せ内容に関する通知をお届けする場合があり、お客様の電話番号は株式会社LIFULLで一定期間保管されます
- ※株式会社LIFULLの個人情報の取扱い方針に同意のうえ、お電話ください
| 会社名 |
大和ハウス工業株式会社 |
|---|---|
| 免許番号 | 国土交通大臣 (16) 第 245 号 |
| 所在地 | 大阪府大阪市北区梅田3丁目3番5号 |
| 所属団体 |
(一社)不動産協会 |
この物件にお問合せする
実際に物件・周辺環境を見て検討したい!
近隣建物や接道の状況など資料で分からない部分も一目瞭然。 まずはWEBで事前予約、スムーズに見学しましょう
ご予約無しに直接ご来場された場合、担当者不在であったり、
他のお客様のご案内の都合上、お待たせしてしまうことがございます。
不動産会社に電話で相談したい!
埼玉西支店 住宅営業所
0037-618-63995
無料
電話でのお問合せは「LIFULL HOME'S(ライフルホームズ)を見て」とお伝えください
- ※携帯電話はご利用いただけます
- ※光IP電話、及びIP電話をご利用のお客様はTEL:0120-257-127へご連絡ください
- ※携帯電話からお問合せいただいた方には、ショートメッセージ(SMS)またはLINE通知メッセージによるお問合せ内容に関する通知をお届けする場合があり、お客様の電話番号は株式会社LIFULLで一定期間保管されます
- ※株式会社LIFULLの個人情報の取扱い方針に同意のうえ、お電話ください
LIFULL HOME'Sは物件鮮度No.1を目指していきます 物件情報に誤りがある場合はコチラからご連絡ください
- 【物件番号】
- 1700013-0015036
- ※完成後1年未満で未入居の物件を「新築」と表示しております。
- ※完成予想図やCG合成画像は、門塀・植栽・庭・外観等、実際とは多少異なる場合があります。
物件を再検索する
埼玉県の人気エリアから土地を探す
- 川越市
- 熊谷市
- 川口市
- 行田市
- 秩父市
- 所沢市
- 飯能市
- 加須市
- 本庄市
- 東松山市
- 春日部市
- 狭山市
- 羽生市
- 鴻巣市
- 深谷市
- 上尾市
- 草加市
- 越谷市
- 蕨市
- 戸田市
- 入間市
- 朝霞市
- 志木市
- 和光市
- 新座市
- 桶川市
- 久喜市
- 北本市
- 八潮市
- 富士見市
- 三郷市
- 蓮田市
- 坂戸市
- 幸手市
- 鶴ヶ島市
- 日高市
- 吉川市
- 白岡市
- 北足立郡伊奈町
- 入間郡三芳町
- 入間郡毛呂山町
- 入間郡越生町
- 比企郡滑川町
- 比企郡嵐山町
- 比企郡小川町
- 比企郡川島町
- 比企郡吉見町
- 比企郡鳩山町
- 比企郡ときがわ町
- 秩父郡横瀬町
- 秩父郡皆野町
- 児玉郡美里町
- 児玉郡神川町
- 児玉郡上里町
- 大里郡寄居町
- 南埼玉郡宮代町
- 北葛飾郡杉戸町
- 北葛飾郡松伏町