購入ビル(建物全部)事業用 和歌山市湊本町一丁目 住宅兼事務所(店舗) -
-
外観
-
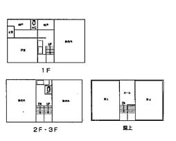
間取り
-
トイレ
-
その他
-
その他
-
その他
-
その他
-
その他
-
フォルテワジマまで814m、フォルテワジマ
-
CITY!WAKAYAMAまで1531m、CITYわかやま
-
和歌山城まで642m
-
和歌山市駅(南海 南海本線)まで546m
-
和歌山中央郵便局まで1079m
-
和歌山市役所まで593m
1/14
間取り
0037-633-87512
無料 お問合せ番号(6桁) 746908
QRコードを読み取ると
すぐに電話できます
- お問合せ先
- センチュリー21際和歌山店
- 登録日
- 2025/01/12
- 有効期限
- 2026/05/21
- (あと13日)
物件のこだわり/設備・条件
| この物件のこだわり |
|
|---|---|
| 設備・条件 |
|
| 備考 | [物件コード]148001-21730、■公共下水未接続(受益者負担金納付済み)■令和6年度固都税:263、994円 |
物件詳細情報
| 接道状況 |
一方 ( 西 8m 公道 ) |
||
|---|---|---|---|
| 築年月(築年数) | 1969年11月(築57年) | 所在階 / 階数 | - / 3階建 (地下1階) |
| 建物面積 | 538.52m² | 土地面積 | 159.27m² (公簿) |
| 総戸数 / 建物構造 | - / RC(鉄筋コンクリート) | 主要採光面 | - |
| 駐車場 | - | 土地権利 | 所有権 |
| 都市計画 | 市街化区域 | 地目 | 宅地 |
| 用途地域 | 商業地域 | 地勢 | 平坦 |
| 建ぺい率 / 容積率 | 80% / 400% | 国土法届出 | 不要 |
| 管理 | 管理員:無、管理形態:自主管理 | ||
| 現況 | |||
| 引渡し | 相談 | ||
| LIFULL HOME'S物件番号 | 0008681-0010474 | 取引態様 | 一般媒介★ |
物件周辺の生活情報
| 学校 | 伏虎義務教育学校(648m) 伏虎義務教育学校(648m) |
|---|---|
| その他施設 | フォルテワジマ(814m) |
※各種情報と現状に差異がある場合は、現状優先となります
取扱い不動産会社
センチュリー21際和歌山店 優良店認定 オンライン相談可 会社情報
(株)際 和歌山店
和歌山県和歌山市毛革屋丁25
- [営業時間]
- 09:00~19:00
- [定休日]
- 水曜日
担当:飯田 滉
-
電話をかける(携帯可)
1番号を入力する(通話無料)
0037-633-87512
2音声案内に従い入力
- お問合せ番号(6桁)
- 746908
QRコードを読み取ると電話番号・問合せ番号を入力せずにすぐに電話できます(通話無料)
-
不動産会社につながります
不動産会社のスタッフと
直接電話で話せます。
- ※お客様の電話番号は不動産会社に通知されません
- ※光IP電話、及びIP電話からはご利用になれません
- ※不動産会社がお電話に出られなかった場合、お問合せいただいた後に不動産会社より折り返しのお電話がある場合がございます(お客様が非通知設定した場合は対象外です)
- ※株式会社LIFULLは電話会社が提供するサービスを介してお客様の発信者番号を受領後、折り返し専用の電話番号を発番してお問合せの不動産会社に通知します(お客様の発信者番号がお問合せの不動産会社に通知されることはございません)
- ※携帯電話からお問合せいただいた方に対し、株式会社LIFULLは電話会社が提供するメッセ―ジサービスを介してお客様の発信者番号を受領後、ショートメッセージ(SMS)またはLINE通知メッセージによるお問合せ内容に関する通知をお届けする場合があります
- ※お客様が通話中に不動産会社にお伝えになったお客様の個人情報及び、電話会社が発番する折り返し専用の電話番号は、お問合せ先不動産会社が資料送付・電子メール送信・電話連絡などの目的で保管する可能性があります。お問合せ先不動産会社が保管する個人情報の取扱いについては、各不動産会社に直接お問合せください
- ※株式会社LIFULLでは本サービスを円滑に運用するために、お客様の発信者番号をサービスご利用の控えとして一定期間保管いたします
- ※上記および株式会社LIFULLの個人情報の取扱い方針に同意のうえ、お電話ください
- 【LIFULL HOME'S物件番号】
- 0008681-0010474
- 【自社管理番号】
- 148001-21730
不動産会社の方からの上記電話番号によるお問合せはお断りしております。こちらからお問合せください。
LIFULL HOME'Sは物件鮮度No.1を目指していきます 物件情報に誤りがある場合はコチラからご連絡ください
- お気に入りに追加
条件が似ている物件
1,970万円
95.64m² (建物) / 121.41m² (土地)
南海和歌山港線 和歌山港駅 徒歩36分
780万円
41.07m² (建物) / - (土地)
JR紀勢本線 冷水浦駅 4.2km
930万円
74.17m² (建物) / - (土地)
南海線 紀ノ川駅 徒歩22分
450万円
53.75m² (建物) / 2506.15m² (土地)
南海線 紀ノ川駅 徒歩21分
800万円
38.8m² (建物) / 480.83m² (土地)
南海線 和歌山市駅 徒歩10分
600万円
72.67m² (建物) / 547.34m² (土地)
JR紀勢本線 紀三井寺駅 徒歩26分
980万円
191.98m² (建物) / 100.5m² (土地)
JR紀勢本線 宮前駅 徒歩17分
180万円
14.85m² (建物) / - (土地)
JR紀勢本線 和歌山市駅 徒歩16分
980万円
50.59m² (建物) / 1037.29m² (土地)
JR阪和線 和歌山駅 徒歩14分
390万円
57.9m² (建物) / 43.74m² (土地)
JR阪和線 和歌山駅 徒歩17分
-
外観
-
間取り
-
トイレ
-
その他
-
その他
-
その他
-
その他
-
その他
-
フォルテワジマまで814m、フォルテワジマ
-
CITY!WAKAYAMAまで1531m、CITYわかやま
-
和歌山城まで642m
-
和歌山市駅(南海 南海本線)まで546m
-
和歌山中央郵便局まで1079m
-
和歌山市役所まで593m
1/14
間取り




