-
室内
-
外観
-
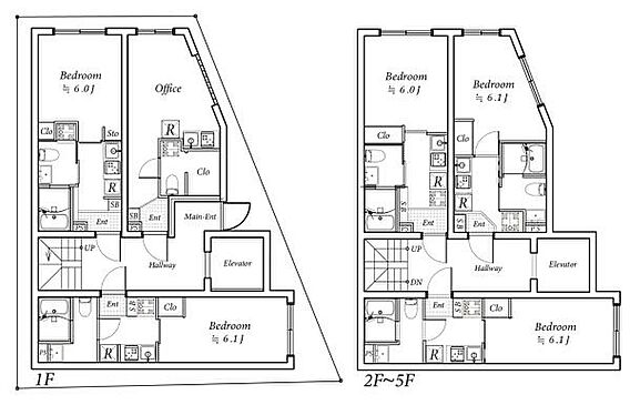
間取り
-
洋室
-
洋室
-
キッチン
-
浴室
-
トイレ
-
洗面
-
玄関
-
その他
-
ミニストップ上平間店まで270m
-
まいばすけっと田尻町店まで408m
-
マルエツ平間店まで455m
-
クリエイトエス・ディー川崎田尻町店まで503m
-
川崎田尻郵便局まで374m
-
平間公園まで266m
-
FASTGYM24平間店まで483m
1/18
間取り
0037-633-62238
無料 お問合せ番号(6桁) 877232
QRコードを読み取ると
すぐに電話できます
- お問合せ先
- センチュリー21リブレット
- 登録日
- 2026/04/20
- 有効期限
- 2026/05/27
- (あと11日)
物件のこだわり/設備・条件
| この物件のこだわり |
|
|---|---|
| 設備・条件 |
|
| 評価・証明書 | 新築時・増改築時の設計図書 |
| 備考 |
高度地区、防火地域、日影制限有 [物件コード]064501-89804、◆2025年10月築 新築1棟マンションのご紹介です◆満室賃貸中!!確定利回り4.01%!!◆コンクリート打ち放しデザイナーズ物件!◆数少ないエレベーター付5階建!!◆最寄り駅徒歩7分、2路線利用可能な利便性◆周辺生活施設充実◆賃貸借契約の引継ぎが必要です。弊社にて賃貸管理承ります。 お気軽にご相談下さい。 |
物件詳細情報
| 満室時表面利回り |
4.01%
満室時表面利回りとは、満室時の想定賃料より算出した想定利回りのことです。 ※想定利回り:満室時表面利回り(年)=満室時想定賃料×12ヶ月/購入価格 (賃料等の変動により変わる可能性あり) 利回りとは、当該不動産の1年間の予定賃料収入の不動産取得対価に対する割合であり、公租公課その他当該物件を維持するために必要な費用の控除前のものです。また、予定賃料収入が確実に得られる事を保証するものではありません。 |
||
|---|---|---|---|
| 接道状況 |
角地 ( 北東 22m 公道 ) ( 北 4m 公道 ) |
||
| 築年月(築年数) | 2025年10月(築1年) | 所在階 / 階数 | - / 5階建 |
| 建物面積 | 384.3m² (壁心) | 土地面積 | 103.76m² (公簿) |
| 専有面積 | 18.7m²~20.51m² | 総戸数 | 15戸 (事務所 1戸) |
| 建物構造 | RC(鉄筋コンクリート) | 主要採光面 | - |
| 駐車場 | 無 | 土地権利 | 所有権 |
| 都市計画 | 市街化区域 | 地目 | 宅地 |
| 用途地域 | 準住居地域 | 地勢 | 平坦 |
| 建ぺい率 / 容積率 | 60% / 300% | 国土法届出 | 不要 |
| 管理 | 管理員:無 | ||
| 現況 | |||
| 引渡し | 相談 | ||
| 建築確認番号 | - | ||
| LIFULL HOME'S物件番号 | 0008622-0001731 | 取引態様 | 専任媒介 |
物件周辺の生活情報
| 買い物 | コンビニ(270m) スーパー(408m) ドラッグストア(503m) |
|---|---|
| その他施設 | 公園(266m) 川崎田尻郵便局(374m) |
※各種情報と現状に差異がある場合は、現状優先となります
営業スタッフコメント
桃原裕一郎
購入も売却も相続も賃貸もすべてワンストップで対応します!お気軽にご相談下さい!
- 会社名
- センチュリー21リブレット
- 役職
- 売買営業部 部長
- 業界経験
- 23年
- 資格
- 宅地建物取引士、住宅金融普及協会認定住宅ローンアドバイザー、、
スタッフ情報
不動産のご購入は「ご縁とタイミング」と言われます。この「ご縁」を大切に、お客様の信頼のパートナーとして「安心」と「安全」のお取引の為、最大限のお手伝いをさせて頂きます。
【ライフコンサルティング無料相談】
→提携FPの相談が無料で受けられます。
■賃貸か購入か?
■購入・買い換えの時期は今か先か?
■資金計画・ボーナス払いは?
■将来の教育費・貯蓄は?
~将来に渡るお金の不安を解決致します~
担当までお気軽にお問い合わせください。
取扱い不動産会社
センチュリー21リブレット
優良店認定 オンライン相談可-
スタッフ
-
店内の様子
-
店舗の外観
-
接客スペース
-
接客スペース
-
キッズスペース
-
キッズスペース
-
その他
-
会社ロゴ
このお店は
LIFULL HOME’S優良店に認定されています。
| 所在地 | 東京都目黒区自由が丘1丁目12-11 地図 |
|---|---|
| 交通 | 東急東横線 自由が丘駅 徒歩1分 |
| 営業時間 | 10:00~19:00 |
| 定休日 | 火曜日、水曜日、年末年始 |
- 会社からのコメント
- 自由が丘・城南エリアを中心に創業30年を迎えました。お客様・業者様のご縁に恵まれ、毎年多数のご成約を頂いております。お気軽にご相談下さいませ。
- 会社の特徴
- 駅から歩いて3分以内
- 外国語を話せるスタッフ在籍
- オンライン相談可
- 提携ローン会社紹介可
- インスペクション相談可
- 不動産売却相談可
- 中古マンション買取
- 中古一戸建て買取
この会社の取扱い売買物件
詳細な会社情報を見る-
電話をかける(携帯可)
1番号を入力する(通話無料)
0037-633-62238
2音声案内に従い入力
- お問合せ番号(6桁)
- 877232
QRコードを読み取ると電話番号・問合せ番号を入力せずにすぐに電話できます(通話無料)
-
不動産会社につながります
不動産会社のスタッフと
直接電話で話せます。
- ※お客様の電話番号は不動産会社に通知されません
- ※光IP電話、及びIP電話からはご利用になれません
- ※不動産会社がお電話に出られなかった場合、お問合せいただいた後に不動産会社より折り返しのお電話がある場合がございます(お客様が非通知設定した場合は対象外です)
- ※株式会社LIFULLは電話会社が提供するサービスを介してお客様の発信者番号を受領後、折り返し専用の電話番号を発番してお問合せの不動産会社に通知します(お客様の発信者番号がお問合せの不動産会社に通知されることはございません)
- ※携帯電話からお問合せいただいた方に対し、株式会社LIFULLは電話会社が提供するメッセ―ジサービスを介してお客様の発信者番号を受領後、ショートメッセージ(SMS)またはLINE通知メッセージによるお問合せ内容に関する通知をお届けする場合があります
- ※お客様が通話中に不動産会社にお伝えになったお客様の個人情報及び、電話会社が発番する折り返し専用の電話番号は、お問合せ先不動産会社が資料送付・電子メール送信・電話連絡などの目的で保管する可能性があります。お問合せ先不動産会社が保管する個人情報の取扱いについては、各不動産会社に直接お問合せください
- ※株式会社LIFULLでは本サービスを円滑に運用するために、お客様の発信者番号をサービスご利用の控えとして一定期間保管いたします
- ※上記および株式会社LIFULLの個人情報の取扱い方針に同意のうえ、お電話ください
- 【LIFULL HOME'S物件番号】
- 0008622-0001731
- 【自社管理番号】
- 064501-89804
不動産会社の方からの上記電話番号によるお問合せはお断りしております。こちらからお問合せください。
LIFULL HOME'Sは物件鮮度No.1を目指していきます 物件情報に誤りがある場合はコチラからご連絡ください
- お気に入りに追加
-
室内
-
外観
-
間取り
-
洋室
-
洋室
-
キッチン
-
浴室
-
トイレ
-
洗面
-
玄関
-
その他
-
ミニストップ上平間店まで270m
-
まいばすけっと田尻町店まで408m
-
マルエツ平間店まで455m
-
クリエイトエス・ディー川崎田尻町店まで503m
-
川崎田尻郵便局まで374m
-
平間公園まで266m
-
FASTGYM24平間店まで483m
1/18
間取り




