購入別荘 別荘 -
-
リビング13.5帖です!
-
リビング13.5帖です!上部吹き抜けです!
-
リビングの窓の様子です!
-
リビング天井トップライトです!
-
ダイニングキッチンよりリビングを見渡した様子です!
-
階段です。
-
階段です!
-
トイレの天井の様子です!
-
廊下天井を見た様子です!
-
2階10畳の洋室から1階リビングを見た様子です!
-
2階より天井を見た様子です!
-
2階10畳です!
-
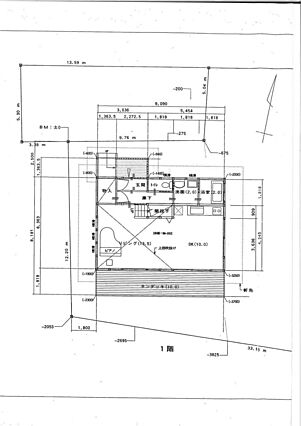
1階間取りです。
-
2階間取りです。
-
ダイニングキッチンの様子です!
-
ダイニングキッチンの様子です!
-
ダイニングキッチン 掃き出し窓側です!
-
システムキッチンの様子です!コンロはIHです。
-
浴室の様子です!1坪タイプのシステムバスで追焚機能付です!
-
浴室窓の様子です!
-
様式トイレです。
-
トイレの手洗いの様子です!
-
独立洗面脱衣場です!
-
洗面脱衣場より浴室を見た様子です!
-
ブレーカーは40Aです。
-
別荘へ行く途中の風景です!紅葉が綺麗です!
-
別荘へ行く途中の風景です!
-
別荘へ行く途中の風景です!
1/28
間取り
0037-633-01143
無料 お問合せ番号(6桁) 921995
QRコードを読み取ると
すぐに電話できます
- お問合せ先
- 合同会社はなの菜D&C
- 登録日
- 2023/05/04
- 有効期限
- 2026/05/28
- (あと6日)
- 価格
- 650万円
- 管理費等
- -
- 修繕積立金
- -
- 交通
-
JR越後線 巻駅 6.4km
北陸自動車道・巻潟東インターから、越後七浦シーサイド方面へ車で約40分程!上越新幹線新潟駅下車。JR越後線に乗り換え内野駅または越後曽根駅下車。そこからタクシーご利用で約30分程です!
- 所在地
- 新潟県新潟市西蒲区越前浜
- 築年月(築年数)
- 2004年8月 ( 築22年 ) リフォーム情報あり
- 面積(土地面積)
- 79.49m² ( 633m² )
- 間取り
- 1SLDK
リビング 13.5帖(1階) ダイニングキッチン 10帖(1階) 洋室 10帖(2階) 洋室 4帖(2階) 1階南側にサンデッキ10畳有ります!
- ポイント
- 海にも近く豊かで貴重な自然にたっぷりと囲まれた角田山麓に立地しており、山がお好きな方には唯一無二の物件です!周辺は田園風景が見渡せ非日常を体験出来ます!カーブドッチ様より徒歩30分程!嬉しい施設です。
物件のこだわり/設備・条件
| この物件のこだわり |
|
|---|---|
| 設備・条件 |
|
| 備考 | 建物は「夢ハウス」様建築で、2階の洋室とロフト床は、無垢の桐材使用!至る所に木の温もりを感じることができ、現オーナー様のこだわりが詰まっています!セカンドハウスにどうでしょう!魅力的な物件に癒されて下さい!! |
物件詳細情報
| 接道状況 |
一方 ( 北 公道 ) |
||
|---|---|---|---|
| 築年月(築年数) | 2004年08月(築22年) | 所在階 / 階数 | - / 2階建 |
| 建物面積 | 79.49m² | 土地面積 | 633m² (公簿) |
| 総戸数 / 建物構造 | 1戸 / 木造 | 主要採光面 | 南 |
| 駐車場 | 空有 (2台) 無料 物件からの距離0m 駐車場は共有持ち分です! | 土地権利 | 所有権 |
| セットバック | 無 | 私道負担面積 | - |
| 都市計画 | 市街化調整区域 | 地目 | 山林 |
| 建ぺい率 / 容積率 | 30% / 80% | 国土法届出 | 不要 |
| 面積(建築 / 敷地) | 52.17m² / 633m² | ||
| 現況 | |||
| 引渡し | 即時 | ||
| LIFULL HOME'S物件番号 | 0141034-0000002 | 取引態様 | 一般媒介★ |
物件周辺の生活情報
| 学校 | 新潟市立越前小学校(1,630m) |
|---|---|
| 買い物 | コンビニ(2,460m) |
| その他施設 | 公園(2,590m) |
※各種情報と現状に差異がある場合は、現状優先となります
取扱い不動産会社
合同会社はなの菜D&C 優良店認定 会社情報
新潟県新潟市中央区堀之内南1丁目20-11
- [営業時間]
- 10:00~19:00
- [定休日]
- 土日祝
-
電話をかける(携帯可)
1番号を入力する(通話無料)
0037-633-01143
2音声案内に従い入力
- お問合せ番号(6桁)
- 921995
QRコードを読み取ると電話番号・問合せ番号を入力せずにすぐに電話できます(通話無料)
-
不動産会社につながります
不動産会社のスタッフと
直接電話で話せます。
- ※お客様の電話番号は不動産会社に通知されません
- ※光IP電話、及びIP電話からはご利用になれません
- ※不動産会社がお電話に出られなかった場合、お問合せいただいた後に不動産会社より折り返しのお電話がある場合がございます(お客様が非通知設定した場合は対象外です)
- ※株式会社LIFULLは電話会社が提供するサービスを介してお客様の発信者番号を受領後、折り返し専用の電話番号を発番してお問合せの不動産会社に通知します(お客様の発信者番号がお問合せの不動産会社に通知されることはございません)
- ※携帯電話からお問合せいただいた方に対し、株式会社LIFULLは電話会社が提供するメッセ―ジサービスを介してお客様の発信者番号を受領後、ショートメッセージ(SMS)またはLINE通知メッセージによるお問合せ内容に関する通知をお届けする場合があります
- ※お客様が通話中に不動産会社にお伝えになったお客様の個人情報及び、電話会社が発番する折り返し専用の電話番号は、お問合せ先不動産会社が資料送付・電子メール送信・電話連絡などの目的で保管する可能性があります。お問合せ先不動産会社が保管する個人情報の取扱いについては、各不動産会社に直接お問合せください
- ※株式会社LIFULLでは本サービスを円滑に運用するために、お客様の発信者番号をサービスご利用の控えとして一定期間保管いたします
- ※上記および株式会社LIFULLの個人情報の取扱い方針に同意のうえ、お電話ください
- 【LIFULL HOME'S物件番号】
- 0141034-0000002
不動産会社の方からの上記電話番号によるお問合せはお断りしております。こちらからお問合せください。
LIFULL HOME'Sは物件鮮度No.1を目指していきます 物件情報に誤りがある場合はコチラからご連絡ください
- お気に入りに追加
-
リビング13.5帖です!
-
リビング13.5帖です!上部吹き抜けです!
-
リビングの窓の様子です!
-
リビング天井トップライトです!
-
ダイニングキッチンよりリビングを見渡した様子です!
-
階段です。
-
階段です!
-
トイレの天井の様子です!
-
廊下天井を見た様子です!
-
2階10畳の洋室から1階リビングを見た様子です!
-
2階より天井を見た様子です!
-
2階10畳です!
-
1階間取りです。
-
2階間取りです。
-
ダイニングキッチンの様子です!
-
ダイニングキッチンの様子です!
-
ダイニングキッチン 掃き出し窓側です!
-
システムキッチンの様子です!コンロはIHです。
-
浴室の様子です!1坪タイプのシステムバスで追焚機能付です!
-
浴室窓の様子です!
-
様式トイレです。
-
トイレの手洗いの様子です!
-
独立洗面脱衣場です!
-
洗面脱衣場より浴室を見た様子です!
-
ブレーカーは40Aです。
-
別荘へ行く途中の風景です!紅葉が綺麗です!
-
別荘へ行く途中の風景です!
-
別荘へ行く途中の風景です!
1/28
間取り
