購入マンション(建物全部)投資用 メロディーハイツ高槻II -
-
外観
-
外観
-
駐車場
-
駐車場
-
その他
-
その他
-
その他
1/7
0037-633-85799
無料 お問合せ番号(6桁) 045902
QRコードを読み取ると
すぐに電話できます
- お問合せ先
- 株式会社三島コーポレーション 業務開発部
- 登録日
- 2025/03/27
- 有効期限
- 2026/05/11
- (あと4日)
物件のこだわり/設備・条件
| この物件のこだわり |
|
|---|---|
| 設備・条件 |
|
物件詳細情報
| 満室時表面利回り |
6.70%
満室時表面利回りとは、満室時の想定賃料より算出した想定利回りのことです。 ※想定利回り:満室時表面利回り(年)=満室時想定賃料×12ヶ月/購入価格 (賃料等の変動により変わる可能性あり) 利回りとは、当該不動産の1年間の予定賃料収入の不動産取得対価に対する割合であり、公租公課その他当該物件を維持するために必要な費用の控除前のものです。また、予定賃料収入が確実に得られる事を保証するものではありません。 |
||
|---|---|---|---|
| 接道状況 |
角地 ( 北 公道 ) ( 西 公道 ) |
||
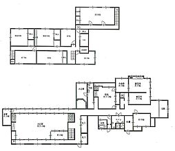
| 築年月(築年数) | 1991年03月(築36年) | 所在階 / 階数 | - / 3階建 |
| 建物面積 | 551.85m² | 土地面積 | 472.72m² (公簿) |
| 専有面積 | 19m²~52m² | 総戸数 | 12戸 |
| 建物構造 | 鉄骨造 | 主要採光面 | 西 |
| 駐車場 | 空有 (4台) 契約必須 8,000円(税込) | 土地権利 | 所有権 |
| 都市計画 | 市街化区域 | 地目 | 宅地 |
| 用途地域 | 第一種中高層住居専用地域 | 地勢 | 平坦 |
| 建ぺい率 / 容積率 | 60% / 200% | 国土法届出 | - |
| 面積(建築 / 敷地) | 183.95m² / 472.72m² | ||
| 管理 | 管理形態:全部委託、管理会社:株式会社三島コーポレーション | ||
| 現況 | |||
| 引渡し | 相談 (引渡日は応相談) |
||
| 建築確認番号 | - | ||
| LIFULL HOME'S物件番号 | 0126063-0000201 | 取引態様 | 専任媒介 |
物件周辺の生活情報
| 学校 | 高槻市立阿武野小学校(970m) 高槻市立第四中学校(890m) |
|---|---|
| 買い物 | コンビニ(190m) スーパー(300m) ドラッグストア(780m) |
| その他施設 | 総合病院(1,240m) 銀行(910m) |
※各種情報と現状に差異がある場合は、現状優先となります
取扱い不動産会社
株式会社三島コーポレーション 業務開発部 優良店認定 会社情報
大阪府茨木市西駅前町5-1
- [営業時間]
- 09:30~18:00
- [定休日]
- 毎週水曜日
担当:外薗
-
電話をかける(携帯可)
1番号を入力する(通話無料)
0037-633-85799
2音声案内に従い入力
- お問合せ番号(6桁)
- 045902
QRコードを読み取ると電話番号・問合せ番号を入力せずにすぐに電話できます(通話無料)
-
不動産会社につながります
不動産会社のスタッフと
直接電話で話せます。
- ※お客様の電話番号は不動産会社に通知されません
- ※光IP電話、及びIP電話からはご利用になれません
- ※不動産会社がお電話に出られなかった場合、お問合せいただいた後に不動産会社より折り返しのお電話がある場合がございます(お客様が非通知設定した場合は対象外です)
- ※株式会社LIFULLは電話会社が提供するサービスを介してお客様の発信者番号を受領後、折り返し専用の電話番号を発番してお問合せの不動産会社に通知します(お客様の発信者番号がお問合せの不動産会社に通知されることはございません)
- ※携帯電話からお問合せいただいた方に対し、株式会社LIFULLは電話会社が提供するメッセ―ジサービスを介してお客様の発信者番号を受領後、ショートメッセージ(SMS)またはLINE通知メッセージによるお問合せ内容に関する通知をお届けする場合があります
- ※お客様が通話中に不動産会社にお伝えになったお客様の個人情報及び、電話会社が発番する折り返し専用の電話番号は、お問合せ先不動産会社が資料送付・電子メール送信・電話連絡などの目的で保管する可能性があります。お問合せ先不動産会社が保管する個人情報の取扱いについては、各不動産会社に直接お問合せください
- ※株式会社LIFULLでは本サービスを円滑に運用するために、お客様の発信者番号をサービスご利用の控えとして一定期間保管いたします
- ※上記および株式会社LIFULLの個人情報の取扱い方針に同意のうえ、お電話ください
- 【LIFULL HOME'S物件番号】
- 0126063-0000201
不動産会社の方からの上記電話番号によるお問合せはお断りしております。こちらからお問合せください。
LIFULL HOME'Sは物件鮮度No.1を目指していきます 物件情報に誤りがある場合はコチラからご連絡ください
- お気に入りに追加
-
外観
-
外観
-
駐車場
-
駐車場
-
その他
-
その他
-
その他
1/7


