1. 不動産・住宅情報サイトLIFULL HOME'S
  2. マンション
  3. 新築マンション
  4. 関東
  5. 東京都
  6. 東京23区
  7. 足立区
  8. 綾瀬駅
  9. シティタワー綾瀬
新築マンション 分譲中

シティタワー綾瀬

  • 情報更新日: 1日前 NEW
  • 次回更新予定日:2026/04/28

物件の特徴

  • 9,900万円~14,100万円
  • 所在地
    東京都足立区綾瀬三丁目4番4(地番) 地図を見る
    • ※不動産会社が入力した情報を基に物件の位置を表示しています
    • ※詳しくは不動産会社までお問合せください

    閉じる

  • 交通
    JR常磐線「綾瀬」駅 徒歩1分
    東武伊勢崎線「小菅」駅 徒歩18分
  • 引き渡し
    2027年4月下旬予定
  • ハイグレードマンション
  • タワーマンション
  • 大規模マンション

販売概要

ポイント

  • モデルルームオープン。
  • 千代田線綾瀬駅徒歩1分。
  • 大規模制震タワーレジデンス。

お問合せ(無料)

オンライン相談予約する

資料請求する
シティタワー綾瀬 シティタワー綾瀬

詳しいパンフレットや図面集、リーフレット等がお手元に届きます。
質問・相談もできます


かんたん1分で
資料をもらう
無料

電話する

0037-633-68244 無料

QRコードを読み込むとすぐに電話できます。

お問合せ先
住友不動産 総合マンションギャラリー北千住館 オンライン相談可能です
登録する
LINEで更新情報を受取る(無料)
価格・間取りなどの更新情報がLIFULL HOME'S公式のLINEから届きます

QRコードを読み込むと登録画面が表示されます
プライバシーポリシー
に同意の上ご登録ください

コンセプト

街の象徴として新たな価値を創造する大規模制震タワーレジデンス。

  • シティタワー綾瀬 東京メトロ千代田線沿線最大 東京メトロ千代田線を最寄駅とする単独事業主物件として最大規模

    東京メトロ千代田線沿線最大 東京メトロ千代田線を最寄駅とする単独事業主物件として最大規模
    ■東京メトロ千代田線「綾瀬」駅徒歩1分
    ■東京メトロ千代田線「綾瀬」駅より「大手町」駅直通21分 (20分)
    ■座って通勤ができる当駅始発電車利用可能
    ■東京メトロ千代田線沿線最大(単独事業主)※1 地上32階建・大規模制震タワーレジデンス
    ■24時間有人管理 *3とコンシェルジュサービス
    ■快適な内廊下と充実の共用施設
    ※掲載の外観完成予想図は計画段階の図面を基に描き起こしたもので、実際とは多少異なります。また、形状の細部および設備機器等については省略しております
    ※敷地内の樹木等はある程度生育した後をイメージして描いたものです。また、葉や花の色合い、樹形等はイメージであり実際とは異なります。なお、植栽計画は変更される場合がありますので、あらかじめご了承ください。また、周辺環境・眺望は将来変わる場合があります。
    ※一部敷地外(街路樹等)を合わせて着彩しています。また、周辺建物を概略ラインのみ表現しています。
    ※建物等の状況がわかりやすいように、街灯等を透視して描いています。
    ※1.「東京メトロ千代田線沿線最大」:1995年以降に東京メトロ千代田線の駅を最寄りとして供給された分譲マンションのうち、本物件の総戸数422戸は単独事業主で過去最大規模の戸数となります。MRC入力ベースで、1期・新規販売が1995年1月以降の物件のみ。最寄り駅入力は物件販売時のMRC入力時登録駅に基づく。対象期間:1995年1月~2021年9月15日までのMRC調査・捕捉に基づく分譲マンションデータ。(出典:MRC調べ。2021年10月現在)
    もっと見る

間取り

公開中:7

間取り表記例:
Rルーフバルコニー
TRトランクルーム
Sサービスルーム(納戸)
DEN書斎(納戸)
WTCウォークスルークロゼット(クローク)
N納戸
MCマルチクロゼット(クローク)
Wウォークインクロゼット(クローク)
SCシューズクロゼット(クローク)
WICウォークインクロゼット(クローク)
SICシューズインクロゼット(クローク)

LINEで更新情報を受け取る(無料)

価格・間取りなどの更新情報がLIFULL HOME'S公式のLINEから届きます
プライバシーポリシーに同意の上ご登録ください

QRコードを読み込むと登録画面が表示されます

周辺環境・アクセス

現地案内図

シティタワー綾瀬:案内図

所在地
東京都足立区綾瀬三丁目4番4(地番)
お問合せ先
住友不動産 総合マンションギャラリー北千住館
0037-633-68244

交通アクセス図

シティタワー綾瀬:交通図

周辺スポット

  • イトーヨーカドー綾瀬店
    約50m(徒歩1分)

  • どらっぐぱぱす 綾瀬駅前店
    約80m(徒歩1分)

  • マツモトキヨシ 綾瀬東口店
    約90m(徒歩2分)

  • 東急ストア 綾瀬店
    約100m(徒歩2分)

  • ぬくもりのおうち保育園 綾瀬園
    約170m(徒歩3分)

  • 佐々木医院
    約150m(徒歩2分)

  • 梅津クリニック
    約270m(徒歩4分)

  • 下井病院
    約520m(徒歩7分)

  • 東綾瀬公園
    約80m(徒歩1分)

  • ローソン メトロス綾瀬東口店
    約30m(徒歩1分)
  • M’av綾瀬リエッタ
    約40m(徒歩1分)
  • コンビプラザ綾瀬保育園
    約250m(徒歩4分)
  • 綾瀬小学校【通学校】
    約330m(徒歩5分)
  • 綾瀬セントラル歯科
    約40m(徒歩1分)
  • あやせ耳鼻咽喉科医院
    約150m(徒歩2分)
  • 綾瀬住区センター
    約440m(徒歩6分)
  • 三井住友銀行 綾瀬支店
    約110m(徒歩2分)
  • 足立成和信用金庫 綾瀬支店
    約160m(徒歩2分)
  • JOYFIT24 綾瀬
    約150m(徒歩2分)
  • 袋橋公園
    約270m(徒歩4分)
  • 北野公園
    約380m(徒歩5分)

※掲載の写真は2020年10月・11月撮影。掲載の情報は2022年4月現在のものです。店舗の情報は将来変わる場合があります。

周辺地図

周辺情報

※半径4kmを超えると、周辺情報のアイコンは表示されません。

  • ※地図上に表示される各種アイコンなどの情報は、おおよその所在地を表すものであり、物件・施設などの地点を保証するものではありません
  • ※地図の表示領域が広域になると周辺のお店・施設は表示できなくなります
  • ※地図、航空写真情報および地形ならびに周辺のお店・施設は、必ずしも現況を表すものではありません
  • ※物件から周辺のお店・施設までの距離は、利用が想定される道路を通行した場合の距離です。なお、必ずしも最短距離を保証するものではありません

LINEで更新情報を受け取る(無料)

価格・間取りなどの更新情報がLIFULL HOME'S公式のLINEから届きます
プライバシーポリシーに同意の上ご登録ください

QRコードを読み込むと登録画面が表示されます

モデルルーム

モデルルーム情報

所在地 -
営業時間 10:00~18:00
定休日 火曜・水曜定休(祝日除く)、年末年始は休業
開催期間 -
お問合せ先

住友不動産 総合マンションギャラリー北千住館

電話:0037-633-68244【通話無料】

  • 携帯可 光IP電話、及びIP電話からはご利用いただけません
  • ※営業時間外は電話がつながらないことがございますのでご了承ください。
  • ※お客様の電話番号は不動産会社に通知されません
  • ※携帯電話はご利用いただけます
  • ※光IP電話、及びIP電話をご利用のお客様は以下へご連絡ください
    住友不動産 総合マンションギャラリー北千住館 TEL:0120-580-427
  • ※携帯電話からお問合せいただいた方には、ショートメッセージ(SMS)またはLINE通知メッセージによるお問合せ内容に関する通知をお届けする場合があり、お客様の電話番号は株式会社LIFULLで一定期間保管されます
  • ※株式会社LIFULLの個人情報の取扱い方針に同意のうえ、お電話ください

お問合せ(無料)

オンライン相談予約する
4/18
4/19
4/20
4/21
×
4/22
×
4/23
4/24
4/25
4/26
4/27
4/28
×
4/29
4/30
5/1


オンライン相談予約する 無料

資料請求する
シティタワー綾瀬 シティタワー綾瀬

詳しいパンフレットや図面集、リーフレット等がお手元に届きます。
質問・相談もできます


かんたん1分で
資料をもらう
無料

電話する

0037-633-68244無料

QRコードを読み込むとすぐに電話できます。

登録する

LINEで更新情報を受け取る(無料)

価格・間取りなどの更新情報がLIFULL HOME'S公式のLINEから届きます
プライバシーポリシーに同意の上ご登録ください

QRコードを読み込むと登録画面が表示されます

建物・部屋

建物・共用部

  • シティタワー綾瀬 外観完成予想図

    外観完成予想図
  • シティタワー綾瀬 外観(2025年12月撮影)

    外観(2025年12月撮影)
    駅前の風景を一新する、上質と洗練をまとうエントランス。大判タイルやガラスカーテンウォールなどで仕上げられた基壇部は、大空の表情をガラス面に印象的に映し出し、圧倒的な存在感を誇ります。
  • シティタワー綾瀬 エントランスホール(2025年12月撮影)

    エントランスホール(2025年12月撮影)
    エントランスホールは約7.8mの天井高と開放感あふれる二層吹抜を実現するとともに、約148m2のゆとりのスペースを確保。窓面から射し込む陽光がやすらぎの空間を演出します。
  • シティタワー綾瀬 ワークラウンジ(2025年12月撮影)

    ワークラウンジ(2025年12月撮影)
    ラウンドテーブルを配置したオープンスペースと、個室ブースを備えたテレワークラウンジ。読書や仕事など、新しいライフスタイルに対応した共用空間です。
  • シティタワー綾瀬 パーティルーム(2025年12月撮影)

    パーティルーム(2025年12月撮影)
    友人との交流や家族の記念日を過ごせるよう、さまざまな集いの場として利用できるパーティルームを設置。対面式のキッチンスペースも採用しているのでその場で料理を振る舞うことも可能です。
  • シティタワー綾瀬 敷地概念イラスト

    敷地概念イラスト
    地域に開かれた憩いのスペースを創出。 また、まちづくり計画の壁面後退ルールの適用で、より歩きやすい歩行空間を整備するとともに、店舗誘致も合わせて「綾瀬」駅周辺の賑わいにあふれた街並みづくりに貢献しています。

※掲載の外観完成予想図は計画段階の図面を基に描き起こしたもので、実際とは多少異なります。また、形状の細部および設備機器等については省略しております。
※掲載の完成予想図は計画段階の図面を基に描き起こしたものに人物等をCG合成したもので、実際とは多少異なります。
※パーティルームの利用は有料となります。詳しくは係員にお尋ねください。
※テレワークラウンジ(個室ブース)の利用は有料となります。詳しくは係員にお尋ねください。
※敷地概念イラストは計画段階の図面を基に描き起こしたもので、形状・色等は実際とは多少異なります。また、一部敷地外の公園や道路等を合わせて着彩しています。

LINEで更新情報を受け取る(無料)

価格・間取りなどの更新情報がLIFULL HOME'S公式のLINEから届きます
プライバシーポリシーに同意の上ご登録ください

QRコードを読み込むと登録画面が表示されます

室内・専有部

  • シティタワー綾瀬 リビング・ダイニング

    リビング・ダイニング
  • シティタワー綾瀬 リビング・ダイニング

    リビング・ダイニング
  • シティタワー綾瀬 リビング・ダイニング

    リビング・ダイニング
  • シティタワー綾瀬 マスターベッドルーム

    マスターベッドルーム
  • シティタワー綾瀬 キッチン

    キッチン
  • シティタワー綾瀬 パウダールーム・バスルーム

    パウダールーム・バスルーム

※掲載の写真はモデルルーム〔Hタイプ メニュープラン〕を撮影(2023年1月)したもので、家具・調度品等オプション仕様は販売価格に含まれておりません。
※バルコニーの家具・植栽・調度品等の配置はイメージです。実際に配置される際には、安全等に十分ご配慮ください。
※モデルルームの仕様等は、施工上の都合・改良等により一部変更になる場合があります。

LINEで更新情報を受け取る(無料)

価格・間取りなどの更新情報がLIFULL HOME'S公式のLINEから届きます
プライバシーポリシーに同意の上ご登録ください

QRコードを読み込むと登録画面が表示されます

設備・構造

  • シティタワー綾瀬 スライド式食器洗い乾燥機

    スライド式食器洗い乾燥機

    手間をかけず、効率よく食器類が洗浄でき、節水効果にも優れた食器洗い乾燥機をご用意しました。スライド式なので、楽な姿勢で食器の出し入れができます。

  • シティタワー綾瀬 ショット社製ガラストッププレート

    ショット社製ガラストッププレート

    世界中で愛される、ドイツ・ショット社製の耐熱セラミックガラストッププレートを採用。熱や衝撃に強く、汚れがつきにくいので、お手入れも簡単です。

  • シティタワー綾瀬 静音シンク

    静音シンク

    シンク底面に制振素材を貼ることで、シャワー水や食器がシンクに当たるときの耳障りな音を低減し、ご家族の団らんでの会話などに配慮しました。

  • シティタワー綾瀬 スライド式収納

    スライド式収納

    システムキッチンには物が取り出しやすく、開閉もスムーズな、スライド式収納を採用しました。

  • シティタワー綾瀬 ストレートライン浴槽

    ストレートライン浴槽

    モダンな雰囲気と広さを意識したフォルム。両側アームレストと背もたれ角度の工夫により、リラックス入浴と安心浴を両立させました。

  • シティタワー綾瀬 TES浴室暖房乾燥機

    TES浴室暖房乾燥機

    乾燥機能で雨の日でも洗濯物を乾かすことができ、換気によりカビの発生も抑制できる東京ガスのTES浴室暖房乾燥機を採用しました。

  • シティタワー綾瀬 水はけの良い床

    水はけの良い床

    バスルームの床には汚れを含んだ水溜りの形成を防ぐモザイクパターンを採用。すばやく乾燥し、汚れ残りも少なくなります。

  • シティタワー綾瀬 ミュージックリモコン

    ミュージックリモコン

    音楽プレイヤーをキッチンリモコンに接続すると、バスルーム内で音楽や音声プログラムを楽しむことができます。好きな曲がBGMとしてバスルームリモコンから流れ、一日の疲れを癒してくれます。

  • シティタワー綾瀬 三面鏡洗面化粧台(手元照明付)

    三面鏡洗面化粧台(手元照明付)

    三面鏡の裏側にはコンセント付きの収納棚を確保。スキンケア用品やヘアケア用品、洗面台まわりの電気製品などを使いやすくすっきり整理できます。また収納棚は取り外して掃除ができるので清潔に保てます。

  • シティタワー綾瀬 洗面ボウル

    洗面ボウル

    カウンターとボウルはお手入れのしやすい継ぎ目のない一体成形で、美しい光沢の有機ガラス系新素材仕様。直線的なスクエアフォルムのボウルが、都会的な空間を演出します。

  • シティタワー綾瀬 シングルレバー水栓

    シングルレバー水栓

    洗面化粧台には、ヘッドが引き出せ、洗面ボウルを洗うときなどに便利なシングルレバー水栓を採用しました。

  • シティタワー綾瀬 温水洗浄機能付暖房便座

    温水洗浄機能付暖房便座

    トイレには、脱臭機能が付いた温水洗浄機能付暖房便座を採用しました。便蓋が簡単に着脱できるタイプなので、お掃除もラクラク。さらに防汚・抗菌加工を施しており、汚れを簡単に拭きとることができます。

  • シティタワー綾瀬 フラットフロア

    フラットフロア

    つまずいて転倒するなど、住戸内での思わぬ事故を防ぐために住戸内の床段差を極力なくした、フラットフロアを実現しました。※玄関、バスルーム、バルコニーの出入口を除く。

  • シティタワー綾瀬 TES温水床暖房

    TES温水床暖房

    リビング・ダイニングには、東京ガスのTES温水床暖房を採用。温水を利用して足元から心地よく室内を暖め、理想的といわれる『頭寒足熱』を実現する暖房システムです。※参考写真

  • シティタワー綾瀬 プッシュプルドアハンドル

    プッシュプルドアハンドル

    ドアハンドルを回す必要がなく「押す・引く」だけで開閉できる、プッシュプル式のドアハンドルを採用。小さなお子様やお年寄りの方でもスムーズに開閉することができます。

  • シティタワー綾瀬 S-GUARD(エスガード)

    S-GUARD(エスガード)

    24時間オンライン体制で、セコム(株)セコムコントロールセンターにつながっています。各住戸での非常ボタン、防犯センサーおよび各住戸、共用部での火災による警報が発信されると、セコム(株)の警備員が現場に急行し、必要な通報などの対応を致します。

  • シティタワー綾瀬 複層ガラス

    複層ガラス

    開口部には、2枚のガラスの間に空気層を設けることによって、高い断熱性を発揮し省エネルギー効果も認められている複層ガラスを採用。※詳細は係員にお尋ねください。※一部住戸除く。

  • シティタワー綾瀬 東京都マンション環境性能表示

    東京都マンション環境性能表示

  • 天然石カウンタートップ キッチンのカウンタートップには、美しく、高級感あふれる天然石を採用しました。
  • コンロ前パネル 水はねや油汚れが付きやすいコンロ前には、メラミン不燃化粧板を採用しました。目地が少なく、汚れも拭き取りやすくなっています。
  • レンジフード キッチン空間のインテリアを美しく演出する、シャープなスクエアデザインのレンジフードを採用しました。
  • 保温浴槽 専用のフロフタと浴槽保温材で温まったお湯を冷めにくくしました。湯温が長持ちするので追い焚きや足し湯が節約でき経済的です。
  • 大型ユニットバス 約1.4m×約1.8mの大型ユニットバスを採用しました。人にやさしい低床タイプで、快適なバスタイムがお楽しみいただけます。※B、C、Dタイプを除く。
  • プッシュ式排水栓 指でワンプッシュするだけで簡単に排水することができるプッシュ式の排水栓を採用しました。
  • ヘルスメータースペース 洗面化粧台のキャビネットの下部を有効利用し、体重計の収納に便利なヘルスメータースペースを設けています。※ヘルスメーターのサイズによっては収納できないものもあります。
  • リネン庫 パウダールームには、タオルや肌着類などの収納に便利なリネン庫をご用意。脱衣時や入浴後など、必要なものをすぐに取り出すことができます。
  • エコジョーズ 東京ガスの高効率ガス給湯器「エコジョーズ」を採用。キッチン、バスルーム、パウダールームへのスムーズな給湯はもちろん、床暖房や浴室暖房乾燥機までをトータルにサポートします。
  • ペット足洗い場 散歩で汚れたペットの足を清潔に保つペット専用の足洗い場を設けました。
  • ダブルオートロックシステム 一般のマンションに比べ不審者の侵入対策を強化し、主な来訪者のアプローチ上の2ヶ所にオートロックシステムを採用しました。
  • 制震構造 本物件は制震装置として、間柱型低降伏点鋼ダンパー及びWFD(壁型摩擦ダンパー)を採用した制震構造です。

※掲載の参考写真は、メーカーカタログ等の参考写真であり本物件のモデルルームを撮影したものではありません。
※掲載の写真はモデルルーム(Hタイプ メニュープラン)を撮影(2023年1月)したもので、家具・調度品等オプション仕様は販売価格に含まれておりません。
※モデルルームの仕様等は、施工上の都合・改良等により一部変更となる場合があります。
※設備・仕様はタイプにより異なります。

LINEで更新情報を受け取る(無料)

価格・間取りなどの更新情報がLIFULL HOME'S公式のLINEから届きます
プライバシーポリシーに同意の上ご登録ください

QRコードを読み込むと登録画面が表示されます

物件概要

販売概要

販売スケジュール 先着順受付
販売価格 9,900万円~14,100万円 ローンシミュレーター
最多価格帯 13,200万円台・13,800万円台・14,100万円台(各2戸)
販売戸数 12戸
間取り 2LD・K ~ 3LD・K
専有面積 59.2㎡ ~ 74.18㎡
バルコニー面積 16.4㎡ ~ 35.02㎡
管理費 32740円 ~ 40770円
修繕積立金 6810円 ~ 8540円
修繕積立基金 672240円 ~ 842350円
取引条件有効期限 2026/04/17

LINEで更新情報を受け取る(無料)

価格・間取りなどの更新情報がLIFULL HOME'S公式のLINEから届きます
プライバシーポリシーに同意の上ご登録ください

QRコードを読み込むと登録画面が表示されます

全体概要

所在地 東京都足立区綾瀬三丁目4番4(地番)
交通
JR常磐線「綾瀬」駅 徒歩1分
東武伊勢崎線「小菅」駅 徒歩18分
総戸数 422戸、その他店舗2区画
構造および階数 鉄筋コンクリート造・地下1階地上32階建
駐車場 -
施設費用、償却費 駐車場使用料:30,000円~38,000円 駐輪場使用料:300円~3,500円
完成時期 2025年10月28日完成済
引き渡し可能年月 2027年4月下旬予定
分譲後の権利形態 建物は区分所有権、土地は共有
管理形態 区分所有者全員により管理組合を結成し、管理会社に委託
管理員の勤務形態 常駐
敷地面積 3,643.67㎡
用途地域 商業地域
建築確認番号 第ERI-22003432号(2022年3月31日付)第ERI-23030419号(2023年9月22日付)第ERI-25023522号(2025年9月22日付)
売主 住友不動産株式会社 [国土交通大臣(17)第38号]
販売会社 売主/住友不動産株式会社
施工会社 株式会社長谷工コーポレーション
管理会社 -
備考 特定事項:※本物件は、高齢者、障害者等が利用しやすい建築物の整備に関する条例(東京都・建築物バリアフリー条例)に適合しております。
※本物件の北側約75m先に、事業主:株式会社レアルリンクによる地上14階建の「(仮称)足立区綾瀬3丁目計画 新築工事」が建設中です(2026年12月31日竣工予定)。この建物が竣工しますと今回分譲する北側の住戸の眺望、通風等に影響が生じる場合がありますので、あらかじめご承知ください。また、整備工事ならびに工事車輛の通行などにより、騒音・振動・粉塵等が生じる場合があります。
※本物件の南西側約100m先に、事業主:株式会社花菱による地上5階地下1階建の「(仮称)葛飾区小菅4丁目計画」が建設中です(2027年2月28日竣工予定)。この建物が竣工しますと今回分譲する南側および西側の住戸の眺望、通風等に影響が生じる場合がありますので、あらかじめご承知ください。また、整備工事ならびに工事車輛の通行などにより、騒音・振動・粉塵等が生じる場合があります。
※本物件の北側約40m先に、事業主:株式会社フージャースアセットマネジメントによる地上13階建の「(仮称)足立区綾瀬3丁目レジ開発」が建設中です(2028年1月末日竣工予定)。この建物が竣工しますと今回分譲する北側の住戸の眺望、通風等に影響が生じる場合がありますので、あらかじめご承知ください。また、整備工事ならびに工事車輛の通行などにより、騒音・振動・粉塵等が生じる場合があります。
バルコニー面積: 16.4㎡~35.02㎡
建築確認番号: 第ERI-22003432号(2022年3月31日付)第ERI-23030419号(2023年9月22日付)第ERI-25023522号(2025年9月22日付)
加盟団体: (公社)首都圏不動産公正取引協議会、(一社)不動産協会
情報更新日 2026/04/14
次回更新予定日 2026/04/28

LINEで更新情報を受け取る(無料)

価格・間取りなどの更新情報がLIFULL HOME'S公式のLINEから届きます
プライバシーポリシーに同意の上ご登録ください

QRコードを読み込むと登録画面が表示されます

会社・ブランド

会社情報

住友不動産株式会社

会社情報

「信用と創造」

私たちは、何よりも「信用」を大切にし、単なるモノづくりではなく、常に“開拓”、“挑戦”の精神を持って、先々まで世に必要とされる新しい価値を「創造」し続けてまいります。

私たちは、何よりも「信用」を大切にし、単なるモノづくりではなく、常に“開拓”、“挑戦”の精神を持って、先々まで世に必要とされる新しい価値を「創造」し続けてまいります。

会社情報

分譲マンション

「より良い社会資産を創造し、それを後世に残していく」というコンセプトのもとに首都圏、近畿圏をはじめとした大都市圏を中心に新築・分譲マンション事業を展開しています。

「より良い社会資産を創造し、それを後世に残していく」というコンセプトのもとに首都圏、近畿圏をはじめとした大都市圏を中心に新築・分譲マンション事業を展開しています。

ブランド情報

この物件の不動産会社が保持しているマンションブランドの特徴です。

シティタワー

光景(シーン)となる象徴(シンボル)

様々な人の生活美学に応えてこそマンションは人生に欠かせない空間となる。
私たちはあなたの「人生のシーンをつくる」会社です。
人が笑い、歓び、感性を放ち、誰かと心を通わせる。
時が経つほどに愛着が湧き、そうして、かけがえのない時間が積み重ねられる。
マンションは、その光景の中であなた自身に寄り添う資産に成長する。
私たちはあなたの「シーンをつくり、シンボルとしての価値を育む」会社です。

様々な人の生活美学に応えてこそマンションは人生に欠かせない空間となる。
私たちはあなたの「人生のシーンをつくる」会社です。
人が笑い、歓び、感性を放ち、誰かと心を通わせる。
時が経つほどに愛着が湧き、そうして、かけがえのない時間が積み重ねられる。
マンションは、その光景の中であなた自身に寄り添う資産に成長する。
私たちはあなたの「シーンをつくり、シンボルとしての価値を育む」会社です。

情報提供元

住友不動産株式会社

免許番号
[国土交通大臣(17)第38号]
所在地
〒163-0820 東京都新宿区西新宿二丁目4番1号新宿NSビル
加盟団体
(公社)首都圏不動産公正取引協議会、(一社)不動産協会

お問合せ(無料)

オンライン相談予約する
4/18
4/19
4/20
4/21
×
4/22
×
4/23
4/24
4/25
4/26
4/27
4/28
×
4/29
4/30
5/1


オンライン相談予約する 無料

資料請求する
シティタワー綾瀬 シティタワー綾瀬

詳しいパンフレットや図面集、リーフレット等がお手元に届きます。
質問・相談もできます


かんたん1分で
資料をもらう
無料

電話する

0037-633-68244無料

QRコードを読み込むとすぐに電話できます。

お問合せ先

住友不動産 総合マンションギャラリー北千住館

電話:0037-633-68244【通話無料】

受付時間:10:00~18:00(火曜・水曜定休(祝日除く)、年末年始は休業) ■■【オンライン見学予約】本物件は原則としてオンラインのみでご案内いたします。■■ ご自宅にいながら、オンライン上でご案内会の参加が出来るサービスです。 インターネットに接続されたパソコンやタブレッド端末があれば、お好きな場所からご参加可能。 ※本サービスは、オンラインサービス【zoom】を使用してのご案内です。

オンライン相談可能です
  • ※お問合せの際は、「ライフルホームズを見て」とお伝えいただくとスムーズです
  • ※営業時間外は下記の「資料をもらう(無料)」よりお問合せください
【お電話の際の注意事項】
※お客様の電話番号は不動産会社に通知されません
※携帯電話はご利用いただけます
※光IP電話、及びIP電話をご利用のお客様は以下へご連絡ください
TEL:住友不動産 総合マンションギャラリー北千住館0120-580-427
※携帯電話からお問合せいただいた方には、ショートメッセージ(SMS)またはLINE通知メッセージによるお問合せ内容に関する通知をお届けする場合があり、お客様の電話番号は株式会社LIFULLで一定期間保管されます
登録する
お気に入り一覧を見る

LINEで更新情報を受け取る(無料)

価格・間取りなどの更新情報がLIFULL HOME'S公式のLINEから届きます
プライバシーポリシーに同意の上ご登録ください

QRコードを読み込むと登録画面が表示されます

シェアする

【物件番号】 1610001-0000724 ( 200008200030666 )

  • ※完成予想図やCG合成画像は、門塀・植栽・庭・外観等、実際とは多少異なる場合があります。 また、掲載の図面は、多少変更になる場合があります
  • ※掲載の写真や動画には、一部オプション(有償)が含まれる場合があります。また、家具・調度品等は販売価格に含まれておりません
  • ※完成後1年未満で未入居の物件を「新築」と表示しております

その他の新築分譲マンションを探す

足立区の詳細町域から新築分譲マンションを探す

  • シティタワー綾瀬 外観

  • シティタワー綾瀬 コンセプト

    ■東京メトロ千代田線「綾瀬」駅徒歩1分 ■東京メトロ千代田線「綾瀬」駅より「大手町」駅直通21分 (20分) ■座って通勤ができる当駅始発電車利用可能 ■東京メトロ千代田線沿線最大(単独事業主)※1 地上32階建・大規模制震タワーレジデンス ■24時間有人管理 *3とコンシェルジュサービス ■快適な内廊下と充実の共用施設

  • シティタワー綾瀬 コンセプト

    ■ONE & ONLY 東京メトロ千代田線沿線最大 東京メトロ千代田線を最寄駅とする 単独事業主物件として最大規模※ ■MAXIMUM SCALE 東京メトロ千代田線・当駅始発利用可能「綾瀬」駅徒歩1分。 大手町まで直通 21分 (20分) の地に大規模駅前タワーレジデンス、誕生。

  • シティタワー綾瀬 コンセプト

    ラウンドテーブルを配置したオープンスペースと、個室ブースを備えたテレワークラウンジ。 読書や仕事など、新しいライフスタイルに対応した共用空間です。

  • シティタワー綾瀬 共用部

  • シティタワー綾瀬 共用部

    駅前の風景を一新する、上質と洗練をまとうエントランス。大判タイルやガラスカーテンウォールなどで仕上げられた基壇部は、大空の表情をガラス面に印象的に映し出し、圧倒的な存在感を誇ります。

  • シティタワー綾瀬 共用部

    エントランスホールは約7.8mの天井高と開放感あふれる二層吹抜を実現するとともに、約148m2のゆとりのスペースを確保。窓面から射し込む陽光がやすらぎの空間を演出します。

  • シティタワー綾瀬 共用部

    ラウンドテーブルを配置したオープンスペースと、個室ブースを備えたテレワークラウンジ。読書や仕事など、新しいライフスタイルに対応した共用空間です。

  • シティタワー綾瀬 共用部

    友人との交流や家族の記念日を過ごせるよう、さまざまな集いの場として利用できるパーティルームを設置。対面式のキッチンスペースも採用しているのでその場で料理を振る舞うことも可能です。

  • シティタワー綾瀬 共用部

    地域に開かれた憩いのスペースを創出。 また、まちづくり計画の壁面後退ルールの適用で、より歩きやすい歩行空間を整備するとともに、店舗誘致も合わせて「綾瀬」駅周辺の賑わいにあふれた街並みづくりに貢献しています。

  • シティタワー綾瀬 専有部

  • シティタワー綾瀬 専有部

  • シティタワー綾瀬 専有部

  • シティタワー綾瀬 専有部

  • シティタワー綾瀬 専有部

  • シティタワー綾瀬 専有部

  • シティタワー綾瀬 設備

    スライド式食器洗い乾燥機

  • シティタワー綾瀬 設備

    ショット社製ガラストッププレート

  • シティタワー綾瀬 設備

    静音シンク

  • シティタワー綾瀬 設備

    スライド式収納

  • シティタワー綾瀬 設備

    ストレートライン浴槽

  • シティタワー綾瀬 設備

    TES浴室暖房乾燥機

  • シティタワー綾瀬 設備

    水はけの良い床

  • シティタワー綾瀬 設備

    ミュージックリモコン

  • シティタワー綾瀬 設備

    三面鏡洗面化粧台(手元照明付)

  • シティタワー綾瀬 設備

    洗面ボウル

  • シティタワー綾瀬 設備

    シングルレバー水栓

  • シティタワー綾瀬 設備

    温水洗浄機能付暖房便座

  • シティタワー綾瀬 設備

    フラットフロア

  • シティタワー綾瀬 設備

    TES温水床暖房

  • シティタワー綾瀬 設備

    プッシュプルドアハンドル

  • シティタワー綾瀬 設備

    S-GUARD(エスガード)

  • シティタワー綾瀬 設備

    複層ガラス

  • シティタワー綾瀬 設備

    東京都マンション環境性能表示

  • 周辺環境

    イトーヨーカドー綾瀬店 約50m(徒歩1分)

  • 周辺環境

    どらっぐぱぱす 綾瀬駅前店 約80m(徒歩1分)

  • 周辺環境

    マツモトキヨシ 綾瀬東口店 約90m(徒歩2分)

  • 周辺環境

    東急ストア 綾瀬店 約100m(徒歩2分)

  • 周辺環境

    ぬくもりのおうち保育園 綾瀬園 約170m(徒歩3分)

  • 周辺環境

    佐々木医院 約150m(徒歩2分)

  • 周辺環境

    梅津クリニック 約270m(徒歩4分)

  • 周辺環境

    下井病院 約520m(徒歩7分)

  • 周辺環境

    東綾瀬公園 約80m(徒歩1分)

  • シティタワー綾瀬 現地案内図

  • シティタワー綾瀬 アクセス図

  • シティタワー綾瀬 外観

  • シティタワー綾瀬 コンセプト

    ■東京メトロ千代田線「綾瀬」駅徒歩1分 ■東京メトロ千代田線「綾瀬」駅より「大手町」駅直通21分 (20分) ■座って通勤ができる当駅始発電車利用可能 ■東京メトロ千代田線沿線最大(単独事業主)※1 地上32階建・大規模制震タワーレジデンス ■24時間有人管理 *3とコンシェルジュサービス ■快適な内廊下と充実の共用施設

  • シティタワー綾瀬 コンセプト

    ■ONE & ONLY 東京メトロ千代田線沿線最大 東京メトロ千代田線を最寄駅とする 単独事業主物件として最大規模※ ■MAXIMUM SCALE 東京メトロ千代田線・当駅始発利用可能「綾瀬」駅徒歩1分。 大手町まで直通 21分 (20分) の地に大規模駅前タワーレジデンス、誕生。

  • シティタワー綾瀬 コンセプト

    ラウンドテーブルを配置したオープンスペースと、個室ブースを備えたテレワークラウンジ。 読書や仕事など、新しいライフスタイルに対応した共用空間です。

  • シティタワー綾瀬 共用部

  • シティタワー綾瀬 共用部

    駅前の風景を一新する、上質と洗練をまとうエントランス。大判タイルやガラスカーテンウォールなどで仕上げられた基壇部は、大空の表情をガラス面に印象的に映し出し、圧倒的な存在感を誇ります。

  • シティタワー綾瀬 共用部

    エントランスホールは約7.8mの天井高と開放感あふれる二層吹抜を実現するとともに、約148m2のゆとりのスペースを確保。窓面から射し込む陽光がやすらぎの空間を演出します。

  • シティタワー綾瀬 共用部

    ラウンドテーブルを配置したオープンスペースと、個室ブースを備えたテレワークラウンジ。読書や仕事など、新しいライフスタイルに対応した共用空間です。

  • シティタワー綾瀬 共用部

    友人との交流や家族の記念日を過ごせるよう、さまざまな集いの場として利用できるパーティルームを設置。対面式のキッチンスペースも採用しているのでその場で料理を振る舞うことも可能です。

  • シティタワー綾瀬 共用部

    地域に開かれた憩いのスペースを創出。 また、まちづくり計画の壁面後退ルールの適用で、より歩きやすい歩行空間を整備するとともに、店舗誘致も合わせて「綾瀬」駅周辺の賑わいにあふれた街並みづくりに貢献しています。

  • シティタワー綾瀬 専有部

  • シティタワー綾瀬 専有部

  • シティタワー綾瀬 専有部

  • シティタワー綾瀬 専有部

  • シティタワー綾瀬 専有部

  • シティタワー綾瀬 専有部

  • シティタワー綾瀬 設備

    スライド式食器洗い乾燥機

  • シティタワー綾瀬 設備

    ショット社製ガラストッププレート

  • シティタワー綾瀬 設備

    静音シンク

  • シティタワー綾瀬 設備

    スライド式収納

  • シティタワー綾瀬 設備

    ストレートライン浴槽

  • シティタワー綾瀬 設備

    TES浴室暖房乾燥機

  • シティタワー綾瀬 設備

    水はけの良い床

  • シティタワー綾瀬 設備

    ミュージックリモコン

  • シティタワー綾瀬 設備

    三面鏡洗面化粧台(手元照明付)

  • シティタワー綾瀬 設備

    洗面ボウル

  • シティタワー綾瀬 設備

    シングルレバー水栓

  • シティタワー綾瀬 設備

    温水洗浄機能付暖房便座

  • シティタワー綾瀬 設備

    フラットフロア

  • シティタワー綾瀬 設備

    TES温水床暖房

  • シティタワー綾瀬 設備

    プッシュプルドアハンドル

  • シティタワー綾瀬 設備

    S-GUARD(エスガード)

  • シティタワー綾瀬 設備

    複層ガラス

  • シティタワー綾瀬 設備

    東京都マンション環境性能表示

  • 周辺環境

    イトーヨーカドー綾瀬店 約50m(徒歩1分)

  • 周辺環境

    どらっぐぱぱす 綾瀬駅前店 約80m(徒歩1分)

  • 周辺環境

    マツモトキヨシ 綾瀬東口店 約90m(徒歩2分)

  • 周辺環境

    東急ストア 綾瀬店 約100m(徒歩2分)

  • 周辺環境

    ぬくもりのおうち保育園 綾瀬園 約170m(徒歩3分)

  • 周辺環境

    佐々木医院 約150m(徒歩2分)

  • 周辺環境

    梅津クリニック 約270m(徒歩4分)

  • 周辺環境

    下井病院 約520m(徒歩7分)

  • 周辺環境

    東綾瀬公園 約80m(徒歩1分)

  • シティタワー綾瀬 現地案内図

  • シティタワー綾瀬 アクセス図

  • シティタワー綾瀬 間取り E1_LD拡大

    E1_LD拡大

    間取り
    2LDK+N+SIC+2WIC
    専有面積
    73.43㎡
    バルコニー
    面積
    35.02㎡
    その他面積
    -
    所在階
    -
    向き
    -
    備考
    -
  • シティタワー綾瀬 間取り F-LD拡大

    F-LD拡大

    間取り
    2LDK+N+WIC
    専有面積
    72.60㎡
    バルコニー
    面積
    -
    その他面積
    バルコニー面積/17.73㎡(3F)、トランクルーム面積/1.60m
    所在階
    -
    向き
    -
    備考
    -
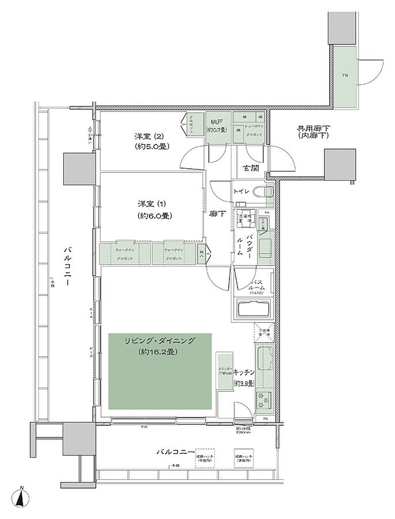
  • シティタワー綾瀬 間取り I_LD拡大

    I_LD拡大

    間取り
    2LDK+N+WIC+SIC
    専有面積
    74.18㎡
    バルコニー
    面積
    -
    その他面積
    バルコニー面積/34.72㎡(3F)、32.21㎡(4~31F)
    所在階
    -
    向き
    -
    備考
    -
  • シティタワー綾瀬 間取り J-LD拡大

    J-LD拡大

    間取り
    2LDK+N+WIC+SIC
    専有面積
    69.34㎡
    バルコニー
    面積
    -
    その他面積
    バルコニー面積/18.81㎡(3F)、トランクルーム面積/1.40㎡
    所在階
    -
    向き
    -
    備考
    -
  • シティタワー綾瀬 間取り N1

    N1

    間取り
    2LDK+N+WIC+SIC
    専有面積
    59.38㎡
    バルコニー
    面積
    16.40㎡
    その他面積
    -
    所在階
    -
    向き
    -
    備考
    -
  • シティタワー綾瀬 間取り F

    F

    間取り
    3LDK+N+WIC
    専有面積
    72.60㎡
    バルコニー
    面積
    -
    その他面積
    バルコニー面積/17.73㎡ (3F)、16.50㎡ (4~31F)
    所在階
    -
    向き
    -
    備考
    -
  • シティタワー綾瀬 間取り K

    K

    間取り
    3LDK+N+WIC
    専有面積
    69.00㎡
    バルコニー
    面積
    -
    その他面積
    バルコニー面積/17.73㎡ (3F)、16.50㎡ (4~31F)
    所在階
    -
    向き
    -
    備考
    -
  • シティタワー綾瀬 間取り E1_LD拡大

    E1_LD拡大

    間取り
    2LDK+N+SIC+2WIC
    専有面積
    73.43㎡
    バルコニー
    面積
    35.02㎡
    その他面積
    -
    所在階
    -
    向き
    -
    備考
    -
  • シティタワー綾瀬 間取り F-LD拡大

    F-LD拡大

    間取り
    2LDK+N+WIC
    専有面積
    72.60㎡
    バルコニー
    面積
    -
    その他面積
    バルコニー面積/17.73㎡(3F)、トランクルーム面積/1.60m
    所在階
    -
    向き
    -
    備考
    -
  • シティタワー綾瀬 間取り I_LD拡大

    I_LD拡大

    間取り
    2LDK+N+WIC+SIC
    専有面積
    74.18㎡
    バルコニー
    面積
    -
    その他面積
    バルコニー面積/34.72㎡(3F)、32.21㎡(4~31F)
    所在階
    -
    向き
    -
    備考
    -
  • シティタワー綾瀬 間取り J-LD拡大

    J-LD拡大

    間取り
    2LDK+N+WIC+SIC
    専有面積
    69.34㎡
    バルコニー
    面積
    -
    その他面積
    バルコニー面積/18.81㎡(3F)、トランクルーム面積/1.40㎡
    所在階
    -
    向き
    -
    備考
    -
  • シティタワー綾瀬 間取り N1

    N1

    間取り
    2LDK+N+WIC+SIC
    専有面積
    59.38㎡
    バルコニー
    面積
    16.40㎡
    その他面積
    -
    所在階
    -
    向き
    -
    備考
    -
  • シティタワー綾瀬 間取り F

    F

    間取り
    3LDK+N+WIC
    専有面積
    72.60㎡
    バルコニー
    面積
    -
    その他面積
    バルコニー面積/17.73㎡ (3F)、16.50㎡ (4~31F)
    所在階
    -
    向き
    -
    備考
    -
  • シティタワー綾瀬 間取り K

    K

    間取り
    3LDK+N+WIC
    専有面積
    69.00㎡
    バルコニー
    面積
    -
    その他面積
    バルコニー面積/17.73㎡ (3F)、16.50㎡ (4~31F)
    所在階
    -
    向き
    -
    備考
    -

オンライン相談とは

モデルルームや現地に行くことなく、自宅からビデオ通話で不動産会社スタッフと物件の相談をすることができます。
  1. 不動産会社へ問合せ

    「オンライン相談」ボタンまたは「見学予約」ボタンを押してフォーム内の「オンライン相談」を選択し送信します。

  2. 不動産会社と日程・接続方法を調整

    不動産会社から連絡が来たらオンライン相談の日時を調整して、予約完了。

  3. 相談方法がメールで届く

    メールにてオンライン相談の利用方法が届きますので、ご確認ください。

  4. 指定場所にアクセス

    当日、予約時刻になったら指定のビデオ通話につなぎ、ご相談ください。

利用時の注意事項
  • ビデオ通話については各不動産会社指定のものとなります。
  • ビデオ通話利用時には通信が発生します。従量課金制通信サービスや通信料に上限があるネット回線・プランを利用する場合は、通信量に注意してください。
  • 通信速度やアプリの設定によってはビデオ通話の画質が低下することがあります。安定した画質で利用するためにも、Wi-Fi環境下での利用を推奨します。
  • ご利用のビデオ通話アプリによっては、対象のOSやブラウザに制限がある場合があります。詳しくはお問合せ先不動産会社にご確認ください。

閉じる

条件を削除すると新着お知らせメールの
配信が停止されますがよろしいですか?