1. 不動産・住宅情報サイトLIFULL HOME'S
  2. マンション
  3. 新築マンション
  4. 関東
  5. 神奈川県
  6. 海老名市
  7. かしわ台駅
  8. グレーシア海老名かしわ台
新築マンション 分譲予定

グレーシア海老名かしわ台

  • 情報更新日: 3日前 NEW
  • 次回更新予定日:2026/06/10

物件の特徴

  • 予告広告 第2期 予告広告
  • 5,000万円台~6,300万円台(予定)※100万円単位
  • 所在地
    神奈川県海老名市柏ケ谷三丁目631番1 地図を見る
    • ※不動産会社が入力した情報を基に物件の位置を表示しています
    • ※詳しくは不動産会社までお問合せください

    閉じる

  • 交通
    相鉄本線「かしわ台」駅 徒歩3分
  • 引き渡し
    2027年3月下旬予定
  • 現地内覧可能

販売概要

  • 予告広告 第2期 予告広告

    5,000万円台~6,300万円台(予定)※100万円単位 ローンシミュレーター

    間取り
    2LDK+S ~ 3LDK
    専有面積
    67.27㎡ ~ 74.78㎡
    販売スケジュール
    販売予定時期:2026年3月下旬

    詳細を見る

予告広告
この広告は予告広告を含みます。販売を開始するまでは、契約または予約(仮予約を含む)の申込および申込順位の確保には一切応じられませんのでご了承ください。価格または販売方法が未定の場合は、本広告にて確定情報をお知らせします。

ポイント

  • かしわ台駅徒歩3分の駅近庭園レジデンス。地上13階建・全76邸。
  • 新横浜駅へ直通28分、海老名駅へ1駅3分の軽快アクセス。都心・横浜方面へもダイレクトに繋がる利便性。
  • 3LDK・74平米超が6,300万円台より。67平米台~74平米台のゆとりあるプラン。全邸南東向き。

お問合せ(無料)

モデルルーム見学する

6/2
6/3
×
6/4
×
6/5
6/6
6/7
6/8
6/9
6/10
×
6/11
×
6/12
6/13
6/14
6/15
資料請求する
グレーシア海老名かしわ台 グレーシア海老名かしわ台

詳しいパンフレットや図面集、リーフレット等がお手元に届きます。
質問・相談もできます


かんたん1分で
資料をもらう
無料

電話する

0037-618-15542 無料

QRコードを読み込むとすぐに電話できます。

お問合せ先
「グレーシア海老名かしわ台」 オンライン相談可能です
登録する
LINEで更新情報を受取る(無料)
価格・間取りなどの更新情報がLIFULL HOME'S公式のLINEから届きます

QRコードを読み込むと登録画面が表示されます
プライバシーポリシー
に同意の上ご登録ください

間取り

公開中:4

間取り表記例:
Rルーフバルコニー
TRトランクルーム
Sサービスルーム(納戸)
DEN書斎(納戸)
WTCウォークスルークロゼット(クローク)
N納戸
MCマルチクロゼット(クローク)
Wウォークインクロゼット(クローク)
SCシューズクロゼット(クローク)
WICウォークインクロゼット(クローク)
SICシューズインクロゼット(クローク)

LINEで更新情報を受け取る(無料)

価格・間取りなどの更新情報がLIFULL HOME'S公式のLINEから届きます
プライバシーポリシーに同意の上ご登録ください

QRコードを読み込むと登録画面が表示されます

周辺環境・アクセス

現地案内図

グレーシア海老名かしわ台:案内図

所在地
神奈川県海老名市柏ケ谷三丁目631番1
お問合せ先
「グレーシア海老名かしわ台」
0037-618-15542

交通アクセス図

グレーシア海老名かしわ台:交通図

グレーシア海老名かしわ台:交通図

※掲載の所要時間は通勤時のもので[( )内は日中平常時]、時間帯により異なります。掲載の所要時間は「駅すぱあと」にて算出したものです。(調査日:2025年5月)通勤時7:30~9:00着、日中時10:00~14:00着としています。また、ダイヤ改正等により変更になる場合がございます。

周辺スポット

  • ウェルパーク海老名かしわ台店
    約70m(徒歩1分)

  • そうてつローゼンかしわ台店
    約180m(徒歩3分)

  • ダイソー 海老名かしわ台店
    約260m(徒歩4分)

  • &KIDSことのはほいくえん
    約190m(徒歩3分)

  • 柏ケ谷小学校[通学指定校]
    約320m(徒歩4分)

  • かしわ台駅前クリニック
    約190m(徒歩3分)

  • 湘陽かしわ台病院
    約320m(徒歩4分)

  • 海老名市役所
    約3,740m

  • 柏ケ谷第二児童公園
    約440m(徒歩6分)

  • セブン-イレブン 海老名かしわ台駅前店
    約140m(徒歩2分)
  • ファミリーマート 相鉄かしわ台駅店
    約210m(徒歩3分)
  • MEGAドン・キホーテ綾瀬店
    約1,780m(徒歩23分)
  • ドレーパー記念幼稚園
    約760m(徒歩10分)
  • 市立柏ケ谷中学校[通学指定校]
    約740m(徒歩10分)
  • 宇井クリニック
    約190m(徒歩3分)
  • あやせ眼科
    約670m(徒歩9分)
  • かしわ台駅前郵便局
    約430m(徒歩6分)
  • 平塚信用金庫 海老名支店
    約880m(徒歩11分)
  • かしわ台駅前交番
    約160m(徒歩2分)
  • ホリデイスポーツクラブ 海老名かしわ台店
    約360m(徒歩5分)
  • かしわ台児童公園
    約470m(徒歩6分)

周辺地図

周辺情報

※半径4kmを超えると、周辺情報のアイコンは表示されません。

  • ※地図上に表示される各種アイコンなどの情報は、おおよその所在地を表すものであり、物件・施設などの地点を保証するものではありません
  • ※地図の表示領域が広域になると周辺のお店・施設は表示できなくなります
  • ※地図、航空写真情報および地形ならびに周辺のお店・施設は、必ずしも現況を表すものではありません
  • ※物件から周辺のお店・施設までの距離は、利用が想定される道路を通行した場合の距離です。なお、必ずしも最短距離を保証するものではありません

LINEで更新情報を受け取る(無料)

価格・間取りなどの更新情報がLIFULL HOME'S公式のLINEから届きます
プライバシーポリシーに同意の上ご登録ください

QRコードを読み込むと登録画面が表示されます

モデルルーム

モデルルーム案内図

グレーシア海老名かしわ台:モデルルーム地図

モデルルーム情報

インフォメーション 「さがみ野」駅徒歩7分の完成済マンションの商談室にてご案内。
建物内にモデルルームもあり、設備等は異なる箇所がございますが「グレーシア」を体感できます。
所在地 -
営業時間 午前10時~午後5時
定休日 毎週水曜・木曜
開催期間 -
お問合せ先

「グレーシア海老名かしわ台」

電話:0037-618-15542【通話無料】

  • 携帯可 光IP電話、及びIP電話からはご利用いただけません
  • ※営業時間外は電話がつながらないことがございますのでご了承ください。
  • ※お客様の電話番号は不動産会社に通知されません
  • ※携帯電話はご利用いただけます
  • ※光IP電話、及びIP電話をご利用のお客様は以下へご連絡ください
    「グレーシア海老名かしわ台」 TEL:0120-06-9048
  • ※携帯電話からお問合せいただいた方には、ショートメッセージ(SMS)またはLINE通知メッセージによるお問合せ内容に関する通知をお届けする場合があり、お客様の電話番号は株式会社LIFULLで一定期間保管されます
  • ※株式会社LIFULLの個人情報の取扱い方針に同意のうえ、お電話ください

お問合せ(無料)

モデルルーム見学する
6/2
6/3
×
6/4
×
6/5
6/6
6/7
6/8
6/9
6/10
×
6/11
×
6/12
6/13
6/14
6/15


モデルルーム
見学予約する
無料

資料請求する
グレーシア海老名かしわ台 グレーシア海老名かしわ台

詳しいパンフレットや図面集、リーフレット等がお手元に届きます。
質問・相談もできます


かんたん1分で
資料をもらう
無料

電話する

0037-618-15542無料

QRコードを読み込むとすぐに電話できます。

登録する

LINEで更新情報を受け取る(無料)

価格・間取りなどの更新情報がLIFULL HOME'S公式のLINEから届きます
プライバシーポリシーに同意の上ご登録ください

QRコードを読み込むと登録画面が表示されます

建物・部屋

建物・共用部

  • グレーシア海老名かしわ台 外観完成予想CG

    外観完成予想CG
    グレーを基調に水平ラインと縦へ伸びるマリオンを採用。グレーやホワイトなどの落ち着いたカラーを採用。角住戸の雁行したデザインや、水平ラインとマリオンがクロスする端正な意匠を実現。
  • グレーシア海老名かしわ台 外観完成予想CG

    外観完成予想CG
  • グレーシア海老名かしわ台 外観完成予想CG

    外観完成予想CG
    木洩れ陽が煌めく、奥行きのあるアプローチガーデン。引きの長い緑化アプローチとシンボルツリーを設置。歩車分離による安全性も確保しながら、木洩れ陽を歩む気持ちよさを実現。
  • グレーシア海老名かしわ台 エントランス完成予想CG

    エントランス完成予想CG
    車寄せのある上質なエントランス空間。
  • グレーシア海老名かしわ台 エントランスホール完成予想CG

    エントランスホール完成予想CG
  • グレーシア海老名かしわ台 敷地配置イメージイラスト

    敷地配置イメージイラスト
    既存樹や根府川石を継承した外構計画。森のような小径が住む人を迎え入れてくれます。

※掲載の完成予想CGは計画段階の図面を基に描き起こしたもので、形状・色等は実際とは異なり、今後施工上の理由等により計画に変更が生じる場合があります。外観および内観形状の細部、設備機器等再現されていないものがあります。
※掲載の敷地配置イメージイラストは、計画段階の図面を基に描き起こしたもので実際とは異なります。植栽は特定の季節や入居時の状態を想定して描いたものではありません。

LINEで更新情報を受け取る(無料)

価格・間取りなどの更新情報がLIFULL HOME'S公式のLINEから届きます
プライバシーポリシーに同意の上ご登録ください

QRコードを読み込むと登録画面が表示されます

設備・構造

  • グレーシア海老名かしわ台 流レールシンク

    流レールシンク

    新発想の水路で調理中からシンクがキレイ※参考写真

  • グレーシア海老名かしわ台 スリム型レンジフード

    スリム型レンジフード

    スッキリとしたデザインが特徴でお手入れ簡単※参考写真

  • グレーシア海老名かしわ台 シングルレバー混合栓

    シングルレバー混合栓

    ノズルを引き出してシンクのお掃除ができる※参考写真

  • グレーシア海老名かしわ台 グリル付3口ガスコンロ

    グリル付3口ガスコンロ

    充実機能と美しいフォルムの上質なガスコンロ※参考写真

  • グレーシア海老名かしわ台 ミナモ浴槽

    ミナモ浴槽

    湯面の広がりと入浴時の開放感が感じられる※参考写真

  • グレーシア海老名かしわ台 スイッチ付エコアクアシャワー

    スイッチ付エコアクアシャワー

    空気を含んだ大粒の水滴が心地よい※参考写真

  • グレーシア海老名かしわ台 パッとくるりんポイ排水口

    パッとくるりんポイ排水口

    排水口にたまった毛髪やごみをまとめて捨てやすい※参考写真

  • グレーシア海老名かしわ台 とるピカスリムカウンター

    とるピカスリムカウンター

    カンタンに壁から外して、まる洗いできる※参考写真

  • グレーシア海老名かしわ台 ツインデッキボウル一体型カウンター

    ツインデッキボウル一体型カウンター

    ボウル一体で継ぎ目がなく、衛生的で清掃性にも優れたツインデッキボウル一体型カウンター※参考写真

  • グレーシア海老名かしわ台 シングルレバー式混合栓

    シングルレバー式混合栓

    シンクの清掃がしやすく、節湯機能付のシングルレバー式混合栓※参考写真

  • グレーシア海老名かしわ台 フロストミラー

    フロストミラー

    三面鏡下は汚れの目立たない※参考写真

  • グレーシア海老名かしわ台 メールボックス一体型宅配ボックス

    メールボックス一体型宅配ボックス

    不在時など荷物の受け取りが24時間可能※参考写真

  • グレーシア海老名かしわ台 都市生活の安心を彩るセキュリティシステム

    都市生活の安心を彩るセキュリティシステム

    エントランスのオートロックは、各住戸に設けたカラーモニター付きインターホンと連動。来訪者の姿と声をカラー画像と音声で確認した後、住戸内から解錠できます。※概念図

  • グレーシア海老名かしわ台 テブラキー

    テブラキー

    キーをカバンやポケットに入れたままキーリーダの前に立つとエントランスのドアが開きます。荷物で手がふさがっている時にも便利です。※テブラキーの検知範囲に制限がある為、進路によって感知しない場合があります。※参考写真

  • グレーシア海老名かしわ台 カラーモニター付きインターホン

    カラーモニター付きインターホン

    共用エントランスの来訪者をカラー画像と音声で確認できます。また、録画・録音機能もついております。※参考写真

  • グレーシア海老名かしわ台 杭基礎構造

    杭基礎構造

    現地でコンクリートを支持地盤まで流し込み、杭の先端を強固な地層まで到達させる”場所打ちコンクリート杭”を採用。杭は先端を広げた拡底杭とし、その抵抗力によって建物を支える杭基礎を採用しています。※概念図

  • グレーシア海老名かしわ台 複層ガラス

    複層ガラス

    窓は断熱性の高い複層ガラスを採用。結露を抑え省エネ効果もあります。※概念図

  • グレーシア海老名かしわ台 神奈川県建築物環境性能表示

    神奈川県建築物環境性能表示

  • 食器洗い乾燥機 食器の出し入れがしやすいスライドオープン式
  • 吊戸棚 壁面の上部に取り付けられた収納棚
  • 壁パネル キッチン周りの壁面はお手入れがしやすい
  • サーモバスS 浴槽保温材と保温組フタの“ダブル保温”構造
  • キレイドア 汚れにくく、お掃除がラクなキレイドア
  • 扉裏収納付き三面鏡 洗面用具などを収納できる機能的な扉裏収納付き三面鏡
  • ヘルスメータースペース すっきりと収納することができる専用のスペース
  • J:COMブックス ファッション誌など人気の雑誌が読める共用部雑誌読み放題サービス
  • 24時間セキュリティシステム オンライン監視による24時間セキュリティシステムを採用。マンション内および各住戸に設置された防災・防犯センサー類が異常を検知し、管理事務室内のCOMFORT24警備システムを通じてセキュリティセンター(相鉄企業・セコム)へ自動通報。警備隊員が現地確認し、関係各所と連携を図り、日常の安全を守ります。
  • ダブルロック 防犯性を高めたディンプルキーと共に、玄関ドアは上下2ヶ所を施錠できるダブルロック仕様としました。
  • 二重床・二重天井 将来のメンテナンスやリフォームにも柔軟に対応する二重床・二重天井。床はゴム付支持脚の採用により遮音性にも配慮しています。
  • 耐震玄関ドア枠 基準値範囲内における地震による変形でドアが開かなくなる状況を軽減します。※住戸玄関ドアのみ

※掲載の写真はメーカー支給の参考写真、または当社既分譲物件で撮影した参考写真で本物件のものではありません。

省エネ性能

省エネ性能ラベル

省エネ性能ラベル

性能の詳細

エネルギー
消費性能
★★★(削減率20%達成)
断熱性能 6段階/7段階中
目安光熱費 -/年

住棟ラベル:本ラベルは、住棟全体(複数棟の場合は代表棟)の性能を示すものであり、特定の住戸の性能を示すものではありません

住戸ラベル:本ラベルは、特定の住戸の性能を示すものであり、全ての住戸の性能を示すものではありません

LINEで更新情報を受け取る(無料)

価格・間取りなどの更新情報がLIFULL HOME'S公式のLINEから届きます
プライバシーポリシーに同意の上ご登録ください

QRコードを読み込むと登録画面が表示されます

物件概要

販売概要

予告広告 第2期 予告広告

販売スケジュール 販売予定時期:2026年3月下旬
販売価格 5,000万円台~6,300万円台(予定)※100万円単位 ローンシミュレーター
予定最多価格帯 未定
販売戸数 4戸
間取り 2LDK+S ~ 3LDK
専有面積 67.27㎡ ~ 74.78㎡
バルコニー面積 10.31㎡ ~ 11.16㎡
その他面積 サービスバルコニー面積/2.26㎡
管理費 22,160円~24,650円(月額)
修繕積立金 6,730円~7,480円(月額)
修繕積立基金 807,600円~897,600円(引渡時一括)
その他費用 ■管理準備金(引渡時一括):67,270円~74,780円 ■インターネット使用料(月額):792円 ■給湯器リース料(月額):3,091円
販売概要備考 ※本広告を行い取引を開始するまでは契約、予約の受付は一切できません。また申込の順位の確保に関する措置を講じられません。予めご了承ください。※住宅ローンご利用予定の方は、弊社提携住宅ローン事前審査の承認が必要となります。融資期間は1~50年となります(50年住宅ローン利用可)。また、お買替の方は購入資金が確定していることが条件となります。停止条件付(買替不成立時の白紙解約)でのご登録はできません。詳しくは営業担当までお問合せください。
取引条件有効期限 -

LINEで更新情報を受け取る(無料)

価格・間取りなどの更新情報がLIFULL HOME'S公式のLINEから届きます
プライバシーポリシーに同意の上ご登録ください

QRコードを読み込むと登録画面が表示されます

全体概要

所在地 神奈川県海老名市柏ケ谷三丁目631番1
交通
相鉄本線「かしわ台」駅 徒歩3分
総戸数 76戸
構造および階数 鉄筋コンクリート 地上13階建
駐車場 -
その他、共有施設等 ■駐車場:53台[平置26台・専用駐車場4台・機械式22台・車いす使用者用1台](月額使用料:10,000円~15,000円)
■自転車置場:79台[電動自転車用平置23台・2段ラック式56台](月額使用料:100円~500円)
■バイク置場:3台(月額使用料:3,500円)
完成時期 2026年12月下旬予定
引き渡し可能年月 2027年3月下旬予定
分譲後の権利形態 敷地及び建物共用部分は専有面積割合による所有権の共有、専有部分は区分所有権
管理形態 区分所有者全員による管理組合を結成し、管理業務等は管理会社に委託
管理員の勤務形態 通勤管理
敷地面積 2,673.13㎡
用途地域 第一種住居地域
建築確認番号 第JTC24Y-AZ0692-00号(令和6年12月20日)
売主 相鉄不動産株式会社
販売会社 相鉄不動産株式会社(売主)
施工会社 南海辰村建設株式会社 東京支店
管理会社 株式会社相鉄リビングサポート
備考 【TOP画像】
※1.外観および内観形状の細部、設備機器等再現されていないものがあります。
バルコニー面積: 10.31㎡~11.16㎡
その他面積: サービスバルコニー面積/2.26㎡
建築確認番号: 第JTC24Y-AZ0692-00号(令和6年12月20日)
加盟団体: (公社)首都圏不動産公正取引協議会、(一社)不動産協会
情報更新日 2026/05/27
次回更新予定日 2026/06/10

LINEで更新情報を受け取る(無料)

価格・間取りなどの更新情報がLIFULL HOME'S公式のLINEから届きます
プライバシーポリシーに同意の上ご登録ください

QRコードを読み込むと登録画面が表示されます

会社・ブランド

ブランド情報

この物件の不動産会社が保持しているマンションブランドの特徴です。

グレーシア

ブランド画像

いつもこころにGRACEを。

愛と、品と、幸福に恵まれる住まい。
そんな意味をもつグレーシア。

ここに暮らす誇りを育み、
人生のかけがえのない居場所となりますように。

安全・安心への徹底した品質が、
心からの信頼と安らぎをもたらしますように。

日々を過ごす魅力的な場所として、
いつまでも住み続けられる居心地が生まれますように。

そして、たくさんの人たちが、
自分らしい生き方を叶えられますように。

GRACEを心に抱く住まいとまちづくりで、
GRACEが心に満ちる暮らしを。


◆Grac+ia = Gracia
Graciaとは、「上品」や「洗練」という意味の英語Graceに、「~の地」という意味を作るラテン語の接尾辞iaをあわせて[良い住まい]を表現した造語です。

愛と、品と、幸福に恵まれる住まい。
そんな意味をもつグレーシア。

ここに暮らす誇りを育み、
人生のかけがえのない居場所となりますように。

安全・安心への徹底した品質が、
心からの信頼と安らぎをもたらしますように。

日々を過ごす魅力的な場所として、
いつまでも住み続けられる居心地が生まれますように。

そして、たくさんの人たちが、
自分らしい生き方を叶えられますように。

GRACEを心に抱く住まいとまちづくりで、
GRACEが心に満ちる暮らしを。


◆Grac+ia = Gracia
Graciaとは、「上品」や「洗練」という意味の英語Graceに、「~の地」という意味を作るラテン語の接尾辞iaをあわせて[良い住まい]を表現した造語です。

情報提供元

相鉄不動産株式会社

免許番号
[国土交通大臣(3)第7949号 (更新中)]
所在地
〒220-0004 神奈川県横浜市西区北幸2-9-14
加盟団体
(公社)首都圏不動産公正取引協議会、(一社)不動産協会

お問合せ(無料)

モデルルーム見学する
6/2
6/3
×
6/4
×
6/5
6/6
6/7
6/8
6/9
6/10
×
6/11
×
6/12
6/13
6/14
6/15


モデルルーム
見学予約する
無料

資料請求する
グレーシア海老名かしわ台 グレーシア海老名かしわ台

詳しいパンフレットや図面集、リーフレット等がお手元に届きます。
質問・相談もできます


かんたん1分で
資料をもらう
無料

電話する

0037-618-15542無料

QRコードを読み込むとすぐに電話できます。

お問合せ先

「グレーシア海老名かしわ台」

電話:0037-618-15542【通話無料】

受付時間:午前10時~午後5時 定休日/毎週水曜・木曜

オンライン相談可能です
  • ※お問合せの際は、「ライフルホームズを見て」とお伝えいただくとスムーズです
  • ※営業時間外は下記の「資料をもらう(無料)」よりお問合せください
【お電話の際の注意事項】
※お客様の電話番号は不動産会社に通知されません
※携帯電話はご利用いただけます
※光IP電話、及びIP電話をご利用のお客様は以下へご連絡ください
TEL:「グレーシア海老名かしわ台」0120-06-9048
※携帯電話からお問合せいただいた方には、ショートメッセージ(SMS)またはLINE通知メッセージによるお問合せ内容に関する通知をお届けする場合があり、お客様の電話番号は株式会社LIFULLで一定期間保管されます
登録する
お気に入り一覧を見る

LINEで更新情報を受け取る(無料)

価格・間取りなどの更新情報がLIFULL HOME'S公式のLINEから届きます
プライバシーポリシーに同意の上ご登録ください

QRコードを読み込むと登録画面が表示されます

シェアする

【物件番号】 1602130-0000003

  • ※完成予想図やCG合成画像は、門塀・植栽・庭・外観等、実際とは多少異なる場合があります。 また、掲載の図面は、多少変更になる場合があります
  • ※掲載の写真や動画には、一部オプション(有償)が含まれる場合があります。また、家具・調度品等は販売価格に含まれておりません
  • ※完成後1年未満で未入居の物件を「新築」と表示しております

その他の新築分譲マンションを探す

海老名市の詳細町域から新築分譲マンションを探す

  • グレーシア海老名かしわ台 外観

    外観完成予想CG※掲載の完成予想CGは計画段階の図面を基に描き起こしたもので、形状・色等は実際とは異なり、今後施工上の理由等により計画に変更が生じる場合があります。※1

  • グレーシア海老名かしわ台 共用部

    グレーを基調に水平ラインと縦へ伸びるマリオンを採用。グレーやホワイトなどの落ち着いたカラーを採用。角住戸の雁行したデザインや、水平ラインとマリオンがクロスする端正な意匠を実現。

  • グレーシア海老名かしわ台 共用部

  • グレーシア海老名かしわ台 共用部

    木洩れ陽が煌めく、奥行きのあるアプローチガーデン。引きの長い緑化アプローチとシンボルツリーを設置。歩車分離による安全性も確保しながら、木洩れ陽を歩む気持ちよさを実現。

  • グレーシア海老名かしわ台 共用部

    車寄せのある上質なエントランス空間。

  • グレーシア海老名かしわ台 共用部

  • グレーシア海老名かしわ台 共用部

    既存樹や根府川石を継承した外構計画。森のような小径が住む人を迎え入れてくれます。

  • グレーシア海老名かしわ台 設備

    流レールシンク

  • グレーシア海老名かしわ台 設備

    スリム型レンジフード

  • グレーシア海老名かしわ台 設備

    シングルレバー混合栓

  • グレーシア海老名かしわ台 設備

    グリル付3口ガスコンロ

  • グレーシア海老名かしわ台 設備

    ミナモ浴槽

  • グレーシア海老名かしわ台 設備

    スイッチ付エコアクアシャワー

  • グレーシア海老名かしわ台 設備

    パッとくるりんポイ排水口

  • グレーシア海老名かしわ台 設備

    とるピカスリムカウンター

  • グレーシア海老名かしわ台 設備

    ツインデッキボウル一体型カウンター

  • グレーシア海老名かしわ台 設備

    シングルレバー式混合栓

  • グレーシア海老名かしわ台 設備

    フロストミラー

  • グレーシア海老名かしわ台 設備

    メールボックス一体型宅配ボックス

  • グレーシア海老名かしわ台 設備

    都市生活の安心を彩るセキュリティシステム

  • グレーシア海老名かしわ台 設備

    テブラキー

  • グレーシア海老名かしわ台 設備

    カラーモニター付きインターホン

  • グレーシア海老名かしわ台 設備

    杭基礎構造

  • グレーシア海老名かしわ台 設備

    複層ガラス

  • グレーシア海老名かしわ台 設備

    神奈川県建築物環境性能表示

  • 周辺環境

    ウェルパーク海老名かしわ台店 約70m(徒歩1分)

  • 周辺環境

    そうてつローゼンかしわ台店 約180m(徒歩3分)

  • 周辺環境

    ダイソー 海老名かしわ台店 約260m(徒歩4分)

  • 周辺環境

    &KIDSことのはほいくえん 約190m(徒歩3分)

  • 周辺環境

    柏ケ谷小学校[通学指定校] 約320m(徒歩4分)

  • 周辺環境

    かしわ台駅前クリニック 約190m(徒歩3分)

  • 周辺環境

    湘陽かしわ台病院 約320m(徒歩4分)

  • 周辺環境

    海老名市役所 約3,740m

  • 周辺環境

    柏ケ谷第二児童公園 約440m(徒歩6分)

  • グレーシア海老名かしわ台 現地案内図

  • グレーシア海老名かしわ台 アクセス図

  • グレーシア海老名かしわ台 アクセス図

  • グレーシア海老名かしわ台 モデルルーム案内図

  • グレーシア海老名かしわ台 外観

    外観完成予想CG※掲載の完成予想CGは計画段階の図面を基に描き起こしたもので、形状・色等は実際とは異なり、今後施工上の理由等により計画に変更が生じる場合があります。※1

  • グレーシア海老名かしわ台 共用部

    グレーを基調に水平ラインと縦へ伸びるマリオンを採用。グレーやホワイトなどの落ち着いたカラーを採用。角住戸の雁行したデザインや、水平ラインとマリオンがクロスする端正な意匠を実現。

  • グレーシア海老名かしわ台 共用部

  • グレーシア海老名かしわ台 共用部

    木洩れ陽が煌めく、奥行きのあるアプローチガーデン。引きの長い緑化アプローチとシンボルツリーを設置。歩車分離による安全性も確保しながら、木洩れ陽を歩む気持ちよさを実現。

  • グレーシア海老名かしわ台 共用部

    車寄せのある上質なエントランス空間。

  • グレーシア海老名かしわ台 共用部

  • グレーシア海老名かしわ台 共用部

    既存樹や根府川石を継承した外構計画。森のような小径が住む人を迎え入れてくれます。

  • グレーシア海老名かしわ台 設備

    流レールシンク

  • グレーシア海老名かしわ台 設備

    スリム型レンジフード

  • グレーシア海老名かしわ台 設備

    シングルレバー混合栓

  • グレーシア海老名かしわ台 設備

    グリル付3口ガスコンロ

  • グレーシア海老名かしわ台 設備

    ミナモ浴槽

  • グレーシア海老名かしわ台 設備

    スイッチ付エコアクアシャワー

  • グレーシア海老名かしわ台 設備

    パッとくるりんポイ排水口

  • グレーシア海老名かしわ台 設備

    とるピカスリムカウンター

  • グレーシア海老名かしわ台 設備

    ツインデッキボウル一体型カウンター

  • グレーシア海老名かしわ台 設備

    シングルレバー式混合栓

  • グレーシア海老名かしわ台 設備

    フロストミラー

  • グレーシア海老名かしわ台 設備

    メールボックス一体型宅配ボックス

  • グレーシア海老名かしわ台 設備

    都市生活の安心を彩るセキュリティシステム

  • グレーシア海老名かしわ台 設備

    テブラキー

  • グレーシア海老名かしわ台 設備

    カラーモニター付きインターホン

  • グレーシア海老名かしわ台 設備

    杭基礎構造

  • グレーシア海老名かしわ台 設備

    複層ガラス

  • グレーシア海老名かしわ台 設備

    神奈川県建築物環境性能表示

  • 周辺環境

    ウェルパーク海老名かしわ台店 約70m(徒歩1分)

  • 周辺環境

    そうてつローゼンかしわ台店 約180m(徒歩3分)

  • 周辺環境

    ダイソー 海老名かしわ台店 約260m(徒歩4分)

  • 周辺環境

    &KIDSことのはほいくえん 約190m(徒歩3分)

  • 周辺環境

    柏ケ谷小学校[通学指定校] 約320m(徒歩4分)

  • 周辺環境

    かしわ台駅前クリニック 約190m(徒歩3分)

  • 周辺環境

    湘陽かしわ台病院 約320m(徒歩4分)

  • 周辺環境

    海老名市役所 約3,740m

  • 周辺環境

    柏ケ谷第二児童公園 約440m(徒歩6分)

  • グレーシア海老名かしわ台 現地案内図

  • グレーシア海老名かしわ台 アクセス図

  • グレーシア海老名かしわ台 アクセス図

  • グレーシア海老名かしわ台 モデルルーム案内図

  • グレーシア海老名かしわ台 間取り A

    A

    間取り
    2LDK+S+WIC
    専有面積
    67.23㎡
    バルコニー
    面積
    9.03㎡
    その他面積
    サービスバルコニー面積/2.28㎡
    所在階
    -
    向き
    -
    備考
    -
  • グレーシア海老名かしわ台 間取り F

    F

    間取り
    2LDK+S+WIC
    専有面積
    74.78㎡
    バルコニー
    面積
    10.31㎡
    その他面積
    サービスバルコニー面積/2.26㎡
    所在階
    -
    向き
    -
    備考
    -
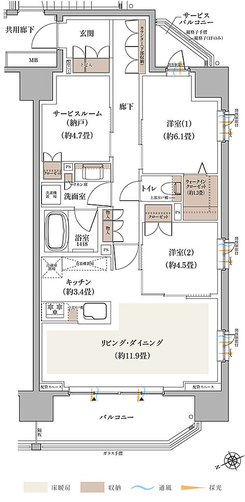
  • グレーシア海老名かしわ台 間取り C

    C

    間取り
    3LDK+WIC
    専有面積
    67.27㎡
    バルコニー
    面積
    11.16㎡
    その他面積
    -
    所在階
    -
    向き
    -
    備考
    -
  • グレーシア海老名かしわ台 間取り E

    E

    間取り
    3LDK+WIC
    専有面積
    67.27㎡
    バルコニー
    面積
    11.16㎡
    その他面積
    -
    所在階
    -
    向き
    -
    備考
    -
  • グレーシア海老名かしわ台 間取り A

    A

    間取り
    2LDK+S+WIC
    専有面積
    67.23㎡
    バルコニー
    面積
    9.03㎡
    その他面積
    サービスバルコニー面積/2.28㎡
    所在階
    -
    向き
    -
    備考
    -
  • グレーシア海老名かしわ台 間取り F

    F

    間取り
    2LDK+S+WIC
    専有面積
    74.78㎡
    バルコニー
    面積
    10.31㎡
    その他面積
    サービスバルコニー面積/2.26㎡
    所在階
    -
    向き
    -
    備考
    -
  • グレーシア海老名かしわ台 間取り C

    C

    間取り
    3LDK+WIC
    専有面積
    67.27㎡
    バルコニー
    面積
    11.16㎡
    その他面積
    -
    所在階
    -
    向き
    -
    備考
    -
  • グレーシア海老名かしわ台 間取り E

    E

    間取り
    3LDK+WIC
    専有面積
    67.27㎡
    バルコニー
    面積
    11.16㎡
    その他面積
    -
    所在階
    -
    向き
    -
    備考
    -

オンライン相談とは

モデルルームや現地に行くことなく、自宅からビデオ通話で不動産会社スタッフと物件の相談をすることができます。
  1. 不動産会社へ問合せ

    「オンライン相談」ボタンまたは「見学予約」ボタンを押してフォーム内の「オンライン相談」を選択し送信します。

  2. 不動産会社と日程・接続方法を調整

    不動産会社から連絡が来たらオンライン相談の日時を調整して、予約完了。

  3. 相談方法がメールで届く

    メールにてオンライン相談の利用方法が届きますので、ご確認ください。

  4. 指定場所にアクセス

    当日、予約時刻になったら指定のビデオ通話につなぎ、ご相談ください。

利用時の注意事項
  • ビデオ通話については各不動産会社指定のものとなります。
  • ビデオ通話利用時には通信が発生します。従量課金制通信サービスや通信料に上限があるネット回線・プランを利用する場合は、通信量に注意してください。
  • 通信速度やアプリの設定によってはビデオ通話の画質が低下することがあります。安定した画質で利用するためにも、Wi-Fi環境下での利用を推奨します。
  • ご利用のビデオ通話アプリによっては、対象のOSやブラウザに制限がある場合があります。詳しくはお問合せ先不動産会社にご確認ください。

閉じる

条件を削除すると新着お知らせメールの
配信が停止されますがよろしいですか?