ジオタワー大阪十三のモデルルームに行ってきました!
本コンテンツは、株式会社LIFULLからライターに依頼し、コメントを一部編集して掲載しています。
女性にやさしいマンション情報「WoMansion」は、女性ライターが新築分譲マンションのモデルルームを訪問し、見たこと、聞いたこと、感じたことを紹介します。
(現地見学日:2023年6月6日 モデルルーム見学日:2023年9月8日)
こんにちは!子育てママのsoraです。
新築分譲マンションは、建築確認を取得後、準備が整い次第、公式ホームページが開設され、プロジェクトが開始します。その後、モデルルームが完成し、規模によっては関係者内覧会や事前案内会があり、グランドオープンを迎えます。
今回は、「ジオタワー大阪十三」のマンションギャラリー関係者内覧会をLIFULL HOME'Sとして見学させてもらいました!
阪急電鉄神戸線、宝塚線、京都線「十三」駅まで徒歩3分という好立地に誕生する地上39階建てのタワーマンションです!
目次
大阪屈指のターミナル「十三」駅まで徒歩3分の「ジオタワー大阪十三」
最寄り駅である「十三」駅から「大阪梅田」駅まで1駅で3分〜6分、「神戸三宮」駅まで27分〜29分、「宝塚」駅まで31分〜33分、「京都河原町」駅まで43分〜49分。関西の主要エリアへ快適にアクセスできます。
ちょうど私も「ジオタワー大阪十三」の現地を見学後、京都の四条河原町に行きたかったのですが、阪急京都線で1本、座って行くことができました。

交通アクセス図。何よりも「大阪梅田」に1駅で行けるというのはかなり便利!
阪急電鉄主要3路線の結節点として、現時点でも十分交通利便性の高い駅ですが、さらに、現在「なにわ筋連絡線」「新大阪連絡線」という新線の計画もあり、完成すれば新大阪駅や関西国際空港へのアクセス性が向上。今以上に利便性が高い駅になります。
こんな利便性の高い立地の駅徒歩3分に立つマンション、関東で言うと…と考えてみても、すぐには思いつかないレベルです!
<物件概要>
所在地:大阪府大阪市淀川区十三東1丁目21番3他(地番)
交通:阪急電鉄神戸線「十三」駅 (東改札口) 徒歩3分、阪急電鉄宝塚線「十三」駅 (東改札口) 徒歩3分、阪急電鉄京都線「十三」駅 (東改札口) 徒歩3分
総戸数:712戸(うち非分譲住戸1戸含む)
階数:地上39階、地下1階建て
引き渡し可能年月:2026年4月(予定)
施工会社:鹿島・高松共同企業体(高ははしご高)
売主:阪急阪神不動産株式会社
さらに魅力的な街へと進化する「大阪」、今後が楽しみな街「十三」
現在、大阪エリアでは、リニア中央新幹線の開通を見越し、多数のプロジェクトが同時に進行中。首都圏と中部圏、関西圏の3大都市が一つにつながり、巨大な経済圏を作り出すプロジェクト(スーパー・メガリージョン構想)、広大な都市公園を中心にホテル、商業施設、オフィスなどが集う、うめきた2期地区開発プロジェクト(グラングリーン大阪)、夢洲で開催が予定されている国際的な博覧会、環状道路や新線の開通、新大阪駅周辺地域 都市再生緊急整備地域に指定されたことによる複数の再整備計画など、さらなる発展が期待されます。

大阪では複数の再開発プロジェクトが進行中。これからがますます楽しみです
「ジオタワー大阪十三」は、そんな発展し続ける大阪エリアに誕生する将来性も注目のプロジェクトです。
また、マンションから程近い淀川河川敷では、近畿地方整備局が船着場を整備中。淀川と大阪市内・京都市内がつながる広域的な観光運輸としての活用が見込まれており、将来、十三と夢洲を結ぶ舟運ラインが実現するかもしれないと思うとさらにワクワクします!

利便性や安心・安全に配慮したプランニング
「十三」駅をおりると、すぐ商店街が見えました。街は人が多く活気があり、昔からある街ならではの親しみやすさを感じました。阪急電鉄のアクセスの結節点というポジションでありながら、「乗り換えする駅」「繁華街」のイメージを持っている方も多いそうですが、今回マンションギャラリーを見学して、十三という街の魅力は残したまま、より暮らしやすい街に変えていこうとする阪急阪神不動産さんの思いを感じました。

左:現地から歩いてすぐの淀川河川敷。向かい側に大阪駅周辺のビル群が見えています 右:アーケード商店街は雨に濡れずに買い物ができるので便利
建設現地は、「十三」駅と淀川河川敷の間に位置します。総計約8,900m2という広大な敷地で、細い道路を挟み、西側敷地と東側敷地に分かれます。
約1,600m2の西側敷地には、学校法人履正社の運営する医療系の専門学校が開校予定。学校を誘致することで、平日昼間に街に来る人の流れを作ることができ、結果、活気も生まれるのは「官民」だけではなく「学」も含めた再開発のメリットだと思います。

左:現地周辺 右:西側敷地と東側敷地の間には細い道路があります
東側敷地には、約2,400m2の広い公開空地。その奥に、地上39階建ての複合施設棟と6階建ての駐輪場棟が計画されています。
複合施設棟の1階はスーパーマーケット、2階には大阪市立図書館、学校図書館(学校法人履正社運営)、保育学童施設など、3階~39階が「ジオタワー大阪十三」になります。

左:外観画像 右:1階~3階のフロアイメージイラスト
2階の学校図書館の一部は一般開放され、同フロアの大阪市立図書館とも有機的につながるコミュニティの場となるそうです。公開空地を含め、敷地内では地域住民を巻き込んだイベントなどを継続的に開催して行くとのことでした。

左:公開空地完成予想図。約2,400m2の公開空地と大階段を配した地域のコミュニティを育むゲートガーデン 右:まちライブラリー(交流型図書館)完成予想図。学校図書館の一般開放エリアで、読書、学び、ミーティングなどさまざまな目的で利用できる地域コミュニティの場。この空間は、マンションギャラリーでも一部再現されていて、雰囲気を感じることができます
「ジオタワー大阪十三」は、鹿島建設株式会社の先端技術「制御層制震構造『KaCLASS®』」を初採用する超高層タワーレジデンス。『KaCLASS®』は建物の高さ70%程度の位置で上部躯体と下部躯体に分割し、その間に制御層と呼ばれるエネルギー吸収層を設ける制免震技術のことです(夜間には、KaCLASS®の制御層部分がライトアップするそうです)。
また、駅や商業施設に近接という立地柄、災害時には、施設の一部を帰宅困難者等の一時受入スペースとして開放するなど、地域の安全安心な拠点としての役割も担うとのことでした。
「ジオタワー大阪十三」は「ZEH-M Oriented」の認定を取得した環境配慮型のマンションになります。エネルギー消費量を抑制することで環境に優しいだけではなく、日々の暮らしを快適にしたり、お財布に優しいなど、居住性や経済面でもメリットがあります。

デザインコンセプトはWellnessで、緑、水、光と風がテーマ。完成したら、現地周辺はぐっと雰囲気が変わるだろうなと思いました。街を代表する建物になりそうです
自然を感じられるデザインを採用した共用施設
大規模タワーマンションならではの共用施設も充実しています。室内に緑化を施し、インテリアや内装材に木材を活用するなど、自然を感じられる空間デザインで、帰ってくる度に癒されそう!
1階のグランドエントランスから、3階に行くと、2層吹き抜けのグランドロビー、コモンズロビー、オーナーラウンジ、ワーキングテラス、ワーキングブース、ゲストルーム、コミュニティルーム(集会室)、ゴルフシミュレーターなどの共用スペースが集積しています。
特筆すべきは、阪急阪神ホテルズ監修による2つのゲストルーム。一つは、「よりよい眠りを」というホテルのコンセプトを体験できるゲストルーム。ツインベッドとマッサージチェアがあるそうです。もう一つは、リビング・ダイニング・寝室が緩やかにつながり、お茶会やパーティーができる土間キッチンがある和空間のゲストルーム。コンセプトが凝っているゲストルームは、来客時に利用するのはもちろん、住民でも泊まりたくなってしまいそう!

左上:グランドロビー完成予想図 右上:オーナーズガーデン完成予想図 左下:ワーキングテラス完成予想図 右下:オーナーズラウンジ完成予想図
また、スカイラウンジなど、眺望を楽しむことができる共用施設もあります。
どの階、どの方角の住戸を購入しても共用施設からタワーマンションならではの眺望を楽しむことができるのは、魅力的。気分転換をしたいときや友人が遊びに来るときなどに利用したい共用施設です。

スカイラウンジ完成予想図
多彩な間取りと充実の設備仕様
住戸は、43.07m2~163.80m2、基本プランは1LDK~3LDKで、3LDK中心のプランニング。専有面積、リビングや洋室の形、キッチンの形などが異なる多彩な間取りがあり、家族構成、ライフスタイル、好みの方角、予算などに合わせて選ぶことができます。
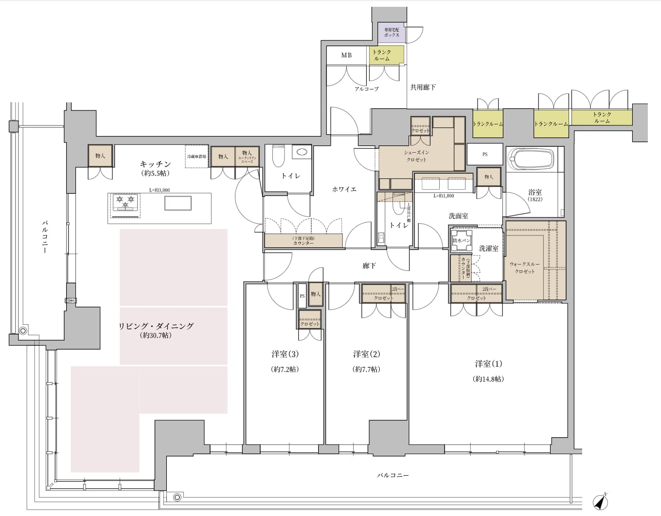
マンションギャラリーでは、2つの間取りが再現されていました。まず、EEtype(76.48m2)、3LDKのプラン。モデルルームでは大きなプラン変更はなく、実際の設備や広さなどを体験することができました。廊下が非常にコンパクトになっており、効率的な間取りです。その分、専有面積に対して広く感じました。

左:EEtypeの間取り図。洋室はリビングインで、子育てファミリーにとっては家族団らんがしやすいプランです。一方、リビングインになりがちな洗面洗濯室は廊下からの動線になっています
設備仕様は階によって、Urban Floor、Superior Floor、Executive Floor、Premium Floorの4つのグレードに分かれるそうです。見学した EEtypeはExecutive Floorである27階~38階までの仕様を再現していました。キッチンは、タッチレス機能付水栓・ディスポーザー・食器洗い乾燥機が標準仕様。また、フィオレストーン天板(4階~26階は人造大理石天板が標準仕様)で、掃除が楽な二方立ち上がり(一部住戸は三方立ち上がり)仕様。
玄関にはカメラ付きインターフォン、電池錠(27階~38階)。トランクルームと専用宅配ボックスが両方ついているのもいいなと思いました(階数、プランによってトランクルームが複数ある場合や、トランクルームはなく、専用宅配ボックスのみの住戸があります)。
もう一つのモデルルームはのPAtype(163.80m2)。元々は3LDKのプランですが、モデルルームでは1LDKにプラン変更していました。最上階のPremium Floor仕様で、採用されている設備仕様もさらにグレードが上がります。天井高もサッシ高も高く、眺望も楽しめそうな住戸です。モデルルームでは、その天井高、サッシ高、眺望イメージも再現していました。ぜひ、実際に見学していただきたいので詳細な説明は避けますが、廊下の役割を果たす「ホワイエ」にはまっすぐの壁がなく、曲線の世界。これぞモデルルーム!と心躍りました!

モデルルームになっているPAtypeのベーシックプランの間取り図。モデルルームでは、大胆なプラン変更が行われており、まさに憧れの住まいです
【まとめ】進化し続ける街で、家族が快適に暮らすタワーマンション
大阪の繁華街にアクセスしやすく、直線距離も近い「十三」という街にポテンシャルの高さを感じました。再開発エリアでは、街が整い、開発の全容が見えて多くの人が魅力を感じるようになった頃には、手が届きにくい価格帯になっていることも十分考えられます。進化し続ける街をイメージできるなら、検討しやすいマンションかと思います。
敷地内にスーパーマーケットや保育施設があり、日々暮らしやすそうです。3LDKの間取りが一番多いことからも、子育てファミリーを中心に、単身から、夫婦2人、シニア世帯までさまざまな人が暮らすマンションになるかと予想します。
1階から3階までエスカレーターで上り、グランドロビーへ入っていく流れは、入居後家に帰るたびに誇らしく感じられそう。
マンションギャラリーを見学し、「この家を買ってよかった」と感じられるマンションになるのではないかとワクワクしました。
情報量も多く、竣工まで時間があることから、少しずつ詳細な情報が公開されていくと思いますが、まずはマンションギャラリーに行き、複数のシアターとモデルルームを見学していただきたいマンションです。

※掲載の情報は見学時点の情報です。(現地見学日:2023年6月6日 モデルルーム見学日:2023年9月8日)
本コンテンツは、株式会社LIFULLからライターに依頼し、コメントを一部編集して掲載しています。
最新の詳細情報は、LIFULL HOME’S 「ジオタワー大阪十三の詳細情報」 をご確認ください。
関西エリアのマンション「WoMansion」
・阪急阪神不動産さんの「ジオ ゲストサロン 京都」に行ってきました!
公開日: / 更新日: