ヴェレーナグラン菊名の杜のモデルルームに行ってきました!
本コンテンツは、株式会社LIFULLからライターに依頼し、コメントを一部編集して掲載しています。
女性にやさしいマンション情報「WoMansion」は、女性ライターが新築分譲マンションのモデルルームを訪問し、見たこと、聞いたこと、感じたことを紹介します。
(モデルルーム訪問日:2023年5月15日)
こんにちは! 小学生の娘二人を子育て中のchiyuです。
今回は根強い人気がある沿線・東急東横線の「菊名」駅が最寄り駅となる「ヴェレーナグラン菊名の杜」を見学してきました。大和地所レジデンスさんの30周年記念プロジェクトというだけあって、ほかには類を見ないこだわりが詰め込まれた唯一無二のマンションでした!
目次
東急東横線の特急停車駅である「菊名」駅。JR横浜線も使える利便性の高い立地
「ヴェレーナグラン菊名の杜」は東急東横線・JR横浜線「菊名」駅まで徒歩13分の場所にあります。(グランドエントランスより)
マンションの最寄り駅である「菊名」駅は東急東横線の特急停車駅なので、都内に出るのに便利。東急東横線急行を利用して、「横浜」駅まで1駅6分。通勤特急を利用して「武蔵小杉」駅まで1駅9分、「渋谷」駅まで4駅29分、すべて直通アクセスです。
日中は東急東横線Fライナー特急を利用できるため、「池袋」駅まで直通34分で行くことができます。
JR横浜線の利用で、東海道新幹線の発着駅である「新横浜」駅まで1駅3分で行くことができるため、関西や東海方面への移動にも便利です。
「横浜」駅東口にある「横浜シティ・エア・ターミナル」からは、羽田空港や成田空港行きのリムジンバスが運行。羽田空港まで約24分、成田空港まで約85分でアクセスできるため、座ってゆっくり移動したいときは、電車ではなくリムジンバスを使う選択肢も取れるのがいいですね。出張やレジャーで、長距離の移動がしやすい場所です。
※電車の所要時間は、乗換え・待ち時間を含む通勤時(7:30~9:00着)の最も本数の多い電車のものです。時間帯により異なります。(ジョルダン調べ/2022年9月現在)

交通アクセス図。東急東横線沿線の「渋谷」駅からは東京メトロ副都心線、「横浜」駅からはみなとみらい線に乗り入れているため、都心部へのアクセスもスムーズです
「ヴェレーナグラン菊名の杜」は、首都高速神奈川7号横浜北線「馬場入口」ICまで700mという、車での移動がスムーズなのも魅力。空港や都内のビジネス街だけでなく、三浦半島や湘南方面の有名なレジャースポットまで快適にアクセスすることができます。

高速道路概念図。マンションからすぐ高速道路に乗れるので、ストレスなくさまざまな観光地に向けてのドライブを楽しむことができそうです
<物件概要>
所在地:神奈川県横浜市鶴見区上の宮一丁目35番3の一部他(地番)
交通:東急東横線・JR横浜線「菊名」駅徒歩13分(グランドエントランスより)
総戸数:125戸(他にパーティーラウンジ&キッズスペース(集会室)、ワーキングルーム、管理員室 各1戸)
階数:地上4階建て
引き渡し可能年月:2024年12月中旬(予定)
施工会社:株式会社 大勝
売主:大和地所レジデンス株式会社
一戸建て中心の静かな住宅街「丘のまち」に立つ「ヴェレーナグラン菊名の杜」
横浜市鶴見区は、区内を「丘のまち」「川のまち」「海のまち」に分類しており、「ヴェレーナグラン菊名の杜」が立つエリアは、一戸建てが中心の「丘のまち」に位置します。マンションが立つエリアは、建物の種類や高さが厳しく制限された第一種低層住居専用地域となっており、落ち着いた住環境で暮らすことができます。
マンションのグランドエントランスから東急東横線・JR横浜線「菊名」駅まで徒歩13分。
「丘のまち」の名の通り、高台の見晴らしのいい場所にあります。標高約13.9m~約32.7mの丘に位置しており、高台ならではの抜け感のある気持ちのいい眺望、風通しの良さが魅力。標高が高い場所にあるため、比較的洪水や高潮などの水害リスクが低いとされており、昔から人々が安心して暮らすことができる落ち着いた住宅街となっています。

エリア概念図。丘にあるため、低層マンションながら開放的な眺めが期待できます
「菊名」駅からマンションに向かうルートはいくつかありましたが、私は線路沿いを通り、階段を上って向かうというルートで現地に向かいました。モデルルームでは、ずっとゆるやかな上り坂の続く幹線道路を通るルート、なだらかに坂が続く車通りのほぼない住宅街を通るルート、前述の私が通った階段を使うルートの3パターンを教えていただきました。私なら夜遅くなるときは明るい幹線道路を通るルート、日中は車通りのほとんどない住宅街を通るルート、駅に向かう場合は階段が下りになるので、朝の通勤時は線路沿いのルートを使いたいと思いました。時間や目的、好みで選べるルートがいくつかあるのはいいですね。
東側のサブエントランスから出てすぐ目の前には、「鶴見駅西口」行きの臨港バス「上の宮一丁目」バス停があるので、荷物が多いときや雨のときにはバスを利用することもできます。

左上:「菊名」駅。駅前には商店街があり、にぎやかな印象がありました 中上:マンションへ向かう道中は、緩やかな上り坂を通ります 右上:カーブを曲がると目に入るマンション建設現地 左下:マンションに向かう途中の階段を上り切ったときに見える景色には、爽快感がありました! 右下:現地に向かう途中であじさいがきれいに咲いているところを見つけました
周辺には公園が多数あり、自然を身近に感じられる立地
買い物は、駅改札を出てすぐにある駅直結のスーパー「東急ストア菊名店」(徒歩13分、約1,040m)が帰宅途中の買い物に便利。売り場面積が広く、食料品だけでなく日用品もあるため、日常の必要なものはここでそろいます。
ほかにも「菊名」駅には、西口側にある駅直結ビル「シァル菊名」の1階に入っているスーパー「まいばすけっと菊名駅店」(徒歩14分、約1,050m)もあるので、その日の気分で使い分けができます。どちらも24時まで営業しているため、帰りが遅くなったときでも利用できますね。
ちょっとした買い物には、徒歩4分(約290m)の場所にコンビニ「セブンイレブン 横浜北寺尾7丁目店」があります。

現地案内図。見学した日だけでは回りきれないくらいの公園があります
少し足を延ばせば大型商業施設に行くこともできるため、自転車を所有していると行動範囲が広がります。「アクロスプラザ東神奈川」(徒歩14分、約1,120m)には、スーパー「オーケー 西寺尾店」(徒歩14分、約1,120m)や100円ショップの「ダイソー」、子ども用品の「西松屋」、「サイゼリヤ」などの飲食店も入っているので、買いたいものが多いときに行きたい商業施設です。複合型商業施設の「トレッサ横浜」(徒歩24分、約1,880m)には、「ユニクロ」「GU」「ロフト」「無印良品」などが入っています。
「ヴェレーナグラン菊名の杜」周辺には、公園が多いのも特徴。マンションに隣接する場所に提供公園ができる予定になっていますが、そのほかにも徒歩10分程度の場所に「入江川遊水池」(徒歩3分、約230m)、ザリガニ釣りが楽しめる「入江川せせらぎ緑道」(徒歩5分、約400m)、八重桜の名所である「菊名桜山公園」(徒歩9分、約670m)、大正時代に移築された茅葺屋根の古民家や竹林がある「馬場花木園」(徒歩10分、約790m)など、多種多様の公園があります。 また、少し足を延ばせば市営プールがある「菊名池公園」(徒歩18分、約1,470m)に行くこともできます。目的や気分によって迷うほどの選択肢があるのは、子育て世帯にとってはとくにありがたいです!

左上:駅に向かう途中に立ち寄ることができそうな「馬場七丁目公園」 右上:走り回れる広場だけでなく、滑り台などの遊具もあります 左下:馬場七丁目公園側からみたサブエントランス前の道路 中下:マンションに隣接する上の宮一丁目公園 右下:日常的に自然を感じることができる環境です
通学校は「菊名小学校」(徒歩11分、約880m)ですが、選択校としてより近い「馬場小学校」(徒歩3分、約170m)を選ぶことも可能なようです。「馬場小学校」を選んだ場合、通学路が住宅街で歩きやすいのもいいですね。中学の通学校は「上の宮中学校」(徒歩5分、約390m)になります。小中学校が近いというのも、このマンションの魅力の一つだと感じました。
徒歩10分程度の場所には、幼稚園と保育園も多数点在。横浜市鶴見区は2022(令和4)年4月で待機児童0(※)を達成しており、保育施設に比較的預けやすいというものいいなと思いました。
※参照:横浜市ホームページより(https://www.city.yokohama.lg.jp/kurashi/kosodate-kyoiku/hoiku-yoji/taiki/taikijidoutaisaku.files/0023_20220510.pdf)
敷地面積1万m2超えの敷地に立つ、丘の高低差を生かした6棟の配棟プランが魅力のマンション!
「ヴェレーナグラン菊名の杜」は、西側と東側の2方が接道しているマンション。駅に近い西側に「グランドエントランス」、反対の東側に「サブエントランス」と、エントランスが2つあります。
この場所はもともとゴルフの打ちっぱなしがあった場所。西側が一番高く、東側に向かってなだらかな傾斜地になっており、その形状を生かして、各棟の階数が異なります。グランドエントランス側の「Airy Villa」は5階から8階まで、1、2階があるのがサブエントランス側の「Fine Villa」のみとなっています。「Fine Villa」の4階から各棟への連絡通路があり、グランドエントランスや共用施設、ゴミ置き場を利用したいときは、この連絡通路を使って「Airy Villa」へと向かいます。「Airy Villa」の5階部分に屋内自転車置場、6階にグランドエントランスがあります。

概念図。丘の高低差を生かしたランドプランになっています
グラウンドレベルが高い西側から順番に、グランドエントランスや共用施設がある西向きの「Airy Villa」、南向きで日当たりが期待できる「Bright Villa」、前が中庭(シーズンガーデン)で東向きの「Comfort Villa」、東向きで駐車場に近い「Delight Villa」、こちらも日当たりが期待できる南向きの「Ever Villa」、サブエントランスがあり提供公園や駐車場に近い東向きの「Fine Villa」の6棟で構成された全125戸。モデルルームでお聞きしてはじめて気づいたのですが、棟の頭文字がA~Fになっています! A棟やB棟という呼び名ではなく、それぞれの棟にきちんと名前をつけているのが素敵だな、と思いました。
駅を利用する機会が多い方はグランドエントランスがある「Airy Villa」、絶対南向きがいい! という方は「Bright Villa」か「Ever Villa」という風にそれぞれの棟の特徴があり、ご家族のライフスタイルに合わせて棟を選ぶことができます。
私だったら提供公園や外部の公園、小学校も近い「Fine Villa」側がいいなと思いました。あるいは、中庭で遊ぶ子どもを家から見ることができる「Comfort Villa」を選びたいです!

敷地配置図。駐車場はサブエントランス側にあります
マンションが建っている場所が、第一種低層住居専用地域に指定されているため、周囲は一戸建てや低層マンション。南向きの「Bright Villa」と「Ever Villa」の向かいは低層のマンションですが、共用廊下側に面しているので、バルコニーでお見合いになることはありません。
「Airy Villa」より東側にあるほかの棟が「Airy Villa」より低い位置にあるため、7、8階は共用廊下側からも抜け感のある眺望が楽しめそうです。

左上:建設現地、グランドエントランス側。この位置からでも見晴らしの良さがよく分かります! 右上:グランドエントランス側からの眺望。抜け感があって気持ちいいですね! 下左右:建設現地、サブエントランス側。「鶴見駅西口」行きのバス停が目の前にあります
外観は、マンション全体のユーロデザインというデザインの統一性は保ちながらも、棟によって異なる表情を見せます。屋根や庇(ひさし)、外壁の色合いは、鉱石のオニキス(黒めのう)に着想を求めたものだそうで、ヨーロッパの美しい建築を思わせるデザインになっています。グランドエントランスは、ブラウンやグレーを基調とした落ち着いた外観で、サブエントランスは、やわらかい色合いをメインにしており、西側と東側で違う雰囲気を感じさせます。

左:外観完成予想CG。リゾート地のホテルを思わせる外観です 右:グランドエントランス・カーポーチ(Airy Villa)完成予想CG。屋根付きのカーポーチがあると雨が降ったときでも傘をさす必要がありません
共用施設は、「Airy Villa」の5階に水盤が流れる「アクアラウンジ」と「パーティーラウンジ&キッズスペース(集会室)」、6階に青山ブックセンターのブックコンサルタントがセレクトした書籍と雑誌がある「ライブラリーラウンジ」とリモートワークにも利用できるようにWi-Fiを備えた「ワーキングルーム」、庭に「シェアファーム(菜園)」があります。

左:「アクアラウンジ」の階段にはロートアイアン調の手すりが採用されています 中:「パーティーラウンジ&キッズスペース(集会室)」では、子どもと一緒にパーティーができます 右:6階にある「ライブラリーラウンジ」は、5階の「アクアラウンジ」と階段でつながっています
共用設備のなかで私がいいなと思ったのが「シェアファーム(菜園)」。私も育ててみたいとは思っているのですが、鉢を買って、土を買って、苗を…と考えているうちに面倒になって結局やっていません。外部のシェア畑を借りたとしても、行くのが億劫になって、結局うまく育てられなさそうなので、マンションの敷地内で自分の畑が持てるならぜひ自家栽培にチャレンジしてみたいです!
庭が充実しているのも「ヴェレーナグラン菊名の杜」の特徴。敷地の中央部分にあたる「Comfort Villa」と「Delight Villa」の間にはベンチやデッキを備えた「シーズンガーデン(中庭)」があります。敷地内なので、比較的安全に遊ばせられるのがいいですね。「Comfort Villa」の屋上には「スカイビューガーデン(屋上庭園)」もあります。さらに「Fine Villa」の北側には、約600m2超えの敷地にすべり台やうんていを設置した提供公園ができる予定。こちらはマンション住民専用のスペースではありませんが、ベンチや水道設備も設置されるそうなので、マンションから離れなくても、満足できるだけの遊べるスペースがありうらやましいです!

左:「シーズンガーデン(中庭)」。「Comfort Villa」に住んでいたら、自室のバルコニーから子どもの遊ぶ姿を眺められます 右:「スカイビューガーデン(屋上庭園)」。見晴らしのいいこの場所でのんびりしたり、子どもを遊ばせたりしたら気持ちよさそう!
そのほかの設備やサービスは、食デリ対応の宅配ロッカー、防災倉庫、停電時でも管理者が操作すれば利用できるベンダーコーナー、家族の帰宅時にメールを通知してくれる「MIWA-Link’s」、ペット足洗い場、24時間対応の屋内ゴミ置場と充実。グランドエントランスとセカンドエントランス通過時にメールでお知らせしてくれるサービスは、子どもが帰ったことを外にいても確認できるのでいいなと思いました。
ライフスタイルに合った部屋が見つけられる全86タイプの豊富なプラン!
「ヴェレーナグラン菊名の杜」は、2LDK~3LDK、56.00m2~100.54m2、なんと125戸に対して約70%にあたる86の豊富なプランが魅力のマンションです。
それぞれ個性の違う間取りが数多くあるので、どの部屋にするか迷ってしまう! と思いましたが、モデルルームでお尋ねしたところ、意外と「これは外せないよね、これはあるといいよね」と選んでいくと、そのご家族に合った部屋が決まっていくそう。開口部の向きだけでも南・西・東と選べるため、「南向きが絶対!」というご家庭ならば「Bright Villa」と「Ever Villa」に絞られます。そこから庭があった方がいいのか、天井が高い方がいいのか、スキップフロアが欲しいのか…と詰めていくと、好みの部屋にたどり着けます。
メゾネット、スキップフロア、床下収納、グルニエ(ロフト)、専用庭、テラス、オープンエアリビング、ルーフバルコニー、奥行き3mバルコニー、ガーデンスペース、ハイサッシ、コンサバトリールーム、出窓、ワークスペースあり、と個性的なプランがずらり。私はマンション住まいのため室内の階段にあこがれがあるので、メゾネットタイプに住んでみたいと思いました。DJmタイプ、3LDK+T+2W+M、94.67m2は、下の階に洋室とテラスがあるユニークなプラン。メゾネットタイプといえはリビングから上がってほかの部屋に行くというイメージが強かったですが、この形もいいですね。メゾネットタイプは階段部分に上部吹き抜けができ、開放的で明るい部屋になるのがいいところ。実際の部屋がどんな感じになるのかとても気になります。

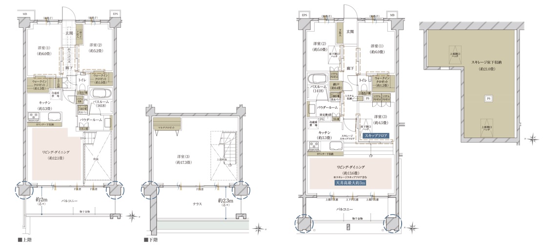
プランの一つにあるスキップフロアとは、床面の一部に高さを変えた部分を持たせた間取りのこと。「ヴェレーナグラン菊名の杜」のスキップフロアは、リビング・ダイニング部分に階段を設けることで天井高が最大約2.8m~3mあったり、高さを利用した床下収納を設けたりしています。
わが家では毎年キャンプをしたいなと思いつつ、収納する場所がないからと諦めていましたが、約22畳のスキレージ(スキップフロア&床下収納)の付いたプランを選べば、場所を取ってしまう大きなテントやバーベキューセットなども気にせずに購入できます!

左:DJmタイプの間取り図。下の洋室(3)は11畳もあるので、子どもが2人いても部屋を家具などで半分に仕切って2人で使えそうです 右:AKusタイプ、73.16m2、3LDK+W+N+USの間取り図。スキップフロアのプランは多くありますが、私はこの横長リビングタイプが、各部屋がきれいな形をしていて好きです
庭やテラスのあるプランで私が気に入ったのが、オープンエアリビングのあるプラン。リビング・ダイニングとフラットにつながっていて、リビングの延長線上のように使えます。オープンエアリビングのプランには、スロップシンク、デッキライト、防水コンセント、フラット調フロア、ウッド調デッキ、プリーツ網戸、フレキシブルウインドウ、リビングバイザーと設備も充実。2022年のキッズデザイン賞を受賞しているだけあって、子どもがのびのび遊ぶことができる、子育て世帯にうれしいプランだと感じました。
前述した通り、共用部分に「シェアファーム(菜園)」がありますが、テラスや専用庭の隅にガーデニングスペースが付いている部屋があります。実際にテラス部分だけ再現しているものをモデルルームで見せていただきましたが、思ったよりスペースが広くて驚きました! これならキュウリやプチトマト、なす、ピーマン、ハーブ類を植えても余裕がありそう。マンションに住んでいてこれだけの自家菜園をするスペースがあるなら、自分でいろいろな野菜を作ってみたいと夢が膨らみました。
モデルルームは、BDタイプ、3LDK+W+Sc+L、80.62m2のグルニエ(ロフト)があるプラン。モデルルームでは洋室(3)とリビング・ダイニングの扉を取り外した2LDKになっていました。

左:BDタイプ、3LDK+W+Sc+L、80.62m2の間取り図。リビング側アウトフレームで、家具が配置しやすいプラン 右上:シャンデリアや家具のデザインが凝っていて、真似をしたくなるインテリアでした! 右下:リビング・ダイニング・キッチン。洋室(3)の壁を取り払ったプランなので、ロフト前にさえぎるものがなく、より広く見えます
ロフトタイプのモデルルームを見学するのは初めて。まず一歩部屋に足を踏み入れたときは、その天井の高さに驚きました! それもそのはず、ロフトがある分、一般的なマンションよりかなり天井が高くなっており、こちらのBDタイプは最大約3.35mもの天井高です! リビング・ダイニングだけでなく、3部屋ある洋室も最大約3.3m~3.35mの高さなので、どの部屋にいても開放感がありました。さらに開放的で明るいハイサッシが採用されており、専有面積以上に広く感じました。
写真だと広さと明るさの感動をお伝えしきれないので、ぜひモデルルームに足を運んで実際に体感していただきたいです!

左:ロフトの階段は、ハンドル部分が曲線になっていて長いため、下りるときに後ろに体重をかけやすく、スムーズに移動ができました 中左右:リビング・ダイニング。見学した日はあいにくの雨でしたが、リビング・ダイニング側の窓がハイサッシ、角部屋ということも相まって、明るさと広さを平米数以上に感じられました 右:はじめにモデルルームに足を踏み入れて見た部屋がこの寝室だったので、「寝室でもこの天井の高さ!」と驚きました!
ロフトにも上らせていただきましたが、折り畳みができる階段は、高いところが苦手な私でも上り下りしやすかったです。
ロフトはリビング・ダイニングと洋室(3)側と、玄関側と2ヶ所に分かれています。夫婦と子どもで使う場所を分ければ、家族それぞれの趣味の隠れ部屋として使えそう! 私は漫画を読むのが好きなので、ロフトの一部を本棚にして、休日はロフトでゴロンと横になって漫画を読むという贅沢な時間に使いたいと思いました。

左上:モデルルームに一部再現されていたガーデニングスペース。これだけのスペースがあれば、自分好みの菜園や花畑が作れそう! 右上:洋室(3)側のロフト。棚を置いて整理すれば、いろいろなタイプの物を収納できます 左下:玄関側のロフト。階段は2つあるので、リビング・ダイニング側と玄関側とで分けて使うことができます 下中左:ロフトからリビング・ダイニングを見たところ 下中右:リビング・ダイニング側にあるロフトに上らせていただきました。家にある本を全部置いても余裕がある広さ! 子どもの秘密基地になって、ずっとここにいそうです 右下:寝室側にもロフト。計4ヶ所にロフトがあるため、大容量の収納が叶います
モデルルームも、ちょうど実際の部屋の方角と同じ南向きなので、実際の日当たりはこんな感じなのか…と予想しやすかったです。
22戸限定で「プレミアムプラン」を採用しており、対象住戸はグレードの高い設備仕様になっています。キッチンには手をかざすだけで止水・吐水ができる「タッチレス水栓」、操作パネルやゴトクをステンレスで仕上げた幅75cmの「ガラストップコンロ」、Rinnai社製「Beiz」にグレードアップした「無水両面焼きタイマー付コンロ」、3種類から無償でセレクト可能な天然御影石幅広キッチンカウンター、ダウンライト付きのカウンター下部収納、玄関・廊下には、カウンタートップに御影石を採用した下足入れ、玄関と廊下はタイル貼り、タイプに合わせた北欧デザインの天井照明がプレミアムプランでは標準装備。「タッチレス水栓」は、今私が一番欲しい設備なので、最初から付いているのはうらやましいです!
「プレミアムプラン」以外の設備も充実。キッチンには奥行き約1mの天然御影石幅広キッチンカウンター、キッチンサイド石貼り、ガラストップコンロ、食器洗い乾燥機、通話機能付給湯器リモコン、パウダールームには、天然御影石洗面カウンター、三面鏡下手元照明、フロントポケット、洗濯機置場上部吊戸棚、バスルームには、ミストサウナ付浴室暖房乾燥機、グローエ社製シャワーヘッド、浴室で音楽を流せるミュージック機能付浴室リモコン、ドア外2本タオル掛け付キレイドアとなっています。
バスルームで音楽が流せるのは、優雅な気分を味わえそうでいいですね!
【価格とまとめ】静かな住宅街でゆったり暮らせる、唯一無二のプランを選べるマンション
現在は先着順の販売になっており、2LDK~3LDKのプランで販売価格は5,848万円から。
※記事公開時点(2023年7月)での価格であり、現在販売中の間取りとは限りません。
地縁のある方だけでなく、広域からいろいろな方が見学に来られているようです。プランの多さや広さからファミリーの方が圧倒的に多いのかと予想していましたが、落ち着いた環境で暮らしたいというシニアの方や、テレワークが多めで環境を重視されるという単身の方も検討されているとお聞きしました。
実際にマンション周辺を歩いてみると、第一種低層住居専用地域というだけあって、静かで落ち着いた場所だと感じました。いろいろな種類の公園が近くにあり、小学校や中学校も近く、子育て世帯が暮らしやすい場所だと思います。また、在宅勤務が多めでたまに出社するという方には、共用施設のワーキングルームや、部屋によってはワーキングスペースがあるのでそこで仕事をしたり、オープンエアリビングやテラスがある部屋では気分を変えて外でゆっくり仕事をしたりするということができます。
あまりほかのマンションで見かけないメゾネットタイプやロフト、スキップフロアがあるのがこの「ヴェレーナグラン菊名の杜」の魅力。同じマンションに住んでいても、間取りがまったく同じものが少ないという、「自分だけの部屋」に住む喜びを感じられます。外観もリゾート地のホテルのような雰囲気があり、周囲から目を引く存在のマンションになるでしょう。
写真や文章では伝わらない感動を得られる「ヴェレーナグラン菊名の杜」のモデルルーム。ぜひ周辺の落ち着いた環境も一緒に見学しに行ってみてください!

※掲載の情報は見学時点の情報です。(モデルルーム訪問日:2023年5月15日)
本コンテンツは、株式会社LIFULLからライターに依頼し、コメントを一部編集して掲載しています。
最新の詳細情報は、LIFULL HOME’S をご確認ください。
同じ神奈川県のマンション「WoMansion」
・ザ・パークハウス 横浜川和町テラスのモデルルームに行ってきました!
公開日: / 更新日: